塔吊基础钢筋配筋图及照片
- 格式:docx
- 大小:1.86 MB
- 文档页数:3
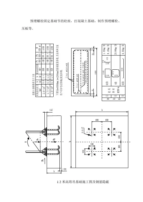
预埋螺栓固定基础节的砼座,打混凝土基础,制作预埋螺栓、
压板等。
警告:预埋地脚螺栓时应用铁丝与钢筋绑扎,绝不允许采用点焊的方法固定。
1.33k g /条9.19k g /条
25.99k g /条
6.53k g /条
竖条
54005370
5400
52条
6条
52条
建筑
钢材
Q 235-A
钢筋板③
②①11005370
1100
48条
下图为b =5500m m ,h =1200m m 的基础配筋参数,其余两种方案
用户可参考此图确定配筋参数.
1.2米高塔吊基础施工图及钢筋隐蔽
平衡重设计(仅供参考,以说明书为准,比重为2450 kg/m3时减少平衡重的长度,重量一致)
平衡重A
件4件1
件3
注:1. 砼标号:C35,如果混凝土的实际比重大于2300kg/m时,应适当减少混凝土的长度。
2.在平衡重的正背面、两个侧面和上平面分别用油漆标注或其他方法标注其实际重量。
3.用E4303焊条将角钢与角钢及钢筋焊成一体后再浇注,理论重量与实际重量误差较大时,以实际重量为准。
所用配筋圆钢可用同等级别螺纹钢代替。
TC7035-16固定预埋支腿基础图
2.2.1 说明
-下页表中所列数据是满足塔机稳定性的最小值。
-如有其他数据请与我们协商。
-最佳基础的选用取决于现场的地基承压力。
对于任何高度的塔机,按等于或低于现场地基承压力来选择基础。
-基础节安装的不当会严重影响塔机使用(如塔机倾斜等)。
-预埋支腿应按混凝土基础的中心对称安装。
-预埋支腿必须按电气要求正确接地。
-预埋支腿附近的钢筋不能切断,也不可减少。
2.2.2 地基承压力及混凝土基础尺寸
用预埋支腿与基础节连接的混凝土基础的尺寸决定于:
1)地面的允许承载力;
2)由塔机传来的力(M.N.F),混凝土基础要配以适当的钢筋,设计由用户负责;
3)预埋支腿埋入混凝土深度740mm。
2.2.3预埋支腿(仅供参考)
a
砼标号:C35
预埋支腿的钢筋混凝土配筋示例(仅供参考):
说明:1.本砼基础是当a=6600mm,h=1700mm,地耐力为2×105Pa时的配筋示意图;
2.砼标号为C35,砼比重为2300kg/m3;
3.本配筋图仅供参考,用户也可以按第上页的参数自行设计。
QTZ630型塔式起重机基础及配筋说明
哈体育学院职工住宅综合楼工程,为了保证工程按期竣工,在1/3~1/9轴与K~L轴之间和1/23~1/28轴与K~L轴之间各安装QTZ630型塔式液压自升起重机。
塔身自由高度要求60米,工作幅度20~50米,最大起重量6.0吨,最小幅度处起重量1.3吨。
根据塔式液压自升起重机设计图纸,基础为B×L=1200×7800㎜的钢筋砼十字梁H=1.0米。
配筋参照图23塔吊基础图。
坐在坚实的土质上,土质地耐力为15吨/平方米,为了保证液压自升起重机的稳定性,基础底增加C10砼100㎜厚。
基础下到-6.4米处,达到塔吊基础土方的稳定性。
经查地质报告-6.4米处为粉质粘土,地耐力为190KPa,满足设计要求。
基础混凝土强度等级为C35。
钢筋砼十字梁下配筋为Φ20单层双向,间距200㎜。
混凝土浇注时将十字梁的二分之一以下浇注成整体,十字梁的二分之一以上为梁,可保证基础的稳定性。
在完成塔吊安装后,在塔吊基础四周用240㎜厚红砖,M10水泥砂浆砌成挡土墙。
挡土墙高出地下室地面300㎜,外侧回填夯实高出地下室面。
塔身出一层板后砌300高挡水墙加盖作好防水保证雨水不进入室内。
下附塔吊与建筑物关系图
1 1/3 1/9 1/23 1/28 31
M M
K K
B B
1 31
注:塔吊①中心位置距1轴9.4m,距M 轴10.2m;塔吊②中心位置距31轴2m,M 轴10.2m.
塔吊进入地下室。
TC7035-16固定预埋支腿基础图
2.2.1 说明
-下页表中所列数据是满足塔机稳定性的最小值。
-如有其他数据请与我们协商。
-最佳基础的选用取决于现场的地基承压力。
对于任何高度的塔机,按等于或低于现场地基承压力来选择基础。
-基础节安装的不当会严重影响塔机使用(如塔机倾斜等)。
-预埋支腿应按混凝土基础的中心对称安装。
-预埋支腿必须按电气要求正确接地。
-预埋支腿附近的钢筋不能切断,也不可减少。
2.2.2 地基承压力及混凝土基础尺寸
用预埋支腿与基础节连接的混凝土基础的尺寸决定于:
1)地面的允许承载力;
2)由塔机传来的力(M.N.F),混凝土基础要配以适当的钢筋,设计由用户负责;
3)预埋支腿埋入混凝土深度740mm。
2.2.3预埋支腿(仅供参考)
a
砼标号:C35
预埋支腿的钢筋混凝土配筋示例(仅供参考):
说明:1.本砼基础是当a=6600mm,h=1700mm,地耐力为2×105Pa时的配筋示意图;
2.砼标号为C35,砼比重为2300kg/m3;
3.本配筋图仅供参考,用户也可以按第上页的参数自行设计。
可编辑修改精选全文完整版
基础各构件结构钢筋配筋(图解)1、普通阶形独立基础DJj
2、普通坡形独立基础DJp
3、杯口阶形独立基础BJj
4、杯口坡形独立基础BJp
5、基础梁JL
6、条形基础坡形底板TJBp
7、条形基础阶形底板TJBj
8、梁板式筏板基础主梁(柱下)JL
9、梁板式筏板基础次梁JCL
10、梁板式筏板基础平板LPB
11、平板式筏板基础柱下板带ZXB
12、平板式筏板基础跨中板带KZB
13、平板式筏板基础平板BPB
14、灌注桩GZH
15、扩底灌注桩GZHk
16、独立阶形承台CTj
17、独立坡形承台CTp
18、承台梁CTL
19、基础连系梁JLL
20、基础后浇带HJD
21、上柱墩SZD
22、下柱墩XZD
23、基坑(沟)JK
24、窗井墙CJQ
25、防水板FBPB。