人孔井施工方法
- 格式:docx
- 大小:16.39 KB
- 文档页数:2
人井维修方案一、维修内容:人井内法兰橡胶垫更换,不锈钢螺丝更换,防水制作,油漆粉刷等二、作业类型:危险区域作业(中风险)受限空间(中风险)三、作业人员要求: PH始终在现场,维修作业人员必须为经过培训的作业人员。
四、作业相关文件:工作清单、风险分析、工作许可证、关键控制点,气体测试记录。
五、作业流程施工准备:作业前确定作业方案-进行班前安全培训-个人PPE正确穿戴-作业PTW文件签署。
施工阶段:施工区域隔离-作业位置放置灭火器-人孔井内通风-进行气体测试-实施维修作业-作业完成。
撤场阶段:清理施工现场-文件完成签署。
七、安全防护用品及防护设施安全帽、安全鞋、防静电工作服、反光衣、手套硬质围栏、气体测试仪八、安全技术措施要求1.施工前使用硬质围栏或雪糕筒、警戒线将施工区域隔离,并悬挂“正在施工”“禁止通行”等明显标牌。
2.作业人员禁止携带打火机、烟、钥匙等易燃、容易产生火花的物品。
3.必须做好气体测试测试,并填写气体测试记录。
使用合格的气体测试仪器(我公司采用加拿大BW MC2-4型号,能有效的检查出H2S、CO、O2 以及可燃气体的浓度)4.因人孔井内油气严重、当作业前应先通风,待气体测试达到可施工时方可进行作业。
5.作业区附近必须放置足够灭火器。
6.作业前将作业附近可燃物(如木方)移除作业区。
7.当大风天气禁止进行危险区的热作业。
8.与施工人员进行安全技术交底(班前培训)9.使用防爆工具(防爆扳手、防爆螺丝刀、)进行部件的拆卸。
10.拆卸物品时轻拿轻放,避免铁器之间的触碰。
11.止在人孔井内进行打磨,切割,剔凿作业,如需要可详见(危险区域热作业时优先采用以下方法)12.危险区域热作业时优先采用以下方法:①拆迁法:就是把需要进行热作业的物体,从危险区域地点拆下来,迁往安全区后进行焊接,焊接完成后再装回原处。
此法最安全,只要工件能拆得下来,应尽量运用②隔离法一种是将焊接附近危险源作有效的隔离,例如油管道上用盲板,加封头塞头等办法。
井井、人孔施工方案介绍该施工方案旨在为井井和人孔的建设提供一个简单而可行的策略。
本文档将提供必要的步骤和指导,以确保施工过程安全有效。
施工步骤1. 前期准备阶段:- 对施工区域进行勘察,确定地下管道和其他设施的位置和深度。
- 确定施工材料和设备需求。
- 编制详细的施工计划,包括时间安排和人力资源分配。
2. 井井施工:- 根据设计要求,确定井井的位置和尺寸。
- 开挖井井,确保深度和形状符合设计要求。
- 安装井井壁,使用合适的材料和方法确保井井结构的稳定和耐久性。
- 安装井盖和井盖框,确保井井的安全和可访问性。
3. 人孔施工:- 根据设计要求,确定人孔的位置和尺寸。
- 开挖人孔,确保深度和形状符合设计要求。
- 安装人孔壁,使用合适的材料和方法确保人孔结构的稳定和耐久性。
- 安装人孔盖板和盖板框,确保人孔的安全和可访问性。
4. 完工和清理:- 确保施工过程符合相关标准和法规要求。
- 检查井井和人孔的结构和安装质量。
- 清理施工现场,并移除多余的材料和设备。
- 汇报施工结果和记录相关数据。
安全措施在进行井井和人孔施工时,必须采取以下安全措施:- 确保施工现场的安全,避免人员伤害和财产损失。
- 使用符合标准的材料和设备,确保施工质量和结构稳定。
- 遵守相关的法律法规和施工规范。
- 建立适当的警示标志和屏障,保护施工现场和周围环境。
总结该井井、人孔施工方案提供了一个简单而可行的策略,用于井井和人孔的建设。
在施工过程中,需要遵循规范要求和安全措施,以确保施工质量和安全性。
通过正确执行本方案的步骤,可以有效地完成井井、人孔的建设工作。
井孔、人井施工方案1. 引言本文档旨在提供井孔和人井施工方案的详细说明。
井孔和人井在建筑和工程领域中起着重要作用,用于安装设备、维修和检修管线。
本方案将介绍井孔和人井的定义、施工步骤、施工要求和质量控制措施。
2. 井孔和人井定义2.1 井孔:井孔是指在地下或地面上开凿的一个垂直孔,用于安装和维护管道、电缆等设备。
2.2 人井:人井是指在地下或地面上建造的一个类似井孔的结构,提供了一个工作空间,允许人员进入其中进行设备的操作和维修。
3. 井孔施工步骤井孔施工一般包括以下步骤:3.1 前期准备:确定井孔位置和尺寸,进行地面清理,并确保施工区域无障碍物。
3.2 开挖井孔:使用适当的工具和设备,按照设计要求开挖井孔,确保井壁平整、垂直。
3.3 加固井壁:根据设计要求,在井孔周围设置和加固井壁,防止塌方和坍塌。
3.4 安装设备:根据需要,在井孔中安装所需的设备,如管道、电缆等。
3.5 完工验收:完成井孔施工后,进行完工验收,确保施工符合设计要求和相关标准。
4. 人井施工步骤人井施工相对于井孔施工,多了人员进入其中操作和维修的需求,因此施工步骤相对复杂一些。
4.1 安全措施:在人井施工前,必须制定详细的安全措施和操作规程,保障人员的安全。
4.2 进入人井:使用适当的提升装置,如绳索、阶梯等,让人员安全进入人井。
4.3 设备安装:在人井中安装所需设备,并确保设备固定稳定,符合安全要求。
4.4 通风与排气:人井内通风与排气必须得到重视,以确保人员在其中工作时有足够的氧气供应。
4.5 完工验收:完成人井施工后,进行完工验收,包括检查设备安装是否符合要求,人井内是否存在安全隐患等。
5. 施工要求与质量控制措施5.1 施工要求:井孔和人井的施工必须符合相关法律法规和规范要求,确保施工安全可靠。
5.2 质量控制措施:在井孔和人井施工过程中,必须进行质量控制,包括施工材料的验收、施工质量的检查和监测等。
5.3 环境保护:井孔和人井施工必须注重环境保护,采取防止污染和恶化地质环境的措施。
人孔施工方案人孔施工方案人孔是城市基础设施中重要的一部分,用于排水、电力、通信等管线的接入和维护。
本文将针对人孔的施工方案进行详细介绍。
一、施工前准备1.明确施工范围和要求,具体确定人孔的位置和规格。
2.整理并准备好所需的施工材料、设备和工具,如混凝土、钢筋、人孔盖板、人孔井筒等。
3.组织施工人员进行必要的安全培训,确保施工过程中的安全。
二、施工步骤1.布置和固定人孔的基础:按照设计要求,在施工地点打好地基,并按照规定的深度和尺寸固定人孔井筒。
2.安装人孔底板:首先,在地基上铺设混凝土底板,然后将人孔井筒的底部固定在底板上,确保稳固和牢固。
3.预制人孔壁体:采用工厂预制的混凝土人孔井筒壁体,将其放置在底板上并进行固定。
4.安装人孔盖板:在人孔的顶部安装人孔盖板,用以覆盖和密封人孔设置。
5.连接管线和设备:根据实际需要,将排水、电力或通信管线、设备连接到人孔井筒内部。
6.进行强度试验和检测:在施工完成后,对人孔和管线进行强度试验和检测,确保其满足设计和标准要求。
7.消防安全和标识:对人孔进行消防安全设施的设置和标识,确保其符合相关法律法规的要求。
三、施工注意事项1.在施工过程中,要保持现场整洁,以免对周围环境造成污染。
2.施工人员必须佩戴必要的安全装备,并严格遵守安全操作规范,确保施工过程中的安全。
3.密切配合设计单位和监理单位的工作,及时解决施工过程中的技术问题和疑难情况。
4.在施工过程中,要严格按照施工图纸和规范进行施工,不得私自更改设计和施工方案。
5.在施工完成后,及时进行强度试验和检测,确保人孔的使用安全。
以上就是人孔施工方案的详细介绍。
在实际施工中,还需根据具体情况进行调整和完善。
通过合理的施工方案和科学的施工管理,可以有效保证人孔的质量和使用安全。
人孔井工程施工方案一、工程概况人孔井是指为了方便检修井内设施、进行管道维修和清淤等工作而设立的井。
在城市的道路、公园、广场、工厂、学校、住宅小区等地都可能会有人孔井的存在,它在城市的基础设施中扮演着非常重要的角色。
由于人孔井所在地面的不同,其设计、施工和维护都有着差异,本文将围绕普通城市道路的人孔井工程进行详细介绍。
二、施工前准备1. 审图:在施工前,施工单位需要根据城市规划、道路情况和排水系统等相关文件要求,审查设计图纸,了解井口尺寸、井室结构和深度等信息。
2. 临时交通方案:人孔井通常设置在道路中,施工单位需要制定合理的交通管理方案,确保施工期间的交通通畅,并保障施工人员和行人的安全。
3. 安全防护措施:施工单位需根据相关法规要求,设立合理的安全防护措施,包括设备防护、劳务防护、现场清洁等。
三、施工工艺1. 开挖:在确认井口位置后,施工单位使用适当的机械设备进行开挖。
对于较深井室,需要采取支护措施,并设置适度的通风设备,确保施工人员的安全。
2. 安装井筒:根据设计要求,在井室内安装井筒,并确保其垂直度和密实度。
对井筒与管道的连接处,需采取密封措施,以防止地下水涌入。
3. 铺设管道:如果需要在人孔井内铺设排水管道等设施,需在井筒安装完毕后进行。
在铺设管道过程中,需保证管道的平直、均匀,并确保管道连接处的严密性。
4. 安装井盖:在井口周围设置保护栏杆,便于维修人员进出井口,并且安装防盗、防滑井盖,确保井盖的安全性和稳固性。
四、施工注意事项1. 施工人员:施工灵活性强,技术要求严格,因此需要配备一定数量的专业施工人员,他们熟悉相关操作规程,能够严格落实工艺流程,确保工程施工质量。
2. 设备选择:施工单位需根据井口尺寸、深度和井室结构等,选择合适的设备和施工材料。
如挖掘机、起重机、电动机械等。
3. 环境保护:为了保护施工环境和降低施工对周边环境的影响,施工单位需对土方开挖、废弃物处理等进行合理处理,确保不对周边环境造成污染。
人孔、手井施工方案1. 背景在建设城市基础设施过程中,建设者常常需要进行人孔和手井的施工。
人孔和手井是连接地下管线的重要设施,其施工方案的合理性和安全性对于整个工程的顺利进行至关重要。
2. 目标本文档的目标是提供一种简单而有效的人孔和手井施工方案,旨在确保施工过程中的安全性和高效性。
3. 施工流程以下是人孔和手井施工的基本流程,每个步骤都需严格遵循相关安全要求:步骤一:现场准备1. 确定施工区域,排除周围的障碍物和妨碍物。
2. 集中施工所需的材料和设备,并确保其合适和完好。
步骤二:测量和标记1. 使用测量工具准确测量施工位置和深度。
2. 使用合适的标记工具在地面上标记出所需的施工区域。
步骤三:挖掘施工区域1. 使用适当的工具和设备挖掘出所需深度和尺寸的坑穴。
2. 确保坑穴的边缘坚固且不会崩塌。
步骤四:安装人孔或手井设施1. 将人孔或手井设施按照规定位置放置于坑穴中。
2. 确保设施的稳固性和正确的安装角度。
步骤五:接入管线1. 根据设计要求,将管线正确接入人孔或手井设施。
2. 使用适当的工具和材料进行连接,确保密封性和牢固性。
步骤六:施工结束1. 清理施工现场,清除所有的废弃物和杂物。
2. 检查施工结果,并确保施工质量符合相关标准和要求。
4. 安全注意事项在人孔和手井施工过程中,务必注意以下安全事项:- 使用符合标准的工具和设备,确保施工的准确性和安全性。
- 提供充足的人力资源,确保施工过程中的劳动力充足。
- 严格遵守相关的安全规章制度和操作规程。
- 确保现场通风良好并采取必要的防护措施,防止有害气体的积聚。
- 定期检查和维护施工设备,确保其正常工作和安全使用。
5. 结论人孔和手井的施工方案是确保城市基础设施建设顺利进行的关键环节。
本文档提供了一种简单而有效的施工方案,旨在确保施工过程的安全性和高效性。
在施工过程中,请严格遵守相关安全要求,保证施工质量和工程的顺利进行。
人孔井施工方法(一)引言概述:人孔井施工方法在土木工程领域具有重要意义。
本文将介绍人孔井施工的一般步骤,并深入探讨其中的五个关键要点。
通过了解这些要点,可提高人孔井施工的效率和质量。
正文:1. 地面准备工作a. 清理施工区域:清除杂物、堆积物和植被等,确保施工区域干净整洁。
b. 地面标记:确定人孔井的位置,并进行地面标记,以便后续施工。
c. 划定施工区域:根据设计要求,在地面上进行人孔井的界定,划定施工区域的范围。
2. 施工材料准备a. 预制人孔井材料:根据设计要求和规范,采购合适的人孔井预制材料,如钢筋、水泥、预制井筒等。
b. 工具准备:准备专用工具和设备,包括起重机、混凝土搅拌机、切割机等,以确保施工的顺利进行。
3. 人孔井的基础施工a. 开挖基坑:根据设计要求,在施工区域内进行基坑的开挖,确保基坑的尺寸和形状符合要求。
b. 地基处理:对基坑底部进行地基处理,如填充砂石、夯实土壤等,以增强承载能力和稳定性。
c. 浇筑基础混凝土:根据设计要求,将混凝土浇筑到基坑内,形成人孔井的基础结构。
4. 井筒施工a. 安装钢筋:根据设计要求,在基础混凝土中安装钢筋,增加井筒的承载能力。
b. 浇筑混凝土:在钢筋安装完成后,将混凝土逐层浇筑到井筒内,形成稳定的井筒结构。
c. 人孔井口设计:在井筒的顶部设计合理的井口结构,以便后续检修和维护工作的进行。
5. 完工及后续工作a. 表面处理:对人孔井施工完成后的表面进行养护和整平,使其符合美观和环境要求。
b. 安装相关设备:根据需要,安装人孔井内的相关设备,如排水管道、电缆等。
c. 竣工验收:进行人孔井的竣工验收,确保施工质量符合要求并达到设计标准。
总结:人孔井施工方法的顺利进行,关乎土木工程的质量和安全。
通过在地面准备、施工材料准备、基础施工、井筒施工以及完工及后续工作等五个关键要点的合理安排和实施,可确保人孔井施工的高效率和良好质量。
人孔井施工方法(二)引言概述:本文将介绍人孔井施工方法(二)。
人孔井是城市基础设施中重要的一环,其施工方法的选择和实施对于井体的稳固性和使用寿命具有至关重要的影响。
在本文中,我们将从准备工作,井底施工,井壁施工,井盖施工和完工验收等五个方面详细阐述人孔井的施工方法。
正文:一、准备工作:1. 调查设计:了解人孔井的用途、规格和位置要求,根据实际情况进行合理布局和施工设计。
2. 现场准备:清理施工现场,确保施工区域整洁,并设置安全警示标识。
3. 材料准备:准备好所需的施工材料,包括混凝土、钢筋、模板等,并按照要求进行验收和保管。
二、井底施工:1. 井底基础处理:清理井底,确保基底平整,并根据需要进行回填或垫层处理。
2. 钢筋安装:根据设计要求,将钢筋按照规定的间距和层数进行安装,并确保焊接牢固可靠。
3. 模板安装:根据设计要求,安装合适的模板,确保模板稳固,并严密密封以防止混凝土漏浆。
4. 混凝土浇筑:根据设计要求,将预制的混凝土浇筑到井底,同时进行震实和振捣以提高井体的密实性。
三、井壁施工:1. 模板安装:根据设计要求,设置合适的模板,确保模板垂直,并严密密封,以防止混凝土漏浆。
2. 垂直度控制:在模板安装完成后,进行垂直度的控制,保证井壁垂直度符合设计要求。
3. 混凝土浇筑:按照设计要求,将预制的混凝土浇筑到模板内,同时进行震实和振捣,以确保井壁的强度和密实性。
4. 混凝土养护:在浇筑完成后,对混凝土进行适当的养护,以提高混凝土的强度和耐久性。
5. 模板拆除:混凝土达到规定强度后,拆除模板,并进行养护。
四、井盖施工:1. 井盖安装:根据设计要求,安装适当的井盖,并保证井盖与井口的密合度和平整度。
2. 井盖固定:采取适当的固定方式,确保井盖稳固可靠,并且易于拆装和维修。
五、完工验收:1. 清理整理:对施工现场进行清理整理,清除多余材料和垃圾,保持施工区域整洁。
2. 检查验收:进行必要的检查和验收工作,包括井体结构、井盖安装是否符合要求,并修复任何存在的问题。
滨德(鲁冀界)高速公路人孔工程开工报告滨德高速目录一、工程概况 (3)二、主要工程材料要求 (3)三、项目管理组织机构及人员分工 (4)四、人孔工程施工 (5)五、质量保证措施 (8)六、安全措施 (9)七、文明施工和环保措施 (10)八、人孔施工安全注意事项 (11)一、工程概况根据图纸设计,在中央分隔带处,每间隔1000m设置一个分歧人孔,全线共设置分歧人孔13个。
分歧人孔以中央分隔带为中心线,沿路线方向2280cm,横向1680cm,四角设倒角,为不等八边形,深度距路面顶设计标高2.172m。
底部设12cmC15现浇混凝土,在井底中心设一积水罐。
孔身用浆砌砖块砌筑1.780m 高,强身内外用砂浆进行抹面。
在沿中心线、横向轴线的墙身上根据图纸各预留通信管道接口。
强身上安装人孔上覆,人孔上覆为C20号钢筋混凝土预制构件。
人孔井口为圆形,先用砖块砌筑,之后用C15号混凝土将预制好的井盖浇筑固定于井口砌砖上。
二、主要工程材料要求2.1水泥混凝土人孔上覆混凝土标号为C20,底部基础为C15小石子混凝土,配合比详见各配合比报告。
水泥:水泥选用故城山水水泥有限公司生产的PⅡ42.5水泥,每批水泥进场时应附生产厂家的产品质量合格证书,并由试验室对水泥进行取样检验,检验合格后报监理工程师审批,经过监理工程师同意方可用于本工程施工。
砂:砂子选用肥城市汶阳镇姜杭砂场生产的天然河砂,砂质洁净、坚硬、符合规定级配、细度模数在2.5以上,按JTJ058-94的标准方法试验,其颗粒级配范围应符合相应要求。
碎石:碎石选用山东长青石料厂生产的级配碎石,粒径级别分别为5-10mm,10-20mm,16-31.5mm。
在施工中,根据配合比设计分别选择需要的粒径进行混凝土拌和。
2.2砂浆本工程浆砌片石砂浆采用M7.5,其配合比为:水泥:砂:水=250:1500:280,该配合比已进行试配并经监理工程师批复同意使用。
水泥:采用选用故城山水水泥有限公司生产的PⅡ42.5水泥,每批水泥进场时应附生产厂家的产品质量合格证书,并由试验室对水泥进行取样检验,检验合格后报监理工程师审批,经过监理工程师同意方可用于本工程施工。
加油站人孔井维修方案一、维修背景。
咱加油站的人孔井就像个低调的大功臣,一直默默在地下工作。
但最近它有点小毛病,为了保证加油站的安全运营,咱得给它好好修一修。
二、维修前的准备。
# (一)人员安排。
1. 维修小队组建。
得找几个经验丰富的老师傅,他们就像武林高手一样,对人孔井的构造和维修那是门儿清。
再配上几个年轻力壮、学习能力强的小徒弟,负责打下手和学习。
2. 安全培训。
在开工前,要给所有人来一场严肃又有趣的安全培训。
就像给大家念紧箍咒一样,讲讲在加油站维修可能遇到的危险,比如油气爆炸、工具伤人之类的,让每个人都牢牢记住安全第一。
# (二)工具和材料准备。
1. 工具清单。
大扳手、小扳手,各种型号都得备齐,就像给不同体型的螺丝准备合身的衣服。
还有螺丝刀、锤子、撬棍等,这些工具就像维修小队的武器。
2. 材料采购。
根据人孔井的具体情况,购买新的密封胶圈、螺栓、螺母等零件。
这些零件就像给人孔井准备的新零件,要保证质量好,就像给它换上高级装备。
3. 防护用品。
防火防爆的工作服、安全帽、安全鞋,这些防护用品就像超级英雄的战衣,必须人人都穿上。
还有防毒面具,毕竟人孔井里可能有油气残留,可不能让大家被熏到。
# (三)安全措施。
1. 设置警示标识。
在人孔井周围设置大大的“正在维修,请勿靠近”的警示标识,就像给它周围画个警戒线,让大家都知道这里是维修重地。
2. 油气检测。
维修前,用专业的油气检测设备检测人孔井里的油气浓度。
如果油气浓度超标,就像发现了隐藏的小怪兽,得先通风换气,把油气浓度降到安全范围。
三、维修步骤。
# (一)打开人孔井。
1. 清理井口周围。
先把人孔井井口周围的杂物清理干净,就像给它的家门口打扫卫生一样。
那些小石子、树叶啥的都不能留,不然会影响维修操作。
2. 拆卸井口部件。
老师傅们拿着合适的工具,小心翼翼地拆卸井口的螺栓、螺母和其他部件。
这就像拆一个精密的小机器,要轻拿轻放,把拆下来的部件放在专门的盒子里,就像给它们找个临时的小窝。
人孔井施工方法人孔井施工方法一、概述人孔井是指在地下道路、地下管线等工程中,为便于检修、维护或者接入其他管线而设立的井口。
本文主要介绍人孔井的施工方法,包括选址、设计、开挖、支护等环节。
二、选址选址是人孔井施工的第一步,合理的选址可以确保后续施工的顺利进行。
选址应考虑以下因素:1. 管线布置要求:人孔井应位于管线的转角、接头或者分支处,方便检修和维护工作。
2. 通行情况:应考虑周边道路或者地下设施的通行情况,以保证施工过程中的安全和便利。
三、设计设计是人孔井施工的核心,合理的设计可以提高人孔井的使用寿命和安全性。
设计应包括以下内容:1. 结构形式:根据实际需要选择合适的人孔井结构形式,如方形、圆形、长方形等。
2. 尺寸和深度:根据管道规格和周边情况确定人孔井的尺寸和深度,确保有足够的空间进行检修和维护。
3. 材质和强度:选择适当的材质和强度,考虑地下水位、地质条件等因素,确保人孔井的稳定性和耐久性。
4. 排水系统:设计合理的排水系统,避免水分对人孔井的伤害。
四、开挖开挖是人孔井施工的重要环节,应按照设计要求进行操作。
开挖过程中需要注意以下事项:1. 安全防护:严格遵守安全操作规程,进行足够的支护和防护措施,确保施工人员的安全。
2. 施工工序:按照设计要求和工程进度,分段进行开挖,及时清理渣土和水分,确保开挖顺利进行。
3. 地下设施保护:在开挖过程中,要注意地下现有设施的保护,避免对周边管线和电缆等造成伤害。
五、支护支护是保证人孔井结构稳定和安全的关键环节。
支护方式可以根据实际情况选择,常见的支护形式有:1. 钢筋混凝土支护:采用钢筋混凝土方框或者圆形支护结构,能够提供较强的抗压和抗拉能力。
2. 预制构件支护:采用预制的钢筋混凝土构件,方便施工,并具有较好的整体性能和耐久性。
3. 隧道衬砌支护:合用于较大规模的人孔井施工,采用隧道衬砌结构,保证人孔井的稳定性和安全性。
六、扩展内容1. 本所涉及附件如下:- 人孔井选址评估表- 人孔井设计图纸- 人孔井施工方案2. 本所涉及的法律名词及注释:- 建造法:指中华人民共和国《建造法》,规定了建造工程的法律责任及管理要求。
人孔井施工方法人孔基坑开挖1.对人孔位臵纵横向轴线进行精确放样,在根据纵横轴线位臵确定人孔边线,确定开挖范围。
2.根据人孔确定边线对人孔进行开挖。
由于中央分隔带范围有限,且路基已施工完毕,土体比较结实,因此基坑可不设开挖边坡。
在保证路基、路面结构层尺寸不被破坏的前提下,开挖基坑时可适当加大开挖面,要尽量留出施工人员工作平台。
3.开挖边坡坡面要平整,待开挖至设计标高上10cm左右时,停止机械开挖,改用人工找平,并人工在地面中心挖出积水罐预留槽口。
采用小型夯机对基底进行夯实处理。
4.开挖土须堆放在基坑边线40cm外,以免松土洒落至基坑。
人孔基底混凝土浇筑人孔基底混凝土采用C15号混凝土进行浇筑,混凝土为拌和站集中拌和,罐车运至现场进行浇筑。
1.浇筑前先在基底根据设计图纸尺寸支竹胶板模板,支模要牢固,准确,保证混凝土浇筑边线位臵符合图纸设计请求。
2.混凝土浇筑时接纳溜槽入模,制止混凝土倾落高度大而产生离析。
3.在浇筑过程中,接纳振捣器对混凝土进行振捣,人孔将料布至模板周围,振捣器在边XXX捣时避免碰触模板。
4.在人工布料的同时,根据图纸设计将积水罐安装于底面中心。
5.振捣充分后,对混凝土面进行人工抹平,抹平时根据图纸做出由四边向中的坡面,使中心距四边低2cm。
待初凝厚再进行收面,并用塑料薄膜覆盖养生。
6.在此期间注意避免基坑边缘土洒落,影响基底混凝土质量。
人孔墙身砌筑墙身采用普通砖块以砂浆进行砌筑。
1.砌筑前先对基底混凝土表面进行清理,对墙身内边线进行放样,确定墙身尺寸。
2.在铺砌第一层砖块前先用在混凝土表面铺砌一层砂浆,铺砌砂浆要厚度均匀,平整,宽度满足砖块宽度要求。
砖块在砌筑前宜先用水充分浇湿。
3.在砂浆表面铺砌砖块,砖块铺砌时要注意保持整层砖面高度一致,可用线绳做成每层铺砌平面线。
待一层铺砌完成,再用砂浆铺砌,此时砂浆不仅要平铺整个砖面,并要对砖块之间缝隙进行填塞,填塞要饱满。
4.砌筑过程中要时刻观察,砌筑墙面是否垂直,并随时进行调整,在层厚超过四层时可用铅垂掉线控制墙身竖直度。
手井、人孔井施工方案
(1)按手井、人孔井的中心坐标位置测放出手查井的开挖边线(包括放坡)并预留工作面宽度。
(2)砌筑手井、人孔井、的材料采用普通页岩砖,砖运至施工现场时要进行验收,不合格的砖一律不得用于构筑物安砌施工。
(3)手井、人孔井井底基础应与管道基础同时浇筑。
(4)页岩砖使用之前洒水润湿,手井、人孔井砖砌筑按XXX相间的方法安砌,上下错缝;砌筑沙浆应满铺满挤,水平灰缝厚度和竖向灰缝宽度符合规范规定,并不得有竖向通缝,安砌后的接缝沙浆凝结硬化期间应加强养护,并不得受外力碰撞或震动。
(5)砌筑手井、人孔井的预留管道随砌随安,预留管的直径、方向、标高应满足设计要求,管与井壁衔接处应严密。
(6)手井、人XXX接入圆管的管口应做喇叭口并与井壁收平接顺。
(7)手井、人孔井梯踏步安装:砌筑井内的梯踏步应随砌随安,位置准确,踏步安装后,在砌筑沙浆或混凝土未达到规定抗压强度前不得踩踏。
(8)手井、人孔井砌筑至设计高程后,立即施工井座,安装井圈并盖好井盖。
设置在车行道和铺砌路面的手井、人孔井、,施工完毕后其井盖及盖座,井座和盖座均采用其面与路面XXX;设置在绿化带的手井、人孔井、井盖可高出地面0.05m。
(9)手井、人孔井周边回填:回填前搜检井的抹面及防渗已完成并符合质量请求,经监理工程师搜检验收;搜检井回填采用野生分层对称回填方法进行,其分层厚度为25cm摆布,野生摊铺捡平后用小型夯实机器夯实,直至与搜检井表面平齐。
(10)手井、人孔井施工质量标准同排水检查井。
加油站人孔井作业票规程
(1)
加油站人孔井主体安装步骤在以上两期的微信推送中已经介绍完毕,本期主要为大家讲讲框边和人孔井盖井框的安装以及最后的混凝土的安装要求。
人孔井框边和井盖井框
01
高于人孔井上方地坪50mm,固定一条水平标高基准线。
将4个安装用附件挂钩均匀装在支架上部。
02
将框边和井框放在挂钩上。
用4个泡沫固定垫放在框边和支架中间,使支架与框边中心对齐。
03
通过回填来调整井框和框边的高度,使得井框高于地面30-50mm。
04
在框边的外侧用混凝土固定框边和井框位置,混凝土与框边成45°角。
(2)
01
确保支架和框边的空隙不要灌入混凝土,保持支架与框边最小重叠高度为90mm(高水位安装时为120mm)。
02
使用砂砾或细沙回填至人孔井合适位置,井框必须由至少200mm厚的混凝土支撑。
钢筋混凝土内的钢筋必须尽可能地靠近井框,井框周围至少500mm区域内不要有混凝土接缝。
钢筋的敷设,混凝土的浇注需要按图施工,尽可能连续浇注混凝土。
03
在密封胶未凝固前不要安放人孔井盖,固化需至少等待一整晚。
04
建议进行人孔井整体真空测试。
人孔井施工方法人孔井是城市基础设施中常见的一种组成部分,用于提供接入和维修地下管线的便利。
人孔井的施工方法至关重要,因为它直接影响到井的质量和使用寿命。
本文将介绍一些常见的人孔井施工方法。
首先,人孔井的施工需要根据设计图纸进行布局和标定。
施工人员应仔细阅读设计图纸,了解人孔井的尺寸、位置和深度要求。
在施工前,还应根据当地的规范和要求,获得相应的施工许可和批准。
接下来,开始施工前,必须先清理施工区域。
确保施工区域内没有障碍物,并且地面平坦稳固。
然后,在确定好人孔井位置后,进行现场测量和标记,确保位置准确无误。
在开始挖掘工作之前,需要先进行地下管线的勘测和定位。
这是为了避免对管线的损坏和施工事故的发生。
勘测完成后,开始挖掘工作。
挖掘的深度和尺寸应根据设计要求进行,同时要考虑到井内设备的安装和维修操作的便利性。
挖掘完成后,需要对井的底部进行垫层处理。
垫层通常使用砂石或砾石铺垫,以提供井底的平整和承重能力。
同时,还可以考虑添加一层防水材料,以防止地下水渗入井内。
接下来,进行人孔井的构造工作。
首先是围护墙的砌筑,可以使用混凝土或砌石等材料。
围护墙的高度和厚度应根据设计要求进行,以保证井的结构稳定和强度。
在围护墙建造完成后,就可以进行井盖的安装了。
井盖通常由铸铁或钢材制成,可以根据需要选择合适的井盖类型。
井盖的安装要确保与围护墙紧密连接,并且具有良好的密封性能,以防止雨水和杂物进入井内。
最后,对施工进行必要的检查和测试。
检查所有施工工艺是否符合要求,井盖是否安装牢固,并且无明显的缺陷或损坏。
同时,进行渗水测试和承重测试,以验证井的质量和稳定性。
在施工完成后,还需要进行清理和整理工作。
清理施工现场,处理掉多余的材料和废弃物。
同时,确保施工区域的安全和整洁,以便日后的检修和维护工作。
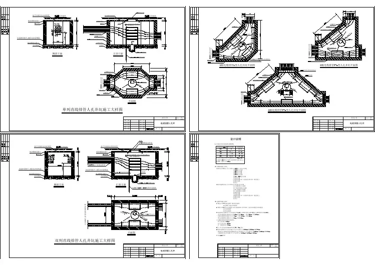
人孔基坑开挖
1.对人孔位臵纵横向轴线进行精确放样,在根据纵横轴线位臵确定人孔边
线,确定开挖范围。
2.根据人孔确定边线对人孔进行开挖。
由于中央分隔带范围有限,且路基已施工完毕,土体比较结实,因此基坑可不设开挖边坡。
在保证路基、路面结构层尺寸不被破坏的前提下,开挖基坑时可适当加大开挖面,要尽量留出施工人员工作平台。
3.开挖边坡坡面要平整,待开挖至设计标高上10cm左右时,停止机械开挖,改用人工找平,并人工在地面中心挖出积水罐预留槽口。
采用小型夯机对基底进行夯实处理。
4.开挖土须堆放在基坑边线40cm外,以免松土洒落至基坑。
4.2人孔基底混凝土浇筑
人孔基底混凝土采用C15号混凝土进行浇筑,混凝土为拌和站集中拌和,罐车运至现场进行浇筑。
1.浇筑前先在基底根据设计图纸尺寸支竹胶板模板,支模要牢固,准确,保证混凝土浇筑边线位臵符合图纸设计要求。
2.混凝土浇筑时采用溜槽入模,避免混凝土倾落高度大而产生离析。
3.在浇筑过程中,采用振捣器对混凝土进行振捣,人孔将料布至模板四周,振捣器在边缘振捣时避免碰触模板。
4.在人工布料的同时,根据图纸设计将积水罐安装于底面中心。
5.振捣充分后,对混凝土面进行人工抹平,抹平时根据图纸做出由四边向中的坡面,使中心距四边低2cm。
待初凝厚再进行收面,并用塑料薄膜覆盖养生。
6.在此期间注意避免基坑边缘土洒落,影响基底混凝土质量。
4.3人孔墙身砌筑墙身采用普通砖块以M
7.5砂浆进行砌筑。
1.砌筑前先对基底混凝土表面进行清理,对墙身内边线进行放样,确定墙身尺寸。
2.在铺砌第一层砖块前先用在混凝土表面铺砌一层砂浆,铺砌砂浆要厚度均匀,平整,宽度满足砖块宽度要求。
砖块在砌筑前宜先用水充分浇湿。
3.在砂浆表面铺砌砖块,砖块铺砌时要注意保持整层砖面高度一致,可用线绳做成每层铺砌平面线。
待一层铺砌完成,再用砂浆铺砌,此时砂浆不仅要平铺整个砖面,并要对砖块之间缝隙进行填塞,填塞要饱满。
4.砌筑过程中要时刻观察,砌筑墙面是否垂直,并随时进行调整,在层厚超过四层时可用铅垂掉线控制墙身竖直度。
5.如此反复,知道砌筑到设计标高为止。
砌筑过程中应定时对砌筑墙体浇水,使墙体保持湿润。
一个人孔应一次砌筑完成。
6.待井身砌筑完毕,对砌筑过程中多余的砂浆进行清除,并用M7.5的砂浆对井身进行抹面。
抹面前宜先对井身用水浇湿。
7.抹面时注意抹面厚度均匀,保证抹面厚度不小于1cm。
8.抹面应一次完成,待砂浆初凝后继续浇水湿润,用塑料薄膜覆盖养生,并不断派人检查养生情况,保证砂浆抹面7天保水15天保湿。
4.4人孔上覆施工人孔上覆采用C20混凝土进行预制,预制使用竹胶板作为模板,混凝土地面作为底板。
1.选择平整的混凝土地面作为预制人孔上覆的工作平台,要求地面平整度误差不超过3mm。
2.在地面标出人孔上覆各轴线及边缘尺寸线,根据图纸设计对人孔上覆钢筋进行绑扎。
控制钢筋间距,符合图纸设计及规范要求。
3.钢筋绑扎好后,用竹胶板进行模板支护,支护要牢固,确保混凝土浇筑时不变形,不跑模。
4.用塑料垫块对钢筋骨架进行支撑,塑料垫块以梅花形式布设,布设数量以完全支撑起
钢筋骨架为准。
5.C20混凝土采用集中拌和,人工进行布料的方式进行。
混凝土浇筑前对底板撒脱模剂,或撒一层薄细砂,避免人孔与地面粘连。
6.人工布料注意避免碰触钢筋及模板。
布料要均匀,使上覆表面平整,布料完后平板振动器对上覆混凝土进行振捣,将混凝土振实,最后用刮尺对上覆表面刮平,确保上覆表面混凝土平整。
待混凝土初凝对混凝土表面进行收面,并用塑料薄膜覆盖养生。
养生满足7天保水,15天保湿的要求。
7.上覆安装时用拖车将其运至施工现场,运送时注意对上覆垫盖木条或棉被,运送车辆要缓慢平稳行驶,以免运输途中磕碰。
8.在人孔墙身上打出上覆边缘线,用小吊车配合人工将其准确对中,安装。
4.5人孔井盖施工人孔井盖为通信管道系统专用井盖,为玻璃钢材料制作。
我项目将购买符合设计及规范要求的人孔井盖成品进行施工。
1.施工前先确定人孔井盖中心位臵,并根据中心位臵按照图纸设计用砖砌筑井盖座。
2.根据图纸设计将人孔井盖安装上砖砌井座上,并用C15混凝土进行缘石浇筑,将人孔井盖固定于井座上。
4.6施工控制要点
1.基坑开挖根据放样轴线及边线进行,确保人孔位臵准确。
基坑挖方土应堆在人孔边线40cm外。
2.基坑底部必须进行整平、夯实处理。
3.人孔尺寸必须符合设计要求。
4.混凝土、砂浆必须根据配合比进行拌和,任何人不得私自改变配合比。
5.墙身砌筑几何尺寸及垂直度应满足设计及规范要求。
6.砌筑施工时,砖块应先浇湿,砌筑过程中保持墙体湿润,抹面施工时墙体应浇湿,抹面厚度不小于1cm,抹面要均匀、平整。
砌筑、抹面应一次完成。
7.人孔上覆预制几何尺寸应满足设计及规范要求。
浇筑上覆混凝土前必须对地面涂洒脱模剂,或铺一薄层细砂。
8.人孔上覆运输过程要注意避免磕碰。
9.人孔井盖应对中,确保人孔位臵准确。
10.人孔井盖应符合设计及规范要求。
11.墙身抹面后在砂浆初凝的时候,对墙身用塑料薄膜覆盖进行养生;人孔上覆混凝土初凝后用塑料薄膜覆盖进行养生,养生要满足7天保水,15天保湿的要求。