湖南万通汽修学校,汽车检测技术入门
- 格式:docx
- 大小:35.73 KB
- 文档页数:8
湖南靠谱正规的汽车修理培训学校湖南万通汽车学校湖南靠谱正规的汽车修理培训学校湖南万通汽车学校,具备优秀的品牌形象。
曾获得湖南省人社厅,长沙市人社局,认定的“湖南省长沙市职业技能培训定点单位”,“湖南省退役士兵就业创业培训基地”,还摘得了由媒体网易、腾讯等评选出的“职业教育奖”,并持续多年获得民办教育优秀单位称号。
湖南万通校企共建办学模式,开拓产教融合新模式湖南万通在办学过程中,向来重视产教融合、教育接轨市场,各个专业与各大企业均有校企共建合作关系,并且跟随市场的脚步,不断深化合作关系,改进合作方式,以保障万通学子学有所长,学有所用。
虽然并非试点单位,但湖南万通作为长沙市人力资源和社会保障局认定的“长沙市就业技能培训定点机构”。
严格按照人设部门的相关要求,定期开展职业资格鉴定证书培训、考证工作,鼓励学校学生参与考证考试,提高技能人才培养质量。
湖南万通技工学校接轨市场,学校针对初高中毕业生开办轨道交通运输与管理专业、新媒体制作与传播专业、商务会计专业、汽车运用与智能网联专业等热门专业,让学子们可以接触到好玩又有前途的行业前沿领域,学校采用“七分实践,三分理论”的理实一体化教学模式,小班教学,老师手把手指导,确保每一个学子都能学到真正扎实的本领。
在校还可以考取大专学历,让学子在收获高技能的同时,能拿到理想的文凭。
学子毕业合格后学校还会直接推荐工作。
湖南万通汽车学校隶属于新华教育集团,学校开设汽车智能检测与维修工程师、汽车美容、汽车钣金修复、汽车运用与新能源工程师、商务管理等高端专业。
采用“理实一体化”教学模式,由拥有着多年汽修经验的专业老师手把手教学,包学包会。
学校拥有丰厚的教学实力,配备了先进的实训设备、二十余台整车实训车辆,供学生实践操作,学生在校时便可反复实践,毕业即可上岗,无缝对接就业岗位。
学汽修,就选湖南万通汽车学校!。
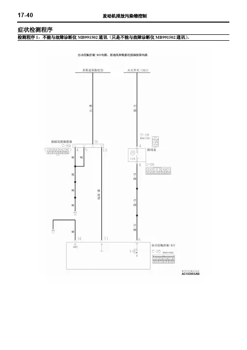
17-40 发动机排放污染物控制 症状检测程序检测程序1不能与故障诊断仪MB991502通讯只是不能与故障诊断仪MB991502通讯我将陆续将相关资料上传至文库,请耐心等待。
你也可以登录我校官方那个网站 湖南万通汽修学校www.hunanwt.com 向客服免费索取。
向上......发动机排放污染物控制 17-41电路工作原理通过接线盒内的多用途保险丝11自动巡航控制ECU 的电源由点火开关IG1传输到自动巡航控制ECU技术说明解释原因可能是自动巡航控制ECU 电源电路或自动巡航控制ECU 接地电路有故障故障排除提示z 线束或插接器损坏 z自动巡航控制ECU 故障17-42 发动机排放污染物控制诊断要求的专用工具z MB991223线束组步骤1通过背面检测检查自动巡航控制ECU插接器C-35处的输出电路电压1不要断开自动巡航控制ECU插接器C-352将点火开关置于ON 位置3通过背面检测测量端子6与接地线之间的电压4将点火开关置于LOCK关闭位置问题电压是否大约为蓄电池正极电压是转入步骤5否转入步骤2步骤2检查自动巡航控制ECU插接器C-35情况问题插接器是否损坏是修理或更换损坏的插接器参见00E-2页00E组线束插接器检测然后检查故障是否已经排除否转入步骤3发动机排放污染物控制 17-43步骤3检查接线盒插接器D-08和D-06情况问题插接器是否损坏是修理或更换损坏的插接器参见00E-2页00E组线束插接器检测然后检查故障是否已经排除否转入步骤4步骤4检查点火开关与自动巡航控制ECU插接器C-35之间的线束导线问题点火开关与自动巡航控制ECU插接器C-35之间的线束导线是否损坏是修理线束然后检查故障是否已被排除否检查故障是否已排除如果故障已排除更换自动巡航控制ECU见17-75页然后检查故障是否已被排除17-44 发动机排放污染物控制步骤5通过背面检测检查自动巡航控制ECU插接器C-35的输出电路电压1不要断开自动巡航控制ECU插接器C-352将点火开关置于ON 位置3通过背面检测测量端子14与接地线之间的电压4将点火开关置于LOCK关闭位置问题电压是否大约为蓄电池正极电压是转入步骤8否转入步骤6步骤6检查自动巡航控制ECU插接器C-35情况问题插接器是否损坏是修理或更换损坏的插接器参见00E-2页00E组线束插接器检测然后检查故障是否已经排除否转入步骤7步骤7检查自动巡航控制ECU插接器C-35与接地线之间的线束导线问题自动巡航控制ECU插接器C-35与接地线之间的线束导线是否损坏是修理线束然后检查故障是否已排除否检查故障是否已排除如果故障已排除更换自动巡航控制ECU见17-75页然后检查故障是否已排除发动机排放污染物控制 17-45步骤8检查数据连接插接器C-69的输出电路电压1点将火开关置于ON位置2测量端子13与接地线之间的电压3将点火开关置于LOCK关闭位置问题电压是否大约为4伏特和更高是检查故障是否已排除如果故障已排除更换自动巡航控制ECU见17-75页然后检查故障是否已排除否转入步骤10步骤9检查数据连接插接器C-69情况问题插接器是否损坏是修理或更换损坏的插接器参见00E-2页00E组线束插接器检测然后检查故障是否已经排除否转入步骤1017-46 发动机排放污染物控制步骤10通过背面检测检查自动巡航控制ECU插接器C-35的输出电路电压1不要断开自动巡航控制ECU插接器C-352将点火开关置于ON位置3通过背面检测测量端子11与接地线之间的电压4将点火开关置于LOCK关闭位置问题电压是否大约为蓄电池正极电压是转入步骤11否转入步骤12步骤11检查数据连接插接器C-69与自动巡航控制ECU插接器C-35之间的线束导线问题数据连接插接器C-69与自动巡航控制ECU插接器C-35之间的线束导线是否损坏是修理线束导线然后检查故障是否已清除否检查故障是否已排除如果故障已排除更换自动巡航控制ECU见17-75页然后检查故障是否已排除发动机排放污染物控制 17-47步骤12检查自动巡航控制ECU插接器C-35问题插接器是否损坏是修理或更换损坏的插接器参见00E-2页00E组线束插接器检测然后检查故障是否已排除否检查故障是否已排除如果故障已排除更换自动巡航控制ECU见17-75页然后检查故障是否已排除17-48 发动机排放污染物控制检测程序2踩下制动踏板时自动巡航控制不能取消发动机排放污染物控制 17-49电路工作原理这是制动灯开关输入信号电路该信号从多用途保险丝8发送给制动灯开关然后再被传送给自动巡航控制ECU技术说明解释原因可能是制动灯开关电路有故障故障排除提示z 制动灯开关故障z线束或插接器损坏z自动巡航控制ECU故障诊断要求的专用工具z MB991223线束组步骤1检查制动灯是否点亮问题制动灯是否点亮是转入步骤7否转入步骤2步骤2检查制动灯开关插接器C-66处是否有12伏特的电源电路电压1断开制动灯开关插接器C-66并在线束侧进行测量2测量端子2与接地线之间的电压问题电压是否大约为蓄电池正极电压是转入步骤6否转入步骤3步骤3检查制动灯开关插接器C-66问题插接器是否损坏是修理或更换损坏的插接器参见00E-2页00E组线束插接器检测然后检查故障是否已排除否转入步骤4步骤4检查连接插接器D-02和D-09问题插接器是否损坏是修理或更换损坏的插接器参见00E-2页00E组线束插接器检测然后检查故障是否已排除否转入步骤5步骤5检查6号易熔丝与制动灯开关插接器C-66之间的线束导线问题6号易熔丝与制动灯开关插接器C-66之间的线束导线是否损坏是修理线束导线然后检查故障是否已排除否检查故障是否已排除如果故障已排除更换自动巡航控制ECU见17-75页然后检查故障是否已排除步骤6检查制动灯开关1断开制动灯处插接器C-662将一个电阻表连接到制动灯开关当制动灯开关触头按进和松开时检查导通性3如果当触头从壳体外边缘面按下3.5毫米0.1英寸深度时电路断开松开后电阻小于2欧姆表明制动灯开关工作正常4检查制动灯开关端子2与端子3处应该导通问题电路是否断路是更换制动灯开关参见35A-35页35组制动踏板然后检查故障是否已排除否转入步骤7步骤7通过背面检测检查自动巡航控制ECU 插接器C-35的输出电路电压 1不要断开自动巡航控制ECU 插接器C-35 2将点火开关置于ON 位置3通过背面检测测量端子4与接地线之间的电压z电压值应为蓄电池正极电压 当踩下制动踏板时z电压值应为0.5伏特和更低 当不踩下制动踏板时4将点火开关置于LOCK关闭位置问题电压是否在规范范围内是检查故障是否已排除如果故障已排除更换自动巡航控制ECU 见17-75页然后检查故障是否已排除否转入步骤8步骤8检查自动巡航控制ECU 插接器C-35和制动灯开关C-66插接器 问题插接器是否损坏是修理或更换插接器参见00E-2页00E 组线束插接器检测然后检查故障是否已排除 否转入步骤9步骤9检查制动灯插接器C-66与自动巡航控制ECU插接器C-35之间的线束导线问题制动灯插接器C-66与自动巡航控制ECU插接器C-35之间的线束导线是否损坏是修理线束导线然后检查故障是否已排除否检查故障是否已排除如果故障已排除更换自动巡航控制ECU见17-75页然后检查故障是否已排除注完成中间插接器C-10检查后检查导线如果中间插接器已经损坏应修理或更换参见00E-2页00E组线束插接器检测然后检查故障是否已排除检测程序3当换档杆移到N 位时自动巡航控制不能取消电路工作原理该电路给自动巡航控制ECU传输驻车/空档位置开关的N 或P位置信号驻车/空档l位置开关被置于N 或P位置时自动巡航控制ECU端子13将接收到0伏特电压技术说明解释原因可能是驻车/空档位置开关置于N位置时输出信号电路断路故障排除提示z驻车/空档位置开关故障z 线束或插接器损坏z 自动巡航控制ECU故障诊断要求的专用工具z MB991223线束组步骤1通过背面检测检查驻车/空档位置开关插接器B-01的输出电路电压1不要断开驻车/空档位置开关插接器B-012将点火开关置于ON位置3通过背面检测测量端子10与接地线之间的电压z电压值应为蓄电池正极电压当换档杆在除N档以外的位置时z电压值应为0.5伏特和更低当换档杆在N位置时4将点火开关置于LOCK OFF位置问题电压是否在规范范围内是检查故障是否已排除如果故障已排除更换自动巡航控制ECU见17-75页然后检查故障是否已排除否转入步骤2步骤2检查驻车/空档位置开关插接器B-01 问题插接器是否损坏是修理或更换插接器参见00E-2页00E 组线束插接器检测然后检查故障是否已排除 否转入步骤3步骤3检查驻车/空档位置开关处的电路 1断开驻车/空档位置开关插接器B-012测量驻车/空档位置开关插接器B-01端子的导通性项 目测试器的插接器端子 规定状况 P 1和79和10 N 2和79和10小于2欧姆问题端子之间的导通性是否符合上表要求是转入步骤4否更换驻车/空档位置开关参见23A 340页23A 组变速器然后检查故障是否已排除步骤4通过背面检测检查自动巡航控制ECU 插接器C-35的输出电路电压 1不要断开自动巡航控制ECU 插接器C-35 2将点火开关置于ON 位置3通过背面检测测量端子13与接地线之间的电压z电压值应为蓄电池正极电压当换档杆在除N档以外的位置时z电压值应为0.5伏特和更低 当换档杆在N 位置时4将点火开关置于LOCK OFF位置问题电压是否接近蓄电池正极电压是检查故障是否已被排除如果故障仍然存在更换自动巡航控制ECU见17-75页再次检查故障是否已被排除否转入步骤5步骤5检查自动巡航控制ECU 插接器C-35 问题插接器是否损坏是修理或更换损坏的插接器参见00E-2页00E 组线束插接器检测然后检查故障是否已经排除 否转入步骤6步骤6检查中间插接器C-30 问题插接器是否损坏是修理或更换插接器参见00E-2页00E 组线束插接器检测然后检查故障是否已经排除 否转入步骤7步骤7检查驻车/空档位置开关插接器B-01与自动巡航控制ECU插接器C-35之间的线束导线 问题驻车/空档位置开关插接器B-01与自动巡航控制ECU 插接器C-35之间的线束导线是否损坏是修理线束导线然后检查故障是否已排除否检查故障是否已排除如果故障已排除更换自动巡航控制ECU 见17-75页然后检查故障是否已排除检测程序4当自动巡航控制CANCEL 取消开关处于ON 时自动巡航控制不能取消技术说明解释原因可能是CANCEL 取消开关内电路输出断路故障排除提示z自动巡航控制开关故障诊断更换自动巡航控制开关见17-75页然后检查故障是否已排除检测程序5不能设置自动巡航控制技术说明解释故障保护功能可能消除了自动巡航控制功能此时可以使用故障诊断仪MB991502通过检测故障码来检查每一个系统中的故障症状故障诊断仪还可以通过检查输入开关代码来检测每个输入开关电路工作是否正常 故障排除提示z 自动巡航控制开关故障 z 自动巡航控制ECU 故障 z 自动巡航控制开关故障 z自动巡航控制ECU 故障诊断要求的专用工具z MB991502故障诊断仪MUT-IIzMB991223线束组步骤1故障诊断仪MB991502是否能与自动巡航控制ECU 通讯注意为了防止故障诊断仪MB991502损坏连接或拆卸故障诊断仪MB991502时点火开关应当处于LOCK OFF 位置1将故障诊断仪MB991502连接到数据连接插接器上2将点火开关置于ON 位置问题故障诊断仪MB991502是否能与自动巡航控制ECU通讯是转入步骤2否检查每一个故障症状见17-40页检测程序1步骤2是否有故障码产生 问题是否有故障码产生是如果有故障码1112141516或17输出参见下表故障码1117-11页 故障码1217-16页 故障码1417-20页 故障码1517-28页 故障码1617-34页 故障码1717-35页 然后检查故障是否已排除否转入步骤3步骤3使用故障诊断仪MB991502检查数据表注意为了防止故障诊断仪MB991502损坏连接或拆卸故障诊断仪MB991502时点火开关应当处于LOCK OFF 位置 1使用故障诊断仪MB9915022将故障诊断仪MB991502连接到数据连接插接器上3检查数据列表中的下列项目 参见17-68页 3数据参考表z 项目04自动巡航控制CANCEL 取消开关z 项目05制动灯开关 z项目14驻车/空档位置开关4将点火开关置于ON 位置问题检查上述结果是否符合规范要求是检查故障是否已排除如果故障已排除更换自动巡航控制ECU 见17-75页然后检查故障是否已排除 否按照下面的故障码检测程序和故障症状检测程序进行检查z 项目04参见17-28页故障码检测程序15z 项目05参见17-48页症状检测程序2 z项目14参见17-54页症状检测程序3检测程序6调节车速时游车反复加速和减速技术说明解释原因可能是车速传感器故障或自动巡航控制真空泵或执行器真空度不正确 故障排除提示z 车速传感器故障z 自动巡航控制真空泵故障 z 执行器故障z自动巡航控制ECU 故障诊断要求的专用工具zMB991223线束组步骤1检查车速传感器 1拆下车速传感器并且如图所示连接一个3~10千欧的电阻 2转动车速传感器转轴并检查在端子2和3之间是否有电压转动1圈产生4个脉冲 问题电压是否在规范内是转入步骤4否更换车速传感器参见54-95页54A 组组合仪表总成和车速传感器然后检查故障是否已排除步骤2检查自动巡航控制真空泵 1断开自动巡航真空泵上的真空软管并将一个真空表连接到真空泵上 2断开真空泵插接器3按照以下次序检查自动巡航控制真空泵及阀z将自动巡航真空泵插接器端子1与蓄电池正极连接蓄电池负极与端子234连接此时真空表的读数应该是27千帕8.0英寸汞柱和更高z当端子123仍然连接时断开端子4与蓄电池负极接线柱的连接真空度应该保持当端子13仍然连接时断开端子2与蓄电池负极接线柱的连接这时真空度应该为0 千帕0英寸汞柱z当端子123仍然连接时断开端子4与蓄电池负极接线柱的连接真空度应该保持当端子12仍然连接时断开端子3与蓄电池负极接线柱的连接这时真空度应该为0 千帕0英寸汞柱问题以上的检查是否都正常是转入步骤3否更换自动巡航真空泵见17-75页然后检查故障是否已排除步骤3检查真空驱动执行器1从真空驱动执行器上断开真空软管然后在执行器上连接Array一个手动真空泵2施加真空度并观察节气门拉杆是否移动和真空度是否能保持问题真空驱动执行器是否损坏是更换真空驱动执行器参见13A-645页13A组节气门体总成然后检查故障是否已排除否检查故障是否已排除如果故障已排除更换自动巡航控制ECU见17-75页然后检查故障是否已排除但自动巡航控制功能正常检测程序7组合仪表内自动巡航控制指示灯不亮电路工作原理组合仪表内的自动巡航控制指示灯电源是由点火开关IG1供给的当自动巡航控制系统工作时自动巡航控制ECU 内的晶体管通过ECU 端子15使自动巡航控制指示灯点亮 技术说明解释原因可能是指示灯灯泡故障或插接器线束故障故障排除提示z 指示灯灯泡故障 z 线束或插接器损坏z自动巡航控制ECU 故障诊断要求的专用工具zMB991223线束组步骤1检查自动巡航控制指示灯灯泡 1 拆下组合仪表参见54-95页54A 组组合仪表总成和车速传感器2检查自动巡航控制指示灯灯泡 问题灯泡是否已经烧坏是更换已经烧坏的灯泡检查故障是否已排除 否转入步骤2步骤2检查自动巡航控制ECU 插接器C-35的输出电路电压 1不要断开自动巡航控制ECU 插接器C-35 2将点火开关置于ON 位置3通过背面检测测量端子15与接地线之间的电压4将点火开关置于LOCK OFF位置问题电压是否大约为蓄电池正极电压是检查故障是否已排除如果故障已排除更换自动巡航控制ECU 见17-75页然后检查故障是否已排除 否转入步骤3步骤3通过背面检测检查接线盒插接器D-06输出电路电压 1不要断开接线盒插接器D-06 2将点火开关置于ON 位置3通过背面检测测量端子8与接地线之间的电压4将点火开关置于LOCK 关闭位置问题电压是否大约为蓄电池正极电压是转入步骤5否转入步骤4步骤4检查接线盒插接器D-08问题插接器是否损坏是修理或更换损坏的插接器参见00E-2页00E组线束插接器检测然后检查故障是否已排除否更换接线盒然后检查故障是否已排除步骤5检查组合仪表插接器C-04和C-05问题插接器是否损坏是修理或更换损坏的插接器参见00E-2页00E组线束插接器检测然后检查故障是否已排除否转入步骤6步骤6检查组合仪表插接器C-04与接线盒插接器D-06之间的线束导线问题组合仪表插接器C-04与接线盒插接器D-06之间的线束导线是否损坏是修理线束导线然后检查故障是否已排除否转入步骤7步骤7检查组合仪表 1拆下组合仪表并且在组合仪表一侧测量见54-95页54A 组组合仪表组成和车速传感器2测量插接器C-04端子24与插接器C-05端子8之间的导通性 问题是否导通且电阻小于2欧姆是转入步骤8否更换组合仪表参见54-95页54A 组组合仪表总成和车速传感器检查故障是否已排除步骤8检查自动巡航控制ECU 插接器C-35 问题插接器是否损坏是修理或更换损坏的插接器参见00E-2页00E 组线束插接器检测然后检查故障码11是否已排除 否转入步骤9步骤9检查组合仪表插接器C-05与自动巡航控制ECU插接器C-35之间的线束导线问题组合仪表插接器C-05与自动巡航控制ECU插接器C-35之间的线束导线是否损坏是修理线束导线并且检查故障是否已排除否检查故障是否已排除如果故障已排除更换自动巡航控制ECU见17-75页然后检查故障是否已排除数据参考表MUT-II故障诊断仪显示项目编号检查项目检查要求正常状态CANCEL取消开关ONONCANCEL 04 自动巡航控制开关CANCEL取消开关OFFOFF踩下加速踏板OFFIDLE SW SIG 08 怠速位置信号加速踏板松开加速踏板ONMAIN主开关开关ONONMAIN SW 01 自动巡航控制开关MAINMAIN主开关开关OFFOFF在水平路面上行驶OFFOD OFF 15 A/T控制信号上坡行驶ONP或N换档杆ONPNPSW/CLUTCH14 驻车/空档位置开关换档杆除P或N以外的其他档位OFFRESUM开关ONONRESUMESWITCH03 自动巡航控制开关RESUMERESUME开关OFFOFFSET开关ON ONSET SWITCH 02 自动巡航控制开关SETSET开关OFF OFFMUT-II 故障诊断仪 显示项目编号 检查项目检查要求 正常状态制动踏板踩下ON STOPLIGHT SW 05 制动灯开关 制动踏板松开 OFF加速踏板松开 3001000毫伏 TP SENSOR13节气门位置传感器加速踏板踩下踏板踩的越深故障诊断仪显示的值越大加速踏板完全踩下 45005500毫伏 VSS10车速传感器车辆路试车速表显示值与故障诊断仪显示值相同检查自动巡航控制ECU 端子端子号 检查项目 检查要求正常状态完全踩下加速踏板 4.0 5.5伏特 1 节气门位置传感器输入 松开加速踏板 0.3 1.0伏特 踩下加速踏板 4伏特或更高 2 怠速位置信号 未踩下加速踏板 01伏特 在水平路面上行驶 蓄电池正极电压 3 A/T 控制输出 上坡行驶 0伏特踩下制动踏板 蓄电池正极电压 蓄电池正极电压 4 制动灯开关输入未踩下制动踏板 0伏特0伏特5真空泵电源提供点火开关ON 主开关ON制动灯开关ON 未踩下制动踏板蓄电池正极电压6 ECU 电源提供点火开关ON蓄电池正极电压17-70 发动机排放污染物控制端子号 检查项目 检查要求 正常状态7 释放阀 蓄电池正极电压 8 控制阀 车辆等速行驶通过SET开关减速时蓄电池正极电压 7 释放阀 蓄电池正极电压 8 控制阀 通过CANCEL 取消开关取消等速行驶时蓄电池正极电压 9 自动巡航控制开关输出 任何时候 0伏特 传感器置于ON 0伏特 10 车速传感器输入车辆向前或向后运动和传感器重复接通断开时 传感器置于OFF 812伏特* 11 诊断控制输入 点火开关在ON 位置时 4伏特或更高 主开关打开时 大约为9.0伏特 输入开关未工作时 所有开关关闭时 大约为4.5伏特 输入开关下推时 SET开关打开时大约为1.5伏特输入开关上推时 RESUME 开关打开时 大约为3.0伏特 12ACC 附件电源输入开关前拉时CANCEL 开关打开时 大约为0伏特 换档杆除P 或N 以外的其他档位 驻车/空档位置开关关闭时蓄电池正极电压 13驻车/空档位置开关 换档杆P 或N 位 驻车/空档位置开关打开时 0伏特 14 接地线 任何时候 0伏特主开关ON时 指示灯点亮 0伏特15指示灯输入组合仪表内主开关OFF时指示灯熄灭蓄电池正极电压发动机排放污染物控制 17-71端子号 检查项目 检查要求正常状态车辆等速正常行驶时 马达停止/运转 蓄电池正极电压/0伏特车辆等速行驶通过ACCELERATION 开关加速时 马达停止/运转蓄电池正极电压/0伏特车辆等速行驶通过COAST 滑行开关减速时马达停止 蓄电池正极电压16自动巡航控制真空泵马达输入通过CANCEL 开关取消等速行驶时马达停止 蓄电池正极电压注*自动巡航控制ECU 端子10输出5伏特电压但是因为电压经过车速表电路环流实际显示为8~12伏特随车维修自动巡航控制开关检查1将点火开关置于ON 位置2当主开关在ON”位置时检查位于组合仪表内的指示灯是否点亮更多......。
Component Inspection1. 检查 HO2S1.彻底检查 HO2S 污染、退化或损坏情况。
2.HO2S 污染、退化或损坏了吗?YES1)用良好的、相同型号的HO2S 替换并检查是否正常工作. 如果不再出现故障,更换HO2S,然后转至“检验车辆维修”程序。
NO1)转至“检查ECM ”程序。
利用模拟万用表检查HO2S 的内部电阻是不被允许的。
h tt p://www .qc wx z l .c o m维修后,有必要确认故障已被修正.Verification of Vehicle Repair1.连接诊断仪并选择“故障诊断”模式。
2.清除 DTC,在一般事项内的DTC 诊断条件内驾驶车辆。
3.显示任何DTC 吗?YES1)转至适当的故障检修程序. NO 1)系统正常.h tt p://www .qc wx z l .c o mHO2S (加热式氧传感器)用于向ECM 提供空气/燃油混合气比例的信息。
HO2S 位于TWC 排气管前面。
为测量排气中的氧含量,HO2S 需要以大气作为参考。
因为大气是通过导线间隙提供的,所以导线不能被夹住或损坏。
在正常工作条件下HO2S 输出0.1~0.9V 的电压。
发动机控制模块(ECM )接受此电压信号,并测定空燃比是稀还是浓。
如果ECM 输入信号电压低于0.45V,空燃比稀;如果输入信号电压高于0.45V,空燃比浓。
在闭环控制期间ECM 不断检测HO2S 输出信号,以减小或增大燃油喷射控制脉冲宽度来进行修正。
ECM 检测前氧传感器信号频率值并与预先最小频率值相比较。
该值有助于判断因氧传感器老化效应增加废气排放或干扰空燃比控制的情况。
当氧传感器输出频率小于或等于最小频率界限时,ECM 记录DTC P0133。
Component Location一般 说明DTC DescriptionDTC Detecting Condition项目 检测条件 可能原因DTC 策略 ● 响应比率● 异常燃烧● 燃油压力不当 ●前后连接器颠倒。
湖南万通汽修学校有哪些专业?湖南万通汽修学校是华中地区最大的汽修教育院校,学校先后获得国家汽修技术人才定点培养基地、全国汽车行业示范职教集团、湖南省长沙市职业技能培训定点单位等多项荣誉称号。
那么湖南万通汽修学校有哪些专业呢?目前湖南万通汽修学校开设的专业有:汽车检测与运营工程师(2.5年大专)、汽车维修与运营工程师(2年中专)、汽车检测与维修高级技师(15月)、汽车4S维修高级技师(12月)、汽车钣喷创业精英专业(45天)、汽车机电专修专业(6月)、汽车美容装潢专业(80天)、汽车电控60天等专业。
汽车检测与运营专业主要学习汽车发动机原理、汽车手动变速器、汽车底盘构造与维修、汽车电器、汽车电控发动机、汽车自动变速器、ABS系统、CCS系统、SRS系统、汽车喷涂工艺、汽车美容工艺、汽车钣金、汽车构造、计算机文化基础等课程。
汽车维修与运营专业主要学习汽车发动机故障诊断与维修、汽车变速器、汽车底盘、汽车电器故障诊断与维修、汽车电控故障诊断与维修、汽车自动变速器、ABS系统、SRS系统、汽车喷涂与钣金、汽车美容等课程。
汽车检测与维修主要学习汽车发动机构造与维修、汽车底盘构造与维修、汽车电器构造与维修、汽车电控构造与维修、汽车销售、保险理赔、自动变速器、ABS系统、SRS、CCS、汽车空调系统、汽车钣金、汽车美容、汽车喷涂等课程。
汽车4S维修高级技师专业主要学习电工电子、计机机、机械基础、汽车发动机构造与维修、汽车底盘构造与维修、汽车电器设备构造与维修、汽车电控发动机、汽车整车检测与维修强化训练、4S店维修项目强化训练等课程汽车机电技师主要学习发动机构造与维修、汽车底盘构造与维修、转向系统、传动系统、行驶系统、汽车电器构造与维修、点火系统、照明系统、空调系统、仪表信号等故障诊断与排除技术等课程汽车美容专业主要学习汽车抛光、打蜡技术、外表美容、内饰翻新、贴防爆膜技术、汽车轮胎动平衡、四轮定位调整、汽车导航、中控门锁技术、泊车雷达及防盗器的加装技术、汽车电器与改装等课程。
六、安全气囊系统线路图(从2000年车型起)(1)熔丝支架、微型中央继电器盒(图23-75)。
熔丝支架:(a)微型中央电器盒:(b)熔丝颜色:30A-绿色25A-白色20A-黄色15A-蓝色10A-红色7.5A-棕色5A-米色熔丝支架上的保险从23号位置开始,在电路图上标有号码223,依次类推。
图23-75 熔丝支架、微型中央继电器盒(2)驾驶员和副驾驶员安全气囊和安全带张紧器(图23-76)。
ws=白色sw=黑色ro=红色br=棕色gn=绿色bi=蓝色gr=灰色li=紫色ge=黄色D-点火开关F138-安全气囊/带滑环的回位环螺旋弹簧J218-仪表板内组合处理器J234-安全气囊控制单元K75-安全气囊警报灯N95-驾驶员一侧安全气囊触发器N131-副驾驶员一侧安全气囊触发器N153-驾驶员一侧安全带张紧触发器1N154-副驾驶员一侧安全带张紧触发器2T2a-插头,2孔,黄色,左侧A柱分线器T2e-插头,2孔,黄色,右侧A柱分线器T2ac-插头,2孔,黄色,在仪表板右后部T5d-插头,5孔,黄色,转向开关装饰板后T5e-插头,5孔,在方向盘内T10aw-插头,10孔,黄色,右侧A柱分线器T32-插头,32孔,蓝色,在组合仪表板上44-接地点,左侧A柱下部A2-正极连接(15),在仪表板线束内A19-连接(58s),在仪表板线束内(开关照明)图23-76 驾驶员和副驾驶员安全气囊和安全带张紧器(3)前座侧面安全气囊、后座安全带张紧器(图23-77)。
ws=白色sw=黑色ro=红色br=棕色gn=绿色bi=蓝色gr=灰色li=紫色ge=黄色C22- 安全气囊抗干扰电感线圈E3-警报灯开关F145-开关:左后座安全带F146-开关:右后座安全带J234-安全气囊控制单元J429-中央门锁控制单元K-自诊断接头N196-左后座安全带张紧触发器N197-右后座安全带张紧触发器T1d-插头,1孔,棕色,,右侧A柱分线器T10av-插头,10孔,黄色,右侧A柱分线器T16a-插头,10孔,自诊断接头A76-连接(自诊断K线),在仪表板线束内图23-77 前座侧面安全气囊、后座安全带张紧器(4)后座中间安全带张紧器、后坐侧面安全气囊(图23-78)。
52-152组内部和辅助乘员保护系统(SRS )目 录内部........................................................................................................................................................52A辅助乘员保护系统(SRS ).................................................................................................................52B我将陆续将相关资料上传至文库,请耐心等待。
你也可以登录我们的官方网址 湖南万通汽修学校 www.hnwtqx.com 向客服免费索取52A-1 52A组内部目录概述..........................................................52A-2座椅安全带诊断......................................52A-3 座椅安全带报警系统诊断介绍………....52A-3座椅安全带报警系统故障排除方法.........52A-3 症状表...................................................52A-3 症状检测程序........................................52A-4 罗盘和温度显示诊断............................52A-14 罗盘和温度显示诊断介绍.............52A-14罗盘和温度显示故障排除方法..............52A-14 症状表.................................................52A-14 症状检测程序......................................52A-15 随车维修................................................52A-24校正罗盘程序......................................52A-24 罗盘偏差调整程序...............................52A-24 自动调光功能测试...............................52A-25 专用工具................................................52A-26仪表板总成............................................52A-27拆卸与安装..........................................52A-27 解体与组装..........................................52A-30 地板控制台总成....................................52A-31拆卸与安装..........................................52A-31 饰件........................................................52A-32拆卸与安装..........................................52A-32 顶衬.........................................................52A-33拆卸与安装..........................................52A-33 内部后视镜.............................................52A-34拆卸与安装..........................................52A-34 前排座椅总成.........................................52A-35拆卸与安装..........................................52A-35 检查....................................................52A-36 解体与组装..........................................52A-37 后排座椅总成.........................................52A-39拆卸与安装..........................................52A-39 解体与组装..........................................52A-40 前排座椅安全带.....................................52A-42拆卸与安装..........................................52A-42 检查....................................................52A-43 后排座椅安全带.....................................52A-44拆卸与安装..........................................52A-44 规范.........................................................52A-45紧固件拧紧规范...................................52A-45 维修规范.............................................52A-4552A-2 内部概述工作原理座椅安全带报警系统l当点火开关旋至“ON”位,决策电路工作,组合仪表内的座椅安全带报警灯闪烁4次6秒钟。
车轮和轮胎车轮和轮胎选项如下:16英寸钢质车轮,使用215/65 R16 98H 轮胎16英寸合金车轮,使用215/65 R16 98H 轮胎17英寸合金车轮,使用215/60 R17 96H 轮胎轮胎压力轮胎气压kPa(bar,kg/cm2,psi)后轮胎大小前3名以下乘客 超过3名乘客 215/65 R16 98H 230(2.3,2.3,33)210(2.1,2.1,30) 265(2.6,2.7,38) 215/60 R17 96H230(2.3,2.3,33)210(2.1,2.1,30)265(2.6,2.7,38)车轮规格不锈钢轮辋类型铝合金通常值 暂时值 侧向跳动量 小于0.8 mm 小于1.2 mm 最大跳动 径向跳动量 小于0.3 mm小于0.7 mm小于1.3 mm动态(在法兰处) 小于10 g(一侧)最大允许不平衡静态(在法兰处)小于20 g 车轮螺母拧紧扭矩112.6 Nm (11 kg/m)轮罩高度轮罩高度是地面与轮罩最高点之间的距离。
在空载、加满燃油、冷却液和润滑剂的汽车上如图所示测量。
备用轮胎、千斤顶、手动工具和垫子都在指定位置处。
轮胎大小 215/65 R16 215/60 R17 前 761 mm 763 mm 后772 mm773 mm车轮定位前轮最小值 -1º10′(-1.17º) 额定值-0º25′(-0.42º) 最大值 -0º20′(-0.33º) 外倾角左右差别 小于等于0º45′(0.75º)最小值 3º55′(3.92º) 额定值4º40′(4.67º) 最大值 5º25′(5.42º) 后倾角左右差别 小于等于0º45′(0.75º)最小值9º40′(9.67º) 额定值 10º25′(10.42º) 主销内倾角最大值 11º10′(11.17º) 最小值1 mm (0.04 in) 额定值2 mm (0.08 in) 距离最大值3 mm (0.12 in) 最小值0º02′30″(0.04º) 额定值0º05′(0.08º) 总前束左轮或右轮(角度)最大值0º07′30″(0.13º)后轮最小值-1º20′(-1.33º) 额定值 0º50′(-0.83º) 外倾角最大值 -0º20′(-0.33º) 最小值0 mm (0 in) 额定值 2 mm (0.08 in) 距离最大值4 mm (0.16 in) 最小值0º00′(0.00º) 额定值0º05′(0.08º) 总前束左轮或右轮(角度)最大值0º10′(0.16º)用调节螺栓可以调节后轮前束和外倾角。
湖南万通汽修教师教您如何检查和判断发动机的故障发动机是一台汽车的心脏,往往它产生的故障占全车的比例最高,单位里程每车的配件消耗、保修工时消耗,发动机也是占首位。
因此,发动机的故障诊断和维修水平十分重要,它直接影响汽车的动力性、经济性和可靠性。
用来评价发动机的主要技术性能标准有:怠速运转良好、加速性能良好、功率达到设计要求、燃料消耗低等。
发动机故障多由一个或两个以上故障点构成,在排除故障时,结合上述几个主要技术性能标准,找出直接或间接影响发动机正常工作的原因。
汽车发动机常见的主要故障表现有以下方面:(1)起动机不工作;(2)怠速运转不平稳;(3)功率不足,高速运转不良;(4)加速性不良;(5)机油消耗量增加;(6) CO、HC的浓度增高;(7)发动机起动困难;(8)发动机过热;(9)排气管出现噪声;(10)燃油消耗量增加;(11)发动机出现异响;柴油发动机和汽油发动机的点火和燃烧的方式不同,但是它的故障如怠速不稳、动力不足、燃油消耗增加等,和汽油机故障一样,多发生在吸气系统、燃油系统、压缩系统等有关连的部位。
当然柴油发动机发生故障也有它特有的外观表现,如严重冒烟、工作粗暴、发生爆震甚至飞车等。
引发这些故障的原因(1)积碳:汽车发动机在工作过程中,不可避免会产生积碳和胶质。
如不及时清除,后患无穷。
坚硬的积碳沉积在发动机燃烧室,会划伤发动机金属部件,使发动机磨损严重。
沉积在活塞槽内的积碳,还会影响活塞环向外的弹性张力,造成缸压衰退。
沉积在润滑系统的积碳还会造成润滑不良,油耗增大,功率下降,严重时会堵塞油道,造成拉缸、抱瓦等严重后果。
(2)磨损:当发动机冷启动时,润滑油尚未循环到各摩擦表面时,瞬间所形成的干摩擦所造成的磨损占发动机磨损的60%。
特别是近几年新驾驶员的大量涌现,驾驶技术与养护经验不足对发动机所产生的“毁车”行为更是“致命”的。
使用一两年的新车缸压跌至正常指标一半的情况更是屡见不鲜。
(3)酸腐蚀:发动机燃烧室每燃烧一升汽油,就会生成一升的水,加上燃油本身含硫。
第九章ATX和APS型发动机电控喷射与点火系统的检修第一节ATX型和APS型发动机电控系统的自诊断ATX型和APS型电控发动机控制单元中装备了一个故障存储器,当电气/电子故障或导线断路时能快速查出故障原因,自诊断只能对控制系统电子/电子部件进行诊断,对于机械部分的故障应根据故障现象找查并排除。
一汽大众奥迪A6电控汽车故障自诊断必须使用V.A.G1551或V.A.G1552,只有V.A.G1551或1552在运行方式1“快速数据传递”下才能进行自诊断。
V.A.G1552的可选择功能见表9-1所示。
故障存储器是永久式存储器,所以在断电时也有存储功能。
奥迪A6与电子油门(E-Gas)有关的故障还可由组合仪表板上的报警灯来指示。
表9-1 故障阅读仪V.A.G1552可选功能一览表一、连接汽车专用解码器V.A.G1552并选择“查询控制单元版本号”连接汽车专用解码器V.A.G1552并选择“查询控制单元版本号”时应保证发动机电控系统保险丝正常,燃油泵继电器正常,蓄电池电压不低于11V,发动机和变速器接地正常。
其检测步骤如下:(1)关闭点火开关,将V.A.G1551或V.A.G1552汽车专用解码器在被测车辆上连接好。
自诊断接口在左前护膝板内。
如果屏幕无显示,则需要检查自诊断线。
(2)打开点火开关或起动发动机。
屏幕显示:,按Q键确认输入。
此时屏幕将显示发动机其中:3B0907552 控制单元零件号2.4L 发动机排量R6/5V 直列6缸,5气门发动机G 车速控制装置D 控制单元软件版本号Codenumber04002 控制单元编码WSC 06388 服务站代码编码错误会导致排放值升高,而且由于换挡冲击会增大自动变速器负荷。
编码错误还会导致故障存储器内存储了根本不存在的故障。
如果编码与车上的装置不一致,则应该检查发动机控制单元编码。
(5)按→键退出“查询控制单元版本号”。
二、查询、清除故障代码及故障代码表1、查询和清除故障代码(1)连接故障阅读仪V.A.G1551,启动发动机并保持发动机怠速运转,如果发动机未转动,用起动机拖动至少5秒钟,不要关闭点火开关。
湖南万通汽修学校汽车检测技术入门每当我们谈论起汽车的强制年检,有些驾驶员朋友就可能不理解,有的甚至产生一种抵触情绪:我的车开起来好好的,为啥要年检?其实这些驾驶员朋友还不真正懂得检测的重要性。
那么,汽车检测的意义、目的到底是什么|方法和内容又包括哪些?不言而喻,汽车在运行当中,各个总成之间都在运动,随着时间的推移,各系统的技术状况都会发生变化,造成汽车的各种性能的下降,从而使其发生故障的机会逐渐增加,造成交通安全隐患的大量聚合。
因此,为了保证交通安全,减少事故,要对汽车进行定期检测!这就是我们通常所说的强制年检。
具体地说,汽车检测的是为了更好地对汽车进行诊断,诊断的内涵是在不解体的条件下确定汽车的技术状况,查明发生故障的部位和原因。
也就是说,检测是为诊断服务的。
我们知道,汽车整车的性能参数直接反映整车的技术状况。
汽车的检测往往首先从整车性能参数检测开始,当发现整车性能参数发生变化时,再进行汽车各系统的深入检测与诊断。
因此,整车性能的检测在汽车的检测与诊断中占有非常重要的地位。
通常,把汽车的检测分为整车检测、发动机检测和底盘及车身检测三大部分,具体包含下列项目:一、整车检测:1.底盘输出功率的测定;2.汽车排放污染物的测定;3.车速表校验;4.汽车噪声的测定;5.前照为检验;6.汽车防雨密封性试验;7.汽车外观检视。
二、发动机检测:1.发动机功率;2.燃油消耗量;3.发动机密封性能;4.发动机异响;5.启动系统技术状况;6.点火系统技术状况;7.供油系统技术状况;8.润滑系统技术状况;9.冷却系统技术状况。
三、底盘及车身检测:1传动系技术状况:(1)离合器打滑;(2)传动系游动角度;(3)传动系异响。
2..转向系技术状况:转向盘包括自由行程和转向力。
3.制动系技术状况:(1)制动力;(2)制动距离;(3)制动减速度。
4.行驶系:(1)车轮定位包括前轮定位(侧滑量0和后轮定位;(2)悬架间隙;(3)车轮平衡包括静平衡和动平衡。
5.轿车车身整形定位。
但实际的检测工作是综合上述的分类、按照汽车的性能进行操作规程的,一般地说,汽车的主要性能分为;动力性、经济性、安全性、可靠性、环保性、操纵稳定性、通过性和行驶平顺性等等,所以对汽车的检测也就是从上述这些性能的检测开始。
下面向您简单介绍一下汽车检测技术入门的基本知识。
汽车检测的主要内容有:(1)安全性侧滑、转向、制动、前照灯;(2)环保性噪声和尾气排放状况;(3)动力性车速、加速时间、底盘输出功率、发动机功率、转矩和点火系、供油系的状况;(4)经济性燃油消耗;(5)可靠性异响、磨损、变形、裂纹。
通常把只检测汽车安全性、环保怀和动力性指标中车速这一项的检测线称为汽车安全检测线(以下简称安检线)。
而把检测汽车动力性、经济性、可靠性、安全性和环保性等五种主要性能的检测线称为汽车综合性能检测线(以下简称综检线)。
(二)我们在上一期介绍了汽车检测的分类,实际的汽车检测是按安全性、环保性、动力性、经济性和可靠性这五个方面进行的。
其中安全性检测主要是检测汽车的侧滑、转向、制动和前照灯。
通常安全性检测分为下列四类,其主要检测参数如下:1.侧滑检测设备:侧滑量、侧滑方向;2.转向检测设备:转向盘自由转动量、转向力;3.制动检测设备:制动力、制动距离、制动减速度;4.前照灯检测设备:发光强度、照射角度。
在上述的汽车制动检测设备中,轴重仪是必不可少的。
但是,汽车的轴重测量并非是汽车安全性的检测项目,轴重仪只是一种辅助设备。
明白了这些基本要领之后,我们逐渐解释各种检测设备的结构、工作原理、国家标准和检测方法以及注意事项。
首先介绍侧滑检测设备。
我们知道,汽车在使用过程中,由于轮毂轴承松旷,车身不平衡,车轮拖滞,轮胎气压、花纹形状、磨损程度不一样,车架、车轴转向机构的变形与磨损,都会导致车轮定位失准。
此时,转向车轮在向前滚动的同时,将会产生横向滑移的现象,称为侧滑。
实践证明,汽车的侧滑会造成滚动阻力增加、行驶稳定性变差、轮胎磨损加剧、运行油耗增多和转向沉重,影响汽车的使用性能和经济性。
所以必须对汽车的侧滑进行定期检测。
汽车侧滑检测的实质是反映转向轴车轮定位产生的侧向力,或由此引起的车轮侧滑量。
由于汽车的转向轴一般在前轮,故简称前轮定位。
如果您学习过汽车构造,就不难理解汽车的前轮定位将直接影响其直线行驶稳定性、安全性、燃油经济性、轮胎和有关机件的磨损以及驾驶员的劳动强度等等。
而把后轮外倾角和后轮前束称为后轮定位。
其主要作用是使前后轮胎行驶轨迹重合,从而减少高速时前后轮胎的横向侧滑量和轮胎的偏磨损。
把检测汽车前轮定位和后轮定位的仪器称为四轮定位仪。
给汽车做四轮定位很重要,这里重点介绍前轮定位的检测。
前轮定位检测方式有静态检测动态检测两种方法。
静态检测使用前轮定位仪,动态检测使用侧滑试验台。
注意,所说的静态是指汽车静止不动,使用前轮定位仪(由前束尺和倾角仪组成)对汽车的前轮前束值、主销后倾角、主销内倾角和车轮外倾角进行检测。
其特点是仪器结构简单,但操作繁、速度慢。
而动态是指汽车运动,用侧滑试验台(滑板式或滚筒式)对汽车的前轮前束值和车轮外倾角的匹配情况进行检测。
其特点是设备结构复杂,操作简便,速度快,非常适合快速检测。
因此,在安检线或综检线上得到了广泛的应用。
那么,国家标准对汽车的侧滑是如何规定的,最新的国家标准GB7258-1997《机动车运行安全技术条件》中明确规定;机动车(摩托车、轻便摩托车和三轮农用车除外)转向轮的横向侧滑量,用侧滑仪(包括双板和单板侧滑仪)检测时侧滑量值应不大于5m/km。
其检验方法是:a)将车辆对正侧滑试验台(对于单板式侧滑仪,将车辆的一侧对正侧滑板),并使转向肋处于正中位置;b)使车辆沿台板上的指示线以3km/h~5km/h车速平稳前进,在行驶过程中,不得转动转向盘;c)转向轮通过台板时,测取横向侧滑量。
为了帮助您理解侧滑的原理,我们先复习有关车轮定位的知识。
在汽车设计上,为使转向车轮具有操纵轻便、行驶稳定可靠和减少轮胎的偏磨损,在转向车轮上设计有:主销后倾角、主销内倾角、车轮外倾角和前轮前束等4项参烽,科学的称谓是“转向轴车轮定位”,简称“车轮定位”,习惯称为“前轮定位”,如图1所示。
①主销后倾角(见图2)车轮有了主销后倾角之后,主销的延长线与地面的交点成为车轮摆动的支点。
当车轮行驶在凹凸不平的路面时,车轮将偏离其正直滚动的路线,这时由于地面的反作用力作用在车轮上,使车轮绕交点向平衡位置转动,因为主销后倾角过大,易使转向沉重,所以主销后倾角一般设计为1左右。
其作用是使转向车轮能够自动回正,保持汽车直线行驶。
②主销内倾角一般将主销内倾角设计成8。
左右(如图3所示)。
如果没有主销内倾角(如图4所示则车轮和主销内倾角的延长线与地面的交点构成一个圆柱体,可以想像当转动方向盘时,由于是一个圆面积和地面接触,所以费力;如果有主销内倾角,则车轮和主销内倾角的延长线与地面的交点构成一个圆锥体,这时转动方向盘时,由于是一个点和地面接触,故此比较省力。
同时假设在圆锥体上绕一根弹簧(如图5的示),当转动方向盘时,弹簧被绕紧,松手后在弹力的作用下,回到初始位置。
可见其作用有两个:一是转向轻便;二是具有自动回正的能力。
③车轮外倾角(见图6)一般将车轮外倾角设计成30`~1。
当有车轮外倾角时,车辆由空载变为满载时,能够减少轴头螺母的受力情况(如图7、图8所示):若没有车轮外倾角,则当车辆由空载变为满载时,轴头螺母的受力非常大,甚至容易损坏。
此外,有车轮外倾角可以使轮胎与拱桥路面垂直,减少其偏磨损(如9所示)。
其作用主要有三点:一是转向轻便;二是保护轴头螺母;三是保持轮胎与拱桥路面垂直,减少轮胎的偏磨损。
④前轮前束(见图10)两前轮的前端距离与后端距离之差称为前轮前束,不同的车其前束值是不同的。
其基本作用是消除车轮外倾角造成的外滚趋势,保持汽车正直行驶。
汽车的侧滑是如何通过侧滑试验台检测出来的,我们下期再谈。
(三)通过前面的学习,我们已经掌握了汽车侧滑的基本原理。
本期我们来了解一下汽车转向检测设备。
您一定知道转向系是汽车底盘的主要组成部分之一,其技术状况主要是指转向盘的转向力和自由转动量,其好坏直接影响汽车操作稳定性和高速行驶的安全性。
也就是说,开车时转向盘是否打摆、自由转动量是否太大和高速行驶时是否跑偏等现象。
利用仪器设备对这两个参数进行检测,从而确切地判断转向系的技术状况是否合格。
现在,大部分汽车安全检测站将此项工作的检测移至外观工位,只凭外观检验员的经验进行检测,并且不检测转向盘的转向力,带有一定的盲目性,建议应向仪器设备方面检测过渡。
而汽车综合性有检测站在检测线上普遍使用转向参数测量仪,并对这两个指标进行检测。
转向盘转向力的检测开过车的朋友们都有这种感触,如果一辆车的转向盘使用起来比较轻便,能够明显减少驾驶员的疲劳程度,带来驾车的兴趣,此时的感觉一定非常好了!那么,转向盘的转向轻便性如何进行评价呢?我们可用一事实上条件下作用在转向盘上外缘的最大切向力,即转向力来表示。
使用转向参数测量仪可检测其相应的技术状况。
转向参数测量仪如图1所示。
其基本组成有操纵盘、主机箱、联接叉和定位杆四部分。
通常,将转向参数测量仪安装在转向盘上面,并对准转向盘的中心,使操作盘通过3只联接叉固定在转向盘上,同时操纵盘又固定在底板上,通过底板上的力矩传感器与联接叉相连。
主机箱也固定在底板上,内有微机和打印机等。
此外,定位杆的主要作用是从底板下伸出,经磁力座吸附在驾驶室内的仪表盘上,主要起零点定位作用。
其工作原理比较简单,当转动操纵盘时,一方面带动汽车转向,另一方面力矩传感器将其转向力矩转变成电信号,而定位杆内的光电装置将转角的变化也转变成电信号,这两种模似电信号通过放大滤波电路和模/数转换器送入到微机,即可测得转向力、转向盘转角和转向盘自由转动量的大小。
一般的检测方法有3种,即原地转向力试验、低速大转角(就像我们在驾校学习驾驶汽车走8字路驾行一样)转向力试验和弯道转向力试验。
不过,在综检站通常采用原地转向力试验的方法来检测其转向力。
转向盘自由转动量的检测朋友们都知道,当汽车保持直线行驶位置不动时,您可以向左或向右轻轻转动转向盘时,发现汽车的转向轮并没有动,我们把转向盘的这个游动角度称为自由转动量,也就是说在转动转向盘时的自由量。
在用转向参数测量仪检测时,先定好零点,然后从中间位置向左转动到车轮似动非动时,记下测量值;再回到中间位置,然后向右转动到车轮似动非动时,记下测量值。
取两次测量结果的最大值作为其自由转动量,并与国家标准GB7258-1997《机动车过行安全技术条件》中的有关规定进行对比,从而判断其是否合格。
国家标准GB7258-1997〈机动车运行安全技术条件〉中的有关转向力的要求如下:5.8规定:机动车在平坦、硬实、干燥和清洁的水泥或沥青道路上行驶,以10KM/H的速度在5S之内沿螺旋线从直线行驶过渡到直径为24M的圆周行驶,施加于转向盘外缘的最大切向力不得大于245N。