典型例题分析第6章力矩分配法
- 格式:doc
- 大小:2.95 MB
- 文档页数:12
力矩分配法简介力矩分配法是一种常用的工程分析方法,用于计算和分析物体受到的力的分布情况以及力矩的平衡。
根据力矩分配法,物体处于平衡状态时,所有作用于物体上的力矩和为零。
利用这个原理,可以计算物体上各点的力的大小和分布。
基本原理力矩是一个力在距离某一点的作用线上产生的旋转效果。
当物体受到多个力作用时,在平衡状态下,力的合力和力矩的合力都为零。
根据力矩的定义,可以得到如下的力矩分配方程:其中,表示物体上所有力矩的代数和。
力矩分配法的步骤力矩分配法一般包括以下几个步骤:1.给定各个力的大小和作用点位置。
2.计算每个力的力矩。
力的力矩可以通过力乘以力臂得到,力臂是力的作用点到某一参考点的直线距离。
3.将各个力矩代入力矩分配方程,求解未知力的大小和作用点位置。
可以利用代数方程或者力矩图等方法进行计算。
4.验证计算结果,检查力矩的合力是否为零,以验证平衡状态。
5.如果力矩不为零,则需要重新调整力的大小和作用点位置,再次计算和验证。
力矩分配法的应用力矩分配法在工程中有广泛的应用。
以下是一些常见的应用例子:1.结构平衡:力矩分配法可以用于计算结构上各个部分受力的平衡情况,如梁、桁架等结构的受力分析。
2.机械设计:力矩分配法可以用于计算机械装置中各个零件受力的分布情况,如齿轮传动、支撑结构等。
3.车辆平衡:力矩分配法可以应用于汽车、飞机等交通工具的平衡分析,确保车辆的稳定性和安全性。
4.物体悬挂:力矩分配法可以计算物体悬挂时各个支点的受力情况,如吊车、吊车臂等。
总结力矩分配法是一种常用的力学分析方法,通过计算力矩的平衡来推导出物体上各点的力的分布情况。
它在工程中的应用非常广泛,可以用于结构平衡、机械设计、车辆平衡等领域。
使用力矩分配法可以帮助工程师更好地理解和分析各种力的作用情况,从而设计出更加稳定和安全的结构和设备。
土木工程力学辅导——力矩分配法1. 力矩分配法的基本运算● 三个基本概念转动刚度: 111z S M k k =k S 1:1k 杆的1用的弯矩。
分配系数: M SS M kkk )1(111=∑k 1μ:当结点1杆的1端的力矩。
传递系数: k k k M C M 111=k C 1矩的比值。
当单位力偶作用在结点1弯矩乘以传递系数。
● 一个基本运算如图1所示,各杆的转动刚度为:141413131212,4,3i S i S i S ===各杆的力矩分配系数为:∑∑∑===)1(11414)1(11313)1(11212,,kKkS S S S S S μμμ分配给各杆的分配力矩即近端弯矩为: M SS MM SS MM M SS Mkkk∑∑∑====)1(11414)1(1131312)1(11212,,μμμμ各杆的传递系数为:1,21,0141312-===C C C各杆的传递弯矩即远端弯矩为:144113131331121221,21,0M MM M C MM C MCCC -=====2.具有一个结点角位移结构的计算 步骤:●加约束:在刚结点i 处加一附加刚臂,求出固端弯矩,再求出附加刚臂给结点的约束力矩f i M 。
●放松约束:为消掉约束力矩f i M ,加-f i M ,求出各杆端弯矩。
分配系数固端弯矩分配及传递弯矩最后弯矩M图(单位:KN.m)附加刚臂对结点的约束力矩为:m KN MBf .7560135=-=● 放松结点:在结点B 上加外力偶Bf M-,求出分配弯矩和传递弯矩。
定义lEI i =转动刚度为:i i S i i S BC BC AB BA 44,33====分配系数为:57.043.0=+==+=BCAB BC BC BCBA BA BA S S S S S S μμ分配弯矩为: ()()mkN Mm kN M BCBA .25.327543.0.75.427557.0-=-⨯=-=-⨯=μμ传递弯矩为: ()mkN MM CBcABc .38.2175.42210-=-⨯==● 合并,固端弯矩+分配弯矩=近端弯矩,固端弯矩+传递弯矩=远端弯矩。
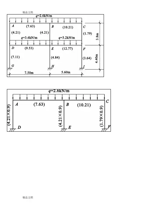
1、清华5-6 试用力矩分配法计算图示连续梁,并画其弯矩图和剪力图。
C清华V图M(kN解:(1)计算分配系数:320.632440.4324BABABA BCBCBCBA BCs is s i is is s i iμμ⨯===+⨯+⨯⨯===+⨯+⨯(2)计算固端弯矩:固端弯矩仅由非结点荷载产生,结点外力偶不引起固端弯矩,结点外力偶逆时针为正直接进行分配。
3360667.51616FABFBAMPlM=⨯⨯===⋅kN m(3)分配与传递,计算列如表格。
(4)叠加固端弯矩和分配弯矩或传递弯矩,得各杆端的最后弯矩,作弯矩图如图所示。
(5)根据弯矩图作剪力图如图所示。
0153027.60153032.63517.58.756AB BA AB AB AB BA BA BA BC CB BC CB M M V V l M M V V l M M V V l ++=-=-=++=-=--=+--==-=-=5kN 5kN kN2、利用力矩分配法计算连续梁,并画其弯矩图和剪力图。
4m1m2m2m原结构简化结构·解:(1)计算分配系数:,4,34BA BC BA BC EIi i i S i S i =====令 430.4290.5714343BC BA BA BC BA BC BA BC s s iis s i is s i iμμ======++++(2)计算固端弯矩:CD 杆段剪力和弯矩是静定的,利用截面法将外伸段从C 处切开,让剪力直接通过支承链杆传给地基,而弯矩暴露成为BC 段的外力偶矩,将在远端引起B 、C 固端弯矩。
22204101088154102020828F FAB BA F F BCCB Pl M M ql m M M ⨯=-=-=-⋅⋅⨯=-+=-+=-⋅=⋅kN m,=kN m kN m,kN m(3)分配与传递,计算列如表格。
(4)叠加固端弯矩和分配弯矩或传递弯矩,得各杆端的最后弯矩,作弯矩图如图所示。
《结构力学》习题集- 33 -第六章 超静定结构的计算——力矩分配法一、本章基本内容:1、基本概念:转动刚度、分配系数、传递系数、侧移刚度;(1)力矩分配法是以位移法为基础的一种渐进解法;(2)转动刚度与杆件的线刚度和远端支承情况有关;(3)杆件远端的支承情况不同,相应的传递系数也不同;(4)分配系数的值小于等于1,并且1=∑ik μ;(5)力矩分配法只适用于计算无结点线位移的结构。
2、固端力矩、结点不平衡力矩的计算;3、用力矩分配法计算多跨梁和无侧移刚架的一般步骤:(1)计算汇交于各结点的每一杆端的分配系数并确定传递系数;(2)求出各杆件的固端弯矩;(3)求出结点不平衡力矩,将其反号乘上各杆件的分配系数得到相应的分配弯矩。
然后,再将分配弯矩乘以传递系数,求出远端的传递弯矩。
按此步骤循环计算,直到不平衡力矩小到可以忽略不计为止。
(4)将每一杆端的固端弯矩、历次的分配弯矩和传递弯矩相加,求出最后杆端弯矩。
(5)校核最后杆端弯矩,作内力图。
二、习题:(一)、判断题(不作为考试题型):1、力矩分配法中的分配系数、传递系数与外来因素(荷载、温度变化等)有关。
2、若图示各杆件线刚度i 相同,则各杆A 端的转动刚度S 分别为:4 i , 3 i , i 。
AA A3、图示结构EI =常数,用力矩分配法计算时分配系数4 A μ= 4 / 11。
1l ll第六章 力矩分配法- 34 -4、图示结构用力矩分配法计算时分配系数μAB =12/,μAD =18/。
BCA D E =1i =1i =1i =1i5、用力矩分配法计算图示结构,各杆l 相同,EI =常数。
其分配系数μBA =0.8,μBC =0.2,μBD =0。
A B CD6、在力矩分配法中反复进行力矩分配及传递,结点不平衡力矩愈来愈小,主要是因为分配系数及传递系数< 1。
7、若用力矩分配法计算图示刚架,则结点A 的不平衡力矩为 −−M Pl 316。
力矩分配法计算超静定结构——典型例题
【例1】用力矩分配法作如图1(a)所示连续梁的弯矩图。
已知EI 为常数。
【解】该连续梁为对称结构承受对称荷载作用,可取如图1(b)所示左半结构来分析。
此时,只有一个结点转角,可以采用力矩分配法进行分析,这里记线刚度。
计算结点B 处的分配系数:
,
, 在结点B 加入附加刚臂,计算由荷载单独作用时产生的各杆端固端弯矩值
, 附加刚臂中产生的约束力矩为:
放松结点B ,力矩分配和传递的过程如图1(c)所示。
根据最后的杆端弯矩可先绘制半结构的M 图,再根据对称性可绘出整个结构的M 图,如图1(d)所示。
/i EI l =3BA S i =4BC S i =BA 3
7μ=BC 47
μ=12F AB M Fl =-14
F BA M Fl =-14
B M Fl =
-
图1
【例2】用力矩分配法作如图2(a)所示刚架的弯矩图。
已知EI 为常数。
【解】该对称刚架承受对称荷载作用,可取如图2(b)所示半结构来分析,可采用力矩分配法分析,记线刚度。
计算结点A 处的分配系数:
,
在结点A 加入附加刚臂,各杆均无固端弯矩,附加刚臂中产生的约束力矩为:
放松结点B ,将约束力矩反号后进行分配和传递,可得各杆端的分配、传递弯矩分别为:
根据各杆端弯矩值可绘制结构构的M 图,如图2(c)所示,为对称的图形。
/i EI l =3AB S i =A 3C S i =AB AC 0.5μμ==A M Fl =-12
AC AB M M Fl μμ==0C C CA BA M M ==。
第6章 力矩分配法§6 – 1 基本概念力矩分配法适用于无结点线位移的刚架和连续梁结构,是位移法求解问题的一种特殊情况,有线位移结构不能直接利用力矩分配法求解。
6-1-1 名词解释(1)转动刚度A B S :表示抵抗转动的能力,其值等于转动端产生单位转角所需施加的力矩,单跨梁转动刚度如图6-1。
静定结构(或静定部分)的转动刚度为零,即对转动无抵抗能力。
图6-2所示结构有一个转角位移未知数,各杆的转动刚度为:4433DA DA DC DC S i i S i i ==== 30DB DB DF S i iS ===(2)分配系数Di μ:某一杆端的分配系数等于,该杆端转动刚度在同一结点各个杆端转动刚度中所占的比例值。
图6-2结构的分配系数为:0.4DADADA DB DC DFS S S S S μ==+++ 0.3DBDB DA DB DC DFS S S S S μ==+++0.3DCDC DA DB DC DFS S S S S μ==+++图6-2无侧移刚架结构)b ()c ((a)3AB S i =4AB S =AB S =(d)图6-1等截面单跨梁转动刚度mm0DFDF DA DB DC DFS S S S S μ==+++(3)弯矩符号规定:力矩分配法在计算过程中不需要画弯矩图,只是以数值形式进行计算,因此,需要事先对力矩和弯矩符号进行规定,具体规定如下:固端弯矩:顺时针为正。
结点外力偶:顺时针为正。
(4)固端弯矩F i j M :将转动结点固定变成位移法的基本体系,外荷载在基本体系上产生的杆端弯矩。
如图6-2结构的固端弯矩为:F F F F F F 0DA DA DB BD CD FD M M M M M M ======F 2145kN m 8DC M ql -==-⋅ F 30kN m DF M =-⋅(5)不平衡力矩u D M :不平衡力矩为转动结点所连杆端的固端弯矩之和,其值等于刚臂反力矩。
哈⼯⼤结构⼒学题库六章148第六章⼒矩分配法⼀判断题1. 传递系数C 与杆件刚度和远端的⽀承情况有关.( √ )2. ⼒矩分配中的传递系数等于传递弯矩与分配弯矩之⽐,它与外因⽆关.( √ )3. ⼒矩分配法所得结果是否正确,仅需校核交于各结点的杆端弯矩是否平衡.( × )4. ⼒矩分配法经⼀个循环计算后,分配过程中的不平衡⼒矩(约束⼒矩)是传递弯矩的代数和.( √ )5. ⽤⼒矩分配法计算结构时,汇交与每⼀结点各杆端⼒矩分配系数总和为1,则表明⼒矩分配系数的计算绝对⽆错误.( × )6. 在⼒矩分配法中,分配与同⼀结点的杆端弯矩之和与结点不平衡⼒矩⼤⼩相等,⽅向相同.( × )7. ⼒矩分配法是以位移法为基础的渐进法,这种计算⽅法不但可以获得近似解,也可获得精确解.( √ )8. 在任何情况下,⼒矩分配法的计算结构都是近似的.( × ) 9. ⼒矩分配系数是杆件两端弯矩的⽐值.( × )10. 图⽰刚架⽤⼒矩分配法,求得杆端弯矩M CB =-16/2ql ( ×)题10图题11图题12图11. 图⽰连续梁,⽤⼒矩分配法求得杆端弯矩M BC =—M/2.( × ) 12. 图⽰刚架可利⽤⼒矩分配法求解.( √ )13. ⼒矩分配法就是按分配系数分配结点不平衡⼒矩到各杆端的⼀种⽅法.(× ) 14. 在⼒矩分配法中,同⼀刚性结点处各杆端的⼒矩分配系数之和等于1.( √ ) 15. 转动刚度(杆端劲度)S 只与杆件线刚度和其远端的⽀承情况有关.( √ ) 16. 单结点结构的⼒矩分配法计算结果是精确的.( √ ) 17. ⼒矩分配法仅适⽤于解⽆线位移结构.( √ ) 18. ⽤⼒矩分配法计算图⽰结构时,杆端AC 的分配系数29/18=ACµ.(√ )149题18图题19图题21图19. 图⽰杆AB 与CD 的EI,l 相等,但A 端的劲度系数(转动刚度)S AB ⼤于C 端的劲度系数(转动刚度) S CD .( √ )20. ⼒矩分配法计算荷载作⽤问题时,结点最初的不平衡⼒矩(约束⼒矩)仅是交于结点各杆端固端弯矩的代数和.( × )21. 若使图⽰刚架结点A 处三杆具有相同的⼒矩分配系数,应使三杆A 端的劲度系数(转动刚度)之⽐为:1:1:1.( √ )22. 有结点线位移的结构,⼀律不能⽤⼒矩分配法进⾏内⼒分析.( × ) 23. 计算有侧移刚架时,在⼀定条件下也可采⽤⼒矩分配法.(√ )24. 有结点线位移的结构,⼀律不能⽤⼒矩分配法进⾏内⼒分析.( × )⼆选择题1. 图⽰结构汇交于A 的各杆件抗弯劲度系数之和为∑AS,则AB 杆A 端的分配系数为:( B ) A.∑=S A AB ABi /4µB. ∑=S A AB ABi /3µ C. ∑=S A AB ABi /2µD.∑=S A AB ABi /µ题1图题2图 2. 图⽰结构EI=常数,⽤⼒矩分配法计算时,分配系数µ4A 为:( D )A. 4/11B. 1/2C. 1/3D.4/91503. 在图⽰连续梁中,对结点B 进⾏⼒矩分配的物理意义表⽰( D )A. 同时放松结点B 和结点CB. 同时固定结点B 和结点CC. 固定结点B,放松结点CD. 固定结点C,放松结点B题3图题4图4. 图⽰等截⾯杆件,B 端为定向⽀座,A 端发⽣单位⾓位移,其传递系数为( C )A. C AB =1B. C AB =1/2C. C AB =-1D. C AB =05. 等直杆件AB 的转动刚度(劲度系数)S AB :(A )A 与B 端⽀承条件及杆件刚度有关 B 只与B 端的⽀承条件有关C 与A 、B 两端的⽀承条件有关D 只与A 端⽀承条件有关6. 等直杆件AB 的弯矩传递系数C AB :(B )A 与B 端⽀承条件及杆件刚度有关 B 只与B 端的⽀承条件有关C 与A 、B 两端的⽀承条件有关D 只与A 端⽀承条件有关7. 当杆件刚度(劲度)系数S AB =3i 时,杆的B 端为:(C )A ⾃由端B 固定端C 铰⽀承D 定向⽀承8. ⼒矩分配法计算得出的结果(D )A ⼀定是近似解B 不是精确解C 是精确解D 可能为近似解,也可能是精确解。
力矩分配法例题
力矩分配法是一种用于确定机械系统中各元件的力矩和力矩矩阵的方法。
举个例子,假设有一个机械系统包含两个轴承,一个齿轮和一个电机。
电机产生的力矩为Tm,齿轮产生的力矩为Tg1和Tg2。
轴承1产生的力矩为Tb1,轴承2产生的力矩为Tb2。
通过使用力矩平衡方程,可以确定各元件的力矩。
Tm = Tg1 + Tb1
Tg2 = Tb2
从而得到以下力矩矩阵:
| Tm | | 1 1 0 | | Tg1 |
|----| = |--------|* |----- |
| Tg2| | 0 0 1 | | Tb2 |
通过解方程组可以得到各元件的力矩值。
这只是一个简单的例子,在实际应用中,力矩分配法可以用于解决更复杂的机械系统中的力矩平衡问题。
第6章 力矩分配法
§6 – 1 基本概念
力矩分配法适用于无结点线位移的刚架和连续梁结构,是位移法求解问题的一种特殊情况,有线位移结构不能直接利用力矩分配法求解。
6-1-1 名词解释
(1)转动刚度A B S :表示抵抗转动的能力,其值等于转动端产生单位转角所需施加的力矩,单跨梁转动刚度如图6-1。
静定结构(或静定部分)的转动刚度为零,即对转动无抵抗能力。
图6-2所示结构有一个转角位移未知数,各杆的转动刚度为:
4433DA DA DC DC S i i S i i ==== 30DB DB DF S i i
S ===
(2)分配系数Di μ:某一杆端的分配系数等于,该杆端转动刚度在同一结点各个杆端转动刚度中所占的比例值。
图6-2结构的分配系数为:
0.4DA
DA
DA DB DC DF
S S S S S μ==+++ 0.3DB
DB DA DB DC DF
S S S S S μ=
=+++
0.3DC
DC DA DB DC DF
S S S S S μ=
=+++
图6-2无侧移刚架结构
)b ()
c (
(a)
3AB S i =4AB S =AB S =(d)
图6-1等截面单跨梁转动刚度
m
m
0DF
DF DA DB DC DF
S S S S S μ=
=+++
(3)弯矩符号规定:力矩分配法在计算过程中不需要画弯矩图,只是以数值形式进行计算,因此,需要事先对力矩和弯矩符号进行规定,具体规定如下:
固端弯矩:顺时针为正。
结点外力偶:顺时针为正。
(4)固端弯矩F i j M :将转动结点固定变成位移法的基本体系,外荷载在基本体系上产生的杆端弯矩。
如图6-2结构的固端弯矩为:
F F F F F F 0DA DA DB BD CD FD M M M M M M ======
F 2
145kN m 8
DC M ql -=
=-⋅ F 30kN m DF M =-⋅
(5)不平衡力矩u D M :不平衡力矩为转动结点所连杆端
的固端弯矩之和,其值等于刚臂反力矩。
如图6-3为荷载引起的不平衡力矩u
D
M ,此时就是位移法典型方程的1P R :
F F F F
1P u D DA DB DC DF M R M M M M ==+++ 75kN m u
D M =-⋅
(6)被分配力矩M :M 等于不平衡力矩u
D M 的负值;
若该转动结点有外力矩,外力矩可以直接进行分配,此时外力矩是被分配力矩的一部分。
如图6-3被分配力矩为:
75kN m u D M M =-=⋅
(7)分配弯矩Di M :某一杆端的分配弯矩Di M 等于该杆端的分配系数Di μ乘以被分配力矩
M 。
如图6-3结构的分配弯矩为:
30kN m DA DA M M μ==⋅ 22.5kN m DB DB M M μ==⋅
22.5kN m DC DC M M μ==⋅ 0DF DF M M μ==
(8)传递系数AB C :传递系数AB C 只与另一端(远端,即B 端)的支座情况有关,远端为定向支座时其值为-1,远端为固定支座时其值为0.5,远端为铰支座(包括自由端)时其值为0。
如图6-3结构的传递系数为:
0.5DA C = 1DB C =- 0DC C = 0DF C =
图6-3不平衡力矩
F DC
F M DB
M F
(9)传递弯矩iD M :iD M 等于近端的分配弯矩Di M 乘以传递系数iD C 。
如图6-3结构的传递弯矩为:
15kN m AD DA DA M C M ==⋅ 22.5kN m BD DB DB M C M ==-⋅
0CD DC DC M C M == 0FD DF DF M C M ==
6-1-2 力矩分配法的解题步骤
●未知数分析:首先确定结构转角位移个数;力矩分配法只能计算无线位移的结构,若有线位移则不能利用常规力矩分配法进行计算。
●计算转动刚度:施加刚臂约束,得到位移法基本体系;利用形常数得到各个杆端的转动刚度。
●计算分配系数:每个可转动结点杆端的分配系数,由该结点各个杆端的转动刚度所占的比例求得。
●计算固端弯矩:利用位移法的基本体系,作荷载弯矩图,杆端弯矩即是所求的固端弯矩,固端弯矩以顺时针方向为正,逆时针方向为负。
●计算不平衡力矩:施加刚臂的结点存在不平衡力矩,其值等于刚臂所连结点的各杆端固端弯矩之和。
●计算被分配力矩:不平衡力矩的负值,外力矩可以直接分配,即外力矩按照顺时针方向为正直接加入被分配力矩。
●计算分配弯矩和传递弯矩:某个杆端的分配弯矩等于该杆端的分配系数乘以被分配力矩;该分配弯矩乘以传递系数就等于远端的传递弯矩。
●计算最终弯矩:利用叠加原理将同一杆端的固端弯矩与分配弯矩(或传递弯矩)相加即得到杆端的最终弯矩。
●求解注意:
单点分配:只有一个转角位移未知数的结构,经过一轮分配、传递完成求解,即所求结果为精确解。
多点分配:当有两个或两个以上转角位移未知数。
需要逐个放松刚臂约束分配每个结点,先分配不平衡力矩大的结点,且相邻结点不能同时分配,经过多轮分配与传递可以得到所需要精度的解,结果为近似解。
§6 – 2 典型例题。