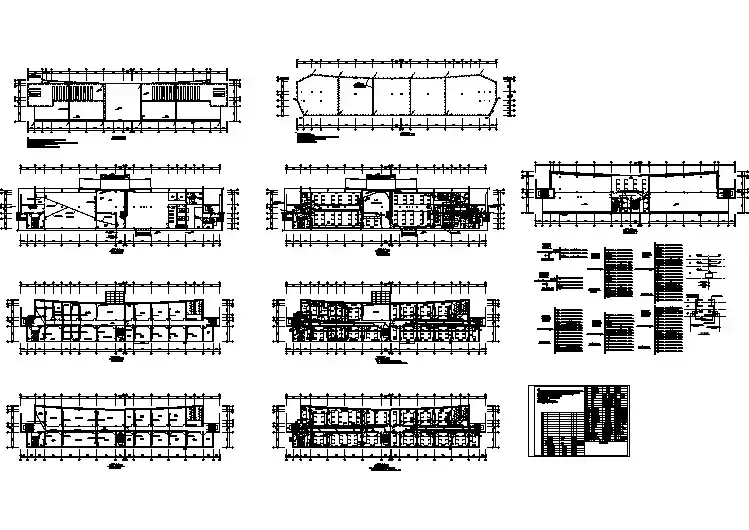
中心距地1.5米暗装配电箱(AA1)18六. 本工程配电系统接地型式为TN-C-S系统, 所有配电装置及用电设备的金属外壳均需八. 防雷接地说明详见电施24-16~17图.七. 弱电部分说明详见电施24-18图.建筑物.构筑物防雷设施安装D562"利用建筑物金属体做防雷及接地装置安装86SD566接地装置安装86D563""常用低压配电设备安装90D367等电位联结安装97SD567国 标国 标六层弱电平面图24-24四层弱电平面图五层弱电平面图24-2324-22""252624222321MEB 总等电位端子箱(300X200X160)2019底距地0.3米暗装可靠接地 .本工程为大庆龙凤区检查院办公楼工程.共七层,其中:一层设有车库.大会议室.收发室.二层设有审讯室.辑押室.办公室等.三~六层设有检查长室.副检查长室.办公等.七层为电梯机房.电源由市区低压网引来,电源电压380/220V. 电缆直埋引入进户箱, 电缆埋深室外地进户线采用VV22-1.0KV塑料绝缘电力电缆.电力线(电梯回路)采用VV-型电力电缆,五. 灯具.插广.开关型号见图例表.所有配电箱均为铁质非标箱或选用定型配电箱, 底距地1.5米墙内暗装.硬质塑料阻燃管沿顶板.墙及地面标注者外均为BV-2.5mm , 穿管保护的线路超过规程规定的长度时, 应在适当位置加装中间盒.其余均采用BV-500V铜芯导线, 本工程所有楼板均为混凝土浇制.装饰吸顶灯雨蓬1X60W24-15坐六层插广平面图24-20二层弱电平面图三层弱电平面图24-21首层弱电及干线平面图24-19"""屋面防雷平面图弱电系统图24-1724-18基础接地平面图24-16""""24-12五层插广平面图24-14坐三层插广平面图四层插广平面图24-13坐坐"