全套装修施工图清单
- 格式:doc
- 大小:32.50 KB
- 文档页数:2
全套装修施工图清单(服装、配套)注:图纸后方姓名为审图责任人。
1、封面(建业5D生活馆****装修施工图纸)2、图纸目录3、设计说明4、材料表(注明装修材料防火等级)5、施工说明(文字介绍制造工艺,及安装方法)6、商铺落位轴线图(在室内外步行街中所处方位)7、装饰部分图纸:(1)平面布置图;(2)天花布置图;(3)地拼布置图;(4)各方位细部节点图(包括各分区平面、各方位立面设计及材质图)8、防火部分(1)消防设计专篇(文字说明);(2)防火分区布置图;(3)消防报警设施布置图;(4)门头加密喷淋设施布置图;(5)消防喷淋设施布置图;(6)灭火器设施布置图;(7)应急照明设施布置图。
9、电气部分(1)电气设计说明(文字说明);(2)照明系统图(还要包括应急照明、疏散照明系统图);(3)动力系统图;(4)天花布置图(注明灯具布置、线路走向及灯具、线路品牌)(5)插座布置图。
10、给排水(1)设计说明(文字说明,图例等);(2)给排水系统图(防水施工示意图、排水系统图、给水系统图);11、空调;(1)空调设备布置图。
13、弱电部分(1)弱电布置图。
14、其他相关补充说明。
注:以上全套图纸用AUTOCAD软件制作,商户将全套图纸电子版传至建业5D生活馆审核,审核修订完毕后,商户需用A3纸打印,装订成册,并加盖公司公章,一式两份。
15、正面视觉开面效果图16、内部装修效果图(款台、整体布局、橱窗或展示面)(彩色)17、招牌标识(提交店招设计说明及制作图纸。
详细注明店招外形尺寸、材质、字样设计、色调、固定方式、制作方法等内容;提交店招设计效果图纸)。
室内施工图材料清单在进行室内装修工程时,室内施工图材料清单是一个至关重要的文件。
它详细列出了所需的材料和工具,确保施工过程的顺利进行,并保证最终结果符合设计要求。
以下是室内施工图材料清单的一般要求:1.墙面材料:-墙砖:根据设计需求选择合适的墙砖,如陶瓷砖、瓷砖或玻璃砖。
-涂料:根据室内墙面的用途选择合适的涂料类型,如乳胶漆、油漆或壁纸。
2.地面材料:-瓷砖:根据设计需求选择合适的瓷砖材料,如大理石瓷砖、木纹瓷砖或仿古砖。
-实木地板:根据设计需求选择适合的实木地板材料,如橡木、胡桃木或柚木。
-地板踢脚线:选择合适的踢脚线,使地板和墙面之间的过渡更加平滑。
3.天花板材料:-石膏板:选择适合的石膏板材料,如普通石膏板或防潮石膏板。
-吊顶材料:根据设计需求选择合适的吊顶材料,如金属吊顶、木质吊顶或PVC吊顶。
4.门窗材料:-门:根据设计需求选择合适的门材料,如实木门、玻璃门或复合门。
-窗户:选择合适的窗户材料,如铝合金窗、塑钢窗或木窗。
5.管道和电路材料:-水管:选择适合的水管材料,如PVC管、PPR管或铜管。
-电线:根据电路负荷选择合适的电线材料,如铜芯电线、铝芯电线或光纤电缆。
6.灯具和开关插座:-灯具:根据设计需求选择适合的灯具,如吸顶灯、壁灯或射灯。
-开关插座:选择合适的开关和插座,如单控开关、双控开关或万能插座。
以上只是室内施工图材料清单中的一部分内容,具体的材料清单需要根据设计方案和工程需求进行调整和扩充。
在编制材料清单时,需要充分考虑每个材料的质量、数量和特殊要求,以确保施工进程的顺利进行。
除了以上列出的材料,室内施工图材料清单还应包括施工用的工具、辅助材料和施工所需的其他设备。
这些内容对于施工人员来说同样重要,能够帮助他们明确所需的工具和材料,减少错误和浪费。
例如,在墙面施工中,除了墙砖和涂料之外,可能还需要使用抹灰工具、批刀、刷子、滚筒等。
在地面铺设时,除了瓷砖和地板材料外,还需要平整工具、锯子、地板砖胶水等。
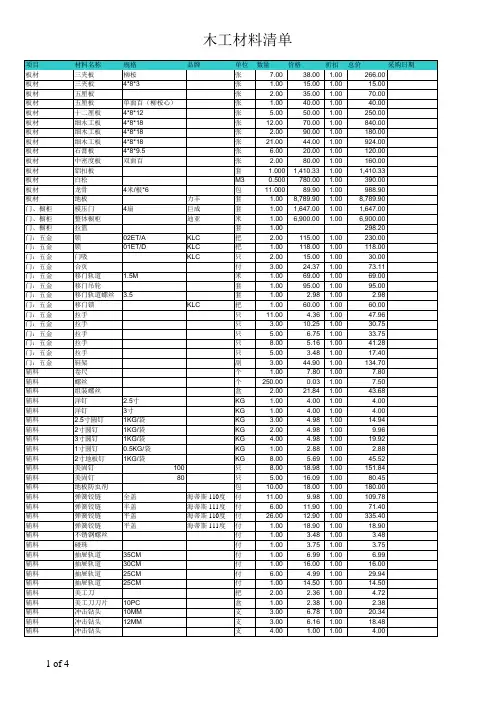
装修清单明细表格
一、施工材料清单
序号施工材料数量单位
1 地板100 平方米
2 瓷砖50 平方米
3 油漆20 桶
4 石膏板30 片
5 水泥10 袋
二、装饰材料清单
序号装饰材料数量单位
1 灯具10 个
2 窗帘 5 套
3 地毯 2 套
4 墙纸10 卷
5 室内植物 5 盆
三、家具设备清单
序号家具设备数量单位
1 沙发 1 个
2 餐桌椅 1 套
3 床 1 张
4 衣柜 1 个
5 书桌 1 个
四、施工人员清单
1.主管工程师:1人
2.装修工人:5人
3.清洁工人:2人
4.安装工人:3人
五、工程时间安排
•地板铺设:第1周
•墙壁涂刷:第2周
•灯具安装:第3周
•家具摆放:第4周
•清洁净化:第5周
结束
以上是装修清单明细表格内容,每项详细记录了所需材料、数量、单位以及工程时间安排等信息,希望对装修工程有所帮助。
装修施工提交图纸清单
册,图纸标明房号、公司名称,我部将于三个工作日完成审核,图纸全部审核合格方能进场施工。
装修需提供资料:
1、租赁合同复印件;
2、租户身份证原件及复印件或委托书及被委托人身份证原件及复印件;
3、公司营业执照复印件(盖公章);
4、若法人非租户则提供法人身份证复印件;
装修公司提供:
1、施工进度表(盖公章/签字/盖手印);
2、法人身份证原件及复印件(盖公章)或委托人身份证原件及复印件;
3、初审装修图纸一套;
4、施工负责人身份证原件及复印件;
5、施工人员身份证原件及复印件两份;
6、施工人员保险复印件(若已购买工程一切险及公众责任险则提供);
7、报质监批文(投资30万元人民币以上或者建筑面积在300平方米以上)――根据《贵阳市装饰装修管
理暂行办法》第二十六条之规定,联系电话:6511019地址:威清路189号宾馆四楼
8、消防报审批文(建筑面积在300平方米以上)――根据《建设工程消防验收评定规则》;
9、装修公司营业执照复印件(盖公章)
10、装修公司资质证明复印件(盖公章)
11、装修公司公章
客服装修咨询电话:。
地块E,F经济技术指标物业功能用房一览表公建4Ea4Ea3Ea2Ea1Eb2Eb8Eb7Eb5Eb6Eb1Eb3Eb4Ec3Ec4Ec5Ec1Ec6Ec2Ed4Ed1Ed2Ed3Ee3Ee2Ee1公建1公建2公建3K1K1J1F'反E'反F'反E'反F反E反F反E反F'反E'反F'反E'反F反E反G反F'反E'反A'反F反E反G反F反H'A F G EBH BG反C D B'B'D'BB HB'GBBB'BHG反B反C反C'CC'CC'A反H'反F反H反C反B反E'反D'反B'反C'反F反H反B反C反B反E'反C'反B'反B'反C'反E反B反F'反B'反E反D反B反E'反B'反E反C'反C'反H'反B反E'反A反H反C反B反C'Fa5Fa2Fa1Fa4Fa9Fa7Fa6Fa8Fa3Fb1Fb2Fb4Fb7Fb9Fb6Fb8Fb3Fb5Fc1Fc4Fc6Fc5Fc2Fc3Fd5Fd1Fd4Fd3Fd2Fe6Fe1Fe7Fe2Fe5Fe8Fe3Fe4Ff9Ff4Ff1Ff5Ff6Ff3Ff7Ff8Ff2Fg1Fg6Fg7Fg3Fg8Fg9Fg2Fg4Fg5Fh1Fh3Fh2Fh6Fh4Fh5Fi3Fi6Fi5Fi4Fi1Fi2Fi7Fi8Fj3Fj2Fj1N'L'M'Ed7Ed6Ed5L M N公建5公建四经济技术指标地下一层平面图 1:100建筑面积:391.80平方米钢筋混凝土墙、柱陶粒混凝土墙增强水泥空心条板图例:游泳池电气用房露天活动室活动室上上上上过厅储藏间酒吧下上壁炉水景详二次设计女桑拿男桑拿W-1LC1LC1LC1'MLC1FM3(丙)FM2(甲)M2M2M3TLM1详建施-20、21设备用房LC2FM1(甲)上注 :2. 卫生间、桑拿间室内地面均低20。
一套完整的施工图图纸
一套完整的施工图,应包括以下一些图纸:
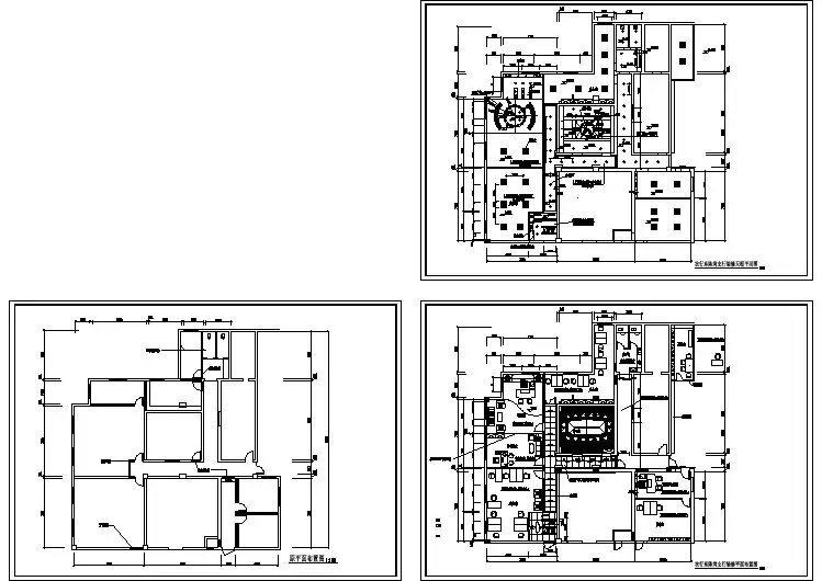
一、平面图
(如果可以体现清楚,可一层只出一个总平面,如果无法体现则需要细化到区域平面图)
1、平面布置图
2、平面隔墙图
3、平面装修尺寸图
4、平面家具定位图
5、平面装修立面索引图
6、地坪装修施工图
7、平面门扇布置图
8、平面陈设品布置图
9、平面灯位编号图
10、平面开关、插座布置图
二、顶棚图
(如果可以体现清楚,可一层只出一个总平面,如果无法体现则需要细化到区域平面图)
1、平顶装修布置图
2、平顶装修尺寸图
3、平顶装修索引图
4、平顶灯位编号图
5、平顶陈设布置图
三、水电图
(如果可以体现清楚,可一层只出一个总平面,如果无法体现则需要细化到区域平面图)
1、平面水喉图
2、电源线路图
3、开关线路图
4、弱电线路图
5、水系统图
6、电系统图
7、弱电系统图
四、立面图
(无论施工与否,每个立面都需要体现)
1、装修剖立面图
2、陈设剖立面图
3、装修立面图
4、陈设立面图
五、详图
(以能完全体现施工做法为准,做到每个节点都有图可依)
1、大样图
2、节点图
3、断面图
六、门表
(无论门是甲供还是乙供都需提供门表,门样及尺寸)
七、材料表
(无论材料是甲供还是乙供都需提供材料表,材料名称、型号、数量)
八、施工说明
九、图纸目录
十、灯光
1、光源表
2、灯饰表
十一、家具表
十二、五金表
十三、卫浴表
十四、设备表。
全套装修施工图清单(服装、配套)
注:图纸后方姓名为审图责任人。
1、封面(建业5D生活馆****装修施工图纸)
2、图纸目录
3、设计说明
4、材料表(注明装修材料防火等级)
5、施工说明(文字介绍制造工艺,及安装方法)
6、商铺落位轴线图(在室内外步行街中所处方位)
7、装饰部分图纸:
(1)平面布置图;
(2)天花布置图;
(3)地拼布置图;
(4)各方位细部节点图(包括各分区平面、各方位立面设计及材质图)
8、防火部分
(1)消防设计专篇(文字说明);
(2)防火分区布置图;
(3)消防报警设施布置图;
(4)门头加密喷淋设施布置图;
(5)消防喷淋设施布置图;
(6)灭火器设施布置图;
(7)应急照明设施布置图。
9、电气部分
(1)电气设计说明(文字说明);
(2)照明系统图(还要包括应急照明、疏散照明系统图);
(3)动力系统图;
(4)天花布置图(注明灯具布置、线路走向及灯具、线路品牌)(5)插座布置图。
10、给排水
(1)设计说明(文字说明,图例等);
(2)给排水系统图(防水施工示意图、排水系统图、给水系统图);
11、空调;
(1)空调设备布置图。
13、弱电部分
(1)弱电布置图。
14、其他相关补充说明。
注:以上全套图纸用AUTOCAD软件制作,商户将全套图纸电子版传至建业5D生活馆审核,审核修订完毕后,商户需用A3纸打印,装订成册,并加盖公司公章,一式两份。
15、正面视觉开面效果图
16、内部装修效果图(款台、整体布局、橱窗或展示面)(彩色)
17、招牌标识(提交店招设计说明及制作图纸。
详细注明店招外形尺寸、材质、字样设计、色调、固定方式、制作方法等内容;提交店招设计效果图纸)。