箍筋弯钩调整长度讲解
- 格式:doc
- 大小:110.00 KB
- 文档页数:3
[箍筋长度计算公式弯钩(45度、90度、135度、180度)]箍筋弯钩长度计算公式理论计算方法:L=2-8bhc*+2max。
箍筋弯钩长度计算1、对转半圆弯钩180度,为、对直弯钩为90度,、对斜弯钩为45度,、135度箍筋弯钩为,长度弯曲值的计算:计算时,用到一个弧度和角度的换算公式:1rad=*r*2/360,即一度角对应的弧长是。
还有《钢筋混凝土施工及验收规范》规定180度弯钩的弯曲直径不得小于,在下面的推导中D取。
弯钩度数详详细解释1、180度弯钩的计算:钢筋的直径为d,弯曲直径为D。
按照外皮计算钢筋的长度:L1=AE水平段的长度+CD水平段长度=300+3d按照中轴线计算钢筋的长度:L2=AB水平段长度+BC段弧长+CD段水平长度=300-D/2-d+**180+3d=300+,弯曲调整值=L1-L2=、90度弯钩的计算:钢筋的直径为d,弯曲直径为D。
按照外皮计算钢筋的长度:L1=300+100按照中轴线计算钢筋的长度:L2=AB 水平段长度+BC段弧长+CD段竖直长度=300-D/2-d+**90+100-D/2-d=300+,弯曲调整值=L1-L2=、135度弯钩的计算:钢筋的直径为d,弯曲直径为D。
按照外皮计算钢筋的长度:L1=300+10d按照中轴线计算钢筋的长度:L2=AB水平段长度+BD段弧长+DE段长度=300-D/2-d+**135+10d=300+10d+,弯曲调整值=L1-L2= 上面讲得太复杂,如果你是做预算的,只要记住:钢筋的外皮长度+弯钩长度。
外皮长度=矩形断面周长-8*砼保护层厚度+8*箍筋直径;弯钩长度:180度=*箍筋直径; 90度=*箍筋直径;45度=*箍筋直径以复合箍筋5 ×4 为例, 在老规范公式的基础上来推导新规范各种箍筋长度的计算公式。
新规范因保护层为箍筋外皮到外皮, 在老规范的基础上减去8 d , 就是新规范2 ×2 外围封闭箍筋1长度的计算公式。
冠梁箍筋弯钩长度
冠梁箍筋弯钩长度是指在建筑工程中,用于加固梁的箍筋弯钩的长度。
箍筋是指在混凝土结构中,用于加固梁、柱等构件的钢筋。
箍筋的作用是增强混凝土的抗弯强度和抗剪强度,从而提高结构的承载能力和稳定性。
在建筑工程中,冠梁是指在梁的两端加装的一种构件,用于增强梁的承载能力和稳定性。
冠梁一般由钢筋混凝土制成,其强度和稳定性与箍筋的加固程度密切相关。
因此,在冠梁的加固过程中,箍筋的弯钩长度是一个非常重要的参数。
箍筋弯钩长度的大小取决于梁的尺寸、荷载大小、混凝土强度等因素。
一般来说,箍筋弯钩长度应该大于箍筋直径的4倍,以确保箍筋能够充分发挥其加固作用。
此外,箍筋弯钩的长度还应该考虑到箍筋的弯曲半径和弯曲角度等因素,以确保箍筋的弯曲不会导致其断裂或变形。
在实际施工中,冠梁箍筋弯钩长度的确定需要根据具体情况进行综合考虑。
一般来说,建筑工程中的箍筋弯钩长度应该符合国家相关标准和规范要求,以确保建筑结构的安全性和稳定性。
冠梁箍筋弯钩长度是建筑工程中一个非常重要的参数,其大小直接影响到建筑结构的承载能力和稳定性。
在实际施工中,需要根据具体情况进行综合考虑,以确保箍筋弯钩长度符合国家相关标准和规
范要求。
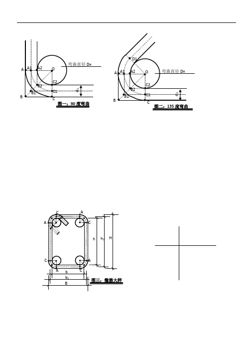
ABB1B2C2C1OA2A1Cd弯曲直径D=图一:90度弯曲D1ABB1B2C2C1OA2A1Cd弯曲直径D=图二:135度弯曲图三:箍筋大样CC AAA CACBHh1hb1b箍筋弯钩增加长度箍筋弯曲主要为90度及135度弯曲(如下图):箍筋钢筋在90度及135度(末端)弯曲时,弯曲部分钢筋在实际中的计算长度均为AB+BC 。
当按箍筋外包尺寸计算时:AB+BC=+d 0++d 0=D+2d 0=当按箍筋中心线尺寸计算时:AB+BC=+++=D+d 0=当按箍筋内包尺寸(主筋外包尺寸)计算时:AB+BC= + =D= 箍筋的L 3一般为10d 0,因此箍筋的理论计算长度L 应为:当按箍筋外包尺寸计算时:2×(B+H)-(AB+BC)×4+3×L 1+2×L 2+2×L 3=2×(B+H)-4×+3×+2×+2×10d 0=2×(a+b)+当按箍筋中心线尺寸计算时:2×(b 1+h 1)-(AB+BC)×4+3×L 1+2×L 2+2×L 3 =2×(b 1+h 1)-4×+3×+2×+2×10d 0 =2×(b 1+h 1)+当按箍筋内包尺寸(主筋外包尺寸)计算时:2×(b+h)-(AB+BC)×4+3×L 1+2×L 2+2×L 3 =2×(b+h)-4×+3×+2×+2×10d 0 =2×(b+h)+90度弯曲时,弯曲部分中心线长L 1= = A 1B 2C 1 ×(D+d 0) π4 = π 4 ×(+d 0)= = D 1A 1B 2C 1 ×(D+d 0) 135·π360= ×(+d 0) =135·π 360 135度弯曲时,弯曲部分中心线长L 2=。
箍筋长度计算公式,弯钩(45度、90度、135度、180度)本文主要说钢筋箍筋的长度计算。
在使用箍筋的时候遇到大箍筋套小箍筋就非常麻烦,专门有一篇文章是写,怎么看钢筋箍筋是几肢箍,箍筋套钢筋布置方法理论计算方法:L=2(b+h)-8bhc*1.9d+2max(10d,75)。
箍筋弯钩长度计算1、对转半圆弯钩180度,为6.25d2、对直弯钩为90度,3.5d3、对斜弯钩为45度,4.9d4、135度箍筋弯钩为11.9d,长度11.9d弯曲值的计算:计算时,用到一个弧度和角度的换算公式:1rad=3.14*r*2/360,即一度角对应的弧长是0.01745r。
还有《钢筋混凝土施工及验收规范》(GB500204-2015)规定180度弯钩的弯曲直径不得小于2.5d,在下面的推导中D取2.5d。
弯钩度数详详细解释1、180度弯钩的计算:钢筋的直径为d,弯曲直径为D。
按照外皮计算钢筋的长度:L1=AE水平段的长度+CD水平段长度=300+3d按照中轴线计算钢筋的长度:L2=AB水平段长度+BC段弧长+CD段水平长度=300-D/2-d+0.01745*(D/2+d/2)*180+3d=300+6.25d,弯曲调整值=L1-L2=3.25d 2、90度弯钩的计算:钢筋的直径为d,弯曲直径为D。
按照外皮计算钢筋的长度:L1=300+100按照中轴线计算钢筋的长度:L2=AB水平段长度+BC段弧长+CD段竖直长度=300-D/2-d+0.01745*(D/2+d/2)*90+100-D/2-d=300+100-1.75d,弯曲调整值=L1-L2=1.75d3、135度弯钩的计算:钢筋的直径为d,弯曲直径为D。
按照外皮计算钢筋的长度:L1=300+10d按照中轴线计算钢筋的长度:L2=AB水平段长度+BD段弧长+DE段长度=300-D/2-d+0.01745*(D/2+d/2)*135+10d=300+10d+1.9d,弯曲调整值=L1-L2=1.9d上面讲得太复杂,如果你是做预算的,只要记住:钢筋的外皮长度+弯钩长度。
抗震箍筋弯钩长度抗震箍筋弯钩长度是一种非常重要的结构连接方式,它不仅可以提高混凝土构件的抗震性能,还可以提高该构件在弯曲、剪切等载荷作用下的承载能力。
因此,本文将介绍抗震箍筋弯钩长度的相关知识点,帮助读者更好地理解这一概念。
一、什么是抗震箍筋弯钩长度?抗震箍筋弯钩长度是指在混凝土构件中,为了提高其抗震性能、承载能力等,在构件中设置的一定长度的箍筋弯钩。
箍筋弯钩所连接的构件在受到剪切、弯曲等载荷作用时,可以更加牢固地连接起来,从而达到更好的抵御外力的效果。
二、抗震箍筋弯钩长度的计算方法是什么?抗震箍筋弯钩长度的计算方法与所连接的构件的大小、形状、强度等因素有关。
一般来说,抗震箍筋弯钩长度的计算采用混凝土配筋理论,需要根据所连接的构件类型、箍筋直径、箍筋间距、箍筋数量等因素进行综合考虑,才能确定其长度。
三、抗震箍筋弯钩长度对混凝土构件抗震性能的影响是什么?抗震箍筋弯钩长度是混凝土构件的重要设计参数之一,其长度的长短直接影响着构件的抗震性能。
一般来说,较长的抗震箍筋弯钩可以更好地固定所连接的构件,从而增强了构件的耐震性能。
此外,抗震箍筋弯钩的设置还可以提高构件在弯曲、剪切等载荷作用下的承载能力。
四、如何在实际工程中设计抗震箍筋弯钩长度?在实际工程中,设计抗震箍筋弯钩长度需要根据不同类型的构件进行分别考虑。
一般来说,设计人员需要了解构件的结构形式、所承受的荷载、设计强度等因素,综合考虑是否需要设置抗震箍筋弯钩及其长度,并依据设计规范和相关标准进行计算和确定。
综上所述,抗震箍筋弯钩长度是混凝土构件设计中非常重要的参数之一,它的长短直接影响着构件的抗震性能。
在实际工程中,设计人员需要了解构件的结构特点,综合考虑各种因素,确定合理的抗震箍筋弯钩长度,从而保证构件具有良好的抗震性能。
箍筋,弯钩,规范篇一:现行规范规定钢筋弯钩现行规范规定,有抗震箍筋需要做135度弯钩,弯钩的平直部分需10d,且不得小于75mm,我们还是遵循“钢筋弯曲时,外侧纤维增长,内测纤维缩短,中心线长度保持不变”思路来演绎这个135度弯钩所需要的增加长度。
弯心直径还是2.5d,钢筋中心线半圆还是1.75d。
135圆心角对应的圆周长度为 4.123d,所以135度钩多需要的展开长度可取11.9d,这仅适用于箍筋,不适用于纵向钢筋(箍筋的外缘计算的长度)。
如果从箍筋的弯前平直段算起则为14.123d。
180度弯钩增长值6.25d。
拉钩增长值计算经验值:直径弯钩增长值6mm 2×50mm8mm 2×75mm10mm 2×85mm12mm 2× 100mm箍筋的增长值:箍筋直径调整值6mm1008mm15010mm17012mm 200以上数值(蓝色标注)与钢筋的级别无关。
在软件中钢筋的等级用a、b、c,d来表示,分别代表1、2、3、4级钢。
拉筋长度=梁宽-2保护层厚度+11.9d(抗震弯钩值)+2d 箍筋长度=梁宽-2*保护层+梁高-2*保护层+2*11.9d+8d钢筋翻样:是建筑工地上的技术人员、钢筋工长或班组长,把建筑施工图纸和结构图纸中各种各样的钢筋式样、规格、尺寸以及所在位置,按照国家设计施工规范的要求,详细的拉出清单,画出组装构图,作为施工班组进行生产制作装配的依据。
光圆钢筋的弯钩增加长度计算:180度(半圆)弯钩增长值 6.25d对直弯钩(90)为3.5d,,对斜弯钩(45)为4.9d。
量度差值30度45度60度90度135度120 0.35d 0.5d 0.85d 2d2.5d2.35dLa受拉钢筋锚固长度laE受拉钢筋抗震锚固长度。
Lc约束边缘构件沿墙肢的长度2012/2/18钢筋翻样所学总结:柱:纵筋: 层高(3000)箍筋:柱截面尺寸(a×b)-保护层厚度+自身直径×2 下料长度:周长+调整值拉筋: 柱截面尺寸(a×b)-2×保护层厚度+自身直径×2 下料长度:以上得出的值+拉筋的弯钩增长值拉钩平直部分梁宽-2*保护层厚度+2*拉钩直径d。
箍筋长度计算公式,弯钩(45度、90度、135度、180度)箍筋长度计算公式,弯钩(45度、90度、135度、180度)理论计算方法:L=2(b+h)-8bhc*1.9d+2max(10d,75)。
箍筋弯钩长度计算1、对转半圆弯钩180度,为6.25d2、对直弯钩为90度,3.5d3、对斜弯钩为45度,4.9d4、135度箍筋弯钩为11.9d,长度11.9d弯曲值的计算:计算时,用到一个弧度和角度的换算公式:1rad=3.14*r*2/360,即一度角对应的弧长是0.01745r。
还有《钢筋混凝土施工及验收规范》(GB500204-20xx)规定180度弯钩的弯曲直径不得小于2.5d,在下面的推导中D取2.5d。
弯钩度数详详细解释1、180度弯钩的计算:钢筋的直径为d,弯曲直径为D。
按照外皮计算钢筋的长度:L1=AE水平段的长度+CD水平段长度=300+3d按照中轴线计算钢筋的长度:L2=AB水平段长度+BC 段弧长+CD段水平长度=300-D/2-d+0.01745*(D/2+d/2)*180+3d=300+6.25d,弯曲调整值=L1-L2=3.25d2、90度弯钩的计算:钢筋的直径为d,弯曲直径为D。
按照外皮计算钢筋的长度:L1=300+100按照中轴线计算钢筋的长度:L2=AB水平段长度+BC段弧长+CD段竖直长度=300-D/2-d+0.01745*(D/2+d/2)*90+100-D/2-d=300+100-1.75d,弯曲调整值=L1-L2=1.75d3、135度弯钩的计算:钢筋的直径为d,弯曲直径为D。
按照外皮计算钢筋的长度:L1=300+10d按照中轴线计算钢筋的长度:L2=AB水平段长度+BD 段弧长+DE段长度=300-D/2-d+0.01745*(D/2+d/2)*135+10d=300+10d+1.9d,弯曲调整值=L1-L2=1.9d上面讲得太复杂,如果你是做预算的,只要记住:钢筋的外皮长度+弯钩长度。
箍筋弯钩平直部分长度的分析探讨箍筋弯钩平直部分长度的分析探讨在混凝土规范(结构和施工)中,都对梁、柱内箍筋做了明确规定。
其中《施工质量验收规范(GB 50204—2002)》中的5.3.2条这样写道:1、(略);2、箍筋弯钩的弯折角度:对一般结构,不应小于90°;对有抗震要求的结构,应为135°;3、箍筋弯后平直部分长度:对一般结构,不应小于箍筋直径的5倍;对有抗震要求的结构,不应小于箍筋直径的10倍。
在《混凝土结构施工图平面整体表示方法制图规则和构造详图(03G101—1)》中,在《梁、板、剪力墙箍筋和拉筋弯钩构造》图中明示:梁柱封闭箍筋弯钩弯后平直部分长度要求,①10d;②75mm,两者取较大值。
一、现将上述规定分析如下:1、弯钩角度:有抗震要求和无抗震要求的,弯钩角度已有了区别,在梁内双肢箍筋时采用封闭式,结构有抗震要求的已经得到了加强;2、弯后平直部分长度:有无抗震要求的相差5倍箍筋直径。
按其规定,有抗震要求的梁柱结构,这5倍箍筋直径,在箍筋弯钩受力时,能够承担由于地震而产生增加对箍筋弯钩处的作用力。
地震对箍筋弯钩处的作用力是怎样产生的?作用力有多大?应该有个基本分析!3、箍筋在梁柱中的作用应当是:(1)固定受力筋的位置;(2)承担构件中的剪力,并根据计算剪力大小确定箍筋的直径和间距;(3)在假设梁柱为弹性体的时候,箍筋弯钩处才承受梁柱内部向外的张力。
4、可以这样解释否?箍筋钩握受力或构造钢筋,主要是构件(梁、板、墙)内部产生的扩张力。
相反,外部对构件产生平行于箍筋的作用力,箍筋弯钩的作用是不考虑的。
5、由上述可以提问:N为多大力可以将箍筋弯钩处的弯钩推向外移?多少倍箍筋直径的平直段可以索定N的作用力不致使弯钩点变形而导致构件破坏?其N力可以转换为对箍筋弯钩处的拉力,这是假设。
6、当地震发生时,混凝土构件内部向外的扩张力是怎样产生的?这一点,当整体结构未破坏之前,在破坏之时,在理论上是解释不了的。
箍筋长度计算公式,弯钩(45度、90度、135度、180度)本文主要说钢筋箍筋的长度计算。
在使用箍筋的时候遇到大箍筋套小箍筋就非常麻烦,专门有一篇文章是写,怎么看钢筋箍筋是几肢箍,箍筋套钢筋布置方法理论计算方法:L=2(b+h)-8bhc*1.9d+2max(10d,75)。
箍筋弯钩长度计算1、对转半圆弯钩180度,为6.25d2、对直弯钩为90度,3.5d3、对斜弯钩为45度,4.9d4、135度箍筋弯钩为11.9d,长度11.9d弯曲值的计算:计算时,用到一个弧度和角度的换算公式:1rad=3.14*r*2/360,即一度角对应的弧长是0.01745r。
还有《钢筋混凝土施工及验收规范》(GB500204-2015)规定180度弯钩的弯曲直径不得小于2.5d,在下面的推导中D取2.5d。
弯钩度数详详细解释1、180度弯钩的计算:钢筋的直径为d,弯曲直径为D。
按照外皮计算钢筋的长度:L1=AE水平段的长度+CD水平段长度=300+3d按照中轴线计算钢筋的长度:L2=AB水平段长度+BC段弧长+CD段水平长度=300-D/2-d+0.01745*(D/2+d/2)*180+3d=300+6.25d,弯曲调整值=L1-L2=3.25d 2、90度弯钩的计算:钢筋的直径为d,弯曲直径为D。
按照外皮计算钢筋的长度:L1=300+100按照中轴线计算钢筋的长度:L2=AB水平段长度+BC段弧长+CD段竖直长度=300-D/2-d+0.01745*(D/2+d/2)*90+100-D/2-d=300+100-1.75d,弯曲调整值=L1-L2=1.75d3、135度弯钩的计算:钢筋的直径为d,弯曲直径为D。
按照外皮计算钢筋的长度:L1=300+10d按照中轴线计算钢筋的长度:L2=AB水平段长度+BD段弧长+DE段长度=300-D/2-d+0.01745*(D/2+d/2)*135+10d=300+10d+1.9d,弯曲调整值=L1-L2=1.9d上面讲得太复杂,如果你是做预算的,只要记住:钢筋的外皮长度+弯钩长度。
箍筋长度计算公式,弯钩(45度、90度、135度、180度)本文主要说钢筋箍筋的长度计算。
在使用箍筋的时候遇到大箍筋套小箍筋就非常麻烦,专门有一篇文章是写,怎么看钢筋箍筋是几肢箍,箍筋套钢筋布置方法理论计算方法:L=2(b+h)-8bhc*1.9d+2max(10d,75)。
箍筋弯钩长度计算1、对转半圆弯钩180度,为6.25d2、对直弯钩为90度,3.5d3、对斜弯钩为45度,4.9d4、135度箍筋弯钩为11.9d,长度11.9d弯曲值的计算:计算时,用到一个弧度和角度的换算公式:1rad=3.14*r*2/360,即一度角对应的弧长是0.01745r。
还有《钢筋混凝土施工及验收规范》(GB500204-2015)规定180度弯钩的弯曲直径不得小于2.5d,在下面的推导中D取2.5d。
弯钩度数详详细解释1、180度弯钩的计算:钢筋的直径为d,弯曲直径为D。
按照外皮计算钢筋的长度:L1=AE水平段的长度+CD水平段长度=300+3d按照中轴线计算钢筋的长度:L2=AB水平段长度+BC段弧长+CD段水平长度=300-D/2-d+0.01745*(D/2+d/2)*180+3d=300+6.25d,弯曲调整值=L1-L2=3.25d 2、90度弯钩的计算:钢筋的直径为d,弯曲直径为D。
按照外皮计算钢筋的长度:L1=300+100按照中轴线计算钢筋的长度:L2=AB水平段长度+BC段弧长+CD段竖直长度=300-D/2-d+0.01745*(D/2+d/2)*90+100-D/2-d=300+100-1.75d,弯曲调整值=L1-L2=1.75d3、135度弯钩的计算:钢筋的直径为d,弯曲直径为D。
按照外皮计算钢筋的长度:L1=300+10d按照中轴线计算钢筋的长度:L2=AB水平段长度+BD段弧长+DE段长度=300-D/2-d+0.01745*(D/2+d/2)*135+10d=300+10d+1.9d,弯曲调整值=L1-L2=1.9d上面讲得太复杂,如果你是做预算的,只要记住:钢筋的外皮长度+弯钩长度。
钢筋弯钩及弯曲调整值计算——梁佳一、有关规范钢筋圆弧弯曲直径D 单位(倍直径)钢筋等级 Ⅰ级钢 Ⅱ级钢 Ⅲ级钢 弯曲直径2.545钢筋平直部分P 单位(倍直径)Ⅰ级钢 Ⅱ级钢 Ⅲ级钢 受力钢筋 3 箍筋5抗震1045二、计算规则钢筋成形的长度l 是从外皮算到外皮,见下图:钢筋调值的原因:钢筋弯曲时中心轴线不变,但外皮增长或按圆角切线为边界时计算长度增加。
钢筋调值的思路:外皮尺寸与中心轴线尺寸的差值。
三、弯钩调整值G (a )1、圆弧调整值(a ≥90 o )Δl =AB -l ’ (AB 为中心轴线弧长,l ’为圆心到外皮)2G (a3、当为Ⅰ级钢筋,d>6,a =135o ,按抗震设计时,有D=2.5d ,P=10d ,则一个箍筋135o 弯钩长为:G (135o ) =360aπ (D+d)-(D/2+ d) +P=360135π (2.5d+d)-(2.5/2d + d) +10d =11.873d四、弯曲调整值 W (a ) (因弯起而外皮增长)1、a ≤90o 弯曲调整值W (a )=AB+BC-A ’C ’ (A ’C ’ 为中心轴线弧长)= 2×(D/2+d)×tan a -aπ(D+d)2、直角弯曲调整值W (90o ) = (D+d)-0.25π (D+d)=0.215D+1.215d3、当为Ⅰ级钢时直角弯曲调整值(D=2.5d) W (90o )=0.215×2.5d+1.215d= 1.7525d4、a>90o 弯曲调整值W (a )=2l ’-’’ (’’ 为中心轴线弧长)= 2×(D/2+d) -aπ(D+d)5、当a W (135o ) = (D+2d) -360aπ (D+d) =0.8225d -0.1775D 五、钢筋弯起调整值 WQ (a )1、钢筋成形尺寸(图示蓝线部分)l =l 1+l 2+l 3+2l 4-2BF2、弯起钢筋一般计算式l =L +2H [1/ sin (a )-1/tan (a )]-2WQ (a ) 其中WQ (a )为一个弯起两圆角调整值 3、弯起增加尺寸WQ (a ) (1)、上弯角(同“二/1”) Δl 上=AB+BC -’’ (2)、下弯角Δl 下=GF+FC -A ’C ’= (AB+EF )+(BC -BF )-A ’C ’又BF = d / sin (a )EF = d / tan (a ),则有4、钢筋弯起调整值公式WQ (a 上+Δl 下=2(AB+BC -A ’C ’ ) -( BF - EF )如果钢筋成形尺寸全部按最外皮计算,即l =l 1+l 2+l 3+2l 4,则WQ (a )计算时不减d/sin(a )。
钢筋弯曲调整值与弯钩计算一、弯曲调整值的概念对于单根预算长度和下料长度是不同的,预算长度是按照钢筋的外皮计算,下料长度是按照钢筋的中轴线计算。
例如一根预算长度为1米长的钢筋,其下料长度不需要1米,是小于1米的,因为钢筋在弯曲的过程中会变长,如果按照1米下料,肯定会长出一些。
预算长度和下料长度的差值也就是钢筋的弯曲调整值,也称为量度差值。
它实际上由两方面造成的,一是由于量度的不同,例如下面这根钢筋,预算的长度是100+300=400mm,而实际上在下料时只需要截取100-d/2+300-d/2长的一段钢筋即可弯制成下面的形式。
二是由于钢筋在弯曲的过程中长度会变化:外皮伸长、内皮缩短、中轴线不变。
二、弯曲调整值的计算在这里用到一个弧度和角度的换算公式:1rad=3.14*r*2/360,即一度角对应的弧长是0.01745r。
另外《钢筋混凝土施工及验收规范》(GB500204-2002)规定180度弯钩的弯曲直径不得小于2.5d,在下面的推导中D取2.5d。
1、180度弯钩的计算见下图,钢筋的直径为d,弯曲直径为D。
按照外皮计算钢筋的长度:L1=AE水平段的长度+CD水平段长度=300+3d按照中轴线计算钢筋的长度:L2=AB水平段长度+BC段弧长+CD段水平长度=300-D/2-d+0.01745*(D/2+d/2)*180+3d=300+6.25d,弯曲调整值=L1-L2=3.25d2、90度弯钩的计算见下图,钢筋的直径为d,弯曲直径为D。
按照外皮计算钢筋的长度:L1=300+100按照中轴线计算钢筋的长度:L2=AB水平段长度+BC段弧长+CD段竖直长度=300-D/2-d+0.01745*(D/2+d/2)*90+100-D/2-d=300+100-1.75d,弯曲调整值=L1-L2=1.75d3、135度弯钩的计算见下图,钢筋的直径为d,弯曲直径为D。
按照外皮计算钢筋的长度:L1=300+10d按照中轴线计算钢筋的长度:L2=AB水平段长度+BD段弧长+DE段长度=300-D/2-d+0.01745*(D/2+d/2)*135+10d=300+10d+1.9d,弯曲调整值=L1-L2=1.9d三、弯钩长度的计算1、计算弯钩时的原则是无论下料长度还是预算长度都按照中轴线计算。
箍筋长度计算公式,弯钩(45度、90度、135度、180度)本文主要说钢筋箍筋的长度计算.在使用箍筋的时候遇到大箍筋套小箍筋就非常麻烦,专门有一篇文章是写,怎么看钢筋箍筋是几肢箍,箍筋套钢筋布置方法理论计算方法:L=2(b+h)-8bhc*1。
9d+2max(10d,75)。
箍筋弯钩长度计算1、对转半圆弯钩180度,为6.25d2、对直弯钩为90度,3.5d3、对斜弯钩为45度,4。
9d4、135度箍筋弯钩为11.9d,长度11.9d弯曲值的计算:计算时,用到一个弧度和角度的换算公式:1rad=3.14*r*2/360,即一度角对应的弧长是0。
01745r。
还有《钢筋混凝土施工及验收规范》(GB500204-2015)规定180度弯钩的弯曲直径不得小于2.5d,在下面的推导中D取2.5d.弯钩度数详详细解释1、180度弯钩的计算:钢筋的直径为d,弯曲直径为D。
按照外皮计算钢筋的长度:L1=AE水平段的长度+CD水平段长度=300+3d按照中轴线计算钢筋的长度:L2=AB水平段长度+BC段弧长+CD段水平长度=300—D/2-d+0。
01745*(D/2+d/2)*180+3d=300+6.25d,弯曲调整值=L1—L2=3。
25d2、90度弯钩的计算:钢筋的直径为d,弯曲直径为D。
按照外皮计算钢筋的长度:L1=300+100按照中轴线计算钢筋的长度:L2=AB水平段长度+BC段弧长+CD段竖直长度=300—D/2—d+0。
01745*(D/2+d/2)*90+100—D/2-d=300+100-1。
75d,弯曲调整值=L1—L2=1.75d3、135度弯钩的计算:钢筋的直径为d,弯曲直径为D.按照外皮计算钢筋的长度:L1=300+10d按照中轴线计算钢筋的长度:L2=AB水平段长度+BD段弧长+DE段长度=300—D/2—d+0。
01745*(D/2+d/2)*135+10d=300+10d+1.9d,弯曲调整值=L1-L2=1。
箍筋长度计算公式,弯钩(45度、90度、135 度、180 度)本文主要说钢筋箍筋的长度计算。
在使用箍筋的时候遇到大箍筋套小箍筋就非常麻烦,专门有一篇文章是写,怎么看钢筋箍筋是儿肢箍,箍筋套钢筋布置方法理论计算方法:L=2(b+h)-8bhc*1.9d+2max(10d,75)o箍筋长度的计算公式A长度=(梁宽卜保护层*2+d,2)*2+(梁高h-保护层*2+d*2)*2+1. 9d*2+max (10d,75mm)*2箍筋弯钩长度计算1、对转半圆弯钩180度,为6.25d2、对直弯钩为90度,3.5d3、对斜弯钩为45度,4.9d4、135度箍筋弯钩为11.9d,长度11.9d弯曲值的计算:计算时,用到一个弧度和角度的换算公式:lrad=3.14*r*2/360,即一度角对应的弧长是0.01745r o还有《钢筋混凝土施工及验收规范》(GB500204-2015)规定180度弯钩的弯曲直径不得小于2.5d,在下面的推导中D取2.5do弯钩度数详详细解释1、180度弯钩的计算:钢筋的直径为d,弯曲直径为D。
按照外皮计算钢筋的长度:L1=AE水平段的长度+CD水平段长度二300+3d按照中轴线计算钢筋的长度:L2=AB水平段长度+BC段弧长+CD段水平长度=300-D/2-d+0.01745* (D/2+d/2) *180+3d=300+6.25d,弯曲调整fi=Ll-L2=3.25d2、90度弯钩的计算:钢筋的直径为d,弯曲直径为D。
按照外皮计算钢筋的长度: Ll=300+100按照中轴线计算钢筋的长度:L2二AB水平段长度+BC段弧长+CD段竖直长度=300-D/2-d+0.01745* (D/2+d/2) *90+100-D/2-d=300+100-1.75d,弯曲调整值=L1-L2=1.75d3、135度弯钩的计算:钢筋的直径为d,弯曲直径为D。
按照外皮计算钢筋的长度:Ll=300+10d按照中轴线计算钢筋的长度:L2二AB水平段长度+BD段弧长+DE段长度=300-D/2-d+0.01745* ( D/2+d/2) *135+10d=300+10d+1.9d,弯曲调整值=L1-L2=1.9d上面讲得太复杂,如果你是做预算的,只要记住:钢筋的外皮长度+弯钩长度。
箍筋长度计算公式,弯钩(45度、90度、135度、180度)本文主要说钢筋箍筋的长度计算。
在使用箍筋的时候遇到大箍筋套小箍筋就非常麻烦,专门有一篇文章是写,怎么看钢筋箍筋是几肢箍,箍筋套钢筋布置方法理论计算方法:L=2(b+h)-8bhc*1.9d+2max(10d,75)。
箍筋弯钩长度计算1、对转半圆弯钩180度,为6.25d2、对直弯钩为90度,3.5d3、对斜弯钩为45度,4.9d4、135度箍筋弯钩为11.9d,长度11.9d弯曲值的计算:计算时,用到一个弧度和角度的换算公式:1rad=3.14*r*2/360,即一度角对应的弧长是0.01745r。
还有《钢筋混凝土施工及验收规范》(GB500204-2015)规定180度弯钩的弯曲直径不得小于2.5d,在下面的推导中D取2.5d。
弯钩度数详详细解释1、180度弯钩的计算:钢筋的直径为d,弯曲直径为D。
按照外皮计算钢筋的长度:L1=AE水平段的长度+CD水平段长度=300+3d按照中轴线计算钢筋的长度:L2=AB水平段长度+BC段弧长+CD段水平长度=300-D/2-d+0.01745*(D/2+d/2)*180+3d=300+6.25d,弯曲调整值=L1-L2=3.25d2、90度弯钩的计算:钢筋的直径为d,弯曲直径为D。
按照外皮计算钢筋的长度:L1=300+100按照中轴线计算钢筋的长度:L2=AB水平段长度+BC段弧长+CD段竖直长度=300-D/2-d+0.01745*(D/2+d/2)*90+100-D/2-d=300+100-1.75d,弯曲调整值=L1-L2=1.75d3、135度弯钩的计算:钢筋的直径为d,弯曲直径为D。
按照外皮计算钢筋的长度:L1=300+10d按照中轴线计算钢筋的长度:L2=AB水平段长度+BD段弧长+DE段长度=300-D/2-d+0.01745*(D/2+d/2)*135+10d=300+10d+1.9d,弯曲调整值=L1-L2=1.9d上面讲得太复杂,如果你是做预算的,只要记住:钢筋的外皮长度+弯钩长度?。
箍筋长度计算公式,弯钩(45度、90度、135 度、180 度)本文主要说钢筋箍筋的长度计算。
在使用箍筋的时候遇到大箍筋套小箍筋就 非常麻烦,专门有一篇文章是写,怎么看钢筋箍筋是几肢箍,箍筋套钢筋布置方 法 理论计算方法:L=2(b+h)-8bhc*1.9d+2max(10d,75。
箍筋长度的计算公式长度=(梁宽X 保护^ + 2+d*r 2) *2* (梁高II 保护层*2+d*2)*2+L 9d*2+max (lOd, 75rai) *2箍筋弯钩长度计算1、对转半圆弯钩180度,为6.25d2、 对直弯钩为90度,3.5d3、 对斜弯钩为45度,4.9d4、 135度箍筋弯钩为11.9d ,长度11.9d 弯曲值的计算:计算时,用到一个弧度 和角度的换算公式:1rad=3.14*r*2/360,即一度角对应的弧长是0.01745r 。
还有《钢筋混凝土施工及验收规范》(GB500204-2015)规定180度弯钩的 弯曲直径不得小于2.5d ,在下面的推导中D 取2.5d 。
弯钩度数详详细解释1、180度弯钩的计算:钢筋的直径为d,弯曲直径为D 。
按照外皮计算钢筋的长 度:L1=AE 水平段的长度+CD 水平段长度=300+3d按照中轴线计算钢筋的长度:L2=AB 水平段长度+BC 段弧长+CD 段水平长度 =300-D/2-d+0.01745* (D/2+d/2 ) *180+3d=300+6.25d,弯曲调整值=L1-L2=3.25d2、 90度弯钩的计算:钢筋的直径为d,弯曲直径为D 。
按照外皮计算钢筋的长度: * HiL1=300+100按照中轴线计算钢筋的长度:L2=AB水平段长度+BC段弧长+CD段竖直长度=300-D/2-d+0.01745*(D/2+d/2)*90+100-D/2-d=300+100-1.75d,弯曲调整值=L1-L2=1.75d3、135度弯钩的计算:钢筋的直径为d,弯曲直径为D。
抗震构件封闭箍筋弯钩平直段长度是针对抗震构件中钢筋混凝土构件中的箍筋设计的一个重要参数。
在抗震设计中,钢筋混凝土构件需要具备一定的延性和韧性,以保证在地震等自然灾害发生时能够有效地承受外部力的作用。
而封闭箍筋作为一种常用的加固措施,在构件整体的抗震性能中起到了至关重要的作用。
我们需要了解封闭箍筋的概念和作用。
封闭箍筋是指在纵向钢筋的周围设置环形箍筋,以增加构件的承载能力、延性和抗震性能。
而其中的弯钩平直段长度,指的是封闭箍筋中箍筋弯曲成弯钩后的直段长度。
这个参数的设计和选取对于构件的受力性能和变形能力具有重要的影响。
我们需要讨论抗震构件封闭箍筋弯钩平直段长度的设计原则和影响因素。
一般来说,弯钩平直段长度的选取需满足以下几个原则:要保证箍筋与纵向钢筋的粘结可靠,以确保构件的整体受力性能;要避免箍筋的剪切破坏,需要合理分布箍筋并保证弯钩的弯曲半径符合规范要求;需要考虑箍筋的延性和韧性,以确保构件在地震等外部力作用下不会出现脆性破坏。
在实际设计中,抗震构件封闭箍筋弯钩平直段长度的选取受到多种因素的影响,比如构件的受力状态、材料的性能、设计要求等等。
设计师需要对这些影响因素进行充分的分析和评估,以确定最优的弯钩平直段长度。
个人观点上,我认为抗震构件封闭箍筋弯钩平直段长度的设计需要在保证构件整体受力性能和变形能力的基础上,充分考虑材料的性能和实际施工的可行性。
只有在这样的综合考量下,才能确保构件在地震等外部力作用下具有可靠的抗震性能。
在实际设计中,需要设计师结合自身经验和规范要求,进行合理的选择和设计。
总结起来,抗震构件封闭箍筋弯钩平直段长度在抗震设计中扮演着重要的角色。
其设计需满足一定的原则和规范要求,并受到多种因素的影响。
在实际设计中,需要设计师进行全面的评估和分析,并结合自身经验和规范要求进行合理的选取和设计,以确保构件具有可靠的抗震性能。
以上是对抗震构件封闭箍筋弯钩平直段长度的相关内容的探讨,希望能够对你有所帮助。
箍筋弯钩增加长度
箍筋弯曲主要为 90度及 135度弯曲(如下图 :
箍筋钢筋在 90度及 135度(末端弯曲时,弯曲部分钢筋在实际中的计算长度均为AB+BC。
当按箍筋外包尺寸计算时:
AB+BC=0.5D+d0+0.5D+d0=D+2d0=4.5d0
当按箍筋中心线尺寸计算时:
AB+BC=0.5D+0.5d0+0.5D+0.5d0=D+d0=3.5d0
当按箍筋内包尺寸(主筋外包尺寸计算时:
AB+BC=0.5D +0.5D =D=2.5d0
箍筋的 L 3一般为 10d 0, 因此箍筋的理论计算长度 L 应为:
当按箍筋外包尺寸计算时:
2×(B+H-(AB+BC×4+3×L 1+2×L 2+2×L 3
=2×(B+H-4×4.5d 0+3×2.75d 0+2×4.12d 0+2×10d 0
=2×(a+b+18.5d0
当按箍筋中心线尺寸计算时:
2×(b1+h1-(AB+BC×4+3×L 1+2×L 2+2×L 3 =2×(b1+h1-4×3.5d 0+3×2.75d
0+2×4.12d 0+2×10d 0 =2×(b1+h1+22.5d0
当按箍筋内包尺寸(主筋外包尺寸计算时:
2×(b+h-(AB+BC×4+3×L 1+2×L 2+2×L 3 =2×(b+h-4×2.5d 0+3×2.75d 0+2×4.12d 0+2×10d 0 =2×(b+h+26.5d0
90度弯曲时,弯曲部分中心线长L 1= = A 1B 2C 1 ×(D+d0 π
4
= π 4 2.5d 0+d0 =2.75d0 = D 1A 1B 2C 1 D+d0
135·π
360
= 2.5d 0+d0 =4.12d0 135·π 360 135度弯曲时, 弯曲部分中心线长 L 2
=。