220KV升压站平面图
- 格式:doc
- 大小:37.50 KB
- 文档页数:2
第一章绪论毕业设计是我们在校期间最后一次综合训练,它将从思维、理论以及动手能力方面给予我们严格的要求。
使我们综合能力有一个整体的提高。
它不但使我们巩固了本专业所学的专业知识,还使我们了解、熟悉了国家能源开发策略和有关的技术规程、规定、导则以及各种图形、符号。
它将为我们以后的学习、工作打下良好的基础。
能源是社会生产力的重要基础,随着社会生产的不断发展,人类使用能源不仅在数量上越来越多,在品种及构成上也发生了很大的变化。
人类对能源质量也要求越来越高。
电力是能源工业、基础工业,在国家建设和国民经济发展中占据十分重要的地位,是实现国家现代化的战略重点。
电能也是发展国民经济的基础,是一种无形的、不能大量存储的二次能源。
电能的发、变、送、配和用电,几乎是在同时瞬间完成的,须随时保持功率平衡。
要满足国民经济发展的要求,电力工业必须超前发展,这是世界发展规律。
因此,做好电力规划,加强电网建设,就尤为重要。
而变电站在改变或调整电压等方面在电力系统中起着重要的作用。
它承担着变换电压、接受和分配电能、控制电力的流向和调整电压的责任。
220KV变电站电气部分设计使其对变电站有了一个整体的了解。
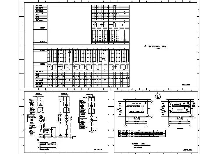
第2章电气主接线的设计2.1 主接线概述电气主接线是由电气设备通过连接线,按其功能要求组成接受和分配电能的电路,成为传输强电流、高电压的网络。
用规定的电气设备图形符号和文字符号并按工作顺序排列,详细地表示电气设备或成套装置的全部基本组成和连接关系的单线接线图。
主接线代表了发电厂或变电站电气部分的主体结构,是电力系统网络结构的重要组成部分,直接影响运行的可靠性、灵活性并对电器选择、配电装置布置、继电保护、自动装置和控制方式的拟定都有决定性的关系[1]。
单母线接线及单母线分段接线[2]1、单母线接线单母线接线供电电源在变电站是变压器或高压进线回路。
母线既可保证电源并列工作,又能使任一条出线都可以从任一个电源获得电能。
各出线回路输入功率不一定相等,应尽可能使负荷均衡地分配在各出线上,以减少功率在母线上的传输。
一、编制依据1、220KV升压站设备构支架详图50-F189S-T0502。
2、《施工质量检验及评定标准》(土建工程篇),94版。
3、《电力建设施工及验收技术规范》(建造工程篇),BDJ69-87。
4、《电力建设施工及验收技术规范》(火力发电厂焊接篇),OL5007-92。
5、《钢结构工程质量检验评定标准》(GB50221-95)。
6、《工程测量规范》GB5066-94。
7、安全规范《电力建设安全工作规程》DL5009-92。
二、工程概况:1、盘南电厂4×600MW新建机组220KV升压站钢构架总重78.34吨,其中钢横梁重11.79吨;钢支柱重53.42;其他零星构件重13.13吨。
2、钢横梁11榀,每榀由三节组成,最长节为4.9m,单榀最重的钢梁为1.05吨;钢支柱13榀,单榀最重为7.82吨。
三、施工技术方案:1、施工准备1.1 场地资源:升压站内有较宽的面积,又无其它设备和材料堆放在里面,便于较大构件的加工。
另,由于220kV人字柱长25.8米,脚宽5.4米,拖去镀锌和现场转运较为艰难,为减少和避免二次运输,构架组合可在220kV升压站旁就地进行。
构架和钢梁加工制作场地设在500KV升压站内,可按附图1、2所示布置:小型材料、金具摆放室(4×6米,砖砌);材料堆放场(4×12米);钢梁组合平台(4×18米,需搭防雨棚);成品堆放场(4×25米);材料喷沙除锈场(4×12米);材料喷锌场(4×12米);人字柱组合场(16×40米);场地需980平方米,除组合平台需用钢板铺平外,其它工作场地可用碎石铺垫平整。
1.2工器具资源:为满足施工要求,需II级电源箱二台,落地钻铣床一台,立式台钻一台,切割机一台,砂轮机一台,角磨机四台,电焊机六台,氧气、乙炔架二付,葫芦(3×2T)20个,枕木(非油渗2500×250×200)300根,单股钢丝绳1×19(直径14)800米。
第一章绪论毕业设计是我们在校期间最后一次综合训练,它将从思维、理论以及动手能力方面给予我们严格的要求。
使我们综合能力有一个整体的提高。
它不但使我们巩固了本专业所学的专业知识,还使我们了解、熟悉了国家能源开发策略和有关的技术规程、规定、导则以及各种图形、符号。
它将为我们以后的学习、工作打下良好的基础。
能源是社会生产力的重要基础,随着社会生产的不断发展,人类使用能源不仅在数量上越来越多,在品种及构成上也发生了很大的变化。
人类对能源质量也要求越来越高。
电力是能源工业、基础工业,在国家建设和国民经济发展中占据十分重要的地位,是实现国家现代化的战略重点。
电能也是发展国民经济的基础,是一种无形的、不能大量存储的二次能源。
电能的发、变、送、配和用电,几乎是在同时瞬间完成的,须随时保持功率平衡。
要满足国民经济发展的要求,电力工业必须超前发展,这是世界发展规律。
因此,做好电力规划,加强电网建设,就尤为重要。
而变电站在改变或调整电压等方面在电力系统中起着重要的作用。
它承担着变换电压、接受和分配电能、控制电力的流向和调整电压的责任。
220KV变电站电气部分设计使其对变电站有了一个整体的了解。
第2章电气主接线的设计2.1 主接线概述电气主接线是由电气设备通过连接线,按其功能要求组成接受和分配电能的电路,成为传输强电流、高电压的网络。
用规定的电气设备图形符号和文字符号并按工作顺序排列,详细地表示电气设备或成套装置的全部基本组成和连接关系的单线接线图。
主接线代表了发电厂或变电站电气部分的主体结构,是电力系统网络结构的重要组成部分,直接影响运行的可靠性、灵活性并对电器选择、配电装置布置、继电保护、自动装置和控制方式的拟定都有决定性的关系[1]。
单母线接线及单母线分段接线[2]1、单母线接线单母线接线供电电源在变电站是变压器或高压进线回路。
母线既可保证电源并列工作,又能使任一条出线都可以从任一个电源获得电能。
各出线回路输入功率不一定相等,应尽可能使负荷均衡地分配在各出线上,以减少功率在母线上的传输。
第一章编制依据国家、行业颁发的有关法律、法规、规范、规程、规定或标准工程招投标文件、合同规定的标准设计院提供的设计文件材料本企业可调配的人力、物力和机械等资源条件本工程相关的质量验收标准及规范:(1)《砼结构工程施工及验收规范》(GB50204—2002)(2)《电力建设安全施工管理规定》[电建(1995)671 号](3)《电力建设文明施工规定及考核办法》[电建(1995)543 号](4)《电力建设安全工作规定》(国家经贸委发布—2002-12-01 实施)(5)《建筑地基基础施工质量验收规范》(GB50202—2002)(6)《建筑内部装修设计防火规范》(GB500222—95)(7)《建筑抗震设计规范》(GB50011-2001)(8)《建筑桩机检测技术规范》(JGJ106-2003)(9)《通风与空调工程施工质量验收规范》(GB50243-2002)(10)《电气装置安装工程质量检验及评定规程》DL/T5161.1~5161.17-2002(11)《电气装置安装工程接地布置施工及验收规范》(GB50243-2002)等等第二章工程概况**场工程所在地**县位于江苏省东部沿海地区,受地形条件限制,风电场分南、北两个场区,其中北区址区位于中山河口至滨海港开发区,南区址区位于滨海县东部**乡二罾段的沿海滩涂。
滨海县隶属于**市,位于北纬 33°43′~34°23′,东经 119°37′~120°20′,拥有海岸线 44.6km,滩涂面积 110 万亩。
滨海县属于北亚热带与暖温带过渡带海洋性季风气候,气候温和,四季分明,冬冷夏热,光照充足,湿润多雨(尤其6~10)。
220kv升压站是南区风力发电的枢纽工程,位于**鱼塘内。
主要建(构)筑物有生产综合楼、生产辅助楼、事故油池、污水处理装置、门卫室、消防水池、消防泵房及车库等,占地面积约为13300m2。
220kv升压站南北方向长140m,东西方向宽95m,平均填土高度约为4.5m。
第一章编制依据国家、行业颁发的有关法律、法规、规范、规程、规定或标准工程招投标文件、合同规定的标准设计院提供的设计文件材料本企业可调配的人力、物力和机械等资源条件本工程相关的质量验收标准及规范:(1)《砼结构工程施工及验收规范》(GB50204—2002)(2)《电力建设安全施工管理规定》[电建(1995)671 号](3)《电力建设文明施工规定及考核办法》[电建(1995)543 号](4)《电力建设安全工作规定》(国家经贸委发布—2002-12-01 实施)(5)《建筑地基基础施工质量验收规范》(GB50202—2002)(6)《建筑内部装修设计防火规范》(GB500222—95)(7)《建筑抗震设计规范》(GB50011-2001)(8)《建筑桩机检测技术规范》(JGJ106-2003)(9)《通风与空调工程施工质量验收规范》(GB50243-2002)(10)《电气装置安装工程质量检验及评定规程》DL/T5161.1~5161.17-2002(11)《电气装置安装工程接地布置施工及验收规范》(GB50243-2002)等等第二章工程概况**场工程所在地**县位于江苏省东部沿海地区,受地形条件限制,风电场分南、北两个场区,其中北区址区位于中山河口至滨海港开发区,南区址区位于滨海县东部**乡二罾段的沿海滩涂。
滨海县隶属于**市,位于北纬 33°43′~34°23′,东经 119°37′~120°20′,拥有海岸线 44.6km,滩涂面积 110 万亩。
滨海县属于北亚热带与暖温带过渡带海洋性季风气候,气候温和,四季分明,冬冷夏热,光照充足,湿润多雨(尤其6~10)。
220kv升压站是南区风力发电的枢纽工程,位于**鱼塘内。
主要建(构)筑物有生产综合楼、生产辅助楼、事故油池、污水处理装置、门卫室、消防水池、消防泵房及车库等,占地面积约为13300m2。
220kv升压站南北方向长140m,东西方向宽95m,平均填土高度约为4.5m。
100mw220kv升压站及输出线路造价升压站及输出线路是电力系统中非常重要的组成部分,它们的建设是为了将发电厂产生的电能升压到更高的电压水平,然后通过输电线路将电能传输到用户端。
在这篇文章中,我们将探讨升压站及输出线路的建设造价,并对其组成部分进行详细的分析。
一、升压站造价分析升压站的建设造价主要包括以下几个方面的成本:设备投资、土地费用、建筑费用、工程安装费用和其他支出。
1.设备投资升压站的主要设备包括变压器、开关设备、计量设备、保护设备等,这些设备的价格相当昂贵。
变压器是升压站中最重要的设备之一,它能将发电厂产生的电能升压到更高的电压水平,以便进行输电。
一台100MW的发电厂通常需要一台220kV的变压器才能将电能升压到足够高的电压水平。
而根据市场价格和品牌不同,一台220kV变压器的价格通常在数百万元以上。
此外,其他设备如开关设备、计量设备、保护设备等的价格也相当昂贵,加起来会有数千万元的投资。
2.土地费用升压站需要占地较大,选择合适的土地用于建设也需要投入较大的资金。
土地费用一般包括土地征用费、土地开发费用等,根据地区不同费用也会有所不同。
3.建筑费用升压站通常需要建设一些建筑物,如变压器、开关设备等的遮挡建筑物,以及管理和运维人员的办公室等。
这些建筑物的建设也需要一定的投资。
4.工程安装费用升压站的工程安装包括电气设备的安装、调试等工程,这些工程的费用也不容忽视。
5.其他支出升压站建设过程中还会有一些其他支出,如环境保护费用、安全费用、临时设备租赁费用等。
综上所述,升压站的建设造价相当昂贵,总投资金额通常在数千万元以上。
投资方需要对各项造价进行仔细计算,以确保升压站建设的顺利进行。
二、输出线路造价分析输出线路是升压站输出电能的重要通道,其建设造价包括线路材料费、土地利用费、施工安装费、工程监理费等。
1.线路材料费输出线路的主要材料包括电缆、绝缘子、铁塔等,其中铁塔是输出线路的重要支撑结构,其材料和制造费用相当昂贵。
100mw220kv升压站及输出线路造价升压站和输出线路是电力系统中重要的组成部分,用于将低压电能转换成高压电能,以便远距离传输和分配。
在本文中,我们将探讨升压站和输出线路的造价以及相关信息。
一、升压站造价1.设备成本升压站的主要设备包括变压器、断路器、隔离开关、电流互感器、电压互感器等。
其中,变压器是升压站的核心设备,起着将电能升压的重要作用。
一台100mw220kv的变压器的造价大约在1000万元左右。
2.土地成本升压站需要占用一定的土地,用于放置设备和建造相关的建筑物。
土地成本将根据所在地区的不同而有所差异,一般来说,占地面积越大的升压站土地成本越高。
3.建筑物和设施成本升压站需要建造相关的建筑物和设施,以保护设备并提供操作和维护所需的空间。
这些建筑物和设施包括控制室、维修车间、道路、排水系统等。
建筑物和设施的造价将根据其规模和品质而有所不同。
4.劳动力成本在升压站的建设和运行过程中,需要大量的劳动力参与其中。
这包括设计、施工、管理和运维人员的工资成本。
5.其他费用建设和运行升压站还需要考虑到一些其他费用,例如审批费、升压站的监测设备和系统费用等。
二、输出线路造价1.输电线路成本高压输电线路的造价主要包括导线、杆塔、地线、绝缘子、接地设备等。
100mw220kv的输电线路的造价将根据线路长度、地形条件、环境要求等不同而有所差异。
2.土地成本输电线路需要占用一定的土地,并且需要进行线路走廊的清理和整治。
土地成本将根据所在地区的不同而有所差异。
3.施工和安装成本输电线路的施工和安装需要耗费大量的人力和物力,包括杆塔的安装、导线的铺设、绝缘子的安装等。
4.运输成本输电线路的各种设备和材料需要从生产厂家运输到施工现场,这将产生一定的运输成本。
5.其他费用除了上述的主要成本外,输电线路的造价还需要考虑到一些其他费用,例如监测设备和系统费用、外协服务费用等。
三、总结升压站和输出线路的造价主要由设备成本、土地成本、建筑物和设施成本、劳动力成本、运输成本等多个方面构成。