课程设计4:110kV变电站电气主接线及配电装置平面布置图的设计9页
- 格式:doc
- 大小:40.00 KB
- 文档页数:9
把变电站内的电气设备都要算上啊一次设备:主变(中性点隔离开关、间隙保护、消弧线圈成套设备)、断路器(或开关柜、GIS等)、电压互感器(含保险)、电流互感器、避雷器、隔离开关、母线、母排、电缆、电容器组(电容、电抗、放电线圈等等),站用变压器(或接地变),有的变电站还有高频保护装置二次设备:综合自动化、.、逆变0000.、小电流接地选线、站用电、直流(蓄电池)、逆变、远动通讯等等其他:支持瓷瓶、悬垂、导线、接地排、穿墙套管等等,消防装置、SF6在线监测装置等等好像有点说多了,也可能有少点的,存在差异吧35KV高压开关柜上一般都设有哪些保护各作用是什么?过电流保护:1.速断电流保护:用于保护本开关以后的母排、电缆的短路故障。
2.定时限电流保护:用于下一电压级别的短路保护。
3.反时限电流保护:作用与2相同,但灵敏度比2高。
4.电压闭锁过电流保护:防止越级跳闸和误跳闸,提高供电可靠性。
5.纵联差动电流保护:专用于变压器内部故障保护。
6.长延时过负荷保护:用于保护专用设备或者电网的过负荷运行,首选发信,其次跳闸。
零序电流保护:1.零序电流速断保护:保护线路和线路后侧设备对地短路、严重漏电故障。
2.定时限零序电流保护:保护线路和线路后侧设备的轻微对地短路和小电流漏电,监测绝缘状况。
可以选择作用于跳闸或发信。
过电压保护:1.雷电过电压保护。
2.操作过电压保护。
1、2两种过电压通常都是用避雷器来保护,可防止线路或设备绝缘击穿。
3.设备异常过电压保护:通过电压继电器和综保定值整定来实现跳闸或发信,用于保护设备在异常过压下运行造成的发热损坏。
低电压保护:瞬时低电压保护只发信不跳闸,用于避免瞬间短路或大负荷启动造成的正常设备误跳闸。
俗称躲晃电。
非电量保护:1.重瓦斯保护:用于变压器内部强短路或拉弧放电的严重故障保护。
选择跳闸。
2.轻瓦斯保护:用于变压器轻微故障的检测,选择发信报警。
3.温度保护:用于检测变压器顶层油温监测,轻超温发信报警,重超温跳闸。
施工组织设计
110kV变电站二期电气安装工程
施工现场平面布置图
页脚内容
施工组织设计
页脚内容 其中:☆代表消防器材,
代表道路。
施工组织设计
布置说明:
1)租用××变二期附近民房一幢,作为食堂、卫生间等用。
2)在﹟2主变西侧位置边放置材料库、工具间、临时加工间等。
移动集装箱作为项目部办公场所和现场会议室,配置适当的办公设备,挂设相关图表及有关簿册。
3)在110kV场地西侧设置110kV设备堆放区,在10kV电容器组边设置10kV 电容器及接地变材料堆放区。
4)消防设施:
借用变电所及项目部自己配置干粉灭火器,供场地、控制室、10kV配电室、油务区、电缆层、仓库、危险品库等处使用。
消防设施实行定置管理,临时施工需要另行配置移动消防灭火器。
5)提前布置好安全及宣传标牌,力求井然有序。
项目部绘制好现场平面布置图,实行定置管理。
3.2 施工现场临时用电、临时用水借用原变电所内的电源及用水。
页脚内容。
目录摘要 (3)前言 (4)第 0-1 节毕业设计目的意义 (4)第 0-2 节原始资料分析 (5)第一章变电所电气主接线设计 (6)1-1 电气主接线设计概述 (6)1-2 电气主接线的初步方案选择设计 (6)1-3 电气主接线的经济技术比拟 (10)1-5 变电所主变和厂用变选择 (14)1-6 变电所用电设计 (15)1-7 最优电气主接线图绘制 (16)第二章短路电流计算 (17)2-1 节短路电流计算概述 (17)2-2 节短路电流计算过程 (19)2-3节短路电流计算成果 (29)第三章变电所导体和电器选择设计 (30)3-1 节导体和电器选择设计概述 (30)3-2节导体的选择和校验 (34)3.3 主要电气设备的选择和校验 (38)3-4并联补偿电容的选择 (51)第四章屋外高压配电装置优化设计 (54)4-1 高压配电装置概述 (54)4-2 高压配电装置的优化设计 (56)4-3 高压配电装置平面布置图和断面图的绘制 (58)第五章防雷保护规划设计 (59)5-1 变电所过电压及防护分析 (59)5-2避雷器的配置规划与选择 (60)5-3变电所避雷针配置规划及保护范围计算 (61)5-4 变电所接地设计 (62)第六章继电保护配置的规划设计 (63)6-1 仪表与继电保护的配置规划概述 (63)6-2 仪表配置规划设计 (63)6-3 继电保护配置规划设计 (64)结论 (69)总结与体会 (70)谢辞 (71)参考文献 (72)摘要本论文为110KV变电站电气主接线设计。
根据设计任务书给定的条件来设计,其主要包括以下内容:在对各种电气主接线比拟后确定本厂的电气主接线,对主变压器、厂用变压器和导体和重要电气设备进行选择,然后绘制主接线图、设备平面布置图、断面图、防雷配置图和继电保护规划配置图。
关键词:主接线短路计算设备选择防雷保护继电保护前言第 0-1 节毕业设计目的意义毕业设计是完成教学方案、实现培养目标的一个重要教学环节,是全面运用所学基础理论、专业知识和根本技能,对实际问题进行设计的综合训练,是培养学生综合素质和工程实践能力的教育过程。
110KV变电站电气主接线设计摘要本次设计为110kV变电站电气主接线的初步设计,并绘制电气主接线图。
该变电站设有两台主变压器,站内主接线分为110kV、35kV和10kV三个电压品级。
110KV电压品级采纳双母线接线,35KV和10KV电压品级都采纳单母线分段接线。
本次设计中进行了电气主接线的设计、短路电流计算、要紧电气设备选择及校验(包括断路器、隔离开关、电流互感器、电压互感器、熔断器等)、各电压品级配电装置设计和防雷爱惜的配置。
关键词:降压变电站;电气主接线;变压器;设备选型;无功补偿Abstract目录1.电气主接线设计110KV变电站的技术背景 (3)主接线的设计原那么 (3)主接线设计的大体要求 (3)高压配电装置的接线方式 (4)主接线的选择与设计 (8)主变压器型式的选择 (9)2.短路电流计算短路电流计算的概述 (11)短路计算的一样规定 (11)短路计算的方式 (12)短路电流计算 (12)3.电气设备选择与校验电气设备选择的一样条件 (15)高压断路器的选型 (16)高压隔离开关的选型 (17)互感器的选择 (17)短路稳固校验 (18)高压熔断器的选择 (18)4.屋内外配电装置设计设计原那么 (19)设计的大体要求 (20)布置及安装设计的具体要求 (20)配电装置选择 (21)5.变电站防雷与接地设计雷电过电压的形成与危害 (22)电气设备的防雷爱惜 (22)避雷针的配置原那么 (23)避雷器的配置原那么 (23)避雷针、避雷线爱惜范围计算 (23)变电所接地装置 (24)6.无功补偿设计无功补偿的概念及重要性 (24)无功补偿的原那么与大体要求 (24)7.变电所整体布置整体计划 (26)总平面布置 (26)终止语 (27)参考文献 (27)1.电气主接线设计110KV变电站的技术背景最近几年来,我国的电力工业在持续迅速的进展,而电力工业是我国国民经济的一个重要组成部份,其使命包括发电、输电及向用户的配电的全数进程。
110kv变电站全套电气施工图纸一、前言随着电力行业的快速发展,电气设备逐渐成为各行各业的核心设备。
在这个过程中,变电站是电力设备的关键部分之一。
在变电站的建设过程中,电气施工图纸则显得尤为重要。
本文将介绍一套完整的110kv变电站电气施工图纸,以供读者参考。
二、110kv变电站电气施工图纸110kv变电站电气施工图纸涵盖了变电站的整个电气系统和设备。
此处将按照电气系统的不同部分分别介绍相关图纸。
1.主变压器区电气图纸主变压器区电气图纸主要包括主变压器、母线、横隔板、接地装置等相关设备的布置图、电气原理图、智能终端单元配置等。
2.配电区电气图纸配电区电气图纸主要包括开关柜、避雷器、电容器、电抗器、组合电器等设备的布置图、电气原理图、电气控制柜布置图、单线图等。
3.控制保护电气图纸控制保护电气图纸主要包括主变压器保护、母线保护、开关柜保护、避雷器保护、电容器保护、电抗器保护、组合电器保护等。
4.接地电气图纸接地电气图纸主要包括接地网、接地装置、接地电缆等的布置图、电气原理图、接地电流传感器配合柜的布置图等。
5.附属电气图纸附属电气图纸主要包括灯具、弱电系统等方面的布置图、电气原理图、控制系统等相关内容。
三、相关注意事项在进行变电站电气施工图纸的使用过程中,有如下需要注意之处:1.在使用过程中要严格按照标准化、规范化图纸的要求使用;2.在使用之前,需要仔细检查图纸的完整性,以确保图纸的正确性和可靠性;3.在使用之前,需要进行相关人员的培训和技能提升,以确保图纸的正确使用和实施。
四、电气施工图纸是电气系统建设的重要组成部分,对于变电站的建设和运维都具有重大意义。
本文介绍了一套完整的110kv变电站电气施工图纸,并对相关注意事项进行了阐述,希望读者能够对电气施工图纸的使用以及变电站的建设和运维有更加深入的了解。
.《发电厂电气部分》课程设计学生姓名:学号:专业班级:指导教师:二○年月日目录(二号字体)1.课程设计目的 (2)2.110KV变电站设计题目和要求 (2)3 主变压器台数、容量、型式的选择 (3)4 电气主接线方案的确定 (4)5所用电设计 (8)6短路电流的计算 (9)7电气设备的选择 (12)1课程设计目的电气主接线是发电厂,变电站电气设计的首要部分,也是构成电力系统的主要环节,而电气设备的选择是电气设计的主要内容之一。
本次课设通过110/10kv变电站的设计,对变压器选择,限制短路电流的方法进行分析,通过对电气主接线经济性,灵活性,可靠性的分析,选出最优方案。
2 110KV变电站设计依据和要求2.1依据根据设计任务书下达的任务和原始数据设计。
2.2设计内容为了满足该县负荷发展及电网电力交换的需要,优化该县的电网结构,拟在县城后山设计建设一座110/10的降压变电所,简称110kV变电所。
2.3电力系统概述本变电所与电力系统联系1、说明110kV变电所通过两回110kV线路接至该变电所,再与电力系统相连。
这里将S取为j100MVA,系统侧提供短路电流为22.17kA;按供电半径不大于5kM要求,110kV线路长度定为4.8kM。
110kV变电所在电力系统中的地位和作用1、根据110kV变电所与系统联系的情况,该变电站属于终端变电所。
2、110kV变电所主要供电给本地区用户,用电负荷属于Ⅱ类负荷。
2.4 110kV变电所各级电压负荷情况分析2.4.1供电方式110kV侧:共有两回进线,由系统连接双回线路对110kV变电所供电。
10kV侧:本期出线6回,由110kV变电所降压后供电。
2.4.2负荷数据1、全区用电负荷本期为27MW,共6回出线,每回按4.5MW计;远期50MW,14回路,每回按3.572MW设计;最小负荷按70%计算,供电距离不大于5kM。
=4250小时/年。
2、负荷同时率取0.85,cosφ=0.8,年最大利用小时数Tmax3、所用电率取0.1%。
课程设计报告课程:电气综合课程设计学院:电子工程学院专业:电气工程及其自动化姓名:学号:班级:指导教师:职称:讲师完成日期:2015年11月12日摘要随着经济的发展和现代工业建设的迅速崛起,供电系统的设计越来越全面、系统工厂用电量迅速增长,对电能质量、技术经济状况、供电的可靠性指标也日益提高,因此对供电设计也有了更高、更完善的要求。
设计是否合理,不仅直接影响基建投资、运行费用和有色金属的消耗量,也会反应在供电的可靠性和安全生产方面,它和企业的经济效益、设备人身安全密切相关。
变电所是电力系统的一个重要组成部分,有电气设备及配电网络按一定的接线方式所构成,他从电力系统取得电能,通过其变换、分配、输送与控制的枢纽,然后将电能安全、可靠、经济的输送到每一个用电设备的转设场所。
作为电能传输与控制的枢纽,变电站必须改变传统的设计和控制模式,才能适应现代的电力系统、现代工业化生产和社会生活的发展趋势。
随著计算机技术、现代通讯和网络技术的发展,为目前变电站的坚实、控制、保护和计量装置及系统分隔的状态提供了有优化组合和系统集成的技术基础。
110Kv变电所属于高压网络,该地区变电所所涉及方面多,分析变电所担负的任务及用结构化负荷等情况,利用用户数据进行负荷计算,确定用户无功功率补偿装置。
电力技术高新化、复杂化的迅速发展,使电力系统在从发电到供电的所有领域中,通过新技术的使用,都在不断的发展变化。
变电所为电力系统中的一个关键的环节也同样在新技术领域得到了充分的发展。
……【关键词】迅速崛起变电所可靠性电力技术目录1 引言 (5)1.1 变电站的作用 (5)1.2 我国变电站及其设计的发展趋势 (6)1.3 变电站设计的主要原则和分类 (8)2 任务书 (9)2.1 原始资料 (9)2.2 负荷计算 ......................................................................................................................... 10 计算方法:根据材料给定的有功功率P 、功率因数cos&,求出无功功率Q=P*tan&nP P P P P +⋅⋅⋅⋅⋅+++=∑321 n Q Q Q Q Q +⋅⋅⋅⋅⋅+++=∑321 计算负荷:∑∑+∂=22*Q P S c ,∂为需要系数一般取0.85.根据原始资料:cos&=0.85,则tan&=tan(arccos0.85)=0.62加工厂1回:1c P =1500kW,tan&*11c c P Q ==1500*0.62=930kVar机械厂2回:2c P = 3c P =1200kW,tan&*232c c c P Q Q ===1200*0.62=744kVar药棉厂1回:4c P =2000kW,tan&*44c c P Q ==2000*0.62=1240kVar棉纺厂2回:5c P = 6c P =1800kW,tan&*565c c c P Q Q ===1800*0.62=1116kVar水厂2回:7c P = 8c P =1600kW,tan&*787c c c P Q Q ==1600*0.62=992kVar化工厂2回:9c P = 10c P =1200kW,Qc9= Qc10=Pc9* tan&=2000*0.62=1240kVar975421*2*2*2*2c c c c c c P P P P P P P +++++=∑=1500+1200*2+1800*2+1600*2+2000*2=16700kW ............................................................. 10 975421*2*2*2*2c c c c c c Q Q Q Q Q Q P +++++=∑=930+2*744+1240+1116*2+992*2+1240*2=103454kW ....................................................... 11 ∑∑+=22)()(*Q P K S c1c c P P P ∑=+S=16.7MVA 3 电气主接线设计 (11)c3.1 电气主接线设计概述 (12)3.2 电气主接线的基本形式 (14)3.3 电气主接线选择 (15)4 变电站主变压器选择 (19)4.1 主变压器的选择 (19)4.2 主变压器选择结果 (20)5 短路电流计算 (21)5.1 短路的危害 (21)5.2 短路电流计算的目的 (21)5.3 短路电流计算方法 (21)6 电气设备的选择 (23)6.1 导体的选择和校验 (23)6.2 断路器和隔离开关的选择及校验 (24)6.3 电压互感器和电流互感器的选择 (25)6.3.1 电流互感器的选择 (25)6.3.2 电压互感器的选择 (25)参考文献 (26)1 引言1.1 变电站的作用一、变电站在电力系统中的地位电力系统是由变压器、输电线路、用电设备组成的网络,它包括通过电的或机械的方式连接在网络中的所有设备。
110kV变电站二期电气安装工程
施工现场平面布置图
其中:☆代表消防器材,代表道路。
布置说明:
1)租用××变二期附近民房一幢,作为食堂、卫生间等用。
2)在﹟2主变西侧位置边放置材料库、工具间、临时加工间等。
移动集装箱作为项目部办公场所和现场会议室,配置适当的办公设备,挂设相关图表及有关簿册。
3)在110kV场地西侧设置110kV设备堆放区,在10kV电容器组边设置10kV 电容器及接地变材料堆放区。
4)消防设施:
借用变电所及项目部自己配置干粉灭火器,供场地、控制室、10kV配电室、油务区、电缆层、仓库、危险品库等处使用。
消防设施实行定置管理,临时施工需要另行配置移动消防灭火器。
5)提前布置好安全及宣传标牌,力求井然有序。
项目部绘制好现场平面布置图,实行定置管理。
施工现场临时用电、临时用水借用原变电所内的电源及用水。
课程设计4:110kV变电站电气主接线及配电装置平面布置图的设计第一篇:课程设计4:110kV变电站电气主接线及配电装置平面布置图的设计电气工程及其自动化专业电力系统方向课程设计任务书和指导书题目: 110kV变电站电气主接线及配电装置平面布置图的设计指导教师:江静电气主接线及配电装置平面布置图课程设计任务书题目: 110kV 变电站电气主接线及配电装置平面布置图的设计一、课程设计的目的要求使学生巩固和应用所学知识,初步掌握部分工程设计基本方法及基本技能。
二、题目:110kV变电所电气主接线设计三、已知资料为满足经济发展的需要,根据有关单位的决定新建1座降压变电气。
原始资料: 1变电所的建设规模⑴类型:降压变电气⑵最终容量和台数:2×31500kVA:年利用小时数:4000h。
2电力系统与本所连接情况⑴该变电所在电力系统中的地位和作用:一般性终端变电所;⑵该变电所联入系统的电压等级为110kV,出线回路数2回,分别为18公里与电力系统相连;25公里与装机容量为100MW的水电站相连。
⑶电力系统出口短路容量:2800 MVA;3、电力负荷水平⑴高压10 kV负荷24回出线,最大输送2MW,COSΦ=0.8,各回出线的最小负荷按最大负荷的70%计算,负荷同时率取0.8,COSΦ=0.85,Tmax=4200小时/年;⑵24回中含预留2回备用;⑶所用电率1%4、环境条件该所位于某乡镇,有公路可达,海拔高度为86米,土壤电阻系数Р=2.5×104Ω.cm,土壤地下0.8米处温度20℃;该地区年最高温度40℃,年最低温度-10℃,最热月7月份其最高气温月平均34.0℃,最冷月1月份,其最低气温月平均值为1℃;年雷暴日数为58.2天。
四、设计内容1、设计主接线方案⑴确定主变台数、容量和型式⑵接线方案的技术、经济比较,确定最佳方案⑶确定所用变台数及其备用方式。
2、计算短路电流3、选择电气设备4、绘制主接线图5、绘制屋内配电装置图6、绘制屋外配电装置平断面图五、设计成果要求1、设计说明书1份编写任务及原始资料⑴编写任务及原始资料⑵确定主变压器台数、容量和型式⑶确定主接线方案(列表比较)⑷计算短路电流(包括计算条件、计算过程、计算成果)⑸选择高压电气设备(包括初选和校验,并列出设备清单)。
abcd四年级数学上册期末试卷
110kV变电站二期电气安装工程
施工现场平面布置图
f
abcd 四年级数学上册期末试卷
f 其中:☆代表消防器材,
代表道路。
abcd四年级数学上册期末试卷
布置说明:
1)租用××变二期附近民房一幢,作为食堂、卫生间等用。
2)在﹟2主变西侧位置边放置材料库、工具间、临时加工间等。
移动集装箱作为项目部办公场所和现场会议室,配置适当的办公设备,挂设相关图表及有关簿册。
3)在110kV场地西侧设置110kV设备堆放区,在10kV电容器组边设置10kV电容器及接地变材料堆放区。
4)消防设施:
借用变电所及项目部自己配置干粉灭火器,供场地、控制室、10kV配电室、油务区、电缆层、仓库、危险品库等处使用。
消防设施实行定置管理,临时施工需要另行配置移动消防灭火器。
5)提前布置好安全及宣传标牌,力求井然有序。
项目部绘制好现场平面布置图,实行定置管理。
3.2 施工现场临时用电、临时用水借用原变电所内的电源及用水。
高考是我们人生中重要的阶段,我们要学会给高三的自己加油打气
f。
110kV变电站二期电气安装工程工程概况和特点
110kV变电站二期电气安装工程
施工现场平面布置图
页脚内容2
110kV 变电站二期电气安装工程工程概况和特点
页脚内容1 其中:☆代表消防器材,
代表道路。
110kV变电站二期电气安装工程工程概况和特点
布置说明:
1)租用××变二期附近民房一幢,作为食堂、卫生间等用。
2)在﹟2主变西侧位置边放置材料库、工具间、临时加工间等。
移动集装箱作为项目部办公场所和现场会议室,配置适当的办公设备,挂设相关图表及有关簿册。
3)在110kV场地西侧设置110kV设备堆放区,在10kV电容器组边设置10kV 电容器及接地变材料堆放区。
4)消防设施:
借用变电所及项目部自己配置干粉灭火器,供场地、控制室、10kV配电室、油务区、电缆层、仓库、危险品库等处使用。
消防设施实行定置管理,临时施工需要另行配置移动消防灭火器。
5)提前布置好安全及宣传标牌,力求井然有序。
项目部绘制好现场平面布置图,实行定置管理。
3.2 施工现场临时用电、临时用水借用原变电所内的电源及用水。
页脚内容2。
最高温度40℃,最热月最高平均气温32℃3.变电所10kV侧过电流保护动作时间为1秒4.110kV输电线路电抗按0.4Ω/km计5.发电厂变电所地理位置图(附图一)6.典型日负荷曲线(附图二)附图一发电厂变电所地理位置图G:汽轮机 QFQ-50-2,50MW COSφ=0.8,X〃d=0.124T:变压器SF7-40000/121±2×2.5%P o = 46kW P K = 174kW I o% = 0.8 U K% = 10.5 附图二典型日负荷曲线3.课程设计任务及工作量的要求〔包括课程设计计算说明书、图纸、实物样品等要求〕成品提交的设计文件和图纸要求:1. 设计说明书1份2. 设计计算书1份3. 图纸:变电所主接线图4.主要参考文献1、姚春球.发电厂电气部分.北京:中国电力出版社2、范锡普.发电厂电气部分.北京:中国电力出版社3、陈跃.电气工程专业毕业设计指南.电力系统分册.北京:中国水利水电出版社设计说明书一、 对变电所A 在电力系统中的地位,作用及电力用户的分析: (一)变电所A 在电力系统中的地位与作用:由发电厂变电所地理位置图可以得出,变电所A 的电压等级为110kV ,重要负荷所占比例为65%,在整个供电网络中的作用为地区变电所。
即以对地区用户供电为主,是一个地区或城市的主要变电所,电压一般为110kV ~220kV 。
全所停电时,仅使该地区中断供电。
(二)对电力用户的分析:由任务书中,原始资料图表可得:A 变电所的重要负荷占总负荷65%,有功功率P=22MW,有功功率因数ϕcos =0.9。
按其供电可靠性的要求,负荷被分为三个等级,Ⅰ类负荷为重要负荷,任何时候都不能停电,Ⅱ类负荷,仅在必要时可以短时间停电,其余为Ⅲ类负荷,停电时不会造成大的影响,必要时可以长时间停电。
通常,Ⅰ类负荷需要采用两个独立的电源供电,当其中的任一电源发生故障而停电时,不会影响另一个电源持续供电,保证供电连续性。
施工组织设计
110kV变电站二期电气安装工程
施工现场平面布置图
页脚内容
施工组织设计
页脚内容 其中:☆代表消防器材,
代表道路。
施工组织设计
布置说明
)租用××变二期附近民房一幢,作为食堂、卫生间等用。
)在﹟ 主变西侧位置边放置材料库、工具间、临时加工间等。
移动集装箱作为项目部办公场所和现场会议室,配置适当的办公设备,挂设相关图表及有关簿册。
)在 场地西侧设置 设备堆放区,在 0 电容器组边设置 电容器及接地变材料堆放区。
)消防设施:
借用变电所及项目部自己配置干粉灭火器,供场地、控制室、 配电室、油务区、电缆层、仓库、危险品库等处使用。
消防设施实行定置管理,临时施工需要另行配置移动消防灭火器。
)提前布置好安全及宣传标牌,力求井然有序。
项目部绘制好现场平面布置图,实行定置管理。
施工现场临时用电、临时用水借用原变电所内的电源及用水。
页脚内容。
110kv降压变电站的电气主接线选择某变电所的电压等级为110kV,为一降压变电所,在系统中的地位比较重要,高压侧同时接收和变换功率,供35kV负荷和10kV负荷,属于地区一般变电所。
建设规模:(1)110kV进出线共六回,其中两回是与系统连接的双回线,每回送电容量为45MVA,其余四回为单电源出线,送电容量为5MVA。
(2)35kV出线共四回,其中两回出线每回送电容量为8MVA,另外两回出线,送电容量为7MVA、6MVA。
(3)10kV出线共十回,其中六回架空出线,每回输电容量为2MVA,四回电缆线路,每回输电容量为1.8MVA。
1 所用电接线设计和所用变压器的选择变电所的所用电是变电所的重要负荷,因此,在所用电设计时应按照运行可靠、检修和维护方便的要求,考虑变电所发展规划,妥善解决分期建设引起的问题,积极慎重地采用经过鉴定的新技术和新设备,使设计达到经济合理,技术先进,保证变电所安全,经济的运行。
所用变台数的确定:一般变电所装设一台所用变压器,对于枢纽变电所、装有两台以上主变压器的变电所中应装设两台容量相等的所用变压器,互为备用,如果能从变电所外引入一个可靠的低压备用电源时,也可装设一台所用变压器。
根据如上规定,本变电所选用两台容量相等的所用变压器。
所用变压器的容量应按所用负荷选择。
2 电气主接线的选择电气主接线的确定对电力系统整体及发电厂,变电所本身运行的可靠性、灵活性和经济性密切相关,并且对电气设备的选择配电装置选择,继电保护和控制方式的拟定有较大影响,因此,必须正确外理为各方面的关系,全面分析有关影响因素,通过技术经济比较,合理确定主接线方案。
(1)设计的基本要求为:①满足对用户供电必要的可靠性和保证电能质量。
②接线应简单,清晰且操作方便。
③运行上要具有一定的灵活性和检修方便。
④具有经济性,投资少,运行维护费用低。
⑤具有扩建和可能性。
(2)设计主接线的原则:采用分段单母线或双母线的110kV~220kV配电装置,当断路点不允许停电检修时,一般需设置旁路母线。
电气工程及其自动化专业电力系统方向课程设计任务书和指导书题目: 110kV变电站电气主接线及配电装置平面布置图的设计指导教师:江静电气主接线及配电装置平面布置图课程设计任务书题目: 110kV变电站电气主接线及配电装置平面布置图的设计一、课程设计的目的要求使学生巩固和应用所学知识,初步掌握部分工程设计基本方法及基本技能。
二、题目:110kV变电所电气主接线设计三、已知资料为满足经济发展的需要,根据有关单位的决定新建1座降压变电气。
原始资料:1变电所的建设规模⑴类型:降压变电气⑵最终容量和台数:2×31500kV A:年利用小时数:4000h。
2电力系统与本所连接情况⑴该变电所在电力系统中的地位和作用:一般性终端变电所;⑵该变电所联入系统的电压等级为110kV,出线回路数2回,分别为18公里与电力系统相连;25公里与装机容量为100MW的水电站相连。
⑶电力系统出口短路容量:2800 MV A;3、电力负荷水平⑴高压10 kV负荷24回出线,最大输送2MW,COSΦ=0.8,各回出线的最小负荷按最大负荷的70%计算,负荷同时率取0.8,COSΦ=0.85,Tmax=4200小时/年;⑵24回中含预留2回备用;⑶所用电率1%4、环境条件该所位于某乡镇,有公路可达,海拔高度为86米,土壤电阻系数Р=2.5×104Ω.cm,土壤地下0.8米处温度20℃;该地区年最高温度40℃,年最低温度-10℃,最热月7月份其最高气温月平均34.0℃,最冷月1月份,其最低气温月平均值为1℃;年雷暴日数为58.2天。
四、设计内容1、设计主接线方案⑴确定主变台数、容量和型式⑵接线方案的技术、经济比较,确定最佳方案⑶确定所用变台数及其备用方式。
2、计算短路电流3、选择电气设备4、绘制主接线图5、绘制屋内配电装置图6、绘制屋外配电装置平断面图五、设计成果要求1、设计说明书1份编写任务及原始资料⑴编写任务及原始资料⑵确定主变压器台数、容量和型式⑶确定主接线方案(列表比较)⑷计算短路电流(包括计算条件、计算过程、计算成果)⑸选择高压电气设备(包括初选和校验,并列出设备清单)。
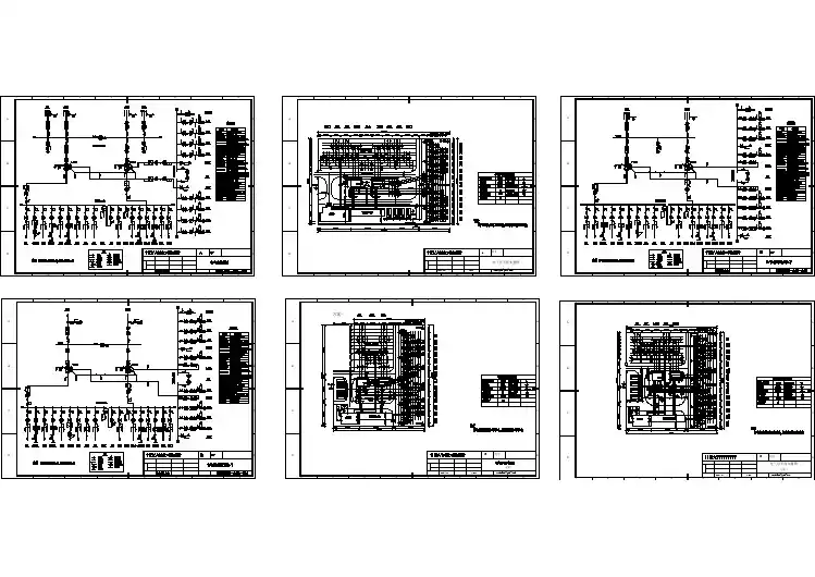
2、变电站电气主接线图1份采用75×50 cm方格纸,图形符号必须按国家标准符号绘制,并有图框和标签框,字体采用仿宋体字,用铅笔绘图和书写。
接线按单线图绘制,仅在局部设备配置不对称处绘制三线图,零线绘成虚线。
在主母线位置上注明配电装置的额定电压等级,在相应的方框图上标明设备的型号、规范。
3、屋内10kV配电装置图1份采用75×50 cm方格纸,图形符号必须按国家标准符号绘制,并有图框和标签框,字体采用仿宋体字,用铅笔绘图和书写。
该图应能显示开关柜的排列顺序、各柜的接线方案编号、柜内的一次设备内容(数量的规格)及其连接,设备在柜内的大致部位,以及走廊的大致走向等。
4、屋外110kV配电装置平断面图1份采用75×50 cm方格纸,图形符号必须按国家标准符号绘制,并有图框和标签框,字体采用仿宋体字,用铅笔绘图和书写。
该图应能显示各主要设备的布置位置及走廊的大致走向等。
5、编制设计说明书及计算书六、日程安排第一天:布置任务、介绍电气设备选择第二天:电气主接线最佳方案的确定第三天:短路电流计算第四、五天:电气设备选择第六天:绘制电气主接线图第七天:绘制10kV配电装置订货图第八天:绘制110kV配电装置平面布置图第九天:绘制110kV户外配电装置断面图第十天:整理设计说明书、考核第 3 页电气主接线及配电装置平面布置图课程设计指导书第一节电气主接线方案设计一、主接线方案设计所需原始资料设计主接线方案时,首先需要了解原始资料:(一)水能资料包括水电站的装机台数和容量,年装机利用小时数、调节性能、开发形式等。
(二)电力系统资料1.水电站在电力系统中的地位和作用;2.电力系统的情况和参数;3.与电力系统的耦合方式;4.负荷的性质、重要程度、供电容量和输电距离;5.厂用电的情况;(三)气象情况包括选择电气设备所需的各种温度等大气条件等(四)其它有关资料包括配电装置型式,各主要设备的保护方式等。
二、主变压器型式、台数和容量的确定三、电气主接线方案的确定(一)电气主接线的基本形式(二)电气主接线方案的技术比较根据任务书所列的已知资料,先拟出几个可能的电气主接线方案,先进行粗略的技术比较,筛选出2~3个满足供电可靠性和电能质量等要求的接线方案。
最后进一步进行较详细的技术比较,确定出最佳方案。
技术比较一般从以下几个方面论证,分析其优缺点:1.技术上的选择与灵活性;2.供电的可靠性;3.运行的安全性;4.维护、检修方便以及布置的合理性;5.继电保护的简化、适应运行人员的技术水平;6.电气设备的制造问题、就地取材问题、占地面积问题等。
四、厂用电器(一)厂用变压器的台数和容量1.台数:有地区外来电源作备用或装机容量较小时,可采用一台,否则骨干电站应考虑两台;2.备用方式:采用暗备用方式,若采用油浸式变压器,每台容量按70%计算容量选择;若采用干式变压器,则每台容量按100%计算容量选择。
(二)厂用电源的引接原则1.有母线的电气主接线,从电压等级较低的母线上引接厂用电源;2.无母线的电气主接线,可从发电机——变压器之间分支上引接厂用电源。
(三)厂用电母线的接线方式按厂用变台数进行分段或不分段,但必须装设备用电源自动投入装置(BZT)。
第二节短路电流计算及电气设备选择一、电气设备的配置:(一)开关电器的配置原则每一回路须有操作电器、保护和隔离电器。
根据设计任务书的要求及已知资料,在选定的电气主接线方案草图上配置开关电器时应考虑以下问题:1.35KV屋外配电装置管理开关带接地刀闸问题根据不同电气主接线具体情况需要,从检修、试验的安全角度出发,在隔离开关,在隔离开关的一侧或双侧装设接地刀闸。
2.接在主母线上的阀型避雷器与电压互感器合用一组隔离开关。
3.厂用变压器高压侧一般采用熔断器作为操作、保护电器。
(二)互感器的配置互感器的配置应充分满足保护及自动装置、测量、同期以及绝缘监察的需要。
(三)其它1.设备之间的连接方式一般采用母线连接,当布置有困难时采用电力电缆连接。
2.防雷保护即侵入波过电压的保护3.通讯问题二、短路计算条件在短路电流计算之前,应先确定短路计算条件,包括以下内容:1.计算电路图的确定(1)系统容量及电抗的确定(已知系统部分参数时);(2)最大运行方式的确定;(3)短路计算点的确定。
2.短路计算时间的确定三、短路电流的计算1.根据电气设备选择的需要,短路电流应计算下列参数:I‘’、I zt、I zt/2、i ch和I ch。
2.短路电流计算步骤:(1)选取基准S j,U j=U p,计算各元件电抗标么值,并绘制等值电路图第 5 页(2)网络化简,求各电源到短路点的综合电抗(3)短路电流计算四、电气设备选择主要选择下列设备:各电压级汇流主母线、断路器、隔离开关、熔断器、互感器、电力电缆、回路载流导体及绝缘子等。
并对所选设备进行校验。
第三节安装接线图安装接线图是二次接线的主要施工图,也是提供厂家制造屏和柜的图纸。
施工图经过施工和运行检修并修正后,就成为对二次回路进行维护、试验和检修的基本图纸。
安装接线图一般包括屏面布置图、端子排图、屏背面接线图三种。
本设计是要求根据已知的二次原理展开图及所选用的设备,设计相应的屏内设备的屏面布置图,然后再由原理展开图及屏面布置图,设计出端子排图。
最后根据以上三种图纸设计屏背面接线图。
一、屏面布置图屏面布置图是加工、制造屏、台、盘和安装屏、台、盘上设备的依据。
屏、台、盘上各设备的排列、布置系根据运行操作的合理性并适当考虑到维护和施工的方便而决定的,必须按照设备尺寸和设备之间的距离及一定的比例进行绘制。
二、端子排图端子排图是表示屏、台、盘内需要装设端子排的数目、型式、排列顺序、位置,以及它与屏台排上设备和屏、台、盘外设备连接情况的图纸。
端子排土实际是屏背面接线图的一个组成部分,它主要是表示屏内设备与屏外设备的连接(电缆)情况。
三、屏背面接线图屏背面接线图是以屏面接线图为基础,并以原理接线图为依据而绘制的接线图,它标明了屏上各个设备引出端子之间的连接情况,以及设备与端子之间的连接情况,它是一种指导屏上配线的图纸。
为了配线工作及识图的方便,在这种接线图中,对各设备和端子排一般都增加了一种采用“相对编号法”进行的编号,用以说明这些设备相互连接的关系。
例如,甲接线柱上标了乙接线柱的编号,乙接线柱上标上甲接线柱的编号,这表明甲和乙两接线柱之间应连接起来。
第 7 页第四节配电装置布置图配电装置是电气一次接线的工程实施,是发电厂及变电站的重要组成部分。
它是按电气主接线的要求,由开关电器、载流导体和必要的辅助设备所组成的电工建筑物,在正常情况下用来接受和分配电能;发生事故时能迅速切断故障部分,以恢复非故障部分的正常工作。
一、绘制屋内配电装置订货图屋内配电装置订货图是厂家根图形进设计、订货、安装的重要资料,厂家将根据订货图进行具体的配料。
二、屋内配电装置布置图将屋内配电装置如成套开关柜合理地布置的屋内。
三、屋外配电装置平、断面图将屋外配电装置布置合理在屋外的场地进行布置,即应满足对安全距离的要求,又应节约用地。
第五节设计成果一、绘制水电站电气主接线图1.采用75×50cm方格纸,图形符号必须按国家新标准符号绘制,并有图框和标题栏,字体应采用仿宋体字,用铅笔绘图和书写。
2.接线按单线图绘制,仅在局部设备配置不对称处绘制三线图,零线绘成虚线。
3.在主母线位置上注明配电装置的额定电压等级,在相应的方框图上表明设备的型号、规格。
二、绘制屋内配电装置配置图1.采用50×375cm方格纸绘制。
2.设备的型号、规格和数量采用列表的形式。
三、绘制35kV屋外配电装置平断面图1.两张图分别采用75×50cm和75×50cm图纸绘制。
2.屋外配电装置布置图应按与实际尺寸成比例画出,要求布置协调对称、美观。
各元件的型号规格必须列在设备表中。
四、绘制设计说明书1.任务及原始资料。
2.主变台数、容量及型式的确定(需论证)。
3.主接线方案的确定(列表比较)。
4.短路电流计算(包括计算条件即计算电路图确定说明,计算过程和结果表)。
5.电气设备的选择。
6.主要一次设备清单(包括设备名称、型号、规格、单位和数量等)。
7.其他需要说明的内容。
第 9 页。