波形梁护栏板图纸代号详细介绍
- 格式:doc
- 大小:14.50 KB
- 文档页数:2
护栏板的代号分类
Gr-A-4E:路侧两波形梁钢护栏 Gr-A-2E:路侧两波形梁钢护栏Gr:波形梁护栏 Gr:波形梁护栏
A:防撞等级 A:防撞等级
4E:立柱打入土中,立柱间距4米 2E:立柱打入土中,立柱间距2米
Gr-A-4C:路侧两波形梁钢护栏 Gr-A-2C:路侧两波形梁钢护栏Gr:波形梁护栏Gr:波形梁护栏
A:防撞等级A:防撞等级
4C:立柱埋置在独立混凝土 2C:立柱埋置在独立混凝土
基础中,立柱间距4米基础中,立柱间距2米
Gr-Am-4E:中央分隔带两波形梁钢护栏 Gr-Am-2E:中央分隔带两波形梁钢护栏
Gr:波形梁护栏 Gr:波形梁护栏
A:防撞等级 A:防撞等级
4E:立柱打入土中,立柱间距4米2E:立柱打入土中,立柱间距2米
Gr-Am-4C:中央分隔带两波形梁钢护栏 Gr-Am-2C:中央分隔带两波形梁钢护栏
Gr:波形梁护栏 Gr:波形梁护栏
A:防撞等级 A:防撞等级
4C:立柱埋置在独立混凝土基础中,2C:立柱埋置在独立混凝土
立柱间距4米基础中,立柱间距2米
Gr-SB-2E:路侧三波形梁钢护栏 Gr-SB-1B1:路侧三波形梁钢护栏
Gr:波形梁护栏 Gr:波形梁护栏SB:防撞等级SB:防撞等级
2E:立柱打入土中,立柱间距2米 1B1:立柱埋置在预埋套筒中,立柱间距1米。
一、高速路波形防撞护栏规格、型号现行标准:示意:Gr-A-4EGr表示波形梁钢护栏A表示防撞级别。
常用有A,B,SA,SB等4表示立柱间距,常用有1米,2米,4米E表示立柱埋入方式,常用有打入式E,混凝土基础C等。
二、波形梁护栏介绍:1、常用路侧波形梁护栏按防撞等级可分为B、A、SB、SA、SS五级,高速公路防撞护栏是典型的冷弯型钢产品;二波护栏板常用规格是4320mm×310mm×85mm×3mm/4mm,立柱为114/140mm×4.5mm;三波护栏板常用规格是4320mm×506mm×85mm×3mm/4mm,立柱为130mm×6mm2、交通部行业标准JT/T281—2007《高速公路波形梁钢护栏》(一)、标准护栏板总长度4320毫米(安装完毕后净剩4米)立柱间距4米。
1、两波形梁护栏板的宽度310mm,波高85mm,板厚:3mm、4mm;理论重量:3mm 厚的为49.16kg,4mm厚的为65.44kg; 每公里3MM厚的重12.3吨,4MM厚的重16.388吨。
2、三波形梁护栏板的规格长4320毫米,波宽505毫米,波高85mm,板厚:4mm;理论重量:102kg,配合130*130的方管立柱。
(二)、立柱:规格Φ114、Φ140mm长度根据要求一般为1.85米、1.95米、2米、2.15米壁厚4.5MM;理论重量:Φ114的12.15kg/m、Φ140mm的15.04kg/m. (三)、标准段每公里用250块护栏板。
立柱间距4米,每公里用250根立柱,端头2个,柱帽250个,防阻块250个,连接螺栓250套,拼接螺栓2000套。
三、波形护栏系统原理:1、波形梁护栏是半钢性护栏的主要形式,它是一种以波纹状钢护栏板相互拼接并由立柱支撑的连续结构。
2、它利用土基、立柱、横梁的变形来吸收碰撞能量,并迫使失控车辆改变方向,回复到正常的行驶方向,防止车辆冲出路外,以保护车辆和乘客,减少事故造成的损失。
波形护栏学习资料一、什么是波形护栏?波形护栏,是一种公路护栏,为公路防撞而设施,是半钢性护栏的主要形式,它是一种以波纹状钢护栏板相互拼接并由主柱支撑的连续结构。
波形护栏,主要是为了防止失控车辆冲出道路,一般为镀锌钢板加工而成,根据公路等级不同而采用不同的规格。
护栏防撞原理:1、波形护栏是半刚性护栏的主要形式,他是一种以波纹钢护栏板互相拼接并由立柱支撑的连续构造。
2、它利用土基、立柱、横梁的变形来吸收碰撞能量,并迫使时空车辆旋扭方向,回复到正常的行驶轨迹,避免车辆冲出公路,以保护车辆和乘客,降低交通事故造成的损失。
3、波形护栏刚柔并济,具备较强的吸收碰撞能量的功能,更有视线诱导功能,能和道路线型相协调,外形美观,可在小半径弯道上使用,损坏处处理方便更换快捷。
护栏的分类:波形护栏按照防撞的等级可分为S级、A级、B级S级三波4.0厚A级双波4.0厚B级双波3.0厚波形护栏按照颜色可分为蓝色、绿色、银色蓝喷塑绿喷塑镀锌二、产品解析及配件三、产品优势、卖点1、全钢结构坚固耐用采用优质镀锌钢板加工而成,根据公路等级不同而采用不同的规格2、表面处理方式1.热镀锌也叫热浸锌和热浸镀锌:是一种有效的金属防腐方式,主要用于各行业的金属结构设施上。
是将除锈后的钢件浸入500℃左右融化的锌液中,使钢构件表面附着锌层,从而起到防腐的目的。
热镀锌工艺流程:成品酸洗-水洗-加助镀液-烘干-挂镀-冷却-药化-清洗-打磨-热镀锌完工。
热镀锌是由较古老的热镀方法发展而来的,自从1836年法国把热镀锌应用于工业以来,已经有一百四十年的历史了。
然而,热镀锌工业是近三十年来伴随冷轧带钢的飞速发展而得到了大规模发展。
公路波形梁钢护栏90%以上都采用热镀锌工艺处理,防腐防刮,锌层厚,抗氧化时间长防腐防锈效果好。
2.冷镀锌也叫电镀锌,是利用电解设备将管件经过除油、酸洗、后放入成分为锌盐的溶液中,并连接电解设备的负极,在管件的对面放置锌版,连接在电解设备的正极接通电源,利用电流从正极向负极的定向移动就会在管件上沉积一层锌,冷镀管件是先加工后镀锌。
第五章波形梁护栏第一节构造第5.1.1条波形梁护栏的分类应符合表5.1.1的规定。
波形梁护栏的分类表5.1.1注:Am级的横隔梁间距为2m;Sm级的横隔梁间距为1m。
尺寸单位:cm图5.1.4-2圆头式端头结构图(有防阻块、圆形立柱)尺寸单位:cm图5.1.4-3圆头式端头结构图(无防阻块、槽形立柱)尺寸单位:cm图5.1.4-4圆头式端头结构图(有防阻块、槽形立柱)尺寸单位:cm图5.1.4-5地锚式端头结构图(无防阻块、槽形立柱)尺寸单位:cm图5.1.4-6地锚式端头结构图(有防阻块、槽形立柱)尺寸单位:cm尺寸单位:cm图5.1.4-8地锚式端头结构图(有防阻块、槽形立柱)尺寸单位:cm第5.1.2条设置于路侧的波形梁护栏,按防撞等级可分为A级和S级。
S级护栏属于加强型,适合于路侧特别危险的路段使用。
S级护栏的立柱中心间距为2m。
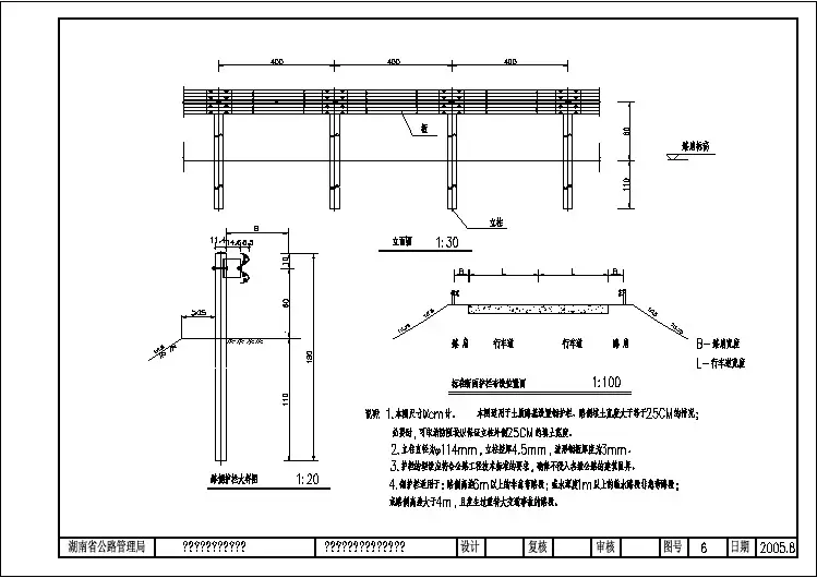
第5.1.3条路侧波形梁护栏的横断布设,不应使护栏面侵入公路建筑限界以内,并不得使护栏立柱外侧的侧向土压力明显减小。
立柱外边缘到路肩边缘的最小距离规定为:当土路肩宽度为75cm时,不应小于25cm;当土路肩宽度为50cm时,不应小于14cm,见图5.1.3-1~图5.1.3-4。
第5.1.4条路侧波形梁护栏的起、讫点应进行端头处理。
路侧护栏的端头可以设计成地锚式或圆头式。
逆行车方向的上游圆头式端头与护栏标准段之间应设渐变段,顺行车方向的下游端头可与标准段护栏成一直线布设。
路侧波形梁护栏圆头式端头结构处理见图5.1.4-1~图5.1.4-4,地锚式端头结构见图5.1.4-5~图5.1.4-8。
第5.1.5条路侧波形梁护栏的防阻块是波形梁与立柱之间的承力部件,适用于交通流中车种比较复杂,担心碰撞车辆可能会在护栏立柱处拌阻的路段;或为了减少路缘石对碰撞车辆运动轨迹产生不利影响的路段。
护栏防阻块分为A型、B型两种。
A型适用于圆形立柱,见图5.1.5-1;B型适用于槽形立柱,见图5.1.5-2。
波形梁护栏是半钢性护栏的主要形式,它是一种以波纹状钢护栏板相互拼接并由立柱支撑的连续结构波形梁护栏一般按设置地点和防撞等级来分类。
按设置地点可以分为路侧护栏和中央分隔带护栏。
按防撞等级一般可分为A级和B级。
A级护栏属于加强型,适用于路侧特别危险的路段使用,B级用于专用公路。
波形护栏材质:优质钢板经防腐处理。
波形护栏结构图一、栏板的宽度310MM,厚度:3MM、4MM。
1吨护栏板可铺:3MM厚的80米,4MM厚的61米,三波要32米。
每公里3MM厚的重12.3吨,4MM厚的重16.388吨。
三波30多吨。
二、立柱:粗度规格Q114、Q140MM长度根据要求一般为1.2米、1.4米、1.85米、2米、2.15米、2.27米,壁厚为4MM/4.5MM。
三、每公里用250块护栏板。
立柱间距4米,每公里用250根立柱,端头2个,柱帽250个,螺丝250套,托架250个,防阻块250个。
四、三波护栏板的规格长4.32米,宽505毫米,厚度为3毫米,4毫米。
五、二波护栏板的规格长4.32米,宽310毫米,厚度为3毫米,4毫米。
通行业标准JT/T281—2007《高速公路波形梁钢护栏》热浸镀锌波形梁钢护栏和立柱:热镀锌防腐层质量镀锌附着量g/m2 平均镀锌附着量板≥600 立柱防阻块≥350 最低镀锌附着量板≥425 立柱防阻块≥275 镀层厚度μm 平均镀层厚度板≥85 立柱防阻块≥50 最低镀层厚度板≥61 立柱防阻块≥39 热浸镀锌+纯聚酯静电喷涂双涂层波形梁钢护栏和立柱。
平均镀层附着量g/m2 板≥270 立柱平均镀层厚度μm 板≥39 立柱涂塑层平均厚度μm 板≥76 立柱波形梁护栏产品介绍:常用路侧波形梁护栏按防撞等级可分为B、A、SB、SA、SS五级,高速公路防撞护栏是典型的冷弯型钢产品;二波护栏板常用规格是4320mm×310mm×85mm×3/4mm,立柱为Ø114/140 mm×4.5mm;三波护栏板常用规格是4320mm×506mm×85mm×3/4mm,立柱为Ø130mm×130mm×6mm。
图纸上所有符号、字母所代表的含义:1 板 B2 屋面板WB3 空心板KB4 槽行板CB5 折板ZB6 密肋板MB7 楼梯板TB8 盖板或沟盖板GB9 挡雨板或檐口板YB10 吊车安全走道板DB11 墙板QB 12 天沟板TGB 13 梁L 14 屋面梁WL 15 吊车梁DL 16 单轨吊DDL 17 轨道连接DGL 18 车挡CD 19 圈梁QL 20 过梁GL 21 连续梁LL22 基础梁JL 23 楼梯梁TL 24 框架梁KL 25 框支梁KZL 26 屋面框架梁WKL 27 檩条LT 28 屋架WJ 29 托架TJ 30 天窗架CJ 31 框架KJ 32 刚架GJ33 支架ZJ 34 柱Z 35 框架柱KZ 36 构造柱GZ 37 承台CT 38 设备基础SJ 39 桩ZH 40 挡土墙DQ 41 地沟DG 42 柱间支撑DC 43 垂直支撑ZC44 水平支撑SC 45 梯T 46 雨篷YP 47 阳台YT 48 梁垫LD 49 预埋件M 50 天窗端壁TD 51 钢筋网W 52 钢筋骨架G 53 基础J 54 暗柱AZ如何看图纸上的一些符号在建筑设计图中,l表示是梁、ll表示是连续梁、ql表示圈梁、jl表示基础梁、tl表示是梯梁、dl表示是地梁,z表示柱、gz表示构造柱、kz表示框架柱,m表示是门、c表示是窗。
下面谈谈一些经验,与博友共享。
1、正规的建筑设计,要有设计者签名,建筑图纸负责人签名,审定者签名,校对人签名,并加盖出图章,注册执业章。
2、建筑设计图纸中,长度一般以mm为,有加以说明的除外;看图时注意结合“建筑用料说明”与其他图纸进行综合。
“建筑用料说明”中,在各小项的前面有打上“√”的,为该设计所采用的做法。
没有打勾的,非该设计所采用的做法。
3、如在建筑设计图中:“c20钢筋砼jl(240400)配4φ16络φ6@200箍。
”解读为:强度为c的钢筋混凝土结构的基础梁,宽240mm,高400mm,配4条直径16厘(16mm)螺纹的主钢筋,每间隔200mm 箍一个直径6厘的钢筋长方形环络。
公路波形护栏图例代号详解
Gr-B-4E 路侧B级双波波形梁护栏,立柱间距4m,打入式
Gr-B-2E 路侧B级双波波形梁护栏,立柱间距2m,打入式
Gr-B-4C 路侧B级双波波形梁护栏, 立柱间距4m,混凝土基础
Gr-B-2C 路侧B级双波波形梁护栏, 立柱间距2m,混凝土基础
Gr-A-4E 路侧A级双波波形梁护栏,立柱间距4m,打入式
Gr-A-2E 路侧A级双波波形梁护栏,立柱间距2m,打入式
Gr-A-4C 路侧A级双波波形梁护栏, 立柱间距4m,混凝土基础
Gr-A-2C 路侧A级双波波形梁护栏, 立柱间距2m,混凝土基础
Gr-SB-4E 路侧SB级双波波形梁护栏,立柱间距4m,打入式
Gr-SB-2E 路侧SB级双波波形梁护栏,立柱间距2m,打入式
Gr-A-2B1 路侧A级双波波形梁护栏,立柱间距2m,预埋套筒式
Gr-SB-1B1 路侧SB级三波波形梁护栏,立柱间距1m,预埋套筒式
Gr-Am-4E 中央分隔带分设型Am级双波波形梁护栏,立柱间距4m,打入式
Gr-Am-2E 中央分隔带分设型Am级双波波形梁护栏,立柱间距2m,打入式
Gr-SBm-1B1 中央分隔带分设型SBm级三波波形梁护栏,立柱间距1m,预埋套筒式Grd-Am-2E 中央分隔带组合型Am级双波波形梁护栏,立柱间距2m,打入式
Grd-Am-1B1 中央分隔带组合型Am级双波波形梁护栏,立柱间距1m,预埋套筒式HDHL 中央分隔带插拔式活动护栏
AT1-2 路侧上游端头,外展圆头式
AT2 路侧下游圆形端头
BT-1 端部翼墙式波形梁护栏与混凝土护栏过渡结构段
CT 中央分隔带开口端部结构
DT 护栏三角端端部结构山东冠美交通设施有限公司。