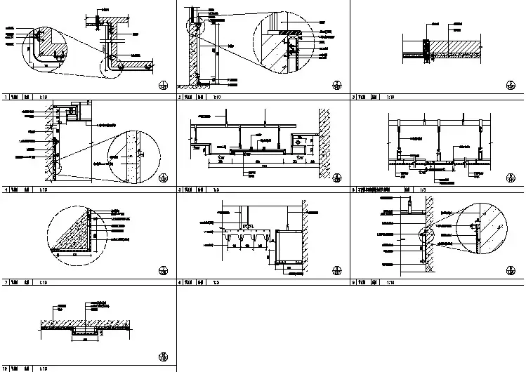
推拉门制作方法节点图
- 格式:doc
- 大小:1.16 MB
- 文档页数:10
建筑施工中31个常用做法一、土建工程1.1后浇带做法⑴地下室侧墙后浇带采用竖向止水钢板(—400×3)伸入底板内,与水平施工缝止水钢板封闭焊接,专项隐蔽验收。
⑵地下室底板后浇带为了保证施工质量以及预防砼侧面凿毛后碎渣无法清理影响底板结构有效厚度,应将后浇带处底板局部加深,见下图(图审中提出):1.2首层户内半地下室(储藏室)防水做法⑴半地下室墙体由地基梁顶标高至地下室外围空间室外地坪标高范围内的墙体统一改为砼浇筑,砼强度等级及抗渗等级按C30S6,,配筋按φ6@150双排双向布置,墙体厚度不变;地下室外围空间地坪标高以上墙体材料不变;⑵半地下室墙体迎水面需做一层柔性防水,柔性防水做法采用1.5mm厚柔性卷材(如“贴必定”)做法,外加20mm苯板或120mm厚砖墙保护层。
分隔两侧不同标高的墙体柔性防水层高度做至于标高较高一侧的地面结构层下30mm处,在结构层砼垫层内收口;⑶半地下墙体必须形成封闭的防水体系。
施工中应根据以上原则对设计作相应调整,务必使半地下室墙体防水体系封闭。
1.3首层楼梯休息平台下空间利用多层住宅首层楼梯间首层休息平台下部空间可利用来摆放电表箱,小高层住宅首层楼梯间首层休息平台下部空间可作为配电室。
其中多层住宅首层楼梯间休息平台下电表箱室做法为:首层休息平台下部结构板面标高局部下降,其四周墙体改为砼与底板砼整体浇注,墙体外围设柔性防水层。
为便于室内空气流通,配电室门可选用防火百叶门或加设排气扇洞,如下图:其中涉及梯井要求封闭,正面砌墙装钢防火(百叶)门,起步台阶设2-3cm挡水坎(防止物业冲洗楼梯)。
1.4首层结构周边围护做法如首层结构板与室外地面高差大于首层周边梁高时,为使首层结构板下回填土不滑落,应沿首层结构板周边形成封闭。
可根据具体情况及费用确定采用周边梁下挂砼板或在基础梁上砌墙封闭(在首层架空和回填夯实两方面选择后者)。
1.5首层入户大堂台阶做法在主体施工阶段,环境设计尚未明确时,可在连接台阶的柱上预留梁插筋以便今后浇注结构板,进而在结构板上作砼或砖砌台阶。
1、建筑体系1-1、门式刚架体系1-1-1、基本构件图1-1-2、说明力学原理门式刚架结构以柱、梁组成的横向刚架为主受力结构,刚架为平面受力体系。
为保证纵向稳定,设置柱间支撑和屋面支撑.刚架刚架柱和梁均采用截面H型钢制作,各种荷载通过柱和梁传给基础。
支撑、系杆刚性支撑采用热轧型钢制作,一般为角钢.柔性支撑为圆钢。
系杆为受压圆钢管,与支撑组成受力封闭体系。
屋面檩条、墙梁一般为C型钢、Z型钢。
承受屋面板和墙面板上传递来的力,并将该力传递给柱和梁。
1—1-3、门式刚架的基本形式a.典型门式刚架b.带吊车的门式刚架c。
带局部二层的门式刚架1—1—4、基本节点a。
柱脚节点b.梁、柱节点■局部二层节点参照多层框架体系。
1—1-5、刚架衍生形式■吊车和局部二层可在衍生形式刚架中布置.■山墙刚架其本质也是多连跨刚架,不过中间柱与刚架柱比截面旋转了90度。
1-2、多层框架体系1—2-1、框架图示1—2-2、说明力学模型a。
纯刚接框架:纵横两个方向均采用刚接的框架。
b。
刚接-支撑框架:横向采用刚接,纵向采用铰接,并在纵向设置支撑,以传递水平力。
c。
支撑式框架:纵横向均采用铰接,两向均设置支撑传递水平力. d。
有时为保证足够的刚度,在刚接框架中亦设置支撑。
框架柱框架柱可采用H型截面、箱形截面、十字形截面、圆管形截面等。
所有上部结构的力都通过框架柱传递给基础。
框架梁框架梁一般采用H型截面。
楼盖和屋盖上的力通过框架梁传递给框架柱。
支撑支撑采用一般采用热轧型钢制作,其功能是传递层间水平力和保证结构的刚度。
1—2—3、基本节点a。
柱脚节点■柱脚节点同门式刚架体系。
b。
柱、梁节点2、支撑、系杆 2-1、图示柱间柔性支撑柱间刚性支撑2—2、说明■支撑分为柔性支撑和刚性支撑两种。
柔性支撑由圆钢制作,安装时必须张紧,主要用于门式刚架结构。
刚性支撑由型钢制作,用于多层框架、吊车梁下段支撑等刚度要求高的结构中.■系杆和支撑联合作用,形成封闭的受力体系。
平移推拉门制作工艺流程下载温馨提示:该文档是我店铺精心编制而成,希望大家下载以后,能够帮助大家解决实际的问题。
文档下载后可定制随意修改,请根据实际需要进行相应的调整和使用,谢谢!并且,本店铺为大家提供各种各样类型的实用资料,如教育随笔、日记赏析、句子摘抄、古诗大全、经典美文、话题作文、工作总结、词语解析、文案摘录、其他资料等等,如想了解不同资料格式和写法,敬请关注!Download tips: This document is carefully compiled by theeditor. I hope that after you download them,they can help yousolve practical problems. The document can be customized andmodified after downloading,please adjust and use it according toactual needs, thank you!In addition, our shop provides you with various types ofpractical materials,such as educational essays, diaryappreciation,sentence excerpts,ancient poems,classic articles,topic composition,work summary,word parsing,copy excerpts,other materials and so on,want to know different data formats andwriting methods,please pay attention!平移推拉门是一种美观、实用、节省空间的门类型,被广泛应用于家居、办公、商场等领域。
可折叠推拉门施工方法
推拉门是一种常见的门窗装饰方式,它具有美观、实用和节省空间的特点。
本文介绍了可折叠推拉门的施工方法,希望能够对相关施工人员提供帮助。
材料准备
- 推拉门框架:选择坚固耐用的金属或木质框架,尺寸需与门洞相匹配。
- 门扇:根据门洞大小定制门扇尺寸,选择符合装饰需求的材质。
- 滑轨系统:选购可靠的滑轨和轮子,确保顺畅推拉门扇。
施工步骤
1. 测量门洞尺寸:使用测量工具准确测量门洞的宽度和高度,并记录下来。
2. 制作推拉门框架:根据门洞尺寸和门扇大小,将金属或木质材料制作成推拉门框架,确保框架的结构稳固。
3. 安装滑轨系统:根据门洞的宽度,在门洞上方和下方安装滑轨,确保它们平行且牢固固定。
4. 安装门扇:将定制好尺寸的门扇安装在推拉门框架上,使用合适的连接件将门扇固定在滑轨系统上。
5. 调整滑轨和门扇:通过调整滑轨系统的位置,确保门扇可以顺畅推拉,在运行过程中不会出现卡滞或摩擦问题。
6. 完善细节:检查并修复门扇与框架之间的间隙,确保门扇的密合性。
同时,安装门把手和锁具,以增加使用便利性和安全性。
7. 完成验收:在施工完成后,认真检查门扇的推拉功能和操作性能,确保没有明显的问题。
以上是可折叠推拉门的施工方法,希望能对施工人员提供一些指导。
在施工过程中,请遵守相关安全规范,并根据实际情况进行合理调整。
祝施工顺利!。
图文详解钢结构识图建筑体系:1.门式钢架体系:1.1基本构件图:1.2说明:力学原理:门式钢架结构以柱、梁组成的横向刚架为主受力结构,钢架为平面受力体系。
为保证纵向稳定,设置柱间支撑和屋面支撑。
刚架:钢架柱和梁均采用截面H型钢制作,各种荷载通过柱和梁传给基础。
支撑、系杆:钢性支撑采用热轧型钢制作,一般为角钢。
柔性支撑为圆钢。
系杆为受压圆钢管,与支撑组成受力封闭体系。
屋面檩条、墙梁:一般为C型钢、Z型钢。
承受屋面板和墙面板上传递来的力,并将该力传递给柱和梁。
1.3门式钢架的基本形式:a.典型门式钢架b.带吊车的门式钢架c.带局部二层的门式钢架1.4基本节点a.柱脚节点b.梁、柱节点局部二层节点参照多层框架体系。
1.5钢架衍生形式吊车和局部二层可在衍生形式刚架中布置。
山墙刚架其本质也是多连跨刚架,不过中间柱与刚架柱比截面旋转了90度。
2.多层框架体系2.1框架图示2.2说明力学模型:a.纯刚接框架:纵横两个方向均采用刚接的框架。
b.刚接-支撑框架:横向采用钢接,纵向采用铰接,并在纵向设置支撑,以传递水平力。
c.支撑式框架:纵横向均采用铰接,两向均设置支撑传递水平力。
d.有时为保证足够的刚度,在钢接框架中亦设置支撑。
框架柱:框架柱可采用H型截面、箱形截面、十字形截面、圆管形截面等。
所有上部结构的力都通过框架柱传递给基础。
框架梁:框架梁一般采用H型截面。
楼盖和屋盖上的力通过框架梁传递给框架柱。
支撑:支撑采用一般采用热轧型钢制作,其功能是传递层间水平力和保证结构的刚度。
2.3基本节点a.柱脚节点:柱脚节点同门式钢架体系。
b.柱、梁节点:支撑、系杆:1.图示:2.说明支撑分为柔性支撑和刚性支撑两种。
柔性支撑由圆钢制作,安装时必须张紧,主要用于门式刚架结构。
刚性支撑由型钢制作,用于多层框架、吊车梁下段支撑等刚度要求高的结构中。
系杆和支撑联合作用,形成封闭的受力体系。
在支撑端头有刚性构件和传递压力的情况下,不需设置系杆。
Visio 2003家居设计实例详解Visio是一个图表绘制程序,它可以帮助你创建说明和组织复杂设想、过程与系统的业务和技术图表。
使用Visio创建的图表使你能够将信息形像化,并能够以清楚简明的方式有效地交流信息。
Visio包括了机械工程、建筑设计图、组织结构图等16种绘图类型,这里我们以时下最为流行的家居设计为例,说明Visio的使用方法与技巧。
一、“个人天地”单间设计实例说明:王小姐拥有一个仅25平方米的一居室。
她希望充分发挥有限空间的作用,布置成一个小小的安乐窝:既当起居室,又兼作餐厅,还要当客厅,不时与朋友小聚。
如图1所示。
1.户型结构规划我们先来画出单间墙壁、壁柱与阳台。
如果是商品房,可参照开发商提供的平面布置图绘制房间结构。
如果没有平面布置图,可以自己量一下尺寸。
(1)准备工作启动Visio,在出现的“选择绘图类型”列表中,选择“建筑设计图”类别的“家居规划”模板。
点击“文件→页面设置”菜单命令,在出现的“页面设置”对话框中,点击“打印设置”选项卡,设置“打印纸”为“纵向”;点击“页面尺寸”选项卡,设置“页面方向”为“纵向”;再点击“绘图缩放比例”选项卡,选择“预定义的缩放比例”项,在下拉列表中选择比例为“1:10”。
现在,可以在“页面尺寸”项中看到绘图区为“5.94×8.41”,是近50平方米,已经足够大了。
点击“确定”按钮。
(2)新建墙壁点击“形状”区的“墙壁、外壳和结构”类目,拖曳一个矩形“房间”到绘图区。
我们可以调节形状周围的8个矩形控制点,以更改大小,调节圆形控制点,以旋转它的方向。
右键点击“房间”形状,选择“属性”命令,在出现的“自定义属性”对话框中,设置“宽度”为3.5m,“高度”为6.9m。
点击“确定”按钮后,将“房间”移动到绘图区中央。
在离最上面墙壁2米处,还有一段内墙。
在“墙壁、外壳和结构”类目中找到“墙壁”项,拖到房间左侧墙壁。
设置属性为“墙长”0.7m,“墙厚”120mm,点击“确定”按钮。
铝塑折叠推拉门制作工艺介绍铝塑折叠推拉门是现在较火的家用门窗品种之一,目前市场上铝塑折叠推拉门种类繁多,但每个人的家居装修情况不同,对极窄推拉门的要求和想要呈现的效果不同。
而且为了更好的满足消费者的购物需求,现在的很多家用铝塑折叠推拉门都是定制的。
那么铝塑折叠推拉门的制作工艺步骤是什么呢?铝塑折叠推拉门的制作工艺分为四个步骤:切割→钻孔→组装→保护或包装。
一是切割,其实就是断料,又称下料,是铝塑折叠推拉门生产的第一道工序,也是关键工序。
切割主要用切割设备。
材料的长短应根据设计要求和门窗施工大样图确定,切割要求准确;否则,门窗方形难以保证,切割尺寸误差值应控制在2mm以内。
一般来说,铝塑折叠推拉门的切割应采用直角切割;铝合金平开门窗的切割应采用45°角切割;其他类型应根据组装方式选择。
二是钻孔,铝塑折叠推拉门框架扇的组装一般采用螺钉连接,因此无论是水平和垂直杆的组装,还是配件的固定,都需要在相应的位置钻孔。
型材钻孔可采用小型台钻或手枪式电钻。
前者有工作台,可以有效保证钻孔位置的精度;后者操作方便。
钻孔前,应根据装配要求在型材上弹线定位。
钻孔位置必须准确,孔径合适。
钻孔不应在型材表面反复更换,因为一旦形成孔,就很难修复。
三是组装,根据施工大样图的要求,用螺钉连接型材。
铝塑折叠推拉门有45°角对接、直角对接和垂直对接三种组装方式。
横竖杆的连接一般采用专用连接件或铝角,然后用螺钉、螺栓或铝拉钉固定,其余包装保护。
四是包装,铝塑折叠推拉门因98%以上都是玻璃制品,虽然玻璃都是钢化玻璃,但也存在破碎的风险,所以包装就尤为重要,要选用防刮擦、防雨淋、防撞击的加厚包装,要是发货地方远,有必要的话打木架包装。
精装修隐形门做法工艺讲解(附图)隐形门是一种在特定房型中最好的解决方案。
常见的使用情况包括造型墙面过短或不对称、户型缺陷或风水忌讳等。
隐形门的种类主要有平开式、推拉式、折叠式和旋转式四种。
平开式隐形门是最常用的一种,可以利用成排柜体或纯粹从墙面做门。
制作隐形门需要五金件、门套和门及周边材质的组合,通过不同的搭配可以达到各种不同的效果。
平开式隐形门的制作要点包括五金件、门套和门及周边材质。
隐形门的结构大致如下图所示,根据这个结构图,我们可以分为两类平开式隐形门。
第一类是AB材质不同的门,它们并不是真正意义上的隐形门,常被用作无框房门、极窄边框房门或隐藏边框的门。
这种门的施工比较复杂,门框需要提前预埋安装,并且需要门方多次对接,对施工工艺要求非常高。
下面给大家看看无框房门产品五金件的节点图和门的节点,它通常有以下两种。
1)露边隐形门:门的外观材质和墙面材质不同,门边露出来;2)半隐形门:门的外观材质和墙面材质相同,门边只露出一条缝隙。
第二类平开式隐形门是AB材质相同的门,它们是真正意义上的隐形门。
这种门的制作工艺比较简单,只需要将门和门套材质相同即可。
隐形门的施工需要注意的是,门框需要提前预埋安装,门方需要多次对接,对施工工艺要求非常高。
隐形门是一种美观、实用的门类,有两种主要类型。
第一种是门框件露出来,线条美观;第二种是边框完全隐藏,更加隐蔽。
隐形门的材质也有很多种,其中AB材质相同的隐形门使用较多。
根据墙面材质的不同,可以有不同的效果。
常见的墙面材质有墙漆、墙纸墙布、硬包和木饰面。
其中,墙漆是最简单的方法,但需要购买耐磨耐脏的墙漆。
墙纸墙布不太耐用,不推荐使用。
如果是高档一点的,可以定制岩板。
硬包造型的隐形门需要考虑美观性和对称性,设计得当可完全同墙面一个整体。
木饰面的隐形门在运用最多,因为材质本身的多样性,可营造出各种高颜值、风格统一的家居环境。
隐形门的造型设计是最关键的,需要考虑到位,才能达到以假乱真的效果。
钢骨架轻型板参考图集On February 12, 2022, investing in oneself is the best way.09CJ20 09CG12:钢骨架轻型板参考图集内容简介本图集适用于非地震区及抗震设防烈度≤8度0.2g地区及室内平均湿度≤75%、构件表面温度≤100℃的工业与民用建筑;钢骨架轻型屋面板、楼板适用于环境类别为一类,无侵蚀性介质的工业与民用建筑,钢骨架轻型外墙板适用于环境类别为二b 类、无侵蚀性介质高度不超过20m的工业建筑,是装配在钢结构或混凝土结构上的非承重外墙围护挂板;图集可供建筑工程设计选用、制作安装使用;目录目录 1说明 3钢骨架轻型屋面板选用表 8钢骨架轻型楼板选用表 10钢骨架轻型外墙板选用表 11大型屋面板模板图及连接构造示意B≤1500 12大型屋面板模板图及连接构造示意2400≤B≤3000 13网架板模板图及连接构造示意 14天沟板模板图及连接构造示意 15屋面板接缝剖面构造详图 16屋面板整体连接示例及节点详图 17平屋面挑檐、檐沟节点详图 18平屋面内天沟、女儿墙节点详图 19平屋面内天沟节点详图 20屋面水落口节点详图 21屋面天窗侧板、天窗端壁板节点详图 22屋面采光罩基座立板节点详图 23屋面采光带节点详图 24屋面变形缝节点详图 25屋面人孔节点详图 26管道出屋面节点详图 27屋面风机基座立板节点详图 28楼板模板图及连接构造示意 29楼板接缝剖面构造详图 30楼板与楼层梁平接做法详图 31楼板整体连接示例及节点详图 32外墙板模板图及连接构造示意 33外墙板连接构造示意 34外墙板连接构造详图 35钢牛腿详图及连接构造示意 36外墙板平面构造索引图示例 37外墙板立面构造索引图示例 38外墙板接缝剖面构造详图 39外墙板阴阳角接缝构造及窗口剖面构造详图 40女儿墙、挑梁穿外墙板及外墙板与裙墙连接构造详图 41外墙板变形缝与水落管构造详图 42推拉门节点构造详图 43人行门及雨篷详图 44屋面检修钢梯构造详图 45栈桥、户内钢梯及屋面支架基座构造详图。
推拉门的制作方法节点图
有时候设计师因为设计需要而采用移门(各地说法不一如趟门、
推拉门),本帖对门进行一些图解。对于大家熟知的平开门、(常
规两开双轨、四开双轨、三开三轨)推拉门、折叠门、地簧门、
甩簧门等不做说明。
这里具体阐释墙暗藏嵌入式(含式)移门与墙外嵌入式(半厚墙)
移门的做法。
墙暗藏嵌入式(含式)移门,如下图
墙暗藏嵌入式(含式)移门施工技术要求该木制墙体必须达到
180mm厚度以上,否则不稳固。
墙外移门分为完全外露式移门和半厚墙嵌入式移门
完全外露式移门:
门洞两边墙体不拆、移门外露、突出于墙体表面。
半厚墙嵌入式移门:
门洞两边墙体一边保持原样,另外一边墙体里面由240mm厚改建
为120mm厚,留出门板宽度至少700mm以上,往里推动收拢开合。
门套一边为240mm厚,另一边为120mm厚,其它墙面瓷砖或乳胶
漆等材质饰面
下面展示的为设计师一某案例中采用的完全外露式移门实景照
片,用于客厅与厨房之间,木墙板包装的部分为烟道和承重墙。