湖北省农村住宅设计方案图集
- 格式:docx
- 大小:10.36 KB
- 文档页数:3
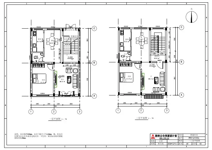
农村二层房屋设计户型图带效果图,农村房屋设计图14*10米图纸预览图及简介:[仅是局部效果预览,详细内容及整套图纸请下载附件查看]占地尺寸:14.6*10.7米建筑层数:二层;建筑高度:8.6m屋顶形式:坡屋顶;建筑结构:砖混结构;设计功能:一层:客厅、2间卧室、厨房、餐厅、楼梯间;二层:2间卧室、露台、客厅、卫生间、楼梯间、露台;图纸目录:房屋设计一层平面图、二层平面图、屋顶平面图、南立面、北立面、1-1剖面图、农村二层房屋效果图。
农村二层房屋效果图一层平面户型草图包含客厅、2间卧室、厨房、餐厅、楼梯间二层平面户型为2间卧室、露台、客厅、卫生间、楼梯间、露台南立面图无忧建房网通过多年的务实工作与精心经营,目前拥有全国最多最专业的建筑设计师、装修设计师、建筑开发商、建筑装修团队等。
在多年的实战经验中,已经形成了一套专业的设计服务体系,在享受生活的同时,为您带来质的保障。
在这里设计师可以做的是把自己最得意的作品展示给大家,同时还能赚取利润!在这里建筑队不仅可以找到最合适最专业的设计方案,还能享受其他资源!让所有关注无忧建房网的人收益!无忧建房网拥有装修效果图、农村房屋设计图、风水知识、房屋设计图、别墅设计、别墅设计图、别墅效果图、施工图、装修知识、别墅设计图纸、农村住宅设计图、自建房设计、房屋效果图、建房知识等众多频道及资源。
网站内容涵盖了房屋设计图、工程资讯、案例赏析、供求信息、有问必答、设计服务、施工图等等,为您提供更多的机会与资源。
在“专业设计、诚信服务”的经营理念下,我们将一如既往的提供最优质的设计资源与建房资料,为建房者与设计师创建一个最专业的网络交流平台,让您足不出户就能解决问题!备注:图片来源“无忧建房网”,转载请表明出处。
湖北省农村住宅设计方案图集湖北省住房和城乡建设厅编制2013年10月前言党的十八大提出:坚持把国家基础设施建设和社会事业发展重点放在农村,深入推进新农村建设和扶贫开发,全面改善农村生产生活条件。
坚持走中国特色新型工业化、信息化、城镇化、农业现代化道路,促进“四化”同步发展。
湖北省委、省政府高度重视新农村建设,作出了一系列决策和部署。
强调要以中心村建设为重点、以新型农村社区建设为抓手,搞好村庄建设和农村住房建设,促进土地节约、资源共享,提高农村的基础设施和公共服务水平。
对城镇周边的农村住宅、土地整治安置建设,要统一规划、集中建设,不断改进住宅的性能和质量,推广节能、省地、环保型住宅建设。
住宅建设是农村人居住环境改善的核心内容,也是新农村建设与经济发展水平的综合体现,是改革开放成果由人民共享的真实体现,更是广大人民群众为实现中国梦的必然追求。
当前湖北省农村建房缺乏系统的规范和引导,农民建房多是民间自行组织设计和施工。
受环境条件和信息制约,房屋设计水平普遍不高,各地住宅建设千篇一律,缺乏地域建筑风格和特色,影响到农村建设的整体品位,与当前全省推进的“四化”同步发展极不相称。
为配套“四化同步”对新型农村社区提出的建设要求,满足广大农民朋友的愿望,我厅在武汉、襄阳、宜昌、黄石、荆州、十堰、荆门、鄂州、咸宁、恩施自治州、仙桃、潜江等12个市州,征集了60个农村住宅建设方案,经专家评审筛选,最终确定了28个优秀方案印成图册,免费赠送全省各乡村以期为农民朋友住宅建设提供参考。
这些入选方案既充分考虑我省不同区域的生产、生活习惯和不同条件农村家庭的实际经济承受能力,也充分考虑到建筑抗震、采光、通风和节能、节地、节材的要求,融合了荆楚民居建筑的传统风格特色,具有较强的科学性、指导性和实用性。
需要说明的是,从建筑风格上讲,适应某个区域只是相对的;从安全上讲,由于各地的地质条件差异较大,建筑基础部分的设计仍需根据具体情况而定。
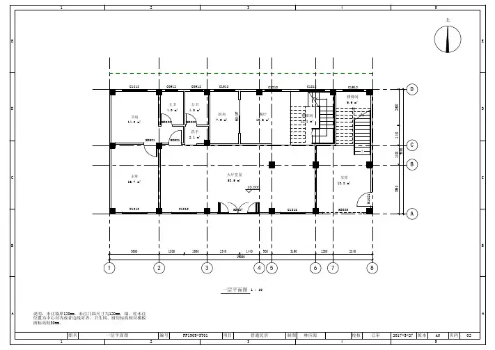
图纸预览图及简介:[仅是局部效果预览,详细内容及整套图纸请下载附件查看]建筑占地面积:12.9x9.8m建筑层数:三层;建筑高度:12.3m;屋顶形式:坡屋顶;建筑结构:砖混结构;设计功能:首层室内功能介绍:客厅[32平方米]厨房[16平方米]餐厅[16平方米]2间卧室[13平方米/11平方米]卫生间[4平方米]二层室内功能介绍:起居室[21平方米]书房[7平方米]2间卧室[13平方米/11平方米]三层室内功能介绍:2间卧室[21平方米/13平方米]起居室[24平方米]储藏室[7平方米]卫生间[4平方米]图纸目录:农村房屋设计一层平面图、二层平面图、三层平面图、屋顶平面图、东立面图、南立面图、西立面图、北立面图、剖面图、楼梯平面图农村三层房屋设计效果图首层平面图无忧建房网通过多年的务实工作与精心经营,目前拥有全国最多最专业的建筑设计师、装修设计师、建筑开发商、建筑装修团队等。
在多年的实战经验中,已经形成了一套专业的设计服务体系,在享受生活的同时,为您带来质的保障。
在这里设计师可以做的是把自己最得意的作品展示给大家,同时还能赚取利润!在这里建筑队不仅可以找到最合适最专业的设计方案,还能享受其他资源!让所有关注无忧建房网的人收益!无忧建房网拥有装修效果图、农村房屋设计图、风水知识、房屋设计图、别墅设计、别墅设计图、别墅效果图、施工图、装修知识、别墅设计图纸、农村住宅设计图、自建房设计、房屋效果图、建房知识等众多频道及资源。
网站内容涵盖了房屋设计图、工程资讯、案例赏析、供求信息、有问必答、设计服务、施工图等等,为您提供更多的机会与资源。
在“专业设计、诚信服务”的经营理念下,我们将一如既往的提供最优质的设计资源与建房资料,为建房者与设计师创建一个最专业的网络交流平台,让您足不出户就能解决问题!。
农村徽派马头墙住宅楼施工图 (CAD图纸)/tuzhi/zhuzhai/20110318129445.html新农村住宅设计方案1 (CAD图纸)/tuzhi/zhuzhai/20110318128771.html新农村住宅设计方案一 (CAD图纸)/tuzhi/zhuzhai/20110318128767.html一套农村建筑方案 (CAD图纸)/tuzhi/zhuzhai/20110318128787.html农村小康住宅方案带效果图 (CAD图纸)/tuzhi/zhuzhai/20110318128763.html农村异型住宅 (CAD图纸)/tuzhi/zhuzhai/20110318128333.html农村小别墅方案 (CAD图纸)/Tuzhi/bieshusj/128228.html农村别墅设计图别墅建筑图纸/Tuzhi/bieshusj/127881.html新农村生活污水处理(人工湿地图纸)/geipaishuituzhi/222376.html新农村小康住宅建筑施工图/tuzhi/zhuzhai/20110318130137.htmlXXX农村信用联社办公楼中央空调图/tuzhi/nuantong/20110612160451.html新农村住宅设计方案3_(CAD图纸)/tuzhi/zhuzhai/20110318130128.html两个联体三开间新农村别墅_(CAD图纸)/Tuzhi/bieshusj/130122.html农村别墅设计_(CAD图纸)/Tuzhi/bieshusj/130118.html农村建筑图纸经典_(CAD图纸)/tuzhi/zhuzhai/20110318130017.html某农村住宅建筑图_(CAD图纸)/tuzhi/zhuzhai/20110318129987.html新农村住宅设计CAD图 (CAD图纸)/tuzhi/zhuzhai/20110318129813.html河南新农村住宅设计 (CAD图纸)/tuzhi/zhuzhai/20110318129793.html新农村住宅设计方案2 (CAD图纸)/tuzhi/zhuzhai/20110318129573.html简单实用的新型农村住宅 (CAD图纸)/tuzhi/zhuzhai/20110318129505.html新农村乡村住宅建筑设计全套施工图 (CAD图纸)/tuzhi/zhuzhai/20110318129476.html农村建筑二层小楼CAD施工图纸 (CAD图纸)/tuzhi/zhuzhai/20110318129460.html全套农村小别墅别墅建筑图纸/Tuzhi/bieshusj/127902.html[湖南]XXX农村信用社装饰全套/tuzhi/zhuangshi/20110312116047.html[山东]XXX新农村规划四/tuzhi/guihua/115556.html[山东]XXX新农村规划三/tuzhi/guihua/115550.html[辽宁]新农村规划院落设计图/tuzhi/guihua/115585.html[江西]新农村详细规划图/tuzhi/guihua/115521.html[陕西]XXX村新农村规划图/tuzhi/guihua/115542.html[江苏]农村居住区总平面图/tuzhi/guihua/115469.html[安徽]新农村规划平面布置图/tuzhi/guihua/115486.html[江西]新农村规划详细图/tuzhi/guihua/115501.htmlXXX农村小学教学楼设计图(CAD图纸)/Tuzhi/jiaoyu/112696.html农村中学扩建工程全套施工图(CAD图纸)/Tuzhi/jiaoyu/112591.htmlXXX农村中学建筑施工全图(CAD图纸)/Tuzhi/jiaoyu/112585.html农村联排别墅建筑结构施工图全套(CAD图纸)/Tuzhi/bieshusj/111345.html农村小别墅方案(CAD图纸)/Tuzhi/bieshusj/111337.html联体三开间新农村别墅施工图含效果图(CAD图纸)/Tuzhi/bieshusj/111330.html新农村建设一套小别墅(CAD图纸)/Tuzhi/bieshusj/111344.html农村别墅施工图(CAD图纸)/Tuzhi/bieshusj/111204.html农村别墅设计图(CAD图纸)/Tuzhi/bieshusj/111026.html[广东]农村住宅/tuzhi/zhuzhai/20110307110085.html[山东]农村住宅设计图/tuzhi/zhuzhai/20110307110073.html[湖北]一个新农村住宅设计方案/tuzhi/zhuzhai/20110307110080.html[福建]新农村住宅设计/tuzhi/zhuzhai/20110307110078.html[山东]农村住宅/tuzhi/zhuzhai/20110307110094.html[河南]新农村住宅设计/tuzhi/zhuzhai/20110307110009.html[福建]社会主义新农村规划户型/tuzhi/zhuzhai/20110307109978.html[山西]新农村小住宅设计方案/tuzhi/zhuzhai/20110307109901.html[浙江]农村住宅楼建筑施工图/tuzhi/zhuzhai/20110307109840.html[陕西]新农村住宅设计方案一/tuzhi/zhuzhai/20110307109829.html[湖北]新农村住宅设计方案/tuzhi/zhuzhai/20110307109826.html[湖南]一套农村建筑方案/tuzhi/zhuzhai/20110307109830.html[陕西]新农村住宅设计方案二/tuzhi/zhuzhai/20110307109841.html[河北]农村住宅楼方案/tuzhi/zhuzhai/20110307109750.html[河南]农村住宅施工图/tuzhi/zhuzhai/20110307109735.html[安徽]农村小康住宅方案带效果图/tuzhi/zhuzhai/20110307109688.html[浙江]农村住宅楼方案图/tuzhi/zhuzhai/20110307109632.html [浙江]简单实用的新型农村住宅/tuzhi/zhuzhai/20110307109384.html[浙江]农村居民用房施工图/tuzhi/zhuzhai/20110307109104.html[四川]XXX农村住宅建筑图/tuzhi/zhuzhai/20110307109116.html一个农村别墅设计图(CAD图纸)/Tuzhi/bieshusj/106897.html农村住宅设计图(CAD图纸)/tuzhi/zhuzhai/20110305106828.html新农村住宅(CAD图纸)/tuzhi/zhuzhai/20110305106716.html新农村住宅设计方案(CAD图纸)/tuzhi/zhuzhai/20110305106734.html农村住宅设计方案(CAD图纸)/tuzhi/zhuzhai/20110305106650.html农村小康住宅全套建筑施工图(CAD图纸)/tuzhi/zhuzhai/20110305106672.html农村住宅楼建筑施工图(CAD图纸)/tuzhi/zhuzhai/20110305106626.html农村住宅楼方案图/tuzhi/zhuzhai/20110303104881.html农村住宅设计/tuzhi/zhuzhai/20110303104821.html新农村建设住宅设计图纸/tuzhi/zhuzhai/20110301102770.html农村住宅/jianzhutuzhi/tuzhi/cadjc/102681.html农村小康住宅方案/jianzhutuzhi/tuzhi/cadjc/102668.html 新农村生活污水处理(人工湿地图纸)/geipaishuituzhi/222376.html新农村小康住宅建筑施工图/tuzhi/zhuzhai/20110318130137.htmlXXX农村信用联社办公楼中央空调图/tuzhi/nuantong/20110612160451.html新农村住宅设计方案3_(CAD图纸)/tuzhi/zhuzhai/20110318130128.html两个联体三开间新农村别墅_(CAD图纸)/Tuzhi/bieshusj/130122.html农村别墅设计_(CAD图纸)/Tuzhi/bieshusj/130118.html农村建筑图纸经典_(CAD图纸)/tuzhi/zhuzhai/20110318130017.html某农村住宅建筑图_(CAD图纸)/tuzhi/zhuzhai/20110318129987.html新农村住宅设计CAD图 (CAD图纸)/tuzhi/zhuzhai/20110318129813.html河南新农村住宅设计 (CAD图纸)/tuzhi/zhuzhai/20110318129793.html新农村住宅设计方案2 (CAD图纸)/tuzhi/zhuzhai/20110318129573.html简单实用的新型农村住宅 (CAD图纸)/tuzhi/zhuzhai/20110318129505.html新农村乡村住宅建筑设计全套施工图 (CAD图纸)/tuzhi/zhuzhai/20110318129476.html农村建筑二层小楼CAD施工图纸 (CAD图纸)/tuzhi/zhuzhai/20110318129460.html农村徽派马头墙住宅楼施工图 (CAD图纸)/tuzhi/zhuzhai/20110318129445.html新农村住宅设计方案1 (CAD图纸)/tuzhi/zhuzhai/20110318128771.html新农村住宅设计方案一 (CAD图纸)/tuzhi/zhuzhai/20110318128767.html一套农村建筑方案 (CAD图纸)/tuzhi/zhuzhai/20110318128787.html农村小康住宅方案带效果图 (CAD图纸)/tuzhi/zhuzhai/20110318128763.html农村异型住宅 (CAD图纸)/tuzhi/zhuzhai/20110318128333.html农村小别墅方案 (CAD图纸)/Tuzhi/bieshusj/128228.html农村别墅设计图别墅建筑图纸/Tuzhi/bieshusj/127881.html全套农村小别墅别墅建筑图纸/Tuzhi/bieshusj/127902.html[湖南]XXX农村信用社装饰全套/tuzhi/zhuangshi/20110312116047.html[山东]XXX新农村规划四/tuzhi/guihua/115556.html[山东]XXX新农村规划三/tuzhi/guihua/115550.html[辽宁]新农村规划院落设计图/tuzhi/guihua/115585.html[江西]新农村详细规划图/tuzhi/guihua/115521.html[陕西]XXX村新农村规划图/tuzhi/guihua/115542.html[江苏]农村居住区总平面图/tuzhi/guihua/115469.html[安徽]新农村规划平面布置图/tuzhi/guihua/115486.html[江西]新农村规划详细图/tuzhi/guihua/115501.htmlXXX农村小学教学楼设计图(CAD图纸)/Tuzhi/jiaoyu/112696.html农村中学扩建工程全套施工图(CAD图纸)/Tuzhi/jiaoyu/112591.htmlXXX农村中学建筑施工全图(CAD图纸)/Tuzhi/jiaoyu/112585.html农村联排别墅建筑结构施工图全套(CAD图纸)/Tuzhi/bieshusj/111345.html农村小别墅方案(CAD图纸)/Tuzhi/bieshusj/111337.html联体三开间新农村别墅施工图含效果图(CAD图纸)/Tuzhi/bieshusj/111330.html新农村建设一套小别墅(CAD图纸)/Tuzhi/bieshusj/111344.html农村别墅施工图(CAD图纸)/Tuzhi/bieshusj/111204.html农村别墅设计图(CAD图纸)/Tuzhi/bieshusj/111026.html[广东]农村住宅/tuzhi/zhuzhai/20110307110085.html[山东]农村住宅设计图/tuzhi/zhuzhai/20110307110073.html[湖北]一个新农村住宅设计方案/tuzhi/zhuzhai/20110307110080.html [福建]新农村住宅设计/tuzhi/zhuzhai/20110307110078.html[山东]农村住宅/tuzhi/zhuzhai/20110307110094.html[河南]新农村住宅设计/tuzhi/zhuzhai/20110307110009.html[福建]社会主义新农村规划户型/tuzhi/zhuzhai/20110307109978.html[山西]新农村小住宅设计方案/tuzhi/zhuzhai/20110307109901.html[浙江]农村住宅楼建筑施工图/tuzhi/zhuzhai/20110307109840.html[陕西]新农村住宅设计方案一/tuzhi/zhuzhai/20110307109829.html[湖北]新农村住宅设计方案/tuzhi/zhuzhai/20110307109826.html[湖南]一套农村建筑方案/tuzhi/zhuzhai/20110307109830.html[陕西]新农村住宅设计方案二/tuzhi/zhuzhai/20110307109841.html[河北]农村住宅楼方案/tuzhi/zhuzhai/20110307109750.html[河南]农村住宅施工图/tuzhi/zhuzhai/20110307109735.html[安徽]农村小康住宅方案带效果图/tuzhi/zhuzhai/20110307109688.html[浙江]农村住宅楼方案图/tuzhi/zhuzhai/20110307109632.html[浙江]简单实用的新型农村住宅/tuzhi/zhuzhai/20110307109384.html[浙江]农村居民用房施工图/tuzhi/zhuzhai/20110307109104.html[四川]XXX农村住宅建筑图/tuzhi/zhuzhai/20110307109116.html一个农村别墅设计图(CAD图纸)/Tuzhi/bieshusj/106897.html农村住宅设计图(CAD图纸)/tuzhi/zhuzhai/20110305106828.html新农村住宅(CAD图纸)/tuzhi/zhuzhai/20110305106716.html新农村住宅设计方案(CAD图纸)/tuzhi/zhuzhai/20110305106734.html农村住宅设计方案(CAD图纸)/tuzhi/zhuzhai/20110305106650.html农村小康住宅全套建筑施工图(CAD图纸)/tuzhi/zhuzhai/20110305106672.html农村住宅楼建筑施工图(CAD图纸)/tuzhi/zhuzhai/20110305106626.html农村住宅楼方案图/tuzhi/zhuzhai/20110303104881.html农村住宅设计/tuzhi/zhuzhai/20110303104821.html新农村建设住宅设计图纸/tuzhi/zhuzhai/20110301102770.html农村住宅/jianzhutuzhi/tuzhi/cadjc/102681.html农村小康住宅方案/jianzhutuzhi/tuzhi/cadjc/102668.html[福建]新农村住宅设计/tuzhi/zhuzhai/20110307110078.html[山东]农村住宅/tuzhi/zhuzhai/20110307110094.html[河南]新农村住宅设计/tuzhi/zhuzhai/20110307110009.html[福建]社会主义新农村规划户型/tuzhi/zhuzhai/20110307109978.html[山西]新农村小住宅设计方案/tuzhi/zhuzhai/20110307109901.html[浙江]农村住宅楼建筑施工图/tuzhi/zhuzhai/20110307109840.html[陕西]新农村住宅设计方案一/tuzhi/zhuzhai/20110307109829.html[湖北]新农村住宅设计方案/tuzhi/zhuzhai/20110307109826.html[湖南]一套农村建筑方案/tuzhi/zhuzhai/20110307109830.html[陕西]新农村住宅设计方案二/tuzhi/zhuzhai/20110307109841.html[河北]农村住宅楼方案/tuzhi/zhuzhai/20110307109750.html[河南]农村住宅施工图/tuzhi/zhuzhai/20110307109735.html[安徽]农村小康住宅方案带效果图/tuzhi/zhuzhai/20110307109688.html[浙江]农村住宅楼方案图/tuzhi/zhuzhai/20110307109632.html[浙江]简单实用的新型农村住宅/tuzhi/zhuzhai/20110307109384.html[浙江]农村居民用房施工图/tuzhi/zhuzhai/20110307109104.html[四川]XXX农村住宅建筑图/tuzhi/zhuzhai/20110307109116.html一个农村别墅设计图(CAD图纸)/Tuzhi/bieshusj/106897.html农村住宅设计图(CAD图纸)/tuzhi/zhuzhai/20110305106828.html新农村住宅(CAD图纸)/tuzhi/zhuzhai/20110305106716.html新农村住宅设计方案(CAD图纸)/tuzhi/zhuzhai/20110305106734.html农村住宅设计方案(CAD图纸)/tuzhi/zhuzhai/20110305106650.html农村小康住宅全套建筑施工图(CAD图纸)/tuzhi/zhuzhai/20110305106672.html农村住宅楼建筑施工图(CAD图纸)/tuzhi/zhuzhai/20110305106626.html农村住宅楼方案图/tuzhi/zhuzhai/20110303104881.html农村住宅设计/tuzhi/zhuzhai/20110303104821.html新农村建设住宅设计图纸/tuzhi/zhuzhai/20110301102770.html农村住宅/jianzhutuzhi/tuzhi/cadjc/102681.html农村小康住宅方案/jianzhutuzhi/tuzhi/cadjc/102668.html。
湖北省农村住宅设计方案图集湖北省住房和城乡建设厅编制2013年10月前言党的十八大提出:坚持把国家基础设施建设和社会事业发展重点放在农村,深入推进新农村建设和扶贫开发,全面改善农村生产生活条件。
坚持走中国特色新型工业化、信息化、城镇化、农业现代化道路,促进“四化”同步发展。
湖北省委、省政府高度重视新农村建设,作出了一系列决策和部署。
强调要以中心村建设为重点、以新型农村社区建设为抓手,搞好村庄建设和农村住房建设,促进土地节约、资源共享,提高农村的基础设施和公共服务水平。
对城镇周边的农村住宅、土地整治安置建设,要统一规划、集中建设,不断改进住宅的性能和质量,推广节能、省地、环保型住宅建设。
住宅建设是农村人居住环境改善的核心内容,也是新农村建设与经济发展水平的综合体现,是改革开放成果由人民共享的真实体现,更是广大人民群众为实现中国梦的必然追求。
当前湖北省农村建房缺乏系统的规范和引导,农民建房多是民间自行组织设计和施工。
受环境条件和信息制约,房屋设计水平普遍不高,各地住宅建设千篇一律,缺乏地域建筑风格和特色,影响到农村建设的整体品位,与当前全省推进的“四化”同步发展极不相称。
为配套“四化同步”对新型农村社区提出的建设要求,满足广大农民朋友的愿望,我厅在武汉、襄阳、宜昌、黄石、荆州、十堰、荆门、鄂州、咸宁、恩施自治州、仙桃、潜江等12个市州,征集了60个农村住宅建设方案,经专家评审筛选,最终确定了28个优秀方案印成图册,免费赠送全省各乡村以期为农民朋友住宅建设提供参考。
这些入选方案既充分考虑我省不同区域的生产、生活习惯和不同条件农村家庭的实际经济承受能力,也充分考虑到建筑抗震、采光、通风和节能、节地、节材的要求,融合了荆楚民居建筑的传统风格特色,具有较强的科学性、指导性和实用性。
需要说明的是,从建筑风格上讲,适应某个区域只是相对的;从安全上讲,由于各地的地质条件差异较大,建筑基础部分的设计仍需根据具体情况而定。
您是否想自建别墅,却找不到满意的施工图纸?您是否想设计别墅,却找不到全面的参考图纸?您是否是设计专业,却找不到完整的毕业设计?现在,这些都不再是难题。
2500多套完整的别墅施工图纸,带外观效果图。
效果图为高清图片格式,施工图为CAD 版,CAD版的好处是可以修改尺寸、户型布局等,也可以直接打印出图。
所有图纸都来源于各地正规设计院、设计公司,完全符合设计、建造标准,所有图纸都已经用于建造过别墅、房屋,绝对可用。
2500多套各种结构、各种风格、各种面积的都有,可以满足全国不同地区的客户使用。
所有客户100%可以找到自己满意的全套施工图纸。
自建房屋,自建别墅必备!官方正版销售网站: 订购热线:400-668-1450 全国免费送货上门,货到付款。
购买前请认准官方网址,谨防盗版!(注意:其他网站均为假冒网站)《别墅设计图纸及效果图大全》最新版为6张DVD数据光盘,在电脑上使用,根据效果图和图纸介绍,选中自己中意的图纸,尺寸合适可直接去打印社打印出图,尺寸不合适可修改尺寸、户型布局后(您不会修改,我们可以提供修改服务),再打印出图,把出图后的全套图纸交给施工队,就能施工建造了。
图纸包含新农村住宅、农村房屋、门面楼房、独栋别墅、双拼别墅、联排别墅、中式别墅、欧式别墅、乡村小别墅等。
施工图包含平面图、立面图、剖面图、结构图、钢筋图、水暖电施工图、结构说明、材料说明等,每套图纸都是完整图纸,这是一套非常超值的资料鲁班设计图纸大全(2012年最新版): 整套资料共包含3000余套别墅、新农村房屋施工方案,每套都包含别墅、新农村房屋外观效果图及全套CAD施工图纸(CAD图纸可修改、可打印出图),施工图包含完整的平面图、立面图、剖面图、户型图、结构图、水暖电施工图等。
分为独栋、双拼、联排、欧式、中式等,本产品收集了国内外绝大部分别墅、新农村房屋图纸,是目前为止市面上最全面的别墅、新农村房屋设计、施工参考资料,具有极高的参考与收藏价值,是别墅、新农村房屋设计与施工首选参考资料。
乡村居民空间设计方案
乡村居民空间设计方案是为了改善农村居民的生活环境,提高农村居民的生活质量。
本方案分为三个方面的设计:住宅设计、公共空间设计和环境设计。
住宅设计方面,考虑到现今农村居住条件较差,我们提出了改善住宅条件的设计方案。
首先,将采用绿色环保的建材,如砖瓦、生态板等,对村民的住宅进行翻新和改造,使其更加美观、环保。
其次,建议增加住宅的采光和通风设施,如阳台、窗户和透光瓦等,以提高住宅的舒适度。
此外,为了保证农村居民的安全,住宅设计还应考虑增加防盗门、窗等安全设施。
公共空间设计方面,我们认为农村公共空间的建设是改善农村居民生活水平的重要措施。
首先,建议建设综合性社区活动中心,提供健身、娱乐等设施,增加农村居民的文体活动。
此外,建议建设公共广场,供居民聚会、休闲等活动使用。
同时,还应建设儿童游乐场、老年活动中心等,满足不同人群的需求。
环境设计方面,我们认为农村的环境美化也是提高农村居民生活质量的重要方面。
首先,建议规划和建设绿化带,将农田和住宅区划分开,营造出宜居的环境。
其次,建议加大垃圾分类和处理的力度,养成良好的环境卫生习惯。
同时,加强农村环境的治理,减少农村污染和噪音,提高农村居民的生活质量。
总之,乡村居民空间设计方案是为了改善农村居民的生活环境,提高农村居民的生活质量。
通过住宅设计、公共空间设计和环
境设计,能够为农村居民提供一个更加宜居、舒适的生活环境,提高农村居民的生活质量。
湖北省农村住宅设计方案图集
湖北省农村住宅设计方案图集
随着城市化进程的加速,越来越多的农民选择在农村地区建造自己的住宅。
湖北省农村住宅设计方案图集是为了帮助农民更好地设计自己的住宅而编写的。
本文将介绍该图集的主要内容和特色,以供读者参考和借鉴。
一、主要内容
该图集主要包括以下几个部分:
1、湖北省农村住宅设计方案:该部分收集了湖北省内优秀的设计方案,包括两层半式、四合院式、吊脚楼式等多种类型。
每个设计方案都详细展示了建筑物的布局、结构、外观和特点,并附有相应的图纸和照片。
2、建筑结构图集:该部分包含了常见的建筑结构图集,包括砖混结构、框架结构、木结构等。
每个结构图集都详细介绍了各种结构的特点、优缺点和适用范围,并附有相应的图纸和照片。
3、建筑材料选用指南:该部分介绍了各种建筑材料的性能、用途和价格等信息,包括木材、砖、混凝土、玻璃等。
同时,还提供了选用建筑材料的技巧和建议,以帮助农民选择适合自己住宅的建筑材料。
4、室内装修设计指南:该部分介绍了室内装修的基本知识和技巧,包括室内布局、色彩搭配、材料选择等方面。
同时,还提供了一些实用的室内装修设计和布置方案,以帮助农民打造舒适、美观的家居环境。
二、特色
该图集具有以下特色:
1、全面性:该图集涵盖了湖北省内优秀的农村住宅设计方案、建筑结构图集、建筑材料选用指南和室内装修设计指南等多个方面,内容全面、系统。
2、实用性:该图集不仅提供了多种优秀的住宅设计方案和建筑结构图集,还详细介绍了建筑材料的性能和选用技巧,以及室内装修的基本知识和技巧,具有很强的实用性。
3、可操作性:该图集中的每个设计方案都详细展示了建筑物的布局、结构、外观和特点,并附有相应的图纸和照片,使得农民可以根据自己的需求选择适合自己的设计方案。
4、指导性:该图集不仅提供了实用的住宅设计方案和建筑结构图集,还针对农民在建造住宅过程中可能遇到的问题提供了指导和建议,使得农民可以更加顺利地完成住宅的建造。
三、总结
湖北省农村住宅设计方案图集是一份非常实用的参考指南,旨在帮助农民更好地设计自己的住宅。
该图集包含了多种优秀的住宅设计方案和建筑结构图集,以及建筑材料的选用技巧和室内装修的基本知识,具有很强的实用性和指导性。
如果大家正在考虑在湖北省农村地区建造自己的住宅,那么这份图集将是一个非常有价值的参考。