申龙7000一体化有机房图纸
- 格式:pdf
- 大小:3.42 MB
- 文档页数:31
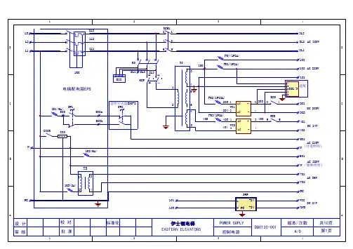
默纳克7000一体机调试参数功能码名称设定范围单位出厂设定现使用值备注F0-00控制方式0:开环矢量1:闭环矢量111F0-01命令源选择0:操作面板控制1:距离控制111F0-03电梯最大运行速度0.1~F0-04m/s 1.600电梯运行速度F0-04电梯额定速度0.1~4.000m/s m/s 1.600电机额定速度F0-05方向选择0:方向不变1:方向取反0电梯运行方向相反时修改F0-07载波频率 2.0~16.0kHz88F1-00输入密码才能修改F1组其他参数F1-00安全密码0~655350出厂密码1000 F1-01额定功率 1.1~132.0KW铭牌电机功率F1-02额定电压0~600V V380铭牌电机电压F1-03额定电流0.00~655.00A25铭牌电机电流F1-04额定频率0.00~99.00Hz Hz50铭牌电机频率F1-05额定转速0~3000rpm rpm1460铭牌电机转速F1-06~F1-10自学习得出F1-11调谐选择1为进入自学习F1-25电机类型0:异步电机1:同步电机11F2-00低速比例增益1~1004040小功率电机调小F2-01低速积分增益0.01~10.000.60.6F2-02切换频率0.00~F2-05HZ 2.0 2.0F2-03高速比例增益1~1003545小功率电机调小F2-04高速积分增益0.01~10.00s0.800.8F2-06电流环KP160~3006060运行抖动加大F2-07电流环Ki110~1003030运行抖动加大F2-08转矩上限0~200%150180重载不能启动加大到200F2-11无称重启动0:无效1:有效00设1时F2-12,F2-13有效F2-12零伺服速度Kp1~10035启动倒溜设定F2-13零伺服速度Ki0.01~10.000.8F2-19力矩减速时间0~500ms350350二次抱闸加大F2-20电流滤波系数0.00~40.000.00改动可改善运行中垂直抖动F3-02加速度0.300~1.300m/s²m/s²0.60.6F3-03加速开始段0.800~3.000s s 2.500 2.500功能码名称设定范围单位出厂设定现使用值备注F3-04加速结束段0.800~3.000s s 2.500 2.500F3-05减速度0.300~1.300m/s²m/s²0.60.6F3-06减速开始段0.800~3.000s s 2.500 2.500F3-07减速结束段0.800~3.000s s 2.500 2.500F3-11检修速度0.08~0.630m/s m/s0.250.15F3-12低速自救速度0.08~F3-11m/s0.10.1UPS速度F3-14救援功能选择0~6553532UPS功能选择F3-18启动零速保持时间0.000~1.000s s0.20.2启动倒溜时调整F3-19抱闸打开延时0.000~1.500s s0.60.6F3-20停车零速保持时间0.000~1.000s s0.30.3停车时调整F3-21抱闸闭合延时0.000~1.500s s0.20.2F4-00平层调整0~60mm3030F4-03电梯当前位置低位0~6553510脉冲数上行:增加下行:减小F5-00称重通道选择0无效,1开关量2模拟量21F5-01X1功能选择上强迫换速11161160无效F5-02X2功能选择上强迫换速21181180无效F5-03X3功能选择多功能输入000F5-04X4功能选择下强迫换速1117117F5-05X5功能选择下强迫换速21191190无效F5-06X6功能选择多功能输入000F5-07X7功能选择上平层信号001001F5-08X8功能选择下平层信号002002F5-09X9功能选择门区信号003F5-10X10功能选择检修信号108108F5-11X11功能选择上行信号009009F5-12X12功能选择下行信号010010F5-13X13功能选择运行接触器反馈106106F5-14X14功能选择封星接触器反馈030030F5-15X15功能选择抱闸输出反馈107107F5-16X16功能选择门锁回路000005F5-17X17功能选择安全回路000004F5-18X18功能选择救援运行信号127127ups常闭输入F5-19X19功能选择提前开门反馈0220有提前开门时设F5-20X20功能选择紧急电动信号0108F5-21X21功能选择左抱闸开关反馈131131F5-22X22功能选择右抱闸开关反馈131131F5-23X23功能选择电机过热132功能码名称设定范围单位出厂设定现使用值备注F5-24X24功能选择多功能输入0140无效超载常开F5-25X25功能选择上限位112112F5-26X25功能选择下限位113113F5-27X27功能选择消防信号011011F5-34Y3功能选择抱闸强激输出1616多功能输出F5-36Y5功能选择消防到基站反馈04消防反馈F5-37Y6功能选择救援自动切换013有ups 时F5-38Y7功能选择多功能输出F5-39Y8功能选择多功能输出F5-40Y9功能选择多功能输出F6-00电梯总楼层F6-01~569根据楼层设F6-02泊梯基站1~F6-0011F6-03消防基站1~F6-0011F6-04锁梯基站1~F6-0011F7-00内召登记0~F6-000设定后一直有效直到设为0或断电结束F7-01上召登记0~F6-000F7-02下召登记0~F6-000F7-04外召使能0:外召有效1:禁止外召00调试使用F7-05开门使能0:允许开门1:禁止开门00调试使用F7-06超载使能0:禁止超载1:允许超载0调试使用F7-07限位使能0:限位有限1:限位无效0调试使用F7-26调试功能选择0:无操作1:井道自学习0井道自学习用F8-01预转矩选择0:无效1:使用预转矩01启动倒溜设F8-02预转矩偏移0.0~100.0%50.0%50%F8-03驱动侧增益0.00~2.000.600.6F8-04制动侧增益0.00~2.000.600.6F8-09电梯额定载重300~9999kg 1000额定载重F8-21到站钟提前0~10s1.0 1.0到站钟提前时间F8-24指令2开始地址0~560F9-00空闲返基站时间0-240min 10F9-01节能控制时间0~240min 2F9-02打滑判断时间0~45s 4545单层距高设0FA-00FA 组安全密码0~6553501000FA-15程序控制选择Bit0:超短层非标Bit5:井道自学习45s 检测取消Bit6平层调整功能启动bit6后在Fr 中可每层分开调平层功能码名称设定范围单位出厂设定现使用值备注Fb-00门机数量1~211双门设2Fb-02门1服务层10~65535(设定1~16层))6553565535前门设置Fb-03门1服务层20~65535(设定17~31层))6553565535前门设置Fb-06门2服务层10~65535(设定1~16层))6553563556后门设置Fb-07门2服务层20~65535(设定17~31层))65535后门设置Fb-15外召开门保持时间1~30s55Fb-16内召开门保持时间1~30S33E0~E9,FC组为故障信息(代码前两位为楼层,后两位为故障代码)FC-01第20次故障代码0~61990故障信息FC-46第11次故障代码0~61990故障信息E0-00第1次故障代码0~61990最近一次Fd-00并联数量1~311并联设Fd-01并联编号1~311FE-01~FE-56为1~56楼层显示设置FE-01楼层1显示00~09:显示0~910显示A19011901FE-02楼层2显示11显示B18显示-19021902FE-03楼层3显示19无显示26显示F19031903FE-04楼层4显示大于40无显示19041904FH-00输入密码才能修改FH组其他参数FH-00FH组安全密码0~655350出厂密码1000FH-01编码器选择0:sin/cos编码器4:ABZ编码器01387编码器设0异步设4FH-02编码器脉冲0~10000PPR20482048FH-04PG原点角度0.0~359.9度0相位角自学习得出FL-00轿顶板输入类型选择0~5113200常闭1常开FP-01参数更新0:无1:恢复出厂参数2:清除记忆信息3:恢复逻辑板参数4:恢复所有参数1‘00FP-02用户设定检查0:无效1:有效(查看与默认值不同参数)100FF-01主板功率选择更换主板时确认FF-02保护温度确认错报过热保护时确认一、主机自学习主机自学习前清除故障代码㈠、异步主机自学习前确认电机参数(F1-25=0,F1-01、F1-02、F1-03、F1-04、F1-05)和编码器参数(FH-01、FH-02),F0-01=0控制方式选为面板控制,F1-11=1,面板显示TUNE,按下运行接触器使变频器输出端到电机回路导通,按下面板RUN键,开始自学习,面板TUNE灯灭自学习结束,将F0-01=1恢复距离控制。
默纳克7000一体机调试参数功能码名称设定范围单位出厂设定现使用值备注F0-00控制方式0:开环矢量1:闭环矢量111F0-01命令源选择0:操作面板控制1:距离控制111F0-03电梯最大运行速度0.1~F0-04m/s 1.600电梯运行速度F0-04电梯额定速度0.1~4.000m/s m/s 1.600电机额定速度F0-05方向选择0:方向不变1:方向取反0电梯运行方向相反时修改F0-07载波频率 2.0~16.0kHz88F1-00输入密码才能修改F1组其他参数F1-00安全密码0~655350出厂密码1000 F1-01额定功率 1.1~132.0KW铭牌电机功率F1-02额定电压0~600V V380铭牌电机电压F1-03额定电流0.00~655.00A25铭牌电机电流F1-04额定频率0.00~99.00Hz Hz50铭牌电机频率F1-05额定转速0~3000rpm rpm1460铭牌电机转速F1-06~F1-10自学习得出F1-11调谐选择1为进入自学习F1-25电机类型0:异步电机1:同步电机11F2-00低速比例增益1~1004040小功率电机调小F2-01低速积分增益0.01~10.000.60.6F2-02切换频率0.00~F2-05HZ 2.0 2.0F2-03高速比例增益1~1003545小功率电机调小F2-04高速积分增益0.01~10.00s0.800.8F2-06电流环KP160~3006060运行抖动加大F2-07电流环Ki110~1003030运行抖动加大F2-08转矩上限0~200%150180重载不能启动加大到200F2-11无称重启动0:无效1:有效00设1时F2-12,F2-13有效F2-12零伺服速度Kp1~10035启动倒溜设定F2-13零伺服速度Ki0.01~10.000.8F2-19力矩减速时间0~500ms350350二次抱闸加大F2-20电流滤波系数0.00~40.000.00改动可改善运行中垂直抖动F3-02加速度0.300~1.300m/s²m/s²0.60.6F3-03加速开始段0.800~3.000s s 2.500 2.500功能码名称设定范围单位出厂设定现使用值备注F3-04加速结束段0.800~3.000s s 2.500 2.500F3-05减速度0.300~1.300m/s²m/s²0.60.6F3-06减速开始段0.800~3.000s s 2.500 2.500F3-07减速结束段0.800~3.000s s 2.500 2.500F3-11检修速度0.08~0.630m/s m/s0.250.15F3-12低速自救速度0.08~F3-11m/s0.10.1UPS速度F3-14救援功能选择0~6553532UPS功能选择F3-18启动零速保持时间0.000~1.000s s0.20.2启动倒溜时调整F3-19抱闸打开延时0.000~1.500s s0.60.6F3-20停车零速保持时间0.000~1.000s s0.30.3停车时调整F3-21抱闸闭合延时0.000~1.500s s0.20.2F4-00平层调整0~60mm3030F4-03电梯当前位置低位0~6553510脉冲数上行:增加下行:减小F5-00称重通道选择0无效,1开关量2模拟量21F5-01X1功能选择上强迫换速11161160无效F5-02X2功能选择上强迫换速21181180无效F5-03X3功能选择多功能输入000F5-04X4功能选择下强迫换速1117117F5-05X5功能选择下强迫换速21191190无效F5-06X6功能选择多功能输入000F5-07X7功能选择上平层信号001001F5-08X8功能选择下平层信号002002F5-09X9功能选择门区信号003F5-10X10功能选择检修信号108108F5-11X11功能选择上行信号009009F5-12X12功能选择下行信号010010F5-13X13功能选择运行接触器反馈106106F5-14X14功能选择封星接触器反馈030030F5-15X15功能选择抱闸输出反馈107107F5-16X16功能选择门锁回路000005F5-17X17功能选择安全回路000004F5-18X18功能选择救援运行信号127127ups常闭输入F5-19X19功能选择提前开门反馈0220有提前开门时设F5-20X20功能选择紧急电动信号0108F5-21X21功能选择左抱闸开关反馈131131F5-22X22功能选择右抱闸开关反馈131131F5-23X23功能选择电机过热132功能码名称设定范围单位出厂设定现使用值备注F5-24X24功能选择多功能输入0140无效超载常开F5-25X25功能选择上限位112112F5-26X25功能选择下限位113113F5-27X27功能选择消防信号011011F5-34Y3功能选择抱闸强激输出1616多功能输出F5-36Y5功能选择消防到基站反馈04消防反馈F5-37Y6功能选择救援自动切换013有ups 时F5-38Y7功能选择多功能输出F5-39Y8功能选择多功能输出F5-40Y9功能选择多功能输出F6-00电梯总楼层F6-01~569根据楼层设F6-02泊梯基站1~F6-0011F6-03消防基站1~F6-0011F6-04锁梯基站1~F6-0011F7-00内召登记0~F6-000设定后一直有效直到设为0或断电结束F7-01上召登记0~F6-000F7-02下召登记0~F6-000F7-04外召使能0:外召有效1:禁止外召00调试使用F7-05开门使能0:允许开门1:禁止开门00调试使用F7-06超载使能0:禁止超载1:允许超载0调试使用F7-07限位使能0:限位有限1:限位无效0调试使用F7-26调试功能选择0:无操作1:井道自学习0井道自学习用F8-01预转矩选择0:无效1:使用预转矩01启动倒溜设F8-02预转矩偏移0.0~100.0%50.0%50%F8-03驱动侧增益0.00~2.000.600.6F8-04制动侧增益0.00~2.000.600.6F8-09电梯额定载重300~9999kg 1000额定载重F8-21到站钟提前0~10s1.0 1.0到站钟提前时间F8-24指令2开始地址0~560F9-00空闲返基站时间0-240min 10F9-01节能控制时间0~240min 2F9-02打滑判断时间0~45s 4545单层距高设0FA-00FA 组安全密码0~6553501000FA-15程序控制选择Bit0:超短层非标Bit5:井道自学习45s 检测取消Bit6平层调整功能启动bit6后在Fr 中可每层分开调平层功能码名称设定范围单位出厂设定现使用值备注Fb-00门机数量1~211双门设2Fb-02门1服务层10~65535(设定1~16层))6553565535前门设置Fb-03门1服务层20~65535(设定17~31层))6553565535前门设置Fb-06门2服务层10~65535(设定1~16层))6553563556后门设置Fb-07门2服务层20~65535(设定17~31层))65535后门设置Fb-15外召开门保持时间1~30s55Fb-16内召开门保持时间1~30S33E0~E9,FC组为故障信息(代码前两位为楼层,后两位为故障代码)FC-01第20次故障代码0~61990故障信息FC-46第11次故障代码0~61990故障信息E0-00第1次故障代码0~61990最近一次Fd-00并联数量1~311并联设Fd-01并联编号1~311FE-01~FE-56为1~56楼层显示设置FE-01楼层1显示00~09:显示0~910显示A19011901FE-02楼层2显示11显示B18显示-19021902FE-03楼层3显示19无显示26显示F19031903FE-04楼层4显示大于40无显示19041904FH-00输入密码才能修改FH组其他参数FH-00FH组安全密码0~655350出厂密码1000FH-01编码器选择0:sin/cos编码器4:ABZ编码器01387编码器设0异步设4FH-02编码器脉冲0~10000PPR20482048FH-04PG原点角度0.0~359.9度0相位角自学习得出FL-00轿顶板输入类型选择0~5113200常闭1常开FP-01参数更新0:无1:恢复出厂参数2:清除记忆信息3:恢复逻辑板参数4:恢复所有参数1‘00FP-02用户设定检查0:无效1:有效(查看与默认值不同参数)100FF-01主板功率选择更换主板时确认FF-02保护温度确认错报过热保护时确认一、主机自学习主机自学习前清除故障代码㈠、异步主机自学习前确认电机参数(F1-25=0,F1-01、F1-02、F1-03、F1-04、F1-05)和编码器参数(FH-01、FH-02),F0-01=0控制方式选为面板控制,F1-11=1,面板显示TUNE,按下运行接触器使变频器输出端到电机回路导通,按下面板RUN键,开始自学习,面板TUNE灯灭自学习结束,将F0-01=1恢复距离控制。
设计规范第一章设计参考规范及标准 (6)一、通用设计规范: (6)二、专用设计规范: (6)三、专用设计标准图集: (6)第二章设计参数 (7)一、商业和公共建筑物的空调设计参数ASHRAE (7)二、舒适空调之室内设计参数日本 (8)三、新风量 (9)1、每人的新风标准ASHRAE (9)2、最小新风量和推荐新风量UK (10)3、各类建筑物的换气次数UK (10)4、各场所每小时换气次数 (10)4、每人的新风标准UK (11)5、考虑节能的基本新风量(1/s人)(日本) (12)6、办公室环境卫生标准日本 (12)7、民用建筑最小新风量 (12)第三章空调负荷计算 (15)一、不同窗面积下,冷负荷之分布% (15)二、负荷指标(估算)(仅供参考) (15)三、空调冷负荷法估算冷指标。
空调冷负荷法估算冷指标(W/m2空调面积)见下表 (16)四、按建筑面积冷指标进行估算建筑面积冷指标 (18)五、建筑物冷负荷概算指标香港 (18)六、各类建筑物锅炉负荷估算W/m3℃ (20)七、热损失概算W/m℃ (20)八、冷库冷负荷概算指标 (20)第四章风管系统设计 (21)一、通风管道流量阻力表 (21)1、缩伸软管摩擦阻力表 (21)2、镀锌板风管摩擦阻力表 (21)二、室内送回风口尺寸表 (24)1、风口风量冷量对应表 (24)2、不同送风方式的风量指标和室内平均流速ASHRAE (25)三、室内风管风速选择表 (25)1、低速风管系统的推荐和最大流速m/s (25)2、低速风管系统的最大允许速m/s (25)3、通风系统之流速m/s (26)四、室内风口风速选择表 (26)1、送风口风速 (26)2、以噪音标准控制的允许送风流速m/s (27)3、推荐的送风口流速m/s (27)4、送风口之最大允许流速m/s (27)5、回风口风速 (27)6、回风格栅的推荐流速m/s (28)8、逗留区流速与人体感觉的关系 (28)9、顶棚散流器送风量 (28)10、侧送风口送风量 (29)五、室内风口的简单布臵 (31)1、送风口布臵间距 (31)2、标准型号风盘所接散流器的尺寸表-办公室 (31)3、散流器布臵 (31)4、空调房间允许最大送风温差℃ (32)5、工艺性空气调节空调房间允许最大送风温差 (32)6.1、厨房通风问题 (32)6.2如何确定厨房的通风量 (32)6.3厨房通风设计中的几个问题 (34)7、消声器、静压箱总结 (37)8.风管贴吸音材料风道的衰减量(日本) (38)9.风管的自然衰减量(只有直风道dB/m,其它都是dB) (38)六、防排烟设计 (39)第五章管道系统设计 (43)一、空调管路系统的设计原则 (43)二、管路系统的管材 (44)三、供回水总管上的旁通阀与压差旁通阀的选择 (44)四、空调水系统管径的确定 (46)五、冷冻水泵扬程估算方法 (47)1、水泵扬程简易估算法 (48)2、冷冻水泵扬程实用估算方法 (48)3、水泵扬程设计 (50)六、冷却水系统的设计 (50)1、冷却水系统的补水量 (50)2、冷却水循环系统设计中应注意的几个问题: (51)七、冷凝水管道设计 (51)八、分汽缸、分水器、集水器尺寸的确定 (52)九、膨胀水箱的容积计算 (55)十、空压管道管径选择表 (57)十一、空调水处理系统 (58)十二、保温 (58)十三、阀门选用 (59)第六章空调设备选型 (60)一、机组选型 (60)二、机组选型案例 (60)三、辅助设备 (61)1、冷却塔 (61)2、水泵的选型: (61)3、热泵中央空调系统水量计算 (62)4、冷冻水和冷却水流量估算 (63)5、设备水压力降估算(日本) (63)第七章自控系统设计 (64)第八章材料、设备资料 (64)一、钢板和铝板的厚度和重量ASHRAE (64)二、角钢和角铝的规格和重量ASHRAE (64)三、计算单位换算 (65)四、常用液体的密度(单位:103千克/米3,未注明者为常温下) (66)五、空气调节常用计算公式 (67)六、钢材理论重量计算 (69)七、专业英语 (70)第九章耗电量、机房面积 (83)1、水源热泵系统设备耗电量比例 (83)2、医院耗电量比例 TRANE (83)3、各种系统分项造价占总造价的百分率%(近似) (83)4、冷水机组和附属设备估算(△t=5℃) (83)5、空调面积占建筑面积比例 (84)6、空调机房建筑面积概算指标 (84)7、空调设备所占的建筑面积百分率% (85)8、设备层布臵原则: (85)第十章参考实例 (86)第十一章暖通空调中存在的问题及解决办法、图纸要求 (86)一、贯彻执行暖通设计规范、标准方面存在的问题 (86)1.1 室内外空气计算参数不符合规范要求 (86)1.2 供暖热负荷计算有漏项和错项 (86)1.3 卫生间散热器型式选择不妥 (86)1.4 楼梯间散热器立、支管未单独配臵 (87)1.5 供暖管道敷设坡度不符合规范要求 (87)1.6 厨房操作间通风存在问题 (87)1.7 膨胀水箱与热(冷)水系统的连接不符合规范要求 (87)1.8 通风空调系统防火阀的设臵不符合规范要求 (87)1.9 防烟楼梯间前室送风口风量的确定有问题 (87)1.10 误将防烟分区排风量的计算混同于排烟风机风量的计算 (88)1.11 高层建筑排烟系统排烟口选型不当 (88)二、在工程设计中存在的问题 (88)2.1 供暖入口设臵过多 (88)2.2 供暖系统设计不合理 (88)2.3 排风系统设计不合理 (89)2.4 空调系统的选择不合理 (89)2.5 厕所采用风机盘管时未加新风 (89)2.6 平衡阀的设臵与口径选择存在问题 (89)2.7 系统分区不当造成失败 (89)2.8、双风机系统设计问题 (90)3.0 排气系统设计诸问题 (92)三、设计图纸方面存在的问题 (93)3.1 设计说明内容不完整 (93)3.2 平面图深度不够,有些应该绘制的内容遗漏 (93)3.3 系统图深度不够 (94)3.4 锅炉房设计过于简化 (94)3.5 计算书内容不全甚至全部空白 (94)3.6 暖通空调设备未编号列表表示,图画繁杂不清 (94)3.7 平面图、剖面图、系统图不一致 (94)3.8 设计图纸与计算书不一致 (94)四、问题原因及克服方法 (95)五、施工图设计深度要求 (95)设计说明、施工说明、图例和设备表 (95)设备平面图 (95)剖面图 (96)通风、空调、制冷机房平面图 (96)通风、空调、制冷机房剖面图 (96)暖通设计中的系统图、立管图 (96)详图 (96)计算书(供内部使用,备查) (96)第一章设计参考规范及标准中央空调主要参考以下的规范及标准:一、通用设计规范:1.《采暧通风及空气调节设计规范》( GBJI19-87)2.《采暖通风及至气调节制图标准》(GBJ114-88)3.《建筑设计防火现范》(GBJ116-87)4、《高层民用建筑设计防火现他》( GBJ0045-95)5.《民用建筑节能设计标准(采暖居住建筑部分)》(JGJ26-95)二、专用设计规范:1、《宿舍建筑设计规范》(JGJ36-87)2、《住宅设计规范》(GB50096-99)3.《办公建筑设计规范》(JG67-89)4、〈旅馆建筑设计规范〉(JGJ67-89)5.《旅游旅馆建筑热土与空气调节节能设计标准》(GB50189-93)6、其它专用设计规范三、专用设计标准图集:1.《暖通空调标准图集》2.《暖通空调设计选用手册》(上、下册)3、其它有关标准第二章设计参数一、商业和公共建筑物的空调设计参数ASHRAE二、舒适空调之室内设计参数日本三、新风量1、每人的新风标准ASHRAE2、最小新风量和推荐新风量UK3、各类建筑物的换气次数UK4、各场所每小时换气次数依人数计算换气量4、每人的新风标准UK5、考虑节能的基本新风量(1/s人)(日本)6、办公室环境卫生标准日本7、民用建筑最小新风量《空调通风工程系统运行管理规范》(征求意见稿):空调通风系统运行期间,新风量宜满足下表的规定值,或者满足空气调节房间内二氧化碳浓度小于0.1%。
门电机U V WJ10-5J10-6AC1AC23637BL2000-CZB门电机U V WJ9-2J9-3AC1AC22627BL2000-CZB副 门 门 机主 门 门 机(02M)(02M)(02M)(02M)AC1AC2开门限位关门限位公共端关门信号开门信号公共端AC1AC2开门限位关门限位公共端关门信号开门信号公共端696862646362门机控制器门机控制器001.001(8)(9)(7)(5)(6)(4)(1)(2)(3)(8)(9)(7)(5)(6)(4)(1)(2)(3)设计审核注明SHEET 08 OF 14G20系列微机控制电梯----门机控制回路苏州巨立电梯有限公司日 期08/03/01G20系列电梯通用图版本8.01洪铜徽页 码随行通讯电缆呼梯通讯电缆GC--1引脚符号位置1234524T GND1C+C-(E)04T 04T 04U 04U屏蔽随行电缆GC--2引脚符号位置12345001537172678910826211121363U1V1W1N U2V2W2序号符号1234567电源端子位置01G 01G 01G 01B 01T 01T 01T20018706小端子台序号符号1111130416181021253B1B2限位封线门锁封线安全封线检修封线电锁封线对讲电源08123456*789101112131415161718192021备用001抱闸限速器#1#2#3#4TB1TB204F 04G 04O 04P 04H 04J 04K 04M 04M 03S 03G 03S03B03P 04G 04F04W11G 11G 03P 03M 03H03H 04K 11K 11K 11K 646869B1B2#511K04L 04M 04N11G 11G 9799消防联动并联/群控CB-GND1CB+04O 04O04W04W 04W223404Q2324252627注:1)带△的信号有紧急运行操作功能时接8910410302W 02O Y 型同步曳04X28与001与001引机时接层线141003K 03Q 29302)*7--如无盘手轮开关,请将12与14短接小端子台序号符号TB2329004T与001接抱闸1011107A 107B 02Q 02Q31WK104X检测开关3)用Y 型曳引机时注意调试结束后拆除WK1、WK2之间的短接线。