冷热源课程设计---大楼制冷机房设计
- 格式:doc
- 大小:395.00 KB
- 文档页数:25
如何做冷热源课程设计一、课程目标知识目标:1. 学生能理解冷热源的基本概念,掌握冷热源的种类和特点。
2. 学生能描述冷热源在建筑节能中的应用,了解其对环境的影响。
3. 学生能掌握冷热源系统设计的基本原则和步骤。
技能目标:1. 学生能运用所学知识,分析建筑物的冷热源需求,选择合适的冷热源系统。
2. 学生能运用设计原则,完成简单的冷热源系统设计,并进行合理性分析。
3. 学生能通过查阅资料,了解我国冷热源行业的发展趋势,为实际工程提供参考。
情感态度价值观目标:1. 学生能认识到冷热源系统在节能环保方面的重要性,树立绿色环保意识。
2. 学生能积极参与课堂讨论,培养合作精神和问题解决能力。
3. 学生能关注我国冷热源行业的发展,激发对相关领域的学习兴趣。
课程性质:本课程为建筑环境与能源应用工程的专业课程,旨在帮助学生掌握冷热源系统的基本知识和设计方法。
学生特点:学生具备一定的物理学基础和建筑环境知识,但对冷热源系统的了解有限。
教学要求:注重理论与实践相结合,提高学生的实际操作能力和创新能力,培养具备绿色环保意识的工程师。
通过本课程的学习,使学生能够达到上述课程目标,并为后续课程和实际工作打下坚实基础。
二、教学内容1. 冷热源基础知识- 冷热源概念与分类- 冷热源系统的工作原理- 冷热源设备性能参数2. 冷热源系统设计原理- 冷热源系统设计的基本原则- 冷热源设备选型与配置- 系统运行调节与优化3. 冷热源系统设计方法- 冷热负荷计算- 冷热源系统形式选择- 系统设计步骤与案例分析4. 冷热源在建筑节能中的应用- 节能型冷热源技术- 冷热源系统在建筑节能中的贡献- 环境影响评价5. 冷热源行业发展趋势- 我国冷热源行业政策与发展趋势- 新型冷热源技术简介- 行业发展对专业人才的需求教学内容安排与进度:第一周:冷热源基础知识第二周:冷热源系统设计原理第三周:冷热源系统设计方法第四周:冷热源在建筑节能中的应用第五周:冷热源行业发展趋势本教学内容基于教材相关章节,结合课程目标进行组织,旨在确保学生掌握冷热源系统的基本知识和设计方法,同时关注行业发展趋势。
建筑冷热源课程设计说明书课程设计说明书。
课程名称,建筑冷热源工程。
课程简介:建筑冷热源工程是建筑工程专业的重要课程之一,旨在培养学生对建筑冷热源系统的设计、安装和运行维护等方面的理论和实践能力。
本课程将涵盖建筑冷热源系统的基本原理、设备选型、节能技术等内容,旨在帮助学生掌握建筑冷热源工程的相关知识和技能,为其未来从事相关工作打下坚实的基础。
课程目标:1. 理解建筑冷热源系统的基本原理和工作原理;2. 掌握建筑冷热源系统的设计、安装和运行维护技术;3. 熟悉建筑冷热源系统中常用设备的选型和使用;4. 了解建筑节能技术在冷热源工程中的应用;5. 培养学生的团队合作精神和实际动手能力。
课程大纲:第一部分,建筑冷热源系统基础知识。
冷热源系统概述。
空调原理及系统组成。
制冷剂基础知识。
热泵技术原理。
第二部分,建筑冷热源系统设计与安装。
冷热负荷计算。
冷热源设备选型。
管道布局与安装。
设备调试与运行。
第三部分,建筑节能技术在冷热源工程中的应用。
高效设备选用。
节能控制策略。
可再生能源在冷热源系统中的应用。
教学方法:本课程将采用理论授课、实验演示、案例分析和实践操作相结合的教学方法。
通过理论课程的学习,学生将建立起对建筑冷热源系统的理论框架;实验演示和实践操作将帮助学生加深对课程内容的理解,并培养其实际动手能力;案例分析将帮助学生将理论知识应用到实际工程中。
考核方式:学生的考核将包括平时表现、实验报告、课堂测试和期末考试。
其中,实验报告和课堂测试将主要考察学生对建筑冷热源工程实际操作能力和理论知识的掌握程度;期末考试将全面考核学生对整个课程的掌握情况。
希望通过本课程的学习,学生能够全面了解建筑冷热源工程领域的知识,掌握相关技能,为将来从事相关工作做好充分的准备。
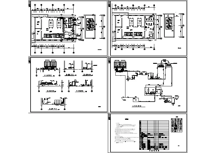
冷冻机房设计集团文件版本号:(M928-T898-M248-WU2669-I2896-DQ586-M1988)冷冻机房设计 2012届建工系系专业: 建筑环境与设备工程学号:学生姓名:指导教师: 董圆圆完成日期 2015年1月1日目录第一章设计任务1.1建筑资料1.2 设计任务本楼建筑面积为15000m2,建筑高度为54.3m,一至三层为公共区域,主要包括大厅、餐厅、超市等,一层层高5.1米,二层层高4.5米,三层层高5.1米,四至十四层为客房,层高为3.6m,本楼空调冷负荷QL=1740KW,空调热负荷为QR=1500KW.本工程设计范围和内容为本楼的空调用冷热源系统设计1.3设计步骤查阅资料,确定制冷机房设计冷负荷(1)选择定型冷水机组并确定台数定型冷水机组有风冷冷水机组和水冷冷水机组两大类,水冷冷水机组又有蒸汽压缩式冷水机组和吸收式冷水机组两种,通过技术经济分析确定所选用的冷水机组种类。
(2)选择冷却塔材质推荐使用玻璃钢,注意冷却塔的设计条件应与冷水机组匹配,否则应进行修正。
(3)布置冷却水管道、冷冻水管道确定管径,并进行阻力计算,选择过滤器、电子水处理仪、集水器、分水器(用户4个环路)等。
(4)选择冷却水泵和冷冻水泵根据流量和扬程进行确定,并考虑备用泵。
(5)选择确定定压补水设备(6)编写设计计算说明书(7)绘制机房平面图、系统图和局部详图第二章制冷机房制冷机房是整个中央空调系统的冷(热)源中心,同时又是整个中央空调系统的控制调节中心。
中央机房一般由冷水机组、冷水泵、冷却水泵、集水缸、分水缸和控制屏、换热器等装置组成。
2.1 制冷机房的位置选择制冷机房通常靠近空调机房,氟利昂制冷设备可以设置在空调机房内,规模小的制冷机房一般附设在其他建筑内,规模较大的制冷机房(特别是氨制冷机房)宜单独修建。
制冷机房应设置在靠近空气调节负荷中心,一般应充分利用建筑物的地下室。
对于超高层建筑,也可设在设备层或屋顶上。
冷热源工程课程设计摘要一、课程目标知识目标:1. 让学生掌握冷热源工程的基本原理,理解各种冷热源设备的工作过程及其能量转换机制。
2. 使学生了解冷热源系统在建筑节能中的应用,掌握冷热源系统的设计原则和评价方法。
3. 引导学生了解我国能源政策及节能减排的重要性,认识冷热源工程在可持续发展中的作用。
技能目标:1. 培养学生运用所学知识分析和解决实际工程问题的能力,能够进行简单的冷热源系统设计。
2. 提高学生查阅相关资料、技术手册和标准规范的能力,为将来从事工程技术工作打下基础。
3. 培养学生团队协作能力和沟通技巧,能够就冷热源工程问题进行有效的讨论和交流。
情感态度价值观目标:1. 激发学生对冷热源工程领域的兴趣,培养他们探索科学技术的热情。
2. 引导学生树立节能减排、可持续发展的意识,增强环保责任感。
3. 培养学生严谨、务实的工程态度,提高他们在实际工程中的职业素养。
本课程针对高年级学生,结合学科特点和学生实际,注重理论知识与工程实践相结合,旨在培养具备创新精神和实践能力的高级工程技术人才。
通过本课程的学习,使学生能够更好地适应未来工程技术发展的需求,为我国节能减排事业贡献力量。
二、教学内容1. 冷热源工程基本原理:包括能量守恒定律、热力学第一定律和第二定律在冷热源设备中的应用,以及制冷剂和载热介质的热物理性质。
教材章节:第一章《冷热源工程基础》2. 冷热源设备工作原理及性能:详细讲解压缩机、蒸发器、冷凝器、膨胀阀等主要设备的工作原理及性能参数。
教材章节:第二章《制冷设备》3. 冷热源系统设计原则及评价方法:介绍冷热源系统的设计流程、原则以及评价方法,包括能效比、制冷量等指标。
教材章节:第三章《冷热源系统设计》4. 建筑节能中的应用:分析冷热源系统在建筑节能中的应用,讲解节能技术及措施。
教材章节:第四章《建筑节能与冷热源工程》5. 节能减排与可持续发展:阐述我国能源政策、节能减排的重要性以及冷热源工程在可持续发展中的作用。
机房制冷方案在现代信息化社会中,机房作为企业和组织存储和处理数据的重要地点,其正常运行对于企业的稳定运营至关重要。
然而,机房内的高密度设备和长时间运行往往会引起大量的热量积聚,容易导致设备过热,从而影响其性能和寿命。
因此,机房制冷方案成为机房设计中一个关键的考虑因素。
一、机房制冷需求分析在制定机房制冷方案前,首先需要进行机房制冷需求分析。
该分析旨在确定机房的热量负荷,根据机房设备的功耗和数量、机房的面积和布局以及周围环境的气温和湿度等因素,来估算机房的制冷需求。
只有清楚了解机房的实际需求,才能选择合适的制冷设备和控制方案。
二、机房制冷技术方案1. 空调制冷技术空调制冷技术是常见的机房制冷技术之一。
通过安装空调设备,将机房内的热量排放到室外,从而降低机房内的温度。
空调制冷技术具有成熟稳定、调节范围广、操作简单等优点。
根据机房的实际需求,可以选择中央空调系统或分体空调系统,以满足机房内的制冷需求。
2. 水冷制冷技术水冷制冷技术是一种应用较广泛的机房制冷技术。
通过水冷设备循环流动,将机房内的热量带走,然后通过热交换器将热量排放出去。
水冷制冷技术具有较高的制冷效果和能效比,适用于高密度设备的机房制冷。
同时,水冷制冷技术也要求机房内有足够的水源供应和排水系统。
3. 直接空气制冷技术直接空气制冷技术是一种较为新颖的机房制冷技术。
通过利用直接空气循环,将机房内的热量带走,降低机房温度。
该技术具有节能、环保、易于维护等特点,适用于中小型机房的制冷需求。
直接空气制冷技术通常需要配备风机和空气净化设备,以保证制冷效果和空气质量。
三、机房制冷设备选择选择合适的机房制冷设备对于机房的正常运行至关重要。
根据机房的需求和制冷技术方案,可以选择适合的制冷设备。
制冷设备的选择应考虑以下几个方面:1. 制冷能力:根据机房的热量负荷和制冷需求,确定制冷设备的制冷能力。
制冷能力的选择要满足机房的需求,同时避免过大或过小。
2. 能效比:制冷设备的能效比是衡量其能效性能的重要指标。
第一章冷热源设计初步资料1.1课程设计题目毕节市某大厦冷热源机房设计1.2课程设计原始资料1.2.1工程概况本工程是集商业、办公、酒店客房、地下设备用房和地下车库于一体的多功能高层公共建筑,位于大城市中心重要街道一侧,水、电、燃气供应等市政设施完备,总建筑高度77.5米,总建筑面积34216m2,其中地上建筑面积29411m2,地下建筑面积6179m2。
该建筑为一类建筑,抗震设防烈度为6度,主楼按一级耐火等级,结构体系为框架筒体。
1.2.2 大楼冷热负荷数据大楼供冷总负荷为5200kW,所有冷源由制冷机房提供,参数为7℃/12℃。
大楼供热总负荷为4800kW,所有热源由锅炉房提供,参数为60℃/50℃。
按照《民用建筑热工设计规范》(GB50176-2016)可知,毕节地区处于温和地区,因此酒店卫生热水系统热负荷取360kW。
1.2.3 气象资料本次课程设计以毕节为设计城市,按照《民用建筑供暖通风与空气调节设计规范》(GB50736-2012)可知下列参数:1)海拔高度:1510.6m2)夏季参数:大气压:84420Pa,空调室外干球温度:29.2℃,空调室外湿球温度:21.8℃,室外平均风速:0.9m/s,主导风向:C SSE。
3)冬季参数:大气压:85090Pa,室外供暖计算干球温度:-1.7℃,室外空调计算干球温度:-3.5℃,室外平均风速:0.6m/s,主导风向:C SSE。
4)供暖天数:以日平均温度≤+5℃来计算有67天,以日平均温度≤+8℃来计算有112天,供暖期日平均温度:以日平均温度≤+5℃来计算为3.4℃,以日平均温度≤+8℃来计算为4.4℃。
本次设计供暖天数及供暖期日平均温度均采用以日平均温度≤+5℃计算的数据,分别为67天、3.4℃。
1.2.4 水文地质资料地质:以喀斯特地形和高山丘陵为主。
区内地势西高东低,山峦重叠,河流纵横,高原、山地、盆地、谷地、平坝、峰丛、槽谷、洼地、岩溶胡等交错其间。
《冷热源工程课程设计》任务书专业:建筑环境与设备工程课程名称:《冷热源工程》嘉兴学院建筑工程学院嘉兴学院教务处一、设计题目Xx制冷机房设计二、原始资料1、空调冷负荷:分别为:4.2MW(空调总面积30000m2),2.8 MW(空调总面积20000m2),2.0 MW(空调总面积15000m2),1.5MW(空调总面积12000m2),0.8MW (空调总面积6500m2)2、当地可用的能源情况:电:价格:1.0元/度天然气:价格:2.5元/m3;热值:33.45MJ/m3;蒸汽:价格:80元/吨;蒸汽压力为:0.8MPa燃油:价格:6.76元/升;低位发热量均为:42840kJ/kg3、冷冻机房外冷冻水管网总阻力分别为0.45 Mpa;0.40 Mpa;0.35MPa;0.3MPa;0.15 MPa4、土建资料制冷机房建筑平面图(见附图),其中水冷式冷水机组冷却塔高度分别为:30m;25 m;20 m;15 m;10 m三、设计内容和要求本课程设计内容要求包括设计说明书和设计图纸,其详述如下:1、设计计算说明书要求包括如下各项内容及要求:1)内容:设计题目目录(1)设计原始资料(2) 冷水机组选型(3) 分水器和集水器的选择(4) 膨胀水箱配置与计算(5) 冷冻水系统的设备选型和计算(6) 冷却水系统的设备选型和计算(7) 参考文献(8)个人小结2)要求:说明书的编写应保证设备计算分析的条件充分、过程的层次分明及结果的数据准确。
所采用的主要公式应给出出处。
对所选用设备、确定的方案给出简要的技术经济分析。
说明书要求用统一的A4纸打印。
2、设计图纸要求包括下列图纸(1)设计施工说明和设备表1张(图幅自定)(2)平面图1张(图幅同给定的机房建筑平面图,比例为1:100)(3)系统图1张(图幅自定,比例自定)(4)主剖面图或局部放大图1张(图幅自定,比例1:20或1:50等)设计图纸内容的要求:把所选择的各设备及管道合理地布置在机房平面图上,在机房平面图上应给出文字的设计说明,主要针对图面上无法清晰表达的,而又需要用户完全清楚的内容(如:管材、防腐、保温等);.图纸上应注明:水管尺寸(mm),设备与局部构件编号,水管和设备的定位尺寸(mm),设备、局部构件及材料的明细表(应按编号顺序由上至下列表于图纸上),标高(m);四、设计时间安排设计准备1天,计算分析:3天;布置绘图:4天;答辩、整理说明书、图纸及交图:2天;交图时,要求把图纸折叠成与说明书一样大。
《冷热源工程》课程设计任务书一、课程的性质和目的《冷热源工程》课程设计是培养学生运用本课程所学的理论和技术知识,解决工程实际问题能力的重要实践教学环节,通过针对某一冷源、热源工程的实际设计训练,使学生掌握空调用冷热源系统的常用理论基础知识和技术原理,使学生学会如何入手处理一个实际工程问题,并将基础理论和专业技术知识应用到工程设计中,了解与工程建设相关的法律、法规及行业规程,学会工程设计方法,学会设计规范与标准的正确使用,学会运用工程图纸准确表述设计意图,培养学生综合运用所学的理论知识,解决工程设计问题的能力。
二、课程设计任务1.课程设计题目:某建筑空调系统冷热源工程设计;2.原始条件:建筑条件图;3.设计任务:根据建筑的性质、功能和使用要求,制定适用、合理、可靠、经济的冷热源系统方案。
三、设计内容、步骤与时间安排1.查找收集设计相关资料,包括设计规范,设计手册,相关书籍,标准图集,设计地点相关设计规定和要求等;熟悉建筑图纸,1天;2.根据设计条件,采用负荷指标计算冷热负荷,分析负荷特性,2天;3.根据相关条件初定不同冷热源系统方案,进行方案比较优化,确定最终冷热源系统方案,3天;4.选择冷热水机组型号和台数,确定冷热源辅助系统形式,进行设备选择,2天;5.确定冷热源机房布置方案,2天;6.确定空调水系统形式,进行水力计算,选择管道直径和水泵,2天;7.绘制设计图纸,5天;8.课程设计说明书编写,2天;9.答辩,1-2天。
四、课程设计组织和要求1.本次课程设计时间为3周,要求在此时间段内完成全部设计任务。
2.学生分组:根据建筑规模大小,一般2~3人为一组,每人设计地点要求不同,同组之间严禁抄袭; 3.学生应每人准备一个设计记录本,及时记录阶段性设计成果,作为过程检查和成绩评定的依据;4.每周星期一、三、五按进度要求进行检查和答疑,完成上一部分内容方可进行下一阶段工作。
5.课程设计要求提交成果为设计图纸和设计计算说明书,要求如下:设计说明书应包括以下内容:封面;设计任务书;目录;一、设计题目与原始条件;二、负荷计算;三、方案设计和比较优化;四、冷热水机组选择;五、设备选择(冷却塔、冷冻水泵、冷却水泵、补水泵、过滤器、水处理设备、分水器、集水器、定压装置等);六、水力计算(包括冷却水循环系统水力计算、冷冻水循环系统水力计算,由此确定管径、流速);七、机房布置方案;八、设计总结;九、参考文献。
冷热源工程课程设计冷热源工程课程设计【概述】冷热源工程课程,简称“冷源工程课程”,是一门将温度控制、能量利用和节能服务融入到建筑中的工程课程。
冷热源工程课程不仅包含传统的物理定律,物质的特性及能量的传输,还包括物理-化学-机械专业的综合知识和应用技能,主要以冷热源技术及其应用环境学、建筑学、电气与自动化、制冷与空调、暖通空调、节能、给排水和新能源等专业为基础。
根据《室外设计标准》和《气象要素条件》等国家统一规范,课程将使用教室设计、技术概念、工程原理以及实践技能等教学方法,目的在于培养未来社会新兴行业强大的技术人才。
【内容】1. 传热原理:全面讨论不同的传热原理,从物理定律、物质的特性及能量传输等方面,引导学生深入理解传热机制;2. 冷热源技术:介绍传统的冷热源技术,包括储存式传热、热交换/循环、采暖/制冷技术、太阳能回收、涡旋回收和太阳能直接利用;3. 环境学与建筑学:分析现代建筑的能源效率问题,引导学生学习节能服务融入建筑中的各种新技术;4. 电气与自动化:教授环境控制系统的电气原理和自动化系统,例如环境传感器与处理器系统,建筑能耗监测与控制系统;5. 制冷与空调:介绍冷水系统和冷负荷计算,以及空调系统的原理、制冷剂的性质和可再生制冷技术;6. 暖通空调:学习暖通空调的设计、管道泵设计、管网制订、水处理设备等;7. 节能:分析能源效率管理技术,智能能源系统、照明和通风设备周边节能技术,高效节能燃烧器应用,常见的节能材料以及能量可再生利用技术;8. 给排水:学习给排水系统的设计与施工,例如供水系统、排水系统、消防系统和特种灌溉系统;9. 新能源:学习可再生能源的利用,比如水力发电、太阳能电池、生物质能的存储,利用气态燃料发电;10. 安全与环境教育:提供安全和环境友好型工程服务,特别是在节能减排和绿色建筑综合设计中,重视可持续发展和安全技术方面的保护。
【总结】冷热源工程课程,将传统的物理定律、物质特性及能量传输知识、冷热源技术、环境学与建筑学、电气与自动化、制冷与空调、暖通空调、节能、给排水和新能源等知识综合,旨在培养未来社会新兴行业的技术人才,。
冷冻机房设计2012届建工系系专业: 建筑环境与设备工程学号: 120807041208学生姓名:指导教师: 董圆圆完成日期2015年1月1日目录第一章设计任务 (4)1.1建筑资料 (4)1.2设计任务 (4)1.3设计步骤 (4)第二章制冷机房 (6)2.1制冷机房的位置选择 (6)2.2冷水机组的选择 (6)2.2.1 冷水机组的装机容量 (7)2.2.2 冷水机组的台数 (7)2.2.3 冷水机组的类型 (7)2.3冷却塔的选择 (8)2.4水泵的选择 (8)2.4.1 冷冻水泵的选择 (8)2.4.2 冷却水泵的选择 (9)2.5补水定压装置的选择 (9)2.6分集水器的选择 (11)2.7水处理设备的选择 (11)2.7.1 软水器和软化水箱 (11)2.7.2 水处理仪 (12)第三章水力计算 (13)3.1沿程阻力 (13)3.2局部阻力 (13)3.3总阻力 (13)3.4水力计算 (13)3.5水力计算表格 (14)第一章设计任务1.1建筑资料1.2 设计任务本楼建筑面积为15000m2,建筑高度为54.3m,一至三层为公共区域,主要包括大厅、餐厅、超市等,一层层高5.1米,二层层高4.5米,三层层高5.1米,四至十四层为客房,层高为3.6m,本楼空调冷负荷QL=1740KW,空调热负荷为QR=1500KW.本工程设计范围和内容为本楼的空调用冷热源系统设计1.3设计步骤查阅资料,确定制冷机房设计冷负荷(1)选择定型冷水机组并确定台数定型冷水机组有风冷冷水机组和水冷冷水机组两大类,水冷冷水机组又有蒸汽压缩式冷水机组和吸收式冷水机组两种,通过技术经济分析确定所选用的冷水机组种类。
(2)选择冷却塔材质推荐使用玻璃钢,注意冷却塔的设计条件应与冷水机组匹配,否则应进行修正。
(3)布置冷却水管道、冷冻水管道确定管径,并进行阻力计算,选择过滤器、电子水处理仪、集水器、分水器(用户4个环路)等。
冷热源工程课程设计Company Document number:WUUT-WUUY-WBBGB-BWYTT-1982GT冷热源工程课程设计说明书学校:江西科技师范大学学院:建筑工程学院专业:建筑环境与能源应用工程班级: 15建环一班姓名:叶梓阳目录第一章冷热源设计初步资料、课程设计题目成都市某四层(地下一层)宾馆大楼冷热源课程设计冷负荷和热负荷数据:大楼冷负荷为1500kw,所有冷源由制冷机房提供,参数为7℃/12℃大楼热负荷为1200kw,所有热负荷由锅炉房的提供,参数为85℃/60℃。
动力与能源资料动力:城市供电水源:城市供水水质资料:1)总硬度:/L2)永久硬度: mmol/L3)暂时硬度: mmol/L4)总碱度: mmol/L5)PH值: PH=6)溶解氧: mg/L7)悬浮物: 0 mg/L8)溶解固形物:380 mg/L气象资料:冬季1.室外采暖计算温度(℃)2.室外空调计算温度(℃)3.冬季室外平均风速(m/s)4.室外计算相对湿度(%)5.冬季大气压(Pa) 96320夏季1.夏季空调室外干球温度(℃)2.夏季空调室外湿球温度(℃)3.夏季空调日平均温度(℃)4.夏季室外平均风速(m/s)5.夏季空调大气透明度等级 66.夏季大气压(Pa) 94770pa第二章制冷工程设计说明.冷水机组的总装机容量由于当前冷水机组产品质量大大提高,冷热量均能达到产品样本所列数值,另外,系统保温材料性能好,构造完善,冷损失少,因此,冷水机组的总装机容量应以正确的空调负荷计算为准,可不作任何附加,避免所选冷水机组的总装机容量偏大,造成大马拉小车或机组闲置的情况。
对于管线较长的小区管网,则按具体情况确定。
冷水机组台数选择冷水机组台数选择应按工程大小,负荷变化规律及部分负荷运行的调节要求来确定。
当空气调节冷负荷大于528kw时不宜少于2台。
大工程台数也不宜过多。
为保证运转的安全可靠性,当小型工程仅设1台时,应选用调节性能优良、运行可靠的机型,如选择多台压缩机分路联控的机组,即多机头联控型机组。
建筑冷热源课程设计一、教学目标本课程的教学目标是使学生掌握建筑冷热源的基本理论、设计方法和施工技术,培养学生分析和解决实际问题的能力。
具体目标如下:1.知识目标:(1)了解建筑冷热源的分类、原理和特点;(2)掌握建筑冷热源系统的设计方法和步骤;(3)熟悉建筑冷热源设备的选型和安装要求;(4)了解建筑冷热源系统的运行管理和维护。
2.技能目标:(1)能够运用所学知识分析和解决建筑冷热源系统设计中的问题;(2)具备建筑冷热源设备选型和安装的基本能力;(3)掌握建筑冷热源系统的运行管理和维护方法。
3.情感态度价值观目标:(1)培养学生对建筑冷热源行业的兴趣和责任感;(2)增强学生团队合作意识和创新精神;(3)提高学生对建筑节能和环保的认识。
二、教学内容本课程的教学内容主要包括以下几个部分:1.建筑冷热源的基本理论:包括冷热源的分类、原理和特点,以及相关的热力学和流体力学基础。
2.建筑冷热源系统的设计方法:包括系统设计的基本原则、设计步骤和设计计算。
3.建筑冷热源设备的选型和安装:包括各种冷热源设备的结构、性能和选型依据,以及设备的安装要求。
4.建筑冷热源系统的运行管理和维护:包括系统运行监测、故障分析和维护方法。
5.建筑冷热源案例分析:分析实际工程案例,加深学生对理论知识的理解和应用能力。
三、教学方法为了提高教学效果,本课程将采用多种教学方法相结合的方式进行教学,包括:1.讲授法:通过教师的讲解,使学生掌握建筑冷热源的基本理论和设计方法。
2.讨论法:学生进行课堂讨论,培养学生的思考和分析能力。
3.案例分析法:分析实际工程案例,让学生学会将理论知识应用于实际问题。
4.实验法:安排实验课程,使学生熟悉建筑冷热源设备的操作和安装。
四、教学资源为了支持本课程的教学,我们将准备以下教学资源:1.教材:选用权威、实用的教材,为学生提供系统的学习资料。
2.参考书:提供相关领域的参考书籍,丰富学生的知识体系。
3.多媒体资料:制作精美的PPT课件,辅助课堂教学。
《冷热源工程(N)》课程设计计算书题目:姓名:学院:专业:班级:学号:指导教师:2012年9月23日目录1.设计原始资料 (2)2.确定冷源方案 (3)2.1技术性分析............................................................ . (3)2.1方案一 (3)2.2方案二 (4)2.3方案三 (5)2.4 方案四............................................................ . (7)2.5经济性分析 (8)3. 分水器和集水器的选择 (17)3.1分水器和集水器的构造和用途. (17)3.2分水器和集水器的尺寸 (17)3.2.1分水器的选型计算 (17)3.2.2集水器的选型计算 (18)4. 膨胀水箱配置与计算 (16)4.1膨胀水箱的容积计算 (16)4.2膨胀水箱的选型 (16)5.制冷机房水系统设计计算 (9)5.1 冷冻水系统选型和计算 (9)5.1.1冷冻水泵的选型和计算 (9)5.1.1.1水泵流量和扬程的确定 (9)5.1.1.2 水泵型号的确定 (11)5.2 冷却水系统的选型和计算 (12)5.2.1冷却塔的选型 (12)5.2.2冷却水泵的选型计算 (13)6.参考资料 (20)7.个人小结 (21)设计题目嘉兴市世贸大楼制冷机房设计1、原始资料1、空调冷负荷:为:2.0 MW(空调总面积15000m2)2、当地可用的能源情况:电:价格:0.7元/度天然气:价格:2.5元/m3;热值:33.45MJ/m3;蒸汽:价格:80元/吨;蒸汽压力为:0.8MPa燃油:价格:4.76元/升;低位发热量均为:42840kJ/kg3、冷冻机房外冷冻水管网总阻力为:0.35 MPa4、土建资料制冷机房建筑平面图(见附图),其中水冷式冷水机组冷却塔高度为:20 m2、确定冷源方案2.1 技术性分析(一)离心式冷水机组(1)优点:1.结构简单,运动部件少,易损件少,仅是活塞式的1/10,故障率低,寿命长2.圆周运动平稳,低负荷运转时无“喘振”现象,噪音低,振动小3.压缩比可高达20,EER值高4.调节方便,可在10%~100%范围内无级调节,部分负荷时效率高,节电显著5.体积小,重量轻,可做成立式全封闭大容量机组6.对湿冲程不敏感7.属正压运行,不存在外气侵入腐蚀问题(2)缺点1.价格比活塞式高2.单机容量比离心式小,转速比离心式低3.润滑油系统较复杂,耗油量大4.大容量机组噪声比离心式高5.要求加工精度和装配精度高(二)双效蒸汽型溴化锂吸收式制冷机组:基于溴化锂水溶液在常温下强烈的吸收水蒸气,而在高温下又将其吸收的水分释放出来。
同时,水在真空状态下,其沸腾温度在7度以下,蒸发时具有较低的蒸发温度,因而可以采用水作为制冷剂。
双效蒸汽型溴化锂吸收式制冷机组部件组成是在单效机组上增加一个高压发生器、高温热交换器和凝水换热器,目的是维持高压发生器中的压力在大气压下运转,以确保机组的安全,因此,所需的冷却水量较大,机组造价高,溴化锂溶液充注量大,初投资增加。
但是热效率高,运转费用低。
(三)直燃型溴化锂吸收式冷热水机组:它是在蒸汽溴化锂吸收式冷水机组上发展起来的,以燃油或燃气为能源取代燃煤,以火管锅炉(自带)取代蒸汽锅炉,以直燃方式取代间接供热方式等“三个取代”,完成了溴化锂吸收式冷水机组一次质的飞跃。
直燃型机组以水-溴化锂为工质对,实现了吸收式制冷循环喝采暖循环的交替,达到了一机两用的目的。
发展直燃型机组,有利于多种能源的使用和补充,有利于缓解部分地区电力的暂时紧张状态,有利于减少供热的中间环节,提高机组效率(热力系数),有利于节省单独的锅炉房设置,给中央空调的设备选型提供了新的选择对象。
2.2方案一:采用19XL系列半封闭式R22离心式冷水机组表1 19XL300半封闭式R22离心式冷水机组性能参数型号19制冷量(KW) 1055台数 2单价(万元)150电机功率(KW) 211冷冻水水量(M3/h) 181压降(Kpa) 67冷却水水量(M3/h) 219压降(Kpa) 571)固定费用设备初投资:2⨯150=300(万元)安装费用:25%⨯300=75 (万元)系统总投资费用L=300+75=375 (万元)银行年利率i=5.94%使用年限n=15年1)1()1(1-++⨯=nni i i L L =38.46万元 式中:1L —每年系统折旧费用L —系统总投资费用,包括设备初投资和安装费用i —银行年利率2)年度使用费用设备额定供冷功率为211KW ,台数2台,电费0.7元/度,供冷月为6-9月份,按照每天24小时供冷计算年度运行费用=单台供冷功率⨯台数⨯时间⨯电费=110万元 3)设备年度费用设备年度费用=固定费用+年度使用费用=38.46+98=136.46万元2.3方案二: 采用SXZ8系列双效蒸汽型溴化锂吸收式冷水机组表2 SXZ8-116D 双效蒸汽型溴化锂吸收式冷水机组性能参数型号 SXZ8-116D 制冷量(KW) 1160 台数 2 单价(万元) 186 蒸汽耗量(Kg/h) 1450 冷冻水 水量(M3/h) 200 压降(Kpa) 100 接管直径(DN)150冷却水 水量(M3/h) 305 压降(Kpa)90接管直径(DN)2001)固定费用设备初投资:2⨯186=372(万元) 安装费用:25%⨯372=93 (万元) 系统总投资费用L=372+93=465 (万元) 银行年利率i =5.94% 使用年限n=15年1)1()1(1-++⨯=nni i i L L =47.69万元 2)年度使用费用单台设备蒸汽耗量为1450kg/h ,台数2台,蒸汽价格为80元/吨,供冷月为6-9月份,按照每天24小时供冷计算年度运行费用=蒸汽耗量⨯台数⨯时间⨯单价=85.03万元 3)设备年度费用设备年度费用=固定费用+年度使用费用=47.69+85.03=132.72万元2.4方案三:采用ZXLR 系列燃油型溴化锂吸收式冷水机组表3 ZXLR-115燃油型溴化锂冷水机组性能参数 型号 ZXLR-115 制冷量(KW) 1163 台数 2 单价(万元) 215 轻油耗量(Kg/h) 81 低位热值(KJ/Kg) 43054 冷冻水 水量(M3/h) 200 压降(Kpa) 88 接管直径(DN)150冷却水水量(M3/h) 301 压降(Kpa) 88 接管直径(DN)2001)固定费用设备初投资:2⨯215=430(万元) 安装费用:25%⨯430=107.5(万元) 系统总投资费用L=430+107.5=537.5 (万元) 银行年利率i =5.94% 使用年限n=15年1)1()1(1-++⨯=nni i i L L =55.13万元 2)年度使用费用单台设备轻油耗量为81kg/h ,台数2台,轻油密度为0.84公斤/升,低位发热量为42840KJ/Kg,轻油价格为4.76元/升,供冷月为6-9月份,按照每天24小时供冷计算年度运行费用=轻油耗量⨯台数⨯时间⨯单价=336.83万元 3)设备年度费用设备年度费用=固定费用+年度使用费用=55.13+336.83=391.96万元2.5方案四:采用ZXLR 系列燃气型溴化锂吸收式冷水机组表3 ZXLR-115燃气型溴化锂冷水机组性能参数 型号 ZXLR-115 制冷量(KW) 1163 台数 2 单价(万元) 215 天然气耗量(Nm3/h) 74 低位热值(KJ/Kg) 46000 冷冻水 水量(M3/h) 200 压降(Kpa) 88 接管直径(DN)150冷却水量(M3/h) 301 压降(Kpa) 88 接管直径(DN)200水 1)固定费用设备初投资:2⨯215=430(万元) 安装费用:25%⨯430=107.5(万元) 系统总投资费用L=430+107.5=537.5 (万元) 银行年利率i =5.94% 使用年限n=15年1)1()1(1-++⨯=nni i i L L =55.13万元 2)年度使用费用单台设备天然气耗量为74Nm3/h ,台数2台,天然气价格为2.5元/m3,热值为33.45MJ/m3,供冷月为6-9月份,按照每天24小时供冷计算 年度运行费用=轻油耗量⨯台数⨯时间⨯单价=187.23万元 3)设备年度费用设备年度费用=固定费用+年度使用费用=55.13+187.23=242.36万元2.6 经济性分析通过比较各个方案的设备年度费用,可以发现方案二的设备年度费用最低,所以设计采用两台SXZ8-116D 双效蒸汽型溴化锂吸收式冷水机组。
3、分水器和集水器的选择 3.1分水器和集水器的构造和用途用途:在中央空调及采暖系统中,有利于各空调分区流量分配和灵活调节。
构造如图所示:图3 分水器和集水器构造图3.2分水器和集水器的尺寸3.2.1分水器的选型计算根据Q=CM t ∆,制冷量Q=1160⨯2=2320KW,水的比热C=4.2, 温差t ∆=5 C0,则M=tC Q∆=138.1kg/s 换算成体积流量V=ρM=0.1381m 3/s ,水的密度ρ=1000 m 3/Kg.取流速v 为0.8m/s,则D=vV⨯⨯π4=0.469 m 因取公称直径为DN500.将分水器分3路供水,分管流速取1.2 m/s,则3个供水管的尺寸计算如下:D1=D2=D3=vV⨯⨯⨯π34=0.22 m因此取公称直径为DN250.L1=D1+60=310mm,L2=D1+D2+120=620mm,L3=D2+D3+120=620mm,L4=D3+60=310mm. 3.2.2集水器的选型计算集水器的直径、长度、和管间距与分水器的相同,只是接管顺序相反。
4、膨胀水箱配置与计算4.1膨胀水箱的容积计算根据VP =tV∆α,其中t∆=30 C0根据《暖通空调常用数据手册》有关规定:CL0/0006.0=α取系数为1.3L/㎡V=1.3⨯15000/1000=19.5m3VP=0.35m34.2膨胀水箱的选型对应采暖通风标准,查得膨胀水箱的尺寸如下:表12 膨胀水箱性能参数水箱形式圆形型号 1 公称容积0.3 m3有效容积0.35m3外形尺寸(mm) 内径(d )900 高 H 700水箱配管的公称直径DN 溢流管40 排水管32 膨胀管25 信号管20 循环管20水箱自重(Kg) 1275、制冷机房水系统设计计算5.1 冷冻水系统选型和计算5.1.1冷冻水泵的选型和计算5.1.1.1水泵流量和扬程的确定选择水泵所依据的流量Q和压头(扬程)H按如下确定:Q=β1Qmax(m³/s)式中 Qmax—按管网额定负荷的最大流量,m³/s;β1—流量储备系数,对单台水泵工作时,β1=1.1;两台水泵并联工作时,β1=1.2。