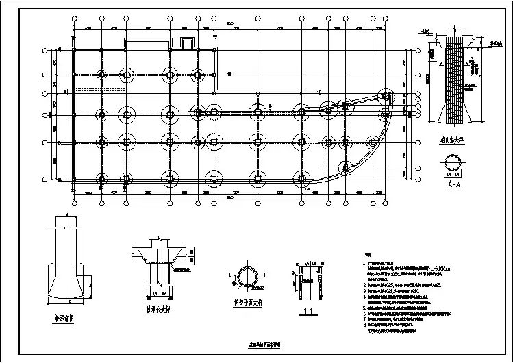
【专业知识】砖混结构基础平面图及详图设计要点
- 格式:doc
- 大小:52.00 KB
- 文档页数:2
试析建筑结构设计的要点摘要:作为建筑设计的一个关键环节,建筑的结构设计对建筑的质量和性能具有举足轻重的影响,因此需要加强对建筑结构设计的重视,采用先进的工艺和规范的手法进行合理的结构设计。
本文笔者对建筑结构设计的要点进行了分析和探讨,目的是为建筑的结构设计提供指导和借鉴,进而推动建筑设计的健康发展,为提高建筑的整体质量奠定坚实的基础。
关键字:建筑结构设计;技术;要点分析;设计原则城市的发展和进步极大的推动了建筑行业的发展,为了保证建筑结构的安全性、适用性和耐久性,需要对建筑的结构进行合理的设计,这就需要把握建筑建构设计的要点,并按照一定的原则进行设计,进而最大限度的提高设计的质量和水平,提升建筑的整体质量和效果。
一、对各层结构图的绘制在对建筑进行结构设计中,绘制结构图是结构设计工作的基础和前提,因此需要对各个层面的结构图进行合理的绘制,以此作为建筑结构设计的依据和参考。
(一)布置预制板在对预制板进行布置时,需要对其块数和类型进行标注,在这一过程中为了避免出现线的交叉的情况,一般是采用水平线和垂直线代替对角线形式,给类型相同的房间标注相同的类型号。
此外,为了最大限度的减少工作量,需要对全图进行统一编号,这样也可以方便工作人员看图。
在进行布板时,要采用宽板从房间里向外布板,同时将现浇板带留住靠窗的位置。
(二)现浇板的配筋工作在布置好预制板以后,需要对现浇板进行配筋,这就对配筋的材料有较高的要求,一般是采用厚度为120、140、160、180四种尺寸的钢板,要用二级钢包的二级钢,且保证受力钢筋的直径在12以上,同时在吊钩过程中使用一级钢,但是其他构件避免使用一级钢。
此外,要钢筋的大直径和大间距也有一定的要求,一般是将间距控制在200以内。
在对现浇板进行配筋时,对于跨度小于两米的板,采取上部钢筋不断开的措施,并且在结构图中可以忽略,但是要确保钢筋的直径类型不可过多。
(三)部分位置的剖面详图设计对于雨篷、阳台以及挑檐而言,需要设计详图。
建筑高度:9.45M(含屋顶)坡屋顶。
结构形式:砖混结构;
一层:厨房、老人房、堂前、卫生间、农具间。
二层:2卧室、起居室(附阳台)、卫生间;
三层: 客卧(附晒台)、储藏室(附晒台)、卫生间。
图纸目录:
建筑:建筑设计说明、一层平面图、二层平面图、三层平面图、屋顶平面图、①-④轴立面图、④-①轴立面图、b-f轴立面图、f - b轴立面面图、1-1剖面图、楼梯大样图1、楼梯大样图2、门窗大样图、门窗表、卫生间大样图、节点详图1、节点详图2。
结构:结构设计总说明、构造详图、基础平面布置详图、基础梁平面布置图、一、二层柱位布置图、三层柱位布置图及柱配筋详图、3.570m,6.570m板配筋图、屋顶板配筋图及楼梯一层结构平面图、楼梯结构平面图、楼梯结构A-A剖面图及节点详图、楼梯梯段板配筋图。
电气图:电气设计说明及图例、配电系统图及弱电系统图、一层及二层配电平面图、三层配电平图及基础接地平面布置图、我顶防雷及一层弱电平面图、二及三层弱电平面图、效果图。
给排水图:给排水设计说明及图例、一及二层给排水平面图、三及屋顶季平说平面图、卫生间大样图及给排水系统图。
工程简况:
1、本工程为90平方M户型;总建筑面积:194.94m^U2^U,占地面积为89.60m。
2、本工程属砖混结构;建筑层数为三层,建筑高度为9.90M;建筑结构安全等级是二级;设计使用年限为50年;建筑耐火等级是二级;抗震设防烈度小于六度;屋面防水等级是Ⅱ级。
(底框-)砖混结构设计总结一、分析建筑条件,准备初步工作:1. 底框部分:(1)根据建筑条件图布置框架柱轴网,由抗震概念设计,尽量不要出现单根柱而不能形成一榀框架的情况,柱距一般为6米;(2)柱截面初步设计;单层商铺部分的框架柱截面设为350X350,底框部分的框架柱设为400X400;(3)根据柱轴网确定剪力墙的分布(长度和距离);(4)剪力墙一般分布在楼梯间处,与电信专业协调,预留电表箱位置;(5)剪力墙往往矮而长,变形能力差,多为剪切破坏,宜开竖缝保证高宽比大于1.5;(6)根据底层店面部分的墙厚确定框架梁、柱偏心;(7)根据框架柱的设置和柱距,确定框架梁的高度和宽度(一般上面有出承重墙的框架梁宽度不小于350,其它墙梁宽度不小于300,高度不小于净跨的1/5);(框架结构梁截面尺寸控制办法:计算时用TAT,看计算结果配筋图内的配筋率图;要求全截面配筋率1.5-1.7之间)(8)其框架和抗震墙的抗震等级,6、7度可分别按三、二级采用;2. 砖混部分:(1)根据纵横墙的布置及可能会有的屋面构架,确定构造柱的位置和种类,(最外围的构造柱直接升到女儿墙,门窗洞口处的构造柱尺寸最好与门洞处的短墙吻合)(2)根据户型布置设置梁,包括其宽度和高度(其位置应把楼板分成规则的矩形,在阳台较大窗洞处或门窗连续设置处应设置过梁,且其高度加上门窗的高度应等于楼层高度);(3)根据户型布置确定板厚,一般取短向跨度的1/35,但是最好不要小于100,客厅不小于120,否则影响使用;阳台、厨卫一般为90,屋面板厚120,楼梯梯板厚度为板跨的1/28,且平台梁高度与其下的窗高之和要等于建筑标高;(4)根据墙体外立面的腰线做法,确定外围圈梁的高度和做法;(5)根据总体要求,设置不同的结构标准层与荷载标准层;(6)阳台处的挑梁高度为挑出长度的1/3-1/6;二、输入计算模型,进行程序计算:1. 底框部分:(1)SAT-8计算底框时不能考虑风荷载。
房屋结构类型及基础分类.房屋结构类型房屋结构⼀般是指其建筑的承重结构和围护结构两个部分。
房屋在建设之前,根据其建筑的层数、造价、施⼯等来决定其结构类型。
各种结构的房屋其耐久性、抗震性、安全性和空间使⽤性能是不同的。
房屋建筑结构是指根据房屋的梁、柱、墙等主要承重构件的建筑材料划分类别。
⼀、房屋结构分类:主要有钢筋混凝⼟框架结构,剪⼒墙结构、框架剪⼒墙结构、框架筒体结构和筒体结构。
框架筒体结构和筒体结构应⽤于超⾼层建筑结构。
现浇钢筋混凝⼟结构框架结构⼀般由梁、板、柱所组成。
其特点是框架结构布置灵活,具有较⼤的室内空间,使⽤⽐较⽅便。
框架结构的楼板⼤多采⽤现浇钢筋混凝⼟板。
由于有框架结构的柱截⾯较⼤,不宜家具布置和装修,影响室内使⽤,以往在住宅建筑中采⽤较少。
结合框架结构特点,在新建住宅中出现了⼀种异形柱框架轻型住宅结构和短肢剪⼒墙结构体系。
异形柱框轻住宅与其他传统结构相⽐,具有以下特点:由T形边柱、⼗字形中柱、L形⾓柱组成框架受⼒体系,其柱间填充墙与体壁同厚,室内不出现柱楞便于使⽤,填充墙采⽤轻质保温隔热材料,因墙体减薄,与砌体结构相⽐可增加使⽤⾯积。
异形柱框轻住宅结构体系和短肢剪⼒墙结构体系在多⾼层住宅中的应⽤⽅⾯具有⼴阔的发展前景。
框架间的填充墙多采⽤轻质砌体墙。
这些轻质墙体材料种类较多,如⾮承重黏⼟空⼼砖,加⽓混凝⼟砌块,空⼼焦渣混凝⼟砌块、轻钢龙⾻⽯膏板、⽯膏空⼼墙板及多中复合轻质隔墙板。
这些轻质墙体起围护和分隔空间的作⽤,装修时可以开洞或拆除。
常见的房屋结构有砖混结构、钢筋混凝⼟结构、框架结构、框剪结构、钢结构、核⼼筒结构等,各种结构有其⾃⾝的特点。
按建筑物以其结构类型的不同,可以分为砖⽊结构、砖混结构、钢筋混凝⼟结构和钢结构四⼤类。
建筑结构有六种类别:1、砖⽊结构:指建筑物中竖向承重结构的墙、柱等采⽤砖或砌块砌筑,楼板、屋架等⽤⽊结构。
承重的主要结构是⽤砖、⽊材建造的,如⼀幢房屋是⽊屋架、砖墙、⽊柱建造。
(底框-)砖混结构设计总结一、分析建筑条件,准备初步工作:1. 底框部分:(1)根据建筑条件图布置框架柱轴网,由抗震概念设计,尽量不要出现单根柱而不能形成一榀框架的情况,柱距一般为6米;(2)柱截面初步设计;单层商铺部分的框架柱截面设为350X350,底框部分的框架柱设为400X400 ;(3)根据柱轴网确定剪力墙的分布(长度和距离);(4)剪力墙一般分布在楼梯间处,与电信专业协调,预留电表箱位置;(5)剪力墙往往矮而长,变形能力差,多为剪切破坏,宜开竖缝保证高宽比大于 1.5;(6)根据底层店面部分的墙厚确定框架梁、柱偏心;(7)根据框架柱的设置和柱距,确定框架梁的高度和宽度(一般上面有出承重墙的框架梁宽度不小于350,其它墙梁宽度不小于300,高度不小于净跨的1/5);(框架结构梁截面尺寸控制办法:计算时用TAT,看计算结果配筋图内的配筋率图;要求全截面配筋率 1.5-1.7之间)(8)其框架和抗震墙的抗震等级,6、7度可分别按三、二级采用;2. 砖混部分:(1)根据纵横墙的布置及可能会有的屋面构架,确定构造柱的位置和种类,(最外围的构造柱直接升到女儿墙,门窗洞口处的构造柱尺寸最好与门洞处的短墙吻合)(2)根据户型布置设置梁,包括其宽度和高度(其位置应把楼板分成规则的矩形,在阳台较大窗洞处或门窗连续设置处应设置过梁,且其高度加上门窗的高度应等于楼层高度);(3)根据户型布置确定板厚,一般取短向跨度的1/35,但是最好不要小于100,客厅不小于120,否则影响使用;阳台、厨卫一般为90,屋面板厚120,楼梯梯板厚度为板跨的1/28,且平台梁高度与其下的窗高之和要等于建筑标高;(4)根据墙体外立面的腰线做法,确定外围圈梁的高度和做法;(5)根据总体要求,设置不同的结构标准层与荷载标准层;(6)阳台处的挑梁高度为挑出长度的1/3-1/6 ;二、输入计算模型,进行程序计算:1. 底框部分:(1)SAT-8计算底框时不能考虑风荷载。
结构审图要点:1.设计总说明1.1 建筑抗震设防类别、场地抗震设防烈度、设计地震分组、设计基本地震加速度值、建筑场地类别、抗浮设计水位等是否正确。
1.2 建筑单体±0.00所对应的绝对高程与规划总平面一致。
1.3 地基持力层的描述:若采用天然地基,说明本建筑单体的地基承载力特征值为___;若为人工地基,说明地基处理方式、复合地基承载力及建筑单体的最终沉降量;若为桩基,说明桩的材料及沉桩方式等。
1.4 结构使用的材料:钢筋:梁柱中各受力纵向钢筋、较大开间的楼板、约束边缘构件的箍筋(当用圆钢直径大于10时)、基础受力钢筋、墙体受力钢筋等采用HRB400。
构造柱及过梁的纵向筋、地下室防水板及地下室外墙的分布钢筋等采用HRB335。
混凝土:对于别墅及花园洋房,地下室、基础及地上采用C25,设备基础、圈梁、构造柱等次要构件采用C20,其他均应满足计算及构造需求,避免强度过高。
1.5 活荷载(特指荷载规范中不明确的部位),恒荷载(特指梁板上的建筑面层和车库顶板上的覆土等产生的恒荷载)是否与设计委托一致。
1.6 防水混凝土的使用部位、抗渗等级是否明确、恰当。
1.7 钢筋的接头形式(不同的规格分别描述如搭接、机械连接等)是否明确、恰当。
1.8 构造柱、圈梁的位置及做法、过梁的做法、墙柱与砌体之间的拉结钢筋等是否明确、恰当。
1.9 墙上开洞的补强措施。
结构洞口的填充等是否明确、恰当。
1.10 对基础的施工要求,如挖槽、验槽、回填等的要求,和对不良地基的处理措施等是否明确、恰当。
1.11 如有冬季施工可能时,是否提出了相应的要求和注意事项。
1.12 预制构件目录中的构件名称、数量、图集号、是否准确。
1.13 构件代号表中的代号与详图中采用的是否一致。
1.14 对施工中应遵守的施工验收规范是否准确无误。
1.15 楼板上预留孔洞(直径大于300)大样图,小于或等于300时做法是否明确、恰当。
1.16 剪力墙住宅内隔墙中长度小于500mm的墙垛做法是否明确、恰当。
普通砖混结构设计一些技术措施探讨 1. 结构设计说明 主要是设计依据,抗震等级,地基情况及承载力,防潮做法,活荷载值,材料等级,施工中的注意事项,选用详图,通用详图或节点,以及在施工图中未画出而通过说明来表达的信息。如:正负零以下应采用水泥砂浆,以上采用混合砂浆。等等。
2. 各层的结构布置图,包括: (1).预制板的布置(板的选用、板缝尺寸及配筋)。标注预制板的块数和类型时, 采用对角线的形式标出布置范围,并在对角线上标注预制板的块数和类型,在房间端部画出一块板表示铺设方向; 相同类型的房间直接标房间类型号,可以分层编号,以减少设计工作量,也方便施工人员看图。板缝尽量为40, 此种板缝可不配筋或加一根筋。布板时从房间里面往外布板, 尽量采用宽板, 在靠窗处设置现浇板带, 现浇板带宽最好≥200(考虑水暖的立管穿板)。如果构造上要求有整浇层时, 板缝应大于60。整浇层厚50, 配双向φ6@250, 混凝土C20。应采用横墙或横纵墙(横墙为主)混合承重方案,抗坍塌性能好。构造柱处不得布预制板,预制板与构造柱相碰时,应做现浇板带。如使用PMCAD布预制板,应采用人工布板功能布预制板,自动布板可能不能满足用户的施工图要求,仅能满足定义荷载传递路线的要求。
(2).现浇板的配筋(板上、下钢筋,板厚尺寸)。 板厚尺寸:1、双向板:短边≥3600时,板厚为100;短边≥4200时,板厚为120;短边≥5400,板厚为150;2、单向板:按上述标准,用受力向(长边)尺寸控制;3、考虑到桡度对使用的影响及施工的方便尽量避免使用80厚的板,除非不重要且跨度很小的板。 板钢筋在施工时为了固定钢筋,有时需要点焊,造成点焊部位钢筋截面积减少,所以尽量用直径≥φ10的钢筋。钢筋宜大直径大间距,但间距不大于 200, 间距尽量用200(一般跨度小于6.6米的板的裂缝均可满足要求)。绘制现浇板施工图时,常采用两个方向的底部筋(正筋)标示出板块范围,需要编号时在板块对角线方向画一斜线,编号写在斜线上部,编号为大写英文字母外套圆圈。跨度小于2米的板上部钢筋不必断开,钢筋也可不画,仅说明钢筋为双向双排φ8@200。板上下钢筋间距宜相等,直径可不同,但钢筋直径类型也不宜过多。顶层及考虑抗裂时应适当加大板厚,上部筋可不断或50%连通,温度应力较大处另加附加钢筋。一般砖混结构的过街楼处板应现浇,并且钢筋宜双向双排布置。板配筋相同时,仅标出板号即可。一般可将板的下部筋相同和部分上部筋相同的板编为一个板号,将不相同的上部筋画在图上。建议对板配筋全楼统一编号,凡钢筋直径、间距相同者编为一个号,编号为数字外套圆圈,标注在钢筋上部,板上部筋应尽量伸至墙或梁外边,只标出净锚出长度,标注在钢筋下部,且可以只标数字不标尺寸线,为表示清楚在说明中绘制表格对板钢筋编号统一说明。当考虑穿电线管时,板厚应≥120,不宜采用薄板加垫层的做法。电的管井电线引出处的板因电线管过多有可能要加大板厚。宜尽量用大跨度板,不在房间内(尤其是住宅)加次梁。说明分布筋为φ6@200,温度影响较大处可加大为φ8@200。板顶标高不同时,板的上筋应断开或下弯通过。现浇挑板阳角加辐射状附加筋(包括内墙上的阳角)。现浇挑板阴角的板下应加斜筋。顶层应建议甲方采用现浇楼板,以利防水,并加强结构的整体性及方便装饰性挑沿的稳定。外露的挑沿、雨蓬、挑廊应每隔10~15米设一10mm的缝,钢筋不断,内填沥青麻丝。尽量采用现浇板,不应采用予制板加整浇层方案。卫生间、外走廊宜采用现浇板,注意局部建筑标高的降低。L、T或十字形建筑平面的阴角处附近的板应现浇并加厚,并双向双排配筋,附加45度的4根16的抗拉筋。配筋计算时,可考虑塑性内力重分布,将板上部筋乘以0.8~0.9的折减系数,将板下部筋乘以1.1~1.2的放大系数。值得注意的是,按弹性计算的双向板钢筋是板某几处的最大值,按此配筋是偏于保守的,不必再人为放大。支承在外墙上的板的负筋不宜过大,否则将对砖墙产生过大的附加弯距。一般:板厚>150时采用φ10@200;否则用φ8@200。板一般可按塑性计算,尤其是基础底板和人防结构。但结构自防水、不允许出现裂缝和对防水要求严格的建筑, 如坡、平屋顶、橱厕、配电间等应采用弹性计算。室内轻隔墙下一般不应加粗钢筋,一是轻隔墙有可能移位,二是板整体受力,应整体提高板的配筋。只有垂直单向板长边的不可能移位的隔墙,如厕所与其他房间的隔墙下才可以加粗钢筋。坡屋顶板为偏拉构件,应双向双排配筋。
本文极具参考价值,如若有用请打赏支持我们!不胜感激!
【专业知识】砖混结构基础平面图及详图设计要点
【学员问题】砖混结构基础平面图及详图设计要点?
【解答】(1)在墙下条基宽度较宽(大于2米,部分地区可能更窄)或地基不均匀
及地基较软时宜采用柔性基础。应考虑节点处基础底面积双向重复使用的不利因素,
适当加宽基础。
(2)当基础上留洞、首层开大洞的洞口宽度大于洞底至基底高度时,如要考虑洞口
范围内地基的承载力,洞口下基础应做暗梁。或将基础局部降低。
(3)素混凝土基础下不必做垫层,但其内有暗梁时应注明底部钢筋保护层厚为70,
或做垫层。地下水位较高时或冬季施工时,不得做灰土基础。刚性基础一般300厚。
(4)建筑地段较好,基础埋深大于3米时,应建议甲方做地下室。地下室底板,当
地基承载力满足设计要求时,可不再外伸。地下室内墙可采用砖墙,外墙宜用混凝
土墙。每隔30~40米设一后浇带,并注明两个月后用微膨胀混凝土浇注。不应设局
部地下室,且地下室应有相同的埋深。地下室顶板应考虑施工时材料堆积荷载。
(5)地面以下墙体如被管沟消弱较多,应考虑抗震的不利影响,地下墙体宜加厚。
(6)抗震缝、伸缩缝在地面以下可不设缝。但沉降缝两侧墙体基础一定要分开。
(7)新建建筑物基础不宜深于周围已有基础。如深于原有基础,其基础间的净距应
不少于基础之间的高差的1.5至2倍。
(8)条形基础偏心不能过大,柔性基础必要时可作成三面支承一面自由板(类似筏
基中间开洞)。一般情况下,基础底部不应因荷载的偏心而与地基脱开。
本文极具参考价值,如若有用请打赏支持我们!不胜感激!
(9)当有独立柱基时,独立基础受弯配筋不必满足最小配筋率要求,除非此基础非
常重要,但配筋也不得过小。独立基础是介于钢筋混凝土和素混凝土之间的结构。
(10)基础圈梁在建筑入口处或底层房间地面下降处应调低标高。当基础圈梁顶标
高为-0.060时可取消防潮层。当地基不均匀时基底应增设一道基础圈梁。
(11)基础平面图上应加指北针。
(12)基础底板混凝土不宜大于C30.
(13)在软土地基上的建筑应控制建筑的总沉降量,在地基较不均匀地区应控制建
筑的沉降差,砖混结构对差异沉降很敏感。因建筑的实际沉降和计算值是有差异的,
很难算准,所以应从构造上入手,采用整体性强的基础形式。
(14)可用JCCAD软件自动生成基础布置和基础详图。应注意,在使用砖混抗震验
算菜单产生的砖混荷载生成基础图时,其墙下荷载为整片墙的平均压力,墙体各段
的荷载差异较大时,荷载较大处的墙下基础是不安全的,应人工调整。生成的基础
平面图名为JCPM.T,生成的基础详图名为JCXT?。T
以上内容均根据学员实际工作中遇到的问题整理而成,供参考,如有问题请及时沟
通、指正。
结语:借用拿破仑的一句名言:播下一个行动,你将收获一种习惯;播下一种习惯,
你将收获一种性格;播下一种性格,你将收获一种命运。 事实表明,习惯左右了成
败,习惯改变人的一生。在现实生活中,大多数的人,对学习很难做到学而不厌,
学习不是一朝一夕的事,需要坚持。希望大家坚持到底,现在需要沉淀下来,相信
将来会有更多更大的发展前景。