DF-J40型(DF7机车)车载微机控制系统检修手册★
- 格式:pdf
- 大小:876.76 KB
- 文档页数:26
东风7型内燃机车故障处理一、运行中柴油机突然停机运行中的应急处理:1、司机首先确认差示红灯和燃油压力,副司机迅速到电气间确认ZK12(XK处)、机械间手摸DLS(A型LC)线圈、确认复原手柄的位置、检查差示压力计。
2、差示压力计或J3误动作,检查差示压力计和J3后,重新启机。
3、ZK12跳开恢复:再次启机时,若闭合某个开关后, ZK12跳开,为该条电路短路。
注:启机过程中检查DLS后是否吸合,不吸合为相关电路断路或DLS本身故障。
如果松手释放:如油压正常为油压继电器及相关电路故障。
4、超速停车装置误动作,恢复复原手柄。
5、调速器故障时,二人联系好,可人为扳供油拉杆启机,维持运行。
(无母表防飞车)6、DLS线圈故障:检查其防缓母、座螺丝、线圈接线和Rdls,做相应的处理,机油压力正常时,可顶死DLS维持运行。
二、闭合辅助发电开关AK5不发电的原因及处理1、FLC不吸合应急处理:(控制电路)⑴.直接顶死FLC(转固定发电时立即撤除)。
⑵.有时间查找AK5、J10反、GFC反、RBC正和FLC主触头。
2、FLC吸合查辅助电路。
⑴.脱扣开关ZK2跳开或故障,闭合ZK2故障时短接。
⑵.F LC主触头接触不良:打磨。
⑶.电压调整器故障或插头松脱:检查插头锁紧。
(两套装置时,断A5K倒备用)⑷.Rdt1和Rdt2接线断或烧损,接好线或倒备用电阻。
(移动卡环时,应向两接线之间移动)。
⑸.QD接线盒及电机接线松脱时坚固。
3、使用固定发电维持运行。
三、不泵风第一步:更换另一泵第二步:手按AN2。
第三步:顶死YC(若有YRC时,首先顶死YRC,然后手动顶YC),风满后撤下YC。
第四步:检查4、5RD保险:不良时更换。
四、运行中柴油机不调速1、驱动器故障或插头不良时:更换驱动器插件。
2、司机控制器触指不良:打磨。
3、J1正联锁不良:打磨调整。
4、步进电机故障:断步进电机电源,手拧齿轮人为调速。
五、主回路接地处理方法运行中的应急处理:主手柄回零,恢复DJ,提手柄加载,副司机盯紧6个牵引电机电流表,(不接地时,为瞬间接地,维持运行)再次接地的瞬间,如某台电机的电流表指针异常,可甩掉该电机,并将DK打至负端,回段修理。
第0篇第0章第1条闭合燃油泵开关AK4,燃油泵接触器RBC不吸合如何判断处理1)故障原因:①AK4开关接触不良或接线松脱;②253B与254号线间J3常闭触指接触不良;③油压继电器YK4故障;④RBC线圈烧损或接线断路。
⑤D12击穿。
2)判断方法:①闭合空压机开关AK9,手按风泵手动按钮AN2,YC1不吸合,“空压机”信号灯不亮,为AK4故障;②用负试灯测J3常闭触指两端,253B有电而254号线无电,即为该触指接触不良;③检查DLS的吸合状态,若DLS也不吸合,此时滑油压力在50Kpa以上,即可判定为YK4故障;若DLS吸合,则为RBC线圈本身故障。
3)应急处理:①检查AK4接线,若AK4故障不能修复,应急时可短接C3/1~C3/2(AK3闭合);②J3常闭触指虚接时应打磨;③YK4故障,应急时可短接D2/14~D2/1;④RBC线圈故障可人为使其吸合(垫起或捆绑)。
⑤甩掉D12维持运行。
4)注意事项:①短接C3/1~C3/2后,在停机时需断开AK3;②短接YK4后,运用中应随时注意机油压力显示,机油末端油压不得低于50Kpa;③人为使其吸合后,停机时应松开。
第0篇第0章第2条燃油泵接触器RBC吸合,燃油泵电机RBD不转如何判断处理1)故障原因:①燃油泵脱扣开关ZK6在“分”位;②101E~147号线间RBC主触头接触不良;③燃油泵转换开关WHK3“I”泵触指接触不良或“Ⅰ”泵电机故障。
2)判断方法:①检查ZK6是否在“分”位;②将燃油泵转换开关置“Ⅱ”泵位,若“Ⅱ”泵电机也不转即为RBC主触头接触不良;若“Ⅱ”泵电机转动则为“Ⅰ”泵触指不良或“Ⅰ”泵电机故障。
3)应急处理:①将ZK6置“合”位;②RBC主触头接触不良时可修复不良处所或短接;③使用“Ⅱ”泵维持运用。
第0篇第0章第3条按下启机按钮AN1,启动接触器QC不吸合如何判断处理1)故障原因:①主手柄未在“0”位或“0”位触指接触不良;②启机按钮AN1接触不良;③242C~243A号线间QBC常开触指,243~244号线间FLC常闭触指,244~245号线间QXC常闭触指接触不良;④QC线圈烧损断路或接线断。
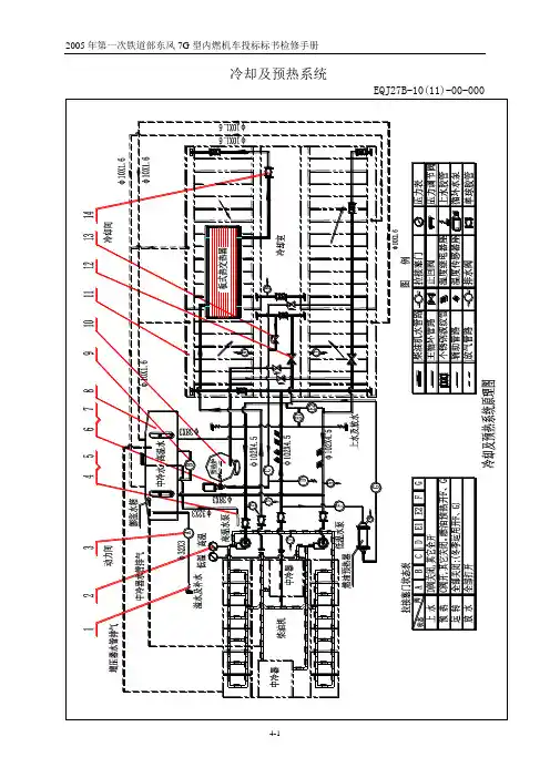
2.2.3 高、低温水最高温度:高温水出柴油机88℃低温水进中冷器60℃3 冷却水系统检修技术要求3.1 检修范围3.1.1 检修时注意各软管、密封垫是否老化、裂纹、脱胶等不良现象,如有上述情况及时更换新品。
3.1.2 压力表定期检查、校核,损坏更换。
3.2 检修周期3.2.1 中、小修时对整个冷却水系统进行综合检查,注意散热器、各管路是否泄漏。
风扇质量状态。
4 冷却水系统装配技术要求4.1 各接头体、球接头与钢管焊缝的高度不小于相应钢管的壁厚。
4.2 各支管式接头体与相应钢管的连接处,钢管钻孔直径不小与相应支管的通径。
4.3 各管路预制制组装时应注意排水,应朝排水阀的方向适当倾斜。
4.4 管路组焊完毕,进行0.5MPa水压试验,延续5min不许泄漏。
4.5 各钢管及相连的法兰或管接头进行磷化处理(Φ17以下除外)。
4.6 表管加缓冲环两圈。
4.7 车架以下钢管包扎保温泡棉。
冷却室装置EQJ27B-11-00-0002 冷却装置工作原理及性能参数2.1 冷却装置工作原理由钢结构、风胴、集流箱、风扇、散热器、顶百叶窗、侧百叶窗等组成,主要负责冷却柴油机运动机件摩擦、增压空气、燃气燃烧、机油润滑产生的热量。
2.2 冷却装置性能参数2.2.1 冷却装置散热器分布:靠门两侧各13组为低温散热器;后端两侧各7组为高温散热器。
2.2.2 4个侧百叶窗、2个风扇、2个顶百叶窗与高、低温散热器相对应布置。
3 冷却装置检修技术要求3.1 检修范围3.1.1 检修冷却装置时,检查内部各胶管是否老化,风扇扇叶是否有裂纹,允许进行修焊,需做静平衡试验。
3.1.2 散热器表面是否脏污或有倒片现象。
3.2 检修周期3.2.1 中、小修时对整个冷却装置各运动件、散热器及管路进行检修。
3.3 拆装方法3.3.1 拆装路线a) 侧百叶窗、散热器b) 顶百叶窗、风扇、交流变极电机c) 各管路3.4 试验方法3.4.1 先将冷却装置内各管路装配完,再将散热器装好,对整个冷却室装置进行500kPa 水压试验,检查各部不得泄漏。
DF7G型机车故障处理目录一、合闸刀直流控制电压表1PVA或2PVA电压无显示或显示电压低的处理方法二、闭合ISALP,滑油泵电机不工作的处理方法三、闭合ISAFP,燃油泵电机不工作的处理方法四、柴油机启动后松开ISBST后停机的处理方法五、起机时柴油机只转动不爆发的处理方法六、柴油机转速不能“升、保、降”调速的处理方法七、闭合ISADG,直辅发电机GAS不发电的处理方法八、闭合ISAAE,交辅发电机不发电的处理方法九、闭合ISACA,空压机不工作的处理方法十、风泵泵风不止的处理方法十一、提手柄“1”位,机车不加载的处理方法十二、提手柄“1”位,LCD显示加载,但机车未加载的处理方法十三、运行主回路接地的处理方法十四、运行中水温高的处理方法十五、运行中卸载,LCD显示“支路过流”的处理方法十六、运行中卸载,LCD显示“总过流”的处理方法十七、运行中柴油机减载,LCD显示“差流”的处理方法十八、通风机转速低故障卸载的处理方法十九、机车显示正常运行,但加载不上,卸载等不灭的处理方法二十、机车微机励磁加载后柴油机压转速,冒黑烟的处理方法二十一、柴油机有敲缸声音的处理方法:二十二、柴油机需进行甩缸时的处理方法:二十三、运行中制动时,均衡风缸,列车管压力不下降的处理方法:二十四、空气干燥器排风不止时的处理一、合闸刀直流控制电压表1PVA或2PVA电压无显示或显示电压低的处理方法原因:1、XDC损坏或断线;2、电阻RC开路或熔断器FUC烧;处理:1、甩除XDC故障单节;2、检查RC是否开路;3、如逆流装置VRC反向击穿,可断开SGB,拔下FUSG,更换FUC,再闭合SGB,启动柴油机待正常发电后将FUSG快速接好维持运行。
停机或停止直流辅发前先拔FUSG。
二、闭合ISALP,滑油泵电机不工作的处理方法原因:1、KMLP未吸合;2、MLP电路故障处理:1、检查PLC输入IRO1314亮且IRO1313不亮,PLC输出IRO0201亮,若模块A1.OUT.2亮,则是KMLP断线或KMLP故障;否则是固态继电器或线路故障;2、查MLP 电路和电机本身三、闭合ISAFP,燃油泵电机不工作的处理方法原因:1、KMFP未吸合;2、MFP电路故障处理:1、PLC输入IRO1313亮、13.10灭、13.09亮,若模块A1.OUT.1亮则是KMFP 断线或KMFP故障,否则是固态继电器或线路故障;2、查MLP电路和电机本身;3、若KMFP线圈故障一时无法修复,可人工固定吸合维持运行。
DF7内燃机车一、机车构造及分布DF7机车车体为外走廊式罩盖式结构,机车上部由前往后依次为:辅助室、冷却室、动力室(柴油机间、主发电机间)、司机室、电气室(高、低压电器柜)五部分。
电器室:分为高压电器柜和低压电器柜。
高压电器柜:主电路控制电路包括两台换向开关(分别控制前、后两台转向架牵引电动机的换向)、6台主接触器(分别控制每台牵引电动机电路的通、断)、A接线盒、主电路接地保护继电器、主电路过流保护继电器、电子恒功用的牵引电动机电流检测霍尔元件、主发电机功率检测霍尔元件。
低压电器柜:电子恒功励磁装置、无级调速驱动器WJT、电压调整器、辅助发电过流器、3个时间继电器、B接线盒、10个中间继电器以及用来控制小电机、头灯等电流较大的电路用的9台CZ0-40/20型接触器、控制空气压缩机电机、启动发电机、励磁发电机等用的6台CZ0-400/10型接触器。
司机室:在司机室内设有手制动机、司机座椅、暖风机、侧壁暖气、电风扇、衣物箱等设备和装置。
司机室机车前方左侧设有司机操纵台,操纵台上安装有司机控制器、JZ-7型空气制动机阀、操纵按钮、仪表、信号装置。
司机室地板下中部和右部是电器走线盒,左侧是均衡风缸、控制风缸、中继阀、风管路等。
操纵台后面有一扇门,内有全部单极自动跳扣开关、6台牵引电动机的故障转换开关、燃油泵转换开关、机油泵转换开关、接地转换开关、照明转换开关、空气压缩机熔断器(空压机保险)、充电保险、蓄电池闸刀。
动力室:安装有柴油机-发电机组。
动力室后部为发电机间,其中设有主整流柜(包括励磁整流柜、硅整流柜)、牵引发电机、启动变速箱、启动发电机、励磁机、后牵引电动机的通风机、互感器、撒沙电空阀、电子恒功装置使用的柴油机转速检测系统、两个总风缸、分配阀、作用阀、紧急放风阀、等。
注:为防止柴油机的油雾进入发电机间,在柴油机和牵引发电机之间设有隔板,动力室的前部为柴油机间。
柴油机间:除柴油机为还有机油滤清器、辅助机油泵、燃油输送泵、燃油预热器、燃油粗滤器、预热锅炉、膨胀水箱(包括预热锅炉的小油箱)、两台燃油泵电机、一台机油泵电机、温度继电器、传感器、压力继电器、D接线盒。
DF7型电子恒功励磁装置故障判断和处理石家庄电力机务段内检车间李睿哲我段配属的DF7型机车应用于调车作业。
该型机车采用了电子恒功励磁系统(以下简称电子励磁),在机车功率发挥,节约燃油,机车平稳起动及机车自动保护等方面发挥了良好的作用.但运用中,电子励磁故障率较高,影响了机车的正常运用。
该装置集成度高,检修技术含量较高.经过几年的学习和调查研究,我们总结了判断和处理电子励磁故障的方法,现作以下探讨.首先,简要阐述一下电子励磁的基本工作原理。
电子励磁以柴油机转速为基准信号,用基准信号与测得的牵引发电机输出功率信号相比较,经调节放大,用以控制励磁机励磁电流,从而控制发电机输出功率。
同时,该系统还采用降低主发电机功率的方法来实现空转保护和主发电机的限压,限流保护。
图1为电子恒功及限压限流控制原理方框。
柴油机转速信号n经磁电脉冲传感器检测、整形、频率变换,反向放大后产生E n值,送入函数发生器。
函数发生器根据柴油机转速信号n产生三路给定信号:功率给定P ref =f(n)曲线提供机车牵引功率与柴油机转速的关系控制特性曲线,它决定机车牵引功率;限压给定U ref =f(n)和限流给定I ref =f(n)提供机车限流和限压曲线。
功率给定P ref在比较环节中,与检测反馈而来的实测功率信号P、限压限流信号P lim、空转信号P k进行比较,如果|P ref|≠|P+P lim+P k|时,使输出控制信号V p大小变大小,改变励磁电流I LL,调节机车功率,使得|P ref|=|P+P lim+P k|实现恒功调节。
因为实际工作中各信号的参数是不断变化的,所以电子励磁系统实际处于随时调节随时平衡的状态。
其次,简单了解电子励磁的组成部分电子励磁箱有10个插件,和11#、12#和转速传感器组成检测部分。
①、1#、2#、3#备用组件为预留,就不多做介绍了。
②、4#是空转保护组件,由12#组件将检测到的6台牵引电动机的电流信号送到4#。
DF_7型机车启动电机传动轴修理中的问题及解决
宋锁奎
【期刊名称】《铁道机车车辆工人》
【年(卷),期】2001()9
【摘要】DF7型机车启动电机传动轴,由于其转速高(3 000 rpm),传递扭矩大,因此其加工装配精度要求较高.在修理启动电机传动轴过程中遇到两个比较棘手的问题.一是轴承外圈与叉头轴承孔配合间隙的处理,二是十字销与轴承外圈轴向间隙的测量.根据多年的修理经验,摸索出解决这两个问题的方法,取得了良好的效果,现介绍如下.
【总页数】1页(P16-16)
【关键词】DF7型机车;内燃机车;启动电机传动轴;修理;轴承外圈;叉头轴承孔;配合间隙;十字销
【作者】宋锁奎
【作者单位】保定机务段
【正文语种】中文
【中图分类】U269.5;U262.46
【相关文献】
1.QKTZ8-3型电机车控制器使用中的问题及改进 [J], 陈捷添;刘龙飞
2.DF7型机车启动电机传动轴修理中的问题及解决 [J], 宋锁奎
3.某135 MW火电机组启动中工质水质问题及解决方法 [J], 周荣勤
4.利用单杆镗床解决东风4型机车牵引电机镗孔问题 [J], 吕建江;毛黎明
5.DF8B型内燃机车牵引电机轴承室窜油问题分析及解决措施 [J], 于斌;朱彬彬;夏国峰;王荣
因版权原因,仅展示原文概要,查看原文内容请购买。
DF7型机车专业知识复习题(一)填空题:18.东风7c型内燃机车采用( )电传动方式。
交—直流19.东风7c型内燃机车采用了两种接触器,一种为电空接触器,另外一种为( )接触器。
电磁20.电空接触器主要由( )、灭弧装置、辅助触头、驱动装置组成。
主触头21.接地继电器的动作值为( )A。
0.522.油压继电器包括测量机构和( )机构两部分。
执行23.电磁联锁DLS由螺管式( )及桥式触头等组成。
电磁机构24.机车主手柄与换向手柄之间装有( )装置。
机械联锁25.东风7c型机车采用的是改变牵引电动机( ) 使牵引电动机正转或反转方向的。
励磁电流26.启动延时接触器QXC延时( )S后动作,其常开辅助触头闭合,为柴油机启动准备好电路。
12027.正常情况下,柴油机应在( )S内启动完毕。
10?28.柴油机停机时将AK4断开,RBC和( )失电,柴油机熄火停转。
DLS29.水温继电器WJ1的动作值为( )℃。
8830.当柴油机曲轴箱内压力大于( )Pa,差示压力计CY闭合。
60031.在电阻制动工况下,机车轮对驱动牵引电动机转子,在励磁绕组磁场的作用下,变为( )运行。
发电机32.磁场削弱有手动控制与( )控制两种方式。
自动33.电压调整器的作用是,当柴油机转速发生变化和负载改变时,自动调节启动发电机的( ),维持110V恒压。
励磁电流34.东风7C型机车的励磁电路设计有两套独立的系统。
一套是电子自动恒功励磁系统,另一套是简易的( )系统。
故障励磁35.东风7C型机车的时间继电器主要由( )、触发电路、输出电路、电源组成。
延时电路36.东风7C型内燃机车三相感应子励磁机的冷却方式为( )。
自通风37.东风7C型内燃机车启动发电机在发电机工况为( ),电动机工况为串励。
它励38.机车运行中,牵引电动机环火将造成机车( )。
卸载75.DF7C型机车安装有两个柴油机水温保护继电器,1WJ的动作值为88℃,2WJ的动作值为( )℃。
东风7G型(DF7G)内燃机车故障处理说明:1、DF7G机车故障判断顺序:首先看微机屏的显示,检查是否有输入,没有输入应检查开关、输入信号、接线等,没有输出为微机故障,微机显示输入、输出均正常应检查电器、联锁、保险、脱扣开关等。
2、DF7G机车的固态继电器A1-A6、B1-B3处理故障应首先观察指示灯是否亮,同时注意固态继电器接线以及换向器接线容易松动,应加强检查。
3、检查故障应注意电器动作顺序:开关—PLC输入—-PLC输出—固态继电器—电器线圈—电器动作。
4、本故障处理方法未全部上车检验,仅供判断故障参考。
一、机车PLC故障:现象:1)微机不工作,微机屏显示。
检查处理:1、如果控制输出脱扣开关(QFDV)脱扣,可恢复。
现象:2)微机不工作,微机屏不显示。
检查处理:1、检查24V电源(VC1)输出、输入是否良好,保险管是否烧损,插座是否接触良好;可更换保险管或者换另一套。
2、检查微机箱POWER 3001F和3000F接线是否松脱,电源指示灯是否工作。
接线松脱时,紧固接线。
3、检查微机输入脱扣开关(QFLV)是否脱扣。
4、检查控制输出脱扣开关(QFDV)是否脱扣。
二、不单打滑油现象:合滑油泵开关,滑油泵不转。
检查处理:1)微机屏无输入。
(IR013:14)滑油泵开关(1-2SALP)接线断线或者接触不良。
处理:整修不良处所。
现象:2)微机屏有输入,有输出(IR102:01)。
检查处理:1、检查固态继电器A1接线2004#(输入)203#(输出)是否良好,指示灯是否正常。
2、滑油泵脱扣开关(QFLP)是否脱扣。
3、滑油泵接触器(KMLP)是否吸合到位。
三、不打燃油现象:合燃油泵开关,燃油泵不工作。
现象:1)微机屏无输入。
(IR013:13)燃油泵开关(1-2SAFP)开关接线是否断线或者接触不良。
现象:2)微机屏有输入,有输出(IR102:00)。
检查处理:1、检查固态继电器A1接线2002#(输入)201#(输出)是否良好,指示灯是否正常。
中南大学网络教育毕业论文论文题目东风七型内燃机车柴油机常见故障分析及处理姓名周渠丰学号 13031070016189专业机械设计制造及其制动化(铁道机车方向)层次专升本学习中心太原学习中心指导教师宁俊学2015年 4 月23 日中南大学网络教育毕业论文(设计)任务书[1] 题目类型:①理论研究,②实验研究,③工程设计,④工程技术研究,⑤软件开发。
[2] 题目来源:①工作任务题,②生产实际题,③模拟或虚构题,④学生自选题。
本任务书必须网上报送学院,学院审批通过后,下载放置在学生论文首页。
目录摘要 (6)第一章、绪论 (7)1.1 阐述柴油机的作用及其发展状态 (7)1.1.1 柴油机的作用 (7)1.1.2 柴油机的发展状态 (7)第二章、东风7 内燃机车柴油机的构造与工作原理 (8)2.1 柴油机的概述 (8)2.2 柴油构造及其主要部件 (8)2.2.1东风7型柴油机的构造 (8)2.2.2东风7型柴油机的主要部件 (9)2.3柴油机的工作原理 (9)第三章、柴油机常见的故障简介 (9)3.1柴油机部件容易产生的故障简介 (9)3.1.1主要固定件 (9)3.1.2运动件 (10)3.1.3 配气机构 (11)3.1.4 调速控制装置 (11)3.2柴油机各系统容易产生的故障简介 (11)3.2.1 燃油系统 (11)3.2.2润滑系统(机油系统) (12)3.2.3冷却水系统 (12)3.2.4增压系统....................................... (12)第四章、东风7型柴油机常见的故障的判断与处理方法 (13)4.1柴油机启动时的故障判断与处理方法 (13)4.1.1柴油机启动时曲轴转动,但不爆发 (13)4.1.2柴油机飞车,但超速停车装置起作用 (13)4.1.3柴油机爆发声音不对,排气温度上升 (14)4.1.4柴油机不停机 (14)4.1.5柴油机机油压力低 (14)4.2 运行中柴油机的故障判断与处理方法 (15)4.2.1柴油机功率不稳 (15)4.2.2柴油机功率不足 (15)4.2.3柴油机突然停机 (16)4.2.4燃油系统排气不止 (16)4.2.5柴油机机油压力突降 (16)4.2.6柴油机机油有水 (17)4.2.7柴油机冒黑烟 (17)4.2.8柴油机冒白烟 (17)4.2.9柴油机排气,冒蓝烟 (18)第五章、总结与展望 (18)参考文献 (19)致谢 (20)摘要本论文首先对机车柴油机的作用以及当前的发展形势作了基本的简介,再次对东风七型柴油机基本工作原理、主要部件及其构造进行了阐述,同时对柴油机的各系统的作用及容易发生的故障部件、系统作简要叙述,然后结和我段所配属机车柴油机的实际情况对机车柴油机运行故障原因、判断方法、处理方法进行研究。
东风7型(DF7)调车内燃机车东风7型(DF7)调车内燃机车东风7型调车内燃机车代号DF7,北京二七机车厂1982年设计,1985年正式生产制造,目前已经停产。
DF7调机型内燃机车主要担当调车以及小运转任务。
此车为外走廊式设计。
柴油机装车功率为1470KW,最大速度为100km/h,车长17800mm,轴式C0-C0,传动方式为交-直流电传动。
适用于大型枢纽编组站场调车及工矿小运转作业,可根据用户需要加装低恒速装置。
机车起动加速快,燃油消耗率低、噪音小、运转性能优良,作业效率高,运行安全可靠,操纵和维修方便,曾经深受用户欢迎。
东风7型内燃机车主要技术参数轴列式 C0-C0轨距 1435mm装车功率 1470kw轴重 22.5t计算整备重量 135t轮径 1050mm最大速度 100km/h起动牵引力 428kN通过最小曲线半径 100m机车全长 18800mm机车高度 4750mm机车宽度 3344mm燃料箱容积 5400L东风7G型(DF7G)调车内燃机车东风7G型(DF7G)调车内燃机车东风7G型内燃机车是一种交—直流电传动内燃调车机车,主要用于大、中型编组站的编组及调车作业。
该机车是南车四方机车车辆股份有限公司在吸取了NJ1型交流传动内燃调车机的经验后,研制和生产的全新交流传动内燃调车机。
齿轮箱底部距轨面高147mm,可保证轮对全磨耗下顺利通过驼峰。
机车采用外走廊式车体,主车架承载的模块化结构,上部设有冷却室、动力室、辅助室、电气室、司机室和制动室六个模块。
目前该型机车的主要生产单位是北车集团北京二七轨道交通装备有限责任公司。
柴油机:装用12V240ZJ型柴油机,增压系统采用脉冲增压,部分工况性能较好。
主要零部件可与东风4型机车的柴油机通用互换。
柴油机辅助系统:进气滤清系统采用二级滤清,粗滤采用多旋流管式空气滤清器,细滤采用圆筒式纸质空气滤清器,设有动力引射除尘装置,负压报警装置。
高温水及机油系统设有恒温阀,油、水管路采用不锈钢阀门。