婚房只有40平米,让人看了憋屈,但是我真心住的开心舒适
- 格式:docx
- 大小:18.85 KB
- 文档页数:4
十年租房终于有了自己的小家,虽不豪华但很温馨!
大学毕业开始就在外奋斗,刚出来的穷大学生没钱只能住廉价的出租房,一住就是整整十年,就连结婚的时候也没买房,带着老婆住在出租房里。
皇天不负有心人,十年奋斗终于小有所成,两夫妻有了一点积蓄,再加上父母的资助,买了一套属于两夫妻的房子,虽然装修并不豪华,但是很温馨,对我们两夫妻来说意义非凡。
面积:138平,3房2厅2卫一厨
玄关
玄关处摆放了两张凳子,方便脱换鞋,柜子够大,多少双鞋都放得下。
客厅
整体的装修很简单,颜色是温暖的奶咖色,小碎花窗帘加上布艺沙发,非常宜家风。
电视背景墙也非常简单,一个柜子走天下。
餐厅
对于餐厅有特殊的情怀,觉得餐厅是一个家中最有家的味道的空间,因此无论是餐桌还是餐厅的灯都是精挑细选的。
主卧
主卧的布置也很简单,就床和柜子再加上一张桌子,卧室还是简单些比较利于睡眠。
次卧
次卧是儿子的房间,所以在色调上更为明亮些,床边有张小桌子给他做作业用刚刚好。
书房
书房里也摆了一张床,爸妈来看我们或者别的客人来的时候就可以住得下。
主卧卫生间
次卫
平面图设计图
本文作者:罗冬。
赞美婚房的说说赞美漂亮婚房句子住进漂亮的婚房,也代表了自己即将开始一段幸福的婚姻生活,一切都是甜蜜的开始,那么赞美朋友漂亮婚房的说说句子有哪些呢?一、赞美婚房的说说1.看过太多千篇一律的婚房,今天看你们的真的是眼前一亮,太美了。
2.没有传统的大红,但是却格外觉得这样清新的格调温馨而美好,祝贺你两。
3.这是属于你们两个人的小窝,经过装扮有独属于你们的气息,这是美好的开始。
4.祝贺两位,经过拼搏有了属于自己的婚房,有了自己的小家,愿你们在这漂亮的房子里恩爱永远。
5.每个人都有自己不同风格类型的婚房,你们的婚房真的如你们人一样漂亮大气,恭喜两位了,携手白头。
6.为了这一天你们经历了很多,从你们婚房的照片上看到了你们的恋爱经历,很美好,而且很有个性,太温馨了。
7.开心快乐都融入到了这个房子里,祝福两位拥有自己的幸福小窝,从今以后在这个港湾,尽情的享受彼此的温暖。
8.婚房是每个新人最幸福充满喜庆温馨的地方,今天参观完你们的婚房真是感慨良多,首先漂亮温馨不用说,看到了你们彼此的付出与努力,恩爱,加油,一定会幸福永远。
二、赞美漂亮婚房句子1.婚房成为我们现代人结婚的标配,但是不同的房屋格局不同的新人性格,让我们见识了太多漂亮的婚房,今天看见你们这么简单但是却处处透露出生活气息的婚房,平淡却不失温馨,很感慨,祝福两位百年好合,早生贵子。
2.婚房里鲜花不多但是却很好的成为点缀,崭新的家具以及用心的装修都能够看出新人对于今后生活的认真,祝福两位新人从今儿起拥有自己美好的港湾,在这里,我相信你们可以卸下生活的烦劳成为对方坚实的依靠。
3.一走进这套婚房到处喜庆的设计让我顿感婚姻幸福的开始,相信你们也明白彼此之间的爱,所以才能让这婚房看起来充满了爱意,首先恭喜两位了,其次不得不说被你们婚房的装饰所折服,气球,喜字,让我们看到了你们婚后红红火火的好日子。
小结:对于赞美朋友婚房的句子,相信每个人看到的感慨不一样,但是最后都会化作赞美的语言祝福新人,上面为大家编写了一些赞美的句子说说,仅供参考。
房源标题:(突出房子的主要特点,吸引客户,增加点击量和电话量)完整的房源标题应该是:商圈+卖点+楼盘名称+户型+卖点(信息点)如果错过这套三房,还会有下一套么?史上最超值的二手房,看了你就知道!这房真没有什么优势,但就是很多人想买,这是为什么呢?我什么都没有,我这里只有你需要的房子买的不是房子,买的是幸福观望一次涨一次,您还在观望吗?享受生活从这里开始疯了,居然还有这么便宜的房子不管您看了多少次,它也不会降一次真有这样的家——真的很温馨市场还要火呀,现在正是好时机,来电看房吧告别蜗居时代——您准备好了吗?这都是怎么了,多好的房子呀,房东怎么舍得卖掉呢?适合过渡,解决一时住房需求要结婚了,买房装修这里可以一步到位如果要观望,我建议您看房这房子后再观望,一定不会让您失望的所以人都在观望的时候,你敢出手吗?独家房源,仅此一套,错过了就没有了,机会只有一次,还在犹豫吗?政策在变,服务不变,好房急售政策已经至此,房价逐渐回升,观望后悔莫及送阁楼,相信独具慧眼的您会买就会赚,仅此一套买房投资都请点击!!本房有很大的升值空间好的房子不是用来欣赏的,是用来享受的毛坯房给您更多自由装修空间政策来了您犹豫了,低价房来了您心动吗?真正的拎包入住,洒脱无比精致户型——享受无限阳光生活经典3房,全明户型!精装修!两证齐全!精装两房,送设施,拎包即住,总价低买的就是大户,图的就是省心,好房子,好价格!有故事的房子,花心思的家实用两房尽享三口之家的乐趣,触碰幸福的温度,舒适如新,经典把握超爽南北通透两居室,安家置业的首选大三房天伦之乐无可比拟不要心疼的放弃,只要幸福的得到奢华的房源,朴实的价位,您为此停留而选择忍受不了越来越贵的房租,那就买套房子享受吧!托付一生的家园好房要淘,好房难得,进来看看,100%真实,针对买房结婚的:1. 要结婚了买房装修这里可以一步到位2. 婚房!婚房!结婚啦!有了她就可以有老婆了!3. 离梦想很近实现舒适三房体验奢华生活新婚首选4. 精致三房时尚的装修风格婚房优选5. 此房原为结婚而备为结婚而装现因离开而售寻找有缘人6. 豪装XXX万不曾入住是你追求生活品质的绝佳选择!针对还在观望的:7. 如果要观望,我建议你看完这个房子后再观望,一定不会让您失望!8. 所有人都在观望的时候@!!!你敢出手吗9. 政策已经至此,房价逐渐回升,观望后悔莫及!10. 08年在观望, 09年在观望! 10年您还在观望么?机会只有一次!11. 独家房源!仅此一套!错过了就没有了,还在犹豫吗12. 观望是没有结果的,该出手时就出手这才是硬道理13. 政策在变,服务不变,婚房急售14. XX万买数一数二的学区房,还等什么针对想要投资的:15. 观望是没有结果的,该出手时就出手这才是硬道理16. 送阁楼,相信独具慧眼的您会买就会赚仅此一套17. 投资少,回报高的性价好房出售!18. 黄金楼层,足不出户就找到好房!!!19. 机会只有一次!!!不看这套房子绝对后悔20. 买房投资都请点击!!!本房有很大的升值空间!!21. ¥¥¥忍痛急售!!南化医院对面即将拆迁的房子针对急售房的:22. 周转急用钱好房特买三天绝不食言!!!23. 震撼价:XX小区,精装新房卖毛坯价,要买快来看!24. 惊爆价,稀缺复式,单价xx,仅售两天25. 一克拉钻石品质机会只有一次26. 什么叫真正特价房看看这套你会明白!急售针对小区环境好的:28. 观望是没有结果的,该出手时就出手这才是硬道理29. 好的房子不是用来欣赏的是用来享受的!!!30. 毛坯房给您更多的自由装修空间31. 精装两居地铁沿线超值因房子小换大黄金地32. XX小区花园式洋房豪装黄金三楼 XX学校旁有图有真像33. 高档小区人文荟萃高品质的象征豪华婚装!34. 热销新房,全优的生活配套,环境绝佳优美35. 马上通地铁了,小区环境不错,经典小户型部价低楼层好36. 小区环境不错,经典小户型部价低楼层好37. 新空毛坯!滨湖高档小区!纯本西班牙风格!38. 高档社区景观好房不可多得稍纵即逝!针对语言比较个性的:41. 政策来了您犹豫了低价房来您心动吗?42. 机会只有一次!!!不看这套房子绝对后悔43. 当XXX的出现,是又一次完美而响亮的音符44. 真正做到拎包住,洒脱无比45. 观望是没有结果的,该出手时就出手这才是硬道理47. 带XX小学名额,别让我们孩子输在起跑线上48. 精装两房真漂亮,错层设计真时尚!针对靠近地铁的:49. 未来地铁出口!升值空间巨大!XX湖景三房急售!50. 紧靠XX路地铁站的出口!未来升值空间巨大!XX水景三房急售!51. 紧邻地铁口,稀缺小房型双南房,仅售xx万52. 地铁一号线豪装稀缺小三房毛坯价格急售!53. D调的奢华:母亲河边,欧式田园风,豪华装修,地铁盘学区房55. ******正规小区全明双南采光好房型佳得房率高3号地铁口精装56. 豪华装修,拎包入住,真正的地铁楼盘,升值空间无限针对语句优美的:57. 难以被复制的全新浪漫洋房生活58. 奢华电梯洋房让生活空间更惬意59. 畅想真正的浪漫花园洋房生活,回家就是一种度假60. 小房子也有大风景61. 毛坯房给您更多的自由装修空间62. 总有一处让人忘形的舒展自己63. .让一家欢聚的余音绕梁64. 充分呵护下一代的璀璨起航。
小户型装修案例折页文案P1建设有自己特色的小家完美体验小户型的惊艳魅力小户型大焦点分享小居室的设计聪慧小户型家居正在成为人们关注的焦点。
随着以后土地资源的紧张、年轻购房人群的增多,小户型的涌现势不可挡,新一轮的小户型设计也将更加人性、空间更加丰富、功能更加齐备。
“小空间里有大聪慧”,让你完美体验小户型的惊艳魅力!迷你雅居时下,越来越多的年轻人被高房价“逼”进了几十平米的小户型。
面对如此狭小的空间,每个人的念头却专门“大”——主卧、次卧、客厅、书房、婴儿房、阳台等等,一个都不能少,而且还要装修得时尚雅致,有个性,不俗套,一居室住出三居以上感受……想要在方寸之地中实现这么多“不合理”的愿望,太贪心了吧?能有如此的好事吗?P235平鲜艳小窝绽放流光溢彩专门喜爱如此的设计,摆脱了家居常规的四平八稳,看起来上了彩妆似的,专门美,简直让你惊艳。
小窝的建筑面积只有35平米,不管是有用性的设置和空间意境的表达,都令人专门中意。
设计的作用和面积无关,设计也没有大小之分,关键是设计是否用心,双方配合是否愉快,是决定结果能否中意的核心因素。
整体的色彩搭配专门和谐,鲜艳然而一点也不喧闹。
P3合理安排空间33平迷你蜗居也杰出从过道看客厅,上面的照片是男主人帮女主人拍的,然后自己DIY挂上去的。
专门有个性。
33平方米的房子,如此小的房子,真正的蜗居。
此蜗居虽小,但装修得专门好,不仅漂亮,而且有用功能全,超强设计,比大房子还有用。
小户型蜗居因为空间的局限,在装修设计等环节,可能一些业主会专门惆怅,然而只要碰到了一个好的设计师,面积、层高等这些都不是问题,要紧是合理安排空间,多采纳障眼法,让人进入那个家中能忽略掉你面积的局促,满眼看到的是让人赞颂的别出心裁的精美设计。
单身贵族家居美女杰出空间单身贵族并不意味着孤独,“残羹冷炙”,而更多地代表了坚强,独立自主。
一个人的生活,也能够拥有温顺的家。
单身贵族,即使只有40平的空间,也能够像贵族一样享受着一个人的杰出家居生活。
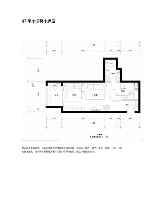
47平米温馨小蜗居
麻雀虽小五脏俱全,在这么有限的空间里需要把更衣区、换鞋区、厨房、餐厅、客厅、卧室、书房、卫生间都考虑上,怎么样看着舒适又整体又最大化利用空间,是这个空间的难点;
一束光,一面照片装饰墙,一个衣服和鞋的收藏柜,一块地毯,一面试衣镜,玄关的实用和美观就展现出来了;
通透、连贯;
增加空间的层次感,层层叠进;
定做的餐桌;
局部的砖和局部的壁纸中间用瓷片线条区分开;
书架在卧室和客厅实用起来都很方便,又起到装饰的作用;
右侧的衣柜,打开就是电视,壁挂机也隐藏在里面;
阳台下面可以储藏东西哦,还可以在上面睡觉和喝茶,一举三得;。
房屋出售文案简短
嘿,朋友!你知道吗,有一处超棒的房子在等待它的新主人呢!这
可不是一般的房子哦。
想象一下,当你每天下班,拖着疲惫的身子回到家,一打开门,哇,那是一个多么温馨的港湾呀!宽敞明亮的客厅,就像一个温暖的怀抱,让你一下子就放松了下来。
(就像你在寒冷的冬天,突然走进了一间
生着炉火的屋子一样温暖。
)
房间的布局那叫一个合理,每一个角落都好像是为你精心设计的。
厨房干净整洁,你可以在里面尽情发挥你的厨艺,做出一道道美味佳肴,犒劳自己和家人。
(这不就像是一个专属于你的美食魔法屋嘛!)还有那舒适的卧室,柔软的床铺仿佛在对你说:“快来呀,躺下来
好好休息吧。
”晚上躺在上面,就像睡在云朵里一样,一觉睡到天亮。
(你想想,是不是比五星级酒店还舒服呀!)
房子周边的环境也超赞呢!有美丽的花园,清晨你可以去散散步,
呼吸一下新鲜空气,感受大自然的美好。
附近还有学校、超市,生活
超级方便。
咱再说了,这样的好房子,价格还特别合理,性价比超高的!你还
在等什么呢?难道你不想拥有这样一个温馨舒适的家吗?赶紧来看看吧,错过了可就太可惜啦!
我的观点很明确,这房子就是好,就是值得你拥有!不管你是想自己住,还是投资,它都是一个绝佳的选择!别犹豫啦,行动起来吧!。
45平米蜗居装修图片超级温馨又省钱餐厅当时买的是白色的餐桌,餐桌当时买的时候有点滴小贵,在好天气买的,厨房特意装了一些红色的瓷贴,整体都有些活跃,不会太死板。
进门左手边的厨房,小小厨房,是我喜欢停留的地方,鼓捣各种吃食,看着享用的人大快朵颐,是我的幸福~右手边是卫生间,虽说居家风水有云,卫生间不可对厨房,但无奈小窝只有区区几十平米,讲究不得了,弄了个崩纱窗帘,算是化解下吧,呵呵,其实只要自己用心经营生活,越来越好小日子,是自己努力得来的~房子很布局很简单,小而温馨的一室一厅,看完客厅厨房就只能是卧室了,呵呵,一目了然的很,自己依照窗型设计柜子和小榻,布艺选了已经对我来说有些不嫩装嫩的公主样式,每个女孩子心中的梦想的种子,不论什么年龄,只要有土壤就会茁壮成长~通向卧室的过道,房间小没有足够的储物空间,就利用这个过道,做了顶天立地的柜子,正对的是衣橱,侧面的折叠门后是隔板,不是很宽,专门用来放女人最多的包包和鞋子~由于家里人口简单,卧室都没有装门,利用这个拐弯也起到了隐蔽效果这个是进门后换鞋的地方了,呵呵,地方实在是小,买不到合适的鞋柜,我就指鹿为马一把,放了个床头柜,放了几双拖鞋,反正家小,而且专门给鞋鞋预备了寝室,就因地制宜吧迷你小窝中更迷你的卫生间,但是欣慰的是找到了尺寸和样式都极为可心的浴室柜,此处为我家金屋藏娇之地,为平均单位价值最高物件,这个平均单位是无论从体积还是数量。
不过值得欣慰的是马桶上的小柜子,呵呵,平衡了一下,实在是物美价廉的很卫生间太小,相机太老,照不下全景,这个是淋浴部分,紧邻浴室柜,朋友甚是替我担忧,这样没有浴帘浴屏的,那“金贵”浴室柜怎能“长命百岁”,开始我也没想出办法,一日嗯嗯时突然灵光闪现(嘻嘻,不好意思),咱没条件把自己圈起来,还不能把柜子圈起来嘛,呵呵,剪了一块浴帘的布,现在每天洗澡时,左右一搭,把柜子围起来了再来看看客厅吧,习惯上大家叫客厅,其实这样的小窝有多少时候是真的“见客”呢,还不是两个人窝在那里,不过虽然这样,我们还是敞开门欢迎大家的,呵呵,看看墙上的画,就能看出区别了,沙发后面的这幅画和卧室中七屉桌上那幅画是一组,不同的是里面的小鸟,卧室的是两只小鸟呢喃凝视,客厅的是三只小鸟戏耍玩闹另一侧的摇椅,相信不少人和我一样中过“和你一起坐着摇椅慢慢聊”的毒,摇椅情节怎能在有了自己小窝时不实现?现在经常抱着宝贝们,摇呀摇,嘻~以后它们坐车不会晕车了看看卧室全景,有些太花了,买了一套纯白的床品,没有下水洗过呢,所以先这么烟花缭乱着吧~窗帘拉上和灯打开样子~先来看看厨房吧,厨房是我花心思很多的地方,平时喜欢鼓捣吃食,所以对厨房的要求比较多这是我放电饭锅地方,因为不喜欢在台面上摆放太多东西那种杂乱的感觉,我的原则是能藏尽量藏起来。
曾经住十几平方的房子觉得幸福文案1. 在这十几平方的小小房子里,我找到了真正的幸福,它不需要豪华的装饰,只需要简单的温馨和温暖。
2. 这个小小的房子虽然面积不大,却充满了无限的温馨和爱。
在这里,我和家人一起分享快乐,更加亲密无间。
3. 即使生活空间有限,但这十几平方的房子让我感受到了真正的安逸和满足,因为我和心爱的人在一起,别无所求。
4. 这个小小的房子是我们的港湾,我们在这里创造了无数美好回忆,每一寸空间都弥漫着幸福的气息。
5. 每一个角落都充满了我们的温馨,这个屋子虽然小,但我们的幸福却是无限的,无论多大的困难都能一起克服。
6. 在这十几平方的小房子里,我们学会了珍惜每一个小细节,因为它们催生了我们之间的温情和默契。
7. 用爱填满这个小小的房子,它已经不再是简单的建筑,而是我们幸福生活的见证。
8. 这个小小的房子教会了我珍惜简单的生活,因为只有真正懂得满足和感恩,才能找到内心的幸福。
9. 不需要奢华的装修,不需要宽敞的空间,只要有那份相互的陪伴和关爱,我们就拥有了真正的幸福。
10. 即使十几平方的空间有限,但我们的幸福感却是无限的,因为我们彼此相守,共同面对人生的挑战。
11. 这个小小的房子也有着无限的温柔,它时刻提醒我们珍惜彼此,感受幸福的真谛。
12. 在这十几平方的房子里,我们创造了一个属于我们的小天地,这里没有压力和烦恼,只有彼此的陪伴和快乐。
13. 即使面积不大,我们也能找到无尽的幸福,因为真正的幸福源自于我们内心的满足和喜悦。
14. 这个小小的房子见证了我们的成长和坚守,它是我们幸福的根源,让我们相互依靠,共同建造美好的未来。
15. 曾经住在十几平方的房子里,我明白了幸福不在于拥有多大的空间,而在于我们对生活的态度和对家人的关爱。
我的卧室不大但是很温馨作文
嘿,你们知道吗?我的卧室不大,但是特别温馨!
一走进我的卧室,首先映入眼帘的是一张小小的床。
床上铺着我最喜欢的蓝色床单,还有一个柔软的大枕头,晚上躺在上面,就像睡在云朵里一样舒服。
床边有一个小书桌,那是我每天写作业的地方。
书桌上整齐地放着我的课本和文具,台灯散发着柔和的光,陪伴我度过一个个学习的夜晚。
窗户旁边挂着一幅我自己画的画,虽然画得不是特别好,但是每次看到它,我都会觉得很开心。
我的衣柜虽然不大,但是里面装满了我心爱的衣服。
卧室的角落里还放着几个小玩偶,它们是我最好的朋友。
每天晚上睡觉前,我都会和它们说说话,分享我的小秘密。
嘿,你们知道吗?我觉得我的小卧室就是世界上最温暖的地方,我可喜欢它啦!。
40平米单身公寓小户型北欧气质风
40平米小户型单身公寓装修图,六万打造的清爽北欧气质家,白色的主调,清新大气,充满浪漫气息。
这是一个只有区区40平的单身小公寓,除了必要的卫生间,客厅其实是一个集合了卧室、客厅、工作室的多功能厅,相较而言,厨房却显得有点奢侈,空间十分宽裕,还容纳下了一个四人餐桌。
爱乐活居家热门标签小户型。
爱乐活——有态度、正能量的品质生活社区。
热爱生活,乐于分享的各类达人聚在这里,分享消费攻略,激发生活灵感,发现城市最IN 的角落。
在这里,有爱,有乐,有生活。
【更多精彩内容尽在爱乐活】
文章来源:/post/36ce55647cad27ef38221d5e?from=wenku/?from=wenku。
1房源标题:(突出房子的主要特点,吸引客户,增加点击量和电话量)完整的房源标题应该是:商圈+卖点+楼盘名称+户型+卖点(信息点)如果错过这套三房,还会有下一套么?史上最超值的二手房,看了你就知道!这房真没有什么优势,但就是很多人想买,这是为什么呢?我什么都没有,我这里只有你需要的房子买的不是房子,买的是幸福观望一次涨一次,您还在观望吗?好房子来了一声吼,该出手时就出手享受生活从这里开始找呀找呀找房子,找到一套好房子疯了,居然还有这么便宜的房子不管您看了多少次,它也不会降一次真有这样的家——真的很温馨市场还要火呀,现在正是好时机,来电看房吧告别蜗居时代——您准备好了吗?这都是怎么了,多好的房子呀,房东怎么舍得卖掉呢?适合过渡,解决一时住房需求要结婚了,买房装修这里可以一步到位如果要观望,我建议您看房这房子后再观望,一定不会让您失望的所以人都在观望的时候,你敢出手吗?独家房源,仅此一套,错过了就没有了,机会只有一次,还在犹豫吗?政策在变,服务不变,好房急售政策已经至此,房价逐渐回升,观望后悔莫及送阁楼,相信独具慧眼的您会买就会赚,仅此一套买房投资都请点击!!本房有很大的升值空间好的房子不是用来欣赏的,是用来享受的毛坯房给您更多自由装修空间政策来了您犹豫了,低价房来了您心动吗?真正的拎包入住,洒脱无比精致户型——享受无限阳光生活经典3房,全明户型!精装修!两证齐全!精装两房,送设施,拎包即住,总价低买的就是大户,图的就是省心,好房子,好价格!有故事的房子,花心思的家实用两房尽享三口之家的乐趣,触碰幸福的温度,舒适如新,经典把握超爽南北通透两居室,安家置业的首选大三房天伦之乐无可比拟不要心疼的放弃,只要幸福的得到奢华的房源,朴实的价位,您为此停留而选择忍受不了越来越贵的房租,那就买套房子享受吧!托付一生的家园好房要淘,好房难得,进来看看,100%真实,一,针对买房结婚的:1.要结婚了买房装修这里可以一步到位2.婚房!婚房!结婚啦!有了她就有可以有老婆了!视野好3.离梦想很近实现舒适三房体验奢华生活新婚首选4.精致三房时尚的装修风格婚房优选5.此房原为结婚而备为结婚而装现因离开而售寻找缘人6.豪装XXX(15)万不曾入住是你追求生活品质的绝佳选择!二,针对还在观望的:7.如果要观望,我建议你看完这个房子后再观望,一定不会让您失望!8.所有人都在观望的时候@!!!你敢出手吗9.政策已经至此,房价逐渐回升,观望后悔莫及!10.08年在观望,09年在观望!10年您还在观望么?机会只有一次!11.独家房源!仅此一套!错过了就没有了,还在犹豫吗???12.观望是没有结果的,该出手时就出手这才是硬道理13.政策在变,服务不变,婚房急售14.23万买一个大厂数一数二的学区房,还等什么???三,针对想要投资的:15.观望是没有结果的,该出手时就出手这才是硬道理16.送阁楼,相信独具慧眼的您会买就会赚仅此一套17.投资少,回报高的性价好房出售!18.黄金楼层,足不出户就找到好房!!!19.机会只有一次!!!不看这套房子绝对后悔20.买房投资都请点击!!!本房有很大的升值空间!!21.¥¥¥忍痛急售!!南化医院对面即将拆迁的房子四,针对急售房的:22.周转急用钱好房特买三天绝不食言!!!23.震撼价:天润城,精装新房卖毛坯价,要买快来看!24.惊爆价,稀缺复式,单价xx万,仅售两天25.一克拉钻石品质机会只有一次26.什么叫真正特价房看看这套你会明白!急售27.¥¥¥忍痛急售!!南化医院对面即将拆迁的房子五,针对小区环境好的:28.观望是没有结果的,该出手时就出手这才是硬道理29.好的房子不是用来欣赏的是用来享受的!!!30.毛坯房给您更多的自由装修空间31.精装两居地铁沿线超值因房子小换大黄金地32.金城花园花园式洋房豪装黄金三楼南师附中旁有图有真像33.高档小区人文荟萃高品质的象征豪华婚装!34.热销新房,全优的生活配套,环境绝佳优美35.马上通地铁了,马上通地铁了,小区环境不错,经典小户型部价低楼层好36.小区环境不错,经典小户型部价低楼层好37.新空毛坯!城北高档小区!纯本西班牙风格!38.高档社区景观好房不可多得稍纵即逝!39.六,针对语言比较个性的:40.笑傲江湖令狐冲重出中原江湖欲称霸武林故惜别豪宅有意抛售41.政策来了您犹豫了低价房来您心动吗?42.机会只有一次!!!不看这套房子绝对后悔43.当XXX的出现,是又一次完美而响亮的音符44.真正做到拎包住,洒脱无比45.观望是没有结果的,该出手时就出手这才是硬道理46.所有人都在观望的时候@!!!你敢出手吗?47.带培新小学名额,别让我们孩子输在起跑线上48.精装两房真漂亮,错层设计真时尚!七,针对靠近地铁的:12宜居莱茵城秉承“宜居”的理念,以考究的品质,高端的配套。
优秀装修日记两夫妻合力打造甜蜜小屋不知道在网上潜伏了多久,看了多少楼盘和户型,最后终于决定买下这套房,这套房子不论从哪方面看都比较满足我们的需求,终于我们在这个城市有了一处处于自己的家,从买下房子的那一刻起,我就幻想和LG 什么时候能够住进那个属于我们的小屋。
由于买的是现房,贷款办下来的时候我们就可以接房了,对于我们来说接房之后我们要考虑的事情就是装修了,从一开始我们就放弃了现代简约风格,因为总给人冷冰冰的感觉,这根本就不是我们想要的,我们需要的是温馨、和谐,能够给人带来暖意的小屋。
最后经过和LG反复商量后我们决定采用韩式田园的装修风格,不需要装修得太奢华,只要能有那么一丝丝温暖的感觉,一点点舒适,外加点浪漫就好了,说了这么多,忘了介绍我们的小屋了。
户型:3室两厅两卫户型面积:138.4平米装修风格:韩式田园风格装修费用:12.5万(当然是不包括家具家电在里面的啦~~~)想好了装修的风格,但是由于我们都不是学设计出身的,对于我们来说,设计这方面还是有难度的,这个就需要专业的设计师来设计啦,好像不在我们的能力范围之内呢。
接下来我们要做的事情就是寻找装修公司,最先看的那些公司给我们的装修图纸不是太华丽,就是太复杂,这根本就不是我们想要的,就在我几乎想要放弃的时候,朋友给我们介绍了一家装修公司,刚开始也只是抱着试一试的心态去看看,没想到,我们给设计师说了我们的想法之后,他好像很懂我们似的,没一会就给了我们一份简单的设计方案,看了这个设计,我和LG很满意,当即决定让这家公司给我们进行装修(装修公司口碑也还是不错的,资质也在三级,很满足我们的需求,尤其是那个设计师)。
目前,我们的小屋装修也差不多完工了,就给各位看看我们装修的毕业照吧~~~这三张图片分别是进门处和客厅的,玄关处的那个鞋柜很让人满意,设计得也比较精致,客厅的这些布置是我们后来自己加的,很喜欢小花纹的沙发,和那个窗帘看起来很是搭配啊,当时在选择购买这个的时候,LG还一直在称赞我买的好,不知道各位看见我们那两个抱枕没有,因为我们这个房屋是装修出来结婚用的,那个都是我自己亲手绣好的,一针一线都没有马虎过呢。
1房源标题:(突出房子的主要特点,吸引客户,增加点击量和电话量)完整的房源标题应该是:商圈+卖点+楼盘名称+户型+卖点(信息点)如果错过这套三房,还会有下一套么?史上最超值的二手房,看了你就知道!这房真没有什么优势,但就是很多人想买,这是为什么呢?我什么都没有,我这里只有你需要的房子买的不是房子,买的是幸福观望一次涨一次,您还在观望吗?好房子来了一声吼,该出手时就出手享受生活从这里开始找呀找呀找房子,找到一套好房子疯了,居然还有这么便宜的房子不管您看了多少次,它也不会降一次真有这样的家——真的很温馨市场还要火呀,现在正是好时机,来电看房吧告别蜗居时代——您准备好了吗?这都是怎么了,多好的房子呀,房东怎么舍得卖掉呢?适合过渡,解决一时住房需求要结婚了,买房装修这里可以一步到位如果要观望,我建议您看房这房子后再观望,一定不会让您失望的所以人都在观望的时候,你敢出手吗?独家房源,仅此一套,错过了就没有了,机会只有一次,还在犹豫吗?政策在变,服务不变,好房急售政策已经至此,房价逐渐回升,观望后悔莫及送阁楼,相信独具慧眼的您会买就会赚,仅此一套买房投资都请点击!!本房有很大的升值空间好的房子不是用来欣赏的,是用来享受的毛坯房给您更多自由装修空间政策来了您犹豫了,低价房来了您心动吗?真正的拎包入住,洒脱无比精致户型——享受无限阳光生活经典3房,全明户型!精装修!两证齐全!精装两房,送设施,拎包即住,总价低买的就是大户,图的就是省心,好房子,好价格!有故事的房子,花心思的家实用两房尽享三口之家的乐趣,触碰幸福的温度,舒适如新,经典把握超爽南北通透两居室,安家置业的首选大三房天伦之乐无可比拟不要心疼的放弃,只要幸福的得到奢华的房源,朴实的价位,您为此停留而选择忍受不了越来越贵的房租,那就买套房子享受吧!托付一生的家园好房要淘,好房难得,进来看看,100%真实,一,针对买房结婚的:1.要结婚了买房装修这里可以一步到位2.婚房!婚房!结婚啦!有了她就有可以有老婆了!视野好3.离梦想很近实现舒适三房体验奢华生活新婚首选4.精致三房时尚的装修风格婚房优选5.此房原为结婚而备为结婚而装现因离开而售寻找缘人6.豪装XXX(15)万不曾入住是你追求生活品质的绝佳选择!二,针对还在观望的:7.如果要观望,我建议你看完这个房子后再观望,一定不会让您失望!8.所有人都在观望的时候@!!!你敢出手吗9.政策已经至此,房价逐渐回升,观望后悔莫及!10.08年在观望, 09年在观望! 10年您还在观望么?机会只有一次!11.独家房源!仅此一套!错过了就没有了,还在犹豫吗???12.观望是没有结果的,该出手时就出手这才是硬道理13.政策在变,服务不变,婚房急售14.23万买一个大厂数一数二的学区房,还等什么???三,针对想要投资的:15.观望是没有结果的,该出手时就出手这才是硬道理16.送阁楼,相信独具慧眼的您会买就会赚仅此一套17.投资少,回报高的性价好房出售!18.黄金楼层,足不出户就找到好房!!!19.机会只有一次!!!不看这套房子绝对后悔20.买房投资都请点击!!!本房有很大的升值空间!!21.¥¥¥忍痛急售!!南化医院对面即将拆迁的房子四,针对急售房的:22.周转急用钱好房特买三天绝不食言!!!23.震撼价:天润城,精装新房卖毛坯价,要买快来看!24.惊爆价,稀缺复式,单价xx万,仅售两天25.一克拉钻石品质机会只有一次26.什么叫真正特价房看看这套你会明白!急售27.¥¥¥忍痛急售!!南化医院对面即将拆迁的房子五,针对小区环境好的:28.观望是没有结果的,该出手时就出手这才是硬道理29.好的房子不是用来欣赏的是用来享受的!!!30.毛坯房给您更多的自由装修空间31.精装两居地铁沿线超值因房子小换大黄金地32.金城花园花园式洋房豪装黄金三楼南师附中旁有图有真像33.高档小区人文荟萃高品质的象征豪华婚装!34.热销新房,全优的生活配套,环境绝佳优美35.马上通地铁了,马上通地铁了,小区环境不错,经典小户型部价低楼层好36.小区环境不错,经典小户型部价低楼层好37.新空毛坯!城北高档小区!纯本西班牙风格!38.高档社区景观好房不可多得稍纵即逝!39.六,针对语言比较个性的:40.笑傲江湖令狐冲重出中原江湖欲称霸武林故惜别豪宅有意抛售41.政策来了您犹豫了低价房来您心动吗?42.机会只有一次!!!不看这套房子绝对后悔43.当XXX的出现,是又一次完美而响亮的音符44.真正做到拎包住,洒脱无比45.观望是没有结果的,该出手时就出手这才是硬道理46.所有人都在观望的时候@!!!你敢出手吗?47.带培新小学名额,别让我们孩子输在起跑线上48.精装两房真漂亮,错层设计真时尚!七,针对靠近地铁的:12宜居莱茵城秉承“宜居”的理念,以考究的品质,高端的配套。
描写婚房的唯美句子作文(精选100句)1. 新婚房充满了浓浓的幸福气息。
2. 婚房里洋溢着爱的味道。
3. 婚房是我们爱的结晶,是爱的象征。
4. 婚房的每一个角落都透露着温馨和温暖。
5. 空气中飘荡着宴会的花香和炊烟的味道。
6. 婚房的窗外绽放着美丽的花朵。
7. 窗帘轻轻地摇曳在微风中。
8. 婚房的阳光透过窗户洒在地板上,照耀着一片温暖。
9. 婚房里的灯光柔和而明亮。
10. 客厅里的沙发软绵绵的,舒适极了。
11. 婚房内的墙壁洁白无瑕,宛如新婚一般美好。
12. 卧室的床是我们共同度过幸福时光的地方。
13. 床上的花纹精美,使人感到愉悦。
14. 婚房内的书桌整洁有序,呈现出一种学习的氛围。
15. 婚房中的花瓶摆放着鲜花,给人一种生机勃勃的感觉。
16. 厨房里的厨具排列整齐,让人乐于下厨。
17. 婚房的书架上摆满了我们喜欢的书籍。
18. 门槛处的贴花花纹展现着主人独特的品味。
19. 婚房内的画框悬挂着我们甜蜜的回忆。
20. 婚房的墙角布置着我们精心挑选的首饰。
21. 婚房内的地毯柔软舒适,给人一种放松的感觉。
22. 客厅的装饰营造了浪漫而温馨的氛围。
23. 婚房的窗帘上挂满了我们喜欢的风景照片。
24. 婚房内的摆设都是我们共同选择的,呈现出我们的共同品味。
25. 卧室的窗帘是柔和的粉红色,给人一种温柔的感觉。
26. 婚房的装饰色调相互搭配,给人一种和谐的感觉。
27. 窗外的阳光透过薄纱洒在婚房内,犹如一层金色的雾气。
28. 婚房的装修风格简约大方。
29. 婚房中的柜子摆放整齐,干净利落。
30. 婚房的地板光滑如镜,一步一步踏出美好的未来。
31. 客厅的茶几上散落着我们晒幸福照片的相框。
32. 婚房的餐桌上摆着我们共同享用的晚餐。
33. 婚房里流动着温暖的空气,让人感到宁静与祥和。
34. 婚房的墙上挂着的装饰物传达出主人对美好生活的追求。
35. 卧室里的柜子里堆满了我们共同收集的精美物品。
36. 婚房内的装饰物用心挑选,展现了主人的品味和个性。
史上最全的户型介绍[来自官方]家天下户型介绍〔7、8号楼〕7号楼! 8号楼!燃情岁月 (E户型53.26—53.75m2/一室一厅一卫)就如同生命中某个阶段,把戏年华,一切简洁、直接户型设计简约自然,视线通畅柔和明亮厅房,良好通风采光步入式阳台与卧室连为一体,私密性强在私享的天空邀爱人翩翩起舞,邀明月一同小酌生活因此浪漫无比东城情怀(F户型94.56—95.86m2/二室二厅一卫)闲居家中,也能重温罗马假日每天清晨,阳光一丝一点的挤进来叫醒了熟睡中的懒猫。
户型方正实用,动静、干湿分区,得房率高;完全人性化设计,透光性好大落地观景阳台,中心花园美景一览无余甜蜜生活,坐享温馨浪漫人生之旅情感磨坊 (G户型50.14—50.93m2/ 一室一厅一卫)心情可以放飞,空间刚刚好户型方正实用,得房率高整体设计简洁大方,通透流畅,线条工整;为年轻人个性的X扬和这个年龄特有的奇思妙想量身订做我的青春我做主恋景倾城(H户型90. 63—91. 65m2/二室二厅一卫)当旷世美景与煦暖阳光成为生活的寻常,夫复何求厅、卧方正实用,动静分区,具灵动之美客厅联体落地阳台,视野豁然开朗,美景一览无余明厅、明卧、明厨、明卫,阳光在每个房间自然起舞令目光所与的风景天然鲜活餐厅独立,与厨房浑然一体,合理舒适生活因此愉悦欢快[来自官方]家天下户型介绍〔9、10号楼〕[ 2007-3-9 13:51:00 | By: 紫薇家天下 ] 9号楼! 10号楼!玲珑美居〔M户型43.81平米 /一室两厅一卫〕窈窕一居,给年轻的心一个归处.独立厨、卫、厅,各有使用功能,功能齐备格局方正、紧凑,实用率高整体空间浑然一体,南北通透,采光通风优越飞扬青春思绪,独立自由,随心所欲心情港湾〔J户型92.06平米/二室二厅一卫〕甜蜜两居,标准户型,表达一种两情相悦的生活态度单位间隔方正,功能分区紧凑合理,布局巧妙餐厅、厨房独立自成一体,方便琐碎生活,细节表达关爱阳光下烹饪,烛光下晚餐,浪漫情调装点生活每一处细节客厅特设观景、休闲阳台,睡眼惺忪的下午,来此伸个懒腰这种日子真爽丽景世家〔K户型112.23平米/三室两厅两卫〕经典小三居,流露一种养护生活热爱生命的闲适趣味空间开阳,分区合理,通道少,减少面积浪费南北通透的格局,阳台、凸窗的设计,通风、采光、赏景俱佳南向主卧配低台窗,延伸户外空间,室内室外情景交融室室观景飘窗,煦暖阳光四时映照,红尘美景一览无余依窗观景,笑傲红尘,悠然的,是一份事业与生活的从容启明花园详情 1厅 1卫 40.48平方米建筑面积:138.17平方米套内面积:125.45平方米阳台面积:5.69平方米分摊面积:12.72平方米三室二厅一阳台二卫生间一厨房户型点评:厅房动静别离,充分享用自由空间.主卧宽大落地窗,与风景共处一室.客厅开间5.3米,落地观景台,四季变迁尽收眼底建筑面积123.48平方米套内面积113.40平方米阳台面积6.01平方米分摊面积10.08平方三室二厅一阳台一卫生间一厨房户型点评:新颖转角阳台,让您的生活更多一份乐趣。
42图赏40平22年老房变惊艳婚房软硬装+设计共8万[提要]一梯3户,一室户老公房,22年房龄,经2个半月的改造,现已改头换面。
沙发另一边,这个沙发是现场制作的,下面做了4个大抽屉,上面到轻纺市场定做的沙发垫,原来的一室户被设计师分割成了客厅以及主卧,主卧跟客厅之间有窗口,没有做窗门,这样阳光可以任意进出。
一梯三户,一室户老公房,22年房龄,经2个半月的改造,现已改头换面。
设计:80年代,NONO硬装&YAN软装设计。
工程造价:软硬装含家具及设计费8W房型图先发一张LP淘来的唱诗班小人羽毛灯里是蜜月从angsana带回来的白沙子、贝壳客厅沙发边上的书架摆满了LP的娃娃以及书。
这个沙发是现场制作的,下面做了4个大抽屉,上面到轻纺市场定做的沙发垫,原来的一室户被设计师分割成了客厅以及主卧,主卧跟客厅之间有窗口,没有做窗门,这样阳光可以任意进出白天的阳光沙发下面的抽屉,能放很多东西窗台上的小花电视机右边,淘来的西藏老柜子电视机左侧,LP最喜欢的柜子像中药铺的。
注意房门~餐厅美貌的餐布厨房跟过道是在一起的虽然窄了点,但是也能放的下餐桌了厨房及厕所的门宜家的植物。
刚装修好去去味道侧吸的油烟机,效果很不错,比我们之前用的伊莱克斯好多了,价格还便宜,瑞鑫牌的。
这个是啥我也叫不上来LP珍藏的看厕所,面积只有2平米厕所里墙面腰以下贴的瓷砖,上面刷的涂料,效果不错,防水的。
小小的台盆,美标的。
地面做了抬高,原来马桶位置没办法把台盆放进厕所里,设计师帮我们重新移了位置订制的弧形浴帘杆,几十块钱很喜欢这感觉这个也很棒客厅全景白天的客厅光线还可以电视机正面卧室床也是现场做的,上面直接放床垫,1.8米的哈哈超大卧室里铺设了地毯,在九星买了我自己铺的,累死我了,下面有铺地胶,死沉死沉,从1楼扛到6楼,差点没扛晕过去。
效果还是很不错的,踩上去很舒服。
墙上挂了很多我们的青春漂亮的壁灯客厅看卧室,阳台上有个书桌,阳台两边的柱子敲掉了,上面吊了顶。
我所居住的房子虽然不大,但它给我带来了温馨和舒适的感受。
每当我进入这个小小的居所,都能感受到家的温暖。
虽然房子面积有限,但每一个角落都被精心布置。
简约而温馨的装饰风格,给人一种宽敞明亮的感觉。
阳台上摆放着一盆盆绿色的植物,给房间增添了生气和活力。
当我望着窗外的美景,心情便不禁愉悦起来。
在这个小小的房子里,每一处都经过细致的设计和规划。
每一寸空间都被充分利用,使得房间有序而整洁。
虽然空间有限,但家具的布置显得合理,不会让人有拥挤的感觉。
小小的餐桌上摆放着一碗热气腾腾的饭菜,虽然不豪华,但足以让我感受到温暖和满足。
虽然房子不大,但它是我避风的港湾。
无论是经历了一天的疲惫劳累,还是遇到了困难和挫折,只要走进这个居所,就能感受到烦恼的减轻。
无论是与家人团聚,还是独自一人静静思索,这个小房子总是给予我安慰和安心。
虽然房子面积有限,但它所带给我的温馨和舒适无法用面积来衡量。
它就像是一个能够安心停留的温暖港湾,让我感受到了家的意义。
无论大小,只要有温暖和爱,一个小小的房子是足够的。
这个房子虽小,但它给我带来了无穷的温馨和满足。
婚房只有40平米,让人看了憋屈,但是我
真心住的开心舒适
导读:本文介绍在房屋装修,注意事项的一些知识事项,如果觉得很不错,欢迎点评和分享。
最近准备结婚,娘家和婆家也是忙活了很久回家给我们准备了一个婚房,婚房的面积只有40平米,面积看起来是相对较小的,很多的朋友们都说我的婚房看起来让人憋屈。
婚房只有40平米,让人看了憋屈,但是我真心住的开心舒适,大家来看看我的婚房吧。
一、来看看我的婚房
来看看室内的布置,可以说是所有的功能区都是开放式的,当然不包括卫生间和卧室,但卧室也是半开放的,反正只有我们两个人住所以也不需要太大的私密空间。
卧室在这里,三面墙围绕,省去了门。
当然我们还有个小小的隐藏的衣帽间,不能因为房子小让我买买买的衣服没地方放不是。
厨房,打了很多的橱柜,收纳问题解决了,家就不会显得拥挤。
白色更能显得宽敞。
圆形的餐桌,四把餐椅围绕着,还是蛮温馨的。
客厅区,白色沙发,黑白灰色的抱枕、地毯,彰显简约风。
壁画的装饰让整个家居环境的格调上升了。
二、室内怎么布置装饰?
如果是一个好的室内设计师的话,应该要让业主可以更好地看明平面布局图的内涵。
同时,还可以让业主清楚这样或者是那样的平面布局带来的一些深层次的涵义。
不单单要符合好人体工程学所要求的内容,同时,还应该要注意知识的含量。
如果说是用二星级的酒店布局的话,也是没有办法装饰成一个五星级的大酒店的样子的。
一方面的话,虽然说也有很多的设施都是不同的,像另一方面的话,平面也是会有很大不同的。
这样的话,也说明一个问题,空间布局多少的面积还应该要配合主要的空间搭配多少,一些次要的空间布局面积也是非常合理的。
比如说一些单独的衣帽间还有副接待厅。
这就可能是心理学要解决的问题,进而还有社会习惯等方面的问题在里面。
像一个恰到好处的室内平面布局的话,对业主而言,也是可以节约很多费用的,对施工而言,也是可以节约很多成本的。
等到一个平面设计做好后,至少也完成设计内容的一半。
三、室内装饰技巧有哪些?
1、注重前期装修准备
为了让装修更顺利,大家在开工前都要做个整体规划,并且弄清楚新居装修所需要的材料,比如说弄清楚瓷砖、墙
面漆、壁纸以及地板这些材料的需求。
另外大家还需要了解好墙面的尺寸参数,这些尺寸对以后家具购买和摆放位置起到很大的作用。
2、室内风格的选择
大家在开工前要先确定风格,风格的选定可不是那么随意的,大家应根据房子的房型特点和家人喜好等方面来进行合理化的选择。
如果您的房子面积比较大的话,那么在装饰风格的选择上可以随意一些;如果您的房子面积较小的话,建议您选择现代风格、北欧风格。
3、要满足使用功能要求
大家在进行室内设计时,还需要充分考虑日后使用需要,很好的划分出各个功能区,最大程度上满足家人的需求。
比如说大家在装修复式楼时可以将一楼安排成动区,而将二楼安排成动区;而装修大户型时,可以采用错层式装修,让室内空间更加的立体。
4、注重对比
为了打造出颇具个性化的新居,大家在设计时还应注重对比。
对比应用得好的话可以让人在强烈的反差中获得美的享受,并且可以获得协调统一的效果。
大家在采用对比装饰手法,灯光、色彩、家具等之间的搭配都需要和谐;然后还要讲究层次,色彩从冷到暖、光线从明到亮、纹理从繁杂到简单都得有一定的层次。
5、量力而行
室内设计是家装中非常重要的一个环节,这是因为后期的施工都是围绕着设计来展开的。
为了避免出现装修超支的情况,大家在进行室内设计时应充分考虑目前的经济状况,如果您预算充裕的话,那么就可以随着心意来设计;如果您预算有限的话,那就尽量设计简单一些。
大家觉得我的婚房怎么样?我自己感觉虽然面积相对小了一点,但是室内装修还是比较温馨的将来自己经济能力好了,也是可以再换一个大一点面积的房屋。
在装修房子的时候,大家要注意一下装修的细节,注意做好前期准备工作。
本文结束,感谢您的阅读!。