汽轮机单侧调门瞬间误关故障分析及处理
- 格式:doc
- 大小:75.00 KB
- 文档页数:5
一、编制目的为保障汽轮机调速汽门关闭事故的快速、有效处理,降低事故损失,确保人员安全和设备完好,特制定本预案。
二、适用范围本预案适用于汽轮机调速汽门关闭事故的应急处理。
三、事故定义调速汽门关闭事故是指由于调速汽门关闭不到位、关闭速度过慢或关闭过程中出现故障,导致汽轮机转速下降缓慢或无法正常下降,从而引发的一系列事故。
四、事故原因分析1. 调速汽门机构故障;2. 调速汽门执行机构故障;3. 调速汽门控制系统故障;4. 操作失误;5. 设备老化或磨损。
五、应急预案组织机构1. 应急领导小组:负责事故应急处理工作的总体指挥和协调;2. 应急指挥部:负责事故应急处理工作的具体指挥和协调;3. 应急救援组:负责事故现场救援、人员疏散、伤员救治等工作;4. 技术保障组:负责事故现场技术支持、设备抢修等工作;5. 通讯保障组:负责事故现场通讯联络、信息报送等工作;6. 后勤保障组:负责事故现场后勤保障、物资供应等工作。
六、事故应急响应程序1. 发生事故后,现场值班人员应立即向应急领导小组报告;2. 应急领导小组接到报告后,立即启动应急预案,组织应急指挥部开展工作;3. 应急指挥部根据事故情况,确定事故等级,并组织应急救援组、技术保障组、通讯保障组、后勤保障组开展救援工作;4. 应急救援组迅速到达事故现场,开展人员疏散、伤员救治等工作;5. 技术保障组立即对事故原因进行分析,制定抢修方案,并组织设备抢修;6. 通讯保障组负责事故现场通讯联络、信息报送等工作;7. 后勤保障组负责事故现场后勤保障、物资供应等工作;8. 事故得到有效控制后,应急指挥部组织相关人员进行事故调查和分析,总结经验教训,完善应急预案。
七、事故应急处理措施1. 人员疏散:迅速组织人员疏散,确保人员安全;2. 伤员救治:对受伤人员进行紧急救治,确保伤员生命安全;3. 设备抢修:对故障设备进行抢修,恢复正常运行;4. 事故原因分析:对事故原因进行分析,查找事故根源;5. 信息报送:及时向上级领导和相关部门报告事故情况;6. 应急演练:定期组织应急演练,提高应急处理能力。
1000MW机组汽轮机单阀故障关闭异常分析摘要:某超超临界百万机组在投入AGC正常运行中,运行人员监视发现主机#2瓦相对振动频繁报警,最高达130um,而绝对振动值及轴瓦温度无较明显变化,本文主要对主机振动上升原因进行分析,后续处理过程进行详细说明,对同类型机组发生类似故障提供借鉴。
关键词:汽轮机;异常振动;轴系;中压调节门1引言机组投产至今,已稳定运行一年有余,汽轮机方面未发生异常,本次事件从发生到解决历时半个月左右,从发现问题到制定方案,再到方案的实施,最后解决问题,各方把握十分到位,结果相对来说很成功,本文主要对问题的发生,发现,处理进行分析,为同类型机组运行、事故处理提供经验数据。
2机组介绍:该电厂汽轮机由上海汽轮机有限公司和德国SIEMENS公司联合设计制造的超超临界、一次中间再热、四缸四排汽、反动凝汽式汽轮机。
汽轮机四根转子分别由五只径向轴承来支承,除高压转子由两个径向轴承支承外,其余三根转子均只有一只径向轴承支承,这五个轴承分别位于五个轴承座内。
汽轮机采用全周进汽加补汽阀的配汽方式,高、中压缸均为切向进汽。
高、中压阀门均布置在汽缸两侧,阀门与汽缸直接连接,无导汽管。
蒸汽通过高压阀门和单流的高压缸后,从高压缸下部的两个排汽口进入再热器。
蒸汽通过再热器加热后,通过两只再热汽门进入双流的中压缸,由中压外缸顶部的中低压连通管进入两只双流的低压缸。
3事故前工况2019年3月28日17:57分,机组负荷830MW,AGC投入,给水流量1915t/h,蒸汽流量1835t/h,机组背压4.6KPa/3.9KPa,轴封压力3.5KPa,轴封温度315℃,主机润滑油压力0.43MPa,润滑油温度50℃,主机两个高压调门开度均为37%,两个低压调门全开。
4异常情况介绍2019年3月28日17:58分,机组负荷突然由830MW降低至800MW,对主汽门、调门、煤水比、煤量、给水流量、主机背压进行检查均未发现明显变化,询问值长告知机组一次调频也未动作,但主机#2瓦振动确明显上升至报警值80um,最高至142um,并频繁报警。
运行中单侧中主门或者中调门突然关闭,不用过分紧张。
负荷高的时候,要立即降负荷,此时要特别注意再热器压力以及高排压力,高排压力高毕竟是接保护的,必要时可以适度开启低压旁路。
同时注意气温的变化,作好超前调节,防止超温。
一般单侧的中压主气门关闭,对机组的负荷影响也没有想象中的那么大,大概是减少10~15%负荷。
但是应该注意对轴向位移,机组振动,高排压力,高排温度,特别是中压两侧汽室,阀体温度温差变化的监视。
单侧进汽时间不可过长,否则应停机处理,防止单侧进汽时间过长引起汽缸二侧温差加大引起的不良后果。
在处理过程中,应立即要求检修查明原因,可能是快速卸载阀或伺服阀故障引起。
总之要设法尽快将该中压主气门打开。
短期无法开启的话,为了机组安全着想,我还是建议停机处理。
DEH、MEH、BPC、EH系统故障处理第一部分:DEH、MEH、BPC系统故障处理(操作步骤、安全措施、注意事项)一、概述控制系统在长期运行中出现故障,如何及时、正确地处理,对于整个系统的安全可靠运行是非常重要的。
工程技术人员或热工人员处理这些问题前,必须首先判断故障点,了解出现故障的具体部件、严重程度及处理过程中必须遵循的方法。
常见故障分析及处理可参考《DEH-IIIA现场安装调试说明》中第四章“常见故障及处理”。
同时还应认识到违反操作规程可能产生的严重后果,应提出正确的处理步骤及事故预防措施。
本手册的目的就是提供一个处理故障的方法和操作步骤、注意事项,供现场人员参考。
注意:处理故障部件的技术人员必须经培训合格,同时必须充分认识到故障的复杂性,现场人员除按本手册处理故障外,还需根据具体问题,分析具体情况,采取最安全、合适的处理方法。
更换部件前,必须对新部件进行检查,包括硬件型号、跳线以及软件版本。
二、伺服系统故障伺服系统是DEH、MEH、BP等系统中最重要的部分之一。
由于其直接影响机组阀门的状态,因而对其发生的故障必须持非常谨慎的态度。
下面分别就伺服系统可能出现的故障部件逐一说明。
运行中主汽门单侧误关事件分析及防范措施摘要:井冈山电厂一期2*300MW燃煤机组,始建于1998年,2001年正式投产至今有近20余年,该机组DEH由哈尔滨汽轮机厂提供,采用美国西屋公司智能自动化仪表系列构成的凝汽式汽轮机数字电液控制系统,可由操作员站通过CRT各画面控制汽轮机冲转、升速、阀切换、并网、带负荷,具有两种互为跟踪的控制方式,即自动控制和手动控制,并可相互切换。
该一期一号机组运行过程中曾出现过两次因主汽门误关所引发的事故,第一次因运行人员调整不及时,导致跳机停炉,第二次在运行人员的奋力处理中,机组转危为安。
关键词:凝汽式汽轮机、主汽门、误关、故障处理、防范措施井冈山电厂一期为2*300MW燃煤机组,汽轮机型号是N300-16.7/538/538,采用单轴,双缸双排汽一次中间再热,高中压缸合缸反动凝汽式汽轮机,其汽缸为高中压合缸的双层缸结构,由外缸、高压内缸、中压内缸组成,高压内缸配汽机构有顺序阀和单阀两种运行方式,每个调节阀控制 8 组喷嘴,中压缸为全周进汽。
其蒸汽流程:高温高压蒸汽经布置在单元机组高压缸两侧的两只自动主汽门后,分别进入各有 3 只调速汽门的蒸汽室,然后经 6 只调速汽门分别控制6 组喷嘴进入调节级,而后汽流折回 180 度再进入 12 级反动级,做功后经过再热器升温经汽轮机两侧的中压主汽门、调速汽门。
本厂出现过同一台机组不同时间两次运行过程中发生单侧主汽门误关事件,第一次发生在2008年9月,当时机组迎晚峰,机组负荷294MW,锅炉自动,汽机跟随方式运行,B、C、D三套制粉系统运行,送风机手动方式,引风机自动方式,机组压力16.2MPa、主再热蒸汽温度正常均为540℃,A、B小机运行,电泵备用,汽包水位正常-1mm。
运行过程中,机组负荷发生突变,由294MW突降至189MW,锅炉压力由16.2MPa快速上升至17.4MPa,且仍有快速上涨趋势,汽包水位由-1mm上升后快速下降至-170mm,且仍然有下降趋势,汽机盘监盘人员发现#2主气门关闭,锅炉盘运行人员停运了上层B制粉系统对应给粉机,启电泵运行以保证汽包水位。
汽轮机高压调阀异常关闭分析及处置摘要:汽轮机在运行过程中一个或者多个汽门突然关闭或者部分关闭的运行方式,是一种非正常运行方式。
易造成汽轮机进汽不均,热应力发生变化,同时对负荷产生扰动。
轻者造成机组负荷及蒸汽参数幅波动,严重时造成机组停运事故。
本文通过对汽轮机运行中高压调阀异常关闭事故案例的分析,提出了针对性的处理要点策略,为同类型机组、类似异常处置提供参考和借鉴思路,以确保机组安全稳定运行。
关键词:高压调阀;综合阀位;阀序;超压;LVDT0前言随着我国新能源大规模发展,对火电机组灵活性的需求也将大幅增长,进而导致汽轮机调节汽阀频繁动作,汽轮机调节汽阀尤其高压调节汽阀出现异常越来越频繁,如何在运行中处置而不引起机组事故扩大化提出更高要求。
本文结合实际案例进行分析并对运行方面如何处置进一步探讨。
1设备简述某厂汽轮机为哈尔滨汽轮机厂有限责任公司制造的超临界、一次中间再热、单轴、三缸、四排汽、高中压合缸、凝汽式汽轮机,型号为CLN630-24.2/566/566。
汽轮机通流采用冲动式与反动式联合设计。
新蒸汽从下部进入置于该机两侧两个固定支承的高压主汽调节联合阀,由每侧各两个调节阀流出,经过4根高压导汽管进入高压汽轮机,高压进汽管位于上半两根、下半两根。
再热后的蒸汽从机组两侧的两个再热主汽调节联合阀,由每侧各两个中压调节阀流出,经过四根中压导汽管由中部进入中压汽轮机中压进汽管位于上半两根、下半两根。
汽轮机采用喷嘴调节方式,共有四组高压缸进汽喷嘴,分归四个高压调阀控制,可以实现单阀或顺序阀控制(汽轮机开阀顺序为先同时开启1、2号高调,然后开启3号,最后开启4号)。
2汽轮机高调阀异常案例分析2.1异常经过及处理:异常(一):(如图1所示)17:08 负荷530MW,“转子位移变化大”,“高调GV3阀位反馈1、2偏差大”报警,发现机组负荷下降至520MW,汽轮机高调阀GV3指令及反馈LVDT1逐渐增大,GV3反馈LVDT2逐渐关小;17:09高调阀GV3指令及反馈LVDT1快速增大至38%,GV3反馈LVDT2逐渐关小至5%后开始开大,高调阀GV4逐渐开始开启,然后GV3指令及反馈LVDT1在31%-66%区间摆动,机组负荷、振动、轴位移、GV4、GV3开度随之摆动,且呈发散趋势;期间负荷在520-570MW之间,1X、1Y轴振在62μm-77μm,56-68μm之间波动。
汽轮机单侧高压主汽门异常关闭的处理1概述近年来,丰城2×700MW超临界机组、国华太仓2×600MW超临界机组、华能巢湖电厂2×600MW超临界机组、华能瑞金电厂2×350MW超临界机组在正常运行过程中均出现过汽轮机某个主汽门或调节汽门异常关闭的情况。
汽轮机单个汽门异常关闭情况中,单侧高压主汽门异常关闭处理最为复杂,对机组安全经济运行也影响最大,甚至可能导致机组非计划停运事件发生。
2010年8月,国华太仓电厂某台机组曾因汽轮机单侧高压主汽门异常关闭,锅炉蒸汽压力急剧上升,导致给水泵出力不足,锅炉给水流量低触发锅炉MFT动作,联跳汽轮机及发电机。
2010年7月6日,丰城电厂#6汽轮机左侧高压主汽门卸荷阀O型圈泄漏,导致左侧高压主汽门异常关闭,由于缺乏相关处理经验,如果不是因为当时机组负荷较低,很可能导致机组非计划停运事故的发生。
2汽轮机单侧高压主汽门关闭的现象及原因分析汽轮机主汽门或调节汽门异常关闭的原因主要有调节系统故障、汽门阀芯脱落以及卸荷阀O 型圈老化漏EH油等,其中,由于卸荷阀一直处于高温环境,卸荷阀O型圈老化漏油导致主汽门异常关闭最为常见。
汽轮机高压主汽门异常关闭时,DCS报警画面将出现声光报警,机组协调控制方式自动切为手动控制,DEH由遥控切至手动方式,汽机调节阀由顺序阀自动切至单阀控制。
汽轮机高压进汽由两侧进汽突然变为单侧进汽,在某种极端工况下(高压调节汽门顺序阀控制,未故障侧高压调节汽门只有一个在开位),汽轮机高压缸进汽面积可能只有异常关闭前的三分之一。
在此情况下,汽轮发电机的负荷将急剧下降,机、炉侧的主汽压力将急剧上升,额定工况下锅炉超压导致锅炉安全门动作。
因给水泵汽轮机由四段抽汽接带,汽轮机负荷下降引起汽轮机抽汽段压力下降导致给水泵的出力下降,给水量的急剧下降必然导致锅炉煤水比失调,螺旋管壁温度、主再热汽温及分离器出口蒸汽温度将快速上升,甚至导致锅炉超温保护触发MFT保护动作。
汽轮机单侧高压主汽门异常关闭的处理1概述近年来,丰城2×700MW超临界机组、国华太仓2×600MW超临界机组、华能巢湖电厂2×600MW超临界机组、华能瑞金电厂2×350MW超临界机组在正常运行过程中均出现过汽轮机某个主汽门或调节汽门异常关闭的情况。
汽轮机单个汽门异常关闭情况中,单侧高压主汽门异常关闭处理最为复杂,对机组安全经济运行也影响最大,甚至可能导致机组非计划停运事件发生。
2010年8月,国华太仓电厂某台机组曾因汽轮机单侧高压主汽门异常关闭,锅炉蒸汽压力急剧上升,导致给水泵出力不足,锅炉给水流量低触发锅炉MFT动作,联跳汽轮机及发电机。
2010年7月6日,丰城电厂#6汽轮机左侧高压主汽门卸荷阀O型圈泄漏,导致左侧高压主汽门异常关闭,由于缺乏相关处理经验,如果不是因为当时机组负荷较低,很可能导致机组非计划停运事故的发生。
2汽轮机单侧高压主汽门关闭的现象及原因分析汽轮机主汽门或调节汽门异常关闭的原因主要有调节系统故障、汽门阀芯脱落以及卸荷阀O型圈老化漏EH油等,其中,由于卸荷阀一直处于高温环境,卸荷阀O型圈老化漏油导致主汽门异常关闭最为常见。
汽轮机高压主汽门异常关闭时,DCS报警画面将出现声光报警,机组协调控制方式自动切为手动控制,DEH由遥控切至手动方式,汽机调节阀由顺序阀自动切至单阀控制。
汽轮机高压进汽由两侧进汽突然变为单侧进汽,在某种极端工况下(高压调节汽门顺序阀控制,未故障侧高压调节汽门只有一个在开位),汽轮机高压缸进汽面积可能只有异常关闭前的三分之一。
在此情况下,汽轮发电机的负荷将急剧下降,机、炉侧的主汽压力将急剧上升,额定工况下锅炉超压导致锅炉安全门动作。
因给水泵汽轮机由四段抽汽接带,汽轮机负荷下降引起汽轮机抽汽段压力下降导致给水泵的出力下降,给水量的急剧下降必然导致锅炉煤水比失调,螺旋管壁温度、主再热汽温及分离器出口蒸汽温度将快速上升,甚至导致锅炉超温保护触发MFT保护动作。
126 Modern Science1 概述某电厂装机容量为2×330MW,锅炉采用HG-1125/17.5-L.M G46型循环流化床锅炉,汽轮机型号为C C275/N330-16.7/537/537/0.981/0.294,机组回热系统五段抽汽作为热网加热器汽源,电厂承担市区供暖。
厂内另建设有3×116MW循环流化床热水锅炉及10×43.24MW第一类溴化锂吸收式热泵机组作为第二主力热源。
2 机组、热网工况及事故经过2015年2月21日,事故前#1机组负荷220MW,主蒸汽流量868t/h,主汽压力16.59MPa,汽包水位0,给煤量202t/h,汽轮机调门为顺序阀控制方式,#1-#4高压调节阀(以下简称GV1-GV4)开度分别为100%、100%、38%、0%,一次调频投入。
市区供热量瞬时648MW(热网加热器及热泵出力共394MW,热水锅炉254MW),#2机组备用。
事故时#1机组#1高压主汽门(以下简称TV1)突然从100%关至0,负荷降至195MW,主汽压力突升导至锅炉PCV阀动作开启,操作员立即进行减少给煤量等相关操作,维持热网参数正常保证供暖。
3 汽轮机单侧高压主汽门关闭原因分析事故发生后,监盘人员检查发现TV1指令为100%,反馈为0%,EH油系统正常。
现场检查发现TV1阀位至0位,其连杆无松动,其它调门阀位正确。
排除伺服阀堵塞或连杆故障及EH油系统故障,初步判断为油动机控制部分的卡件故障导致TV1异常关闭。
事后检查证明确为控制部分的卡件故障。
4 机组事故处理4.1 锅炉侧的处理事故前锅炉带80%ECR以上,TV1关闭后主汽压力骤升必然引起PCV动作泄压,“虚假水位”使汽包水位调整极为困难。
TV1关闭后,操作员立即减少给煤量,最终减至事故前50%给煤量。
基于循环流化床锅炉的热惯性,操作员果断停运一台二次风机,快速削弱炉内燃烧,起到良好的效果。
汽包水位控制有专人调整,避免因水位调整不及时引起机组保护动作而事故扩大化!4.2 汽轮机侧的处理TV1关闭后避免在事故处理中TV1突然全开,热工人员将TV1指令手动改为0。
汽轮机单侧中调门运行中突关的分析和处理摘要:汽轮机在运行过程中,会出现主汽门或者调门突然关闭的情况,对机组带来很大的安全隐患,此文对某电厂汽轮机运行中单侧中调门突关的问题进行认真分析,并且制定了运行措施,避免类似情况发生,为运行人员操作具有一定的指导意义。
关键词:汽轮机调门振动负荷概况:某厂汽轮机高压缸有两个高主门,四个高调门,#1高压主汽门控制#1、#3高压调节汽门;#2高压主汽门控制#2、#4高压调节汽门,各汽门由各自独立的单侧油动机控制。
中压缸进汽由两组联合汽门控制,每组联合汽门包括一只中压主汽门和一只中压调节汽门,分别装在中压汽缸两侧,各汽门同样由各自独立的单侧油动机控制。
1、1号机单侧中调门关闭经过某年某月某日1号中调门IV1自动关闭,指令100%,反馈83%,就地实际检查机械位置位接近0%,检查无明显异音及振动增大现象,负荷值、主汽压力未有明显变化,高调门由40%开启至43%,再热蒸汽压力由1.87MPa增加至2.16MPa,3瓦和4瓦瓦振均有不同程度的增长(详见下表),中压缸上下缸温差由8.95℃增加至14.1℃,各轴承温度及轴向位移高中低压胀差无明显变化,及时开启1号中主门前、1号中调门前后疏水,视再热汽压力接带负荷(当时负荷指令持续170MW,没有变化)加强各运行参数的监视,并通知热控点检检查处理,期间负荷稳定,机组各项参数也没有波动。
经过14个小时热控点检更换1号中调门VPC 卡件后,1号中调门恢复正常,开度恢复为100%,各项参数恢复到原来水平,异常消除。
2、单侧中调门关闭前后各参数变化3、单侧中调门关闭对汽机运行的影响一般情况下中调门单侧关闭,造成中压缸单侧进汽,短时间内不会影响机组安全运行,但应该注意对轴向位移,机组振动,高排压力,高排温度,特别是中压两侧汽室,阀体温度温差变化的监视。
单侧进汽时间不可过长,否则应停机处理,防止单侧进汽时间过长引起汽缸二侧温差加大引起的不良后果。
一、汽轮机单侧主汽门进汽运行汽轮机单侧主汽门进汽是指汽轮发电机组在正常运行过程中由于某种原因造成一侧主汽门突然关闭或者部分关闭的运行方式,这种方式是一种非正常运行方式,其主要特点就是单侧进汽造成汽轮机进汽不均,造成热力变化,同时也无法带全负荷。
如果汽轮机发生单侧主汽门进汽运行的异常运行工况,首先应除低机组负荷至50%左右,在确实其他参数正常的情况下监视运行。
然后立即组织人员查清原因,判断如果能够在线处理,则定期在线处理措施,如果不能在线处理,则进行故障停机处理。
二、单侧主汽门运行事故应急处理步骤1、发现任一主汽门关闭,立即检查汽轮机EH油压是否正常,否则启动备用EH油泵运行。
2 、备用EH泵启动后,若EH油压仍在下降,确认是EH油泄漏,则手动将油动机漏油主汽门指令由100%关至0%。
3 、设法控制机组负荷60WM(总负荷30%)左右,尽量维持机、炉侧各参数正常,尤其在快速减负荷过程中注意主蒸汽过热度在50度以上,必要时开启汽机本体疏水,并密切监视汽机本体各参数正常。
4 、应立即派人到现场关闭泄漏的EH油动机进油门,维持EH油压的稳定,防止EH油压低导致汽轮机跳闸。
5 、若此时汽轮机高压调节门为单阀控制,应联系热工手动将未泄漏侧高压调门全开,降低主汽压力及负荷稳定,此时应密切监视机组振动、胀差、轴向位移等相关参数,加强汽包水位,除氧器水位,热井水位监视调整,然后将汽轮机已关闭高压主蒸汽阀前、后疏水门视情况缓慢开启。
6 、若此时汽轮机高压调节门为顺序阀控制,则应迅速切为单阀控制,应联系热工手动将未泄漏侧高压调门全开,降低主汽压力及维持负荷稳定,此时应密切监视机组振动、胀差、轴向位移等相关参数,加强汽包水位,除氧器水位,热井水位监视调整,然后将汽轮机已关闭高压主蒸汽阀前后疏水门视情况缓慢开启。
7 、开启汽轮机已关闭高压主蒸汽进汽门前疏水门,防止故障主汽门前蒸汽长时间不流动,蒸汽带水造成汽轮机水冲击。
8、EH油漏点检修处理完毕后,先确认故障主汽门侧高调门手动关至0%,然后将故障主汽门就地油动机进油手动门缓慢开启。
主汽门自动关闭案例分析一、事情经过3月16日,系统收到汽轮机主汽门关闭信号,发电机连锁跳,汽轮机正常运行中由于负荷突然下降导致转速立即上升至3099rpm/min,超过汽轮机额定转速103%,超速保护动作,OPC动作,高调门自动关闭,很快转速正常后,高调门自动打开,汽轮机正常工作,发电机解列。
二、原因分析1)主汽门行程开关误动作;2)电气信号干扰。
三、应对措施1、对主汽门行程开关检查,并紧固线头;2、将行程开关信号线路加屏蔽,防止信号干扰。
二00七年三月十七日报:公司领导送:保全处300MW汽轮机高压主汽门卡涩原因及其处理摘要:叙述了沙角A电厂国产引进型300 MW汽轮机在运行中进行定期阀门试验时发现主汽门卡涩的过程。
通过对主汽门油动机原理图的分析,找出汽门卡涩原因。
对不同原因引起的卡涩,指出其处理应做好哪些安全措施、采用何种处理方法。
最后总结了汽门定期活动试验值得注意的问题。
关键词:汽轮机;主汽门;阀杆;卡涩;故障沙角A电厂5号汽轮机是引进美国西屋公司技术由上海汽轮机厂制造的300 MW汽轮机,该机型号为N300-16.7/538 / 538,配用SG-1025 /18.3M317型亚临界、中间再热、单炉膛强制循环锅炉。
汽轮机调节系统是由美国西屋公司生产的DEHⅢ型数字电液调节系统,DEH系统液压部分采用高压抗燃油,其工作压力范围为12.4~14.5 MPa。
机组设置12个油动机,分别控制2个高压主汽门,6个高压调速汽门,2个中压主汽门,2个中压调速汽门。
除2个中压主汽门外,其余各门的开度均通过电液转换器受DEH系统计算机控制,DEH系统具有阀门在线全行程试验的功能。
1故障过程2002年6月28日,5号机带210 MW负荷调峰运行,值班人员利用机组调峰的机会定期进行主汽门和调速汽门的活动试验(阀门试验是全行程动作试验,按厂家的要求,该机组进行阀门试验时必须将机组负荷降至210 MW以下),在分别试各主汽门和调速汽门后发现A 侧高压主汽门(以下简称为TV1)不能动作。
330MW机组运行过程中主汽门异常关闭原因分析及对策摘要:结合330MW汽轮机组在运行过程中发生单侧主汽门异常关闭的的现象,阐述了伺服阀的日常维护和EH油系统阀门各种故障现象,并进行分析。
关键词:主汽门关闭 EH油油动机伺服阀故障前言电液伺服阀是工业自动化控制系统中的重要元件,他能将几毫安的微弱电控信号转换成几十马力以上的巨大液压功率输出,驱动各种各样的负载,进行位置控制、速度控制或拖力控制等。
电液伺服阀具有控制精度高、响应快、体积小、重量轻、功率放大系数高和直线性好等优点,所以得到了广泛的应用。
DEH控制系统已成为火力发电厂的核心控制系统,由于电液伺服阀在DEH控制系统中起着犹如“心脏”的重要作用,所以在工作和日常维护中应该特别重视。
一、事件经过2015年1月3日10时57分,某电厂 1号机组机组负荷282.2MW,机跟随方式运行,顺序阀控制,右侧高压主汽阀、调阀全开,左侧高压主汽阀(TV1)全开,1号高压调节阀(GV1)、5号高压调节阀(GV5)全开、3号高压调节阀(GV3)开度20%。
10时58分GV3开度由20%开至88%出现连续波动,11时01分37秒,高压主汽阀TV1开度反馈从100%开始下降,DEH画面显示“阀门故障”报警,至11时02分51秒TV1开度反馈降至15.1%,并保持在此开度,同时3号高压调节阀(GV3)逐渐全开,机组负荷降至245.2MW(如下图)。
此时热控人员检查DEH逻辑正常,高压主汽门TV1、TV2的逻辑指令均为100。
先后尝试活动TV1、将主汽门TV1逻辑手操器切为手动输入指令阀门反馈均无变化,就地拔出伺服阀航空插头TV1关闭,使用信号发生器驱动伺服阀主汽门仍无法打开。
12时30分更换伺服阀后重新开启主汽门TV,在阀门开至15%时无法继续开启,将左侧高压调门GV1、GV3、GV5关闭后TV1立即开至100%。
二、原因分析1、检查高压主汽门TV1伺服阀,发现伺服阀内滤网进油面已被黑色带铁屑污垢覆盖,导致TV1伺服阀油路堵塞,电液转换效率降低,在伺服阀机械零偏作用下TV1缓慢关闭。
汽轮机高压调门突关的分析和处理谢克东(许昌龙岗发电有限责任公司,河南许昌,461690)摘要:对某电厂汽轮机高压调门在运行过程中突然关闭的问题进行了认真分析,并实施了可靠的处理措施,避免了类似情况再次出现,对其他机组具有一定的参考意义。
关键词:高压调门;运行中;突然关闭;原因分析一、概况某电厂1号机组的高压主汽门和调门为上海汽轮机厂生产,设计由四个高压调节阀(高压调节阀简称GV,下同)分别控制高压内缸里相应的4个喷嘴,调节阀分别由各自独立的油动机控制,实现机组的配汽要求。
调节阀油动机位于调节阀上部,直接带动阀杆运动。
高压调节阀的配汽顺序图如下:图1-1高压调节阀动作顺序图如图1-1,高压调节阀设计开启顺序GV4-GV3-GV1-GV2,顺序阀情况下,通往喷嘴上部的GV4、GV3全开,通往喷嘴下部的GV1、GV2调节进汽流量。
二、故障现象:机组在顺序阀工况下正常运行;02月19日04:50分,运行人员发现“GV4阀门伺服卡故障”报警,检查4号高压调门指令100%,反馈0%,就地阀门全关。
立即进行调整,并将4号高压调门指令强制关至0,热工人员做条件防止4号高压调门突然全开。
02月09日13:47分,运行发现“GV3阀门伺服卡故障”报警,检查3号高压调门指令100%,反馈0%,就地阀门全关。
立即进行运行调整,并将3号高压调门指令强制关至0,做条件防止3号高压调门突然全开。
三、原因分析及处理措施3.1原因分析本机组高压调节阀的油动机执行机构原理如下图所示:图3-1高压调节阀油动机执行机构原理图油动机为单侧进油式结构,执行机构靠油压开启,通过弹簧关闭,由伺服阀控制进油量来控制调门开度。
高压调门的EH油系统图如下所示:图3-1高压调节阀EH油路图从故障情况看,引起GV4和GV3调门无法正常开启的可能原因有:伺服阀故障、卸荷阀故障、油动机机械故障(包括机械卡涩和油缸内部窜油)或控制回路故障。
3.2处理方案及现场实施:故障发生后,为不影响机组带负荷,先由热工人员调整阀序,由4、3-1-2更改为1、2-3-4。
利港电厂#8机#3高调门运行中突然关闭异常分析处理摘要:对利港电厂#8机#3高压调门在运行中突然关闭的问题进行分析和处理,并制定防范措施避免类似的情况发生。
关键词:高调门;活塞杆;断裂;事故预防1 简介江阴利港发电股份有限公司三、四期工程(#5-#8机组)汽轮机型号为N600-24.2/538/566,为超临界、单轴、三缸、四排汽、中间再热、凝汽式汽轮机。
机组于2015年9月份开始汽轮机提效增容改造,至2017年6月份4台机组增容改造全部结束,提高机组的安全性与经济性,达到机组额定650MW出力。
每台机组设有4只高压调门,其壳体与高压主汽门壳体焊成一体,布置在高中压缸两侧弹性支架上,每只调节阀由一只油动机控制,实现机组配汽要求。
油动机为单侧进油式结构,机构靠油压开启,通过弹簧关闭,由伺服阀控制进油量来控制调门开度。
2 异常情况经过2021年10月5日21:05:37,机组负荷542MW,#1瓦振动高报警,检查发现GV3已关闭到0位,GV4开出,负荷下降至500MW,主汽压从21.2MPa上升至21.9Mpa,调门指令反馈偏差大切单阀,立即汇报值长,退AGC,切BASE,减煤控制压力,维持工况稳定,因GV3不受控,运行关闭GV3抗燃油进油、回油、安全油隔绝门,保持GV3机械关闭,通知检修处理。
22:20检修开票检查处理GV3:资产管理部集控组检查了高调门控制卡件无异常;检修热控专业检查就地伺服阀指令信号未见异常;机务更换伺服阀2次也未能排除异常,在更换伺服阀后押票恢复油路传动过程中,观察抗燃油泵电流无波动,抗燃油泵出口流量计无波动,就地油管无泄压异音。
处理无果,保持GV3油路隔绝,调整高调门阀序,由GV1-GV2、GV3、GV4改为GV1-GV2、GV4、GV3,将GV3放到最后,减少对机组运行的影响。
2021年10月6日继续查找异常原因,在机务更换快速卸荷阀后能彻底排除油路问题,热控部分也再次通过分析排查判定无异常,初步分析本次异常原因为#3高调门油动机活塞杆断裂,造成阀门突然关闭,且GV3从全开位因活塞杆断裂被弹簧压至0位,活塞盘仍应被油压顶在油缸顶部,若活塞杆未断则活塞盘应连同阀芯一起被弹簧压到0位,此时活塞盘应在油缸底部,为印证分析,提出用超声检测活塞盘的位置。
汽轮机高压调门关闭原因分析发表时间:2018-11-02T17:21:50.623Z 来源:《知识-力量》2018年12月上作者:付红宾[导读] 本文对汽轮机高调门因电缆过于靠近高温缸体超温造成绝缘老化通讯中断调门关闭,运行中突然关闭的原因进行分析,阐明了电缆处于高温环境发生故障的原因。
对于汽轮机周边电缆涉及和改造具有广泛的借鉴意义。
关键词(大唐许昌龙岗发电有限责任公司,河南省禹州市 461690)摘要:本文对汽轮机高调门因电缆过于靠近高温缸体超温造成绝缘老化通讯中断调门关闭,运行中突然关闭的原因进行分析,阐明了电缆处于高温环境发生故障的原因。
对于汽轮机周边电缆涉及和改造具有广泛的借鉴意义。
关键词:控制电缆;调门;DEH一、前言大唐某公司一期两台机组为上海汽轮机厂制造的350MW亚临界机组。
汽轮机控制系统采用OV ATIAN型数字式电液控制系统,其设计为分散布置、双路供电,系统DPU主模件采用冗余配置。
液压系统采用上海汽轮机厂成套的高压抗燃油EH装置。
汽轮机主蒸汽阀门TV和调门GV连接电缆布置在高中压缸体阀门两侧(详见图3),缸体保温与电缆线槽距离30至50cm。
热工人员定期检查发现汽轮机高压调门控制电缆有老化现象,利用检修机会将单侧的调门电缆进行了更换。
机组在控制电缆更换后启动一天突发汽轮机高压调门关闭故障,严重影响机组的安全生产运行。
二、故障及处理经过某年某月某日,2号机组负荷指令250MW,启动B制粉系统(B、C、D、E磨运行)增加机组出力。
在加负荷过程中突然机组出力快速下降,检查2号机高压GV3调门实际已经关闭,DEH画面显示指令和反馈均为100%。
汽轮机组调门开启顺序见图1所示。
图1 汽轮机高压截止阀和调节阀位置顺序图检查DEH机柜GV3伺服卡LVDT指示灯不亮,分析反馈LVDT控制回路存在问题,对GV3进行处理,缓慢将GV3指令逐渐强制为0,并对GV3进油隔离确保故障期间该调门不发生误动,对GV3控制回路进行排查发现GV3调门油动机端子箱至地面端子箱的LVDT反馈中间电缆线间阻值3Ω,由于GV3指令和反馈电缆通过同一段电缆桥架接入同一端子箱,为防止指令电缆存在同样问题,将GV3指令电缆和反馈电缆全部更换,更换后对GV3调门试验,动作正常。
//汽轮机单侧调门瞬间误关故障分析及处理
林涛张永军李海永大唐运城发电有限责任公司山西省运城市044602
更新时间:2012-3-22
1.引言
火力发电机组容量的增大、蒸汽参数的提高,对机组的安全性、经济性及其自动控制水平的要求也愈来愈高。
作为600MW的大型机组,汽轮机数字电液控制系统(DEH)已被广泛采用。
汽轮机调节汽门作为DEH系统的主要执行机构,主要用来控制机组的转速和功率,其故障将会导致机组转速或者功率波动,直接影响到机组的安全经济运行。
某发电公司#1机组为600MW亚临界直接空冷燃煤发电机组,于2007年9月投产。
汽轮机为哈汽NZK600-16.7/538/538亚临界、一次中间再热、单轴、三缸四排汽、直接空冷凝汽式汽轮机,DCS系统采用了艾默生过程控制公司(原西屋公司)最新一代DCS控制系统OVATION-XP版。
汽轮机调节系统为高压抗燃油型数字电液调节系统(DEH系统),电子设备采用了上海艾默生公司同版本的OVATION系统,液压系统采用了哈尔滨汽轮机控制工程有限公司成套的高压抗燃油E H装置。
每台机组配有两个高压主汽门(TV)、四个高压调门(GV)、两个中压主汽门(RSV)和两个中压调门(IV)(其中左侧高压主汽门由电磁阀控制开关)。
2.故障现象
#1机组2011年7月28日启动,从7月30日开始五次出现部分主汽门及调门突关现象,具体现象描述如下,图1-图3为故障截图。
20011-7-30 3:28 #1机组负荷302.18MW、顺阀控制、CCS方式、AGC投入。
GV4、IV2出现突然关到0位,并自行以2.5%/S的速率打开至原位,AGC工况未解除,负荷波动32MW。
20011-8-6 5:37 #1机组负荷303.29MW、顺阀控制、CCS方式、AGC投入。
RSV2出现突然关到0位,并自行以2.5%/S的速率开启至原位,AGC工况未解除,负荷波动27MW。
20011-8-10 14:14 #1机组负荷485.58MW、顺阀控制、CCS方式、AGC投入。
RSV2、IV2出现突然关到0位,并自行以2.5%/S的速率打开至原位。
AGC工况未解除,负荷波动10MW。
20011-8-11 19:04 #1机组负荷472.15MW、顺阀控制、CCS方式、AGC投入。
GV4出现突然关到0位,并自行以2.5%/S的速率打开至原位。
AGC工况未解除,负荷波动40MW。
20011-8-12 5:56 #1机组负荷367.17MW, 顺阀控制,CCS方式,AGC投入41号控制器BRA NCH2上RSV2,GV4 出现突然关到0位,并自行以2.5%/S的速率打开至原位。
AGC工况未解除,负荷波动45MW。
图1图2
图3
3.故障原因分析过程
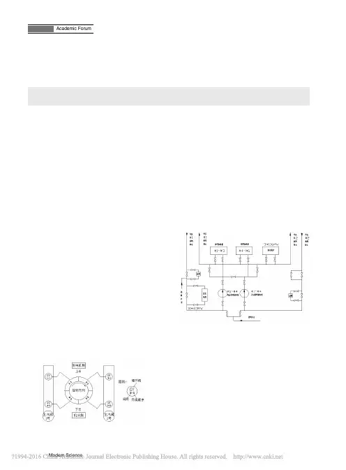
DEH功能强大,结构复杂,各项功能紧密结合为一个有机整体,阀门控制主要通过DEH伺服控制系统实现,该系统采用高压抗燃油为工质的伺服控制系统。
其阀门执行机构都是阀门位置伺服控制回路组成的闭环控制装置,DEH主控制器生成的各油动机阀位指令信号,经VP卡、电液伺服阀,形成调节油压至油动机。
油动机行程由位移传感器测出,反馈至VP卡输入端,使之与该油动机阀位指令保持相等,形成闭环控制。
查看历史趋势显示分析,没有发现DEH发出强关指令;没有发现DEH有异常信号送出; DEH一次调频未动作;观察自检中VP卡的状态灯,无故障指示;油压无摆动。
可能引发调门误关动作的可能原因为SHUTDOWN指令误发、中间继电器故障、数据库内部数据出错导致故障、控制器内部运算出错导致误动几个方面,汽门误关故障发生频率越来越高,极大地威胁着机组的安全稳定运行。
机组于2011年8月14日停机处理汽门误关故障。
3.1 外部原因分析及处理
外部能引起控制器发出关门指令的因素主要有调门的SHUTDOWN指令误发、信号屏蔽问题导致信号传输故障、VP卡件本身或者IO总线通讯故障。
调门SHUTDOWN指令主要是由OPC指令来触发,此控制站控制六个调门SHUTDOWN功能是D04 3P1B3S5 DO卡件16通道和D043P1B3S5 DO卡件16通道输出,带动中间继电器,将信号传到各V P卡动作,其中A17端子(PS+)和A18端子(PS-)与A4端子(VS+)和B5端子(YS-)连接为SHUTDOWN指令提供辅助电压,中间继电器常开接点接A6端子(VF+)和A7端子(DI)。
对所有的VP卡作了SHUTDOWN测试功能,动作正常,阀门曲线指令与反馈都为快关快开,与事故时阀门曲线不符。
而且在调门第一次误关后怀疑是SHUTDOWN回路的中间继电器故障导致调门动作已将
中间继电器拔出,调门第二次误关时RSV2也误关,而且RSV2未接受SHUTDOWN信号,所以排除SHUTDOWN信号误发的可能性。
DEH主控制器中各调门VP卡的分布情况如表1,由于误动作的阀门都集中在DEH主控制器的BRANCH2中,所以初步判断为卡件或者IO通讯故障的可能性较大,但由于机组运行过程中,不能进行进一步的分析验证;另外上次机组检修时调门LVDT有过拆装,整定时直接使用FULL CAL IBRTE,方法不当,但由于并不是所有阀门均出现此故障,所以整定方法不当的原因可能性不大,但也不能完全排除是因此而引发故障。
3.2 数据库数据故障原因分析及处理
停机后进行调速系统静态特性测试,与以前数据进行对比,发现静态特性没有发生变化;解体检查错油门滑阀及电液转换器滑阀,发现油口畅通;现场检查DEH系统,机柜的两路供电电压均稳定可靠,供I/O卡件的直流电源输出正常;主控制器和备用控制器运行状态良好;VP卡件指示正常,输出实时电压在正常范围内,伺服阀指令线未松动;LVDT 内部线圈未磨损或者断裂;阀门控制卡内部的增益设置合理;排除由于信号屏蔽不良由干扰引起信号误发的可能。
在DCS厂家技术人员指导下,热工人员认真检查历史数据,发现每次调门误关时数据库中V P卡RVPSTATUS点的第7位都会发生翻转,检查测试各VP卡RVPSTATUS点状态变化情况,查阅O VATION手册可知:RVPSTATUS点BIT7具体是1还是0没有绝对的意义,而是VP卡和控制器检测操作是否正常时互相回应的一个记录位。
排除RVPSTATUS状态改变导致调门误关的可能性。
热工人员对DEH主控制器所有逻辑编译后控制逻辑下装过程中,出现因算法点DEH1_WMOUNB ALCETRIP数据库与控制器不一致的情况而不能正常控制逻辑下装,删除此点后,控制逻辑下装正常。
对比以前备份的部分数据库,发现此点在数据库中没有任何ALGORITHM_NAME。
正常情况无用的算法点也应该有个算法名称,如ALGORITHM_NAME="AVALGEN",次点为垃圾点,数据库中垃圾点一般不会对控制过程产生影响,故排除由于此垃圾点的原因造成调门故障。
3.3 控制器内部运算原因分析及处理
控制器内部运算主要有控制器故障导致调门误关和DEH组态不合理导致故障。
由于在机组第一次出现此问题时已经进行过控制器切换,之后仍出现此故障,于是排除控制器故障的可能性;对DEH主控制器及与其相关的DO,AO 信号TIMEOUT TIME进行检查,TIMEOUT TIME全部为16SEC,正常,故排除组态不合理的原因。
4.相应处理措施
经过以上的初项分析排查,针对导致故障的可能因素进行相应处理,重点41号控制器与B RANCH2的IO总线通讯接口及设备部件进行处理,主要措施如下。
1) 更换与DEH主控制器BRANCH2 IO通讯有关的设备以及相应调门的RVP卡,包括控制器底座,BRANCH2所有卡件底座,BRANCH2终端模块。
2) 对所有调门按照厂家要求方法进行重新整定。
3) 更换DEH主控制器,格式化控制器闪存,对数据库中存在的垃圾点进行处理;对控制器作格式化和控制逻辑下装工作。
5.结束语
经过以上处理后汽门误关问题已经解决,但由于报警系统、控制器故障记录系统不完善,无法确定出现此故障的具体原因,建议DCS设备厂家增加控制器对模件及重要通道的报警管理及记录手段。
另外,通过本文的处理过程受到的启发,进一步加强重点设备的热工检修和维护措施,避免类似故障影响机组的安全经济稳定运行。