钢框架梁柱连接节点构造
- 格式:doc
- 大小:1.95 MB
- 文档页数:22
钢框架梁柱连接节点构造,图文并茂2015-11-27 09:41专业分类:建筑结构浏览数:237591、梁与柱得连接1.1 梁与柱刚性连接得构造,形式有三种。
(1)梁翼缘、腹板与柱均为全熔透焊接,即全焊接节点;(2)梁翼缘与柱全熔透焊接,梁腹板与柱螺栓连接,即栓焊混合节点;(3)梁翼缘、腹板与柱均为螺栓连接,即全栓接节点;<img data—s="300,640"data—ratio="0.3426124197002141" data-w="467" width="auto” _width="auto"src="” st yle=”padding:5px 0px; border: 0px; max—width:600px; vertical—align:middle; font—family: 微软雅黑;font-weight: bold; line—height: 1。
75em;width:auto !important; visibili ty:visible !important;”/〉上图为三种梁柱刚性连接节点1、2梁与柱刚性连接得构造(1)工字形梁与工字形柱或箱形柱刚性连接得细部构造:<img data-s="300,640" data-ratio="0、39863325740318906” data—w=”439"width=”auto"_width=”auto” src=”” style=”padding:5px 0px;border: 0px; max-width: 600px; vertical-align: middle; width:auto !important; visibility: visible!important;"/〉上图为梁与柱刚性连接细部构造(2)工字形柱与箱形柱通过带悬臂梁段与框架梁连接时,构造措施有两种:a、悬臂梁与梁栓焊混合节点;b、悬臂梁与梁全栓接节点。
浅谈钢结构梁柱节点连接设计方法摘要:随着社会的发展与进步,重视钢结构梁柱节点连接设计方法对于现实生活具有重要的意义。
本文主要介绍钢结构梁柱节点连接设计方法的有关内容。
关键词:钢结构;节点连接;设计方法;梁柱节点;中图分类号:tu391文献标识码: a 文章编号:引言钢结构连接节点设计是钢结构整个设计工作中的一个重要的环节,连接节点的设计是否安全, 对保证钢结构的整体性和可靠度、对制造安装的质量和进度和对整个建设周期和成本都有着直接的影响。
一、钢结构梁柱节点的基本特征在钢结构设计时,对于钢结构的连接形式在计算模型中的确定是钢结构计算、设计必须首先解决的问题,其次要明确传力途径,然后才能将整个结构受力模型简化出来用软件进行分析计算。
按照传力特征不同,节点分刚接、铰接和半刚性连接。
( 1) 铰接连接节点,具有很大的柔性。
钢梁仅在腹板处采用高强螺栓连接,上、下翼缘无需进行现场焊接。
采用铰接时构造简单,使现场安装程序大为简化,现场作业量大大减小,现场安装可以不受天气及季节的影响,钢结构的安装速度大大提高。
但是,铰接连接刚度和耗能性能差,对于结构抗风、抗震不利。
( 2) 刚性连接节点,具有较高的强度和刚度。
其特点是受力性能好,但构造复杂,施工难度大。
设计中梁柱节点一般是做刚接,这是由于梁柱节点承受的荷载一般较大而且还要抵御风荷载和水平地震引起的位移。
( 3) 半刚性连接节点,刚度和强度介于铰接和刚接之间。
我国《钢结构设计规范》中没有给出半刚性连接的具体计算和设计方案,而且节点转动刚度很难确定。
这样的节点形式在工程设计中一般很少采用。
结构设计中习惯的做法是把连接当成理想刚接或者铰接,这样做能够使计算大大简化,得到的计算结果必然与实际存在偏差。
目前,主要通过采用调整系数来减少这种偏差。
二、梁柱节点的设计钢框架中梁与柱的连接起着在两种构件之间传递弯矩和剪力的作用, 是钢框架的主要组成部分, 它的性能直接关系到结构的整体反应。
1刚接或半刚接节点1.1欧洲规范(EN1993-1-8,5.2.2.5,54页)梁柱节点:对于框架支撑结构,当支撑体系可减少至少80%结构水平侧移时,初始连接转动刚度不小于8倍梁线刚度视为刚接节点;对框架结构,初始连接转动刚度不小于25倍梁线刚度视为刚接节点,欧洲标准定义刚性节点的依据是节点承载力与理想刚性节点相比下降不超过5%;初始连接转动刚度在0.5到25倍梁线刚度之间(开区间)视为半刚接,但是当框架梁柱线刚度比小于0.1时,即使满足初始连接转动刚度不小于25倍梁线刚度这一条件,亦视为半刚接节点。
柱脚:满足以下条件时柱脚可视为刚接:其中为假设柱子梁端铰接的柱子长细比。
1.2美国规范对刚性(FR)和半刚性(PR)节点,美国规范AISC360-10B章、J章仅给出了定性规定,规定刚性节点应有足够强度和刚度在承载力极限状态维持节点处角度,而柔性节点(simple connections)应几乎不传递弯矩,并有设计所要求的转动能力。
AISC341-16按不同结构形式分别给出了连接要求,对于钢板剪力墙结构边缘构件的连接,规范指出应满足框架结构(moment frame system)的连接要求,采用FR或PR连接形式。
对FR连接,规范规定(AISC341-16第E章6b节,34页)刚性连接应满足传递弯矩和剪力的强度要求,并应考虑超强系数和硬化,按下式计算:对于弯矩: ≥ ∙ /Ry取值为1.1, 取值为1.0(LRFD设计法)或1.5(ASD设计法);Mp对于剪力: ≥Lcf为梁净跨。
对PR连接,规范规定(AISC341-16第E章6b节,35页)半刚性连接应满足传递弯矩和剪力的强度要求,并在设计时考虑刚度和变形能力,包括对结构整体稳定性的影响。
对于弯矩:连接的名义抗弯强度(nominal flexure strength of connection)不应低于梁塑性弯矩Mp的50%;对于剪力:与刚性节点形式相同,将Mp替换为连接的名义抗弯强度即可。
钢结构梁柱节点连接设计摘要:钢结构建筑是工业不断发展的产物。
与传统施工技术相比,钢结构施工技术在应用性能和资源利用方面具有突出的价值。
在当前的建筑施工中,钢结构施工也被高度关注,这是建筑工程发展的一个标志。
随着我国基础设施项目的进展,越来越多的工程建筑开始使用装配式钢结构,在施工中备受关注,逐渐体现出钢结构的优势。
未来,钢结构或将成为中国建筑工程的主要形式。
因此,我们需要加大对梁柱连接的分析,实施合理的施工技术应用,为建筑行业的发展奠定基础。
关键词:钢结构;梁柱节点;连接设计引言钢结构作为一种现代化的建筑形式,在建筑行业得到广泛应用。
它的主要特点是采用工厂预制和现场组装的方式,具有施工效率高、质量可控、成本低等优势。
在钢结构中,梁柱节点连接是整个结构中最重要的组成部分之一,直接影响到结构的力学性能和整体稳定性。
传统的梁柱节点连接方法存在一些问题。
首先,传统的焊接连接或螺栓连接方式难以满足装配式建筑对高效施工的要求。
其次,传统连接方法的刚度和强度无法满足现代建筑结构对抗地震和风荷载的需求。
此外,传统连接方法在连接质量和施工工期方面也存在一定的局限性。
为了克服传统梁柱节点连接方法的局限性,许多研究者提出了不同的优化设计方法。
然而,现有的优化方法在提升节点连接处的力学性能方面效果有限,还需要进一步深入研究和改进。
基于此,文章针对钢结构梁柱节点连接设计展开研究,以供参考。
1、钢结构梁柱节点特征钢结构梁柱节点是钢结构中的重要组成部分,连接着钢梁和钢柱,在整个钢结构中起到了至关重要的作用。
一个优良的节点设计能够保证结构的强度、刚度和稳定性,而较差的节点连接方式则会导致结构失稳、破坏或者变形。
以下是钢结构梁柱节点的特征:1.高强度:钢结构梁柱节点通常要承受较大的载荷,并且要保证稳定性。
因此,在设计时需要考虑节点的强度,选择合适的钢材品种和规格。
2.刚度大:为了保证整个结构的刚度和稳定性,钢结构梁柱节点需要具备较大的刚度,尤其是在受剪力和扭矩作用下。
钢结构常见的几种梁柱刚性连形式(1)梁与柱刚性连接的构造形式有三种,如图所示:(2)梁与柱的连接节点计算时,主要验算以下内容:①梁与柱连接的承载力②柱腹板的局部抗压承载力和柱翼缘板的刚度③梁柱节点域的抗剪承载力(3)梁与柱刚性连接的构造①框架梁与工字形截面柱和箱形截面柱刚性连接的构造:框架梁与柱刚性连接②工字形截面柱和箱形截面柱通过带悬臂梁段与框架梁连接时,构造措施有两种:柱带悬臂梁段与框架梁连接梁与柱刚性连接时,按抗震设防的结构,柱在梁翼缘上下各500mm的节点范围内,柱翼缘与柱腹板间或箱形柱壁板间的组合焊缝,应采用全熔透坡口焊缝。
(4)改进梁与柱刚性连接抗震性能的构造措施①骨形连接骨形连接是通过削弱梁来保护梁柱节点。
骨形连接梁端翼缘加焊楔形盖板在不降低梁的强度和刚度的前提下,通过梁端翼缘加焊楔形盖板。
(5)工字形截面柱在弱轴与主梁刚性连接当工字形截面柱在弱轴方向与主梁刚性连接时,应在主梁翼缘对应位置设置柱水平加劲肋,在梁高范围内设置柱的竖向连接板,其厚度应分别与梁翼缘和腹板厚度相同。
柱水平加劲肋与柱翼缘和腹板均为全熔透坡口焊缝,竖向连接板与柱腹板连接为角焊缝。
主梁与柱的现场连接如图所示。
2梁与柱的铰接连接(1)梁与柱的铰接连接分为:仅梁腹板连接、仅梁翼缘连接:仅梁腹板连接仅梁翼缘连接柱上伸出加劲板与梁腹板相连梁与柱用双盖板相连(2)柱在弱轴与梁铰接连接分为:柱上伸出加劲板与梁腹板相连、梁与柱用双盖板相连柱的拼接节点一般都是刚接节点,柱拼接接头应位于框架节点塑性区以外,一般宜在框架梁上方1.3m左右。
考虑运输方便及吊装条件等因素,柱的安装单元一般采用三层一根,长度10~12m左右。
根据设计和施工的具体条件,柱的拼接可采取焊接或高强度螺栓连接。
按非抗震设计的轴心受压柱或压弯柱,当柱的弯矩较小且不产生拉力的情况下,柱的上下端应铣平顶紧,并与柱轴线垂直。
柱的25%的轴力和弯矩可通过铣平端传递,此时柱的拼接节点可按75%的轴力和弯矩及全部剪力设计。
3.7节点设计3.7.1梁柱节点3.7.1.1螺栓布置及验算采用M24 的10.9级摩擦型高强度螺栓连接,摩擦面采用喷砂处理,45.0=μ,kN P 225=。
螺栓布置如图3-70、3-71所示图3-70 梁柱节点布置图图3-71 梁柱节点螺栓布置图每个螺栓的抗剪承载力设计值为501251001251251004505012510050757550kN P n N f R b v 125.9122545.019.0=⨯⨯⨯==μαR α——抗力分项系数的倒数,一般取0.9;f n ——一个螺栓的传力摩擦面数。
每个螺栓的抗拉承载力设计值为kN P N b t 1802258.08.0=⨯==选取梁端最不利组合272.7299.7767.995M kN m V kN N kN =-⋅⎧⎫⎪⎪=⎨⎬⎪⎪=-⎩⎭,轴力和剪力转化考虑轴向压力影响最上端螺栓的拉力为()1222272.720.175146.8540.1750.225t i M y N kN m y ⋅⨯===⨯+∑每个螺栓的剪力为99.7712.478v V N kN n === 计算最上端螺栓的承载力为12.47146.850.95 1.091.125180v t b b v t N N N N +=+=< 满足要求。
3.7.1.2 端板厚度设计对于最上排螺栓,此处端板属于两边支承类,端板平齐。
()()3665046146.85103224625045050462054f w tw f f w e e N t mm e b e e e f ⨯⨯⨯⨯≥==⨯+⨯⨯+⨯⎡⎤⎡⎤++⎣⎦⎣⎦f e ——螺栓中心至翼缘板表面的距离; w e ——螺栓中心至腹板的距离;a ——螺栓间距;b ——端板宽度;f ——端板钢材的抗拉强度设计值,端板厚度mm t 16≥,取2205mm N f =。
综上,端板厚度取25t mm =。
3.7.1.3 梁柱节点域验算62272.721096.97/125/45025025v b c c M N mm f N mm d d t τ⨯===<=⨯⨯节点域的剪应力满足规范要求,按构造要求在两边设置加劲肋。
钢框架梁柱连接节点构造,图文并茂- 结构理论1. 梁与柱的连接1.1 梁与柱刚性连接的构造,形式有三种。
(1)梁翼缘、腹板与柱均为全熔透焊接,即全焊接节点;(2)梁翼缘与柱全熔透焊接,梁腹板与柱螺栓连接,即栓焊混合节点;(3)梁翼缘、腹板与柱均为螺栓连接,即全栓接节点;上图为三种梁柱刚性连接节点1.2 梁与柱刚性连接的构造(1)工字形梁与工字形柱或箱形柱刚性连接的细部构造:上图为梁与柱刚性连接细部构造(2)工字形柱和箱形柱通过带悬臂梁段与框架梁连接时,构造措施有两种:a、悬臂梁与梁栓焊混合节点;b、悬臂梁与梁全栓接节点。
上图为柱带悬臂梁段与梁连接梁与柱刚性连接时,按抗震设防的结构,柱在梁翼缘上下各500mm的节点范Χ内,柱翼缘与柱腹板间或箱形柱壁板间的组合焊缝,应采用全熔透坡口焊缝。
1.3 改进梁与柱刚性连接抗震性能的构造措施对于有抗震性能要求的梁柱刚性连接,在遭遇罕见强烈地震时,应在构造上保证钢梁破坏先于节点破坏,保证梁柱节点的安全,即“强柱弱梁、强节点弱构件”的设计原则。
(1)骨形连接骨形连接是通过削弱钢梁来保护梁柱节点。
这种骨形连接在日本比较流行。
上图为骨形连接(2)楔形盖板连接在不降低梁的强度和刚度的前提下,通过梁端翼缘加焊楔形盖板,增强梁柱节点上图为几种常见的梁端翼缘加焊楔形盖板做法(3)外连式加劲板连接对于箱型或圆形截面柱与梁刚性连接,除了采用骨形连接、楔形盖板之外,还可采用外连式加劲板连接,节点强度明显大于钢梁强度。
1.4 工字形截面柱在弱轴与主梁刚性连接当工字形截面柱在弱轴方向与主梁刚性连接时,应在主梁翼缘对应λ置设置柱水平加劲肋,在梁高范Χ内设置柱的竖向连接板,其厚度应分别与梁翼缘和腹板厚度相同。
柱水平加劲肋与柱翼缘和腹板均为全熔透坡口焊缝,竖向连接板与柱腹板连接为角焊缝。
主梁与柱的现场连接如图所示。
上图为工字形柱弱轴与主梁刚性连接1.5 梁柱节点域的加强工字形由上下水平加劲肋和柱翼缘所包Χ的柱腹板简称为节点域。
型钢混凝土梁柱节点连接形式与构造探析一、型钢混凝土组合结构的特点型钢混凝土结构是以型钢周围配置钢筋和浇筑钢筋混凝土的埋入式组合结构体系,这种结构体系在日本称之为钢骨混凝土结构(Steel Reinforced Concrete)。
在英、美等西方国家称之为混凝土包钢结构(Steel Encased Concrete),在前苏联则称之为劲性钢筋混凝土结构。
由于型钢混凝土结构中的型钢与其外包混凝土结构共同工作,两类材料的强度都能得到充分利用。
与钢筋混凝土结构相比,由于内埋了型钢而使结构承载力大为提高,且具有较大的延性,抗震性能好;此外,型钢在施工阶段可做为支架结构。
与钢结构相比由于外包混凝土的约束,可以防止钢构件的局部失稳并提高构件的整体刚度,从而使钢材的强度得以充分利用,节省钢材;外包混凝土还能提高钢构件的耐火性和耐久性。
由于型钢混凝土结构具有许多优点,因而在许多国家得到了广泛应用。
型钢混凝土结构中的型钢除采用轧制钢外,还广泛采用焊接型钢,此外还配合使用钢筋和钢箍。
型钢混凝土梁和柱是最基本的构件,型钢的布置形式可以分为实腹式和空腹式两大类。
实腹式型钢可由型钢或钢板焊成,常用的截面型式有I、H、工、T、槽形等和矩形及圆形钢管。
空腹式构件的型钢一般由缀板或缀条连接角钢或槽钢而组成,材料比较节省但制作工序较多。
实验表明配置实腹式型钢的型钢混凝土柱具有良好的延性性能和耗能能力,适用于抗震设防区。
二、梁柱节点的连接形式与构造框架梁柱节点为梁和柱的重叠区域,是保证结构承载力和刚度的重要部位。
型钢混凝土组合结构中的梁柱连接有型钢混凝土柱与型钢混凝土梁的连接、型钢混凝土柱与钢筋混凝土梁的连接以及型钢混凝土柱与钢梁的连接。
梁柱节点的连接构造应做到构造简单,传力明确,便于混凝土的浇捣和配筋。
例如型钢混凝土梁柱节点部位型钢和钢筋纵横交错,除了应能保证梁端型钢部分的应力可靠地传递到柱型钢外,同时还要便于浇筑混凝土,以保证节点区混凝土的密实性。
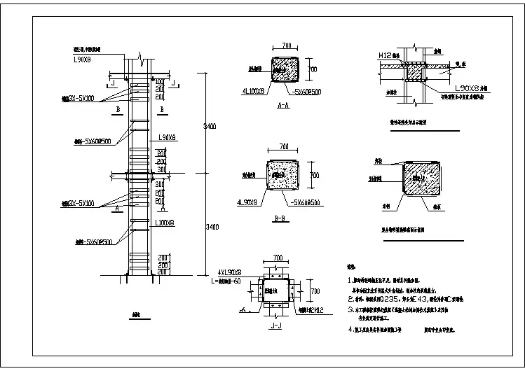
门式轻型刚架主要节点和构件的构造12.3.1 节点的构造1. 梁、柱连接节点的构造门式刚架梁与柱的工地连接,常用螺栓端板连接,它是在构件端部截面上焊接平板(端板与梁柱的焊接要求等强,多采用熔透焊)并以螺栓与另一构件的端板相连的一种节点形式,其连接形式分为端板竖放、横放、斜放三种基本形式(图12-2)。
每种形式又可分为端板外伸式及端板平齐式两种连接方法(图12-3)。
图12-2梁柱连接形式图12-3端板连接形式梁柱连接节点的构造应符合下列规定:(1)连接应按所受最大内力设计。
当内力较小时,应按能够承受不小于较小被连接截面承载力的一半设计。
(2)刚架构件的连接应采用高强度螺栓,吊车梁与制动梁的连接可采用摩擦型高强度螺栓连接或焊接。
吊车梁与刚架连接的螺栓孔宜设长圆孔。
高强度螺栓直径可根据需要选用,通常采用M16~M24螺栓。
檩条和墙梁与刚架横梁和柱的连接通常采用M10或M12普通螺栓。
(3)端板连接螺栓应成对称布置。
在受拉翼缘和受压翼缘的内外两侧均应设置,并宜使每个翼缘的螺栓群中心与翼缘的中心重合或接近,为此,应采用将端板伸出截面高度范围以外的外伸式连接。
同时应在节点板外伸部分设置加劲肋(见图12-4a),使靠近受拉翼缘两侧螺栓受力均匀,接近一致。
螺栓拉力的分布建议按图12-4(b)中情况考虑,其中要求端板厚度不宜小于螺栓直径。
当螺栓群间的力臂足够大(例如在端板斜置时)或受力较小时(例如某些横梁拼接),也可采用将螺栓全部设在构件截面高度范围内的端板平齐式连接。
图12-4 端板外伸式节点的连接形式(4)螺栓中心至翼缘板表面的距离,应满足拧紧螺栓时的施工要求,不宜小于35 mm。
螺栓端距不应小于2倍螺栓孔径。
(5)在门式刚架中,受压翼缘的螺栓不宜少于两排。
当受拉翼缘两侧各设一排螺栓尚不能满足承载力要求时,可在翼缘内侧增设螺栓(见图12-5),其间距可取75 mm,且不小于3倍螺栓孔径。
(6)与横梁端板连接的柱翼缘部分应与端板等厚度(见图12-5),当端板上两对螺栓间的最大距离大于400 mm时,应在端板的中部增设一对螺栓。
专利名称:高层铰接钢框架梁柱连接节点构造及连接方法专利类型:发明专利
发明人:杨华
申请号:CN200610200021.3
申请日:20060111
公开号:CN1804254A
公开日:
20060719
专利内容由知识产权出版社提供
摘要:本发明公开了一种高层铰接钢框架梁柱连接节点构造及连接方法。
其构造为:在框架柱(2)与框架梁(1)之间分别连接角钢(3)和角钢(4);框架柱(2)、框架梁(1)与角钢(3)、角钢(4)分别为焊接连接,并且框架梁(1)与角钢(3)、角钢(4)还通过安装螺栓(5)连接。
其方法为:首先,将角钢(3)焊于框架柱(2)上;其次,将角钢(4)焊于框架梁(1)上;然后,用安装螺栓(5)穿过角钢(3)、框架梁(1)、角钢(4),将框架梁(1)与框架柱(2)连接;最后,将角钢(3)与框架梁(1)焊接,角钢(4)与框架柱(2)焊接。
本发明制作简单、施工方便,经济性好。
申请人:贵阳铝镁设计研究院
地址:550004 贵州省贵阳市北京路208号
国籍:CN
代理机构:贵阳中新专利商标事务所
代理人:吴无惧
更多信息请下载全文后查看。
钢框架梁柱连接节点构造,图文并茂2015-11-27 09:41 专业分类:建筑结构浏览数:237591. 梁与柱的连接1.1 梁与柱刚性连接的构造,形式有三种。
(1)梁翼缘、腹板与柱均为全熔透焊接,即全焊接节点;(2)梁翼缘与柱全熔透焊接,梁腹板与柱螺栓连接,即栓焊混合节点;(3)梁翼缘、腹板与柱均为螺栓连接,即全栓接节点;<img data-s="300,640" data-ratio="0.3426124197002141"data-w="467" width="auto" _width="auto"src="attach.zhulong./album/201511/27/45/0939452pvbdcbox6fb54ce.jpg" style="padding: 5px 0px; border: 0px; max-width: 600px; vertical-align: middle; font-family: 微软雅黑; font-weight: bold; line-height: 1.75em; width: auto !important; visibility: visible !important;"/>上图为三种梁柱刚性连接节点1.2 梁与柱刚性连接的构造(1)工字形梁与工字形柱或箱形柱刚性连接的细部构造:<img data-s="300,640" data-ratio="0.39863325740318906"data-w="439" width="auto" _width="auto"src="attach.zhulong./album/201511/27/45/093945emkspzjfcvapoeac.jpg"style="padding: 5px 0px; border: 0px; max-width: 600px; vertical-align: middle; width: auto !important; visibility: visible !important;"/>上图为梁与柱刚性连接细部构造(2)工字形柱和箱形柱通过带悬臂梁段与框架梁连接时,构造措施有两种:a、悬臂梁与梁栓焊混合节点;b、悬臂梁与梁全栓接节点。
<imgdata-s="300,640" data-ratio="0.30155210643015523" data-w="451"width="auto" _width="auto"src="attach.zhulong./album/201511/27/46/093946ii2jrocimmarktg5.jpg" style="padding: 5px 0px; border: 0px; max-width: 600px; vertical-align: middle; width: auto !important; visibility: visible !important;"/>上图为柱带悬臂梁段与梁连接梁与柱刚性连接时,按抗震设防的结构,柱在梁翼缘上下各500mm的节点范围内,柱翼缘与柱腹板间或箱形柱壁板间的组合焊缝,应采用全熔透坡口焊缝。
1.3 改进梁与柱刚性连接抗震性能的构造措施对于有抗震性能要求的梁柱刚性连接,在遭遇罕见强烈地震时,应在构造上保证钢梁破坏先于节点破坏,保证梁柱节点的安全,即“强柱弱梁、强节点弱构件”的设计原则。
(1)骨形连接骨形连接是通过削弱钢梁来保护梁柱节点。
这种骨形连接在日本比较流行。
<img data-s="300,640" data-ratio="0.9142857142857143"data-w="245" width="auto" _width="auto"src="attach.zhulong./album/201511/27/46/093946gjalaxhspk7pj5ri.jpg" style="padding: 5px 0px; border: 0px; max-width: 600px; vertical-align: middle; width: auto !important; visibility: visible !important;"/>上图为骨形连接(2)楔形盖板连接在不降低梁的强度和刚度的前提下,通过梁端翼缘加焊楔形盖板,增强梁柱节点<imgsrc="attach.zhulong./album/201511/27/46/093946xpulivmt4tjug15q.jpg" style="padding: 5px 0px; border: 0px; max-width: 600px; vertical-align: middle;"/><img data-s="300,640" data-type="jpeg"data-ratio="0.7126948775055679" data-w="449" width="auto"_width="auto"src="attach.zhulong./album/201511/27/47/093947e15tns9hv3cxltck.jpg" style="padding: 5px 0px; border: 0px; max-width: 600px; vertical-align: middle; width: auto !important; visibility: visible !important;"/><imgsrc="attach.zhulong./album/201511/27/47/093947555dvd8zfuesalol.jpg" style="padding: 5px 0px; border: 0px; max-width: 600px; vertical-align: middle;"/>上图为几种常见的梁端翼缘加焊楔形盖板做法(3)外连式加劲板连接对于箱型或圆形截面柱与梁刚性连接,除了采用骨形连接、楔形盖板之外,还可采用外连式加劲板连接,节点强度明显大于钢梁强度。
1.4 工字形截面柱在弱轴与主梁刚性连接当工字形截面柱在弱轴方向与主梁刚性连接时,应在主梁翼缘对应位置设置柱水平加劲肋,在梁高范围内设置柱的竖向连接板,其厚度应分别与梁翼缘和腹板厚度相同。
柱水平加劲肋与柱翼缘和腹板均为全熔透坡口焊缝,竖向连接板与柱腹板连接为角焊缝。
主梁与柱的现场连接如图所示。
<imgsrc="attach.zhulong./album/201511/27/47/093947gwubuselcuzlljpd.jpg" style="padding: 5px 0px; border: 0px; max-width: 600px; vertical-align: middle;"/><imgsrc="attach.zhulong./album/201511/27/48/093948nymcfox30jvdhohe.jpg" style="padding: 5px 0px; border: 0px; max-width: 600px; vertical-align: middle;"/>上图为工字形柱弱轴与主梁刚性连接1.5 梁柱节点域的加强工字形由上下水平加劲肋和柱翼缘所包围的柱腹板简称为节点域。
在周边弯矩和剪力的作用下,当节点域的厚度不满足规范公式的计算要求时,应将节点域的柱腹板局部加厚或加焊贴板。
<img data-s="300,640" data-type="jpeg"data-ratio="1.0991379310344827" data-w="232" width="auto"_width="auto"src="attach.zhulong./album/201511/27/48/093948tperg0oau5kyd7th.jpg" style="padding: 5px 0px; border: 0px; max-width: 600px; vertical-align: middle; width: auto !important; visibility: visible !important;"/>上图为节点域周边的内力<img data-s="300,640" data-type="jpeg"data-ratio="1.7537313432835822" data-w="134" width="auto"_width="auto"src="attach.zhulong./album/201511/27/49/0939498llfnwoh2zzgqxz4.jpg " style="padding: 5px 0px; border: 0px; max-width: 600px;vertical-align: middle; width: auto !important; visibility: visible !important;"/>上图为节点域的加厚1.6 梁与柱的铰接连接梁与柱的铰接连接分为:仅梁腹板连接、仅梁翼缘连接:<imgsrc="attach.zhulong./album/201511/27/49/0939495eulq9qcez5ghhh0.jpg" style="padding: 5px 0px; border: 0px; max-width: 600px; vertical-align: middle;"/><imgsrc="attach.zhulong./album/201511/27/49/093949nrtpnzr2kyh5wjii.jpg"style="padding: 5px 0px; border: 0px; max-width: 600px; vertical-align: middle;"/><imgsrc="attach.zhulong./album/201511/27/50/093950ws7l3waq88nvx6zx.jpg" style="padding: 5px 0px; border: 0px; max-width: 600px; vertical-align: middle;"/><imgsrc="attach.zhulong./album/201511/27/50/093950tlh5j4bhwer1lnme.jpg" style="padding: 5px 0px; border: 0px; max-width: 600px; vertical-align: middle;"/>1.7 不等高梁柱连接当柱两侧的梁不等高时,应按两侧梁的高差分别考虑。