框架柱钢筋要求PPT
- 格式:ppt
- 大小:85.00 KB
- 文档页数:5
《框架柱钢筋要求》课件课件目标了解框架柱钢筋的基本概念。
掌握框架柱钢筋的构造要求。
熟悉框架柱钢筋施工的注意事项。
课件内容第一章:框架柱钢筋概述1.1 钢筋的分类低碳钢热轧钢筋预应力混凝土用钢丝预应力混凝土用钢绞线冷加工钢筋1.2 框架柱钢筋的定义与作用定义:框架柱钢筋是框架结构中用于承受垂直荷载的构件。
作用:承受楼面、屋面等结构的垂直荷载,并将荷载传递至基础。
第二章:框架柱钢筋的构造要求2.1 钢筋的级别与直径钢筋的级别:HPB300、HRB335、HRB400、HRB500等。
钢筋直径:根据设计要求和柱截面尺寸确定。
2.2 钢筋的布置要求钢筋应按照设计图纸进行布置。
钢筋应均匀布置,避免出现局部密集或稀疏现象。
钢筋间距应符合设计要求,且不宜大于柱高的1/10。
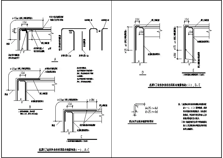
2.3 钢筋的锚固要求钢筋锚固长度应符合设计要求。
钢筋锚固端应进行弯钩处理,弯钩长度不宜小于钢筋直径的15倍。
2.4 钢筋的焊接要求钢筋焊接应采用电阻点焊或电弧焊。
焊接长度应符合设计要求,且不应小于钢筋直径的10倍。
第三章:框架柱钢筋施工的注意事项3.1 施工前的准备工作熟悉设计图纸和施工方案。
检查钢筋的品种、规格、数量是否符合要求。
对钢筋进行除锈、清污处理。
3.2 施工过程中的质量控制确保钢筋的焊接质量。
检查钢筋的锚固长度和弯钩处理是否符合要求。
控制钢筋的布置间距和位置。
3.3 施工后的验收与维护施工完成后,应进行验收,确保工程质量。
对验收合格的框架柱钢筋进行适当的保护措施,避免施工过程中受到损坏。
第四章:案例分析以实际工程案例为例,分析框架柱钢筋施工中的常见问题及解决方法。
第五章:总结与复习总结框架柱钢筋的基本概念、构造要求和施工注意事项。
复习本课件中的重点内容,巩固所学知识。
课件附录相关规范和标准框架柱钢筋施工图纸示例钢筋焊接方法示意图参考文献GB 50010-2010《混凝土结构设计规范》GB 50204-2024《混凝土结构工程施工质量验收规范》JGJ 18-2012《钢筋焊接及验收规程》本课件的科学性1. 基于规范和标准:课件内容严格依据现行的国家标准和行业规范,如《混凝土结构设计规范》和《混凝土结构工程施工质量验收规范》等,确保了信息的准确性和权威性。
框架柱的配筋和尺寸要求:【建筑抗震规范】6.3【混凝土结构设计规范】11.4【高规】6.4 (1):柱纵向受力钢筋的最小总配筋率应按表6.3.7-1采用,同时每一侧配筋率不应小于0.2%;对于建造在Ⅳ类场地且较高的高层建筑,最小总配筋率应增加0.1%。
(2):表6.3.7-1 柱截面纵向钢筋的最小总配筋率(百分率)注:①表中括号内数值用于框架结构的柱。
②钢筋强度标准值为400MPa时,表中数值应增加0.05;钢筋强度标准值小于400MPa时,表中数值应增加0.1。
③混凝土强度等级高于C60时,上述数值应相应增加0.1。
(3):柱总配筋率不应大于5%。
(4):矩形柱截面宽度和高度,四级或不超过2层时不宜小于300mm,一、二、三级且超过2层时不宜小于400mm;圆柱的直径四级或不超过2层时不宜小于350mm,一、二、三级且超过2层时不宜小于450mm。
(5):剪跨比宜大于2(不形成短柱);三级轴压比限值为0.85,二级为0.75;长短边之比不宜大于3;一级框架短柱的每侧纵向钢筋配筋率不宜大于1.2%。
(6)纵筋配置原则:①满足最小(大)配筋率要求②柱纵筋间距不大于200,净间距不小于50。
一般取150-200。
(大于600的柱子,一侧至少配5根钢筋才能满足间距要求,先在pkpm 中改看配筋是否满足,再在施工图中进行手改。
) ③上下层纵筋的钢筋直径等级差不超过2级。
(柱子,墙等竖向钢筋采用电渣压力焊直径等级差不超过7mm ,钢筋焊接及验收规程2012)(7)箍筋配置原则:①柱箍筋加密区的箍筋肢距:一级不宜大于200mm ,二、三级不宜大于250mm ,四级不宜大于300mm 。
②柱箍筋加密范围:1)柱端,取截面高度(圆柱直径)、柱净高的1/6、和500mm 的最大值。
2)底层柱的下端不小于柱净高的1/3。
3)刚性地面上下各500mm 。
4)剪跨比不大于2的柱(短柱)以及因为设置填充墙等形成的柱净高与柱截面高度比不大于4的柱、框支柱、一级和二级框架的角柱,取全高。
盛年不重来,一日难再晨。
及时宜自勉,岁月不待人。
框架柱的配筋和尺寸要求:【建筑抗震规范】6.3【混凝土结构设计规范】11.4【高规】6.4 (1):柱纵向受力钢筋的最小总配筋率应按表6.3.7-1采用,同时每一侧配筋率不应小于0.2%;对于建造在Ⅳ类场地且较高的高层建筑,最小总配筋率应增加0.1%。
(2):表6.3.7-1 柱截面纵向钢筋的最小总配筋率(百分率)注:①表中括号内数值用于框架结构的柱。
②钢筋强度标准值为400MPa时,表中数值应增加0.05;钢筋强度标准值小于400MPa时,表中数值应增加0.1。
③混凝土强度等级高于C60时,上述数值应相应增加0.1。
(3):柱总配筋率不应大于5%。
(4):矩形柱截面宽度和高度,四级或不超过2层时不宜小于300mm,一、二、三级且超过2层时不宜小于400mm;圆柱的直径四级或不超过2层时不宜小于350mm,一、二、三级且超过2层时不宜小于450mm。
(5):剪跨比宜大于2(不形成短柱);三级轴压比限值为0.85,二级为0.75;长短边之比不宜大于3;一级框架短柱的每侧纵向钢筋配筋率不宜大于1.2%。
(6)纵筋配置原则:①满足最小(大)配筋率要求②柱纵筋间距不大于200,净间距不小于50。
一般取150-200。
(大于600的柱子,一侧至少配5根钢筋才能满足间距要求,先在pkpm中改看配筋是否满足,再在施工图中进行手改。
)③上下层纵筋的钢筋直径等级差不超过2级。
(柱子,墙等竖向钢筋采用电渣压力焊直径等级差不超过7mm,钢筋焊接及验收规程2012)(7)箍筋配置原则:①柱箍筋加密区的箍筋肢距:一级不宜大于200mm,二、三级不宜大于250mm,四级不宜大于300mm。
②柱箍筋加密范围:1)柱端,取截面高度(圆柱直径)、柱净高的1/6、和500mm的最大值。
2)底层柱的下端不小于柱净高的1/3。
3)刚性地面上下各500mm。
4)剪跨比不大于2的柱(短柱)以及因为设置填充墙等形成的柱净高与柱截面高度比不大于4的柱、框支柱、一级和二级框架的角柱,取全高。
框架柱的配筋和尺寸要求:【建筑抗震规范】6.3【混凝土结构设计规范】11.4【高规】6.4(1):柱纵向受力钢筋的最小总配筋率应按表637-1采用,同时每一侧配筋率不应小于0.2%;对于建造在"类场地且较高的高层建筑,最小总配筋率应增加0.1%。
(2):表6.3.7-1柱截面纵向钢筋的最小总配筋率(百分率)注:①表中括号内数值用于框架结构的柱②钢筋强度标准值为400MPa时,表中数值应增加0.05 ; 钢筋强度标准值小于400MPa寸,表中数值应增加0.1。
③混凝土强度等级高于C60时,上述数值应相应增加0.1。
(3):柱总配筋率不应大于5%(4):矩形柱截面宽度和高度,四级或不超过2层时不宜小于300mm 一、二、三级且超过2层时不宜小于400mm圆柱的直径四级或不超过2层时不宜小于350mm 一、二、三级且超过2层时不宜小于450mm(5):剪跨比宜大于 2 (不形成短柱);三级轴压比限值为0.85 ,二级为0.75 ;长短边之比不宜大于3; 一级框架短柱的每侧纵向钢筋配筋率不宜大于1.2%’(6)纵筋配置原则:满足最小(大)配筋率要求柱纵筋间距不大于200,净间距不小于50。
一般取150-200。
(大于600的柱子,一侧至少配5根钢筋才能满足间距要求,先在pkpm中改看配筋是否满足,再在施工图中进行手改。
)上下层纵筋的钢筋直径等级差不超过2级。
(柱子,墙等竖向钢筋采用电渣压力焊直径等级差不超过7mm钢筋焊接及验收规程2012)(7)箍筋配置原则:①柱箍筋加密区的箍筋肢距:一级不宜大于200mm二、三级不宜大于250mm四级不宜大于300mm柱箍筋加密范围:1)柱端,取截面高度(圆柱直径)、柱净高的1/6、和500mml的最大值。
2)底层柱的下端不小于柱净高的1/3。
3)刚性地面上下各500mm 4)剪跨比不大于2的柱(短柱)以及因为设置填充墙等形成的柱净高与柱截面高度比不大于4的柱、框支柱、一级和二级框架的角柱,取全高。