一文看懂悬挑式卸料平台(经典)
- 格式:doc
- 大小:15.83 MB
- 文档页数:7
浅谈各类卸料平台的特点及其安全问题随着社会的不断进步,建筑行业的发展日益加快,尤其是随着施工技术的不断进步,高层和超高层建筑层出不穷,在施工过程中,卸料平台的使用是提高整个施工进度必不可少的重要措施。
当前国内项目施工中,卸料平台的使用并不规范,存在着一定的安全隐患,所以,充分了解现有卸料平台的特点及其注意事项,并进行适当的优化显得尤为重要,本文将对现有卸料平台的特点进行比较分析,并提出一些有益的建议。
标签:卸料平台;特点;安全前言:高层建筑施工过程中,需要将模板,支撑架,材料和设备运送到正在施工的楼层,而塔吊无法将其直接运送到楼层内,所以就需要用到卸料平台这种外伸设备来完成,卸料平台的规格尺寸,应根据建筑物轴线间距离、施工要求、塔吊起升能力以及施工经验来确定。
按照搭设形式的不同主要分为落地式卸料平台、悬挑式卸料平台和伸缩式卸料平台,悬挑式卸料平台又分为钢丝绳悬挑和型钢斜撑桁架悬挑两种。
安全性是对卸料平台的最基本的要求,即结构有足够的强度、刚度和稳定性,能够在转运物料和自重的作用下保持足够的安全性和稳定性。
其次,卸料平台应满足构造简单,装拆方便,能多次周转使用。
1.现有卸料平台的特点及讨论1.1落地式卸料平台落地式卸料平台是由钢管作为竖向受力杆件,通过扣件,将纵横向水平杆及剪刀撑与立杆连接搭设而成的平台架,立面图如图1所示,其所用的材料简单,方便就地取材,可有效的降低费用,但是位置相对固定,搭拆麻烦,需占用场地可能影响室外工程,同时,由于落地式脚手架需要搭设在地面上,在高层和超高层建筑的施工中存在着很多不足,所以其一般适用于层数不多的多层建筑。
图1 落地式卸料平台立面简图1.2悬挑式卸料平台悬挑式卸料平台属于悬挑式,分为钢丝绳悬挑和型钢斜撑桁架悬挑两种形式,无立柱支撑,以槽钢作为主次梁,焊接成平面受力框架,一端搁置在楼板上,一端用钢丝绳吊挂(钢丝绳悬挑式),或用斜撑支撑(斜撑式),由于其拆装方便,位置灵活,不受高度限制,不占用场地,很好地克服了落地式腳手架的不足,所以也是目前应用比较广泛的卸料平台形式,由于型钢三角桁架操作平台安装比较困难,通常采用钢丝绳斜挂形式比较多,示意图如图2所示。
悬挑式卸料平台方案一、平台构造卸料平台由三部分组成:平台底盘、平台围护及平台支撑。
如图1所示。
(一)平台底盘构造(图2)1、平台底盘平面形状为矩形,长3964㎜,宽2200㎜。
由底盘骨架及底盘面板组成。
2、底盘骨架用[16a槽钢制作,分边框和框内龙骨两部分。
纵向边框长4464㎜,其中500㎜用于楼层固定。
框内龙骨间距650㎜。
3、底盘面板采用5㎜厚花纹钢板平铺点焊于底盘骨架上。
(二)平台围护(图3、4)1、平台三面围护,除前端留一1200×450㎜便于放置钢管的缺口外,其余均作1200㎜高。
2、围护杆采用¢48×3.5钢管制作,立杆间距975㎜,横杆从上至下间距450㎜,设三道,底部横杆与平台面之间的空档作踢脚板,用3㎜厚、300㎜高钢板封堵。
3、围护网采用2㎜厚、网眼孔径30㎜的钢板网围在栏杆里侧。
(三)平台支撑(图5)1、平台支撑分前端和后端支撑,前端支撑用钢丝绳拉结,后端由楼面支撑,即平台外框直接搁置在楼面上。
2、前端钢丝绳分主钢丝绳和保险钢丝绳,主钢丝绳吊环距平台前端150mm,保险钢丝绳吊环距平台前端650mm。
3、距平台后端300mm处,在平台两侧设置吊装用吊环。
二、平台制作(一)制作流程下料→平台外框两侧吊环焊接、限位焊接→平台底盘骨架焊接→围护栏杆焊接→底盘花纹钢板面层焊接→踢脚板焊接→除锈→刷防锈漆→刷面漆。
(二)平台底盘制作1、底盘骨架各杆件间采用焊接连接,底盘外框45°对口焊接,底盘内龙骨与外框在冀缘接触处焊接,施焊时先点焊定位,校验尺寸无误后再行焊接。
2、为便于吊环及限位焊接,以保证吊环及限位的焊接质量,在底盘骨架未连接前,先行焊接吊环和限位。
3、底盘骨架各焊接点均为满焊。
角焊缝焊脚高度h f=6㎜。
4、花纹钢板顺底盘横向龙骨铺设,与边框搭接宽度不小于15㎜,与中间龙骨搭接宽度不小于25㎜。
钢板与骨架点焊焊接,焊点间距不大于200㎜。
(三)平台围护制作1、平台围护立杆与平台底盘外框采用焊接连接,焊脚高度h f=3.5㎜。
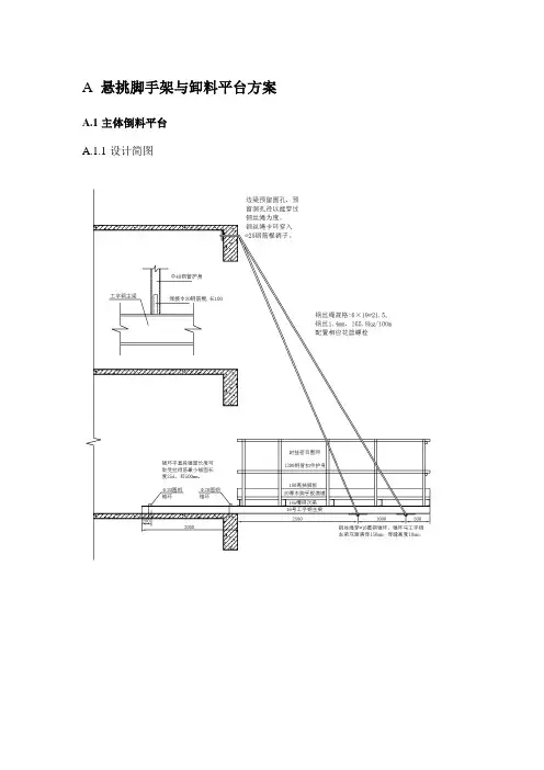
A 悬挑脚手架与卸料平台方案A.1主体倒料平台A.1.1设计简图A.1.2操作平台安全要求(1)悬挑式槽钢卸料平台的搁支点与上部拉接点,必须位于建筑物上,不得设置在脚手架等施工设备上。
(2)卸料平台安装时,钢丝绳应采用专用的挂钩挂牢,建筑物锐角口围系钢丝绳处应加补软垫物,平台外口应略高于内口。
(3)卸料平台左右两侧必须装置固定的防护栏。
护栏上严禁搭设物品。
平台上的脚手板应铺严绑牢。
(4)平台吊装,需待横梁支撑点电焊固定,接好钢丝绳,调整完毕,经过检查验收,方可松卸起重吊钩,上下操作。
(5)卸料平台使用时,应有专人负责检查,发现钢丝绳有锈蚀损坏应及时调换,焊缝脱焊应及时修复。
(6)操作平台上应显著标明容许荷载,人员和物料总重量严禁超过设计容许荷载,配专人监督。
(7)建筑物锐角利口围系钢丝绳处应加衬软垫物,钢平台外口应略高于内口。
(8)平台上应显著的标明容许荷载值。
操作平台上人员和物料的总重量,严禁超过设计的容许荷载。
应配备专人加以监督。
A.2悬挑脚手架A.2.1施工悬挑脚手架搭设要求1、悬挑脚手架的悬桃梁宜选用不小于16号的工字钢或18号槽钢。
2、悬挑梁上表面应加焊钢筋以固定立杆,每道悬挑梁均应加设斜拉钢丝绳。
落于结构上的锚固段宜是悬挑段的1.5至2倍,且必须采取两道锚固,每段悬挑高度不宜大于24m或5层。
3、脚手架基础应按规范要求纵横向方向设置扫地杆,在横杆上方沿脚手架长度方向铺设木板,并满铺木板进行防护。
4、脚手架底座立杆内侧应设置180mm高踢脚板。
5、采用双股钢芯钢丝绳穿过型钢悬挑端部进行卸载,在型钢上钢丝绳穿越位置以及立杆底部位置预焊。
Ø25HPB235短钢筋,以防止钢丝绳和钢管滑动或窜动。
6、型钢穿过HPB235钢筋倒U形环进行锚固,倒U形环钢筋预埋在当层梁板混凝土内,倒U形环两肢应与梁板底筋焊牢。
如钢筋倒U形环处楼板无面层钢筋,则应在该处楼板靠上表面处增加一层肠加强钢筋网片。
悬挑卸料平台标准要求 The manuscript was revised on the evening of 2021
悬挑卸料平台标准要求
(1)钢管脚手架悬挑卸料平台
①悬挑料台应采用定型化封闭式卸料平台,其主钢梁采用不低于16的工字钢(具体根据计算取值),外挑尺寸根据设计确定。
②栏杆用双层栏杆,低层栏杆高度为;上层栏杆高度为;栏杆内侧用模板或薄型钢板封闭,封闭材料外侧刷蓝漆,如右图所示。
③压环宜采用螺栓连接方式,如图所示。
如采用圆钢压环,其直径大于Φ20,使用时上部和两侧空隙应用木楔塞紧。
④料台前端的受力钢丝绳与后端的保险钢丝绳应同时张拉到位,且两者间距不应大于50cm。
⑤钢丝绳拉环的设置:选用不小于Φ20圆钢制作。
⑥料台安装好后,料台两侧安全网应张拉好,料台与外架间隙用大板封闭或用安全平网封闭。
外架与楼层间隙同样用模板或钢笆封闭。
⑦材料捆绑人员在料台上作业时,应系挂安全带。
⑧限载与吊运要求:总装载小于1t,钢管、木方、大板可以量化的材料应注明限载数量;小型构件(长度小于等于)采用专制吊笼吊运
⑨料台安装到位后,应进行验收,合格后方可使用,并张挂验收牌。
悬挑卸料平台搭设及安拆流程下载温馨提示:该文档是我店铺精心编制而成,希望大家下载以后,能够帮助大家解决实际的问题。
文档下载后可定制随意修改,请根据实际需要进行相应的调整和使用,谢谢!并且,本店铺为大家提供各种各样类型的实用资料,如教育随笔、日记赏析、句子摘抄、古诗大全、经典美文、话题作文、工作总结、词语解析、文案摘录、其他资料等等,如想了解不同资料格式和写法,敬请关注!Download tips: This document is carefully compiled by theeditor. I hope that after you download them,they can help yousolve practical problems. The document can be customized andmodified after downloading,please adjust and use it according toactual needs, thank you!In addition, our shop provides you with various types ofpractical materials,such as educational essays, diaryappreciation,sentence excerpts,ancient poems,classic articles,topic composition,work summary,word parsing,copy excerpts,other materials and so on,want to know different data formats andwriting methods,please pay attention!悬挑卸料平台是施工现场常搭设各种临时性的操作台和操作架,一般用于材料的周转。
悬挑式卸料平台搭设方案知识讲解一、悬挑式卸料平台的基本结构支架系统:支架系统是悬挑式卸料平台的主体结构,它支撑着卸料桥坑和卸料机构的安装。
支架系统采用钢结构,通常由立柱和横梁组成,具有足够的承重能力和稳定性。
卸料桥坑:卸料桥坑是货物卸载的区域,通常具有一定的宽度和深度,以容纳运输设备和卸料机构。
卸料桥坑可以分为固定式和可移动式两种。
卸料机构:卸料机构用于将货物从运输设备上卸载到地面上。
常见的卸料机构有卸料斗、传送带、液压卸料装置等。
根据具体的需要,可以选择不同种类的卸料机构。
运输设备:运输设备用于将货物从卸料机构上运输到指定的地点。
常见的运输设备有叉车、输送机、悬挂链皮带机等。
运输设备通常具有自动化功能,可以提高装卸货物的速度和效率。
二、悬挑式卸料平台的搭设步骤1.设计阶段:在进行悬挑式卸料平台搭设之前,需要进行详细的设计。
设计人员需要考虑货物类型、卸料要求、卸料量等因素,确定支架系统的结构和尺寸,选择适合的卸料机构和运输设备。
2.地基处理:地基处理是为了确保支架系统的稳定性和安全性。
在选择悬挑式卸料平台的安装位置后,需要对地基进行处理,如基础开挖、夯实土壤等。
3.支架安装:支架系统的安装是悬挑式卸料平台搭设的核心步骤。
支架的安装需要按照设计图纸进行,确保立柱垂直、横梁平整、连接紧固。
4.卸料桥坑建设:根据设计要求,进行卸料桥坑的开挖和整理。
卸料桥坑可以采用混凝土浇筑,也可以使用钢板焊接,根据具体情况选择合适的方法。
5.卸料机构和运输设备安装:根据设计要求,安装卸料机构和运输设备。
根据卸料方式和货物类型,选择合适的卸料机构,进行调试和安装。
运输设备的安装需要确保其和支架系统的协调运作。
6.调试和试运行:完成悬挑式卸料平台的搭设后,需要进行调试和试运行。
检查支架系统、卸料机构和运输设备的安装情况,进行功能测试和安全检查,确保一切正常后,进行试运行。
三、悬挑式卸料平台的注意事项1.设计要合理:在进行悬挑式卸料平台的设计时,需要充分考虑货物类型、卸料要求、工作环境等因素,选择合适的结构和设备。
一文看懂悬挑式卸料平台(经典)一、编制依据1、规范、规程及图集(已更新)序号类别名称编号1 国家建筑施工脚手架安全技术统一标准GB51210-20162 国家钢丝绳夹GB/T5976-20063 行业建筑施工高处作业安全技术规范JGJ80-20164 地标(河南)建筑施工斜拉悬挑式卸料平台安全技术标准DBJ41/T225-20191、悬挑式卸料平台设计1.1、卸料平台使用楼层:明确哪一层使用悬挑式卸料平台。
1.2、卸料平台位置:卸料平台位置窗台不做。
每个楼层设置2个卸料平台。
卸料平台施工均布荷载取2.0kN/m2,集中荷载取3.0kN,限载1T。
1.3、悬挑式卸料平台采用工字钢悬挑+钢丝绳拉吊卸荷方式,卸料平台设计宽度1800mm、长度3000mm,锚固长度不小于1m。
主梁采用16#工字钢,次梁采用16#工字钢,工字钢要立放使用;脚手板应铺平主梁。
1.4、防护栏杆:悬挑段三面设栏杆,防护栏杆应为两道横杆,高度不得低于1200mm,防护栏杆宜采用方钢或钢管。
防护挡板宜采用1mm厚钢板或其他材料全封闭。
防护栏杆连接应采用焊接或螺栓连接的方式进行固定。
1.5、卸料平台锚固:(1)卸料平台锚固段长度要求:悬挑式卸料平台主要受力部位是外侧钢丝绳受力,内侧钢丝绳起保险作用,其固定端只起限制水平挑梁位移的作用,因此规范上未对钢梁的锚固长度进行明确要求(可参考河南规范DBJ41/T225-2019,固定端长度不小于1.5m)。
(2)卸料平台锚固段用提前预埋好的U型锚环固定,U型锚环伸入钢筋骨架,并与钢筋骨架绑扎牢固。
锚环直径不小于16mm,采用螺栓角钢压板与锚环连接,角钢的规格不小于63*63*6。
(3)卸料平台主梁锚固前端不应少于1道,尾端不应少于两道,详见图示。
1.1、悬挂点的设置:(1)卸料平台通过4处悬挂点与结构连接。
(2)悬挂点可采用买入型圆钢锚固,也可采用穿墙型螺栓锚固。
悬挂点采用Φ20的圆钢螺丝环,环扣焊死,焊缝双面5d。
中国建筑XX工程局XXXX旧房改造项目经理部方案交底编号:JS-FAJD-A北名称XX悬挑卸料平台交底单位技术部1.卸料平台构造卸料平台由三部分组成:平台底盘、平台围护和平台支撑。
1.1、平台底盘1.1.1平台底盘平面形状为矩形,规格为1.5×4m。
1.1.2平台由主梁、次梁及底盘面板组成。
卸料平台主梁采用2根[18a号槽钢U口水平,间距为2.5m,槽钢用Φ14mm的钢筋加固;次梁采用[14a号槽钢U口水平,间距为1m;卸料平台底部满铺5mm厚花纹钢板与主次梁焊接牢固。
主梁下贴结构板外侧焊接18a槽钢U 口水平卡扣。
平台平面布置图如下:1.2、平台围护1.2.1防护栏杆采用Φ48×3.0钢管,横杆间距为600mm,立杆间距为500mm,高1.2m。
钢管上刷红白油漆。
1.2.2平台三面围护,除前端留一放置钢管的缺口外,用模板全封闭。
1.2.3防护栏杆钢管底部与主次梁焊接牢固,钢管与钢管用对接扣件连接。
1.3、平台支撑1.3.1平台支撑分前端和后端支撑,前端支撑用钢丝绳拉结,后端由楼面支撑,即平台外框直接搁置在楼面上。
1.3.2前端钢丝绳分主钢丝绳和保险钢丝绳,主钢丝绳吊环距平台前端300mm,采用6×37+1,直径为17.5mm的钢丝绳。
保险钢丝绳采用6×37+1,直径为19.5mm的钢丝绳。
2、卸料平台制作2.1、材料准备[18a号槽钢、[14a号槽钢、Φ48×3.0钢管、6×37+1钢丝绳、五层胶合板模板、钢尺、电焊机及焊条、红白油漆。
2.2、底盘制作2.2.1底盘骨架各杆件间采用焊接连接,主梁对口焊接,底盘次梁与主梁在冀缘接触处焊接,施焊时先点焊定位,校验尺寸无误后再行焊接。
2.2.2为便于吊环及限位焊接,以保证吊环及限位的焊接质量,在底盘骨架未连接前,先行焊接吊环和限位。
2.3平台围护制作平台围护立杆与平台底盘外框采用焊接连接,平台水平围护杆与立杆采用扣件连接。
关于悬挑卸料平台的几点认识摘要:在建筑工程中,卸料平台是楼层进出大规格材料的主要通道,在工程实践中应用广泛,其中悬挑式卸料平台尤为普遍。
因悬挑卸料平台通常属于高空作业,其安全性、可靠性、经济性应引起建设工程各参建方的重视。
本文从悬挑卸料平台的受力谈起,从设计时重点注意事项、施工和造价计算三方面较系统的谈一谈对于卸料平台的认识。
关键词:悬挑卸料平台原理施工造价一般情况下卸料平台按支撑体系可分为悬挑式、斜撑式、挑拉结合、落地式等形式;按所用主要材料分为钢管卸料平台和型钢卸料平台。
平面几何尺寸、支撑方式和材料选用通常根据施工环境不同而确定。
一悬挑卸料平台受力分析及设计要求(一)卸料平台的一般的结构由主梁、次梁、平板、附属件(栏杆、拉绳、吊环等)组成。
荷载由平板传至次梁,次梁传到主梁。
主梁和次梁受弯矩作用,吊环和焊缝都要有反复施加荷载和卸载作用,且应考虑受剪状态设计,平台要有足够稳定性。
悬挑卸料平台的搭设应满足施工工期、质量和安全要求1.平台整体结构安全可靠,造价经济合理。
2.在规定的条件和使用期限内,能充分满足与其安全性和耐久性。
3.在选材料时,要首先选择常见通用、便于周转和保养维修的材料(二)具体要求1.主梁、次梁应使用工字钢或槽钢制作,节点必须采用焊接。
两种材料在弯矩状态下有稳定的工作状态,型钢在弯矩状态下不易发生扭转变形,而角钢则不能满足这方面的要求;2.吊环应使用圆钢制作。
圆钢有利于弯曲成型以及焊接处理,螺纹钢等由于弯曲后容易发生脆断且不利于焊接处理,因此禁止在转运平台上使用。
节点采用焊接是因为焊接是最稳定的刚性固态连接方式,适合物料平台这种反复吊运重复使用的特殊受力状态3.钢丝绳长度宜一次定型。
必须使用OO 型花篮螺栓调节松紧,钢丝绳与OO 型花篮螺栓的强度应一致。
拉索使用钢丝绳,其工作状态安全可靠、成本低廉和取材方便,同时钢丝绳比较其它型钢更方便与平台以及建筑物连接。
使用OO 型花篮螺栓调节松紧,操作比较方便,不会发生脱绳现象。
寰宇国际5#、12#、13#楼卸料平台专项方案单位:四川国丰建设集团有限公司编制:审核:审批:日期:年月日一、工程概况工程名称:寰宇国际5#、12#、13#楼工程地址:成都龙泉驿柏合镇龙华路以南施工单位:四川国丰建设集团有限公司建设单位:成都吉广润投资有限公司监理单位:四川国正建设管理有限公司设计单位:中铁二十三局集团建筑设计研究院有限公司监督单位:成都市龙泉驿区质监站本工程为剪力墙结构,预应力管桩基础加抗水板设计,地下二层,地上三十二层,结构的设计合理使用年限为50年。
二、总体部署结合该工程实际情况,现采用型钢悬挑卸料平台进行施工。
卸料平台每层安装四只,东、南、西、北面各一只,一层使用完毕,然后升至上一层,逐层上移,直到最顶层。
三、材料要求型钢:采用[16a号槽钢,材质应符合《碳素结构钢》(GB/T700-2006)中Q235-A级钢的技术要求;钢丝绳:直径14mm钢丝绳;吊环:直径16mm的圆钢;脚手板:18mm厚复合模板;栏杆:定型钢管栏杆,12mm厚复合板挡板。
四、悬挑式卸料平台搭设流程及要求卸料平台加工支座完毕经过验收合格后方可吊装。
吊装时,先挂好四角的吊钩,传发初次信号,但只能稍稍提升平台,放松斜拉钢丝绳,方可正式吊装,吊钩的四条引绳应等长,保证平台在起吊过程中的平稳。
吊装至预定位置后,先将平台工字钢与预埋件固定后,再将钢丝绳固定,紧固螺母及钢丝绳卡子,完毕后方可松塔吊吊钩,卸料平台安装完毕后经验收合格后方可使用。
要求提升一次验收一次。
具体构造要求如下:1、悬挑式卸料平台应按现行的相应规范进行设计,其结构构造应能防止左右晃动。
2、悬挑式卸料平台的搁支点与上部拉结点,必须位于建筑物上,不得设置在脚手架等施工设备上。
3、斜拉杆或钢丝绳,构造上宜两边各设前后两道,两道中的靠近建筑一侧的一道为安全储备,另外一道应作受力计算。
4、应设置经过验算的吊环,吊运平台时使用卡环,不得使吊钩直接钩挂吊环,吊环应用甲类3号沸腾钢制作。
悬挑卸料平台计算书计算依据《建筑施工安全检查标准》(JGJ59-99)和《钢结构设计规范》(GB50017-2003)。
悬挂式卸料平台的计算参照连续梁的计算进行。
由于卸料平台的悬挑长度和所受荷载都很大,因此必须严格地进行设计和验算。
计算参数:平台水平钢梁的悬挑长度4.50m,插入结构锚固长度2.50m,悬挑水平钢梁间距(平台宽度)2.00m。
水平钢梁插入结构端点部分按照铰接点计算。
次梁采用16号工字钢,主梁采用16号工字钢。
次梁间距0.80m,外伸悬臂长度0.00m。
容许承载力均布荷载1.40kN/m2,最大堆放材料荷载2.00kN。
脚手板采用木板,脚手板自重荷载取0.35kN/m2。
栏杆采用五层胶合板,栏杆自重荷载取0.30kN/m。
选择6×37+1钢丝绳,钢丝绳公称抗拉强度1700MPa,外侧钢丝绳距离主体结构4.00m,两道钢丝绳距离1.60m,外侧钢丝绳吊点距离平台5.00m。
一、次梁的计算次梁选择16号工字钢,间距0.80m,其截面特性为面积A=26.10cm2,惯性距Ix=1130.00cm4,转动惯量Wx=141.00cm3,回转半径ix=6.58cm截面尺寸 b=88.0mm,h=160.0mm,t=9.9mm1.荷载计算(1)面板自重标准值:标准值为0.35kN/m2;Q1 = 0.35×0.80=0.28kN/m(2)最大容许均布荷载为1.40kN/m2;Q2 = 1.40×0.80=1.12kN/m(3)型钢自重荷载 Q3=0.20kN/m经计算得到,均布荷载计算值 q = 1.2×(Q1+Q3)+1.4×Q2 = 1.2×(0.28+0.20)+1.4×1.12 = 2.15kN/m经计算得到,集中荷载计算值 P = 1.4×2.00=2.80kN2.内力计算内力按照集中荷载P与均布荷载q作用下的简支梁计算,内侧钢丝绳不计算,计算简图如下最大弯矩M的计算公式为经计算得到,最大弯矩计算值 M = 2.15×2.002/8+2.80×2.00/4=2.47kN.m3.抗弯强度计算其中x ——截面塑性发展系数,取1.05;[f] ——钢材抗压强度设计值,[f] = 205.00N/mm2;经过计算得到强度=2.47×106/(1.05×141000.00)=16.70N/mm2;次梁的抗弯强度计算 < [f],满足要求!4.整体稳定性计算[主次梁焊接成整体此部分可以不计算]其中 b ——均匀弯曲的受弯构件整体稳定系数,查表《钢结构设计规范》(GB50017-2003)附录B得到:b=2.00由于b大于0.6,按照《钢结构设计规范》(GB50017-2003)附录B其值用b'查表得到其值为0.918经过计算得到强度=2.47×106/(0.918×141000.00)=19.11N/mm2;次梁的稳定性计算 < [f],满足要求!二、主梁的计算卸料平台的内钢绳按照《建筑施工安全检查标准》作为安全储备不参与内力的计算。
悬挑卸料平台方案悬挑卸料平台是一种为了加强集装箱卸货、商品分拣等物流过程中物品处理能力的一种装备。
随着国内外物流业务的迅速发展,悬挑式卸料平台的使用逐渐增多。
本文将从七个方面介绍悬挑卸料平台方案。
一、悬挑卸料平台的基本概念及特点悬挑卸料平台是一种能够前后推动机架,到达机构升降物料和货架的物流卸货设备,被广泛用于包括卷状物、玻璃、砖块、板材、工业垃圾、石材等在内的物品的自动、高效分拣。
它具有高效、节省空间、减少劳动强度、提高作业效率等特点。
同时,悬挑式卸料平台占用空间小,结构简单,容易操作和维护。
二、悬挑卸料平台的工作原理悬挑卸料平台由机架、框架、升降装置、前后推动装置和工作台面组成。
通过升降装置升降机架、推动装置沿工作区前后移动,使得机架能够覆盖整个工作区。
之后,机架上的夹爪通过吸盘或钩爪松、紧的运动,并伴有前后运动,从而完成吸取物体或放置物体的动作。
整个过程由控制系统控制完成。
具体的实现需要依据具体的情况进行优化。
三、悬挑卸料平台的组成悬挑卸料平台的主要组成部分是机架、框架、运动装置、控制系统、升降装置和工作台面。
其中,机架是实现吸盘、钩爪运动的动力元器件,框架则是支撑机架的结构,运动装置实现运动控制,控制系统是平台整个控制中心,升降装置负责实现平台的升降控制,工作台面则是卸货、搬运和分拣的空间。
四、悬挑卸料平台的技术指标悬挑卸料平台的技术指标涉及到机架工作范围、工作台面尺寸、工作背景温度和湿度、所承受重量、运动速度、运动轨迹、吸附力和运动平稳度等。
五、悬挑卸料平台的运行考虑悬挑卸料平台的运行需要考虑到腾空作业、吸附实体工件、钩爪卸载,以及对各项参数的监控和调整。
六、悬挑卸料平台的应用领域悬挑卸料平台适用于包括机械制造、电子、纺织、鞋业、食品等行业中的物料卸载分拣、零件拣选、零散物品堆码和集装箱堆码等工作。
这种技术已经迅速普及、成熟,可以提高物流工作效率和减少工人的劳动量。
七、悬挑卸料平台的未来发展悬挑卸料平台在未来的发展之中,将继续把握高新技术的发展方向,不断提高操作的易用性和智能性,借力物联网的发展,实现物流过程的全盘智能管理,让平台技术更好地适应未来物流中心的需求。
悬挑式卸料平台安装工艺流程下载温馨提示:该文档是我店铺精心编制而成,希望大家下载以后,能够帮助大家解决实际的问题。
文档下载后可定制随意修改,请根据实际需要进行相应的调整和使用,谢谢!并且,本店铺为大家提供各种各样类型的实用资料,如教育随笔、日记赏析、句子摘抄、古诗大全、经典美文、话题作文、工作总结、词语解析、文案摘录、其他资料等等,如想了解不同资料格式和写法,敬请关注!Download tips: This document is carefully compiled by the editor. I hope that after you download them, they can help yousolve practical problems. The document can be customized and modified after downloading, please adjust and use it according to actual needs, thank you!In addition, our shop provides you with various types of practical materials, such as educational essays, diary appreciation, sentence excerpts, ancient poems, classic articles, topic composition, work summary, word parsing, copy excerpts,other materials and so on, want to know different data formats and writing methods, please pay attention!悬挑式卸料平台是一种常用于工业生产中的装卸货物的设备,其安装工艺流程关乎整个设备的稳固性和安全性。
一、编制依据
1、规范、规程及图集(已更新)
序号类别名称编号
1 国家建筑施工脚手架安全技术统一标准GB51210-2016
2 国家钢丝绳夹GB/T5976-2006
3 行业建筑施工高处作业安全技术规范JGJ80-2016
4 地标(河南)建筑施工斜拉悬挑式卸料平台安全技术标准DBJ41/T225-2019
1、悬挑式卸料平台设计
1.1、卸料平台使用楼层:明确哪一层使用悬挑式卸料平台。
1.2、卸料平台位置:卸料平台位置窗台不做。
每个楼层设置2个卸料平台。
卸料平台施工均布荷载取
2.0kN/m2,集中荷载取
3.0kN,限载1T。
1.3、悬挑式卸料平台采用工字钢悬挑+钢丝绳拉吊卸荷方式,卸料平台设计宽度1800mm、长度3000mm,锚固长度不小于1m。
主梁采用16#工字钢,次梁采用16#工字钢,工字钢要立放使用;脚手板应铺平主梁。
1.4、防护栏杆:悬挑段三面设栏杆,防护栏杆应为两道横杆,高度不得低于1200mm,防护栏杆宜采用方钢或钢管。
防护挡板宜采用1mm厚钢板或其他材料全封闭。
防护栏杆连接应采用焊接或螺栓连接的方式进行固定。
1.5、卸料平台锚固:
(1)卸料平台锚固段长度要求:悬挑式卸料平台主要受力部位是外侧钢丝绳受力,内侧钢丝绳起保险作用,其固定端只起限制水平挑梁位移的作用,因此规范上未对钢梁的锚固长度
进行明确要求(可参考河南规范DBJ41/T225-2019,固定端长度不小于1.5m)。
(2)卸料平台锚固段用提前预埋好的U型锚环固定,U型锚环伸入钢筋骨架,并与钢筋骨架绑扎牢固。
锚环直径不小于16mm,采用螺栓角钢压板与锚环连接,角钢的规格不小于63*63*6。
(3)卸料平台主梁锚固前端不应少于1道,尾端不应少于两道,详见图示。
1.1、悬挂点的设置:
(1)卸料平台通过4处悬挂点与结构连接。
(2)悬挂点可采用买入型圆钢锚固,也可采用穿墙型螺栓锚固。
悬挂点采用Φ20的圆钢螺丝环,环扣焊死,焊缝双面5d。
(3)采用穿墙型螺栓锚固时,紧固螺母不得少于两个,螺杆露出螺母端部的长度不应少于3丝,并不得小于10mm,垫板尺寸不得小于100*100*10mm。
1.2、斜拉钢丝绳构造:
(1)根据钢丝绳悬挂受力原理,为使钢丝绳均匀受力,达到钢丝绳的最佳受力效果,钢丝绳角度50-60°为宜,而且钢丝绳不得有松驰不受力的现象。
平台两侧的连接吊环应与前后两道斜拉钢丝绳连接,每一道钢丝绳应能承载该侧所有的荷载。
(2)每一个卸料平台配4条Φ20的钢丝绳,钢丝绳不得有锈蚀、断丝和折弯。
另外绳头设置安全弯(设置安全弯的目的:如需检查钢丝绳在受力后,绳卡是否滑动,将绳头放出一段安全弯后再与主绳夹紧,这样绳卡如有滑动现象,安全弯将会被拉直,便于随时发现及时加固)。
(3)钢丝绳应采用专用钢丝绳夹连接,钢丝绳夹数量应与钢丝绳直径相匹配,且不得少于
4个。
钢丝绳夹扣在钢丝绳的工作段上,U型螺栓扣在钢丝绳的尾端上,钢丝绳夹不得在钢丝绳上交替布置。
建筑物锐角、利口周围系钢丝绳处应加衬软垫物。
1.3、卸料平台设计示意图如下:
2、卸料平台制作
(1)卸料平台底板的制作在地面进行,整个平台底板(包括脚手板)采用定型制作,制作完成后用塔吊吊运到施工部分安装使用。
卸料平台制作场地应平整、没有杂物。
(2)卸料平台制作顺序:卸料平台开料→骨架(主次梁)焊接→护栏立杆焊接→平台吊勾焊接、吊拉钢丝绳安装→平台脚手板铺设→四周防护及档脚板、立挂安全网。
(3)卸料平台开料:按卸料平台大样图进行开料,开料尺寸要准确,并预留够主梁与次梁之间的搭接位;
(4)骨架(主次梁)焊接:在平整的楼地面上进行平台制作,先将主次梁按图纸尺寸摆放好,进行点焊临时固定,经核对尺寸无误后,再进行加焊固定;
(5)护栏立杆焊接:立杆用中48短钢管焊接在卸料平台外周边的主次梁面,间距按护栏立杆间距。
(6)平台吊勾焊接:在卸料平台主梁位置设置平台吊勾,共设置四个吊点,吊勾用Φ
25(Q235)钢筋紧贴主梁外侧焊接,焊接锚固长度为钢筋的5d。
(7)平台脚手板铺设:在主次龙骨上铺设钢网和脚手板,脚手板用18厚夹板满铺。
3、吊装就位
(1)卸料平台的吊装采用塔吊吊运,人工协作进行安装的方式。
(2)现将起重钢丝绳用起重卡环与卸料平台起重吊环连接。
悬挑式平台应设置4个吊环,吊运时应使用卡环,不得使用吊钩直接钩挂吊环。
(3)卸料平台吊装时由持特种操作证的塔吊司机开塔吊,专职司索工进行司索,专职塔吊指挥工进行指挥,卸料平台吊装时设置四个吊点(利用在平台板上设置的吊环),用四根钢丝绳挂在吊环上,起吊时使卸料平台处于水平状态。
起吊时卸料平台与外脚手架的水平距离保持在2米左右。
距离太近容易碰撞外脚手架,距离太远在吊运过程中不好控制平台的稳定性。
(4)起吊时在卸料平台的两对角绑两根麻绳,由人工拉绳调节控制卸料平台在上升过程中的摇摆及水平角度。
卸料平台吊升至使用楼层后,用人工拉麻绳及由塔吊指挥工指挥塔吊司机缓慢调整塔吊吊勾的上下升降及水平位置,使卸料平台安放至准确位置。
4、卸料平台安装
4.1、将卸料平台主梁尾端用锚固螺栓与建筑连接牢固。
4.2、将己安装在卸料平台吊环上的钢丝绳的另一端挂住平台上层边梁上预埋的吊环,并收紧钢丝绳。
在确认钢丝绳收牢并产生承载力后,缓慢放松塔吊吊勾钢丝绳,使卸料平拉吊钢丝强完全受力。
4.3、松开起重卡环。
4.4、安装注意事项
(1)悬挑式操作平台的外侧应略高于内侧。
(2)人员不得在悬挑式操作平台吊运、安装时上下。
(3)卸料平台底板吊装就位后,平台未固定之前,不得松动吊在平台上的钢丝绳。
(4)每个吊点的受力钢丝绳均应独立设置,与建筑结构、脚手架无干扰、无磨损。
5、钢平台使用
5.1、操作平台上应显著地标明容许载重值。
操作平台上人员和物料的总重量,严禁超过设计的容许荷载。
并配备专人监督。
5.2、卸料平台上人操作时不得超过2人。
5.3、钢平台使用时,应有专人进行检查,发现钢丝绳有锈蚀损坏应及时更换,焊缝脱焊应及时修复,钢丝绳“安全弯”有变化时应及时紧固绳卡螺母并调整好“安全弯”。
5.4、当吊运构件超长时,超过卸料平台长度,应将端部防护格栅门打开,待构件运入建筑物后,立即关闭防护格栅门。
5.5、在卸料平台面上设置的材料应码放整齐稳固,不影响施工操作和人员通行。
5.6、作业人员在卸料平台上的最大堆放高度不得超过卸料平台的防护栏高度。
5.7、工人在卸料平台上作业中,应注意自我安全保护和他人的安全,避免发生碰撞、闪失和落物。
严禁在架上戏闹和坐在栏杆上等不安全处休息。
5.8、每班工人上卸料平台作业时,应先行检查有无影响安全作业的问题存在,在排除和解决后方许开始作业。
在作业中发现在不安个的情况和迹象时,应立即停止作业进行检查,解决以后才能恢复正常作业;发现有异常和危险情况时,应立即通知所有架上人员撤离。
5.9、限重牌的设置与荷载数量要求
倒料平台使用中要严格限制荷载量,为使施工人员明确这一概念,使倒料平台不超重运行,倒料平台内外侧必须同时挂设限重牌,最大荷载量0.8t。
倒料平台仅限两人同时操作,严禁上人过多,技术质量保证措施。