深井阳极阴极保护
- 格式:doc
- 大小:45.50 KB
- 文档页数:6
外加电流阴极保护中深井阳极的布置尚兴彬;孙丽;李劲松;席海宏;景龙详【摘要】针对某输油管道工程,为保障阴极保护效果的同时,减少阴极保护对周边金属构筑物产生直流杂散电流的干扰.结合现有相关标准规范以及阴极保护干扰的产生机理,对深井阳极的布置位置和阴极保护方案进行对比分析.由于该工程输油管道将分输库整体包围,如库外长输管道全部采取外加电流的阴极保护形式,无论阳极井如何布置,阴极保护电流均有可能对分输库内储罐等金属构筑物产生杂散电流干扰,此时阳极井的位置需从施工、维护、保护电流的发散以及投资等方面比选确定.为了实现外输管道得到有效保护,且最大程度减小阴极保护电流对分输库内储罐等金属构筑物的干扰,可采取对由分支点进出库区的成品油管道与干线绝缘,并对该部分管道施加牺牲阳极保护的形式.【期刊名称】《装备环境工程》【年(卷),期】2018(015)008【总页数】6页(P33-38)【关键词】阴极保护;阳极井;位置布置;杂散电流;干扰【作者】尚兴彬;孙丽;李劲松;席海宏;景龙详【作者单位】中石油华东设计院有限公司,山东青岛 266071;中国石化管道储运有限公司华东管道设计研究院,江苏徐州 221008;中石油华东设计院有限公司,山东青岛 266071;中石化天然气榆济管道分公司,济南 250002;中石化石油工程设计有限公司管道工程设计所,山东东营 257021【正文语种】中文【中图分类】TE88石油与天然气作为一种重要的化石燃料,在国内外广泛应用。
我国油气生产主要集中在西北、东北以及西南地区,而华北、华东、华南地区却是油气的主要消费区,油气分布与消费的不均衡为长距离油气管道的建设利用提出了要求[1-3]。
阴极保护作为长距离油气埋地管道的重要组成部分[4-5],受到国内外的广泛关注[6-7]。
此关注主要集中在阴极保护的保护效果以及受干扰情况的研究,对于阴极保护系统对保护范围外金属结构的干扰(以下简称阴极保护系统干扰)却较少。
深井阳极浅埋阳极阴极保护设计施工行业标准河南汇龙合金材料有限公司2019技术部深井阳极的安装深度一般在20米以下的竖直阳极,使用范围一般采用在空间狭小或者土壤电阻率比较高的地方等。
之所以采用深井阳极优点有:阳极距离被保护金属之间有一定的距离,使阳极释放的电流能更好的分布均匀。
还可以减少对其他金属结构的腐蚀干扰。
深井阳极多采用的混合金属氧化物筒状阳极和硅铁阳极,填埋料大多采用焦炭。
在安装时根据施工设计要求打阳极井,在阳极井中先填充一些焦炭,然后将阳极体逐段下到井中,安装完毕后再向井中填充焦炭,再向阳极井中灌水,使焦炭充分吸收水分以增加阳极体的导电性,最后对阳极井进行回填开口式阳极是指不用回填料将井填起来,主要应用在地下水位非常高的环境中,这种环境能保证阳极全年都能得到水分浸泡。
这种阳极井应该在施工的时候及时用混泥土将阳极井的内壁保护起来,以防止受到施工或者时间的影响造成井壁坍塌。
开口式深井阳极的优点是:安装简单,日后维护也很方便;如果采用的是线状阳极,安装施工起来会更加简单易行。
非常适合在沿海地区以及地下水位非常高的南方地区使用。
闭口阳极是指使用回填料将阳极井中的阳极体填起来,起到降低接地电阻的作用。
这种形式的深井阳极在安装施工上非常复杂,特别是将回填料填入阳极井的时候,对阳极体的影响非常大。
如果在在这种施工过程中出现问题,将很难修复。
因此,影响闭口式深井阳极质量的因素不仅限于阴极保护系统的设计、阳极材料的质量还有焦炭的回填方式,这些都是在施工过程中非常关键的。
在将填料放进阳极井中的时候,为了防止小颗粒的填料会浮在水面上造成填料间空隙大的问题,所以大多采用深井泵将填料浆打入井底。
这种方式直接提高了回填质量,保证了阳极的质量,而且大大减少了施工时间。
回填料的材料也从以前的冶金煅烧焦炭转变成了现在的石油煅烧焦炭。
深井阳极安装时与套管的距离也在50-300米之间,地床条件的选择跟浅埋阳极相同。
在安装阳极时,首先阳极体的导气管要对齐,以便于气体的排出,避免造成“气阻”现象,同时用固定螺栓将阳极体进行固定连接。
外用电源深井阳极阴极保护技术在郑州市地下燃气管网中的应用作者:宋金会摘要:城市区域内埋地燃气管网的防腐蚀问题是燃气管网安全运行的关键,单靠外防腐涂层防腐还不能从根本上解决埋地管网的腐蚀问题。
本文阐述了使用“外用电源深井阳极阴极保护技术”解决陈旧性城市埋地燃气管网腐蚀的问题,说明了在城市埋地管网中推行该项技术的前景是积极的、可行的,是适合城市燃气管网建设和发展的。
一、引言外用电源深井阳极阴极保护技术在国外已应用到城市埋地管网的仿腐蚀,在国内大部分应用在油田和长输管线上。
最先把这一技术应用在城市地下燃气管网的是福州市煤气公司,该公司在1989年建设燃气管网的同时采取了深井阳极阴极保护措施,主要保护城市中压燃气管网,未保护低压燃气管及庭院管网。
郑州市燃气公司是继福州市之后把这一技术应用到城市地下燃气管网的城市燃气公司,与福州市煤气公司不同之处在于郑州市燃气公司是把这一技术应用到在用的陈旧性埋地燃气管网上,主要保护城市中压输气干管、中压输气分配管、低压输气管、庭院中压输气管、部分庭院低压管。
保护面积和保护范围均大于福州市。
二、郑州市埋地燃气管网现状分析郑州市天然气管网始建于1986年,到2001年底已形成长达75公里的开—郑长输管线,1640公里的市区输配主干线和庭院管网;城区管网覆盖面积90平方公里,燃气管网表的面积为32万平方米。
管网外表涂层主要采用石油沥青加玻璃丝布加强级防腐,长输管线在建设的同时采取了外加电流(浅埋阳极)阴极保护技术,市区输气管网未采用阴极保护措施。
由于郑州市区某些其余内土壤电阻率低(属于强腐蚀性或叫强腐蚀性土壤)、局部地区有垃圾回填土,京广铁路、陇海铁路横贯市区,杂散电流干扰作用强,原有的外防腐涂层质量差,地区环境相差悬殊而构成的宏观腐蚀电池作用显著等诸多原因,造成早期铺设的天然气管网腐蚀泄露严重。
自1995年起市区天然气管网即陆续出现腐蚀穿孔泄露现象,且有逐年上升趋势,据不完全统计,自1995年起至1998年8月,三年健全郑州市共发现97处严重腐蚀穿孔漏气,并发生过因腐蚀穿孔泄漏造成的天然气爆燃伤人事故。
深井套管阳极保护2007-12-28 11:44:23(已经被浏览234次)深井阳极是深度在15米以下的竖直阳极,主要用作地表空间狭少或者地表土壤电阻率高的场合下的阴极保护系统阳极.采用深井阳极的优点之一是阳极距离被保护结构有一定距离,使保护电流的分布更加均匀,另外,也会减少对其他埋地金属结构的腐蚀干扰.为了便于阳极的安装,保证工程质量,近年发展的混合金属氧化物阳极串得到了广泛应用.本文将对阳极串深井阳极的设计选材安装进行介绍.1. 阳极串及电缆阳极串是将几支混合金属氧化物筒状阳极固定在一根阳极电缆上,混合金属氧化物阳极具有不消耗、电流输出大、体积小、重量轻的优点.与之相对应的阳极电缆应耐侵蚀.阳极工作时,阳极反应会产生氯气并使阳极电缆处于酸性介质中.因此,阳极电缆的绝缘层要能够抵抗氯气的侵蚀.经常采用的阳极电缆绝缘层为PVDF/ HMWPE.截面积一般是8-10mm21. 土壤电阻率土壤电阻率在深井阳极设计中有很大的影响,它决定阳极的用量、阳极井的直径以及深度、电源设备的功率等。
一般将阳极位置选在土壤电阻率低、土质均匀的地点。
电阻率有两种方式获得,一是现场测试,二是利用现有的阴极保护系统进行估算。
阳极的接地电阻一般占系统电阻的85%。
如果附近的阴极保护设施输出电压40V,电流20V,则该系统的电阻为2欧姆。
阳极的接地电阻为2*0.85=1.7ohm。
据此,可根据相应阳极地床的电阻公式计算出土壤的电阻率。
阳极接地电阻将直接影响系统的运营成本,一般来讲,接地电阻不大于0.5欧姆。
1. 阳极井的尺寸影响阳极接地电阻的主要因素是阳极井深度。
考虑阳极井的直径时,应充分考虑到排气管(25mm)。
阳极以及电缆将占据相当的空间。
因此,阳极井的直径一般不小于200mm。
直径小于200mm时,应对阳极的安装进行严格控制,输出电流大时,应增大阳极井直径。
1. 回填料的电流密度阳极井的尺寸不是随意确定的,它将受到一系列因素的影响。
深井阳极浅埋阳极阴极保护设计施工行业标准河南汇龙合金材料有限公司2019技术部深井阳极的安装深度一般在20米以下的竖直阳极,使用范围一般采用在空间狭小或者土壤电阻率比较高的地方等。
之所以采用深井阳极优点有:阳极距离被保护金属之间有一定的距离,使阳极释放的电流能更好的分布均匀。
还可以减少对其他金属结构的腐蚀干扰。
深井阳极多采用的混合金属氧化物筒状阳极和硅铁阳极,填埋料大多采用焦炭。
在安装时根据施工设计要求打阳极井,在阳极井中先填充一些焦炭,然后将阳极体逐段下到井中,安装完毕后再向井中填充焦炭,再向阳极井中灌水,使焦炭充分吸收水分以增加阳极体的导电性,最后对阳极井进行回填开口式阳极是指不用回填料将井填起来,主要应用在地下水位非常高的环境中,这种环境能保证阳极全年都能得到水分浸泡。
这种阳极井应该在施工的时候及时用混泥土将阳极井的内壁保护起来,以防止受到施工或者时间的影响造成井壁坍塌。
开口式深井阳极的优点是:安装简单,日后维护也很方便;如果采用的是线状阳极,安装施工起来会更加简单易行。
非常适合在沿海地区以及地下水位非常高的南方地区使用。
闭口阳极是指使用回填料将阳极井中的阳极体填起来,起到降低接地电阻的作用。
这种形式的深井阳极在安装施工上非常复杂,特别是将回填料填入阳极井的时候,对阳极体的影响非常大。
如果在在这种施工过程中出现问题,将很难修复。
因此,影响闭口式深井阳极质量的因素不仅限于阴极保护系统的设计、阳极材料的质量还有焦炭的回填方式,这些都是在施工过程中非常关键的。
在将填料放进阳极井中的时候,为了防止小颗粒的填料会浮在水面上造成填料间空隙大的问题,所以大多采用深井泵将填料浆打入井底。
这种方式直接提高了回填质量,保证了阳极的质量,而且大大减少了施工时间。
回填料的材料也从以前的冶金煅烧焦炭转变成了现在的石油煅烧焦炭。
深井阳极安装时与套管的距离也在50-300米之间,地床条件的选择跟浅埋阳极相同。
在安装阳极时,首先阳极体的导气管要对齐,以便于气体的排出,避免造成“气阻”现象,同时用固定螺栓将阳极体进行固定连接。
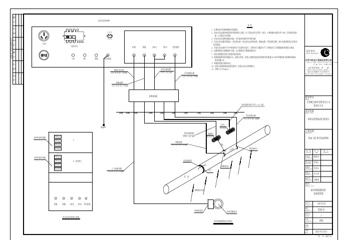
深井阳极阴极保护对站区内金属构筑物的影响1、根据国家设计规范21448-2008《埋地钢制管道阴极保护设计规范》的规定,外加电流阴极保护的阳极地床与管道或其他埋地金属构筑物的垂直距离不得小于30米。
该工程中阳极地床设置在站区内,深埋地下60米,与储罐相对较远,直线距离远大于30米,因此对站区内储罐、管道等其他埋地金属构筑物无影响。
2、该深井阳极在阳极体顶部到井口的部分均填充粒径为20-40的石子,填充石子的作用除了起到涵水和导气的作用外,还可以避免阳极电流向地表方向辐射。
减少对地表埋地金属构筑物的干扰,并对远方大地的被保护管道提供均匀的保护电流。
3、该工程阴极保护在管道的两端均采用绝缘法兰将保护管道部分与非保护管道部分进行电绝缘,且在绝缘法兰处加装等电位连接器进行保护,不但可以将非保护管道部分与管道部分充分绝缘,减少阴极保护电流的损失,防止非保护部分管道因阴极保护的干扰而腐蚀,而且可以减少阴极保护电流,降低成本。
4、所谓阴极保护电流对埋地金属构筑物的干扰是指阴极保护电流过大(一般在-1.5V以上)而对非保护部分埋地金属构筑物产生的干扰,而该系统设定的阴极保护电位一般介于-0.85V~-1.25V之间,当电位超出设定的范围一定的幅度恒电位仪便会自动断电。
远远低于管道的最大保护电位-1.5V和牺牲阳极的自然电位-1.65V。
不但可以为保护部分管道提供适当的保护电流,而且可以防止大电流对其他埋地金属构筑物的干扰。
5、站区内的油罐等已采取阴极保护的系统,因为本身阴极保护的自动调节作用,不会受到其他阴极保护的干扰。
6. 恒电位仪存放于中国石油汇鑫油品储运公司阴保间中,归汇荣石油储运公司所有,并由汇荣石油储运公司相关负责人负责定期维护。
综上所述,该阴极保护工程深井阳极地床设置位置合理,施工工艺安全合理,符合设计规范对阴极保护的要求,在对保护部分管道提供充分阴极保护的情况下,不会对站区内非阴极保护的埋地金属构筑物造成干扰,是安全、合理、有效的。
国内外广泛应用深井阳极对储罐底板进行阴极保护。
相对于浅埋阳极,深井阳极的优点有:阳极与被保护的设施结构之间有一段距离,可以使阴极保护电流分布的更均匀;而且可以减少对其他埋在周围的金属设施的腐蚀干扰。
深井阳极的采用的材料一般多采用硅铁阳极或者采用混合金属氧化物筒状阳极,铺设好阳极后用冶金焦炭或者煅烧石油焦炭回填阳极沟。
深井阳极占地少,接地电阻小而稳定,可以减少甚至避免可能存在的屏蔽和干扰现象,适用于已建大中型储罐补加阴极保护系统。
应用深井阳极必须有合适的地质结构,受地下水文条件制约,设计施工存在一定的限制和难度,一旦建成调整非常困难。
因此储罐阴极保护工程设计的关键在于合理确定深井阳极埋深和位置。
目前阴极保护工程设计中,深井阳极埋深和位置的确定大多根据以往阴极保护工程经验,或利用“移动阳极法”、试算法、外推法和电位叠加法近似估算,缺乏理论指导。
阴极保护工程设计规范规定:深井阳极与储罐水平距离必须大于30m眼1演,但没对埋深作出具体规定,从施工和经济方面考虑,使用单阳极是最实用的,因此研究单支深井阳极埋深对储罐底板保护电位的影响具有实际意义。
使用数值方法研究阴极保护体系电位和电流分布是阴极保护工程设计的发展方向。
在设计深井阳极工程的时候,选择回填料也是至关重要的,回填料主要作用就是减小阳极的接地电阻,因为阳极的反应都会转嫁到回填料上,所以回填料可以减少阳极自身的消耗,保持阳极井的形状。
据此,可以了解到可以作为回填的材料必须具有低电阻率,小颗粒高密度等特性。
目前,市场上的回填料主要是两种:一种是石油焦炭另一种是冶金焦炭。
这里主要推荐的其中的一种是石油焦炭,因为这种材料是通过高温烧制而成,导电性和均匀性都非常出众。
焦炭回填料填入阳极井的时候最好采用泵将焦炭从阳极井底部打入井中。
之前说选用填料一定要选择电阻率低的,主要是因为这样可以尽可能的减少阳极的使用消耗量。
简单来讲,假设在相同的施工环境下,并且使用的阳极井的尺寸大小也是相同的的情况下,选用的回填料电阻率越低,阳极间距就越大;相反,选用的电阻率越小,阳极的间距就会越小。
霸州至保定天然气输气管道工程深井阳极地床外加电流阴极保护工程施工方案编制:审核:批准:新地能源工程技术有限公司霸州至保定输气管道工程EPC项目经理部2011年11月20日目录第一部分设计原则 (2)1. 施工执行规范及标准 (2)第二部分.工程量清单 (2)第三部分阴极保护施工技术要求 (3)1.深井阳极地床的选址 (3)2. 恒电位仪的安装 (3)3. 深井阳极地床钻探 (7)3.1深井阳极 (7)3.1.1 施工程序 (7)4. 通电点及测试点的安装 (10)5. 参比电极的安装 (10)6. 阴极保护系统专用电缆 (11)7. 测试桩 (12)第四部分.质量保证体系和安全保证体系 (13)1. 质量体系 (13)2. 安全保证体系 (14)第五部分.环境保护和文明施工措施 (16)1. 环境保护措施 (16)1.1 宣传教育 (16)2. 文明施工措施 (16)第一部分设计原则1. 施工执行规范及标准1、《埋地钢制管道阴极保护技术规范》GB/T21448-2008;2、《钢制管道外腐蚀控制规程》GB/T 21447-20083、《埋地钢质管道腐蚀防护工程检验》GB-T19285-20034、《阴极保护管道的电绝缘标准》SY/T0086-2003;5、《埋地钢质管道阴极保护参数测量方法》GBT 21246-2007;6、《强制电流深阳极地床技术规范》SYT 0096-2000;7、《低压开关设备和控制设备》IEC 60439 ;&《外壳防护等级(IP代码)》IEC 60529 ;9、《分离变压器》IEC 60989 ;10、《电力变压器的安全》IEC 61558。
11、《站场标准化管理规定》QSY JS0035-2004第二部分.工程量清单第三部分阴极保护施工技术要求强制电流法的施工内容包括:恒电位仪安装、深井阳极地床钻探、汇流点及测试桩等设施的安装与施工。
1. 深井阳极地床的选址阳极位置与被保护管道的垂直距离不宜小于50m2. 恒电位仪的安装恒电位仪是强制电流阴极保护系统的核心设施,本工程阴极保护恒电位仪电源为AC380\± 10% 50HZt 5%阴极保护站所用阴极保护电源设备应符合相应技术规格书的要求,严禁使用不合格产品。
河南汇龙合金材料有限公司编制刘珍技术部深井阳极的地质状况对阴极保护的影响深井阳极/浅埋阳极主要用途:深井阳极适用于大型长输管线、城市管网、水电工程、表层土壤电阻率高的地区埋地金属构筑物的阴极保护。
是长输管线、城市管网、区域性保护的主要技术之一。
深井阳极是指阳极体顶部距地面积大等于15m的阳极地床,是相对浅埋阳极而言。
结构特点:深井阳极系统是由深井阳极、内导气装置、填充料、电缆、护井装置等结构组成。
深井阳极根据要求可采用贵金属氧化物阳极、高硅铸铁阳极。
深井阳极地质状况,尤其是地层中的岩石组成情况,是重要的设计参数,并且是无法改变的。
要节约施工成本,最好能将电流排放区域安排在电阻率最低的地层。
这样,某一特定位置的低电阻地层的厚度决定了阳极柱的最大的长度。
为了避免阳极间电流的过度不平衡引起的问题,一般不推荐将阳极布置在电阻率明显不同的区域。
当两个或者更多的具有近似低电阻率的地层隔开,可以建造一个连续的炭柱穿过高阻地层,这样,连接起来的所有的低电阻率地层都可以用来布置阳极了。
但是,阳极只能布置在低电阻率地层。
所有有关阳极柱长度的设计计算都应使用低电阻率地层的总厚度,因为其间的高电阻率地层的电流排放非常小。
河南汇龙合金材料有限公司编制刘珍技术部在有的地区,要找到具有足够深度的低电阻率地层很困难,首先,所谓的低电阻率是相对的。
但是,设计的目的是找出该区域能得到的电阻率中最低的的层。
在有些地方,即使是电阻率最低的地层,与其他区域比较,它的电阻率仍然是比较高的。
这种情况下设计的深井阳极应该是直径较小,长度较长阳极柱,系统对土壤的电阻率最小。
可能电阻率最低的地层要么很深,要么位于岩石层以下,阳极电流排放区和被保护结构物之间存在岩石层,会导致介电屏蔽效应。
这种效应只有通过测试来评价。
这种情况下的正确设计决策取决于权衡钻井这样的额外的费用,额外的材料。
试验等。
一般情况下,考虑到低电阻率地层和碳阳极长度的因素,在深井阳极系统的活性电流排放区域内,阳极是等间距布置的。
深井阳极对储罐底板阴极保护技术要求
国内外阴极保护工程广泛应用了深井阳极对储罐底板阴极保护技术,深井阳极接地电阻小而稳定,占地少,减少甚至可以避免可能存在的干扰和屏蔽现象,适用大中型储罐施加阴极保护系统。
但对于直径超过60米的特大型储罐,应用深井阳极技术储罐底板各处能否达到有效保护电位还有待于进一步工程实践。
河南汇龙刘珍为大家讲解
深井阳极通常情况下是指被埋在15米以下的以竖直方向摆放的阳极.深井阳极主要的工作环境一般是在施工地方空间比
较狭小或者施工土壤的电阻率非常高的情况中的.阳极与被保护的设施结构之间有一段距离,可以使阴极保护电流分布的更均匀;而且可以减少对其他埋在周围的金属设施的腐蚀干扰.深井阳极采用的材料一般多采用硅铁阳极或者采用混合金属氧化物筒状
阳极,铺设好阳极后用冶金焦炭或者煅烧石油焦炭回填阳极沟.
应用深井阳极技术必须有合适的地质结构和地层条件,受地下水文条件制约,设计施工存在一定的限制和难度,一旦建成调整非常困难,从施工和经济方面考虑使用单阳极是最实用的,因此研究单支深井阳极完全有效保护的临界储罐直径是具有实际
意义的。
目前对高硅铸铁深井阳极导电机理尚不清楚,理论上定量确定深井阳极极化电位是很困难的,阴极保护工程根据土壤参数变化(主要是降雨和地下水造成土壤电阻率减小)和给定电压(汇流点电位)不断调整恒电位仪输出电压使阴极保护体系处于规定电位范围之内,深井阳极极化电位是动态变化的。
河南汇龙合金材料有限公司刘珍。
深井阳极施工安装方案河南汇龙合金材料有限公司刘珍阴极保护材料、牺牲阳极保护、外加电流保护、阴保辅助材料、管道材料河南汇龙合金材料有限公司技术部:刘珍编制:2018年8月内部资料请勿外传1.1深井阳极施工方案深井阳极施工安装,在合适位置(根据现场条件选取)打一眼直径为300毫米,深≥40米井。
每口井安装3支Φ219*6000mm贵金属氧化物阳极,深井地床位置距管道约50-200米,并铺设阳极电缆,阳极电缆引入阴保机柜接入恒电位仪。
施工工艺(1)施工准备施工前,勘查施工现场,了解阴极保护站内外设施的分布和施工要求。
施工前作好备料工作,所有材料、设备的规格型号与设计相符。
各种设备到现场后,要根据装箱单开箱检查、清点,各种零部件、随机工具和设备资料应齐全完整。
(2)施工简图在深井位置安装井架及其它钻井附属设备,使用直径300钻头(3)深井阳极深井施工深井为直径300毫米,深40米井。
首先选择合适位置(根据现场条件选取)钻取深井。
开始钻井,如需要在钻井时加套管。
当钻井达到预定深度时,停止钻井,取出钻头。
准备安装预制阳极体。
(4)深井阳极安装深井阳极安装施工必须在深井施工后立即开始。
首先检验预制阳极体引线电缆是否完好。
将吊装车辆布置在吊装位用钢丝将预制阳极体连接将预制阳极体掉起,慢慢移动到井口,释放钢丝,将阳极慢慢放入井内。
当预制阳极上端面,距井口1米时,将第一支阳极体电缆穿过第二支预制阳极体排气管。
将第一支阳极固定;用钢丝将第二支预制阳极体连接,掉起慢慢移动到第一支阳极位置,将第一支阳极体与第二支阳极体进行焊接。
焊接处用热收缩套进行包解开第一支阳极的固定,释放钢丝,当第二根预制阳极上端距井口1米时,安装第三根阳极。
重复此步骤当预制阳极到达井底时,回填碎石至井口。
安装排气管和电缆管弯头。
按图纸砌阳极井座井架。
1.2阳极电缆敷设3根预包装阳极引出电缆进入防爆接线箱,从防爆接线箱中引出一根汇总阳极电缆经过穿管沿墙敷设进入阴保间,接入恒电位仪。
外加电流阴极保护深井阳极施工安装说明深井阳极是深井阴极保护技术的重要组成部分,是保护电流的发散单位;深井的钻建质量及阳极的安装质量直接影响着整个油田区域性阴极保护的保护效果。
为了保证钻井质量及阳极安装质量,河南邦信阴极保护施工公司特编制以下施工说明及要求。
施工说明及要求:1、阳极井(1)阳极井钻机:最低能够吊动两吨重量的物体;或与其相匹配的钻井;同时必须保证钻机的正常运行工作。
(2)井架与井座:必须与地面保持垂直,不得倾斜,井座一定要牢固,吊装阳极体井架升起的高度不得小于8米并与地面垂直。
同时,载重量不得小于2吨。
井径:先用450mm的钻杆钻深5m,取出钻杆后加装护井钢套管(450*4*5000)后,再换用350mm的钻杆钻至图纸所要求的深度,并且在钻井的过程中要不断加膨润土和用黄泥固井,防止井塌,同时,钻井的工程中井径必须一致,井必须和地面保持垂直,严禁出现喇叭口或缩井现象。
井钻好后,井内必须充满水,以保养井,原则上,不得超过1小时;并检测井是否达到设计的规定要求。
2、分段预制式阳极体的组合装配现场焊接分段预制式阳极体,保证阳极体中心线重合并垂直。
在吊装焊接时,第一组阳极引线从第二组阳极排气管中穿出,这时,可焊接一、二组阳极体,焊接时,273夹板必须夹紧阳极体,以免阳极体掉进井内;焊接第三组阳极体时,第一、二组阳极引线从第三组阳极排气管中穿出。
三根阳极引线捆绑在一起,准备安装排气管;在焊接过程中,焊接必须紧固、牢靠,必须焊接两遍,并不得出现气孔、加渣;装配焊接好一段,下井一段,装配焊接是在吊装下井过程中进行的。
焊接阳极体的焊接人员必须持有焊接等级证书,同时必须保证焊接设备运行正常及焊接工具齐全。
3、组合装配式阳极体整体吊装下井阳极体必须吊装在阳极井中的中央部位,在三组阳极体吊装组和装配完后整体下井,用12的钢丝绳一头穿过阳极体两边的吊环用钢丝卡卡紧。
另一头连接到卷扬机上开始慢慢下放,辺下方边安装排气管,下方同时将阳极体上的排气孔捅开,安装排气管时,阳极引线电缆从排气管中穿插时,不要将阳极引线电缆外的保护皮磨破,同时排气管必须和阳极体上的排气管接头连接好并保持垂直。
深井阳极地床安装记录阴极保护施工竣工报告
阳极地床安装记录
3遵循的标准规范
3.1 《埋地钢质管道强制电流阴极保护设计规范》(SY/T0036-
2000)
3.2 《钢制管道及储罐腐蚀控制工程设计规范》(SY0007-1999)
3.3 《长输管道阴极保护施工及验收规范》(SY/J4006-90)
3.4 《埋地钢质管道阴极保护参数测量方法》(GB/T 21246-2007)
3.5 《钢质管道外腐蚀控制规范》(GB/T 21447-2008)
3.6 《埋地钢质管道阴极保护技术规范》(GB/T 21448-2008)
3.7 《埋地钢质管道直流排流保护技术标准》(SY/T 0017-2006)
3.8 《埋地钢质管道交流干扰防护技术标准》(GB/T 50698—2011)
3.9 《减轻交流电和雷电对金属构筑物和腐蚀控制系统影响的措施》(NACE SP0177-2007)3.10 《阴极保护管道的电绝缘标准》(SY/T 0086-2003)
3.11 《埋地钢质管道交流排流保护技术标准》(中华人民共和国石油天然气行业标准SY/T 0032-2000)
3.12 《埋地钢质管道牺牲阳极阴极保护设计规范》(中华人民共和国石油天然气行业标准SY/T 0019-97)。
3.13《埋地钢质管道交流干扰防护技术标准》(GB 50698-2011)
3.14 业主方提供的其他资料、图纸。
深井阳极阴极保护施工工法一、前言随着现代工业的发展和技术的进步,金属结构的防腐蚀问题成为了一个重要的话题。
因为金属结构在自然环境中很容易受到氧化、腐蚀等侵袭,而这些侵袭往往会对金属结构的强度和使用寿命造成巨大的影响,甚至可能导致结构崩溃。
深井阳极阴极保护施工工法就是针对金属结构的防腐蚀问题而提出的一种技术方案。
本文将对深井阳极阴极保护施工工法进行详细介绍,包括工法特点、适应范围、工艺原理、施工工艺、劳动组织、机具设备、质量控制、安全措施、经济技术分析以及工程实例等方面。
二、工法特点深井阳极阴极保护施工工法是一种针对金属结构的防腐蚀工法,其主要特点有:1、施工区域不受限制。
深井阳极阴极保护施工工法可以在任何地形、地势条件下进行,不受地域、气候等条件的限制。
2、防腐效果优良。
该工法可以有效地防止金属结构的腐蚀问题,在实践中证明具有较好的防腐效果。
3、使用寿命长。
经过深井阳极阴极保护施工工法处理过的金属结构具有较长的使用寿命,避免了突发的安全事故。
4、施工安全性高。
深井阳极阴极保护施工工法采用了先进的施工技术、机具设备和安全措施,施工过程中具有较高的安全性。
5、适用范围广。
该工法适用于各种类型的金属结构,包括桥梁、水泥构筑物、水产养殖设施、乡间小道防滑铁链等。
三、适应范围深井阳极阴极保护施工工法适用于以下范围:1、各种类型金属结构2、海洋工程、水上建筑、输气管道、石油化工设施等湿度较大或腐蚀介质较强的环境下3、各种地形、地貌条件下4、公路、铁路等各种交通巨变及其隧道或设施5、发电厂、化工厂、水泵房、市政设施等特殊领域四、工艺原理深井阳极阴极保护施工工法依赖于阳极阴极原理实现金属结构的防腐蚀。
在金属结构表面设置阳极和阴极,利用电流的作用,使得阳极中的金属离子向阴极中的金属离子流动。
这样可以避免金属结构中出现阳极和阴极电位的差异,从而减少腐蚀的发生。
具体来说,深井阳极阴极保护施工工法包括以下几个步骤:1、深井掘进首先需要在金属结构周围挖掘深井,深度通常在30m左右。
深井阳极和柔性阳极系统
深井阳极系统
该系统主要用于已经建成的储罐,其主要优点是其电流、电压可根据需要任意调节,其缺点是阴极保护电流不均匀,有些区域保护不到,容易产生腐蚀干扰。
该系统以前较常用的辅助阳极为含铬高硅铸铁阳极,现在有了一种新型的钛阳极材料,它强度高,比重小,耐蚀性好,易加工,较其它阳极具有极化小,电流输出大,消耗少,寿命长,对环境无污染的优点,而且安装方便。
柔性阳极系统
柔性阳极(Anodeflex)亦称缆形阳极,该阳极为导电聚合物,包裹在铜芯线上,经过特殊
工艺处理,使之具有耐热、抗老化的性能,其工作寿命可达40年以上。
由于它的特殊结构,使其纵向电阻低,可以把电流传到很远。
横向电阻高,使铜芯中的电流只能慢慢地“滴入”地下。
若在其周围填充焦碳可以改善阳极的工作环境,并能使其延长寿命。
对于新建罐,柔性阳极可以在罐基下面均匀地蛇形分布,它将柔性阳极直接布设在罐底,把引线接头设置在罐基础外,这样可以方便阳极的维修,因为阳极最多的故障就是接头断裂。
该系统具有电流分布均匀,不易产生腐蚀干扰的特点。
在旧罐区,采用柔性阳极阴极保护与罐体相连的管网,可以省去电绝缘之苦。
深井阳极阴极保护
(2009-05-27 09:08:00)
转载
分类:阴极保护
标
签:
阴极
杂谈
深井阳极阴极保护图纸(点击查看图纸)
简介
深井阳极是深度在15米以下的竖直阳极 , 主要用作地表空间狭少或者地表土壤电阻率高的场合下的阴极保护系统阳极 . 采用深井阳极的优点之一是阳极距离被保护结构有一定距离, 使保护电流的分布更加均匀, 另外 , 也会减少对其他埋地金属结构的腐蚀干扰.
为了便于阳极的安装, 保证工程质量 , 近年发展的混合金属氧化物阳极串得到了广泛应用 . 本文将对阳极串深井阳极的设计选材安装进行介绍 .
1. 阳极串及电缆
阳极串是将几支混合金属氧化物筒状阳极固定在一根阳极电缆上 , 混合金属氧化物阳极具有不消耗、电流输出大、体积小、重量轻的优点. 与之相对应的阳极电缆应耐侵蚀 . 阳极工作时 , 阳极反应会产生氯气并使阳极电缆处于酸性介质中 . 因此 , 阳极电缆的绝缘层要能够抵抗氯气的侵蚀 . 经常采用的阳极电缆绝缘层为 PVDF/HMWPE. 截面积一般是8-10mm2
2. 土壤电阻率
土壤电阻率在深井阳极设计中有很大的影响,它决定阳极的用量、阳极井的直径以及深度、
电源设备的功率等。
一般将阳极位置选在土壤电阻率低、土质均匀的地点。
电阻率有两种方式获得,一是现场测试,二是利用现有的阴极保护系统进行估算。
阳极的接地电阻一般占系统电阻的85%。
如果附近的阴极保护设施输出电压40V ,电流20V,则该系统的电阻为2 欧姆。
阳极的接地电阻为2*0.85=1.7ohm 。
据此,可根据相应阳极地床的电阻公式计算出土壤的电阻率。
阳极接地电阻将直接影响系统的运营成本,一般来讲,接地电阻不大于0.5 欧姆。
3. 阳极井的尺寸
影响阳极接地电阻的主要因素是阳极井深度。
考虑阳极井的直径时,应充分考虑到排气管(25mm)。
阳极以及电缆将占据相当的空间。
因此,阳极井的直径一般不小于200mm 。
直径小于200mm 时,应对阳极的安装进行严格控制,输出电流大时,应增大阳极井直径。
4. 回填料的电流密度
阳极井的尺寸不是随意确定的,它将受到一系列因素的影响。
其中之一是填料与土壤接触面上的电流密度。
经验表明,对于回填料的电流密度要进行限制,其原因如下:
(1)阳极与土壤之间必须保持一定的湿度,由于电渗透效应,阴极保护电流试图将水分蒸干,其程度取决于土壤类型以及电流密度。
(2) 阳极反应消耗水分并产生气体,气体的积聚或阳极表面的干燥都会增大阳极的接地电阻,气体的产生量直接与电流密度有关。
(3) 在特殊情况下,阳极与土壤接触面的温度会升高。
这也会加快水分的蒸发速度,而温度又和电流密度、土壤导热性以及阳极尺寸有关。
(4) 建议回填料电流密度按下表选取:
填料电流密度确定后,就可以确定阳极长度了。
阳极长度只能大于计算值。
5. 回填料的选择
使用填料的目的是减少阳极接地电阻,由于阳极反应转移到填料上,减少阳极的消耗、减少气阻,保持阳极井的形状。
因此,填料应具有低电阻率、小粒径以及高密度是很重要的。
回填料分为两类,即石油焦碳以及冶金胶碳。
建议采用石油焦碳,它是高温烧制成的,具有良好的导电性和均匀性。
建议将焦碳回填料用泵从阳极井底部打入井中。
回填料的指标:
采用低电阻率填料将减少阳极用量,在同一地质条件以及阳极尺寸情况下,填料电阻铝低,但考虑到实际安装阳极时,阳极的密实程度、水含量等不确定因素。
设计时,填料电阻率最小取2.0ohm.cm. 。
填料颗粒最好足球形,这种型状易于回填和压实。
另外,为了补充阳极工作时对填料的消耗,填料长度一般要低于最下面的阳极 3 米,高于最上面的阳极3米。
6. 排气管
采用排气管的目的除了排除气体,减少气阻外,它还可以用来散发热量、回注水。
安装阳极时,可以利用排气管辅助阳极安装。
排气管上的小孔或狭缝要小于填料粒径以防止被填料或淤泥阻塞。
推荐排气管直径为25mm,填料柱以上的排气管没有专孔或狭缝。
7 .定位器
使用定位器的目的是保证阳极处于填料的中心部位,填料密实以及阳极工作后,定位器将很快给腐蚀掉,一般一根阳极安装两个定位器。
8 阳极串配重
为了使阳极串顺利的下降到阳极串的底部,在阳极串底部要连接一个重物,通常是混泥土重块,重量在5-7公斤之间。
将此重物用塑料绳与阳极串底部连接,距离底部阳极下端3-4米。
9 .套管
套管不仅为阳极井提供支撑作用,方便阳极串安装,同时可以限制阴极保护电流从近地表释放。
套管的长度、材质、高出地表的距离取决于阳极井类型以及土质条件。
10 .不导电填料
采用不导电填料的目的是减少阴极保护电流在近地表处释放。
通常用砾石、粗砂回填阳极
柱上方的阳极井。
11 .电源设备
计算出阳极的接地电阻后,就可以根据保护电流确定整流器的功率。
需要注意的是阳极接地电阻一般只占整个阴极保护系统电阻的85%,处于焦碳回填料中的阳极具有2伏的反电动势。
选取设备容量时,还要予留15%的裕量。
当几个阳极共用一台整流设备时,要经过可调电阻将阳极电缆与设备连接。
12 .阳极的安装
1 )安装套管:打完阳极井后,首先安装6米的塑料套管。
该套管位于阳极井顶部,其直径要比阳极井大5-6 厘米。
建议将此套管留在阳极井中。
2 )井下试验:建议进行阳极井沿深度方向的电阻测试,以确定最佳阳极安放位置,从而减少接地电阻。
测量时,将阳极井充满水,测量辅助阳极与被保护结构之间的电阻。
3 )阳极井清理:用清水将泥浆置换出。
4 )安装阳极:将排气管平放在地面上,将其底部封住。
将阳极串靠近排气管平放,排气管的下端部超出底部阳极下端0.5米。
5 )用塑料绳将配重块连接到最下部的阳极,距离阳极下端部3米。
对于复式电缆的阳极串,配重块连接到电缆上,距离底部阳极下端3.5米。
6 )将阳极串排气管、电缆固定在一起。
此时,在阳极上安装定位器。
阳极电缆每隔2米用胶带与排气管固定一次。
固定阳极时,阳极距离排气管的距离为5—7厘米。
7 )将填料注入管下放到阳极井底部,或在安装阳极串的同时下放注料管。
下放阳极串 / 排气管。
阳极串定位后,快速固定好阳极电缆。
8 )用泵将填料打入阳极井,此操作一旦开始,中途将不能停止,直到填料填充完毕。
从阳极井的底部注入填料,将避免产生孔隙,填压不实等问题出现。
用粗砂或砾石将填料上部的空间填满。
9 )高出地表的套管要加盖帽,盖帽下面的套管部分要转出很多直径6.35mm 的小孔,以利于气体排放。
10 )排气管上端要加盖滤帽,防止昆虫进入。