药厂平面图
- 格式:doc
- 大小:5.24 MB
- 文档页数:10
中药材提取车间二楼环境控制划分图
精品文档
精品文档
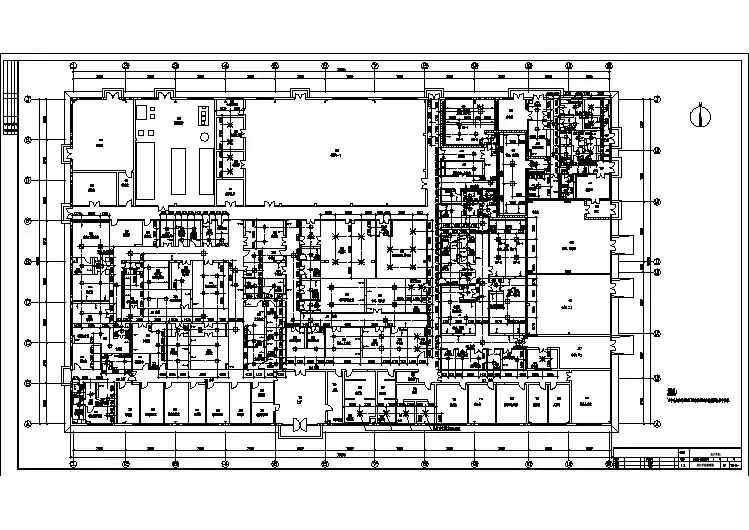
中药材提取车间二楼设备平面布置图
备注:
1、2真空泵 3、4、5多功能提取罐 6、7多功能醇提罐 8真空减压浓缩器 9渗滤罐 10外循环蒸发器 11、12乙醇回收罐 13 喷雾干燥机 14、15三效浓缩器 16洗衣机
精品文档
中药材提取车间三楼环境控制划分图
容器洗涤颗粒分装抛光胶囊充填除尘机房除尘过筛原辅料折包
风机整粒、总混湿法制粒暂存净容器脏容器内空心复称前室
存放存放包前室前室中间站制浆干燥配料
材胶囊
洁具
洁具存放中间站检验前室不合格品前室晾片内包材双铝包装气闸缓冲
洗手脱衣更衣手消毒整理冲模除尘包衣中间站半成品
换鞋洗手更衣洗烘衣压片压片风机铝塑包装暂存
制浆
固体制剂车间平面示意图
精品文档
精品文档
中药材提取车间二楼人流图 人流
精品文档
中药材提取车间二楼物流图 物流
精品文档
中药材提取车间三楼物流图 物流
精品文档
中药材提取车间三楼设备平面布置图
备注:
1、2、3水提投料口 4、5醇提投料口 6烘箱 7乙醇回收冷凝器 8拣选工作台 9润药池 10洗药机 11破碎机 12粉碎机 13切药机
精品文档
中药材提取车间三楼人流图 人流
精品文档
中药材提取车间一楼环境控制划分图
精品文档
中药材提取车间一楼物流图物流
精品文档。
明阳医药有限公司仓库平面结构图1:500
(库区面积共1800 m2,库区最高顶点6m)* 90m
12)
换气扇不合格品区合格品区待确定品区
备用发电机组灭蝇灯①遮雨棚
②待验区
整货货架(货架高4.5m)③退货区
④发货复核区
Is
」
零货货架(货架高2.5m)
⑨冷藏库
⑩拆零拼箱区
20m
⑨
■:温湿度监测主机端口
-二」电动堆高叉车存放点
_ _人流及物流通道
...灭火器及消防栓
医疗器械区
结构图(面积17.1 〃,高
2.7m)
0~5C区域2~8C区域
待验区
待验区
发货复核区
待确定
区
冷风机
合格品区
发货复核区
:退货区
1预冷区
合格品区
◎
冷风机
退货区
待确定
区
2.0M 2.5M
3.8M
人流及物流通道
I ◎
温湿度监测终端。
注:标明消防设施、器材位置,重点部位注:标明消防设施、器材位置,重点部位1. A5棟廠區平面圖(一廠一樓成型車間):2. A5棟廠區平面圖(一廠二樓辦公區):{0 Fr[O sth 許代9N4«A±.* jmn2DlQ-5-]fM0|K3. A5棟廠區平面圖(一廠三樓加工車間):■- i'W' i U 3nrr ;■ • ws] 曰—mio-j-L6-JWS4. A5棟廠區平面圖(一廠四樓倉庫):注:标明消防设施、器材位置,重点部位5. A19棟廠區平面圖(二廠一樓成型車間):6. A19棟廠區平面圖(二廠二樓加工車間):■—I Me注:标明消防设施、器材位置,重点部位注:标明消防设施、器材位置,重点部位7. A19棟廠區平面圖(二廠三樓倉庫):8. A19棟廠區平面圖(二廠四樓倉庫):ITTi ■4一晳1二电-虐平:tlltt 2O1T18-抑aU•I $ 7" I.注:标明消防设施、器材位置,重点部位9. A12棟廠區平面圖(三廠一樓成型車間):10. A12棟廠區平面圖(三廠二樓加工車間):注:标明消防设施、器材位置,重点部位11. A12棟廠區平面圖(三廠三樓倉庫):12. A12棟廠區平面圖(三廠四樓倉庫):注:标明消防设施、器材位置,重点部位13. A13棟廠區平面圖(四廠一樓成型車間):― -IU.ZH14. A13棟廠區平面圖(四廠二樓加工車間):。
皿 be** 也 曰"*—卩 qis 二园下直閔 zoio-s-is-w^HE . • - s-■1 OS ③ ⑷尊 妊⑦(H注:标明消防设施、器材位置,重点部位15. A13棟廠區平面圖(四廠三樓倉庫):[SEI < h16. A13棟廠區平面圖(四廠四樓塗裝車間)重點部位:斑i7B1:*鼻T业1■£'J左注:标明消防设施、器材位置,重点部位17. A20棟廠區平面圖(六廠一樓成型車間):18. A20棟廠區平面圖(六廠二樓加工車間):F=A «F ■:ik 丄IIJ hg JOlOi-lMWu &K2WO5-|fr-W«注:标明消防设施、器材位置,重点部位19. A20棟廠區平面圖(六廠三樓倉庫):1石:11 wITTI *I ™I 忙1E I TT11 - j J Lr Qytj1J20. A20棟廠區平面圖(六廠四樓倉庫):A'lMiffllH aio-briMojK21. A2棟廠區平面圖(七廠一樓模具車間):ET3 汀“J.;22. A2棟廠區平面圖(七廠二樓辦公):注:标明消防设施、器材位置,重点部位注:标明消防设施、器材位置,重点部位23. A2棟廠區平面圖(七廠三樓倉庫):24. A2棟廠區平面圖(七廠四樓塗裝車間)重點:◎:吐n 册 Tl 1 70Wi.Jkl-■W .<hlf厂凸『• L・■■-1333.UTt e r ■Z:J3 '•1 ■3■wn 1 £ .■-■(■133sni 屮IIn1 ■a.lz m □■•2、总平面图25. A7棟廠區平面圖(八廠一樓注塑車間):26. A7棟廠區平面圖(八廠二樓加工車間)2、总平面图27. A7棟廠區平面圖(八廠三樓倉庫)G弱三嘍坞瓷読施平面逼28. A7棟廠區平面圖(八廠三樓倉庫)rf';。