坡屋面小青瓦施工
- 格式:doc
- 大小:21.00 KB
- 文档页数:2
小青瓦屋面施工方案及操作要点1、铺小青瓦的操作工艺顺序铺瓦准备工作→基层检查→上瓦、堆放→铺筑屋脊瓦→铺檐口瓦、屋面瓦→粉山墙披水线→检查、清理。
2、铺瓦操作要点与铺瓦操作方法:1)、铺挂小青瓦操作方法铺挂小青瓦的操作顺序与铺平瓦基本相同。
即从左往右、自下往上。
但因小青瓦较薄易于破碎,为避免屋面铺好后再去铺盖屋脊瓦时会将瓦片踩破,因而在铺挂屋面瓦之前要先将脊瓦做好。
2)、做屋脊做小青瓦屋脊一般有三种方法:①象作平瓦屋脊一样,将瓦一皮一皮地从一个山头铺筑到另一个山头;②将瓦片斜成一定的角度并挤紧,由山头向中间筑脊;③先在两山头各平放一叠瓦封头。
具体做脊时,一般先在靠近屋脊两边的坡屋面上先铺筑5-6张仰瓦或俯瓦作为分垅的标准,并用草泥或屋脊底部,冯接着铺盖脊瓦。
屋脊筑完后用混合砂浆或纸筋灰将脊背及瓦垅的缝堵塞密实、压紧抹光。
3)、铺挂檐口瓦和屋面瓦。
檐口瓦要挑选外形整齐、质量好的瓦进行铺挂。
檐口第一皮瓦挑出檐口的长度不得少于50mm,檐口瓦垅必须与屋脊瓦垅上下对直,以利排水。
檐口仰瓦相邻的空隙要用砂浆和碎瓦片填塞稳后再盖2-3张俯瓦。
檐口处第一张仰瓦应抬高20~30mm,以防俯瓦下滑。
4)、铺屋面瓦时,应先顺斜坡拉线,再从檐口开始,自下往上一垅一垅地进行铺挂。
铺瓦要求“一搭三或压二露三”,即要求瓦面上下搭接2/3。
俯仰瓦屋面的相邻两垅俯瓦和仰瓦的边之间要搭接40mm。
铺俯仰瓦时,应先铺两垅仰瓦,并在其两垅仰瓦之间空隙处用灰浆塞垫稳后再铺俯瓦。
若铺仰瓦屋面,则要在每两垅瓦之间空隙处用灰泥堵塞饱满后,用麻刀灰做出灰埂,并在灰埂上涂刷一屋与瓦颜色相近的灰浆,再抹压圆直。
若是不做灰埂的仰瓦屋面应挑选外形整齐一致的小青瓦铺挂,且要求边缘必须咬接紧密,坐浆饱满,铺挂密实稳牢。
悬山屋面,山墙处的瓦应挑出半块瓦宽,再粉披水线。
硬山屋面则可用仰瓦随屋面坡度侧贴于墙上作泛水。
5)、操作要点运瓦与堆瓦。
运瓦上屋面之前,应检查椽子与檩条是否钉好,是否平整牢固,偏差过大的要经修整或返工后才能运瓦上屋面。
小青瓦仿古屋面铺贴施工方案及工艺方法小青瓦施工时,首先根据屋面形状确定屋脊样式,进行屋脊铺筑,然后根据坡屋面尺寸排列小青瓦,确定城数和每城小青瓦数,并按从檐口到屋脊的顺序铺筑,最后进行山墙批水线的粉饰一、施工准备1、技术准备提前确定材料品牌及质量要求,选定屋面施工队伍。
及时签定承包合同,组织施工队及时进场。
组织材料提前进场做复试,复试合格后,方可进行施工。
认真看图领会设讣意图,结合屋面防水标准,明确各部位做法、质量要求。
结合厂家工艺标准及要求,编制专项方案。
随工程进度,提前对操作人员进行书面的技术交底,确保工程质量。
提前编制工程预算、机具和材料计划,在保证工期、质量的前提下,尽量降低工程造价。
2、工序准备待结构屋面板、找平层、防水层、保护层施工完毕后,为屋面的施工创造条件。
3、材料机具准备(1)材料准备材料质量、技术性能必须符合设计要求和施工及验收规范的规定。
(2)机具准备根据实际情况、工程规模及人员配备惜况,配备施工设备及工具,根据具体需要分发至工地,易耗品一次性备足。
二、施工工艺流程及施工顺序1、工艺流程防腐木木基层基层检查一铺瓦准备一上小青瓦一堆放一铺筑屋脊瓦一铺檐口瓦一屋面小青瓦一粉山墙披水线一检查一清理。
2、铺挂顺序从左往右、自下往上,为避免屋面铺好后再去铺盖屋脊瓦时将瓦片踩破,在铺挂屋面瓦之前要先将屋脊瓦做好,铺筑屋脊瓦一般采用三种方法:将小青瓦一片一片地从一个山墙边铺筑到另一个山墙边;将小青瓦瓦片斜成一定的角度并挤紧,由山墙两头向中间筑脊;先在山墙两头各平放一叠瓦封头,再将小青瓦直立从两边对称向中间合拢、此法最常用,按地区风俗和建筑物用途。
小青瓦屋面与立墙及突出屋面的烟囱天窗等结构交接处,均要做好泛水处理, 在迎水面中部应抹出分水线,其侧面小青瓦伸入泛水宽度不小于50,且要同屋面瓦铺筑一道进行泛水做法应符合设计要求,顺直整齐,结合严密,无渗漏。
三、施工方法1、铺贴准备首先将屋面防水系统做好,稀释混凝土做好,达到做屋面的要求。
青筒瓦屋面施工方案一、工程概况方圆云山诗意一标段的1、2、3、5、6、7、8号房工程,屋面坡度30°-35°的斜屋面采用盖小青瓦构造装饰做法:无保温瓦屋面做法:①、小青瓦(搭七露三)用20厚1:1:4水泥砂浆加水泥重3%或耐碱短纤维玻璃丝卧铺。
②、30厚1:3水泥砂浆,最薄处20厚,内配¢6双向钢筋网@250,屋脊处相连,与预埋¢10钢筋头绑牢。
③、10厚1:3水泥砂浆找平抹光。
④、2厚911聚氨酯防水涂膜,遇墙上翻500高。
⑤、20厚1:2.5水泥砂浆找平层。
⑥、钢筋砼现浇板,预埋¢10钢筋头,露出屋面80(设计要求60,实际应为80),中距双向900-1000。
有保温瓦屋面做法:①、小青瓦(搭七露三)用20厚1:1:4水泥砂浆加水泥重3%麻刀(或耐碱短纤维玻璃丝)卧铺。
②、30厚1:3水泥砂浆,最薄处20厚,内配¢6双向钢筋网@250,屋脊处相连,与预埋¢10钢筋头绑牢。
③、10厚1:3水泥砂浆找平抹光。
④、50厚挤塑聚苯板保温隔热层。
⑤、2厚911聚氨酯防水涂膜,遇墙上翻500高。
⑥、20厚1:2.5水泥砂浆找平层。
⑦、钢筋砼现浇板,预埋10钢筋头,露出屋面130(设计要求60,实际应为130),中距双向900-1000(用于核心筒坡屋顶)。
二、材料要求及规格1、片瓦 180×1802、 2、瓦头 185×1103、滴水瓦 185×1854、正档沟 220×1305、大花脊 200×220×1456、民居爪角三、主要工序施工方法1、基层施工:①、在斜屋面板施工时,模板底模应根据设计要求的囊度曲线在现场足尺放样并复核无误后方可进行施工。
同时在施工期间应注意复合檐口及屋脊的标高是否符合设计。
②、为防止砼浇筑时由于屋面坡度过大引起砼坍落,在双层双向板筋。
扎好后,沿屋脊平行方向。
每隔1m 设置钢丝网片一道。
做法如下图:板厚③、在斜屋面板的双层板钢筋,绑扎完成后。
(七)小青瓦屋面施工1、铺小青瓦的操作工艺顺序铺瓦准备工作→基层检查→上瓦、堆放→铺筑屋脊瓦→铺檐口瓦、屋面瓦→粉山墙披水线→检查、清理.2、铺瓦操作要点与铺瓦操作方法1)、铺挂小青瓦操作方法铺挂小青瓦的操作顺序与铺平瓦基本相同。
即从左往右、自下往上。
但因小青瓦较薄易于破碎,为避免屋面铺好后再去铺盖屋脊瓦时会将瓦片踩破,因而在铺挂屋面瓦之前要先将脊瓦做好。
2)、做屋脊做小青瓦屋脊一般有三种方法:①象作平瓦屋脊一样,将瓦一皮一皮地从一个山头铺筑到另一个山头;②将瓦片斜成一定的角度并挤紧,由山头向中间筑脊;③先在两山头各平放一叠瓦封头。
具体做脊时,一般先在靠近屋脊两边的坡屋面上先铺筑5—6张仰瓦或俯瓦作为分垅的标准,并用草泥或屋脊底部,冯接着铺盖脊瓦。
屋脊筑完后用混合砂浆或纸筋灰将脊背及瓦垅的缝堵塞密实、压紧抹光。
3)、铺挂檐口瓦和屋面瓦。
檐口瓦要挑选外形整齐、质量好的瓦进行铺挂.檐口第一皮瓦挑出檐口的长度不得少于50mm,檐口瓦垅必须与屋脊瓦垅上下对直,以利排水。
檐口仰瓦相邻的空隙要用砂浆和碎瓦片填塞稳后再盖2—3张俯瓦。
檐口处第一张仰瓦应抬高20~30mm,以防俯瓦下滑.4)、铺屋面瓦时,应先顺斜坡拉线,再从檐口开始,自下往上一垅一垅地进行铺挂。
铺瓦要求“一搭三或压二露三”,即要求瓦面上下搭接2/3。
俯仰瓦屋面的相邻两垅俯瓦和仰瓦的边之间要搭接40mm。
铺俯仰瓦时,应先铺两垅仰瓦,并在其两垅仰瓦之间空隙处用灰浆塞垫稳后再铺俯瓦.若铺仰瓦屋面,则要在每两垅瓦之间空隙处用灰泥堵塞饱满后,用麻刀灰做出灰埂,并在灰埂上涂刷一屋与瓦颜色相近的灰浆,再抹压圆直。
若是不做灰埂的仰瓦屋面应挑选外形整齐一致的小青瓦铺挂,且要求边缘必须咬接紧密,坐浆饱满,铺挂密实稳牢.悬山屋面,山墙处的瓦应挑出半块瓦宽,再粉披水线。
硬山屋面则可用仰瓦随屋面坡度侧贴于墙上作泛水。
5)、操作要点运瓦与堆瓦.运瓦上屋面之前,应检查椽子与檩条是否钉好,是否平整牢固,偏差过大的要经修整或返工后才能运瓦上屋面。
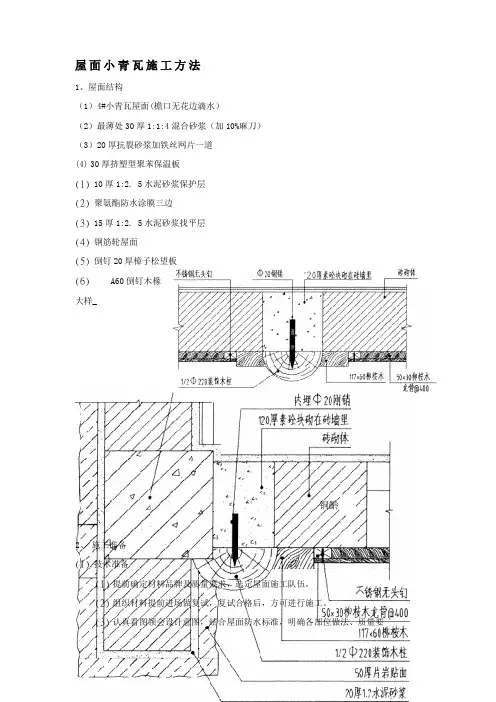
屋面小青瓦施工方法1、屋面结构(1)4#小青瓦屋面(檐口无花边滴水)(2)最薄处30厚1:1:4混合砂浆(加10%麻刀)(3)20厚抗裂砂浆加铁丝网片一道(4)30厚挤塑型聚苯保温板(1)10厚1:2. 5水泥砂浆保护层(2)聚氨酯防水涂膜三边(3)15厚1:2. 5水泥砂浆找平层(4)钢筋轮屋面(5)倒钉20厚樟子松望板(6)A60倒钉木椽大样_铜齡2、施工准备(1)技术准备(1)提前确定材料品牌及质量要求,选定屋面施工队伍。
(2)组织材料提前进场做复试,复试合格后,方可进行施工。
(3)认真看图领会设计意图,结合屋面防水标准,明确各部位做法、质量要求。
(4)提前对操作人员进行书面的技术交底,确保工程质量。
(2)生产准备:待结构屋面板、找平层、防水层、保护层施工完毕后,为屋面的施工创造条件。
(3)材料机具准备(1)材料准备:材料质量、技术性能必须符合设计要求和施工及验收规范的规定。
(2)机具准备:根据实际情况、工程规模及人员配备情况,因此项目部配备如下施工设备及工具,根据具体需要分发至工地,易耗品一次性备足。
3、工艺流程、施工方法(1)工艺流程基层检查一铺瓦准备一上小青瓦一堆放一铺筑屋脊瓦一铺檐口瓦一屋面小青瓦—粉山墙披水线一检查一清理。
(2)操作顺序:(1)从左往右、自下往上、为避免屋面铺好后再去铺盖屋脊瓦时将瓦片踩破,在铺挂屋面瓦之前,要先将屋脊瓦做好,这也是本法与其它一般瓦屋面做法最大的区别所在、铺筑屋脊瓦一般有三种方法.•将小青瓦一片一片地从一个山墙边铺筑到另一个山墙边;将小青瓦瓦片斜成一定的角度并挤紧,由山墙两头向中间筑脊;先在山墙两头各平放一叠瓦封头,再将小青瓦直立从两边对称向中间合拢、此法最常用,按地区风俗和建筑物用途。
(2)小青瓦屋面与立墙及突出屋面的烟囱天窗等结构交接处,均要做好泛水处理,在迎水面中部应抹出分水线,其侧面小青瓦伸入泛水宽度不小于50,且要同屋面瓦铺筑一道进行泛水做法应符合设计要求,顺直整齐,结合严密,无渗漏。
小青瓦屋面施工方案1. 介绍小青瓦是一种常见的屋面材料,具有优美的外观和良好的防水性能。
本文档为小青瓦屋面施工方案,以确保施工过程的高效性和质量。
2. 准备工作在施工开始之前,需要进行一系列的准备工作,以确保施工顺利进行。
2.1 材料准备•小青瓦:根据屋顶面积和设计要求,准备足够的小青瓦。
在选购过程中,注意检查瓦片的质量和尺寸是否符合要求。
•砂浆:选择高质量的砂浆,以保证砌筑的牢固性。
•防水材料:使用符合标准的防水材料,确保屋面的防水效果。
•其他工具:如瓦片切割机、扫帚、水平仪等。
2.2 工具准备•砖砌工具:如镐子、铲子、抹子等。
•安全工具:如安全帽、手套、安全绳等。
•检测工具:如红外测温仪、水平仪等。
3. 施工步骤3.1 屋面清理在施工之前,首先需要清理屋顶表面,将杂物、灰尘等清除干净。
确保屋面平整、干净,并进行检查,如果有破损的地方,需要提前修补。
3.2 布置工作区域在施工现场设置工作区域,确保施工人员的安全。
标示出施工区域并设置警示标志,禁止未经授权的人员进入工作区域。
3.3 砌筑基础小青瓦的砌筑需要有坚实的基础。
根据设计要求和实际情况,在屋顶上预留出一定的基础空间。
在基础上进行砂浆砌筑,并使用水平仪进行调整,以确保基础的平整和牢固。
3.4 砌筑小青瓦将小青瓦放置在砌筑基础上,使用砂浆将瓦片粘合在一起。
在施工过程中,要注意瓦片的排列和均匀性。
使用瓦片切割机对需要修剪的瓦片进行修剪,并确保瓦片的尺寸和形状与设计要求一致。
3.5 防水处理小青瓦屋面需要进行防水处理,以确保屋面的防水性能。
在瓦片的接缝处和屋面附近使用符合标准的防水材料进行封闭和处理。
3.6 屋面检测在施工完成后,进行屋面的检测工作。
使用红外测温仪对屋面进行温度检测,并使用水平仪检查屋面的平整度。
如果发现问题,及时修正。
4. 安全注意事项在施工过程中,要注意以下几点安全事项:•确保施工现场的安全,设置警示标志并限制未经授权的人员进入施工区域。
小青瓦屋面施工方案 HEN system office room 【HEN16H-HENS2AHENS8Q8-HENH1688】小青瓦屋面施工方案一、屋面采用盖小青瓦构造装饰做法:无保温瓦屋面做法:①、小青瓦(搭七露三)用20厚1:1:4水泥砂浆加水泥重3%或耐碱短纤维玻璃丝卧铺。
②、30厚1:3水泥砂浆,最薄处20厚,内配¢6双向钢筋网@250,屋脊处相连,与预埋¢10钢筋头绑牢。
③、10厚1:3水泥砂浆找平抹光。
④、2厚911聚氨酯防水涂膜,遇墙上翻500高。
⑤、20厚1:水泥砂浆找平层。
⑥、钢筋砼现浇板,预埋¢10钢筋头,露出屋面80(设计要求60,实际应为80),中距双向900-1000。
有保温瓦屋面做法:①、小青瓦(搭七露三)用20厚1:1:4水泥砂浆加水泥重3%麻刀(或耐碱短纤维玻璃丝)卧铺。
②、30厚1:3水泥砂浆,最薄处20厚,内配¢6双向钢筋网@250,屋脊处相连,与预埋¢10钢筋头绑牢。
③、10厚1:3水泥砂浆找平抹光。
④、50厚挤塑聚苯板保温隔热层。
⑤、2厚911聚氨酯防水涂膜,遇墙上翻500高。
⑥、20厚1:水泥砂浆找平层。
⑦、钢筋砼现浇板,预埋 10钢筋头,露出屋面130(设计要求60,实际应为130),中距双向900-1000(用于核心筒坡屋顶)。
二、材料要求及规格1、片瓦 180×1802、 2、瓦头 185×1103、滴水瓦 185×1854、正档沟 220×1305、大花脊 200×220×1456、民居爪角三、主要工序施工方法1、基层施工:①、在斜屋面板施工时,模板底模应根据设计要求的囊度曲线在现场足尺放样并复核无误后方可进行施工。
同时在施工期间应注意复合檐口及屋脊的标高是否符合设计。
②、为防止砼浇筑时由于屋面坡度过大引起砼坍落,在双层双向板筋。
扎好后,沿屋脊平行方向。
每隔1m设置钢丝网片一道。
做法如下图:③、在斜屋面板的双层板钢筋,绑扎完成后。
坡屋面小青瓦施工1、一般是先做屋脊,再铺盖屋面,同时做屋面泛水,最后做瓦头粉饰。
2、在基层上铺设泥背时,前后坡应自下而上同时进行,并至少分两层铺抹。
第一层铺抹后特其略徽干燥,再铺抹第二层。
3、屋面上瓦应前后两坡同时进行。
并隔沟堆放,以防止滑动。
做屋脊前,应在靠近屋脊两边的坡面上先铺5~6 张仰瓦及俯瓦,作为瓦垅划分的标准,并宜拉通长麻线。
以求平直。
脊瓦底部用碎瓦片和砂浆将分垅的瓦垅垫平。
脊瓦铺完后,脊瓦底部与瓦垅的空隙需用1:1: 4 水泥石灰砂浆加 1.5% 麻刀堵塞密实,并压紧抹光。
也可将整个屋脊用麻刀青灰浆粉面+再用青灰水涂刷I ~ 2 道与青瓦色调一致。
4、檐口瓦应挑选外形整齐、质量较好的小青瓦,挑出檐口宜为50 毫米。
檐口瓦的盖瓦应抬高30~80 毫米 ( 俗称“望檐 ) ,以防盖瓦下滑。
檐口瓦楞必须与屋脊瓦楞上下对直,切勿歪斜,以利排水。
5、铺屋面瓦一般自檐口开始,自下而上,一垅一垅地铺盖,排垅必须上下均匀,前后对正。
一般要求瓦面上下搭接三分之二,俗称“一搭三”,每铺完一垅,用 2 米或更长一些的直尺 ( 杆) 将瓦楞和瓦面校直。
俯仰瓦屋面的俯瓦搭盖仲瓦的宽度每边应为40~60 毫米;铺仰瓦屋面时,两垅仲瓦之间的空隙应用草泥垫实,然后用麻刀灰做出灰埂,再在灰埂上涂刷青灰浆,并抹压圆直光滑。
如不做灰埂,应挑选外形整齐一致的青瓦,瓦垅边缘应相互咬接紧密,瓦应坐灰饱满、牢靠。
6、山墙上面瓦的挑出部分宜为瓦宽的1/2 ,瓦垅侧面应校直。
7、质量要求( 1)屋脊平直,脊瓦底部垫塞平稳,坐灰饱满,屋脊不沉陷变形。
( 2)檐口瓦出檐一致,瓦头高度相同,檐头整齐平直。
屋面瓦瓦垅平直,与屋檐、屋脊互相垂直,瓦片搭盖疏密一致,瓦片无翘角和张口现象。
小青瓦屋面施工方案1. 概述本文档旨在介绍小青瓦屋面的施工方案,包括施工准备、施工流程、施工注意事项等内容,以确保施工质量和安全。
2. 施工准备在进行小青瓦屋面的施工前,需要进行以下准备工作:•瓦片采购:根据屋面面积和设计要求,购买足够的小青瓦瓦片。
•材料准备:除了瓦片外,还需要准备砂浆、瓦胶、水泥等施工所需材料。
•工具准备:准备好铲子、扳手、锤子、瓦刀等施工所需工具。
3. 施工流程步骤一:屋面清理和检查在施工前,需要对屋面进行清理,确保屋面干净平整。
清理过程中需要注意安全,避免意外伤害发生。
同时还需要对屋面进行全面检查,检查屋面是否存在破损或漏水等问题,如果有需要及时修补。
步骤二:瓦片布置1.选择合适的布瓦方式,根据设计要求进行布置。
2.在瓦片下面均匀涂抹一层瓦胶,确保瓦片与屋面之间有良好的粘结。
3.将瓦片放置在屋面上,用锤子轻轻敲打,使其与屋面紧密贴合。
4.依次摆放下一片瓦片,确保瓦片之间有适当的重叠和重合。
5.使用瓦刀进行修整,使瓦片与屋脊、檐口等部位完美贴合。
步骤三:瓦与瓦之间的填充1.使用砂浆将瓦与瓦之间的缝隙填充。
填充时需要注意使填缝材料填满缝隙,并用铲子将其压实。
2.填充完成后,使用湿布擦拭瓦面,确保干净整洁。
步骤四:屋面防水处理1.在瓦片布置完毕后,需要对屋面进行防水处理。
使用专业的防水材料,根据屋面材质进行涂抹或喷涂。
2.确保防水涂层均匀且完全覆盖屋面,以提供有效的防水保护。
步骤五:屋面保养在施工完成后,还需进行屋面的日常保养,包括定期检查屋面是否有破损或漏水,并及时进行修复。
4. 施工注意事项在施工过程中,需要注意以下事项:1.安全第一:施工人员应正确使用工具,佩戴安全帽和防滑鞋,在施工现场设置安全警示标志。
2.施工环境:施工过程中要确保屋面干燥、无尘、无积水,以保证施工质量。
3.瓦片质量:选择质量良好的小青瓦瓦片,避免使用瓦片出现变形、开裂等问题。
4.粘结牢固:瓦片与屋面之间需要确保有良好的粘结,不得有空鼓现象。
小青瓦屋面施工方案
小青瓦屋面施工方案
一、施工准备工作:
1. 确定施工区域,清理施工区域,确保施工区域没有杂物和垃圾。
2. 搭建施工脚手架,确保施工人员的安全。
3. 准备所需的施工材料和工具,包括小青瓦、瓦楞纸板、水泥、沙子、水泥浆、刷子、锤子、铁锹等。
二、小青瓦屋面施工步骤:
1. 打地基:在施工区域的四个角落挖坑,坑的深度为基地的
20厘米,宽度为基地的50厘米。
然后将水泥和沙子按照1:3
的比例混合,浇入坑中,用铁锹压实。
2. 安装瓦楞纸板:将瓦楞纸板按照一定的间距铺在打好的地基上,使用刷子刷上水泥浆,使其牢固地固定在地基上。
3. 安装小青瓦:将小青瓦沿着屋顶的边缘铺好,用刷子蘸取水泥浆,涂在瓦底上,使其牢固地贴在瓦楞纸板上。
然后再从屋顶的中心部位开始,依次将小青瓦铺满整个屋面,同样使用水泥浆固定。
4. 完善屋面:在小青瓦铺完后,用锤子轻敲小青瓦,使其更加紧密固定。
5. 做收尾:将施工区域清理干净,清除所有垃圾和杂物。
检查屋面是否有漏水的地方,如果有,及时修补。
三、安全注意事项:
1. 施工人员必须佩戴好安全帽和防滑鞋,确保自身安全。
2. 施工人员在施工过程中应遵守相关安全操作规范,严禁随意行走和爬坡。
3. 施工过程中严禁使用手机和吸烟,以免引发火灾。
4. 施工前应检查施工材料和工具是否完好,如有损坏或缺失,应及时更换或补充。
5. 施工过程中如遇恶劣天气,应暂停施工,确保施工人员的安全。
以上是一份小青瓦屋面施工方案,希望能对您有所帮助。
如有需要,可联系我们的施工队伍进行屋面施工。
第1篇一、施工准备1. 材料准备:青瓦、水泥、砂浆、砂子、钢筋等。
2. 工具准备:瓦刀、锤子、铁锹、水平尺、线锤、卷尺、抹子、切割机等。
3. 人员准备:瓦工、木工、电工、泥工等。
二、施工工艺流程1. 基层处理:对屋面基层进行检查,清除松散杂物、硬块等,确保基层平整、干净。
2. 找坡层施工:根据设计要求,在屋面基层上抹一层找坡层,厚度为20厚1:3水泥砂浆。
3. 找平层施工:在找坡层上抹一层找平层,厚度为10厚1:3水泥砂浆。
4. 铺设防水层:在找平层上铺设2厚911聚氨酯防水涂膜,遇墙上翻500高。
5. 钢筋混凝土现浇板:根据设计要求,在屋面结构层上浇筑钢筋混凝土现浇板,预埋钢筋。
6. 铺设保温层(如有):在钢筋混凝土现浇板上铺设保温隔热层,如挤塑聚苯板等。
7. 铺设找平层:在保温层上铺设20厚1:2.5水泥砂浆找平层。
8. 铺设青瓦:(1)确定屋脊样式:根据屋面形状确定屋脊样式,进行屋脊铺筑。
(2)铺筑屋脊瓦:在屋脊上铺设屋脊瓦,确保瓦片之间缝隙均匀。
(3)铺筑檐口瓦:从檐口开始,按照屋面坡度依次铺设檐口瓦。
(4)铺筑屋面瓦:从檐口向屋脊方向,按照屋面坡度依次铺设屋面瓦,确保瓦片之间缝隙均匀。
(5)粉饰山墙披水线:在山墙批水线上进行粉饰,保持美观。
9. 检查、清理:对施工过程中产生的垃圾、杂物等进行清理,确保屋面整洁。
三、施工注意事项1. 施工过程中,要注意安全,佩戴安全帽、手套等防护用品。
2. 铺设青瓦时,要确保瓦片之间缝隙均匀,防止雨水渗漏。
3. 铺设屋脊瓦时,要注意屋脊的稳定性,防止屋脊塌陷。
4. 铺设保温层时,要确保保温层厚度均匀,防止热量损失。
5. 施工过程中,要注意天气变化,避免在雨、雪等恶劣天气条件下施工。
6. 施工完成后,要对屋面进行验收,确保屋面质量符合设计要求。
四、施工质量控制1. 施工过程中,要对施工质量进行严格控制,确保屋面平整、美观。
2. 铺设青瓦时,要确保瓦片之间缝隙均匀,无破损、变形等现象。
小青瓦屋面施工方法首先,进行小青瓦屋面施工前要做好材料准备。
主要材料包括小青瓦、黄泥、木料和芦苇。
小青瓦是屋面的主要覆盖材料,要选择质地坚硬、色泽绿润的瓦块。
黄泥则用于固定瓦片,必须选择黄土含量高、质地粘稠的泥土。
木料用于搭建屋顶的支撑结构,必须选择材质坚固、耐久的木材。
芦苇是用于隔热、保温和排水的材料,必须选择干燥无虫的芦苇。
其次,进行小青瓦屋面施工时要进行底层构造。
首先需要修整屋顶,确保其平整无颗粒。
然后使用木材搭建屋顶的支撑结构,包括檩条和龙骨。
檩条是平行于屋面的主要支撑结构,龙骨则是与檩条垂直的次要支撑结构。
檩条和龙骨之间的距离一般为60-75厘米,根据屋面的大小和荷载来确定。
最后,在支撑结构上铺设木板作为瓦片和屋面之间的支撑。
然后,进行小青瓦屋面施工时要进行瓦片铺设。
首先,在屋面支撑结构上一层层铺设芦苇作为隔热层。
芦苇铺设时应该平整并紧密排列,以确保隔热效果。
然后,在芦苇上涂抹一层黄泥,让其完全浸湿。
接下来,将小青瓦一片片按照铺设顺序依次放置在黄泥上。
小青瓦的铺设要紧密和规整,并且要注意瓦片之间的重叠和覆盖。
在使黄泥固化之前,可以使用木锤轻敲瓦片以确保其紧密固定。
最后,进行小青瓦屋面施工后要进行维护保养。
小青瓦屋面一般需要定期检查和维护,以确保其完好和防水。
定期清理瓦面上的泥土和杂草,以免堵塞屋面的排水管道。
同时,定期检查瓦片是否破损或松动,并及时进行修补或固定。
另外,在施工后的几年内,可以在小青瓦上刮上一层黄泥以封闭瓦面孔隙,并增加防水效果。
综上所述,小青瓦屋面施工方法包括材料准备、底层构造、瓦片铺设和维护保养等。
合理的施工方法能够确保小青瓦屋面的稳固和保护,延长其使用寿命。
同时,小青瓦屋面的施工方法也需要根据具体情况进行调整和改进,以适应不同的屋顶结构和建筑需求。
第1篇一、前言小青瓦,又称阴阳瓦、蝴蝶瓦,是一种传统的建筑材料,具有悠久的历史和独特的艺术价值。
在古建筑中,小青瓦以其古朴、典雅、耐用的特点,成为建筑屋面装饰的重要材料。
本文将详细介绍小青瓦的施工程序,旨在为相关从业人员提供参考。
二、小青瓦施工程序1. 施工准备(1)材料准备:小青瓦、草泥、木椽条、铁钉、铁丝、石灰、沙子等。
(2)工具准备:瓦刀、铁锤、锯、墨斗、水平尺、线坠等。
(3)人员准备:瓦工、木工、电工等。
2. 施工工艺(1)屋面放样1)在苫背上弹线放样,放样程序为:分中—排瓦楞—号楞—挂楞线。
2)分中:首先找出正脊长度方向的中点,然后从两端博风外皮往里返两个瓦口宽度,并找出第二个瓦口的中点,即是边楞的底瓦中;再将这三个中点平移到前后檐的檐口上,并在前后檐口各钉好五个瓦口,最后在这些瓦口之间排瓦楞,钉好瓦口木,并将各垄盖瓦中点,号在正脊扎肩灰背上。
3)在两山面屋面上,首先量出开间方向前后坡屋面的边楞中点至翼角转角处的距离,以此距离在两山面屋面上的两边,定出山面屋面的边楞底瓦中点;然后找出山面屋面檐口的中点(即山面两边楞底瓦间的中点),按这三个中点钉好三个瓦口,并以这三个瓦口排瓦楞,最后将各楞盖瓦的中点,平移到上端山花板底部附近。
(2)排瓦楞1)先以中间和两边的底瓦为标准,分别在左右两个区域内排瓦口。
2)如果排出的结果无法凑成整数,则应适当调整豁间距的大小。
3)瓦口木可根据排出的瓦楞进行现场制作,然后将瓦口木钉在大连檐木上,瓦口木钉时应按连檐木外皮适当退进一点距离,一般为0.16~0.2椽径。
(3)号楞将各楞盖瓦的中点,平移到屋脊扎肩的灰背上,并做出标记。
(4)挂楞线首先按所定边楞位置进行铺灰,盖好两垄底瓦和一垄盖瓦,然后以边楞盖瓦楞上。
(5)革泥基层将草泥拌合均匀,自下而上前后两坡同时铺抹在荆笆或苇笆的底层上。
抹出的草泥坡面应基本平整,对过高或过低处应进行修整。
(6)木基层多指用木椽条,作基层。
峰峰矿区美丽乡村建设整区推进项目-金村青瓦屋面工程施工方案编制人员:审核人员:编制日期:青瓦屋面工程一、坡屋面概况本工程建筑总面积1131 m2 ,公厕、观景台、观景塔、古庙区廊架,结构形式为框架结构及砖混结构。
观景台、观景塔、三区廊架均为青瓦坡屋面。
一)屋面铺设青瓦的操作工艺流程铺瓦准备工作→基层检查→上瓦、堆放→铺筑屋脊瓦→铺檐口瓦、屋面瓦→山墙披水线→检查、清理。
二)铺设青瓦操作要点与铺设青瓦操作方法:1、铺挂青瓦操作方法铺挂青瓦的操作顺序与铺平瓦基本相同。
即从左往右、自下往上。
但因青瓦较薄易于破碎,为避免屋面铺好后再去铺盖屋脊瓦时会将瓦片踩破,因而在铺挂屋面瓦之前要先将脊瓦做好。
(1)做屋脊。
做青瓦屋脊一般有三种方法:①象作平瓦屋脊一样,将瓦一皮一皮地从一个山头铺筑到另一个山头;②将瓦片斜成一定的角度并挤紧,由山头向中间筑脊;③先在两山头各平放一叠瓦封头。
具体做脊时,一般先在靠近屋脊两边的坡屋面上先铺筑5-6张仰瓦或俯瓦作为分垅的标准,并用草泥或屋脊底部,冯接着铺盖脊瓦。
屋脊筑完后用混合砂浆或纸筋灰将脊背及瓦垅的缝堵塞密实、压紧抹光。
(2)铺挂檐口瓦和屋面瓦。
檐口瓦要挑选外形整齐、质量好的瓦进行铺挂。
檐口第一皮瓦挑出檐口的长度不得少于50mm,檐口瓦垅必须与屋脊瓦垅上下对直,以利排水。
檐口仰瓦相邻的空隙要用砂浆和碎瓦片填塞稳后再盖2-3张俯瓦。
檐口处第一张仰瓦应抬高20~30mm,以防俯瓦下滑。
铺屋面瓦时,应先顺斜坡拉线,再从檐口开始,自下往上一垅一垅地进行铺挂。
铺瓦要求“一搭三或压二露三”,即要求瓦面上下搭接2/3。
俯仰瓦屋面的相邻两垅俯瓦和仰瓦的边之间要搭接40mm。
铺俯仰瓦时,应先铺两垅仰瓦,并在其两垅仰瓦之间空隙处用灰浆塞垫稳后再铺俯瓦。
若铺仰瓦屋面,则要在每两垅瓦之间空隙处用灰泥堵塞饱满后,用麻刀灰做出灰埂,并在灰埂上涂刷一屋与瓦颜色相近的灰浆,再抹压圆直。
若是不做灰埂的仰瓦屋面应挑选外形整齐一致的青瓦铺挂,且要求边缘必须咬接紧密,坐浆饱满,铺挂密实稳牢。
古建筑之小青瓦的屋面铺设小青瓦又称蝴蝶瓦,是阴阳瓦的一种,在我国的古建筑瓦屋面工程中应用已久,它的铺法有仰瓦屋面和阴阳瓦屋面两种。
其中仰瓦屋面又分有灰埂和无灰埂的两种,但铺法比阴阳瓦屋面要简单。
摄影:fy一、基层施工1.革泥基层。
将草泥拌合均匀,自下而上前后两坡同时铺抹在荆笆或苇笆的底层上。
抹出的草泥坡面应基本平整,对过高或过低处应进行修整。
2.木基层。
多指用木椽条,作基层。
木椽条的截面为40mm×70mm,平直地钉在镍条上。
木椽条的长度不准小于两镍条的间距。
接头部位采用斜口。
在一根镍条上左有相邻的有接头的木椽不准连续超过3根。
椽与镍条交接处都必须用钉子钉牢。
椽条的间距大小要按小青瓦的尺寸确定(一般为小青瓦小头宽度的4/5),椽条与椽条之间的距离要相等。
二、铺瓦前的准备1.运瓦。
小青瓦较薄,极易破损,运瓦时要稳拿、轻放。
堆放地点应靠近建筑物,小青瓦堆垛时应立放成条形或圆形,层高以5~6层为宜。
不同规格的小青瓦应分别堆垛。
往屋面上运瓦时尽量使用提升设备送到脚手架。
然后人搬运至屋面。
瓦在屋面上堆放应根据铺瓦要求选好地点,同时要前后两坡同方向堆放。
在运瓦过程中应特别注意防止瓦的损坏与施工人员的安全。
在运瓦过程中,若发现有砂眼和小裂缝的瓦要择出来,用清泥浆水浆洗一下,堵住其孔眼和裂纹后再用,可提高瓦本身的抗渗漏性能。
2.摆瓦。
小青瓦摆放在棋条上应均匀有序,靠屋脊处可多摆放一些,以备作屋脊用。
摆瓦时不准将阴阳瓦混合堆放。
三、屋脊为避免将屋面铺好的小瓦踩碎,屋面瓦铺前要先将屋脊做好。
屋脊的做法一般有两种:1.普通小青瓦屋脊。
这种屋脊又称为游脊。
形式有人字脊(平瓦作脊瓦)、直脊(小青瓦平铺在屋脊上或竖直排列在屋脊上,两端各叠一垛,作为小瓦排列时的靠山)与斜脊(小瓦斜立在屋脊上,可左右与中间对称排列)等几种。
这种屋脊的构造简单,软边楞、无纹头。
2.纹头高脊。
纹头高脊的屋顶为硬边楞。
硬边楞的做法就是在山墙处盖瓦,只盖一皮。
坡屋面小青瓦施工
1、一般是先做屋脊,再铺盖屋面,同时做屋面泛水,最后做瓦头粉饰。
2、在基层上铺设泥背时,前后坡应自下而上同时进行,并至少分两层铺抹。
第一层铺抹后特其略徽干燥,再铺抹第二层。
3、屋面上瓦应前后两坡同时进行。
并隔沟堆放,以防止滑动。
做屋脊前,应在靠近屋脊两边的坡面上先铺5~6张仰瓦及俯瓦,作为瓦垅划分的标准,并宜拉通长麻线。
以求平直。
脊瓦底部用碎瓦片和砂浆将分垅的瓦垅垫平。
脊瓦铺完后,脊瓦底部与瓦垅的空隙需用1:1:4水泥石灰砂浆加1.5% 麻刀堵塞密实,并压紧抹光。
也可将整个屋脊用麻刀青灰浆粉面+再用青灰水涂刷I~2道与青瓦色调一致。
4、檐口瓦应挑选外形整齐、质量较好的小青瓦,挑出檐口宜为50毫米。
檐口瓦的盖瓦应抬高30~80毫米(俗称“望檐 ),以防盖瓦下滑。
檐口瓦楞必须与屋脊瓦楞上下对直,切勿歪斜,以利排水。
5、铺屋面瓦一般自檐口开始,自下而上,一垅一垅地铺盖,排垅必须上下均匀,前后对正。
一般要求瓦面上下搭接三分之二,俗称“一搭三”,每铺完一垅,用2米或更长一些的直尺(杆)将瓦楞和瓦面校直。
俯仰瓦屋面的俯瓦搭盖仲瓦的宽度每边应为40~60毫米;铺仰瓦屋面时,两垅仲瓦之间的空隙应用草泥垫实,然后用麻刀灰做出灰埂,再在灰埂上涂刷青灰浆,并抹压圆直光滑。
如不做灰埂,应挑选外形整齐一致的青瓦,瓦垅边缘应相互咬接紧密,瓦应坐灰饱满、
牢靠。
6、山墙上面瓦的挑出部分宜为瓦宽的1/2,瓦垅侧面应校直。
7、质量要求
(1)屋脊平直,脊瓦底部垫塞平稳,坐灰饱满,屋脊不沉陷变形。
(2)檐口瓦出檐一致,瓦头高度相同,檐头整齐平直。
屋面瓦瓦垅平直,与屋檐、屋脊互相垂直,瓦片搭盖疏密一致,瓦片无翘角和张口现象。