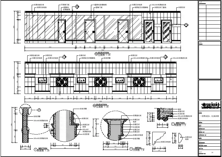
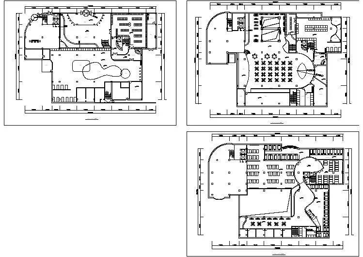
卫生间}接待大厅}员工休息间}桑拿房}冲浪浴}温水}冷水}搓背区}二次更衣区}更衣区}换鞋区}存鞋处}接待台}59000440078007800780078007800330045007800洗浴中心一层平面 1:100}洗浴中心二层平面 1:100}78004500330078007800780078007800440059000酒水区}更衣区}二次更衣区}桑拿房}水景}小服务台}小服务台}足疗厅}59000440078007800780078007800330045007800洗浴中心三层平面 1:100}休息大厅}小服务台}玫瑰池}温水池}盐浴池}淋浴区}女火浴区}男火浴区}男洗手间}梳妆台}女洗手间}厨房}音响室}舞台}机房}消防监控}淋浴区}淋浴区}搓背区}煤气房}自助餐餐台}疏散楼梯}酒吧区}贵宾休息区}贵宾休息区}影视厅}酒吧区}服务员休息室}竹池}男洗手间}女洗手间}7.6007.9008.2000.000-0.1000.0200.0200.2500.3500.0203.8003.9003.9003.9004.0004.0003.8005.0004.2007.6000.2000.3004.1004.4004.7007.6007.9007.6007.6007.6005000780059000800012000300050005800500038800R150015001500600R150078007800780033004500780050003880050005800800012000300045005900045005900078005005004400388008000120003000500058005000780050005800500030001200080007800388007800780044007800780033007800R4397,24R7923,177800780078007800440033007800150050003880038800中国专业人士的网络家园;因为专业,所以完美市场部:ivpmarket@ 技术部:ivptech@网易 NetEase电气在线 编辑部:ivpinfo@==中国专业人士的网络家园;因为专业,所以完美市场部:ivpmarket@ 技术部:ivptech@网易电气在线电气设计信息网 编辑部:ivpinfo@==中国专业人士的网络家园;因为专业,所以完美市场部:ivpmarket@ 技术部:ivptech@网易土木在线电气设计信息网 编辑部:ivpinfo@==中国电气行业网络家园;因为专业,所以完美市场部:ivpmarket@ 技术部:ivptech@网易 NETEASE 网易-电气 编辑部:ivpinfo@==中国电气行业网络家园;因为专业,所以完美市场部:ivpmarket@ 技术部:ivptech@网易 NETEASE 网易-图纸由浩辰ICAD软件提供技术支持网易 电气 中国电气行业网络家园;因为专业,所以完美网易 NETEASE ==编辑部:ivpinfo@本图纸由浩辰ICAD软件提供技术支持中国建筑行业网络家园;因为专业,所以完美网易 建筑 网易 NETEASE ==800012000300050005800300012000800058005000