麻沙中国书香小镇旅游发展概念性规划
- 格式:pdf
- 大小:32.71 MB
- 文档页数:81
旅游小镇项目实施方案一、项目背景。
随着人们生活水平的提高和旅游消费需求的增加,旅游业已成为我国国民经济的重要组成部分。
为了满足人们对休闲度假的需求,促进地方经济发展,我们计划在某地打造一个特色鲜明、设施完善、环境优美的旅游小镇,为游客提供独特的旅游体验。
二、项目目标。
1. 打造独特的文化特色,通过挖掘当地的历史文化和民俗风情,打造具有地方特色的旅游小镇,吸引游客。
2. 提供丰富的旅游产品,结合当地的自然资源和人文景观,开发多样化的旅游产品,满足不同游客的需求。
3. 促进地方经济发展,通过旅游业的发展,带动当地农副产品销售、餐饮业发展等,促进地方经济的繁荣。
三、项目实施方案。
1. 规划设计阶段。
在规划设计阶段,我们将邀请专业的规划设计团队,对旅游小镇的整体规划和设计进行深入研究。
在尊重当地文化和自然环境的基础上,制定合理的规划方案,确保旅游小镇的整体布局合理、景观优美。
2. 基础设施建设阶段。
在基础设施建设阶段,我们将注重旅游小镇的基础设施建设,包括道路、照明、供水、排水等设施的建设,以及停车场、公共厕所等配套设施的完善。
同时,还将建设旅游服务中心、旅游信息咨询点等,为游客提供便利的服务。
3. 旅游产品开发阶段。
在旅游产品开发阶段,我们将结合当地的自然资源和人文景观,开发多样化的旅游产品,如乡村游、民俗体验、生态旅游等,满足游客的不同需求。
同时,还将引进特色餐饮、手工艺品等产品,丰富旅游小镇的产品线。
4. 宣传推广阶段。
在宣传推广阶段,我们将采取多种方式,如互联网、社交媒体、旅游展会等,进行广泛的宣传推广,吸引游客关注和参与。
同时,还将与旅行社、OTA平台等合作,扩大旅游小镇的知名度和影响力。
四、项目效益。
1. 带动地方经济发展,旅游业的发展将带动当地农副产品销售、餐饮业发展等,促进地方经济的繁荣。
2. 提升当地形象,打造特色鲜明、设施完善、环境优美的旅游小镇,将提升当地的形象和知名度,有利于吸引更多游客。
目录一、项目背景研究二、项目场地分析三、项目定位与设计理念四、整体规划设计五、专项规划设计一、项目背景研究01 旅游发展宏观态势02 区域游乐项目发展现状01 旅游发展宏观态势:内循环与结构性供给不足1. 生命保卫2. 生计恢复3.生活恢复4.生态修复严格防控:保护生命安全确保身体健康基础复工复产:金融、基建、能源、房地产、生产性服务业等交流与休闲:商贸、文化、休闲、娱乐、旅游等修复振兴:人心理、自然伦理、经济社会秩序旅游恢复阶段:•全面停滞•启动恢复期(下半年-明年上半年)•基本恢复期(明年下半年)•全面恢复期(2022年)•当前,我们处于在“外防输入、内防反弹”的防控策略上,有序加大复工复产到加快复商复游复学的阶段。
•根据WTTC世界旅游及旅行理事会的评估,重大疫情需要19.4个月的恢复期,所以恢复期是一个漫长的过程。
受访者会“很快”出游的意愿受访者想要出游时间段(1)疫情下的社会经济恢复01 旅游发展宏观态势旅游经济国内大循环转变方式一、生活新方式的重构。
消费者更青睐健康、生态、绿色的生活新方式。
二、消费新常态的凸显。
微度假:短距离、高频次的休闲度假新生活开启;轻旅行:轻快、轻松、轻便的绿色出行新方式开始;“宅经济”已经在逐步形成在线消费新常态。
三、出行新方向的变化。
“自助、周边、家庭”的出行方式未来将成为大众出行的主流方向。
四、服务新体验的变革。
从智能化、预约制到非接触的旅行,不段有新的服务变革。
出境游受阻的情况下,国内旅游市场中的周边游将迸充满较大的商业机会!由外转内已经成为旅游生产和消费的必然路径。
先是在两会期间首次提出要:“逐步形成以国内大循环为主体、国内国际双循环相互促进的新发展格局,培育新形势下我国参与国际合作和竞争新优势。
”然后在7月21日召开的企业家座谈会上,再次强调:“在当前保护主义上升、世界经济低迷、全球市场萎缩的外部环境下,我们必须集中力量办好自己的事,充分发挥国内超大规模市场优势,逐步形成以国内大循环为主体、国内国际双循环相互促进的新发展格局。
小镇文化旅游规划实施方案一、背景分析。
小镇是中国传统文化的重要载体,具有丰富的历史文化底蕴和独特的地域特色。
随着旅游业的发展,小镇文化旅游成为了热门的旅游目的地。
然而,目前许多小镇在文化旅游方面存在着规划不足、开发不够、服务不完善等问题,需要制定有效的实施方案,推动小镇文化旅游的发展。
二、目标确定。
1. 保护文化遗产,加强对小镇历史文化遗产的保护,传承和弘扬中华优秀传统文化。
2. 促进旅游开发,充分挖掘小镇的地域文化资源,打造具有特色的文化旅游产品。
3. 提升服务水平,优化旅游服务设施,提升游客的体验感和满意度。
三、实施方案。
1. 加强文化遗产保护。
设立专门的文化遗产保护机构,加强对历史建筑、古迹等文化遗产的保护和修缮工作。
开展文化遗产宣传教育活动,增强居民和游客对文化遗产的认知和重视程度。
2. 挖掘地域文化资源。
开展地域文化调研,深入挖掘小镇的历史、传统、民俗等文化资源。
开发具有地域特色的文化体验项目,如民俗表演、手工艺制作等,丰富游客的文化体验。
3. 完善旅游服务设施。
建设完善的旅游接待中心,提供游客咨询、导览、购物等服务。
完善交通、餐饮、住宿等配套设施,提升游客的旅游体验。
四、实施步骤。
1. 制定详细的实施计划,包括文化遗产保护方案、地域文化资源开发方案、旅游服务设施建设方案等。
2. 组织专业团队进行实施,包括文物保护专家、地域文化研究人员、旅游规划师等。
3. 加强宣传推广,提升小镇文化旅游的知名度和美誉度,吸引更多游客前来参观游玩。
五、预期效果。
1. 文化遗产得到有效保护,小镇的历史文化价值得到彰显。
2. 地域文化资源得到充分挖掘和利用,小镇文化旅游产品更加丰富多样。
3. 旅游服务设施得到提升,游客的满意度和回头率明显提高。
六、总结。
通过本实施方案的实施,相信能够有效推动小镇文化旅游的发展,提升小镇的整体形象和吸引力,为当地经济发展和文化传承做出积极贡献。
希望相关部门和各界人士能够共同努力,落实好这一方案,让小镇文化旅游更加璀璨夺目。
基金项目:2017年度教育部人文社会科学研究规划基金项目 大城小镇 协同发展影响因素与路径实证研究 以浙江特色小镇建设为例 (17YJA630145);2018年度浙江省哲学社会科学规划课题 浙江产业集聚型特色小镇协同城市经济发展要素分析与路径研究 (18NDJC219YB )的研究成果㊂作者简介:朱伯伦(1968-),男,汉族,上海人,硕士,浙江机电职业技术学院数字商贸学院副院长,教授,主要从事区域经济㊁教育研究㊂特色小镇产业形态协同发展路径研究基于浙江模式的实证朱伯伦(浙江机电职业技术学院,浙江杭州310053)摘㊀要:特色小镇作为区域创新发展的增长极,核心是特色产业形态的打造㊂本文以产业形态内外协同发展为研究切入点,基于浙江模式进行实证研究,厘清产业形态协同发展现状和影响因素的作用,提炼小镇产业形态协同发展水平关键因子,并从产业定位选择㊁产业形态规划㊁产业生态构建㊁产业功能聚合等多维角度探究提升产业形态协同发展水平的有效路径,为实现小镇产业形态从 名与形 到 神与魂 的蜕变和特色小镇健康发展提供有益借鉴㊂关键词:特色小镇;产业形态;协同发展;功能聚合中图分类号:F2㊀㊀㊀㊀㊀文献标识码:A㊀㊀㊀㊀㊀㊀doi:10.19311/ki.1672-3198.2022.22.0091㊀问题的提出特色小镇作为 区域创新创业发展平台 的定位,不是 建制镇 或 开发区 的概念,而是在3平方公里左右的土地上,基于 特+强 的产业立足市场,凭借 聚合 的功能+ 新活 的机制润滑产业的运行,依托 精+美 的形态呈现人文蓄积,以此打造带动区域经济供给侧改革㊁产业转型升级的高地㊂作为突破区域经济发展资源瓶颈和供给侧结构性调整的重要抓手,浙江特色小镇在政㊁企㊁媒等多层面用力与聚焦下,勾画了区域经济发展有影响力的特色符号㊂目前浙江106个省级 特色小镇 的建设初显 产(特色产业定位)㊁城(城市化功能)㊁人(人才聚集)㊁文(文化底蕴) 为 核心 的特征,实现了对原有 块状经济 低㊁小㊁散 发展模式 成长的蜕变 ,成为区域经济发展的增长极,由此而形成的 特色小镇 发展范式,在全国引领了 小镇 建设热潮,但 成长中的烦恼 接踵而来,政府过度举债㊁建设房地产化等风险日渐显现,各地小镇建设在概念定位㊁发展方式㊁市场化运作等方面的问题已制约了小镇成为 产业创新发展 的有效载体㊂就小镇建设现状而言,浙江存在四方面典型问题: 规划的科学性㊁定位的特色性㊁活力的鲜明性㊁发展的协同性 ㊂至2017年,全省只有 余杭梦想小镇 和 玉皇山南基金小镇 通过了建设整体验收㊂究其根本,是小镇产业形态的定位问题㊂小镇核心价值是在于 特色产业形态 的构筑,尤其是适应于供给侧结构性调整需要的新兴产业形态的形成对于中心城市以及整个区域经济转型升级的撬动意义重大,比如杭州在小镇产业布局上紧扣 十三五 着力发展的八大战略新兴产业,其中高端装备制造㊁信息经济占比55.4%㊂就已有研究而言,王国平认为产业形态作为产业存在与发展的外部形式,动态地作用于产业发展,其成长规律与产业升级密切相关㊂陈东强认为某地的价值形态㊁使用形态㊁知识形态等12个细分产业形态决定了该地的竞争地位㊂已有研究定性透视了 产业形态 的内涵,鲜有实证研究案例;本文定量与定性相结合,依托数理建模,从 内部协同 和 外部协同 层面透视小镇 产业形态 现状,厘清影响因素的作用,寻求提升发展水平关键因子,对打造特色小镇2.0版内核,实现产业蜕变,更好冀望 十四五 有重要意义㊂2㊀小镇主导产业现状与问题2.1㊀产业集聚态势初显,发展不平衡,市场创新驱动力亟待提升小镇作为产业大平台,要求以全产业链思维做深主导特色产业,不断提升产业集聚度㊂以杭州为例,至2017年上半年,信息经济类小镇和高端装备制造类小镇投入产出比分别达到了1ʒ3.6和1ʒ2.8,是深耕特色产业发展的结果㊂以 玉皇山南基金小镇 为典型,其基于投资㊁证券等完整的产业内运营链的打造,短时间内全产业链快速集聚,初步完成产业集聚㊂从小镇特色产业投资占比数据看,在建小镇的特色产业投资占比低于70%小镇有39个,占比低于50%小镇有21个,占比低于20%小镇有7个,这与浙江省提出的 特色产业投资占比不低于70% 的目标存在差距,也显示小镇间产业发展不平衡㊂一是由于政府作为主要推手引导了社会力量投入小镇特色产业的建设,但 企业主体 作用的发挥和 市场化 运作机制的成效不足;二是社会资本的有效投入度不高,数据显示,民营资本投入占小镇总投资的比重要低于全省固定资产投资中民营资本投入占比近10个百分点,一方面说明市场资源持续调动不充分,另一方面也反映了市场对小镇特色产业市场发展价值认同不够㊂2.2㊀产业选择与规划的科学性有待提升通过审视杭州44个小镇概念规划㊁核心区设计㊁ 规控 规划三类规划情况㊂结果显示(图1),(1)近六成小镇进行了概念性规划,对小镇总体功能㊁项目进行了布局,但内涵差异大,部分小镇仅以范围图㊁项目分布图的形式呈现,缺少较为系统深入基于产业㊁空间研究基础上形成的概念性规划;(2)仅四分之一的小镇进行了核心区设计,已有的规划设计多把核心区块的打造视同小镇主导产业项目的建设,未将 产城人文 四位一体㊁ 生产㊁生活㊁生态 三生融合的理念融入核心区块设计中去;(3)近八成小镇未与 浙江省特色小镇创建导则 进行对接,使得特色产业投入占比指标的控制具体目标与措施不明确㊂总体上,由于小镇多种规划并行,客观上增加了小镇科学规划的难度,规划编制涉及 发改委 和 规划局 下属研究所㊁高校等多元主体,由此产生两方面问题,一是多元主体协同效率欠佳;二是规划能力短板明显,产业研究机构很难将社区㊁文旅功能加以整合,而传统的空间功能规划机构也缺乏将产业功能与其他功能进行融合的足够能力,可能只得将已有功能区进行生硬地拼凑,缺乏小镇功能聚合整体协调感㊂图1㊀杭州特色小镇产业规划概况3㊀特色小镇产业形态协同发展实证分析3.1㊀研究路径本文以 特色小镇产业形态协同发展评价指标体系 为研究基础㊂以 产业形态协同发展影响因素 为一级指标,反映 内部联动 的 产业运行状态 产业活动质态 产业聚集及融合 和 外部联动 的 城镇协同 为二级指标,并相应设计三级指标㊂3.2㊀实证数据实证数据来源于杭州九个典型特色小镇的实地调查,从 入驻企业员工 和 小镇管理层 两个视角进行组卷,涉及高端装备制造㊁信息经济㊁金融㊁文创㊁健康㊁时尚等产业形态布局,紧扣浙江省重点发展的新兴产业,以全面审视小镇产业形态协同发展状态㊂经对数据信度和效度检验,Alpha 系数和KMO 值均大于0.8,体现较好的信度和效度㊂3.3㊀小镇产业运行指标对产业形态协同发展形成的差异性影响本文以 指标体系 中三级指标变量为控制变量,从两个视角,运用方差分析,检验控制变量对小镇产业形态协同发展水平的差异性影响㊂结果显示, 入驻企业员工 视角下, 企业规模㊁同类企业协同度㊁投入产出效率㊁协同主城发展 等变量产生 显著性影响 ; 小镇管理层 视角下, 区位优势㊁上下游协同度㊁企业培育体系㊁企业运营支持体系㊁产业功能布局㊁资源循环效率㊁协同主城发展 等变量产生 显著性影响 ㊂进一步通过 交叉分析 解析 显著差异性 的内涵,结果如下㊂(1) 企业员工视角 交叉分析㊂ 同类企业协同度 投入产出效率 协同主城产业发展 与 产业形态协同发展水平 存在较强正向联动关系㊂表明,一是从内在联动看,以同类企业集聚效应营造产业生态,对小镇产业活动质态作用明显;二是从外部联动看,企业投入产出效率的高低直接与产业能否对接市场需求直接相关联,小镇的产业定位只有较好把握新兴业态的发展方向,才能助推供给侧结构性改革,与区域产业发展的布局相协同㊂(2) 小镇管理层视角 交叉分析㊂ 区位优势 上下游协同度 培育与运营支撑体系 资源循环效率产业多功能布局 协同主城产业发展 等变量与 产业形态协同发展水平 存在较强正向联动关系㊂表明,从内部协同角度,一要注重从企业 入驻培育 到 运营 各环节服务体系的整体打造;二要促进资金㊁人才㊁信息㊁服务等要素在小镇内自我循环的效率提升,体现功能聚合效应;三要推进上下游企业间有机衔接,在研发㊁融资㊁制造㊁ 互联网+ 等围绕主导产业进行多功能布局,夯实产业生态的内涵㊂从外部协同角度,依托区位优势,强化城 镇 协同是重要的关注点㊂综合看,小镇产业形态协同发展水平关注的焦点,内部协同涉及产业链生态多维营造㊁企业服务支持体系打造㊁资源要素的镇内循环效率的提升等;外部协同涉及产业形态协同区域发展整体布局㊂3.4㊀评价指标影响分析(1)对 产业运行状态 的影响 产业功能特色 影响最大, 经济形态 有相当的作用㊂以所有制形态㊁管理模式㊁产业功能特色㊁经济形态为自变量, 产业运行状态 为因变量,进行回归分析,得到回归方程:产业运行状态=2.788-0.148∗管理模式+0.059∗经济形态+0.136∗产业功能特色表明,第一,产业运行状态受到产业功能特色影响最大,其次是经济形态的影响㊂数据显示,超六成受访者对小镇产业功能特色有较高评价,但也有三成受访者认为所在小镇产业功能特色表现 一般 ㊂说明,小镇产业特色还需进一步凝练与塑造㊂有关 经济形态 数据显示,小镇四成企业为技术背景实体经济,实虚结合经济形态成为不可忽视的趋势,反映了 高技术+ 互联网+ 文化+ 对小镇的产业形态存在的影响㊂第二,管理模式上 企业 对产业运行主体作用欠缺,相应的 市场化 水平也需提升㊂(2)对 产业活动质态 的影响 服务体系支持影响大,产业链生态作用初显㊂以 产业活动质态 为因变量的回归方程:产业活动质态=0.135-0.007∗区位条件+0.047∗水平关联+0.021∗上下游关联+0.185∗金融支持+0.203∗运营支持+0.183∗政策支持+0.141∗企业资源禀赋+0.16∗投入产出率显示,第一,与小镇运营服务体系相关的支持因素(金融㊁运营㊁政策)对产业活动质态影响明显;第二,与产业链生态相关的企业水平关联㊁纵向关联等因素产生的影响不够大,频数显示,受访者对小镇产业生态有较高评价占五成到六成,表明小镇产业链生态已初显,但仍任重道远;第三,小镇的区位条件对小镇的产业活动质态的提升文章没有做好㊂(3)对 产业聚集与融合力 的影响 运行资源良性循环,创新驱动吸力大,多功能布局待加强㊂以 产业聚集及融合力 为因变量的回归方程:产业聚集与融合力=0.781+0.042∗市场需求+0.064∗品牌效应+0.089∗龙头企业+0.107∗软硬设施+0.044∗产业功能布局+0.227∗运行资源循环+0.182∗创新驱动表明,小镇产业集聚及融合力受到资金㊁人才㊁信息㊁服务等运行资源的良性循环影响最大,小镇创新驱动与软硬设施的吸引力也对产业聚集与融合起到明显作用,但在引导市场新兴需求㊁品牌效应传播,特别是在产业多元功能布局方面发挥作用还不够明显,数据显示,五成多的受访者对小镇在研发㊁融资㊁制造㊁ 互联网+ 等多功能内涵体现方面有较高评价,从企业所在产业链环节看,设计和研发㊁销售㊁服务㊁策划㊁加工等初步呈梯度分布,对良好产业生态营造尚需努力㊂(4)对城 镇 协同发展的影响 协同主城㊁区域发展作用明显,新业态发展动力需提升㊂以城 镇 协同发展为因变量回归方程:城 镇 协同发展=0.553+0.132∗协同新兴业态+0.246∗协同主城发展+0.443∗互补区域发展表明,小镇在互补区域发展方面对城 镇 协同发展产生的影响最大,协同主城发展也起到相当的作用,在协同新兴业态发展方面作用还需提升,频数显示,六成多受访者认为小镇产业形态能产生引领作用仅占比三成多㊂3.5㊀ 小镇产业形态协同发展 关键因子结构分析基于因子分析厘清小镇产业形态协同发展关键要素,形成 特色小镇产业形态协同发展关键因子归类 ㊂主成分分析结果显示,两个视角下,各有5个公因子可解释全部变量73%和75%的信息;进一步通过成分旋转矩阵,归类命名公因子,形成 关键因子结构 ,为评价㊁提升特色小镇协同发展水平提供了实证研究结论㊂内部协同关键环节包括经济形态协同㊁功能形态协同㊁所有制形态协同㊁资源禀赋与产业链生态协同㊁产业功能规划与运营体系创新协同;外部协同关键环节包括新兴业态协同㊁产业对接协同㊁市场协同㊂4㊀提升产业形态协同发展水平的路径与对策思考4.1㊀围绕 特色 ,做好小镇产业发展目标和定位的文章4.1.1㊀产业发展目标呈现 多彩多姿小镇整体发展目标应以打造产业聚集㊁创新创业㊁生态宜居㊁文化传承 四大高地 为目标,核心是以产业形态为引领,对接 十四五 期间浙江省经济转型升级重点发展的产业㊂以高端装备制造业为例,应明确发展智能装备制造㊁高科技研发㊁互联网+服务等为一体的 硬+软 产业集群,将打造迈向工业4.0的高端智造小镇作为发展目标㊂一是体现对接智能制造新兴业态的发展;二是体现产业形态多功能布局,制造㊁设计㊁研发等 硬+软 产业协同发展关联的环节;三是体现多元产业形态的融合,数字服务融入小镇产业发展运营体系,提供价值增值㊂如杭州跨贸小镇依托浙江省物流大信息平台为整个小镇商流运行提供实时服务, 行业大数据 全方位融入小镇产业服务,根本性地提升了小镇产业对接市场的 精准性 ㊂4.1.2㊀产业发展定位要突出 特+强 ,内外协同发展(1)以 智能制造+产业项目 协同融合为特攻方向,打造产业集聚高地,走 高端化 品牌化 之路㊂一是品质层次高㊂突出绿色㊁节能等环境友好的产品特色,发展个性化定制,提升敏捷制造能力,做精品㊁做体验㊁做响小镇品牌㊂二是品牌知名度高㊂首先,结合产业已有优势,与行业龙头企业合作,可涉及产品设计㊁制造㊁制造服务等多环节进行针对性合作,力求产生 1+1>2 的效应,突破一点,借势而上㊂再者,携手主流企业打造行业网上展示交易中心,运用信息化手段深耕产业链垂直细分领域,建立完善的020运营体系,为交易中心实现规模化㊁信息化保驾护航,提升小镇行业影响力㊂三是行业成长性高㊂重点培育高科技研发㊁智能装备制造㊁数字服务等新兴产业集群,力争行业年产值增幅20%以上,拥有行业龙头企业若干家㊂(2) 生活生态+产业项目 协同融合,打造生态宜居福地㊂一是注重人本理念㊂规划建设快捷立体交通接口,完善综合服务体系,吸引人才集聚㊂二是注重生态环保,打造富有特色的生态风光带㊂三是注重景观融合,融入产业元素,以文化精粹引领小镇特色产业走出去㊂(3) 孵化培育服务+产业项目 协同融合,打造创新产业基地㊂一是技术研发服务载体㊂以科技企业孵化器为载体做强小镇产业公共技术服务平台,协同整个小镇产业的发展㊂二是产业孵化服务载体㊂搭建创客空间,为高端人才㊁企业入驻提供一站式服务㊂4.2㊀以 产业形态功能多元化 和 产业链生态 为抓手,做好小镇 产业大平台 规划,提升产业集聚度4.2.1㊀产业形态功能多元聚集(1)产业形态功能研究与空间模式需求㊂产业功能研究是小镇规划的前提,其重点在于将产业内容和行业需求转化为空间需求㊂同时,要明确创新与融合是小镇建设的重要特点,规划应关注由产业升级和创新要素集聚而带来的创新类空间组织模式问题㊁新的产业服务功能选择与培育问题,创新要素与本土文化㊁资源禀赋要素结合问题㊂如云谷小镇,产业定位为 围绕云计算㊁大数据 ,规划中通过对小镇核心产业和上下游产业内容㊁主要产业规模比例等研究分析,得出未来所需各项产业办公面积㊁核心产业人口和大生态圈相关产业人口等指标数据,作为小镇空间布局的规划的重要依据㊂(2)文化空间协同小镇特色形象打造㊂文化空间构想和小镇特色形象打造是规划 灵魂 ㊂小镇既是产业功能平台,又要符合 小而精 的建设要求㊂发挥产业㊁文化与旅游功能叠加效应,推进协同融合发展,是小镇规划的重要原则㊂如梦想小镇的规划展现信息经济时代城市与乡村的共生关系,以 田园环 为纽带构建居住环㊁办公环,形成小镇圈层结构,成为独具特色的互联网创业社区㊂(3) 市场化 + 数字化 手段提升小镇服务效能和社区功能㊂① 市场化 手段提升企业活力,完善社区功能㊂数据表明,大部分小镇管理的主体还是政府为主,小镇最终需要通过企业为主体的 市场化 行为来立足市场㊂因此,落地 政府主导㊁企业主体 是解决上述问题的有效路径㊂例如,梦想小镇园区管委会从园区的主导方转变为 店小二 式的服务方,将政府办园转变为企业办园,政府引进成熟孵化器企业,这样的创新产业运作模式更具面向市场的竞争力㊂② 数字化 手段提升服务效能㊂小镇服务效能的提升要充分依托 数字化 ,多平台交互实现一站式服务㊁多政合一,依托平台围绕 产城人文 核心要素打造全方位服务体系,降低企业资金成本㊁时间成本和精神成本㊂4.2.2㊀多维交互协同创新产业生态构建(1)主导产业纵向延伸与扩张㊂特色产业的纵向扩张,由生产环节向研发㊁设计㊁物流㊁营销㊁服务方案纵向扩张,打通产业上下游,以合力形成聚合效应,比如研发㊁设计生产环节的联动不仅会提升小镇产业运营效率,更能提升小镇主导产业在行业㊁市场中的地位㊂(2)主导产业横向延伸与扩张㊂小镇通过产业横向扩张,嫁接新元素,形成传统产业发展的新概念,注重 数字+ 文化+ 对小镇的产业形态的融入,以创新小镇产业链生态的营造,对浙江传统块状经济产业的转型尤显意义㊂例如,巧克力甜蜜小镇,基于传统巧克力生产,嫁接二产与三产,形成 甜蜜+ 产业形态,把 甜蜜 基因植入产业发展和延伸全过程,概念创新驱动下催生的巧克力文化 甜蜜 产业形态,对单纯制造进行了有效的横向延伸,焕发了崭新的市场活力㊂作者简介:郭松霞(1980-),女,汉族,河南新郑人,本科,研究方向:海外稀土及发光材料市场的销售㊁稀土磁性材料和原辅材料的采销业务㊂㊀㊀(3)主导产业网状延伸与扩张㊂将科技链㊁价值链㊁服务链㊁空间链与小镇主导产业各环节充分融合,形成小镇综合服务系统等专业中介服务平台,使资金㊁人才㊁信息㊁服务等要素在小镇内能自我循环㊂玉皇山南基金小镇,除了基金企业聚集,同时有中小企业初创基地等造血平台,整体构建了丰富的基金产业生态圈㊂4.2.3㊀产业形态功能布局协同产业生态构建小镇的产业形态功能布局的核心 产业要素 要围绕产业生态构建为中心,做到产业形态功能布局协同产业生态构建㊂以高端装备制造类小镇为例,它的规划分为:智能装备制造园区㊁云商科创贸易服务区㊁SOHO 创意街区㊁生态水乡生活区,其中前两个为核心区块㊂从区块设置的大局看,两个核心区块之间就存在着产业链纵向衔接的关系㊂从具体区块功能规划设计看,首先是 智能装备制造园区 ,它着重强调小镇主导产业的优化提升㊁产业链的延伸以及科技成果的产业化,并注重物流集散及科技研发功能对本区制造功能的支撑与协同;同时,建设 智造 展厅,展示小镇主导产业最新成果,从中看到了区块内以及区块间产业生态协同的影子㊂其次是 云商科创贸易服务区 ,是小镇的 核动力 区域,是小镇人流㊁资金流㊁信息流交互中心㊁科技孵化器等公共服务平台㊂同样,从中看到该区块规划强调的功能混合㊁空间共享等理念体现了产业网状扩张的思想㊂4.3㊀加快新业态培育,提升产业对接协同能力4.3.1㊀以 嫁接型 新业态小镇建设加快城镇化进程嫁接型 新业态小镇是通过融入 数字+ 时尚+ 等创新元素,对原有乡镇块状经济升级的小镇建设模式㊂这种发展模式在城与镇协同融合之间并发出无穷的活力,内部解决了劳动力和传统产业形态转型㊁环境的整合㊁传承与优化,外部吸引了人才㊁资本㊁市场㊁基础设施等城市化要素,某种程度上引领了主城和区域崭新的运营㊁工作㊁生活㊁消费方式㊂其建设应该考虑以下几个条件:一是要有区位优势;二是小镇产业能联动中心城市的资源;三是挖掘小镇产业特色和资源禀赋优势,针对特定人群需求,进行精准开发,以 轻㊁小㊁精 特色产业平台形成产业生态圈㊂4.3.2㊀以 战略性新兴产业 小镇建设引领区域发展小镇打造要对接浙江省 十四五 重点发展产业,引智㊁引技㊁引企㊁引资并举,由产城分离向融合转变;要十分注重龙头企业引领下高精尖企业聚集,形成产业形态上的优势;要注重科研孵化器和高端技术人才的引进,蓄积发展动力;要突出小镇智慧化建设,夯实产业信息化发展基础;要完善投融资和政策支持机制,积极支持符合条件的战略性新兴产业企业开展基于制造业产业链各环节金融产品创新,为产业发展挖掘 资金池 ㊂参考文献[1]王国平.产业形态特征㊁演变与产业升级[J ].中共浙江省委党校学报,2009,(6):105-112.[2]陈东强.区域产业形态与产业结构的比较及其在实践中的意义[J ].经济地理,2006,(12):80-83.[3]朱莹莹.浙江省特色小镇建设的现状与对策研究 以嘉兴市为例[J ].嘉兴学院报,2016,(3):49-56.[4]宋维尔,汤欢,应婵莉.浙江特色小镇规划的编制思路与方法初探[J ].小城镇建设,2016,(3):34-37.国际稀土市场新格局与中国稀土产业战略选择探究郭松霞(有研稀土新材料股份有限公司,北京100088)摘㊀要:在科技发展和经济发展的时代大背景下,稀土作为一种战略价值突出的资源,在科学领域不可替代,而且中国市场对稀土产业的需求量很大㊂因稀土具有优良的物化特性,在航空航天㊁电子信息等领域中有着较高的应用价值,而这些恰恰是中国如今科技进步需要重点突破的领域㊂根据工信部数据,2021年稀土产业下游需求同比增长20%左右,做好稀土产业战略规划㊁发展势在必行㊂我国稀土储量居世界第一,也是唯一能提供全系列17种稀土元素尤其是军用中重稀土的国家,在稀土供给上有着绝对的优势,但是在国际稀土市场中缺乏相应地位的产品定价权㊁话语权还是集中在西方国家手中,在国际市场上仍然处于劣势地位㊂中国作为最大的稀土供应国和生产国,必须加强稀土资源的管理,综合管控本土稀土产业的竞争与合作,因此,本文主要结合中国稀土产业外部环境以及发展战略等问题进行探讨,着重对中国稀土市场当前面临的挑战以及稀土市场新格局进行分析,同时结合国际稀土市场新格局,对中国稀土产业战略选择进行深入探讨㊂关键词:国际稀土市场;新格局;中国稀土产业;战略选择中图分类号:F2㊀㊀㊀㊀㊀文献标识码:A㊀㊀㊀㊀㊀㊀doi:10.19311/ki.1672-3198.2022.22.0101㊀文献综述1.1㊀稀土市场内涵稀土是一种具有强大战略价值的资源,美国能源部将其称之为技术金属,这是因为稀土具有独特的催化性㊁光性能和磁性,在目前的科学㊁技术领域当中稀土俨然成为一种不可替代的元素㊂稀土也被称为工业维生素,在。
文化旅游特色小镇实施方案一、背景介绍。
随着旅游业的快速发展,文化旅游特色小镇成为了各地发展旅游业的重要方式之一。
文化旅游特色小镇以其独特的地域文化和旅游资源,吸引着大量游客前来观光、休闲和体验。
因此,制定并实施文化旅游特色小镇的发展方案,对于促进当地经济发展和文化传承至关重要。
二、发展目标。
1. 打造独具特色的文化旅游小镇,提升地方知名度和美誉度。
2. 丰富旅游产品,满足游客多样化的需求,提高游客满意度。
3. 挖掘和保护地方文化遗产,促进文化传承和保护。
4. 推动当地经济发展,增加就业机会,带动相关产业发展。
三、实施方案。
1. 挖掘地方文化资源。
通过调查研究,深入挖掘当地的历史文化、民俗风情等资源,制定保护和传承方案,推动当地文化资源的开发和利用。
2. 建设文化旅游设施。
根据当地文化特色,规划建设符合特色小镇风貌的文化旅游设施,如博物馆、文化广场、传统工艺展示馆等,为游客提供丰富的文化体验。
3. 创新旅游产品。
结合当地文化特色和旅游资源,开发具有地方特色的旅游产品,如特色美食、民俗表演、文化体验活动等,丰富游客的旅游体验。
4. 完善配套设施。
建设完善的交通、住宿、餐饮等旅游配套设施,提高游客的出行便利性和舒适度。
5. 加强宣传推广。
通过多种渠道,加大对文化旅游特色小镇的宣传推广力度,提高知名度和美誉度,吸引更多游客前来参观和体验。
6. 加强管理和服务。
建立健全的管理体系,加强对文化旅游特色小镇的日常管理和服务工作,确保游客的安全和舒适度。
四、预期效果。
1. 文化旅游特色小镇的知名度和美誉度得到提升,成为当地的旅游名片。
2. 文化旅游产品丰富多样,满足游客多样化的需求,提高游客满意度。
3. 当地文化资源得到有效保护和传承,促进文化传统的传承和弘扬。
4. 促进当地经济发展,增加就业机会,带动相关产业的发展。
五、总结。
文化旅游特色小镇实施方案的制定和实施,对于促进当地文化传承和经济发展具有重要意义。
各地应根据自身的实际情况,结合文化旅游特色小镇的发展目标和实施方案,不断完善和推进,为当地经济社会的可持续发展做出积极贡献。
Tourism Planning旅游规划沉浸式文旅开发新模式论述——以湖北大悟县双桥古镇为例张文迪 曹景皓 戚宇航 王 磊 彭怀仁(武汉理工大学土木工程与建筑学院,湖北武汉 430070)摘 要:随着中国经济发展水平不断提高,旅游市场迅速扩大,但部分旅游景点的文旅开发存在新挑战,亟须采取有效措施给予应对。
本文分析我国旅游产业发展现状,阐释当前新的经济社会条件下沉浸式文旅开发的内涵和要求,并以湖北省大悟县双桥古镇为例,提出通过沉浸式文旅开发带动旅游产业发展的方案,为类似地区进行文旅开发创新,促进旅游业转型升级提供新思路。
关键词:沉浸式;文旅开发;旅游;双桥古镇中图分类号:F592 文献标识码:A一、我国旅游产业发展现状科技的迅速发展给人们的生活带来巨大变化,如大数据、人工智能(Artificial Intelligence,AI)等使人们的生活朝着数字化、智能化方向转变。
在此环境的影响下,人们的思想观念、消费习惯也随之而变,在休闲娱乐方式方面,一些有创意、有新意、科技感十足的旅游活动受到大众的青睐并且成为当今时尚与潮流,相较传统旅游活动,这些旅游活动带给人们更强的体验感、参与感,因此公众对其需求越来越旺盛。
2022 年,国务院发布的《“十四五”旅游业发展规划》指出,全面建成小康社会后,人民群众旅游消费需求将从低层次向高品质和多样化转变,由注重观光向兼顾观光与休闲度假转变。
大众旅游出行和消费偏好发生深刻变化,线上线下旅游产品和服务加速融合。
随着经济的发展,我国中等收入群体迅速增加,其愈发重视旅游过程中的精神消费,旅游方式开始由观光游转向观光与休闲度假游,多元化与休闲化将是旅游发展的大方向[1]。
对于传统旅游业来说,这是机遇也是挑战。
如今,我国部分旅游景区仍然是传统的观光式旅游,没有创新旅游产品与服务,导致其同质化明显,这种旅游形式容易导致旅游者体验单一,不能满足游客的旅游需求,从而无法达到旅游者的旅游目的——获得极强的体验感。
稻香小镇创建实施方案一、项目背景和目标稻香小镇是一个旨在打造具有浓厚农耕文化和国际化风情的旅游目的地的项目。
该项目的目标是吸引更多国内外游客和投资者前来参观和投资,增加当地的经济收入和就业机会。
二、项目范围和内容1. 景观规划与建设:- 设计和建造传统风格的农田、农舍和农庄,以展示农耕文化和乡村风情。
- 创建独特的花园、湖泊和绿地,打造宜人的城市环境。
2. 建设文化设施:- 建立博物馆、展览馆和艺术中心,以展示当地文化和艺术。
- 创建农耕主题公园和农民市集,提供乡村游乐和购物场所。
3. 促进旅游业发展:- 开展宣传活动,吸引更多游客前来参观和体验。
- 提供各类旅游服务和设施,以方便游客的出行和住宿。
4. 产业发展:- 挖掘和开发当地的农业资源,推动农业产业的发展。
- 鼓励投资者来稻香小镇投资,带动当地经济的增长。
三、实施策略1. 与专业设计机构合作,制定详细的项目规划和设计方案。
2. 成立项目实施小组,负责协调各方资源和推动项目进展。
3. 开展市场调研,了解目标游客群体和投资者的需求,制定有针对性的推广和招商计划。
4. 吸引知名度高的艺术家、设计师和文化创意人才参与项目,提升项目的艺术和创意价值。
5. 与周边地区合作,共同推广农耕旅游和农业产业发展,形成区域合力。
四、资源需求1. 资金投入:项目实施需要大量的资金投入,可以通过政府补贴、银行贷款、招商引资等方式筹集资金。
2. 人力资源:项目需要有管理、设计、营销等方面的专业人才,可以通过招聘、培训或外聘等方式获得。
3. 合作伙伴:与专业设计机构、旅行社、投资机构等建立合作伙伴关系,共同推动项目的实施和发展。
五、项目进度和效果评估1. 制定项目进度计划,按照阶段性目标推进项目实施。
2. 建立监督和评估机制,定期对项目进展和效果进行评估,及时调整策略和方向。
六、风险控制1. 做好市场调研,确保项目与目标市场需求相契合。
2. 与专业机构合作,确保项目规划和设计的可行性和科学性。
文旅城后续工程推进方案一、项目背景随着旅游业的蓬勃发展,文旅城成为了一种新型的文化产业体验区。
作为一个集文化、旅游、商业于一体的综合性项目,文旅城已经在全国范围内兴起。
相比传统的旅游景区,文旅城更加强调文化元素和体验性,能够吸引更多的游客。
因此,在不少地区,文旅城已经成为了打造城市特色的重要组成部分。
南京市作为中国的历史文化名城,自古以来就以丰富的历史文化和艺术氛围而闻名。
南京市政府于2018年启动了文旅城项目,致力于将南京市打造成为国际知名的文化旅游目的地。
南京市的文旅城项目包括了江宁文旅城和浦口文旅城两个部分,分别位于江宁区和浦口区。
目前,江宁文旅城已经初具规模,包括江苏省博物馆、江苏大剧院、南京医科大学等多个重要景点,成为了南京市的重要旅游目的地。
随着江宁文旅城的建设逐渐完善,南京市政府也开始考虑文旅城的后续工程推进方案。
如何更好地发挥文旅城的作用,吸引更多的游客,提升城市的文化软实力,成为了南京市政府当前的重要课题。
因此,制定文旅城后续工程推进方案,对于南京市的文化旅游发展具有重要意义。
二、目标与意义1. 目标(1)完善设施:继续完善文旅城的景区设施,包括文化展览馆、艺术表演中心、旅游服务中心等,提升文旅城的品质和服务水平。
(2)丰富项目内容:进一步丰富文旅城的项目内容,包括文化展览、演艺表演、互动体验等,打造更加多元化的文旅体验。
(3)提升知名度:通过不同的宣传推广手段,提升文旅城的知名度和影响力,吸引更多的游客和文化爱好者。
2. 意义(1)增加就业机会:文旅城的后续工程将为城市带来更多的就业机会,促进当地经济发展。
(2)丰富城市文化生活:通过文旅城的发展,丰富了居民和游客的文化生活,在增强城市文化软实力的同时也提升了城市形象。
(3)带动周边产业:文旅城的发展将带动周边酒店、餐饮、零售等产业的发展,形成良性的产业链条。
三、推进方案1. 完善设施(1)建设文化展览馆:结合南京市悠久的历史和文化,设计建设一座具有南京特色的文化展览馆,集中展示南京的历史文化、名人故事、城市发展等内容。
关于特色文化小镇创新生态系统的思考纪芬叶【摘要】构建特色文化小镇的创新生态系统对特色文化小镇创新理论研究和实践探索具有重要意义.特色文化小镇创新生态系统的构建主要包括中小微文化企业、自然人、技术支持团体等多元创新主体的培育.可以从加大创业创新型人才培养、挖掘和培养基石组织、创新政府融合思路、创新金融扶持思维、创新土地使用机制等方面优化特色文化小镇创新生态系统培育路径.【期刊名称】《行政管理改革》【年(卷),期】2019(004)004【总页数】8页(P69-76)【关键词】特色文化小镇;创新生态系统;创新能力【作者】纪芬叶【作者单位】河北省委党校(河北行政学院)文史教研部【正文语种】中文【中图分类】D63特色文化小镇培育和建设方兴未艾,取得了较为明显的发展成效。
但是,也出现了“特色”不“特”、文化内涵挖掘表象化、同质化发展等问题。
造成这些问题的主要原因就是特色文化小镇的创新能力不足。
提升创新能力是当前特色文化小镇培育和建设的重要问题,而构建和培育特色文化小镇的创新生态系统则是其关键。
一、特色文化小镇创新生态系统的意义(一)深化对创新生态系统理论的研究回顾世界经济发展的主要驱动理论,主要经历了传统理论、人力资本理论、社会资本理论、创意阶层理论等不同理论发展阶段,不同的理论相对应的核心生产要素不同。
工业化后期经济社会发展的动力理论逐渐变为创意阶层理论,创新成为当今经济和社会发展的重要驱动力。
关于创新的研究焦点逐渐由创新要素的静态分析转变为创新主体以及行为主体之间相互作用的动态研究。
深入对创新生态系统的要素构成分析和各个要素之间的相互作用机理研究,并将之与特色文化小镇建设这个载体有机联系起来,将会使得创新生态研究更加鲜活生动,更具实操性。
(二)丰富和发展特色文化小镇理论特色文化小镇是创新创业的新平台,需要企业、产业、资本、政府管理、社会组织等各种创新要素之间的有机融合,并创建和维护创新生态平衡。
在目前的特色文化小镇建设理论研究中,尚缺乏对于小镇创新主体、创新影响因素、创新要素之间互动机制的系统研究,不利于小镇创新能力的整体提升和小镇的高水平培育。
边城文旅小镇建设2022改建方案花垣县文旅特色小镇规划的思路与重点:生态旅游小镇生态旅游是指以有特色的生态环境为主要景观的旅游,是指以可持续发展为理念,以保护生态环境为前提,以统筹人与自然和谐发展为准则,并依托良好的自然生态环境和独特的人文生态系统,采取生态友好方式,开展的生态体验、生态教育、生态认知并获得心身愉悦的旅游方式。
1993年国际生态旅游协会把其定义为:具有保护自然环境和维护当地人民生活双重责任的旅游活动,在范畴上可以包括自然文化旅游,农业、工业、城市和乡村休闲观光旅游等。
生态旅游小镇是指以开发当地具有价值的自然或人文景观或在此基础上开展旅游服务的小镇,随着城镇化步伐的推进,我国城乡差异越来越突出,通过发展生态旅游,可以有效地解决乡村空心化的问题和实现城乡统筹的目标。
有学者认为生态旅游小镇的建设要坚持“三先三后”:先做农业后做旅游、先做设施后做小镇、先做示范后做推广;并坚持“四重四慎”原则:重服务慎招商、重人才慎包揽、重文创慎规划、重活动慎建设。
总体上,生态旅游小镇,一般拥有良好的自然资源,环境优越、气候宜人,有着鲜明的特色,区域内或紧邻地区一般拥有品质较好的风景区,城镇发展和风景区建设紧密结合在一起,且以景区发展为基础,比如滨海小镇、海岛小镇、温泉小镇、滑雪城、花卉城、渔港小镇、边境小镇等。
其开发要点在于加强自然资源和环境保护,控制城镇的承载力,以休闲度假为方向,走综合发展之路,打造一个集观光、休闲、度假、养生、会议、康体、文化体验、居住等多种功能于一体的旅游小镇。
其打造重点有两个方向:一是设置完善的度假生活配套及高品质的服务质量,配套一些必要的高端度假项目;二是以度假人口“候鸟型”居住和休闲度假为目的度假生活配套及高品质的服务质量,配套一些必要的高端度假项目;二是以度假人口“候鸟型”居住和休闲度假为目标的度假项目的开发。
在具体的操作层面,重点需要关注如下几点。
一是要坚持主题化的开发。
稻香小镇运营方案策划第一部分:小镇总体定位稻香小镇位于中国江苏省苏州市,是一座以稻香文化为主题的综合性小镇。
小镇依托江南水乡的自然风光和浓厚的文化底蕴,旨在打造一个融合休闲、旅游、文化、美食于一体的宜居小镇。
在小镇发展初期,我们将以传承和弘扬稻香文化为核心,充分挖掘小镇周边的自然资源和文化遗产,打造独具特色的旅游目的地。
第二部分:小镇业态布局规划1. 文化体验区:设立传统手工艺坊、稻香博物馆,通过工艺制作展示和互动体验,让游客深入了解稻香文化的精髓。
2. 休闲娱乐区:规划休闲广场、咖啡厅、书吧、音乐酒吧等,提供丰富多彩的休闲娱乐活动和场所,为游客提供放松身心的空间。
3. 美食文化区:沿街规划特色餐饮街,打造滨河美食广场,挖掘本地特色美食,打造具有江南风味的餐饮品牌。
4. 乡村民宿区:利用当地农家乐资源,打造有特色的农家民宿,提供农业观光、果园采摘、田园体验等活动,为游客营造乡村慢生活环境。
第三部分:小镇品牌塑造1. 建立稻香文化品牌:通过丰富多彩的文化活动、景点和产品,让稻香小镇成为中国稻香文化的代表。
2. 打造特色美食品牌:推广当地传统美食,培育有识别度和影响力的餐饮品牌。
3. 提升休闲度假品牌:致力于营造宜居宜游的环境和氛围,让小镇成为城市居民的休闲度假胜地。
第四部分:小镇营销推广1. 线上宣传推广:建立官方网站、社交媒体账号,通过精美图片、生动文字、短视频等形式,展现小镇的特色和魅力,并结合营销活动,吸引游客关注和参与。
2. 线下推广活动:举办文化节庆、美食节、手工艺品市集等大型活动,吸引游客亲临小镇体验。
3. 搭建合作交流平台:与旅行社、OTA平台、商业合作伙伴建立紧密合作关系,共同推广小镇旅游产品。
第五部分:生态保护与可持续发展1. 生态保护:保护小镇周边的自然环境和文化遗产,积极开展植树造林、水域治理等工作,维护小镇的生态环境。
2. 可持续发展:发展绿色产业,推广可再生能源利用,采用绿色环保材料建设,致力于小镇的可持续发展。
旅游小镇谋划打造方案一、背景旅游业是当前全球最具有增长性和发展潜力的产业之一。
对于中国而言,旅游业作为国民经济支柱产业,已经走过了30年。
旅游业不仅能够促进地方经济的发展,还可以带动相关产业的蓬勃发展,提高城市居民的生活质量,创造多元化的就业岗位。
尤其是在当前经济形势不太好的情况下,发展旅游业成为提振经济的主要途径之一。
而在旅游业中,旅游小镇具有独特的地位。
旅游小镇是指以具有地方特色的文化旅游资源为支撑,以完备的旅游服务体系为保障,形成具有地方文化特色和旅游服务功能完备的小镇。
旅游小镇的兴建不仅能够保护和挖掘当地的文化旅游资源,更能够带动旅游经济和社会经济的全面发展。
二、问题在当前经济发展形势下,很多地方都希望通过旅游小镇的打造来推动地方经济的发展。
然而,在旅游小镇建设过程中,一些问题也会随之而来,如何才能保证小镇的文化特色,如何满足游客的需求,如何建设完备的旅游服务体系,如何保障小镇的可持续发展等等。
三、建议1. 加强对文化旅游资源的保护和挖掘旅游小镇的文化旅游资源是小镇最能够吸引游客的地方,因此,在建设旅游小镇之前,我们必须先了解小镇的文化资源,加强对文化遗产和历史文化的保护和挖掘,并将其融入到小镇的旅游开发中去。
2. 协同推进小镇旅游产业的全面发展旅游产业是小镇最重要的产业之一,其发展不仅能够带动其他相关产业的发展,还可以带动就业的增加和经济的发展。
因此,我们需要协同推进小镇旅游产业的发展,建设旅游小镇的核心区域,开展旅游文化主题活动等等,不断提高小镇的知名度和影响力,促进小镇旅游产业和经济发展。
3. 完备的旅游服务体系旅游服务是小镇吸引游客的重要因素之一,因此需要建设完备的旅游服务体系,整合相关旅游资源,提高小镇的服务质量。
包括旅游交通、住宿、餐饮、购物、旅游咨询等方面的服务,通过为游客提供全面的旅游服务,使游客能够享受到最佳的旅游体验。
4. 强化小镇文化旅游的宣传强化小镇的文化旅游宣传,提高小镇文化旅游的知名度和影响力,也是吸引游客的关键。
麻沙·中国书香小镇旅游发展概念性方案Conceptual Planning of Masha Scholarly town in China(评选稿)【前 言】方尺之大,藏尽古今千秋事 寸指之厚,容纳天地万物理翻阅麻沙镇志,穿越时空隧道,走进麻沙厚重的历史长廊;感悟弥漫着历史文化温度的文字和图片, 触摸到千年来先辈走过的文明足迹。
麻沙镇是八闽历史文化古镇,自古“人杰地灵”“群贤萃集”。
深厚的历史文化积淀,使得无以计数的国内外文人墨客刮目相看。
“闽学鼻祖”的游酢最早将理学南传,中华五千年的文化精髓——《四书五经》中有《三经》竟是由麻沙蔡炉的后裔——蔡氏九儒集注的;宋代期间,麻沙以刻、印书内容最丰、数量最多的“建本”而闻名于世,是全国三大雕版印刷中心,被誉为“图书之府”;游酢、朱熹、蔡元定、游九言等大儒曾在此读书、讲学、著书立说。
江西估客建阳来,不载兰花与药材。
妆点溪山真不俗,麻沙坊里贩书归。
千百年来,麻沙建本对中国古代文化的保存和传播起到了举足轻重的影响。
继往开来,生生不息,中国·麻沙带着独特的书香气息走向世界!作为福建省首批非物质文化遗产保护项目的“建本雕版印刷技艺”积极逐步申报国家级非物质文化遗产,凸显出建本(麻沙本)文化弥足珍贵的价值,此次打造的麻沙·中国书香小镇将走一条创新的文化遗产产业化道路:弘扬建本文化,彰显历史文脉,打造城市名片,提升麻沙品牌;让文化遗产由记忆力变影响力,由影响力变软实力;让文化遗产由资源变资产、由资产变产业。
同时,麻沙·中国书香小镇将探索一种创新的全域化旅游发展模式;创新的一、二、三产业联动发展模式;创新的经济、社会、文化、生态和谐发展模式。
十八大发展关键词:生态文明,文化强国;关键词一:生态文明五位一体:经济、政治、文化、社会和生态文明建设五位一体;突出地位:把生态文明建设放在突出地位,融入各项建设各方面和全过程 ;生态产品:明确提出要增强生态产品生产能力,建设生态大国;四大建设要点:优化国土空间开发格局、全面促进资源节约、加大自然生态系统和环境保护力度、加强生态文明制度建设。
关键词二:文化强国十八大提出建设社会主义文化强国,关键是增强全民族文化创造活力;“文化强国”要加强社会主义核心价值体系建设;“文化强国”要全面提高公民道德素质;“文化强国”要丰富人民精神文化生活;“文化强国”要增强文化整体实力和竞争力。
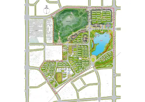
中国麻沙·文化遗产导向型的修学旅游目的地以五位一体,全域旅游,对接:【项目概况】规划范围:麻沙镇位于建阳西部中心,位于东经117°39′-117°55′,北纬27°20′-27°33′之间,平均海拔190.米,地处三市交界位置。
公路四通八达,距武夷山机场35 公里,邵武火车站45 公里,建阳火车站38 公里。
本次规划的范围大致以麻沙村、水南村以及梁墩村部分村域,分阶段辐射延伸至竹洲、扁溪、长坪、江坊等村庄,多点开花,逐步实现麻沙全域旅游。
规划面积:基地规划面积 650 公顷;主要包括2个行政村落。
其中:水域面积: 41.5 公顷居民点面积: 120 公顷这里,曾是滋养麻沙人千年的宝地,未来将是麻沙·中国书香小镇的最佳代言 !区位交通优势:地处闽西北边缘,是武夷山市、邵武市、建阳区三区市的结合部,依托便利的外部交通网络,可不断拓展周边县市乃至周边省区的客源市场;位于东部沿海向中部挺进发展的战略跳板和必经之地,有利于“东引西拓”、扩大经济发展空间;地处大武夷黄金旅游线上,东北比邻闻名中外的世界双遗——武夷山,西南承接泰宁世界地质公园。
资源优势:高品位旅游资源丰富多样,人文资源与自然资源组合良好,建本文化旅游资源具有较强的垄断性。
【规划框架】把脉基地1.1 延续文脉1.2 洞察地脉1.3 进退维谷1.4 借鉴案例1.5 探寻市场定位基地2.1 总体定位2.2 发展构想2.3 形象定位2.4 发展策略规划基地3.1 空间规划3.2 功能分区3.3 项目策划运营基地4.1 项目开发时序4.2 投资估算4.3 营销推广4.4 综合效益一、聚焦篇二、统领篇三、塑造篇四、实施篇一、聚焦篇【把脉基地】1.1 延续文脉1.2 洞察地脉1.3 进退维谷1.4 借鉴案例1.5 探寻市场【1.1延续文脉 ◎ 发现建阳麻沙价值】麻沙——中国建本的故乡和发源地建阳的雕版印刷始于五代,繁荣于两宋,延续于元、明和清初。
刻书多集中于永忠里(今建阳区麻沙镇)和崇化里(今书坊乡),刊印之书称作“麻沙本”,又叫“建本”。
建本雕版印刷是汉族传统手工技艺,建本文化也就成了中国古文化重要的组成部分,麻沙因此成为中国建本的故乡和发源地。
建本——中国传统文化保存与发展具有举足轻重的地位福建古代印刷业在中国古代印刷史上占有突出地位,其中自宋代至清代,长时间居全国前列。
而建阳麻沙、书坊更是全国有影响的刻印中心之一,麻沙的建本文化对研究中国古代印刷史、中国古文化传播史及中国平民文化传播都有着重要意义。
游酢——中国洛学难移的里程碑式的人物建阳因朱熹集理学思想文化之大成而成为闽学的发祥地;生于麻沙的游酢则因将中原洛学南传入闽成为开闽学先河者,誉为“闽学鼻祖”。
尊师重教“程门立雪”的主人公游酢凭着勤勉好学的精神,尽得理学的真谛,成为程门第一大弟子。
游酢学成南归,悉心传授理学,使理学得以南传,“中兴于南”与后来朱熹理学思想的形成有着密切的师承关系,被尊称为“道南儒宗”。
朱熹与“二程”生不同时,无缘当“二程”的学生,只能算是再传弟子。
朱熹后来成为“集理学之大成者”,其中也有游酢传播理学的功劳。
“若非载道来伊洛,安得传心到考亭。
”明代学者苏章的诗句,公正地评价了游酢开闽学之先河的历史功绩。
蔡氏九儒——闽学发展史上卓越贡献的书香门第一门之内,四世九贤,道宗孔孟,学衍周程,注经卫道,羽翼经传。
雕版印刷在中国,图书之府在麻沙文化根源麻阳溪,彰显麻沙文化最佳地建本——辉煌历史:早在两宋时期,建本与浙本、蜀本是当时全国三大刻印中心,由于建本在书本刻印、排版方面都进行了创新,在出版发行量上大大超过了以官刻为主的浙本蜀本。
宋、明时期建刻的繁荣,在中国图书发展史上创造了许多“出版史之最”:有世界最早的版权文告,有最早的纲目体史书刻本,最早的学术思想史专著,尚存最早的《伤寒论》注解本等。
对中国古代文化的保存、发展、传承、研究具有举足轻重的文化影响。
麻阳溪——文化之根:麻阳溪是建阳的母亲河,发源于武夷山自然保护区,河流蜿蜒经过黄坑、麻沙等乡镇的多个村庄,后与崇阳溪汇合成建溪流向南平,汇入闽江。
麻阳溪,一路文明,一路美景,人文和自然得天独厚。
建安郡为建安、晋安二郡,建平县为建阳县兴读书著述之风非遗文化、瞩目世界新石器时代东汉时期两晋时期 始于唐代元代低落时期明清时期已是人类活动区域宋代大盛(刻书、理学、书院、商业、驿站)中西文化交流 教育萌芽,兴儒奉教。
【1.1延续文脉 ◎ 发现建阳麻沙价值】商周时期蛮越之地,图腾崇拜建阳纳入国家建置辖麻沙各村当代近代 游酢 朱熹、蔡氏九儒蔡氏入建阳部分书坊毁于兵火但仍能坚持刻印备受欢迎、远销海外刻印通俗小说最早、最丰、数量最大明洪武,麻沙增设“东峰驿站”刻印小说类的翘楚清渐渐退出历史◆元代刻书业的形势发生变化,成都和杭州都在战乱中趋于萧条。
◆元代唯独建阳麻沙、崇化两地刻书业继续发展。
书坊出产的书籍销路极好◆元代理学家熊禾说:“建本之书,犹水行地” 建阳之书作为一种商品不仅行销国内外,特别是朝鲜、日本等东亚国家。
◆从嘉靖到泰昌(1522年~1620年)这99年间,建刻(包括建阳、建安等地区)通俗小说占整个明代通俗小说总存量的近20%,光是《三国演义》的版本,就有13种之多。
对此,明朝文艺批评家胡应麟说:“其多,闽为最。
”◆明洪武元年(1368),麻沙增设“东峰马驿”(原为麻沙驿),后更名。
◆明嘉靖十二年(1533),邑人刘有光建麻沙社学。
◆清顺治元年(1644),麻沙境内仍设“东峰”“虞渚”“渡头”三个铺。
◆驿站分驿、站、铺三部分。
铺由地方领导,用以传递公文。
凡州县往来公文,都由铺递传送。
◆清康熙四十五年(1706),御赐宋儒蔡沉“学阐图畴”金匾,改麻沙“梓里书院”为“九峰书院”。
◆清光绪二十六年(1900),英国牧师到永忠里(今麻沙)开始传教,礼拜堂设在麻沙永兴街。
唐,初现雏形与闽学兴起◆唐代,福建逐渐成立了五洲郡,建阳县下辖麻沙各村。
◆唐代闽北人口稀少,只有零星的城市,民众相互往来不多,商业尚处于较低水平。
◆唐代在闽中开始修建驿路,设立驿站,使入闽交通大大改善,联系更加密切。
◆唐天复二年(902)正月初十,建阳蔡氏一世祖——蔡炉举家迁至永忠里。
◆唐中叶,闽北儒学的兴起。
众多实物印证及史料表明福建理学的发展集中在闽北。
宋,人杰地灵与群贤萃集◆北宋政和四年(1114),建州州学学生数名列全国第一。
◆宋代闽北境内建有书院38所,前所未有,麻沙书院林立,响负盛名的书院有9座。
◆游酢,好学不辍,是“程门立雪”主人公之一。
游酢学成南归,悉心传授理学,被尊称为“道南儒宗”。
◆闽北理学的繁荣,推动刻书业的兴盛。
宋建阳与成都、杭州并列三大刻书中心。
◆建阳又以麻沙、崇化两地刻书业最盛。
南宋祝穆在《方舆胜览》中所说:“麻沙、崇化两坊产书,号为图书之府”。
◆南宋朱熹说:“建阳版本书籍行四方者,无远不至。
”元,建本之书,犹水行地明,刻印小说的王国清,文脉延存与中西交流【1.1延续文脉 ◎ 发现建阳麻沙价值】。