80m3重力式无阀滤池图集
- 格式:doc
- 大小:2.28 MB
- 文档页数:23
某师净水厂设计一、设计原始资料1.净产水量:5000m3/d2.水源为河水,建胜河3.(1)最高浑浊度为2000NTU(2)碱度为5mg/L(3)总硬度:月平均最高368mg/L, 月平均最低156mg/L(4)PH值:6.9—7.6(5)色度:12度(6)大肠菌群数:1800CFU/100ml(7)水温:月平均最高27.7℃月平均最低6.9℃4.净化出水要求:达到《国家生活饮用水卫生标准》(GB5749-2006)要求。
5.净水厂地形图:比例尺1:2006.地形资料:拟建水厂厂址地形平坦,地质为砂质粘土,地基承载力特征值fa=600kPa,无地下水7.各种材料均可供应。
二.设计计算(一).确定净水厂的设计水量根据GB50013—2006规定:水处理构筑物的设计水量,应按最高日供水量加水厂自用水量确定。
水厂自用水率应根据原水水质、所采用的处理工艺和构筑物类型等因素通过计算确定,一般可采用设计水量的5%~10%。
当滤池反冲洗水采取回用时,自用水率可适当减小。
考虑滤池反冲洗水采取回用及用水安全,自用水率取8% 则设计水量Q=5000³(1+0.08)=5400 m3/d(二)确定净水厂工艺流程和净化构筑物的型式1.混凝剂的投配及加药间尺寸确定根据最高浊度,此河水水质与长江水类似,则混凝剂采用硫酸铝(含三氧化二铝16%),投加量最高为28.7mg/L,最低为15.6 mg/L,平均24.8 mg/L,无需助凝剂。
每天工作时间为16h。
(1)确定石灰(纯度50%)投加量:硫酸铝投加量计算时取28 mg/L,折合成三氧化二铝为28 mg/L³16%=4.48 mg/L。
三氧化二铝分子量为102,故投加量相当于4.48/102=0.044mmol/L.剩余碱度取0.37 mmol/L,则得﹝CaO﹞=3³0.044-0.125+0.37=0.377 mmol/LCaO分子量为56,则石灰投加量为0.377³56/0.5=42 mg/L (2)药库尺寸计算ⅰ设计参数:水量Q=5400/16=337.5m³/h;最大加药量a=28mg/L;仓库储量按7-15d计算,这里取7d。
无阀滤池过滤器钢制重力式无阀过滤器系列产品广泛应用于地表水净化、地下水除铁除锰、循环水旁流过滤、生产废水除悬浮杂质、有机污水经生化处理和二次沉淀池处理之后的后续过滤以及室内游泳池水的过滤,是一种理想的水处理设备。
无阀过滤器有二大系列:一类是滤池为方形CBL-Ⅱ型,过滤水量有20m3/h至175m3/h;另一类滤池为圆形DLB-Ⅱ、DLB-Ⅲ型,过滤水量有20m3/h至80m3/h、200m3/h至750m3/h。
其中过滤水量为20m3/h至175m3/h的均整体运输至现场,过滤水量为200m3/h 至750m3/h的,由我公司预制成几部分,运至现场拼装而成,再经防腐后交付施工单位,装填滤料后即可调试和运行。
型式标准举例:CBL-Ⅱ、DLB-Ⅱ、DLB-Ⅲ型系列钢制式无阀过滤器进水、出水、冲洗及排水均不用阀门,靠水利作用自动运行,运行费用低,管理方便,安全可靠,运行自动化,设备一体化,进水箱、过滤器、反冲洗水箱组装一体,结构紧凑,用户只需按要求做设备基础和接通进出水管即可投入运行。
同时,该过滤器系类产品均装有顶盖,卫生防护条件好,可以露天设置,与钢筋混凝土滤池相比自重小,采用沥青砂柔性基础。
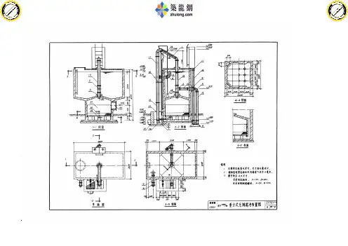
二、钢制重力式无阀过滤器原理和设计参数(一)基础原理简介原水由进水管送入滤池,经过滤层自上而下地过滤,清水即从连通管注入存水箱内贮存,水箱充满后,水通过出水管入清水池,滤层不断截留悬浮物,造成滤层阻力的逐渐增加,因而促使虹吸管内的水位不断升高。
当水位达到虹吸辅助管管口时,水自该管中落下,通过抽气管借以带走虹吸下降管中的空气,当真空度达到一定值时,便发生虹吸作用。
这时水管中的水自下而上地通过滤层,对滤料进行反冲洗。
当冲洗水箱水面下降至虹吸破坏管时,空气进入虹吸管,破坏虹吸作用。
滤池反冲洗结束,进入下一周期工作,应而无需象其它过滤器那样,必须设置反冲洗水泵和反冲洗水塔。
本系列过滤器的较大规格产品中,与国标图的钢筋混凝土重力式无阀过滤池相比,增加了每组三座系列,期终水头损失最大许可值由国际图的1.70米增加了1.50米和1.90米两档次,为净水厂设计的高程布置提供了方便选择的产品。
图集号标准类别图集名称编制年份废止日期S151(一)标准图方形给水箱 1982 2003-05-01S161 标准图管道支架及吊架 1983 2003-05-01 S151(二)标准图圆形给水箱 1982 2003-05-0192SS177 试用图装配式给水箱选用安装图 1992 2003-05-0193S178 标准图冲压钢板给水箱安装、选用图 1993 2003-05-01 92S213(一)~(五)标准图砖砌化粪池 1992 2003-05-01 92S214(一)~(五)标准图钢筋混凝土化粪池 1992 2003-05-01 S231 标准图圆形排水检查井 1977 2003-05-01S232 标准图矩形排水检查井 1977 2003-05-01S233 标准图扇形排水检查井 1977 2003-05-01S234 标准图跌水井 1977 2003-05-01CS236 重复使用图耐腐蚀检查井及耐腐蚀管道接口 1978 2003-05-01S311 标准图钢制管道零件 1975 2003-05-01S312 标准图防水套管 1975 2003-05-0190S319 标准图水池通气管、吸水喇叭管及支架 1990 2003-05-01 CS345(四)重复使用图给水承插铸铁管道支墩(Dg400~1200) 1980 2003-05-01 CS345(一)重复使用图给水承插铸铁管道支墩(Dg400~1200) 1980 2003-05-01 CS345(五)重复使用图给水承插铸铁管道支墩(Dg400~1200) 1980 2003-05-01 CS345(二)重复使用图给水承插铸铁管道支墩(Dg400~1200) 1980 2003-05-01 CS345(六)重复使用图给水承插铸铁管道支墩(Dg400~1200) 1980 2003-05-01 CS345(三)重复使用图给水承插铸铁管道支墩(Dg400~1200) 1980 2003-05-01 S346 标准图投药、消毒设备 1980 2003-05-0190S436(一)标准图玻璃钢冷却塔选用安装图(逆流式) 1990 2003-05-01 91S436(二)标准图玻璃钢冷却塔选用安装图(横流式) 1991 2003-05-01 95SS437(1)试用100~2000m2钢筋混凝土自然通风冷却塔选用安装图 1996 2003-05-01 95S717~95S721 标准图机械搅拌澄清池20、40、60、80、120m3/h 1996 2003-05-01 S771(二)标准图 60m3/h水力循环澄清池 1975 2003-05-01 S771(六)标准图 200m3/h水力循环澄清池 1975 2003-05-01 S771(七)标准图 240m3/h水力循环澄清池 1975 2003-05-01 S771(三)标准图 80m3/h水力循环澄清池 1975 2003-05-01 S771(四)标准图 120m3/h水力循环澄清池 1975 2003-05-01 S771(五)标准图 160m3/h水力循环澄清池 1975 2003-05-01 S771(一)标准图 40m3/h水力循环澄清池 1975 2003-05-01 S771(八)标准图 320m3/h水力循环澄清池 1975 2003-05-01 S775(三)标准图重力式无阀滤池80立方米/时 1980 2003-05-01S775(四)标准图重力式无阀滤池120立方米/时 1980 2003-05-01 S775(五)标准图重力式无阀滤池160立方米/时 1980 2003-05-01 S775(一)标准图重力式无阀滤池40立方米/时 1980 2003-05-01S775(七)标准图重力式无阀滤池240立方米/时 1980 2003-05-01 S775(八)标准图重力式无阀滤池320立方米/时 1980 2003-05-01 S775(二)标准图重力式无阀滤池60立方米/时 1980 2003-05-01 S775(九)标准图重力式无阀滤池400立方米/时 1980 2003-05-01 S775(六)标准图重力式无阀滤池200立方米/时 1980 2003-05-01 85SS777(一)~(十一)试用图穿孔旋流反应斜管沉淀池 1985 2003-05-01 85S779(三)标准图快滤池 1985 2003-05-0185S779(一)标准图快滤池 1985 2003-05-0185S779(二)标准图快滤池 1985 2003-05-0185SS780(二)试用图地下水除铁滤池(产水量30立方米 /时) 1985 2003-05-01 85SS780(三)试用图地下水除铁滤池(产水量45立方米 /时) 1985 2003-05-01 85SS780(一)试用图地下水除铁滤池(产水量15立方米 /时) 1985 2003-05-01 88S810 标准图小型钢筋混凝土蓄水池 1988 2003-05-0195S845(四)~(五)标准图砖支筒不保温水塔(150、200m3) 1995 2003-05-01 95S845(一)~(三)标准图砖支筒不保温水塔(30、50、100m3) 1995 2003-05-01 90S846(二)标准图 50m3砖支筒保温水塔 1990 2003-05-01 90S846(六)标准图 200m3砖支筒保温水塔 1990 2003-05-01 90S846(一)标准图 30m3砖支筒保温水塔 1990 2003-05-01 90S846(三)标准图 80m3砖支筒保温水塔 1990 2003-05-01 90S846(四)标准图 100m3砖支筒保温水塔 1990 2003-05-01 90S846(五)标准图 150m3砖支筒保温水塔 1990 2003-05-01 89S152(一)标准图卧式贮水罐 1989 2002-04-0189S152(二)标准图卧式贮水罐 1989 2002-04-0189S152(三)标准图卧式贮水罐 1989 2002-04-0189S152(一)~(五)标准图卧式贮水罐 1989 2002-04-01 89S152(四)标准图卧式。
水厂改造项目方案设计目录第一章概述 (1)1.1总则 (1)1.2项目概况 (1)第二章方案基础 (3)2.1设计依据 (3)2.2设计原则 (3)2.3改造范围 (4)2.4改造前后产水量 (4)2.5改造进、出水水质 (4)2.5.1改造进水水质 (4)2.5.2改造出水水质 (4)第三章工艺设计 (5)3.1工艺改造说明 (5)3.2工艺介绍 (5)3.3改造后工艺流程 (8)3.4工艺流程说明 (8)第四章改造设计 (9)4.1改造分析 (9)4.2改造内容 (9)4.2管材及防腐、防渗措施 (12)第五章电气设计 (13)5.1设计依据 (13)5.2设计范围 (13)5.3电动装置控制要求 (13)第六章自动化系统及仪表 (14)6.1设计依据 (14)6.2防雷、接地 (14)6.3自控要求 (14)第七章建筑结构设计 (15)7.1设计依据 (15)7.2建筑装修 (15)7.3抗震等级 (15)7.4耐火等级 (15)7.5地基处理 (15)第八章设备(构筑物)材料 (16)第九章运行成本分析 (18)第十章质量及售后服务承诺 (19)第一章概述1.1总则德安人一贯奉行“一次做对、顾客满意”的质量方针,严格贯彻ISO9001质量管理体系和ISO14001环境管理体系,健全“顾客全程星级体系”,为顾客提供一流的服务。
卓越的品质,完美的服务,使得德安产品畅销全球。
我们坚持奉行“二十一世纪经营是以德安天下”的经营理念,服务于大众,服务于社会,共创二十一世纪的全球化环保集团。
德安集团,国家级高新技术企业,中国环保产业骨干企业,建有博士后科研工作站,以“净化环境、服务全球”为己任。
通过近20年的发展,德安已形成完善的研发平台和销售服务平台,可提供:城乡给水处理、污水处理及中水回用、工业水处理及回用、水厂升级改造、污水厂升级改造、城乡垃圾资源化、河道湖泊治理等系列解决方案及设计、施工总承包服务。
重力式无阀过滤器的工作原理与安装概述:钢制重力式无阀过滤器系列产品广泛应用于地表水净化、地下水除铁除锰、循环水旁流过滤、生产废水除悬浮杂质、有机污水经生化处理和二次沉淀池处理之后的后续过滤以及室内游泳池水的过滤是一种理想的水处理设备。
重力式无阀过滤器/无阀滤池是一种不需要阀门的快滤池,在运行的过程中,出水的水位保持恒定不变,进水的水位则随着滤层水头损失阀增加而不断在吸管内上升,当水位上升到虹吸管管顶,并形成虹吸时,就开始自动滤层反冲洗,冲洗掉废水沿虹吸管排出池外。
重力式无阀过滤器/无阀滤池的进水、出水、冲洗及排水均不用阀门,靠水力作用自动运行,运行费用低,管理方便,安全自动化,设备一体化,进水箱、过滤器、反冲洗水箱等组装一体,结构紧凑,用户只需按要求做设备基础和接通进出水管即可投入运行。
同时,该过滤器系列产品均装有顶盖,卫生防护条件好,可以露天设置,与钢筋混凝土滤池相比自重小,采用沥青砂柔性基础。
根据多年来在各个工程成功运行经验和各用户反馈意见、结合多年生产经验,不断更新完善,研制出了改进型第三代重力式无阀过滤器。
更新完善的该重力式无阀过滤器环保设备,具备了更宽广的处理能力和适用范围,江苏锐志环保公司生产的无阀过滤器/无阀滤池有二大系列:一类是滤池为方形CBL-Ⅱ型,过滤水量有20m3/h至175m3/h;另一类滤池为圆形DLB-Ⅱ、DLB-Ⅲ型,过滤水量有20m3/h至80m3/h、200m3/h至750m3/h。
其中过滤水量为20m3/h至175m3/h的均整体运输至现场,过滤水量为200m3/h至750m3/h的,由我厂预制成几部分,运至现场拼装而成,再经防腐后交付施工单位,装填滤料后即可调试和运行。
同时可根据用户不同要求设计制造可满足大型循环冷却水系统旁滤处理要求的规模更大的组合型无阀过滤器。
工作原理:原水由进水管送入滤池,经过滤池层自上而下地过滤,清水即从连通管注入存水箱内贮存,水箱充满后,水通过出水管入清水池管入清水池。
水处理过滤设备的分类和技术过滤设备(一)压力过滤器压力过滤器也称机械过滤器。
设备用钢材制造,直径一般不超过3m,内壁涂防腐涂料或衬胶。
滤层厚度一般为1.0~终水头损失可达到5~6m。
一般R用单水高速冲洗,为提高冲洗效果,可考虑用压缩空气循助冲洗。
滤料可采用单滤料、双滤料或三层滤料,一般以单、双滤料 压力式过滤器结构示意为多。
在膜处理系统中,双滤料过滤器也称多介质过滤器。
图2-30为双滤料过滤器结构示意。
(二)重力过滤池1.重力式无阀滤池重力式无阀滤池工作原理如下:水从分配槽下的U形进水管进人,通过过滤层汇集到下部集(配)水系统,过滤后的水通过在池壁四角的连通管至集水区(也是反冲洗的储水箱)流出。
随着运行时间的增加,滤层中截留的悬浮物增加而滤层中阻力增大,于是虹吸上升管内水面随之升高。
当阻力继续增大,使水位上升到虹吸辅助管口时,水就由此管中急剧下落,这时虹吸管中空气通过抽气管不断抽走并随水流到排水沟后逸人大气。
同时虹当冲洗水箱水位下降到虹吸破坏管管口以下时,由于空气进人虹吸管内,虹吸作用破坏,反冲洗过程结束,自动进人运行。
无阀虑池刚投人运行时滤层比较清洁,虹吸上升管内、外的水位高度差表示滤池的初期水头损失,一般为200mm左右。
在运行过程中因流量不变,滤层中阻力逐渐增大,虹吸上升管内水位便随之慢慢升高,所以基本上是等速过滤。
无阀滤池自运行开始到虹吸管中抽气这一段时间即是无阀滤池的工作周期,一半在十几小时到几十小时之间,冲洗形成时间为2~3min,冲洗时间约为4-5min。
无阀滤池虹吸管的高度反映运行期终水头损失的允许值,与滤池的工作周期有关,虹吸管的高度一般采用 1.5~2m.。
重力式无阀滤池的标___*构如图2-31。
由于重力式无阀滤池存在进水系统复杂、进水过程易夹气,影响正常的过滤和反冲洗;采用单层石英砂滤料,滤池产水量低等问题有使用单位对240m3 /h重力式无阀滤池进行了技术改造,改造后的重力式无阀滤池产水量提高并较成功地解决了以上几个方面的问题。
序号 图集编号图集名称 图集标准号 备注1 02S101 矩形给水箱代替S151(一);92S178;93S178 2 98S102 卧式水泵隔振及其安装 原图集号98S657 3 98S103 立式水泵隔振及其安装 原图集号95SS658 4 02SS104 二次供水消毒设备选用与安装5 01SS105 常用小型仪表及特种阀门选用安装(A 、B )6 02S106 中小型冷却塔选用及安装 代替90S436(一)、91S436(二)7 04S107 游泳池附件安装及设备选用8 05S108 倒流防止器安装9 06SS109 管网又叠压供水设备选用与安装 10 05SS121 热水机组选用与安装(A 、B )11 01S122-1 RV 系列导流型容积式水加热器选用及安装 代替92S170(一)--(二)12 01S122-2 HRV 系列导流型半容积式水加热器选用及安装 13 01S122-3 SV 系列弹性管束型半容积式水加热器选用及安装 14 01S122-4 SI 系列弹性管束型半即热式水加热器选用及安装 1501S122-5TBF 系列浮动盘管型半容积式水加热器选用及安装16 01S122-6SW、WW系列浮动盘管型半即热式水加热器选用及安装17 01S122-7BFG系列浮动盘管型半容积式水加热器用及安装18 01S122-8TGT系列浮动盘管型半即热式水加热器选用及安装19 01S122-9SS、MS系列U形管型容积式水加热器选用及安装20 01S122-10DFHRV系列导流浮动盘管型半容积式水加热器选用及安装21 01S123贮水罐选用及安装代替S152,S15322 95S124自控恒温装置原图集号95S190现仅汇入2004年版S1(二)之中23 01S125开水器(炉)选用及安装代替87S15724 01SS126住宅用热水器选用及安装25 06SS127热泵热水系统选用与安装26 06SS128太阳能集中热水系统选用与安装27 01S201室外消火栓安装代替88S16228 04S202室内消火栓安装代替99S20229 99S203消防水泵接合器安装代替86S16430 99(03)S203消防水泵接合器安装与99S203配合使用31 04S204消防专用水泵选用及安装(A、B)32 98S205消防增压稳压设备选用与安装(隔膜式气压罐)原图集号98S17633 04S206自动喷水与水喷雾灭火设施安装代替89SS17534 07S207气体消防系统选用、安装与建筑灭火器配置35 04S301建筑排水设备附件选用安装代替92S22036 01S302雨水斗代替87S34837 92S303医院卫生设备安装原图集号92S340现仅汇入2004年版S1(二)之中38 99S304卫生设备安装代替90S34239 01S305小型潜水排污泵选用及安装40 01(03)S305小型潜水排污泵选用及安装(2003年局部修改版)与01S305配合使用41 03S401管道和设备保温、防结露及电伴热代替87S15942 03S402室内管道支架及吊架(A、B、C、D)代替S16143 02S403钢制管件(A、B)代替S311和90S31944 02S404防水套管代替S31245 02SS405-1 a b硬聚氯乙烯(PVC-U)给水管安装 a b46 02SS405-2 a b无规共聚聚丙烯(PP-R)给水管安装 a b47 02SS405-3 a b铝塑复合给水管安装 a b48 02SS405-4 a b交联聚乙烯(PE-X)给水管安装 a b49 96S406建筑排水用硬聚氯乙烯(PVC-U)管道安装原图集号96S34150 03S407-1建筑给水金属管道安装—铜管51 04S407-2建筑给水金属管道安装一薄壁不锈钢管52 03SS408住宅厨、卫给排水管道安装(A、B)53 04S409建筑排水用柔性接口铸铁管安装54 97S501-1井盖及踏步原图集号97S14755 02S501-2双层井盖56 05S502室外给水管道附属构筑物(A、B)代替S143、S144、S145、S146、S16057 03S504刚性接口给水承插式铸铁管道支墩代替CS345(一)-(六)58 03SS505柔性接口给水管道支墩(A、B、C、D)59 05S506-1自承式平直形架空钢管60 06S506-2自承式圆弧形架空钢管61 02S515排水检查井(A、B)代替S231、S232、S233、S234、CS23662 02(03)S515 排水检查井与配02S515配合使用 63 04S516 混凝土排水管道基础及接口 代替95S516 64 95S517 排水管道出水口 原图集号95S223 65 95(03)S517 排水管道出水口 与95S517配合使用66 05S518 雨水口代替S518-1--2(1995年合订本) 67 04S519 小型排水构筑物(A 、B 、C 、D ) 代替01S519 68 04S520 埋地塑料排水管道施工69 05SS521 预制装配式钢筋混凝土排水检查井 70 05SS522 混凝土模块式排水检查井71 04S531-1 湿陷性黄土地区给水排水管道基础及接口 代替86S460(一)-(七)72 04S531-2 湿陷性黄土地区给水排水检漏管沟 73 04S531-3 湿陷性黄土地区给水排水检漏井 74 04S531-4 湿陷性黄土地区给水阀门井 75 04S531-5 湿陷性黄土地区排水检查井井有条 76 07SS604 建筑管道直饮水工程7702S701砖砌化粪池(A 、B 、C )代替92S213(一)-(五)78 03S702钢筋混凝土化粪池(A、B)代替92S214(一)-(五)79 03SS703-1建筑中水处理工程(一)80 04S801-1钢筋混凝土倒锥壳保温水塔(50m3、100m3)(A、B、C)代替89S842(一)81 04S801-2钢筋混凝土倒锥壳保温水塔(150m3、200m3、300m3)(A、B、C)代替89S842(二)-(六)82 04S802-1钢筋混凝土倒锥壳不保温水塔(50m3、100m3)(A、B)代替94S844(一)83 04S802-2钢筋混凝土倒锥壳不保温水塔(150m3、200m3、300m3)(A、B、C、D、E、F、G、H、I)代替94S844(二)-(六)84 04S803圆形钢筋混凝土蓄水池总容积50m3--2000m3代替96S811-96S821、96S834-96S82585 05S804矩形钢筋混凝土蓄水池有效容积50m3-2000m3(A、B)代替96S823-96S833、96S836-96S83886 04S901民用建筑工程给水排水施工图设计深度图样87 05S902 民用建筑工程给水排水初步设计深度图样88 05SS903民用建筑工程互提资料尝试及图样(给水排水专业)89 05SS904民用建筑工程设计常见问题分析及图示(给水排水专业)90 05SS905给水排水实践教学及见习工程师图册91 07S906给水排水构筑物设计选用图(水池民、水塔、化粪池、小型排水构筑物)(A、B、C、D)92 05SS907小城镇住宅给水排水设施选用与安装(A、B、C、D)93 07SS908建筑给水排水常用设计参数及数据94 07MS101 a b c d e市政给水管道工程及附属设施a b c d e95 06MS201市政排水管道工程及附属设施A B C D E F G96 S160给水栓97 05SS907-4砖砌给水阀门井及水表井98 05SS907-2卫生设备及排水附件安装99 01S519小型排水构筑物100 02S701(a)砖砌化粪池(P1-85)101 02S701(b)砖砌化粪池(P86-170)102 03S702(b2)钢筋混凝土化粪池(P91-180)103 03S702(a1)钢筋混凝土化粪池(P1-90)104 CS345(一)-(六)给水承插铸铁管道支墩105 92S214(一)-(五)钢筋混凝土化粪池106 05S804(a)矩形钢筋混凝土蓄水池(P1-93)107 05S804(b)矩形钢筋混凝土蓄水池(P94-186)108 90S503格栅、格网及起吊架109 04S301建筑排水设备附件选用安装110 08S305小型潜水排污泵选用及安装111 08SS703-2建筑中水处理工程(二)112 08SS523建筑小区塑料排水检查井113 05SS907-3给水塑料管安装114 防洪防汛工程(下册)防洪防汛工程(下册)115 防洪防汛工程(上册)防洪防汛工程(上册)116 99S304卫生设备安装117 WS卫生工程标准图集118 S151(一)水箱119 S145水表井120 02SS405-4交联聚乙烯(PE-X)给水管安装121 02SS405-3铝塑复合给水管安装122 S231圆形雨水井123 S1(下册)(b)给水排水标准图集(157-312页)124 S1(下册)(a)给水排水标准图集(1-156页)125 S1(上册)(a)给水排水标准图集(1-121页)126 S1(上册)(b)给水排水标准图集(122-242页)127 01S122-4SI系列弹性管束型半即热式水加热器选用及安装128 98T901管道及设备保温129 89SS175室内自动喷水灭火设施安装130 01S122-1RV系列导流型容积式水加热器选用及安装131 01S122-10DFHRV系列导流浮动盘管型半容积式水加热器选用及安装132 01S122-8TGT系列浮动盘管型半即热式水加热器选用及安装133 01S122-7BFG系列浮动盘管型半容积式水加热器选用及安装134 01S122-9S S、MS系列U形管型容积式水加热器选用及安装135 01S122-6SW、WW系列浮动盘管型半即热式水加热器选用及安装136 01S122-5TBF系列浮动盘管型半容积式水加热器选用及安装137 01S122-3S V系列弹性管束型半容积式水加热器选用及安装138 01S122-2HRV系列导流型半容积式水加热器选用及安装139 93T921-1汽-水换热器140 S775(三)80重力式无阀滤池141 96S823~96S833(a)矩形钢筋混凝土清水池国标图集(1-80页)142 96S823~96S833(b)矩形钢筋混凝土清水池国标图集(81-157页)143 87S159管道和设备保温。
给排水专业废止图集2012-3-13序号图集号图集名称废止文号废止时间替代图集1S3给水排水标准图集排水设备及卫生器具安装(2004年合订本)2S141(一)皮碗式防冻给水栓建设[1994]386号1994年6月18日3S141(二)活塞式防冻给水栓建设[1994]386号1994年6月18日4S141(三)外排式防冻给水栓建设[1994]386号1994年6月18日5S141(四)地温式防冻给水栓建设[1994]386号1994年6月18日6CS142自闭式水锤消除器建设[1994]386号1994年6月18日7CS150太阳能热水器建设[1994]386号1994年6月18日01SS1268S215砖砌汽车库洗车污水沉淀池建设[1994]386号1994年6月18日04S5199S217小型排水构筑物建设[1994]386号1994年6月18日10S315钢制活塞式浮球阀建设[1994]386号1994年6月18日11S316铸铁活塞式浮球阀建设[1994]386号1994年6月18日12S323投药设备建设[1994]386号1994年6月18日13S420含氰污水混合反应池(连续式)建设[1994]386号1994年6月18日14S421含铬污水混合反应池(连续式)建设[1994]386号1994年6月18日15S422.1生产污水沉淀池(重力排空式)建设[1994]386号1994年6月18日16S422.2生产污水沉淀池(非重力排空式)建设[1994]386号1994年6月18日17CS425(一)电解法处理含铬废水重力式调节池建设[1994]386号1994年6月18日18CS425(二)电解法处理含铬废水提升式调节池建设[1994]386号1994年6月18日19CS426(一)电解法处理含铬废水硬聚氯乙烯塑料电解槽建设[1994]386号1994年6月18日20CS426(二)电解法处理含铬废水地上式钢筋混凝土电解槽建设[1994]386号1994年6月18日21CS426(三)电解法处理含铬废水地上式钢筋混凝土电解槽建设[1994]386号1994年6月18日22S416.1含氰污水处理池(重力排空式)建设[1994]386号1994年6月18日23S416.2含氰污水处理池(非重力排空式)建设[1994]386号1994年6月18日24S417含铬污水处理池(间歇式)建设[1994]386号1994年6月18日25S651(三)阶梯型半地下式深井泵房建设[1994]386号1994年6月18日26S774(一)机械加速澄清池200m3/h建设[1994]386号1994年6月18日27S774(二)机械加速澄清池320m3/h建设[1994]386号1994年6月18日28S774(三)机械加速澄清池430m3/h建设[1994]386号1994年6月18日29S774(四)机械加速澄清池600m3/h建设[1994]386号1994年6月18日30S774(五)机械加速澄清池800m3/h建设[1994]386号1994年6月18日31S774(六)机械加速澄清池1000m3/h建设[1994]386号1994年6月18日32S774(七)机械加速澄清池1300m3/h建设[1994]386号1994年6月18日33S774(八)机械加速澄清池1800m3/h建设[1994]386号1994年6月18日34S755压力式无阀滤池,产水能力10~45立方米/时建设[1994]386号1994年6月18日3585SS782压力滤器选用安装图建设[1996]491号1996年8月20日36S6S788(给排水设计选用手册)全国通用建筑标准设计图集给水排水设计选用手册深井取水、净水、蓄水构筑物建设[1996]491号1996年8月20日3785SS850(一)气压给水罐建设[1996]491号1996年8月20日3885SS850(二)气压给水罐建设[1996]491号1996年8月20日3985SS850(三)气压给水罐建设[1996]491号1996年8月20日40S314提拔阀门建设[1996]491号1996年8月20日41S418.1酸碱污水自然中和池(重力排空式)建设[1996]491号1996年8月20日42S418.2酸碱污水自然中和池(非重力排空式)建设[1996]491号1996年8月20日43S419.1酸碱污水处理池(重力排空式)建设[1996]491号1996年8月20日44S419.2酸碱污水处理池(非重力排空式)建设[1996]491号1996年8月20日4591S430电渗析器选用安装图建设[1996]491号1996年8月20日46S343浮子式定量投配设备(孔板型)建设[1996]491号1996年8月20日47S344浮子式流量恒定器(孔板型)建设[1996]491号1996年8月20日48S461给水管穿越铁路建设[2000]58号2000年3月17日4990S470污水两级气浮设备选用安装图建设[2000]58号2000年3月17日5090SS851补气式气压设备选用安装图建设[2000]58号2000年3月17日5185S653(一)~(八)钢筋混凝土及砖石造大口井建设[2000]58号2000年3月17日5285SS654小型取水口建质[2001]258号2001年12月26日5386SS656IS型水泵安装建质[2001]258号2001年12月26日54CS772(一)~(三)脉冲澄清池建质[2001]258号2001年12月26日55S773(一)~(四)虹吸滤池建质[2001]258号2001年12月26日5685SS776自然沉淀池建质[2001]258号2001年12月26日5791SS852(一)、(二)隔膜式气压水罐选用安装图建质[2001]258号2001年12月26日5886SS901农村给水工程(总册)建质[2001]258号2001年12月26日5985S778(一)~(五)慢滤池建质[2001]258号2001年12月26日6095S843(4~6)、(10~18)钢筋混凝土支架不保温水塔(50m3~200m3)建质[2001]258号2001年12月26日6189SS471(一)~(二)医院污水处理(氯片消毒法)建质[2001]258号2001年12月26日6292SS472(一)~(三)医院污水处理次氯酸纳系列建质[2001]258号2001年12月26日6392SS473(一)~(三)医院污水处理次氯酸钠系列建质[2001]258号2001年12月26日6492SS474(一)~(三)医院污水处理次氯酸钠系列建质[2001]258号2001年12月26日6594SS475(一)、(二)医院污水处理液氯系列建质[2001]258号2001年12月26日6694SS476(一)、(二)医院污水处理液氯系列建质[2001]258号2001年12月26日6794SS477(一)、(二)医院污水处理液氯系列建质[2001]258号2001年12月26日6885S347小型投药设备建质[2001]258号2001年12月26日6987S348雨水斗建质[2001]258号2001年12月26日01S3027085S652钢、铸铁、钢筋混凝土及砾石混凝土井管建质[2001]258号2001年12月26日7188S326水上式底阀选用安装图建质[2001]258号2001年12月26日7290S342卫生设备安装建质[2001]258号2001年12月26日99S30473S313套管式伸缩器建质[2001]258号2001年12月26日74S318水塔水池浮漂水位标尺建质[2001]258号2001年12月26日7588S238(一)~(四)锅炉排污降温池建质[2001]258号2001年12月26日04S5197693S217小型排水构筑物建质[2001]258号2001年12月26日7793S180热管开水器安装选用图建质[2001]258号2001年12月26日7893S181热管快速热交换器(汽─水换热)安装、选用图建质[2001]258号2001年12月26日7994S182热管卧式容积式热交换器(汽─水换热)安装、选用图建质[2001]258号2001年12月26日S122-1~108094S183热管立式容积式热交建质[2001]258号2001年12月26换器(汽日─水换热)安装、选用图8195S184热管卧式容积式热交换器(水─水换热)安装、选用图建质[2001]258号2001年12月26日8295S185热管立式容积式热交换器(水─水换热)安装、选用图建质[2001]258号2001年12月26日8389S152(一)~(五)卧式贮水罐建质[2001]258号2001年12月26日01S1238489S153(一)~(五)立式贮水罐建质[2001]258号2001年12月26日85S156冷热水混合器建质[2001]258号2001年12月26日8687S157蒸汽间断式开水炉建质[2001]258号2001年12月26日01S1258786S158(一)蒸汽一水快速热交换器(小型单管式)建质[2001]258号2001年12月26日8888S162室外消火栓安装建质[2001]258号2001年12月26日01S2018987S163室内消火栓安装建质[2001]258号2001年12月26日04S2029086S164消防水泵接合器安装建质[2001]258号2001年12月26日99S20399(03)S2039192S170(一)~(二)热交换器选用安装图建质[2001]258号2001年12月26日S122-1~109290S847(一)、(五)(分册)钢筋混凝土支筒保温水塔(50m3~400m3)建质[2001]258号2001年12月26日9385S848小型砖石圆型蓄水池(10m3~300m3)建质[2001]258号2001年12月26日9485S849(一)、(二)15m3砖支筒水塔建质[2001]258号2001年12月26日95S151(一)方形给水箱建质[2003]53号2003年3月18日02S101 96S151(二)圆形给水箱建质[2003]53号2003年3月18日9792SS177装配式给水箱选用安装图建质[2003]53号2003年3月18日01S2019893S178冲压钢板给水箱安装、选用图建质[2003]53号2003年3月18日99S231圆形排水检查井建质[2003]53号2003年3月18日02(03)S5 1502S515 100S232矩形排水检查井建质[2003]53号2003年3月18日101S233扇形排水检查井建质[2003]53号2003年3月18日102S234跌水井建质[2003]53号2003年3月18日103CS236耐腐蚀检查井及耐腐蚀管道接口建质[2003]53号2003年3月18日104S311钢制管道零件建质[2003]53号2003年3月18日02S403 105S312防水套管建质[2003]53号2003年3月18日02S40410692S213(一)~(五)砖砌化粪池建质[2003]53号2003年3月18日02S70110792S214(一)~(五)钢筋混凝土化粪池建质[2003]53号2003年3月18日03S70210890S319水池通气管、吸水喇叭管及支架建质[2003]53号2003年3月18日02S403109CS345(一)~(六)给水承插铸铁管道支墩(Dg400~1200)建质[2003]53号2003年3月18日03S504110S346投药、消毒设备建质[2003]53号2003年3月18日11195S603-1~ 5 原95S717~721改号机械搅拌澄清池建质[2003]53号2003年3月18日11295SS601-1原95SS437(1)改号100~2000m2钢筋混凝土自然通风冷却塔选用安装图建质[2003]53号2003年3月18日11390S436(一)玻璃钢冷却塔选用安装图(逆流式)建质[2003]53号2003年3月18日02S10611491S436(二)玻璃钢冷却塔选用安装图(横流式)建质[2003]53号2003年3月18日11595S845(一)~(五)砖支筒不保温水塔建质[2003]53号2003年3月18日11690S846(一)~(六)砖支筒保温水塔建质[2003]53号2003年3月18日11785S779(一)~(三)快滤池建质[2003]53号2003年3月18日11885SS780(一)~(三)地下水除铁滤池建质[2003]53号2003年3月18日11988S810小型钢筋混凝土蓄水池建质[2003]53号2003年3月18日12085SS777(一)~(十一)穿孔旋流反应斜管沉淀池建质[2003]53号2003年3月18日121S771(一)~(八)水力循环澄清池建质[2003]53号2003年3月18日122S775(一)~(九)重力式无阀滤池建质[2003]53号2003年3月18日123S161管道支架及吊架建质[2003]74号2003年5月1日03S402 12487S159管道和设备保温建质[2003]211号2003年12月1日03S40112589SS175室内自动喷水灭火设施安装建质[2004]28号2004年3月1日04S20612696S811~96S821、96S834~96S835圆形钢筋混凝土清水池建质[2004]28号2004年3月1日04S80312701S519小型排水构筑物建质[2004]28号2004年3月1日04S519 12895S516排水管道基础及接口建质[2004]28号2004年3月1日04S51612986S460(一)~(七)湿陷性黄土地区给排水管道构筑物建质[2004]73号2004年6月1日S531-1~513094S844(一)~(三)、(一)~(三)(A、B、C、D)、(四)~(六)、(四)~(六) (A、B、C)钢筋混凝土倒锥壳水塔建质[2004]73号2004年6月1日04S802-204S802-113199S202室内消火栓安装建质[2004]73号2004年6月1日04S20213289S842(一)~(三)、J、 (四)~(六)钢筋混凝土倒锥壳保温水塔建质[2004]73号2004年6月1日04S801-104S801-213392S220排水设备附件构造及安装建质[2004]191号2004年12月1日04S301134S160给水栓安装建质[2005]14号2005年3月1日05S502135S143圆形立式阀门井及阀门套筒建质[2005]14号2005年3月1日05S502136S144矩形卧式阀门井建质[2005]14号2005年3月1日05S502137S145水表井及安装建质[2005]14号2005年3月1日05S502 138S146排气阀、排泥阀安装建质[2005]14号2005年3月1日05S50213996S823~96S833、96S836~96S838矩形钢筋混凝土清水池(有效容积50m3~4000m3)建质[2005]118号2005年9月1日05S80414095S518-1~2雨水口建质[2005]201号2005年12月1日05S51814195SS601100~2000m2钢筋混凝土自然通风冷却塔选用安装图建质[2008]18号2008年3月1日14294S602-1~6深井泵房建质[2008]18号2008年3月1日14395S603-1~5机械搅拌澄清池建质[2008]18号2008年3月1日14490S503格栅、格网及起吊架建质[2008]18号2008年3月1日14503SS505柔性接口给水管道支墩建质[2008]18、[2010]110号2008年3月1日10S50514601S305、01(03)S305小型潜水排污泵选用及安装建质[2008]189号2008年12月1日08S30514701(03)S305小型潜水排污泵选用及安装(2003年局部修改版)建质[2008]189号2008年12月1日08S30514801S305小型潜水排污泵选用及安装建质[2008]189号2008年12月1日08S30514901SS126住宅用热水器选用及安装建质[2008]189号2008年12月1日08S12615001S302雨水斗建质[2009]56号2009年6月1日09S302 15192S303医院卫生设备安装建质[2009]56号2009年6月1日09S303 15299S304卫生设备安装建质[2009]121号2009年9月1日09S30415304S901民用建筑工程给水排水施工图设计深度图样建质[2009]121号2009年9月1日09S90115405S902民用建筑工程给水排水初步设计深度图样建质[2009]121号2009年9月1日09S90215503S407-1建筑给水金属管道安装-铜管建质[2009]121号2009年9月1日09S407-115696S406建筑排水用硬聚氯乙烯(PVC-U)管道安装建质[2010]110号2010年9月1日10S40615705SS907小城镇住宅给水排水设施选用与安装建质[2010]168号2010年12月1日游泳池附件安装及设备选用建质[2010]168号2010年12月1日10S60515804S10715904S407-2建筑给水金属管道安装-薄壁不锈钢管建质[2010]168号2010年12月1日10S407-216002SS405-1~4给水塑料管安装(2002年合订本)建质[2011]164号2011年12月1日16102SS405-1硬聚氯乙烯(PVC-U)给水管安装建质[2011]164号2011年12月1日16202SS405-2无规共聚聚丙烯(PP-R)给水管安装建质[2011]164号2011年12月1日16302SS405-3铝塑复合给水管安装建质[2011]164号2011年12月1日16402SS405-4交联聚乙烯(PE-X)给水管安装建质[2011]164号2011年12月1日(注:素材和资料部分来自网络,供参考。
重力式无阀滤池的技术改造重力式无阀滤池具有无大型阀门、正水头过滤、冲洗自动化、造价低及操作管理方便等优点,因而在铁路或县镇中小型水厂中得到了广泛的应用。
但重力式无阀滤池存在以下问题:进水系统复杂、施工要求高;进水过程易夹气,影响正常的过滤和反冲洗;采用单层石英砂滤料,滤池产水量低,不能满足供水量日益增大的要求。
上饶铁路东门给水所的给水改扩建工程是将原12 000m3/d 的供水规33模扩建成20 000m/d,其中增加320m/h的重力式无阀滤池1座。
作者对国家标准图中240m3/h的重力式无阀滤池进行了技术改造,改造后的重力式无阀滤池产水量提高到320m3/h,较成功地解决了以上几个方面的问题。
1 改造后的构造和工作原理改造后的无阀滤池构造见图1。
过滤时的工作情况:浑水经进水总管1流入进水分配箱22,由进水分配堰2进入竖井进水渠3,经消能板4消能后,均匀地分布在滤料层5上,通过承托层6、小阻力配水系统7进入底部配水空间8。
滤后水从底部配水空间经连通区9上升到冲洗水箱10。
当水箱水位达到出水渠11的溢流堰顶后,溢入渠内,最后流入清水池。
图1 改造后的重力式无阀滤池结构1 进水总管2 进水分配堰3 竖井进水渠4 消能板5 滤料层 6承托层7 小阻力配水系统8 配水空间9 连通区10 冲洗水箱11出水渠12 虹吸辅助管13 抽气管14 虹吸上升管15 虹吸下降管16 排水渠17 反冲洗调节器18 虹吸破坏斗19 虹吸破坏管20伞形顶盖21 水封斗22 进水分配箱反冲洗时的工作情况:滤池运行中,滤层阻力逐渐增加,虹吸上升管14中的水位相应逐渐升高。
当水位达到虹吸辅助管12管口时,水自该管中落下,并通过抽气管13不断将虹吸下降管15中的空气带走,使虹吸管中形成真空。
当虹吸上升管中的水越过虹吸管顶端与虹吸下降管中上升的水柱相汇时,两股水流汇成一股,冲出虹吸下降管管口,把虹吸管中残存的空气全部带走,形成连续的虹吸流。
摘要:重力式滤池以其低能耗在给水过滤处理中有着广泛的应用。
主要针对重力式滤池的结构、运行方式以及滤料等方面来论述重力式滤池在水处理技术中的发展应用。
关键词:重力式滤池;结构;运行方式;滤料1804年英国首次记载了慢滤池,慢滤池(slow filter)也称表层过滤,主要利用顶部的滤膜截留悬浮固体,同时发挥微生物对水质的净化作用。
这种滤池生产水量少、滤速慢(<10m/d)、占地大,目前慢滤池方式在水处理,特别是污水处理中应用较少;1870年在美国现出了第一座普通快滤池,.快速过滤采用过滤和反冲洗两个步骤,实现截留悬浮固体和清洗滤层,将滤速提高到几十倍到几百倍,从而提高产水量来满足人民生活和工业发展要求。
1 粒状滤料滤池以石英砂作为滤料的普通快滤池使用历史最久。
在此基础上,人们从不同的工艺角度发展了其它型式快滤池。
1.1 普通快滤池普通快滤池工作机理:过滤时,开启进水支管和清水支管的阀门。
关闭冲洗水支管阀门与排水阀。
浑水就经进水总管、支管从浑水渠进入滤池。
经过滤料层、承托层后,由配水系统的配水支管汇集起来再经配水系统干管、清水支管、清水总管流往清水池。
反冲洗时,关闭进水支管和清水支管的阀门。
开启排水阀与冲洗水支管阀门。
冲洗水即由冲洗水总管、支管,经配水系统的干管、支管及支管上的许多孔眼流出,自上而下穿过承托层及滤料层,均匀地分布整个滤池平面上。
滤料层在自上而下均匀分布的水流中处于悬浮状态,滤料得到清洗。
冲洗废水流入排水槽,再经浑水渠、排水管和废水渠排入下水道。
1.2 虹吸滤池20世纪60时年代开始,突破了常规滤池设计,引进了国外的虹吸滤池,以建成一百余座。
北京印染厂给水工程:设计规模700m3/时,该厂通过小型试验取得设计参数,是我国首先采用虹吸滤池的水厂。
虹吸滤池的工作机理:虹吸滤池的滤料组成和滤速选定与普通快滤池相同,所不同的是每个单元滤池都配置了进水虹吸管和排水虹吸管,利用虹吸作用来代替滤池的进水阀门和反冲洗排水阀门。
序号图集编号图集名称图集标准号备注102S101矩形给水箱代替S151(一);92S178;93S178298S102卧式水泵隔振及其安装原图集号98S657398S103立式水泵隔振及其安装原图集号95SS658402SS104二次供水消毒设备选用与安装501SS105常用小型仪表及特种阀门选用安装(A 、B)602S106中小型冷却塔选用及安装代替90S436(一)、91S436(二)704S107游泳池附件安装及设备选用805S108倒流防止器安装906SS109管网又叠压供水设备选用与安装1005SS121热水机组选用与安装(A 、B)1101S122-1RV 系列导流型容积式水加热器选用及安装代替92S170(一)--(二)1201S122-2HRV 系列导流型半容积式水加热器选用及安装1301S122-3SV 系列弹性管束型半容积式水加热器选用及安装1401S122-4SI 系列弹性管束型半即热式水加热器选用及安装1501S122-5TBF 系列浮动盘管型半容积式水加热器选用及安装1601S122-6SW、WW系列浮动盘管型半即热式水加热器选用及安装1701S122-7BFG系列浮动盘管型半容积式水加热器用及安装1801S122-8TGT系列浮动盘管型半即热式水加热器选用及安装1901S122-9SS、MS系列U形管型容积式水加热器选用及安装2001S122-10DFHRV系列导流浮动盘管型半容积式水加热器选用及安装2101S123贮水罐选用及安装代替S152,S1532295S124自控恒温装置原图集号95S190现仅汇入2004年版S1(二)之中2301S125开水器(炉)选用及安装代替87S1572401SS126住宅用热水器选用及安装2506SS127热泵热水系统选用与安装2606SS128太阳能集中热水系统选用与安装2701S201室外消火栓安装代替88S1622804S202室内消火栓安装代替99S2022999S203消防水泵接合器安装代替86S1643099(03)S203消防水泵接合器安装与99S203配合使用3104S204消防专用水泵选用及安装(A、B)3298S205消防增压稳压设备选用与安装(隔膜式气压罐)原图集号98S176 3304S206自动喷水与水喷雾灭火设施安装代替89SS175 3407S207气体消防系统选用、安装与建筑灭火器配置3504S301建筑排水设备附件选用安装代替92S220 3601S302雨水斗代替87S3483792S303医院卫生设备安装原图集号92S340现仅汇入2004年版S1(二)之中3899S304卫生设备安装代替90S3423901S305小型潜水排污泵选用及安装4001(03)S305小型潜水排污泵选用及安装(2003年局部修改版)与01S305配合使用4103S401管道和设备保温、防结露及电伴热代替87S1594203S402室内管道支架及吊架(A、B、C、D)代替S1614302S403钢制管件(A、B)代替S311和90S319 4402S404防水套管代替S3124502SS405-1a b硬聚氯乙烯(PVC-U)给水管安装a b4602SS405-2a b无规共聚聚丙烯(PP-R)给水管安装a b4702SS405-3a b铝塑复合给水管安装a b4802SS405-4a b交联聚乙烯(PE-X)给水管安装a b4996S406建筑排水用硬聚氯乙烯(PVC-U)管道安装原图集号96S3415003S407-1建筑给水金属管道安装—铜管5104S407-2建筑给水金属管道安装一薄壁不锈钢管5203SS408住宅厨、卫给排水管道安装(A、B)5304S409建筑排水用柔性接口铸铁管安装5497S501-1井盖及踏步原图集号97S1475502S501-2双层井盖5605S502室外给水管道附属构筑物(A、B)代替S143、S144、S145、S146、S160 5703S504刚性接口给水承插式铸铁管道支墩代替CS345(一)-(六)5803SS505柔性接口给水管道支墩(A、B、C、D)5905S506-1自承式平直形架空钢管6006S506-2自承式圆弧形架空钢管6102S515排水检查井(A、B)代替S231、S232、S233、S234、CS2366202(03)S515排水检查井与配02S515配合使用6304S516混凝土排水管道基础及接口代替95S5166495S517排水管道出水口原图集号95S2236595(03)S517排水管道出水口与95S517配合使用6605S518雨水口代替S518-1--2(1995年合订本)6704S519小型排水构筑物(A 、B 、C 、D)代替01S5196804S520埋地塑料排水管道施工6905SS521预制装配式钢筋混凝土排水检查井7005SS522混凝土模块式排水检查井7104S531-1湿陷性黄土地区给水排水管道基础及接口代替86S460(一)-(七)7204S531-2湿陷性黄土地区给水排水检漏管沟7304S531-3湿陷性黄土地区给水排水检漏井7404S531-4湿陷性黄土地区给水阀门井7504S531-5湿陷性黄土地区排水检查井井有条7607SS604建筑管道直饮水工程7702S701砖砌化粪池(A 、B、C)代替92S213(一)-(五)7803S702钢筋混凝土化粪池(A、B)代替92S214(一)-(五)7903SS703-1建筑中水处理工程(一)8004S801-1钢筋混凝土倒锥壳保温水塔(50m3、100m3)(A、B、C)代替89S842(一)8104S801-2钢筋混凝土倒锥壳保温水塔(150m3、200m3、300m3)(A、B、C)代替89S842(二)-(六)8204S802-1钢筋混凝土倒锥壳不保温水塔(50m3、100m3)(A、B)代替94S844(一)8304S802-2钢筋混凝土倒锥壳不保温水塔(150m3、200m3、300m3)(A、B、C、D、E、F、G、H、I)代替94S844(二)-(六)8404S803圆形钢筋混凝土蓄水池总容积50m3--2000m3代替96S811-96S821、96S834-96S825 8505S804矩形钢筋混凝土蓄水池有效容积50m3-2000m3(A、B)代替96S823-96S833、96S836-96S838 8604S901民用建筑工程给水排水施工图设计深度图样8705S902民用建筑工程给水排水初步设计深度图样8805SS903民用建筑工程互提资料尝试及图样(给水排水专业)8905SS904民用建筑工程设计常见问题分析及图示(给水排水专业)9005SS905给水排水实践教学及见习工程师图册9107S906给水排水构筑物设计选用图(水池民、水塔、化粪池、小型排水构筑物)(A、B、C、D)9205SS907小城镇住宅给水排水设施选用与安装(A、B、C、D)9307SS908建筑给水排水常用设计参数及数据9407MS101a b c d e市政给水管道工程及附属设施a b c d e 9506MS201市政排水管道工程及附属设施A B C D E F G 96S160给水栓9705SS907-4砖砌给水阀门井及水表井9805SS907-2卫生设备及排水附件安装9901S519小型排水构筑物10002S701(a)砖砌化粪池(P1-85)10102S701(b)砖砌化粪池(P86-170)10203S702(b2)钢筋混凝土化粪池(P91-180)10303S702(a1)钢筋混凝土化粪池(P1-90)104CS345(一)-(六)给水承插铸铁管道支墩10592S214(一)-(五)钢筋混凝土化粪池10605S804(a)矩形钢筋混凝土蓄水池(P1-93)10705S804(b)矩形钢筋混凝土蓄水池(P94-186)10890S503格栅、格网及起吊架10904S301建筑排水设备附件选用安装11008S305小型潜水排污泵选用及安装11108SS703-2建筑中水处理工程(二)11208SS523建筑小区塑料排水检查井11305SS907-3给水塑料管安装114防洪防汛工程(下册)防洪防汛工程(下册)115防洪防汛工程(上册)防洪防汛工程(上册)11699S304卫生设备安装117WS卫生工程标准图集118S151(一)水箱119S145水表井12002SS405-4交联聚乙烯(PE-X)给水管安装12102SS405-3铝塑复合给水管安装122S231圆形雨水井123S1(下册)(b)给水排水标准图集(157-312页)124S1(下册)(a)给水排水标准图集(1-156页)125S1(上册)(a)给水排水标准图集(1-121页)126S1(上册)(b)给水排水标准图集(122-242页)12701S122-4SI系列弹性管束型半即热式水加热器选用及安装12898T901管道及设备保温12989SS175室内自动喷水灭火设施安装13001S122-1RV系列导流型容积式水加热器选用及安装13101S122-10DFHRV系列导流浮动盘管型半容积式水加热器选用及安装13201S122-8TGT系列浮动盘管型半即热式水加热器选用及安装13301S122-7BFG系列浮动盘管型半容积式水加热器选用及安装13401S122-9S S、MS系列U形管型容积式水加热器选用及安装13501S122-6SW、WW系列浮动盘管型半即热式水加热器选用及安装13601S122-5TBF系列浮动盘管型半容积式水加热器选用及安装13701S122-3S V系列弹性管束型半容积式水加热器选用及安装13801S122-2HRV系列导流型半容积式水加热器选用及安装13993T921-1汽-水换热器140S775(三)80重力式无阀滤池14196S823~96S833(a)矩形钢筋混凝土清水池国标图集(1-80页)14296S823~96S833(b)矩形钢筋混凝土清水池国标图集(81-157页)14387S159管道和设备保温。