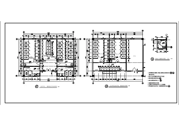
0.51.1.1.51.59.14.1-1沐浴间沐浴间主食加工面点制作油炸,糕点杂品库副食库消毒间主食库锅 炉 间电建 筑结 构水开水间女更衣室男更衣室男更衣室男更衣室售票处男更衣室门 厅营业房男更衣室一层平面图1:150粗加工蒸饭间备餐备餐烧火间炒菜间炒菜间烧火间切配间切配间油炸,糕点消毒间粗加工蒸饭间备餐备餐面点制作主食加工副食库杂品库女更衣男更衣售 饭 间主食库男更衣室沐浴间沐浴间温水池烫水池热水池C-AC-BC-CC-DC-1/CC-EC-FC-GD-1D-2D-3D-4D-5D-6D-7D-8D-9D-10D-11B-AB-BB-CA-AA-BA-CA-DA-EA-FA-G餐 厅A-1A-2A-4A-6A-8A-10A-11A-13A-14售 饭 间474020002000200048401800700018007100210030003300450018004800330033007 排水立管管经在%%c110以上在穿越楼板处下方设置阻火装置5 卫生清洁具及洗涤盆由业主自理安装见99S3041 生活给水采用1.25MPa高密度聚乙烯PPR管,采用热熔连接,2 室内污水管,废水管,通气管,雨水管均采用UPVC管,粘接,标高以室内%%p0.00相对标高,冷,热水及消防管道为管中心标高,排水管为管内底标高.管道安装及伸缩节设置详见建筑排水硬聚氯乙烯管道工程技术规程3 给水,消防管道及卫生洁具安装均按《规范》执行。管道支调架安装见国标89S175及S161.2 钢立管穿楼板处应做钢套管,套管直径比管径大2号,套管顶部高出地面20mm,底部与楼板底面平,1 管道穿建筑物基础,墙,梁,楼板处应配合土建施工预留孔洞套管,施工图未注明者按《规范》规定尺寸预留。本图中的间距尺寸,管径均以毫米计,标高以米计。3 消火栓给水管 采用镀锌钢管丝扣连接,8 屋面管道用离心玻璃棉保温.厚度&=50mm