楼梯设计及施工图绘制
- 格式:pptx
- 大小:1.36 MB
- 文档页数:28
楼梯绘制流程WORD版本更新时间2012年7月15日一读懂楼梯建筑图我认为想画好楼梯的结构图,必须先读懂楼梯的建筑图,由于建筑设计在整个设计中的"龙头"地位,后续所以的设计专业都要以它为设计的依据,所以读懂楼梯建筑图对于画好楼梯结构图纸非常关键究竟什么是建筑图,我们该怎么定义它呢?我觉得啊,个人看法,一种事物,当然我们不懂它的定义时,可以去查书查资料也可以去无所不能的百度,但是你会发现那些定义都是非常晦涩的字眼,大家一定要弄懂之后务必用自己的理解再给它一个你自己认为合理的定义,只有这样你对它的印象才会印在你的脑子而不是那些晦涩的文字定义。
我对建筑平面图的理解是---它是建筑物在装修完成后对每一层的楼梯向上某一跑梯段标高处剖切后的俯视图,我的理解建筑图的实质就是剖面后的俯视图,下面结合我正在做的案例来说明,看图A 地下室楼梯建筑平面图B 一层楼梯建筑平面图C 二层楼梯建筑平面图D 三层(本案例的顶层)楼梯建筑平面图E 楼梯建筑剖面图我们知道楼梯是一个立体空间结构所以想弄明白楼梯就必须结合平面图和剖面图来一起看大家在看图的时候会发现一个符号这叫剖断线表示该平面图被剖到的部位我们结合A图和E图此案例为四跑楼梯A图表示在该层(地下一层)中第三跑梯段标高处被剖断线剖切并俯视得出来的图再结合B图和E图B图表示该层(首层)中第三跑梯段标高处被剖断线剖切并俯视得出来的图在此大家注意A、B有不同A图剖断线只有一边有楼梯而B图剖断线两边都有楼梯大家想想为什么大家注意到“俯视”这个词A图为底层所以俯视下去什么也没有而B 图为1层下面还有地下一层所以它在本层楼梯第三跑处被剖断后俯视仍然能看见下一层的楼梯但是实质上剖断线两边的楼梯的层数是不在一个平面内的这个大家要理解我人比较笨花了很多时间才看懂楼梯建筑平面图与剖面图的关系一点粗浅的经验分享下下面是C图和B图差不多最后看D图这是本案例顶层楼梯建筑平面图这一层没有向上的梯段了但是我们任然可以按照我对建筑平面图的理解向本层楼梯向上某一跑梯段标高处剖切后俯视但是顶层没有向上梯段所以该层楼梯建筑平面图没有剖断线,这就对应上了另外还有上下标识的箭头和文字不过我觉得只要看懂了上面所说的理解上下箭头和标识是非常容易这里就不做说明了这是建筑图纸中对于楼梯的表示方法我们画楼梯结构图时也可以借鉴其表示方法这个在后面楼梯结构绘图会说到二初识楼梯的结构构成认识楼梯的结构组成和楼梯的结构图表示方法,一定不能不看图集03G101-2混凝土板式楼梯的图集(因为板式楼梯较多,暂时先介绍板式楼梯,另外就是梁式楼梯本人不甚清楚暂无能力介绍。
施工图制图规范一、图层规范说明:0-轴线(建筑轴线,使用CENTER线型,图层在需要体现轴线的图中为开启)0-墙体柱(建筑墙体,包括原建筑墙体,新建砌体墙体,图层应该在各类平面图上开启)0-墙体填充(建筑砌体墙体填充,包括200,100厚各类砖砌墙体填充,该层为253#色,图层在各类平面图中开启)0-窗(建筑窗体,包括高窗,矮窗、凸窗及落地窗,图层在各类平面图中开启)0-楼梯(建筑楼梯、越级台阶,图层在天花图、灯具图中为关闭)0-栏杆(建筑楼梯栏杆、建筑阳台栏杆,图层在天花图、灯具图中为关闭)0-建筑其他(一些从属于建筑的线,包括建筑外完成面,外轮廓,排水立管等在各图中均会体现的建筑体,图层在各类平面图中开启)0-完成面线(用于表现装饰完成面,图层在各类平面图中开启)0-完成面填充(装饰完成面与建筑之间的封闭部分,采用45度井字交叉填充,图层在各类平面图中开启)1-活动家具(活动型家具,该类家具在天花图及地铺图中均为不出现)1-固定家具(固定型家具,该类家具天花图及地铺图中均为出现)1-落地家具(只落地不通顶家具,该类家具在地铺图中出现,不再天花图中出现)1-置顶家具(只通顶不落地家具,该类家具在天花图中出现,不再地铺图中出现)1-窗帘(该图层在地铺图中为关闭)1-平面灯具(用于体现地面或不在天花中表示的灯具,该图层只在平面、地铺开启)1-门(该图层在天花和地铺图中为关闭)1-植物(只摆放植物图层,该图层在天花和地铺图中为关闭)1-墙面装饰(该图层只在天花布置图和灯具定位图中为开启)1-全灰平面(该图层只在插座平面图、天花叠合图、地面叠合图中开启)2-梁(该图层在各图中均关闭,只在需要打印时才开启)2-洞口(门洞上方看线,该图层只在天花图中开启)2-天花主线(天花主轮廓线,主跌级线,该图层只在天花图中开启)2-天花次线(天花造型内部材料分隔线,次跌级线,该图层只在天花图中开启)2-天花填充(天花造型材料填图案图层,该图层只在天花图中开启)2-天花灯具(出现在天花上的灯具,该图层只在天花图中开启)2-空调风口(风口及出回风箭头图层,该图层只在天花图中开启)2-消防喷淋(包括烟感及喷淋图层,必要时可以分为两个图层出来,该图层只在天花图中开启)3-地面主线(地面主轮廓线,主跌级线,如地台面、窗台线,该图层在平面图及地铺图中开启)3-地面次线(地面材料分隔线,该图层只在地铺图中开启)3-地面填充(地面材料填充图案,该图层只在地铺图中开启)4-建筑标注(外围建筑轴线标注,建筑尺寸标注)4-尺寸标注(用于标注室内造型尺寸,材料间隔)4-放线标注(用于墙体放线标注尺寸)5-开关(该图层为灯具控制、灯具开关)5-插座(包括强弱电插座)6-ELV(立面使用图层,可只分颜色,不分图层)7-DAT(大样使用图层,可只分颜色,不分图层)以上为基本图层,在特殊情况下可以通过新增图层来实现更理想的图层分离关系二、线型颜色规范说明:1#色(A3~4图:0.30,A1~2图:0.35)平立面完成面线2#色(A3~4图:0.22,A1~2图:0.25)平面家具线,立面转折线,大样轮廓线3#色(A3~4图:0.13,A1~2图:0.15)平面建筑次线,门,窗帘,天花,地面材料分隔线,立面材料分隔线,大样材料分隔线4#色(A3~4图:0.18,A1~2图:0.20)平面建筑窗线、栏杆、楼梯,天花、地面主跌级5#色(A3~4图:0.22,A1~2图:0.25)轴线6#色(A3~4图:0.15,A1~2图:0.18)灯具,开关插座,消防暖通7#色(A3~4图:0.40,A1~2图:0.40)平立剖面墙柱体线8#色(A3~4图:0.05,A1~2图:0.09)平面极次线,分缝,材料填充9#色(A3~4图:0.09,A1~2图:0.13)杂点型填充10#色(A3~4图:0.13,A1~2图:0.13)公司图框11#色(A3~4图:0.13,A1~2图:0.15)尺寸,材料,文字12~249#色(A3~4图:0.05,A1~2图:0.05)非使用线,如新增加需相应调整打印线型250#色(A3~4图:0.05,淡显50%)立面填充251~254#色(对象颜色打印,A3~4图:0.05,A1~2图:0.05)252为柱体填充线,253为墙体填充255#色(A3~4图:0.40,A1~2图:0.40)非使用线三、其他规范说明:材料代号规则;天花图例;剖面填充方法图例说明;开关插座图例;各类型标志标准。
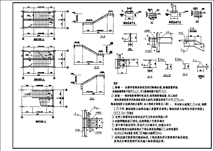
楼梯结构施工图绘图方法及步骤一、楼梯结构施工图需表达信息:梯段板、平台板、梯梁、梯柱配筋及对应截面尺寸;结构构件(楼面梁、柱及楼梯结构构件)标高及位置(与轴线距离关系);节点配筋详图及节点位置;说明。
二、楼梯画图步骤:1.准备事宜:先确定是否为装配式楼梯,确认楼梯在平面图中的具体位置。
○1商业楼梯:构思楼梯结构形式及搭建方式(是否需要设置梯梁、空间是否允许设置)。
○2主楼楼梯:构思楼梯结构形式及搭建方式,是否需要设置滑动支座;楼梯是否参与抗震;剪力墙结构墙体是否有开洞影响梯梁放置。
(建筑)楼梯能否实现;面层厚度(楼梯间内是否有水暖井,由于水暖走线原因,面层需和室内面层一致,和建筑核实)(平台板处及梯段处面层);梯梁梯柱是否有空间安放;过梁是否需要梯梁下放(框架);是否有部分入户楼梯使用砖砌踏步(砖砌踏步设置标准);梁宽大于墙宽时,楼梯间两侧梁宽允许范围;如有三跑楼梯,确定中间平台梯梁梯柱是否有位置安放。
(结构)结构墙肢图确定挡土墙标高(剪力墙结构);是否存在升降板、上反梁;一层是否有板;是否需要矮墙,特别注意住宅楼梯出屋面处,一般都设有矮墙。
2、画图(楼梯图绘图比例为1:50):○1剖面图I.删除:建筑图中多余构件(栏杆、砌块墙)、部分标注、填充(若位置基本固定,也可以保留填充,直接刷图层)。
保留:梯段、平台板、标高、碰头线(非打印图层)、轴线、反槛。
(核对完梁高后再删除门窗等构件,可以利用天正中“分解对象”命令删除门窗)II.修改:标高(使用标高检查进行自检);梯段板及平台板板厚(按跨度确定板厚);图层修改(图名、轴线、梯段板等)、核对尺寸标注(尤其注意楼梯第一步台阶及最后一步;踏步数统一用*表示,和建筑一致)。
III.增加:梯梁梯柱(核对梯柱能否生根,梯梁能否搭上);梯段板配筋(根据支座间距离计算梯段板跨度);平台板标注及板厚标注;柱及梯柱轮廓线、与基础核对基础顶标高;核对顶层平台板位置与楼层平台标高(是否需要补充矮墙)。
楼梯结构施工图绘图方法及步骤一、楼梯结构施工图需表达信息:梯段板、平台板、梯梁、梯柱配筋及对应截面尺寸;结构构件(楼面梁、柱及楼梯结构构件)标高及位置(与轴线距离关系);节点配筋详图及节点位置;说明。
二、楼梯画图步骤:1.准备事宜:先确定是否为装配式楼梯,确认楼梯在平面图中的具体位置。
○1商业楼梯:构思楼梯结构形式及搭建方式(是否需要设置梯梁、空间是否允许设置)。
○2主楼楼梯:构思楼梯结构形式及搭建方式,是否需要设置滑动支座;楼梯是否参与抗震;剪力墙结构墙体是否有开洞影响梯梁放置。
(建筑)楼梯能否实现;面层厚度(楼梯间内是否有水暖井,由于水暖走线原因,面层需和室内面层一致,和建筑核实)(平台板处及梯段处面层);梯梁梯柱是否有空间安放;过梁是否需要梯梁下放(框架);是否有部分入户楼梯使用砖砌踏步(砖砌踏步设置标准);梁宽大于墙宽时,楼梯间两侧梁宽允许范围;如有三跑楼梯,确定中间平台梯梁梯柱是否有位置安放。
(结构)结构墙肢图确定挡土墙标高(剪力墙结构);是否存在升降板、上反梁;一层是否有板;是否需要矮墙,特别注意住宅楼梯出屋面处,一般都设有矮墙。
2、画图(楼梯图绘图比例为1:50):○1剖面图I.删除:建筑图中多余构件(栏杆、砌块墙)、部分标注、填充(若位置基本固定,也可以保留填充,直接刷图层)。
保留:梯段、平台板、标高、碰头线(非打印图层)、轴线、反槛。
(核对完梁高后再删除门窗等构件,可以利用天正中“分解对象”命令删除门窗)II.修改:标高(使用标高检查进行自检);梯段板及平台板板厚(按跨度确定板厚);图层修改(图名、轴线、梯段板等)、核对尺寸标注(尤其注意楼梯第一步台阶及最后一步;踏步数统一用*表示,和建筑一致)。
III.增加:梯梁梯柱(核对梯柱能否生根,梯梁能否搭上);梯段板配筋(根据支座间距离计算梯段板跨度);平台板标注及板厚标注;柱及梯柱轮廓线、与基础核对基础顶标高;核对顶层平台板位置与楼层平台标高(是否需要补充矮墙)。
÷8图集号16G101-2-29DT 型楼梯双分平行楼梯/交叉楼梯/剪刀楼梯光面钢筋时,除梯板上部纵筋的跨内端头做90º直角弯钩外,所有末端做180º的弯钩。
2.图中上部纵筋锚固长度0.35Lab用于设计按铰接的情况,括号内数据0.6Lab用于设计考虑充分发挥钢筋抗拉强度的情况,具体3.上部纵筋有条件时可直接伸入平台板内锚固,如图中虚线所示。
4.上部纵筋需伸至支座对边再向下弯折。
低端梯梁锚入长度≥5d 且至少伸过支座中线弯锚长度15d上部纵筋下部受力筋梯板分布筋上部纵筋高端梯梁图集号16G101-2-30DT 型楼梯配筋构造形式/也可直锚见平面图梯板分布筋上部纵筋15d≥0.35L ab (≥0.6L ab )L a高端梯梁L sn/5h≥5d ,>b /2下部纵筋L aL a下部纵筋b sb s,>b /2L aL a≥20dL L n低端平板长踏步段水平长L sn(=d s ×m )≥L n/4上部纵筋h (梯板厚度)L n 梯板跨度h sD型楼梯板配构造筋L L n高端平板长bT型楼梯的适用条件为:两梯梁之间的矩形梯板由低端平板,中位平板和高端踏步段构成,高,低踏步段项为楼梯类型代号与序号ETXX;第2项为项为上部纵筋及下部纵筋;第5项为梯板分布筋。
设计配筋可参照【混凝土结构施工图平面整体表示方法制图规制和构造详图(现浇混图集号16G101-2-31 ET型楼梯平面注写方式与适用条件光面钢筋时,除梯板上部纵筋的跨内端头做90º直角弯钩外,所有末端做180º的弯钩。
高端楼层梯梁低端楼层梯梁锚入长度≥5d 且至少伸过支座中线弯锚长度15d上部受力筋下部受力筋下部受力筋梯板分布筋上部受力筋h sb s h上部纵筋≥0.35L (≥0.6L a b )≥5d 且至少伸过支座中线高端楼层梯梁梯板分布筋下部纵筋Lmn 中位平板长(以上表面为准)高端踏步段水平长b s×m h =L hsnL n 梯板跨度b15dL aL ahE 型楼梯板配筋构造T型楼梯的适用条件为:①矩形楼梯由楼层平板,两跑踏步段与层间平板三部分构成,楼梯间内不设置梯梁;墙体位于平板外侧;②楼层平板及层间平板均采用三边支撑,另一边与踏步段相连;③同一楼层内各踏步段的水平相等,高度相等(即等分楼层高度)凡是满足以上条件的楼梯项为楼梯类型代号与序当平板厚度与梯板厚度不同时,板厚标注方式见本图集制图规则第5项为梯板分布筋(梯板分布钢筋也可在平面图中注写或统一说明)原位注写的内容为楼层与层间平板上部横向配筋与伸出长度。
楼梯抗震设计与施工图绘制摘要:根据“《建筑抗震设计规范》gb50011-2010第3.6.6条第1款,近年来楼梯抗震设计开始引起设计人员的足够重视。
尤其板式楼梯,在结构分析中通常仅按受弯构件进行分析,在汶川地震中出现了各种类型的破坏,为此本文主要从楼梯结构的受力分析、设计及施工措施(特别是施工图绘制)等方面注意的问题进行探讨,提出其中存在的问题和改进思路。
摘要:楼梯抗震滑动支座详图1. 设计思路主体结构计算时考虑梯板参与工作,采用合适的断面与配筋来抵抗震作用,可归纳为“抗”;另外采用“放”,将半层平台与柱的联系切断,在框架梁靠近框架柱的部位另设独立小柱来支撑梯板或平台板下段采用滑动支座。
2. 设计措施2.1 楼梯抗震设计的结构型式2.1.1 楼梯与主体结构整浇的框架结构(包括梯间四周未用剪力墙和连梁围合的框-剪结构)。
(1)楼梯布置应避免特别不规则,楼梯应参与整体抗震计算;(2)楼梯构件应进行抗震承载力验算,并与正常使用荷载基本组合进行包络设计;(3)楼梯构件应采取如下抗震构造措施:①纵向面筋拉通且不小于最小配筋率,底、面纵筋均按充分考虑钢筋抗拉强度的要求锚固;②梯板按斜支撑构件设计,板厚不宜小于140mm,不应小于120mm 【参照gb50010-2010第9.4.1、9.4.5条】;③梯板两侧设置纵向暗梁,暗梁纵筋一、二级不少于612,三、四级不少于412,箍筋不小于φ6@200【图集11g101-2第8页】;④梯板双层钢筋网之间设置间距不小于φ6@600的拉筋;分布筋末端弯直钩伸至对边【图集11g101-2第44页】2.1.2 楼梯滑动支承于平台板的框架结构(1)楼梯可不参与整体抗震计算;(2)楼梯构件按正常使用荷载基本组合进行承载力计算;(3)楼梯构件采取如下抗震构造措施:???①纵向面筋拉通且不小于最小配筋率,底、面纵筋均按充分考虑钢筋抗拉强度的要求锚固;???②梯板双层钢筋网之间设置间距不小于φ6@600的拉筋;分布筋末端弯直钩伸至对边【图集11g101-2第40、42页】;???③梯梁加强抗剪抗扭构造,箍筋不小于φ8@150,腰筋不小于n214;梯柱截面不小于墙厚×300,砼标号不低于c25,纵筋不小于414,箍筋不小于φ8@100;梯间框架柱(剪力墙端柱)配筋增大10~20%,箍筋加密。