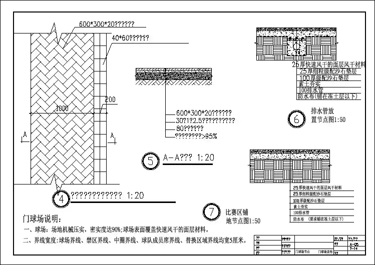
600200C201:2细石砼现浇(内布置水泥砂浆仿松木皮200细石砼找平层厚30M570挖至老土C10水泥砂浆砌块石C20砼找平层鹅卵石厚“英可瑞”压模彩色水泥砂浆仿木板仿对开松木仿松皮栏杆D=80直径对开松木D=300仿直径仿松皮栏杆柱D=120直径1400注:板拱宽为水泥砂浆砌块石M5)@1208.3004%%C4,%%C41000螺旋箍7.50080016004.3002001400100100D=120仿松皮栏杆柱100010宽凹线分隔8.300300500500700800螺旋筘栏杆插筋B-B剖面图 1:503005004%%C6%%C4@10021206005.3001:502008008.300280直径16002001000200100100140085020008001:5010001:5012005400栏杆梁平面图 100010010002008007.500230020021008008501:255001000桥基础平面图30C101:2仿对开松木1000网片仿松皮栏杆柱200600D=80仿松皮栏杆直径C20800X700X80细石砼现浇,直径仿木板扁,题“别有洞天”%%C4@150D=12010016001400100水泥砂浆斩毛22007.5001:25.30090120120901180毛石墙面R13001501:508.300800200D=300仿直径对开松木1:2水泥砂浆斩毛别有洞天桥立面图 1:50桥侧立面图 R1300%%C10@150%%C8@200150100100012001:505400桥平面图 10004%%C12%%C6@150200250%%C6@1502004%%C12300020005001:101:1010010007.5001%%C810017025080300100016001300现浇砼桥拱细石砼找平层厚“英可瑞”压模彩色水泥砂浆仿木板水泥砂浆斩毛,A-A剖面图 TJ--47TJ--48给排水规 划电 暖绿 化土 建给排水规 划电 暖绿 化土 建R13001001300830600编辑部:ivpinfo@本图纸由浩辰ICAD软件提供技术支持中国园林行业网络家园;因为会飞的小猪y