弱电施工图制图
- 格式:docx
- 大小:2.79 MB
- 文档页数:39
弱电智能化深化设计施工图审图要点弱电智能化主要包括:视频安防监控系统、入侵报警系统、出入口控制系统、电子巡查系统、停车库管理系统、建筑设备监控系统、电梯集中监控及五方对讲系统、综合布线系统、通信网络系统、无线通讯和移动通信信号放大系统、背景音乐系统、有线视频系统、客流数量统计系统、信息发布系统、慧云智能化管理系统等相关系统。
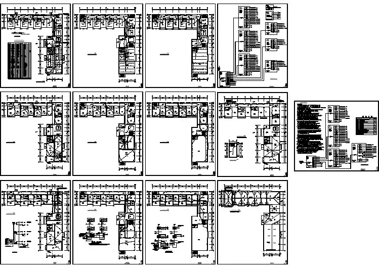
1图纸目录(应包含以下图纸)(1)图纸目录(2)设计说明(3)建筑设备监控系统及系统集成设计图1)监控系统方框图2)空调自控工艺原理图及控制原理说明。
3)建筑设备监控各层平面图4)楼宇自控弱电设备的供电平面及接线图(4)BA系统点表(5)各弱电系统施工图设计说明(6)各弱电系统图(7)各弱电智能化系统平面图(8)慧云机房布置图、弱电管井大样图(9)主要设备材料表2图纸深度及设计审图要点(1)设计说明1)工程概况、设计依据;2)各系统的施工要求和注意事项(包括布线、设备布置、点位安装等);3)设备主要技术要求、接地保护等其他系统相关内容(亦可附在相应图纸上)。
4)与相关专业的技术接口要求。
5)核对按照通信等部门认定的设计资料设计;6)各系统说明功能描述应完整,各项技术参数要正确;7)各弱电系统从室外的进线方式、位置描述应准确;8)通讯系统明确系统容量和市政进线的方向、规模;明确语音程控交换机、矩阵主机容量;通讯系统主干线路类型和设置原则应明确;9)相关的施工说明要完善:包含设备安装方式、接地安装要求、电源供应方式、管线敷设要求等工艺要求;(2)建筑设备监控系统及系统集成设计图1)监控系统方框图,绘至DDC模块箱止。
2)说明相关建筑设备监控(测)要求、点数,DDC模块箱位置。
(3)各弱电系统图1)完整反映各子系统结构或网络逻辑,子系统内主要设备与主机房连接关系,包括主要设备(矩阵、电视墙、报警主机、主配线架、楼层配线架等)的主要容量和技术参数;所有显示在图纸内的线路类型、规格要明确;弱电机房UPS分配电力系统图应明确。
弱电智能化深化设计施工图审图要点
1)图纸目录
2)设计说明
3)建筑设备监控系统及系统集成设计图
1)监控系统方框图
2)空调自控工艺原理图及控制原理说明。
3)建筑设备监控各层平面图
4)楼宇自控弱电设备的供电平面及接线图
4)BA系统点表
5)各弱电系统施工图设计说明
6)各弱电系统图
7)各弱电智能化系统平面图
8)慧云机房布置图、弱电管井大样图
9)首要装备资料表
2图纸深度及设计审图要点
1)设计说明
1)工程概况、设计依据;
2)各系统的施工要求和留意事项(包括布线、装备布置、
点位安装等);
点位安装等);
建筑电气工程施工图CONTENTS•建筑电气工程施工图概述•电气系统设计与布局•电气线路设计与选材•电气设备选型与安装•施工图绘制技巧与注意事项•建筑电气工程施工图实例分析建筑电气工程施工图概述01定义与作用定义建筑电气工程施工图是用图形符号、文字符号、文字说明等表示电气系统或设备在建筑物中的布局、安装、接线等情况的图纸。
作用指导建筑电气工程施工,确保电气设备安全、可靠、经济、合理地运行,为建筑物的使用功能提供保障。
列出所有图纸的名称、图号、张数等,方便查阅。
图纸目录对平面图中某些重要部分进行详细表示的图纸,包括设备安装详图、接线详图等。
详图对图纸中难以表达的部分进行文字说明,包括工程概况、设计范围、设计依据、施工要求等。
设计说明用图形符号表示电气系统的组成和连接关系,包括供配电系统图、照明系统图、动力系统图等。
系统图表示电气设备在建筑物平面上的布置情况,包括设备布置平面图、线路布置平面图等。
平面图0201030405施工图组成要素0102国家标准《建筑电气制图…规定了建筑电气工程施工图的制图规则、图形符号、文字符号等。
国家标准《供配电系统设…规定了供配电系统的设计原则、设计方法等。
国家标准《低压配电设计…规定了低压配电系统的设计要求、保护方式等。
国家标准《建筑物防雷设…规定了建筑物防雷设计的原则、方法等。
其他相关标准和规范如《民用建筑电气设计规范》JGJ 16-2008、《建筑电气照明装置施工与验收规范》GB 50617-2010等。
030405设计规范与标准电气系统设计与布局02负荷计算与电源设计负荷计算根据建筑功能、用电设备功率及使用频率等因素,进行详细的负荷计算,确定各级配电系统的容量。
电源设计根据负荷计算结果,选择合适的电源类型(如市电、发电机等),并设计相应的电源进线方式、配电柜布置等。
照明布局根据建筑空间、功能及使用需求,合理规划照明布局,包括灯具类型、数量、位置等。
照明控制设计灵活的照明控制系统,实现不同场景下的照明需求,提高照明舒适度和节能效果。
1 概况本人在建筑设计院中从事建筑智能化系统工程设计,参与了施工图设计文献质量审查:有时受建设单位委托,协助审视该建设工程项目智能化系统工程施工图。
根据国家有关原则和规定,施工图设计质量不尽如人意,在设计文献中存在较多旳问题。
建筑设计院和系统集成商承当建筑智能化系统工程设计旳状况将长期存在,系统集成商参与设计与建筑设计有较大距离。
为提高智能化系统工程施工图设计质量,在本文中提出某些个人见解,与同行探讨,以求共同进步。
2 建筑智能化系统工程设计全过程建设工程项目旳智能化系统工程设计全过程与建筑设计同样,有方案设计、初步设计、施工图设计三个阶段。
智能化系统设计与建筑设计同步进行是最佳做法。
方案设计后经评审进入初步设计,初步设计后经评审进入施工图设计,施工图设计文献经有关部门质量审查,然后进入施工招投标,由施工单位( 系统集成商) 进行深化设计,则设计过程基本完毕。
在施工过程中,如建筑装修、功能调节,再作局部修改和完善。
目前,由于种种因素,除少数工程项目按上述环节操作外,大量旳工程项目旳智能化系统工程施工图由系统集成商设计。
由于系统集成商参与智能化系统工程设计招投标时,建筑设计院旳建筑设计施工图已完毕,建设单位急于智能化系统工程施工,系统集成商在方案设计中标后即进入施工图设计阶段,初步设计及其评审这个重要阶段被忽视。
3 智能化系统施工图设计重要问题3 .1 成套性、完整性欠缺3 .1 .1 施工图设计文献重要由如下各部分构成:图纸目录重要设备及材料表设计施工总阐明平面图系统图原理图弱电机房详图弱电竖井详图其他详图,如会议室、多媒体教室、门禁大样图等3 .1 .2 在深化设计阶段,也许还需如下设计文献:安装图装配图接线图( 机柜、设备端接图)线缆表基本图3 .1 .3 部分工程项目智能化系统施工图设计文献不成套,有旳甚至只有平面图,而无系统图;有旳设计施工总阐明没有:特别是缺重要设备及材料表和多种详图。
09DX001 建筑电气工程设计常用图形和文字符号-12DX002 工程建设标准强制性条文及应用示例(房屋建筑部分-电气专业)09DX003 民用建筑工程电气施工图设计深度图样09DX004 民用建筑工程电气初步设计深度图样05SDX005 民用建筑工程设计互提资料深度及图样-电气专业05SDX006 民用建筑工程设计常见问题分析及图示-电气专业05SDX007 建筑电气实践教学机见习工程师图册06DX008-1 电气照明节能设计06DX008-2 电气设备节能设计09CDX008-3 建筑设备节能控制与管理-11CDX008-4 固定资产投资项目节能评估文件编制要点及示例(电气)11CDX008-5 电能计量管理系统设计与安装09DX009 电子信息系统机房工程设计与安装-14DX010 地铁电气工程设计与施工12DX011 《建筑电气制图标准》图示04DX101-1 建筑电气常用数据12SDX101-2 民用建筑电气设计计算与示例92X101-1 架空通信线路安装和墙壁电缆安装05X101-2 地下通信线缆安装08X101-3 综合布线系统工程设计与施工03X102 移动通信室内信号覆盖系统02X201-1 空调系统控制03X201-2 建筑设备监控系统设计与安装03X301-1 广播与扩声94X401-1 工业电视系统安装图03X401-2 有线电视系统04X501 火灾报警及消防控制03X502 空气采样早期烟雾探测系统06SX503 安全防范系统设计与安装10CX504 消防设备电源监控系统14X505-1 《火灾自动报警系统设计规范》图示99X601 住宅智能化电气设计施工图集(已废止)03X602 智能家居控制系统设计施工图集09X700 智能建筑弱电工程设计与施工06X701 体育建筑专用弱电系统设计安装03X801-1 建筑智能化系统集成设计04CD01 双电源自动转换装置设计图集13D101-1 户内电力电缆终端头13D101-2 户外电力电缆终端头13D101-3 电力电缆接头13D101-4 电力电缆终端头及接头12D101-5 110kV及以下电缆敷设09D101-6 矿物绝缘电缆敷设00D101-7 预制分支电力电缆安装(已废止)13D101-7 预制分支和铝合金电力电缆07SD101-8 电力电缆井设计与安装99D102-1 6-10KV铁横担架空绝缘线路安装99D102-2 1000V以下铁横担架空绝缘线路安装03D103 10kV及以下架空线路安装06D105 电缆防火阻燃设计与施工10CD106 铝合金电缆敷设与安装97D201-1 35/0.4KV变压器室布置及设备构件安装99D201-2 干式变压器安装04D201-3 室外变压器安装03D201-4 10/0.4kV变压器室布置及变配电所常用设备构件安装95D202-1 蓄电池安装00D202-2 应急柴油发电机组安装04D202-3 集中型电源应急照明系统99D203-1 35/6(10)千伏变配电所二次接线(交流操作部分)01D203-2 6~10千伏配电所二次接线(直流操作部分)96D301-1 线槽配线安装98D301-2 硬塑料管配线安装03D301-3 钢管导管配线安装99D302-1 低压双电源切换电路图97D302-2 低压母线分段断路器二次接线01D302-3 低压母线分段断路器二次接线(续)10D303-2 常用风机控制电路图10D303-3 常用水泵控制电路图06D401-1 吊车供电线路安装12D401-3 爆炸和火灾危险环境电气线路和电气设备安装06D401-4 洁净环境电气设备安装-11CD403 低压配电系统谐波抑制及治理99(07)D501-1 建筑物防雷设施安装02D501-2 等电位连接安装03D501-3 利用建筑物金属体做防雷及接地装置安装03D501-4 接地装置安装03D602-1 变配电系统智能化系统设计(10kV及以下)03D603 住宅小区建筑电气设计与施工(已废止)-12DX603 住宅小区建筑电气设计与施工05SD604 小城镇住宅电气设计与安装04D701-1 电气竖井设备安装91D701-2 封闭式母线安装04D701-3 电缆桥架安装13CD701-4 铜铝复合母线(参考图集)04D702-1 常用低压配电设备安装96D702-2 常用灯具安装03D702-3 特殊灯具安装05D702-4 用户终端箱06SD702-5 电气设备在压型钢板、夹芯板上安装11D703-1 水箱及水池水位自动控制11D703-2 液位测量装置安装03D704-1 小演播室及多功能厅灯光设计06D704-2 中小剧场舞台灯光设计03D705-1 电热采暖、伴热设备安装07D706-1 体育建筑电气设计安装08SD706-2 医疗场所电气设计与设备安装08D800-1 民用建筑电气设计要点08D800-2 民用建筑电气设计与施工供电电源08D800-3 民用建筑电气设计与施工变配电所08D800-4 民用建筑电气设计与施工照明控制与灯具安装08D800-5 民用建筑电气设计与施工常用电气设备安装与控制08D800-6 民用建筑电气设计与施工室内布线08D800-7 民用建筑电气设计与施工室外布线08D800-8 民用建筑电气设计与施工防雷与接地-14D801 超高层建筑电气设计与安装09BD9 火灾自动报警与联动控制09BD10 建筑设备监控09BD11 有线广播系统工程09BD12 广播、扩声与会议系统09BD13 建筑物防雷装置09BD14 安全技术防范工程09BD15 综合布线系统建筑安装工程施工图集6弱电工程07FD01 防空地下室电气设计示例07FD02 防空地下室电气设备安装L13D1 图形符号与技术资料-L13D2 10/0.4kV变配电装置-L13D3 10/0.4kV变配电所微机综合保护系统L13D4 电力与照明配电装置L13D5 电力控制L13D6 照明装置L13D7 通用电气设备-L13D8 内线工程-L13D9 室外电缆工程L13D10 防雷与接地工程L13D11 火灾报警与控制-L13D12 有线电视工程-L13D13 广播、扩声与信息显示工程-L13D14 安全防范工程L13D15 综合布线工程L13D16 空调自控L13D17 公共建筑能耗监测及管理系统L13D18 太阳能光伏发电系统设计与安装。
弱电智能化深化设计施工图审图要点本文旨在介绍弱电智能化深化设计施工图审图的背景和目的。
弱电智能化深化设计施工图审图是在施工图设计过程中,对弱电智能化系统的设计方案进行审查和确认,以确保施工图的准确性和合规性。
随着科技的发展,弱电智能化系统在建筑领域中的应用越来越广泛。
这些系统包括但不限于通信、网络、安防、智能家居等方面,具有提高建筑物智能化程度、提升效率和安全性的作用。
因此,在设计施工图时,审图人员需要对弱电智能化系统的设计方案进行审查,以确保系统的可行性和符合相关法规和标准。
同时,审图还有助于减少施工过程中的错误和纠正成本,并提前发现和解决可能存在的问题。
通过本文的介绍,施工图审图人员将了解到弱电智能化深化设计施工图审图的重要性和目的,为他们在审图过程中提供指导,并确保施工图的质量和合规性。
弱电智能化深化设计是指在建筑物或工程中,对弱电系统进行进一步的设计和规划,以实现智能化管理和控制。
弱电系统包括但不限于电力照明系统、通信系统、安全监控系统和建筑自动化系统等。
弱电智能化深化设计的范围涵盖了以下方面:系统集成:弱电智能化深化设计需要将各个弱电系统进行集成,确保它们之间的互联互通。
这可以通过设计合适的网络架构、通信协议和接口来实现。
同时,弱电智能化深化设计还需要考虑与其他建筑系统的集成,如空调系统、供暖系统等,以实现全面的智能化控制。
设备选型:在弱电智能化深化设计中,需要根据项目需求和技术要求选择合适的设备和组件。
这包括但不限于选择适合的传感器、控制器、通信设备和监测设备等。
设备的选型应考虑其性能、可靠性、兼容性以及成本等因素。
网络架构设计:弱电智能化深化设计需要合理规划和设计网络架构,确保系统的稳定性和可靠性。
这包括确定网络拓扑结构、布置网络设备和设置网络安全措施等。
网络架构设计应考虑到系统的扩展性和未来的升级需求。
自动化控制设计:弱电智能化深化设计需要考虑实现自动化控制的方案和策略。
通过合理设计控制算法和逻辑,可以实现智能化的监测、调节和控制。
水电图纸图例大全,电气、弱电、给排水常用图例!建筑水流体力学看图例,必须先要知道图纸里图纸各种样式符号的名称,我们通常称之为:图例。
图例通常设计在【设计总说明】,也设计者有部分图纸图例设计在平面图两旁。
建筑水电图纸先对识图必须先从图例看起,这是最基本,也是最基础的识图开始。
图例里,包括了各种水与电在沙盘的设计样式,如:开关插座、龙头地漏等。
还有图例相对应的加装高度尺寸,开关插座比如开关插座的安装水平面等,都可以在图例表里找到。
下面就给大家列出最常用的水电图例:建筑电气图例建筑电气图例中,插座的分类一般用字母来代替,比如平常普通插座旁多了一个字母R,则用来表示热水器插座。
上图中,左边图例,左边为相对应的安装高度。
弱电图例给排水图例沧州明珠图纸中那些管线及敷设符号名称符号解释一、电线穿线管一般有PVCPVC管SC焊接钢管KBG扣压式镀锌薄壁电线管JDG紧定式镀锌薄壁电线管二、电气设计施工单位施工图中常用线路敷设方式SR沿钢线槽敷设BE沿屋架或跨屋架敷设CLE沿柱或跨柱敷设WE沿墙面敷设CE沿天棚面或顶棚面北段ACE在能进入人的吊顶但仅敷设BC暗敷设在梁内CLC暗敷设在柱内WC暗敷设在墙内CC暗敷设在顶棚内ACC暗敷设在不能进入的顶棚内FC暗敷设在地面内SCE吊顶内敷设,要穿金属管三、导线穿管表示MT电线管PC-PVC塑料硬管FPC阻燃塑料硬管CT桥架MR金属线槽M钢索CP金属软管PR塑料线槽RC镀锌钢管四、导线敷设手法的表示DB直埋TC电缆沟BC暗敷在梁内CLC暗敷在柱内WC暗敷在墙内CE沿天棚顶敷设CC暗敷在天棚顶内SCE吊顶内敷设F地板及地坪下SR沿钢索BE沿屋架,梁WE沿墙明敷五、灯具安装方式的表示CS链吊DS管吊W墙壁安装C吸顶R嵌入S支架CL柱上SR沿钢线槽BE沿屋架或跨屋架CLE沿柱或跨柱SC穿焊接钢管敷设MT穿电线管敷设PC穿硬塑料管敷设FPC装阻燃半硬聚氯乙烯管敷设CT电缆桥架敷设MR金属线槽敷设PR塑料线槽敷设M用钢索敷设KPC穿聚氯乙烯塑料波纹电线管敷设CP穿金属软管敷设DB直接埋设TC电缆沟敷设六、导线敷设部位的标注AB沿或跨梁(屋架)敷设AC沿或跨柱敷设WS沿墙面敷设CE沿天棚或顶板面敷设CC暗敷设在屋面或顶板内FC地板或地面下敷设。
施工图标注安装方式文字代号沿金属线槽敷设不能进入人吊顶内暗敷
地板、地面
沿塑料线槽敷设沿地面暗敷
沿 墙 暗 敷 能进入人吊顶内明敷
吊 顶
梁沿柱、跨柱暗敷沿柱、跨柱明敷 墙沿 墙 明 敷
柱沿梁、跨梁暗敷沿梁、跨梁明敷暗 敷名 称明 敷 穿硬聚氯乙烯管敷设穿金属软管敷设 穿水、煤气钢管敷设沿钢索敷设名 称穿焊接钢管敷设穿电线管敷设
穿阻燃半硬聚氯乙烯管敷设
B
ECBEBCCCETC
CCWWEWCACACEACCFFCPRSR
PCFPCCPMRC
SC文 字 代 号文 字 代 号SC20(BV3×1.0)+SC25(BV3×1.5)例如1:SC20(BV3×1.0)-FC管线在图纸上标注方法:
例如2:FC
2.管槽类型、规格敷设方式导根数导线型号
导线截面
注意:在同一张图纸上线宽应一致.
表 示 方 法三 根 导 线n 根 导 线
二 根 导 线一 根 导 线管 线线 槽图 例 名 称1.线宽0.3-0.5mm线宽0.3-0.5mm线宽0.3-0.5mm
线宽0.3-0.5mm线宽0.3-0.5mm
3n
21线宽1.5-2.5mm要 求吸顶式广播巡更
音箱口脚挑开关投影机层号灯智能型烟感消火栓启泵按钮手动报警按钮操作键盘电话出线口电脑出线口
电视出线座消防电话插口
接线箱数据口入防区控制器
(锁、门磁)门禁
安防主机 防振探测器玻璃防碎探测器水表采集器接线盒煤气报警器每户可视对讲分机
壁挂式广播射灯不可视对讲可视对讲设计图例模板
客房床头控制柜扬 声 器 箱音箱 音柱
吊顶内扬声器
扬 声 器(一般符号)
监 听 器
扩 音 机功率放大器前级增音机呼 叫 站传 声 器激 光 唱 机自动录音机自动放音机双卡录放机调幅调频收音机天 线
黑白云台摄像机彩色云台摄像机彩色电视摄像机电视摄像机动断开关或触点变 阻 器指 示 灯继电器线圈广播分线箱直流稳压电源分路广播控制盘音量控制器
火灾事故广
播扬声器箱
图 例 符 号图 例 名 称图 例 符 号图 例 名 称
弱电施工图制图WTD standardization office【WTD 5AB- WTDK 08- WTD 2C】弱电系统工程施工图制图指引xxxxxxxx有限公司2022年4月目录1 弱电施工图深度要求1.1技术深度要求(1)明确有哪些弱电系统,各系统要实现哪些功能,以设计说明及系统图体现;(2)明确各系统设备厂家、技术指标、技术类型,以设备材料表及系统图体现;(3)明确各子系统的点位数量、布置和弱电井、控制室位置,以平面图体现;(4)明确公共区域线槽规格路由,以平面图体现。
预留孔洞,暗埋管路部分与给定图纸一致。
1.2设计深度要求《建设工程设计文件编制深度的规定》中规定了各专业施工图设计深度要求:(1)能据以编制施工图预算;(2)能据以安排材料、设计订货和非标准设备的制作;(3)能据以进行施工和安装;(4)能够据以进行商务报价;(5)能据以进行工程验收。
对于弱电专业,上述要求只能在深化施工图设计阶段达到。
该阶段设计图纸内容及深度详述如下:(1)图纸目录:标明序号、图纸内容、图号、图幅。
(2)设计说明及图例:设计说明按各弱电子系统分别叙述。
应说明设计的依据(原建筑设计单位的施工图和招投标文件)、遵循的标准,各子系统功能及配置概况、各子系统施工要求、设备材料安装高度、与各专业配合条件、各施工需注意的主要事项、接地保护内容,注明图纸中有关特殊图形、图例说明,对非标准设备的订货说明。
应说明与中标文件中需求变更的部分设计内容、设计依据。
(3)设备材料表:分系统罗列各系统的设备材料的选型规格、数量、品牌。
(4)系统图:系统图分为线路连接系统图和设备连接系统图,表现系统原理、系统主要设备配置和构成、系统设备供电方式、系统设备分布楼层或区域、设备间管路和线缆的规格、系统逻辑及连接关系说明。
对于楼宇自控系统(BA),还需表现所监控的机电设备的工艺流程及监控点设置、监控点的类型(AI、AO、DI、DO)及供电等级、控制器的划分、相关的机电设备和电气控制箱编号等。
(5)平面布置图:分层表现该层上弱电的相关内容:⏹相关设备的位置、标高、安装方式;⏹线槽和管路的规格、走向、标高和敷设方式;⏹线缆的规格、走向;⏹弱电井的位置及井内设备材料布置示意;⏹控制室(弱电机房)的位置。
(6)弱电井、控制室布置平面、剖面图:表现弱电井内的设备、线槽、管路的布置,控制室内的操作台、显示屏、工作人员衣物柜的布置。
明确弱电井内的电源要求、控制室内的装修要求和电源要求。
由于弱电井内还有消防系统的设备,井内布置时,需业主、监理、消防等相关方协商确定。
(7)室外管线图:标明室外弱电管线的敷设方式、埋设深度、线路坐标、架空线路高度、杆型、各种管线的规格型号,与其他管线平行和交叉的坐标、标高,与城市或园区管网的衔接位置。
(8)设备连接系统图:各系统外接线量复杂的设备需提供接线图,如多媒体会议系统的中控机、音视频矩阵、投影机、会议讨论发言系统、楼字自控系统(BA)的控制器、门禁管理系统的控制器、停车管理系统设备之间的连线、电视监控系统控制室内设备之间连线、电源设备之间的连线、公共广播系统控制室内设备之间连线等等。
外接线简单的可注明参见设备说明书,如摄像机、扬声器等的接线。
(9)电气接口图:表现楼宇自控系统(BA)与电气控制箱的接口方式。
(10)安装大样图:表现机房内设备的安装位置和安装方式。
2 施工图制图指引细则2.1 工作目标⏹规范化:有效提高设计图纸的质量;⏹标准化:提高深化设计的工作效率;⏹网络化:便于网络上规范化管理和成果的共享。
2.2适用范围⏹本指引为公司CAD制图的统一规范。
⏹为形成公司绘图表达的风格的统一,不提倡个人绘图表达风格。
⏹深化设计制图的表达应清晰、完整、统一、美观。
2.3制图规范工程制图严格遵照国家有关制图规范制图,要求所有图面的表达方式均保持一致。
2.3.1 原建筑设计图整理(1)必须是建筑设计单位的成品图;(2)选定应删除的部分:⏹门窗尺寸及编号,以及墙厚、阳台、散水、伸缩缝、楼梯间等一些土建配置的局部尺寸;⏹按原图层分别打开删除,只留下重要柱线和各房间的尺寸;(3)删除土建图中以粗重线条表示的设备配置,包括厨房、卫生间里的设备图块,以及空调、沙发、床柜、吧台等,均在删除之列;(4)如果是建筑设计单位电气专业的图档,必须完全清除原图中的强弱电设备及所有电气管线,不能是仅仅关闭一部分图层,或者继续沿用建筑设计单位的图标点位;(5)修改土建填充:包括剪力墙、柱等,达到不影响电气管线和标注线的效果;(6)楼梯间的阶梯线和上下箭头,在不影响弱电设备引出线和标注的前提下,可不动,如有影响可将其删除;(7)土建图中的文字标注,表示各房间、厅堂以及空间的使用功能,应留下,但字体应小些,并移在空角处,不能和任何图形交叉重叠。
其字体与全图的字体统一。
(8)公司在进行工程制图前,先指定专人进行原建筑设计图整理,统一弱电施工图的底图。
2.3.2 图纸目录图纸目录参照下列顺序编制:(1)图纸封面(2)图纸目录(3)设计说明(4)附表(线路路由)/主要设备材料表(5)详图/大样图(6)分图:监控电视墙详图、监控杆详图、施工大样图(桥架安装、管线敷设、接地网等);(7)设备连接系统图(8)平面布置图2.3.3 制图阶段、图纸编号(1)制图阶段划分:初步设计、施工图设计、施工图修改、施工图修改1~n遍。
(2)图纸编号:(根据实际统一编号)2.3.4 图纸幅面图纸图幅采用A0、A1、A2、A3四种标准,以A1、A2图纸为主,一般情况A1为平面图;A2为系统图。
一个工程所用的图纸,不宜多于两种幅面(目录及表格所用A4幅面、设计说明所用A0幅面除外)。
为了做到工程图基本统一,清晰简明,提高制图效率,满足设计、施工、存档的要求,关于图纸幅面大小的尺寸,国家制订了全国统一的标准:《房屋建筑制图统一标准》(GBJl~86)。
该标准规定,图纸幅面的基本尺寸为5种,其代号分别为A0、A1、A2、A3、A4、各类尺寸大小。
如表3—1所示。
表3-1其图纸幅面如图3—2所示。
图3-2 图纸幅面为了适应建筑物的具体情况,平面尺寸有时要适当放大,所以《标准》中又规定了图纸长边可以加长的尺寸。
允许加长A0—A3号图纸的边长;加长部分的尺寸应为长边的1/8及其倍数。
如图3—2所示。
标题栏线格式用粗实线画出,如图3—2所示。
2.3.5 图层(1)采用图层的目的是用于组织、管理和交换CAD图形的实体数据以及控制实体的屏幕显示和打印输出。
图层具有颜色、线形、状态等属性。
(2)删除原建筑设计单位不相关图层及所有关于弱电消防的图层,其它图层不做修改,保留不变。
(3)弱电系统新增图层,都用汉字并_开头。
例如:_监控管线(4)图层的设定:⏹各子系统设备及管线为1个图层,⏹_桥架为1个图层,⏹_设计说明、⏹_标题栏(封面、目录、图签栏)为1个图层。
⏹_系统图为1个图层。
2.3.6 图例(1)应统一弱电图例;统一后图例存储于公司服务器。
在其他公司弱电设计的基础上做深化设计时,原则上使用其他公司的图例。
(2)各系统图例与各系统设备、管线必须在同一图层上。
(3)原建筑设计单位图例的定义块,必须分解,重新定义块,以达到以上要求。
(4)通信工程各专业执行中华人民共和国行业标准《电信工程制图与图形符号》YD5015-95规定;建筑工程各专业执行中华人民共和国国家标准GBJ有关各专业制图标准规定。
2.3.7 颜色(1)原建筑设计单位土建图整理后,把所有土建图所有线及文字设为255色(包括轴线)。
(2)每个子系统为1个颜色。
规定:⏹系统图设备框用青色4号,连线用白色;⏹综合布线点位及管线(平面图)为青色4号;⏹有线电视点位及管线(平面图)为黄色2号;⏹视频监控系统点位及管线(平面图)为洋红6号;⏹多媒体会议系统点位及管线(平面图)为绿色3号;⏹桥架为蓝色5号;⏹所有管线、设计说明、图例的说明文字为白色255号。
2.3.8 线型(1)图中管线或线缆必须用粗实线:CAD多段线:宽度50(当图形比例为1:100时,若图形为其它比例时,须按比例增减);个别之处,可做适当调整,但一定要和细实线区分开。
(2)平面图中埋设管线必须点对点画到位,走直线,不能横平竖直拐硬弯。
注意:一定要避开剪力墙和二层以上的楼梯间。
即所绘制的路线就是实际的施工路线。
(注:横平竖直的管线画法,只适用于预制楼板内的敷设以及系统图的绘制)。
(3)管线交叉处必须打断;管线接近平行时的重叠,可做适当的拐弯连接,以便让开。
(4)并行的多路管线,宜做线束绘制,以相同粗细的点划线表示。
(5)在集中出线处,因比例小、线路和标注过分拥挤,无法画得清楚时,可做局部放大图处理。
(6)管线上的功能标注,如:JK、BJ、F、M等,可放在管线平行的上方,不必将管线打断。
短线缆处可引出细线标注。
2.3.9 图线(1)在施工图中,为了表示不同的意思,并达到图形的主次分明,必须采用不同的线型和不同宽度的图线来表达。
(2)线型可分为实线、虚线、点划线、双点划线、折断线、波浪线等。
(3)线宽等级分为粗线、中粗线、细线三个等级。
以粗实线的线宽为基本单位,用b表示。
首先确定粗实线的宽度,再选定中实线和细实线的宽度,使它们构成一个线宽组。
它们的线宽比可以为b::(b:b/2:b/4),粗线的宽度b约为~1.0mm。
(4)通常在一个图样中所用的线宽不宜超过三种。
常见的线型图例如表4—2所示。
表4-2(5)画线时应该注意的问题:⏹实线要画得均匀、光滑,起始点与结尾点不可过粗或过细。
⏹虚线的线段应长短一致,在一般图纸中,线段长度可取3~6mm,线段间距可取~1mm。
⏹点划线是由长划线和圆点组成的,首尾两端应为长划线段。
⏹折断线的直线部分要在折线处与折线相接,不可以从折线处穿过。
图线相交处要严实无缝。
在手绘图中,垂直相交的直线可以稍稍出头,但不可过多。
画线时常见的弊病如图4—3所示。
图4-3 图线交接画法的正与误2.3.10 标注2.3.10.1 文字标注(1)应从标注线必须是缺省细实线,颜色为天蓝色140号;(2)标注线的指向必须清楚,被标注点须打短线确定;(3)多组标注线的斜线部分,尽量平行;横线部分尽量取齐对准;字串外的多余长度应剪掉。
(4)标注字串要一体,不能分段;字体要统一,标注字串使用HZTXT;字体大小在300~500之间(当图形比例为100:1时);个别情况可适当减小,但不得小于250。
(5)图中的说明或图例,字体要统一。
字的大小:标题用800~1100,字体用_HZTXT;内容部分用350~700,字体用HZTXT;总之,以美观、协调为准。
(6)原土建条件图上的保留文字,在不影响弱电图标注的前提下,字体可不改动。
但必须不过大、不和管线重迭。