高压电缆接地电流在线监测技术方案
- 格式:pptx
- 大小:615.93 KB
- 文档页数:30
高压电力电缆护层电流在线监测及故障诊断技术发布时间:2023-02-03T07:34:06.647Z 来源:《工程建设标准化》2022年9月第18期作者:高岭[导读] 现阶段,随着社会经济的快速发展,在很大程度上促进着电力领域的改革。
高岭国网冀北电力有限公司唐山供电公司,河北省唐山市 063000摘要:现阶段,随着社会经济的快速发展,在很大程度上促进着电力领域的改革。
当下,随着用电量的不断增加,为了能够确保整个高压电力系统的稳定运行,就需要电力工作者及时的做好高压电力电缆的监测工作,但是,在实际的操作过程当中,仍会受到一系列因素的影响,导致高压电力电缆产生故障。
在这种情况下,全面加强对高压电力电缆护层电流的在线监测及故障诊断技术的研究分析具有重要意义。
本文首先分析了高压电力电缆护层电流主要故障及原因;其次探讨了高压电力电缆护层电流在线监测故障诊断技术。
关键词:高压电力电缆;护层电流;在线监测;故障诊断1 高压电力电缆的故障问题1.1电缆质量不过关统计线缆出现的问题时,我们可以发现出现问题的线缆通常由于线缆自身的质量存在缺陷,而存在质量问题的线缆投入使用后则给整个电力系统的运行将带来极大的安全隐患。
结合电缆运行的外界环境来看,高压电缆通常暴露在室外,而室外环境通常有着强烈的日照和温度差,经过长时间的使用给线缆外部的绝缘层带来极大的破坏,而温度的强烈变化也会导致绝缘橡胶层加速老化开裂,其绝缘能力也随之大大下降。
1.2负荷过载当前工业用电和民用用电的用电需求都逐渐地增加,而电力运输的电缆材质仍然采用了传统的电缆材质,同时电缆铺设覆盖面积也仍然存在一定的缺陷,在输电过程中,线缆的运行处于过载情况,导致输电效率大打折扣,同时也导致了大量的能源和资源的浪费,也给电力系统的运行造成了很大的负担。
1.3施工不规范在进行高压线缆铺设过程中,高压线缆施工是一项具有高度复杂性、高度精密性的工作。
因此对于高压线缆施工过程中,需要严格把控施工质量并且做好施工规范管理,以此来保证电缆运行工作的稳定性、可靠性、安全性。
高压电缆线路在线监测技术及应用摘要:我国城市输配电网当中广泛使用到高压电缆,但由于当下在线检测高压电缆技术仍需要完善。
那么要想使电缆的安全运行得到保障,就要将高压电缆线路在线监测技术进行深入探讨,如此才能够符合实际应用需求,本文主要对高压电缆线路在线监测技术进行分析,根据110kV电缆一、二线智能接地在线检测系统运用,探讨该技术的相关问题。
关键词:高压电缆线路,在线检测技术,应用我国城市化以及工业化的进程不断深入,越来越多城市需要更多的电力支持。
电力电缆有着非常多的优势,慢慢成为城市电力传输的关键手段。
那么,分析高压电缆线路在线监测技术,能够更好地保障城市电力传输。
电力系统的主要构成就是高压输电线路,有着非常高的危险性,如果有关监测工作没有做好,那么会威胁到整个电力系统运行的安全,那么强化其系统建设是非常有必要的,在线监测技术能够有效提升高压输电线路的输送能力以及安全运行能力,且能够全面监测高压输电线路的运行幸苦,从而能可以使采集的数据更具精确性以及信息类型更加多样化,给我国电力事业良好发展起到促进作用。
1 高压电缆线路在线监测技术简介高压电缆具有诸多优势,包括有节约用地、可靠性较高以及美观等,能够与我国城市电网的发展需要相满足,我国目前多个城市区域。
逐步替代架空线路,被广泛应用于城市中。
当前不少主干电缆管理仍使用计划检修的形式,通过按时巡视及监测接电线、电缆保护层和接地电流的形式对电缆运行情况进行全方位检查。
如果定期检修和试验,那么就会增加运行维护的人力,另外由于计划检修不连续,造成电缆绝缘缺陷无法处理,另外对于潜在故障排查的实时性也难以保障。
智能电网的建设过程当中,接地电流和高压电缆保护层在线监测系统是非常关键的组成,但由于当前国内外对有关标准以及规定还不够充分,从目前相关文献资料上而言,对于测高压电缆线路、电缆绝缘在线监测技术进行分析等方面的文章比较多,但对于在线监测系统有关的题目却不多。
电缆护层接地环流在线监测装置技术要求1、设备布置情况所有监测单元安置于110-220kV杆塔或中间接头工井内高压电缆上,工控机服务器安装在需方指定控制室内,软件安装在工控机上和需方指定电脑上。
2、应遵循的技术标准2.1 合同中所有设备、备品备件,包括卖方自其他单位获得的所有附件和设备,除本规范书中规定的技术参数和要求外,其余均应遵照最新版本的电力行业标准(DL)、国家标准(GB)和IEC标准及国际单位制(SI),这是对设备的最低要求。
投标人如果采用自己的标准或规范,必须向买方提供中文或英文复印件并经买方同意后方可采用,但不能低于DL、GB和IEC的有关规定。
2.2 执行的标准(产品应满足以下规范及标准,但不仅限于以下规范及标准。
GB50150-1991 电气装置安装工程电气设备交接试验标准GB 2887-89 计算机场地技术条件GB/T 9361-1988 计算机场地安全要求DL/T 720-2000 《电力系统继电保护柜、屏通用技术条件》GB/T17626.2 静电放电抗扰度试验GB/T17626.3 射频电磁场辐射抗扰度试验GB/T17626.4 电快速瞬变脉冲群抗扰度试验GB/T17626.5 浪涌(冲击)抗扰度试验GB/T17626.6 射频场感应的传导骚扰抗扰度GB/T17626.8 工频磁场的抗扰度试验IEC60870-5-103 继电保护设备信息接口配套标准3、运行环境条件3.1海拔高度: ≤1000 m3.2环境温度运行温度: -15 o C~+55 o C最大日温差: 20o C保证精度温度:-5 o C~+50 o C3.3湿度多年平均相对湿度: 小于80%日平均值: 小于95%月平均值: 小于90%3.4电源与抗干扰3.4.1电源监测装置供电要求利用特制CT从运行中的110kV或220kV电缆上感应电压,通过整流、滤波、稳压等后续电路处理后,提供给电子电路所必需的电源,要求监测设备低功耗运行,最小启动和运行的电缆负荷电流不大于40A。
高压电缆线路接地系统在线监测分析随着社会的不断发展和进步,电力行业逐渐成为国民经济发展的重要支撑。
作为电力传输的重要组成部分,高压电缆线路接地系统的在线监测分析越来越受到人们的重视。
接地系统是电力输配网中不可或缺的一部分,它对保障电力系统运行的安全稳定起着至关重要的作用。
本文将从接地系统的重要性、在线监测技术的应用以及分析方法和意义等方面进行探讨,以期为电力行业的发展贡献一份绵薄之力。
一、高压电缆线路接地系统的重要性接地系统的主要作用是为了保护电力设备和人身安全。
在电力系统运行过程中,由于线路的电位、雷击、绝缘破坏等原因都会导致设备或系统出现过电压或过电流现象,而接地系统则能够有效地将过电压和过电流导入地下,从而保护其他设备和人身安全。
接地系统的设计和运行对电力系统的安全运行至关重要。
尤其是在高压电缆线路系统中,接地系统的重要性更是不言而喻。
高压电缆线路通常安装在地下,一旦发生故障,后果将不堪设想。
对高压电缆线路接地系统进行在线监测分析,及时发现并解决问题,对于保障电力系统的安全和稳定运行具有重要意义。
随着科技的不断进步,监测技术也在不断改进和完善,高压电缆线路接地系统在线监测技术也渐渐广泛应用于实际生产中。
目前,常见的高压电缆线路接地系统在线监测技术主要包括:1. 电流互感器技术:利用电流互感器将接地系统内的电流信号转化为电压信号,通过对电压信号的监测和分析,可以实现对接地系统运行状态的实时监测。
2. 电阻测试技术:通过对接地系统内的接地电阻进行定期测试,实时监测接地电阻的变化情况,及时发现和解决接地电阻异常的问题。
3. 超声波检测技术:利用超声波检测技术对接地系统内的故障进行定位和诊断,快速准确地发现接地系统内部的问题。
以上这些技术的应用,不仅能够实现对高压电缆线路接地系统的实时监测,还可以对接地系统的运行状态进行有效分析,并及时发现和解决接地系统运行中的问题,从而保障电力系统的安全稳定运行。
高压电缆接地系统故障监测方法
一、接地电阻监测
接地电阻监测是高压电缆接地系统故障监测的重要手段。
通过定期测量接地电阻,可以及时发现接地不良、接地线断裂等问题,从而防止因接地不良引起的过电压、设备损坏等事故。
接地电阻监测通常采用电阻测量仪进行测量。
二、电流不平衡监测
电流不平衡监测是通过监测高压电缆接地线上的电流,判断接地系统是否正常工作。
正常情况下,接地线上的电流应该是平衡的,如果发现电流不平衡,则说明接地系统存在故障,如接地线接触不良、断裂等。
电流不平衡监测通常采用钳形电流表进行测量。
三、接地线温度监测
接地线温度监测是通过监测接地线的温度变化,判断接地系统是否正常工作。
当接地系统存在故障时,如接地线接触不良、过载等,会导致接地线温度升高。
接地线温度监测通常采用红外测温仪进行测量。
四、电缆振动监测
电缆振动监测是通过监测高压电缆的振动情况,判断接地系统是否正常工作。
当接地系统存在故障时,如接地线松动、断裂等,会导致电缆振动增加。
电缆振动监测通常采用振动传感器进行测量。
五、绝缘电阻监测
绝缘电阻监测是通过测量高压电缆的绝缘电阻,判断电缆是否存在绝缘老化、破损等问题。
绝缘电阻过低可能会导致电缆击穿、短路等事故。
绝缘电阻监测通常采用绝缘电阻测试仪进行测量。
六、电容电流监测
电容电流监测是通过监测高压电缆的电容电流,判断电缆是否存在异常。
电
容电流的变化可以反映电缆的绝缘状况,如果发现电容电流异常,则说明电缆存在绝缘问题。
电容电流监测通常采用电容电流测试仪进行测量。
高压电缆接地电流在线监测技术方案一、技术背景及意义高压电缆在输电过程中难免会出现各种故障和隐患,其中一种较为普遍的故障就是接地故障。
接地故障是指电缆中的导体与地面之间发生电气连通的故障,这种故障如果不及时发现和处理,就可能会给设备带来损害,甚至危及人员的生命安全。
目前,为了预防和及时发现高压电缆接地故障,传统的方法是利用接地线圈进行周期性的检测,但这种方法的缺点是检测的范围狭窄,检测效率低,且只能检测直流接地故障。
为了弥补传统检测方法的不足,近年来出现了一种新的技术——高压电缆接地电流在线监测技术。
高压电缆接地电流在线监测技术是利用传感器监测电缆的接地电流,并将监测结果通过数据传输技术传送到监测系统进行实时处理和显示,可以检测交流、直流接地故障,并可以对接地故障进行精准定位,提高故障检测的效率和准确性,减少故障带来的损失。
二、技术方案高压电缆接地电流在线监测技术方案的组成部分包括:传感器、数据采集装置、监测系统和数据处理分析软件。
1. 传感器传感器是高压电缆接地电流在线监测技术的核心部分,其主要作用是测量电缆接地电流并将测量结果转换为电信号,通过信号电缆传输给数据采集装置。
传感器的选择需要结合实际情况考虑,一般有两种类型的传感器可供选择:磁环型传感器和霍尔型传感器。
(1)磁环型传感器磁环型传感器主要是通过使用磁性环监测电流的变化,具有测量范围大、线性度高、抗干扰能力强等优点,并且适用于测量高压电缆的接地电流。
(2)霍尔型传感器霍尔型传感器是一种基于霍尔效应测量电流的传感器,其优点是电路简单、响应速度快、抗干扰能力强等,特别适用于直流电缆的接地电流测量。
2. 数据采集装置数据采集装置是将传感器测量得到的电信号采集、放大和处理后,通过数据传输技术传送到监测系统。
数据采集装置包括模拟部分和数字部分两大部分。
模拟部分主要是将传感器输出的电信号放大处理,并滤掉干扰信号。
数字部分则将模拟信号进行数字化,再进行压缩、存储和传输处理。
高压电缆线路接地系统在线监测分析高压电缆线路接地系统的稳定运行对确保电力系统的安全和稳定至关重要。
因此,对接地系统的在线监测和分析非常重要。
本文将介绍高压电缆线路接地系统的在线监测与分析方法。
一、高压电缆线路接地系统的基本组成结构高压电缆线路接地系统是指一种在电缆桥架设电缆时设置的电缆接头与大地之间的连接系统。
接地系统由接地网、接地网引下线、接地极等部分组成。
1.1 接地网接地网是指用于引导故障电流并将电流排除到大地中的金属导体网格。
接地网的设计应当具备低接地电阻和良好的接地效果。
接地网引下线是将接地网和电缆外护层的金属屏蔽层相连的导线,其作用是引导故障电流到接地极。
接地极是将电缆的电源及金属护层上的故障电流引入大地的地下金属导体。
接地极的作用是确保接地系统能够有效地将故障电流引入大地,保证电力系统的安全稳定运行。
2.1 接地电阻的在线监测高压电缆线路接地系统的接地电阻是衡量其质量的一个关键指标,接地电阻过高会导致接地效果不佳。
因此,在线监测接地电阻的变化会对监测和分析接地系统的正确性起到重要作用。
目前,接地电阻的在线监测通常使用地电阻仪或接地电阻监测仪进行。
这些技术可以测量接地电阻及其变化,同时还可以进行数据记录和分析。
接地电位是指接地系统与大地之间的电位差。
当这个差值过大时,会导致电流从接地系统到大地流失,从而影响电力系统的稳定性。
在线监测可以提供诸如接地电阻和接地电位等数据,但是对于如何正确使用这些数据来评估接地系统质量和接地故障诊断,通常需要进行后续的在线分析。
3.1 数据处理和评估数据处理和评估可以通过专门的软件来完成。
该软件可以将在线监测的数据进行处理,并产生接地电阻、接地电位等数据的统计报告,以便监测接地系统变化和或故障发生。
3.2 接地故障诊断当出现接地电阻或接地电位的变化时,需要对其进行深入分析并确定其原因。
接地故障诊断通常需要进行人工观察,例如对附近建筑物的工作计划进行检查,以核实是否存在建筑物加重接地系统的负担等。
高压输电线路在线监测系统方案的详细介绍一、项目背景由于高压输电线路纵横延伸几十甚至几百千米,处在不同的环境中。
因此高压输电线路受所处地理环境和气候影响很大,每年电网停电事故主要由线路事故引起。
传统输电线路检查主要依靠运行维护人员周期性巡视,虽能发现设备隐患,但由于本身的局限性缺乏对特殊环境和气候的检测,在巡视周期真空期也不能及时掌握线路走廊外力变化,极易在下一个巡视未到之前,由于缺乏监测发生线路事故。
因此,特高压输电线路在线监测系统应用而生。
二、系统方案武汉风河智能的FH-9000系列高压输电线路监测系统由若干监测子站和服务器组成。
其中,监测子站部署在电力杆塔上,其自身又由监测子站主机和一系列数据采集单元等组成。
监测子站主机内置GPRS/4G网络通信模块、充电控制器等,监测子站负责从各采集单元接收数据,并将其通过GPRS/3G网络发送给远程服务器,实现输电线路的远程视频、微气象、覆冰、杆塔倾斜、弧垂/风偏、防盗报警、雷击、舞动等线路情况实时监测,大幅提升高压输电线路在线监测的精准性以及决策处置的智能化水平。
三、系统组成高压输电线监测系统主要由前端采集单元、网络传输单元、监控中心三部分组成。
1、监测主机,监测主机是一台高性能的数据采集主机,其主供电源为太阳能板和蓄电池,通过预先设定的程序定时对周围的各种数据,比如温度、湿度、风向等进行分析采集,可以不间断对周围环境进行实时监测。
超强的防潮、防雷、防电磁干扰能力适应各种恶劣环境2、传输单元,前端系统对各种传感器、探测器、摄像头所收集数据进行处理后,通过3G/4G无线网络高速透传至监控中心。
3、监控中心,监控中心是系统的“大脑”,由服务器机组和平台软件主组成。
中心监控系统对数据进行各种分析,具有数据存储、历史数据查询、报表、打印、曲线图绘制等功能,可对运行中的输电线路状态进行定性、定量分析和趋势预测;四、子系统功能1、杆塔倾斜在线监测系统,FH-9001高压输电线路杆塔倾斜在线监测系统,利用最新的MEMS传感器技术和无线通信技术,对位于冰灾、雪灾、泥石流、山体滑坡多发区、煤矿采空区等不良地质区域内电线杆塔,进行双向倾斜角度(沿线路方向和垂直于线路方向)实时监测。
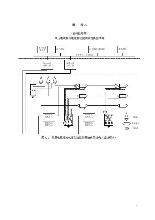
8附 录 A (资料性附录)高压电缆接地电流在线监测系统典型结构用户终端(手持式)用户终端综合监测分析体统其他系统标准通讯、安全隔离复合电流监控主机终端中间接头中间接接地电流监控主机接地电流采集单元复合电流采集单元复合电流采集单元接地电流采集单元图A.1 高压电缆接地电流在线监测系统典型结构(虚线框内)附录B(资料性附录)电流传感器典型安装方式应根据现场敷设的高压电缆实际情况,选择电流传感器安装方式,典型安装方式如下。
图 B.1 高压电缆户外终端位置电流传感器典型安装方式图B.2 高压电缆交叉互联箱位置电流传感器典型安装方式9图 B.3 高压电缆直接接地箱位置电流传感器典型安装方式10附录C(规范性附录)1112附录D(规范性附录)高压电缆接地电流在线监测系统试验方法A.1型式试验方法试验前应汇总被测设备的相关技术资料,结合其带电检测技术特点和现场检测方法,综合了解设备的工作原理、信号采集方式、数据处理方法、分析与诊断方法和干扰抑制技术手段等内容。
A.1.1外观要求试验按DL/T 1506要求逐项进行试验。
A.1.2绝缘性能试验按DL/T 1506要求逐项进行试验。
A.1.3电磁兼容性能试验按DL/T 1506要求逐项进行试验。
A.1.4环境适应性能试验按DL/T 1506要求逐项进行试验。
A.1.5机械性能试按DL/T 1506要求逐项进行试验。
A.1.6外壳防护性能试验按DL/T 1506要求逐项进行试验。
A.1.7功能性验证试验功能性验证试验应在实际高压电缆监测量测量过程中进行逐项验证。
A.2出厂试验试验方法出厂试验项目按表1规定执行,试验方法按型式试验方法执行。
A.3交接试验试验方法交接试验项目按表1规定执行,试验方法按型式试验方法执行。
A.4现场试验试验方法现场试验项目按表1规定执行,试验方法按型式试验方法执行。
13附录 E(资料性附录)高压电缆接地电流在线监测系统数据导出模板表E.1 高压电缆接地电流在线监测系统数据报表14表E.1(续)15。
高压电缆线路接地系统在线监测分析【摘要】本文探讨了高压电缆线路接地系统在线监测分析的方法及其重要性。
首先介绍了研究的背景、目的和意义,然后详细讨论了在线监测系统的构成和接地系统故障诊断分析方法。
接着对接地系统在线监测数据进行了详细分析,并给出了实验结果与讨论。
结论部分强调了高压电缆线路接地系统在线监测的重要性,并展望了未来的发展趋势。
总结指出,在线监测技术能够提高电缆线路的可靠性和安全性,为电力系统的运行和维护提供了有力支持。
通过本文的研究可以为高压电缆线路接地系统在线监测的实际应用提供参考和借鉴。
【关键词】高压电缆、线路、接地系统、在线监测、分析方法、构成、故障诊断、数据分析、实验结果、讨论、重要性、展望、结论1. 引言1.1 背景介绍高压电缆线路接地系统在输电过程中起着至关重要的作用,能够有效地保护电力设备和人员安全,减少因电力系统故障引起的损失。
传统的接地系统监测方法存在着监测不及时、监测精度低等问题,无法满足用户对于电力系统安全可靠性的需求。
开展高压电缆线路接地系统在线监测分析成为当前电力领域研究的热点之一。
随着电力系统的快速发展和技术的不断更新,传统的接地系统监测方式已不再适用于现代电力系统的运行需求。
提出一种高效、准确的在线监测分析方法,对于改善电力系统运行状态、提高故障诊断效率具有重要意义。
本文将围绕高压电缆线路接地系统在线监测分析展开研究,探讨其在电力系统安全运行中的重要作用,为提高电力系统的可靠性和稳定性提供理论支持和技术指导。
1.2 研究目的本研究的目的是对高压电缆线路接地系统进行在线监测分析,以提高接地系统的可靠性和安全性。
通过对接地系统进行实时监测,及时发现潜在故障或问题,可以有效预防接地系统故障的发生,减少停电次数,降低事故风险,保障电网运行的稳定性和可靠性。
本研究旨在深入探讨高压电缆线路接地系统在线监测方法与技术,为接地系统故障诊断和处理提供科学依据和技术支持。
通过对接地系统在线监测数据的分析和研究,可以为电力行业提供更加精准和有效的维修和管理策略,提高电力系统的运行效率和经济性。
浅谈高压电缆接地电流实时监控技术高压电缆接地电流实时监控技术是电力系统中的一项重要技术,它可以对电力系统中的接地电流进行实时监测和分析,及时发现异常情况,保证电力系统的运行安全和稳定。
一、高压电缆接地电流的特点高压电缆接地电流是指电力系统中,电缆导体接地时流过地线的电流,通常采用接地电阻来测量,而接地电阻的大小和接地电流的大小成反比,即接地电阻越大,接地电流越小。
在电力系统中,接地电流是电力系统中的安全指标之一,也是判断电力系统运行稳定性和安全性的重要参数。
二、高压电缆接地电流实时监控技术的意义高压电缆接地电流实时监控技术可以对电力系统中的接地电流进行实时监测和分析,及时发现异常情况。
一旦发现接地电流异常,可以迅速采取措施,避免接地电流过大或接地电阻不平衡等问题,以保证电力系统的运行安全和稳定。
此外,高压电缆接地电流实时监测技术还可以提高电力系统的自动化水平,减少人工监测的工作量,提高工作效率。
三、高压电缆接地电流实时监控技术的方法高压电缆接地电流实时监控技术的主要方法有两种,一种是传统的测量方法,另一种是无线通讯监测方法。
传统测量方法:传统的测量方法主要是通过接地电阻来测量接地电流,一般是采用电阻测量仪来进行。
这种方法的优点是测量精度较高,测量结果可靠,但是需要人工监测,监测效率较低。
无线通讯监测方法:这种方法利用现代的电力无线通讯技术,将接地电流的信息通过无线传感器传输到监测系统中进行分析和处理。
该方法具有测量适应范围广、测量精度高、实时性好等优点,可以实现对电力系统接地电流的智能化监测和处理。
四、高压电缆接地电流实时监控技术的应用高压电缆接地电流实时监控技术已经广泛应用于电力系统中。
在电力系统的运行管理中,高压电缆接地电流的实时监测已经成为必需的技术手段。
在电力设备的维护与保养中,定期对接地电流进行检测和分析,可以帮助电力工程师发现潜在的故障隐患,及时采取措施进行修复和维护,以保证电力系统的运行安全和稳定。
高压电缆线路接地系统在线监测分析一、背景介绍高压电缆线路接地系统是电力系统中不可或缺的一部分,它承担着将故障电流引导到地下的重要作用。
由于线路长期运行、环境条件的影响以及设备老化等因素,接地系统存在着一定的安全隐患。
对接地系统进行在线监测分析显得尤为重要。
本文将从接地系统在线监测的意义、技术手段、分析方法等方面进行探讨和总结,提出一种适合高压电缆线路接地系统在线监测的综合分析方案。
二、在线监测的意义1. 提前预警故障发生通过对接地系统的在线监测,可以实时监测接地系统的运行状态和故障情况,及时发现接地系统的异常情况,并提前预警可能发生的故障,有效减少故障对电网的影响。
2. 节约维护成本传统的接地系统维护需要大量的人力和物力投入,而通过在线监测可以及时了解接地系统的运行情况,有针对性地开展维护和管理工作,节约了人力和物力成本。
3. 提高电网安全性通过对接地系统的在线监测,可以及时发现接地系统的故障,并采取相应的措施进行修复,提高了电网的安全性和稳定性。
三、技术手段接地系统在线监测主要采用以下技术手段:1. 电气测量技术通过在接地系统中设置合适的电流互感器和电压互感器,实时监测接地系统的电流和电压等参数,并进行数据采集和分析。
2. 遥测遥信技术利用遥测遥信技术,可以实现对接地系统的远程监测和控制,及时了解接地系统的运行状态,并进行远程诊断和故障处理。
3. 数据采集与传输技术采用先进的数据采集与传输技术,实现对接地系统数据的实时采集、传输和存储,保障对接地系统运行情况的全面监测。
四、分析方法接地系统在线监测数据的分析是保障系统安全稳定运行的重要环节,主要有以下几种分析方法:1. 数据统计分析对接地系统的在线监测数据进行统计分析,了解接地系统的运行规律和特征,为后续的故障诊断和处理提供依据。
2. 趋势分析通过比较历史数据和实时数据,分析接地系统的趋势变化,及时发现系统的异常情况,提前预警潜在故障。
3. 数据挖掘分析将先进的数据挖掘技术应用于接地系统在线监测数据的分析中,挖掘数据中的潜在规律和异常特征,为系统安全运行提供更多的信息和依据。
高压电缆线路接地系统在线监测分析高压电缆线路接地系统是电力系统中至关重要的一部分,它不仅保证了系统的安全可靠运行,还能够有效地降低潜在的安全风险。
在电力系统运行中,由于环境、设备等原因,接地系统可能存在各种问题,例如接地电阻增加、接地线损坏等,这些问题都可能影响接地系统的安全性能。
为此,电力企业需要对接地系统进行在线监测分析,及时发现并解决接地系统存在的问题,确保系统的安全可靠运行。
高压电缆线路接地系统的在线监测分析主要涉及接地电阻、接地线损坏等方面。
对于接地电阻,监测方式一般采用反漏电流法。
反漏电流法是指通过测量系统中的回路电流和电压,从而计算出系统的接地电阻。
在实际应用中,一般会采用数字式绝缘电阻测试仪对接地电阻进行在线监测。
该测试仪具有自动化程度高、测试速度快、精度高等特点,能够有效地监测接地电阻值的变化情况。
对于接地线损坏问题,一般采用寻线仪进行在线监测。
寻线仪是一种基于地磁测量原理的设备,能够有效地检测接地线是否存在损坏情况。
在实际操作中,需要将寻线仪的探头放置在接地线附近进行扫描,如果探头发现了接地线存在断裂、腐蚀、松动等问题,则会发出报警信号,提醒运维人员及时进行处理。
除了上述监测方式外,还可以采用红外热成像技术进行接地系统的在线监测。
红外热成像技术是指利用热红外相机对电气设备进行非接触式检测,通过观察设备表面温度变化情况,发现设备存在的故障问题,如局部放电、过载等。
在实际应用中,红外热成像技术可以帮助运维人员快速地定位接地系统存在的问题,提高故障排查效率。
综上所述,高压电缆线路接地系统的在线监测分析是电力系统中的重要环节,可以帮助电力企业及时发现接地系统存在的问题,从而采取有效的措施进行处理,保证系统的安全可靠运行。
同时,在实际应用中,需要根据不同的监测任务、监测指标、监测环境等条件,选择合适的监测设备和方法,以提高监测的准确性和有效性。
高压电缆线路接地系统在线监测发布时间:2021-09-10T10:44:48.737Z 来源:《时代建筑》4月上作者:彭富强[导读] 高压电缆我国城市核心电网的基础配置,高压电缆的线路接地是各个城市核心电网安全运行的有效保证,通过探讨高压电缆线路接地过程中出现的问题,科学地研究检测高压电缆接地标准的具体方法。
珠海博威电气股份有限公司彭富强珠海 519000摘要:高压电缆我国城市核心电网的基础配置,高压电缆的线路接地是各个城市核心电网安全运行的有效保证,通过探讨高压电缆线路接地过程中出现的问题,科学地研究检测高压电缆接地标准的具体方法。
当前我国的大多数主干电缆主要是通过计划检修的方式,来检测高压电缆接地电流和防止高压电缆接地线的盗割;这样的检测方式虽然操作简单,但是增加了整个高压电缆的维护和运营成本,而且没有办法做到有效的实时监测。
因此,在科技发展的今天,高压电缆的接地电流在线监测系统,和接地线防盗割系统引起电力行业的广泛关注,但目前高压电缆的接地电流在线监测系统和接地线防盗割系统仍然处于尝试和探索阶段,没有办法科学实际地应用到现实工作中去,本文通过科学地分析,探讨高压电缆线路接地系统在线检测的可行性和科学作用。
关键词:城市电网;高压电缆;线路接地;在线监测系统;科技手段高压电缆护层接地线和接地电流在线监测系统是我国建设智能电网的重要组成部分,高压电缆护层接地线和接地电流在线监测系统的应用,目前在国内外都没有明确的规范,属于电力行业的新兴技术。
由于高压电缆护层接地线和接地电流在线监测系统在实际的电网建设中应用较少,所以可参考的文献也就寥寥无几,在关于高压电缆的研究文献中,以光纤测温为代表的新一代实时监测系统,在我国的电网建设中,已经得到了广泛的应用,而针对接地电流的实时监测技术,在我国却还处于理论阶段的探索当中。
1.高压电缆线路接地系统在线检测的意义高压电缆在我国城市电网中应用广泛,主要取决于高压电缆外表美观、应用可靠性高、节约用电等特点,在我国各大城市的主要区域,高压电缆已经成为城市核心区电网的首要选择。
高压电缆线路接地系统在线监测分析
高压电缆线路接地系统在线监测分析是指对高压电缆线路的接地系统进行实时监测和分析,旨在确保接地系统的可靠性和稳定性,提高电力系统的安全运行水平。
高压电缆线路接地系统是电力系统的重要组成部分,其作用是将线路和设备的电荷通过良好的接地方式导入地下,以确保人身安全和设备正常运行。
接地系统的设计和施工质量直接影响电力系统的运行稳定性和线路保护措施的有效性。
在线监测接地系统的关键参数可以及时发现线路接地系统的故障和隐患,进行及时的维修和处理。
一般来说,接地系统主要包括接地体的接地电阻、接地极的电位分布和接地系统的温度等参数。
1. 接地电阻测试:通过测量接地体的接地电阻,判断接地系统是否正常。
常用的测试方法有四线法和瞬态法等。
2. 接地极电位测试:通过测量接地极的电位分布,了解接地电流的流动情况。
可以采用电位变比法和电位分布法等方法进行测试。
3. 温度监测:通过在接地体上布置温度传感器,实时监测接地系统的温度变化。
温度升高可能会导致接地电阻增大,从而影响接地系统的正常运行。
4. 数据采集和分析:通过在线监测设备采集到的接地系统参数,进行数据分析和处理,提取出故障和隐患的信息,并提供预警和报警功能。
1. 提高电力系统的运行可靠性和稳定性,减少故障和事故的发生。
2. 及时发现和处理接地系统的故障和隐患,减少维修和停电时间。
3. 通过对接地系统的数据分析和处理,优化系统的设计和运行,提高线路保护措施的有效性。
4. 可以实现对接地系统的远程监控和管理,减少人工巡检和维护的工作量。