斜屋面计算方法
- 格式:doc
- 大小:16.16 KB
- 文档页数:3
斜屋面找坡计算一、控制找坡层最薄处厚度的计算方法公式:找坡层工程量(V)=屋面面积(S)*平均厚度(H)平均厚度(H)=坡宽(L)*坡度系数(i)*1/2+最薄处厚以下面实际案例为例,来陈述平屋顶找坡层厚度的计算方法。
已知平屋顶形式及尺寸如下图,屋沿最薄处厚为30mm,计算屋面找坡层工程量。
1、计算平均厚度(A)区:面积:15*4=60m2平均厚度:4.0*2﹪*1/2+0.03=0.07m(B)区:面积:12*5=60m2平均厚度:5.0*2﹪*1/2+0.03=0.08m(C)区:面积:8*(5+2)=56m2平均厚度:7.0*2﹪*1/2+0.03=0.10m(D)区:面积:6*(5+2-4)=18m2平均厚度:3.0*2﹪*1/2+0.03=0.06m(E)区:面积:11*(4+4)=88m2平均厚度:8.0*2﹪*1/2+0.03=0.11m(1)算术平均厚=0.07+0.08+0.10+0.06+0.11∕5=0.084m(2)加权平均厚=60*0.07+60*0.08+56*0.10+18*0.06+88*0.11∕60+60+56+18+88=25.36∕282=0.0899≈0.09m2、屋面找坡层工程量(1)屋面工程量(算术平均厚)=282*0.084=23.69m3(2)屋面工程量(加权平均厚)=282*0.09=25.38m33、小结:通过上述计算分析,因其计算找坡层厚度不同,屋面找坡层工程量有两个结果,一是以算术平均厚为基础计算的屋面找坡层工程量,另一个是以加权平均厚为基础计算的屋面找坡层工程量。
从实际设计角度出发,以哪种平均厚为基础更精确呢?应该以加权平均厚为基础计算的屋面找坡层工程量,所以建议屋面工程量计算时,应多采用以加权平均厚为基础计算的屋面找坡层工程量。
4、存在的问题:通过对以上控制找坡层最薄处厚度的计算方法的探讨分析,可以知道这种计算方法根据屋面坡宽的不同,把平屋顶屋面划分了(A)、(B)、(C)、(D)、(E)五个区,设计时以各区为独立单位,在保证屋面坡度不变的前提下,各区不在同一坡面上,即各区坡面高低不平,屋脊处即各区最厚部位高低也不同,使(A)、(B)、(C)、(D)、(E)五区厚薄不均,区与区之间出现高低不同的棱,从而造成在各区交接处施工困难,也容易造成积水和渗漏。
屋面斜坡长度计算公式
屋面斜坡长度计算公式是用来计算屋面的斜坡长度的一种数学公式。
它是通过计算水平面上的投影长度,从而得出屋面斜坡长度的一种方法。
一般情况下,屋面斜坡长度计算公式如下:S=L*cosθ。
其中,S表示斜坡长度,L 表示水平面上的投影长度,θ表示屋面斜坡的高度角度。
屋面斜坡长度计算公式的计算过程比较简单,只需要计算水平面上的投影长度L,然后用公式S=L*cosθ,就可以得到屋面斜坡长度S。
在实际工程中,屋面斜坡长度计算公式也有一些特殊应用,例如,在计算立面窗户的高度时,可以使用屋面斜坡长度计算公式。
此外,在计算建筑物屋面高度时,也可以使用屋面斜坡长度计算公式。
屋面斜坡长度计算公式的应用非常普遍,但是在实际计算中,还需要注意一些问题,例如,当使用屋面斜坡长度计算公式计算屋面斜坡长度时,必须确保屋面的高度角度θ是准确的,否则会导致计算错误。
此外,在使用屋面斜坡长度计算公式时,还需要考虑屋面的坡度,因为不同的坡度会对屋面斜坡长度的计算结果产生影响。
所以,在使用屋面斜坡长度计算公式时,一定要考虑到屋面的坡度,以准确计算出屋面斜坡长度。
总之,屋面斜坡长度计算公式是一种通过计算水平面上的投影长度,从而得出屋面斜坡长度的一种方法,它的计算过程比较简单,但在实际应用中,仍需要注意屋面高度角度和坡度的准确性,以确保计算的精确性。
1、A=A’,且S=0时,为等两坡屋面;
A=A’=S时, 为等四坡屋面;
2、屋面斜铺面积=屋面水平投影面积×C;
3、等四坡屋面斜脊长度:A×D。
若已知坡度角α不在定额屋面坡度系数表中时,则利用C=1/COSα公式,直接计算出延尺系数C;学易网提供
或利用公式C=[(A2+B2)1/2]/A,直接计算出延尺系数C。
例如:斜坡高度B=1.8m,水平长A=4.2m,则B/A=0.4286,不在定额屋面坡度系数表中,
计算C=[(4.22+1.82) 1/2]/4.2=1.088
隅延尺系数D按下式计算:D=(1+C2) ?
隅延尺系数D可用于计算四坡屋面斜脊长度
斜脊长=斜坡水平长×D测工网提供
例:某四坡水屋面平面如图,设计屋面坡度0.5,计算斜面积、斜脊长 正脊长。
屋面坡度=B/A=0.5,查屋面坡度系数表得C=1.118,
屋面斜面积=(50+0.6×2) ×(18+0.6×2) ×1.118=1099.04m2
查屋面坡度系数表得D=1.5,单面斜脊长=A×D=9.6×1.5=14.4m,
斜脊总长:4 ×14.4=57.6m
正脊长度=(50+0.6 ×2)-9.6×2=32m (欢迎参与右下角评论)。
屋顶斜坡角度计算方法
屋顶斜坡角度,是指屋顶的倾斜角度,通常用度数或百分比来表示。
这个角度的计算方法有多种,以下是其中的两种:
第一种方法是通过平面位置和高度来计算。
首先,在屋顶上标出两个点,其中一个点为屋顶最高点,另一个点为屋顶底部。
然后,用尺子或测量工具量取这两个点之间的距离,即为屋顶的水平跨度。
接着,用尺子或测量工具量取屋顶最高点到地面的垂直距离,即为屋顶的高度。
将水平跨度和高度代入以下公式中,就可以计算出屋顶斜坡角度:
tan(斜坡角度)=高度÷水平跨度
第二种方法是通过使用角度测量仪。
将角度测量仪置于屋顶上,并将其校准为水平状态。
然后,读取测量仪上显示的屋顶倾斜的角度,即为屋顶的斜坡角度。
这种方法更加精确和方便,但需要使用专业的测量工具。
斜屋面水平推力计算
斜屋面水平推力计算是指计算斜屋面在水平方向上受到的推力大小。
推力是指
屋面受到外部压力或重力作用时所产生的力,它会对建筑物的结构产生影响。
斜屋面水平推力的计算是为了确定建筑物的结构是否能够承受该推力,从而保证建筑物的稳定性和安全性。
要计算斜屋面的水平推力,需要考虑屋面的坡度角以及受力情况。
下面是一般
的计算步骤:
1. 确定屋面的坡度角度(α):坡度角度是指屋面与水平面之间的夹角。
可以
通过测量或根据建筑设计文件获得。
2. 确定屋面的重量(W):屋面的重量是指屋面自身的重量以及上面施加的任
何附加负荷,如雪或风压力。
这个重量可以通过建筑设计文件或结构分析计算得到。
3. 计算水平推力(P):水平推力是指斜屋面在水平方向上受到的压力。
可以
使用以下公式计算:
P = W * tan(α)
其中,P为水平推力,W为屋面的重量,α为坡度角度的正切值。
4. 根据计算结果评估结构安全性:将计算得到的水平推力与建筑物的结构能力
进行比较,以确保结构的稳定性和安全性。
需要注意的是,在实际工程中,因为屋面可能会受到多个方向的力的作用,可
能还需要考虑一些其他的因素和计算方法。
因此,在进行斜屋面水平推力计算时,建议咨询专业工程师或使用相关的结构分析软件进行精确计算。
通过准确计算斜屋面的水平推力,我们可以评估建筑结构的安全性,并采取必
要的措施来确保建筑物的稳定性。
这对于建筑工程的设计和施工至关重要,以保障人员和财产的安全。
斜坡屋面面积计算公式斜坡屋面面积计算公式:1、坡度计算公式:坡度=垂直高度/水平距离;2、使用坡度度数表计算面积:坡度度数*水平距离即为最终面积;3、使用三角形斜坡面积计算公式:坡面面积=(上/下/斜腰/一边长度+2)*斜腰半径*斜腰算出的角度;4、使用T型面积计算公式:T型面积 = (T型坡度*T型直腰长度*0.5+T型斜腰长度*T型斜腰半径*T型斜腰算出的角度) * 0.5;5、算出扩展式子坡度长度计算面积:扩展式子坡度面积=子坡度水平距离*子坡度垂直高度;6、使用面积公式计算法:斜坡面积= (1+斜坡斜腰系数)* 等腰三角形的面积;7、采用累步法计算等腰三角形斜坡面积:在斜坡垂直面上,先将量好的结果累加,直到斜坡的顶部形成斜坡的结果,最后得到的面积即为斜坡的最终结果。
斜坡屋面面积计算是按照一定的公式来计算面积的。
首先,得首先计算斜坡的坡度,即垂直高度除以水平距离,得到斜坡的坡度。
其次,与坡度度数表对比,根据坡度度数及水平距离即可确定面积。
另外,采用三角形斜坡面积计算公式可以计算出斜坡的面积:坡面面积=(上/下/斜腰/一边长度+2)*斜腰半径*斜腰算出的角度;对于T型屋面计算面积,可以采用T型面积计算公式:T型面积 = (T型坡度*T型直腰长度*0.5+T型斜腰长度*T型斜腰半径*T型斜腰算出的角度) * 0.5;此外,还可以采用扩展式子坡度长度计算面积,即子坡度水平距离*子坡度垂直高度。
最后,针对等腰三角形斜坡的面积计算,则可以采用公式:斜坡面积= (1+斜坡斜腰系数)* 等腰三角形的面积,也可以使用累步法,在斜坡垂直面上,先将量好的结果累加,直到斜坡的顶部形成斜坡的结果,最后得到的面积即为斜坡的最终结果。
斜屋面施工计算方法1.面积计算:首先,需要测量屋顶的长和宽。
可以使用激光测距仪或测量工具对屋顶的边界进行测量。
确保测量的结果是准确的。
然后,将长和宽相乘得出屋顶的总面积。
如果屋顶有突出物(如烟囱、风扇等),则需要将其面积从总面积中减去。
2.材料估算:根据屋顶的面积计算出需要的材料的数量。
具体计算方法如下:-屋顶瓦片:根据瓦片的规格(一般是长和宽)计算每平方米需要的瓦片数量,然后将总面积除以每平方米瓦片的数量,得出所需的瓦片数量。
-防水材料:根据屋顶的面积计算出需要的防水材料的数量。
可以参考防水材料的使用标准来计算。
-木材和钉子:根据屋顶的结构和设计来计算需要的木材和钉子的数量。
-瓦片胶水和灰泥:根据瓦片胶水和灰泥的使用说明书来确定每平方米需要的数量,然后乘以总面积得出所需的数量。
-其他材料:根据具体设计要求,如屋顶下水道、雨水管等,计算所需的其他材料的数量。
3.施工时间计划:根据屋顶的面积和施工队伍的工作效率,制定施工时间计划。
通常,需要考虑以下因素:-安全措施:包括防止高处坠落、设立安全围栏等。
根据安全措施的时间和人员需求,将其考虑在施工时间计划中。
-材料供应:估计材料供应的时间。
确保材料能够及时到达施工现场,以避免施工中断。
-施工队伍:根据现场工作量和施工队伍的人员数量和工作效率,估计完成施工所需的时间。
-天气因素:考虑到不良天气可能对施工进度造成的影响。
如果需要,可在计划中添加额外的时间来应对不良天气。
-完工验收:安排施工结束后的验收工作,以确保屋顶符合规范和设计要求。
考虑到验收可能需要的时间。
以上是斜屋面施工计算方法的基本步骤。
在实际施工中,还需要结合具体情况进行调整和补充。
施工计算的准确性和详细程度对于确保施工质量和进度的控制至关重要。
因此,建议在施工前仔细和全面地进行计算和规划。
斜屋面、工程量计算规则及公式2017-09-20广联达客服1、平屋面工程量(1)屋面面积;(2)找平层;(3)保温层;(4)屋面卷材防水;(5)铁皮;(6)UPVC雨水斗;(7)铸铁落水口;(8)UPVC弯头;(9)排水管。
2、屋面工程量计算方法(1)屋面面积瓦屋面、型材屋面(包括挑檐部分)均按设计图示尺寸水平投影面积乘以屋面坡度系数(见屋面坡度系数表)以斜面积计算。
①不扣除房上烟囱、风帽底座、风道、屋面小气窗和斜沟等所占面积。
②屋面小气窗出檐与屋面重叠部分的面积不增加,但天窗出檐部分重叠的面积计入相应的屋面工程量内。
③瓦屋面的出线、披水、稍头抹灰、脊瓦加腮等工、料均不另计算。
(2)屋面防水面积屋面卷材防水、屋面涂膜防水按设计图示尺寸按面积以平方米计算。
①斜屋顶(不包括平屋顶找坡)按图示尺寸的水平投影面积乘以屋面坡度延尺系数按斜面积以平方米计算,平屋顶按水平投影面积计算,由于屋面泛水引起的坡度延长不另考虑。
②不扣除房上烟囱、风帽底座、风道、屋面小气窗和斜沟所占面积,其根部弯起部分不另计算。
③屋面的女儿墙、伸缩缝和天窗等处的弯起部分,并入屋面工程量内。
天窗出檐部分重叠的面积应按图示尺寸,以平方米计算,并入卷材屋面工程内。
如图纸未注明尺寸,伸缩缝、女儿墙可按25cm天窗处按50cm计算。
④涂膜屋面的工程量计算同卷材屋面。
涂膜屋面的油膏嵌缝、玻璃布盖缝、屋面分隔缝,以延长米计算。
(3)屋面抹水泥砂浆找平层的工程量与卷材屋面相同(4)屋面保温层的工程量与卷材屋面相同(5)屋面工程量中铁皮、UPVC雨水斗,铸铁落水口,铸铁、UPVC弯头、短管, 铅丝网球按个计算(6)屋面排水管按设计图示尺寸以展开长度计算。
如设计未标注尺寸,以檐口下皮算至设计室外地平以上15cm为止,下端与铸铁弯头连接者,算至接头处【此文档部分内容来源于网络,如有侵权请告知删除,本文档可自行编辑和修改内容,感谢您的支持!】。
斜屋面工程量计算规则及公式斜屋面的工程量计算规则及公式主要包括屋面面积计算、屋面瓦片计算和屋面木材计算等方面。
下面将详细介绍斜屋面工程量计算规则及相应的公式。
一、屋面面积计算斜屋面的面积计算一般采用三角形的面积计算方法,即将屋面划分为一个个三角形,分别计算每个三角形的面积,然后将所有三角形的面积相加。
计算公式如下:屋面面积=Σ((a×b)/2)其中,a和b分别代表三角形的两条边长。
二、屋面瓦片计算屋面瓦片的计算是根据屋面面积和瓦片的尺寸来确定所需瓦片数量以及瓦片的摆放方式。
计算公式如下:瓦片数量=屋面面积/单块瓦片面积瓦片行数=屋面宽度/瓦片宽度瓦片列数=屋面长度/瓦片长度需要注意的是,瓦片的尺寸应根据实际情况进行测量,而不是直接使用标准尺寸。
三、屋面木材计算屋面木材的计算主要包括檩条和屋面托架的计算。
计算公式如下:檩条数量=屋面周长/檩条间距托架数量=屋面长度/托架间距需要注意的是,檩条和托架的计算应考虑到结构的稳定性以及木材的材质和尺寸等因素。
四、其他因素除了上述计算规则和公式外,斜屋面的工程量计算还需要考虑其他因素,如边角、檐口和排水等。
边角和檐口的计算可以根据屋面的形状和尺寸来确定,而排水的计算则需要根据设计要求和当地的降水量等因素综合考虑。
总结:斜屋面的工程量计算涉及到屋面面积计算、屋面瓦片计算和屋面木材计算等多个方面。
通过合理计算和准确测量,可以确定所需材料的数量和尺寸,从而为斜屋面的施工提供参考。
需要注意的是,工程量计算需要结合实际情况进行,考虑到结构的稳定性、材料的性能以及施工的安全性等因素,以确保斜屋面的质量和稳定性。
斜屋面水平推力计算一、引言随着建筑行业的不断发展,斜屋面建筑在我国逐渐增多。
斜屋面水平推力的计算成为建筑设计中不可或缺的一环。
本文将详细介绍斜屋面水平推力的计算方法及其在建筑设计中的应用,以期为建筑设计师提供有益的参考。
二、斜屋面水平推力的计算方法1.斜屋面结构简介斜屋面是指屋面坡度大于0°的屋顶结构。
在斜屋面结构中,水平推力是指由于建筑物自重、风荷载、雪荷载等因素作用在屋面上,使屋面产生的向下和向前的水平力。
2.水平推力的定义和作用水平推力是由于建筑物自重和外部荷载作用在屋面上,使屋面产生的向下和向前的水平力。
水平推力的作用主要表现在以下几点:(1)影响屋面结构的稳定性;(2)影响建筑物的抗震性能;(3)决定屋面材料的选择和施工方法。
3.计算公式及参数说明斜屋面水平推力的计算公式为:F =G × sinα + Q × cosβ其中,F为水平推力(N);G为建筑物自重(N);α为斜屋面坡度(°);Q为外部荷载(N/m);β为外部荷载作用角度(°)。
影响斜屋面水平推力的因素主要包括:1.斜屋面的坡度:坡度越大,水平推力越大;2.建筑材料的选择:不同材料承受水平推力的能力不同;3.施工质量与维护:施工质量和维护水平直接影响水平推力的计算结果。
三、水平推力计算在建筑设计中的应用1.屋面结构的优化设计:通过合理设置斜屋面的坡度、选用适当的建筑材料,降低水平推力,提高屋面结构的稳定性;2.建筑抗震设计:根据水平推力的计算结果,合理设计建筑结构的抗震性能,提高建筑物的抗震能力;3.建筑安全性评估:水平推力的计算结果可为建筑安全性评估提供重要依据。
四、案例分析以某实际工程项目为例,该项目为一座斜屋面住宅建筑。
根据水平推力的计算公式,考虑建筑物自重、风荷载和雪荷载等因素,计算得到水平推力。
通过对比不同方案的计算结果,为建筑设计提供合理建议。
五、结论斜屋面水平推力的计算在建筑设计中具有重要意义。
四坡斜屋面面积计算公式
四坡斜屋面面积计算公式为:面积=屋面水平投影面积乘以A(坡屋面系数)。
A值是以坡度系数求得的。
例如坡度系数1:4,即水平4米,高度为1米,AXA=(1+1X1/4X4)=1.0308X1.038。
坡屋顶主要有单坡式、双坡式、四坡式和折腰式等。
以双坡式和四坡式采用较多。
坡度用斜面在垂直面上的投影高度(矢高H)和水平面上的投影长度(半个跨度L/2)之比来表示;也可用高跨比(矢高H和跨度L之比)来表示;或以斜面和水平面的夹角来表示。
所选用的屋面防水层材料的性能和构造决定坡度大小。
如果选用防水性能好、单块面积大、接缝少的材料坡度可小些;如果选用块小、接缝多的材料坡度应大些。
在寒冷地区为防止屋面大量积雪,坡度宜较陡;带有阁楼的屋顶,常采用陡坡屋面或采用两个不同坡度结合的折腰式屋面。
斜屋面结构的计算斜屋面结构的计算(一)斜屋面的建模⑴通过设置“梁两端标高”或者“改上节点高”等方式形成屋面斜板。
⑵在PMCAD建模时,屋面斜梁不能直接落在下层柱的柱项,斜梁下应输入100mm高的短柱(如图1所示,图略)。
短柱通常只传递荷载和内力,而没有设计意义。
⑶当采用TAT和SATWE软件计算时,顶部倾斜的剪力墙程序不能计算,PMSAP可以计算,但要在“复杂结构空间建模”冲将其定义为弹性板6。
(二)软件对屋面斜板的处理⑴TAT和SATWE软件只能计算斜粱,对斜屋面的刚度不予考虑。
⑵PMSAP软件可以计算屋面斜板的刚度对整体结构的影响。
(三)斜屋面结构的计算⑴简化模型1:忽略斜屋面刚度对整体结构的影响,将屋面斜板的荷载导到斜梁上,用TA T或SA TWE软件计算。
⑵简化模型2:将斜屋面刚度用斜撑代替,屋面斜板的荷载导到斜梁上,用TA T或SA TWE软件计算。
斜撑的主要目的是为了模拟斜屋面的传力,其本身的内力计算没有意义,但在计算屋面荷载时,应适当考虑斜撑自重。
⑶真实模型:考虑斜屋面刚度对整体结构的影响,用PMSAP软件计算。
(四)工程实例⑴工程概况:某工程为框架结构的仿古建筑,共4层,第二层的两端和第四层的中间部分布置了较多的斜屋面,该结构斜屋面组成比较复杂(如图 1所示,图略),板厚为 180mm,地震设防烈度为8度,地震基本加速度为0.2g,周期折减系数0.7,考虑偶然偏心的影响,并用总刚模型计算。
该结构的三维轴测图、首层平面图和第四层斜梁线框图如图1所示(图略)。
⑵斜屋面结构的计算为了能够有效地体现屋面斜板对结构设计的影响,现分别采用三种计算模型对结构进行计算,第一种模型为考虑斜屋面,按真实模型进行计算;第二种模型为忽略斜屋面,将斜屋面引起的荷载传递给斜梁,按简化模型1计算;第三种模型为将斜屋面用斜撑代替,斜屋面引起的荷载传递给斜梁,按简化模型2计算。
这三种计算模型中结构周期和位移的计算如表1所示,某根构件的内力计算如表2、表3和表4所示。
斜屋面施工计算方法(图文)一、斜屋面的测量放线1、在斜屋面结构的模板工程开始施工之前,要求在楼面板上进行控制线、墙柱定位线、墙柱300检查线的投放;同时要求把斜屋面平面布置的轮廓线投放出来。
测量员、木工工长、质检员均要求对上述测量放线情况进行跟踪检查,以确保斜屋面轮廓线投放的准确性,进而保证斜屋面结构的模板支设质量。
2、根据施工图纸的标高标注情况,计算出斜屋面各个角点的标高数值并标注在斜屋面轮廓线的楼面相应位置上。
木工工长、质检员要求对标注在楼板上的斜屋面各个角点完成标高进行一一核实,以便于工人选取合适长度的钢管立杆进行满堂架搭设,进而保证对斜屋面结构模板支设标高的控制。
二、斜屋面模板支撑满堂架设计1、斜屋面结构模板支撑满堂架立杆布置的搭设顺序为:“先梁墙柱后斜屋面板”。
立杆距梁侧、剪力墙边、柱边的间距为350mm。
立杆按照不大于1000mm的间距均匀布置,确保水平杆横、纵两个方向拉通设置。
立杆离地200mm处两个方向各设置一道水平扫地杆,沿高度方向每隔1.5m米两个方向各设置一道水平拉杆。
立杆接长严禁搭接,必须采用对接扣件连接,相邻两立柱的对接接头不得在同步内,且对接接头沿竖向错开的距离不宜小于500mm,各接头中心距主节点不宜大于步距的1/3。
2)在满堂支撑架体外侧周边及内部纵、横向每5m~8m,设置由底至顶的连续竖向剪刀撑,剪刀撑宽度为5m~8m。
剪刀撑杆件底端与地面顶紧,夹角为45°~60°。
在竖向剪刀撑顶部交点平面应设置连续水平剪刀撑,当支撑高度超过8m,扫地杆设置层应设置水平剪刀撑。
水平剪刀撑至架体底平面距离与水平剪刀撑间距不超过8m。
3)立杆伸出顶层水平杆中心线至支撑点的长度a 不应超过500m m。
顶托的伸出长度不宜超过300mm。
用于悬挑斜梁4平梁、斜梁相交位置的模板支设三、斜屋面梁模板支设及加固设计斜屋面梁根据梁底标高的变化情况分为水平梁和斜梁两种类型,本方案分别对水平梁和斜梁进行模板支设及加固的设计。
如何快速计算斜屋面面积
斜屋面是指屋顶倾斜的一种设计,常见于建筑物、住宅、商业楼等。
计算斜屋面的面积可以帮助我们更好地规划、设计和购买相关材料。
下面是一种快速计算斜屋面面积的方法:
1.理解斜屋面的几何形状:
斜屋面通常由两个直角三角形组成。
一个直角三角形的两个直角边是屋顶的两个斜边,第三个边是屋顶底部的边。
另一个直角三角形与第一个三角形相邻,共享斜边,另外两个边则为屋顶两个垂直的边。
2.测量斜边和底边的长度:
使用一个测量工具,如卷尺或测量仪器,测量斜边和底边的长度。
确保测量的准确性,可以用纸和笔记录下来。
3.计算三角形的面积:
使用斜边和底边的长度计算第一个直角三角形的面积。
使用以下公式计算:
面积=0.5*斜边长度*底边长度
4.计算斜屋面的总面积:
由于斜屋面由两个直角三角形组成,可以简单地将两个三角形的面积相加,即可得到斜屋面的总面积。
5.额外考虑:
-如果斜屋面的形状不规则,可以将其分割为多个规则的三角形,并计算每个三角形的面积,最后将它们相加。
-如果屋顶具有其他形状,如梯形或矩形,可以单独计算这些形状的面积,并将其与三角形的面积相加。
总之,通过理解斜屋面的几何形状,准确测量斜边和底边的长度,并应用适当的几何公式,就可以快速计算斜屋面的面积。
斜屋面找坡计算公式
斜屋面找坡计算公式是用来确定一个斜屋面的坡度的公式。
斜屋面通
常用于屋顶、棚架和其他建筑结构中,其坡度会影响屋顶的排水和整体结
构的稳定性。
在设计和建造过程中,找到适当的坡度对于保护建筑物免受
雨水和积水的侵害非常重要。
斜屋面的坡度可以通过两种不同的方式进行测量和计算:角度和百分比。
以下是这两种方式的公式和计算方法:
1.角度:斜屋面的坡度可以用角度来度量,通常以度数来表示。
要计
算坡度的角度,可以使用以下公式:
角度 = arctan(上升高度÷ 水平距离)
其中,上升高度是斜屋面的垂直高度,水平距离是斜屋面的水平距离。
例如,如果一个斜屋面的上升高度为3米,水平距离为10米,那么
坡度的角度可以计算为:
角度= arctan(3 ÷ 10) ≈ 16.7°
2.百分比:另一种常用的斜屋面坡度计量方式是百分比。
百分比坡度
表示上升高度与水平距离之间的比例关系。
要计算百分比坡度,可以使用
以下公式:
百分比坡度=(上升高度÷水平距离)×100
例如,如果一个斜屋面的上升高度为3米,水平距离为10米,那么
百分比坡度可以计算为:
百分比坡度=(3÷10)×100=30%
以上是两种常用的斜屋面坡度计算公式。
在实际应用中,可以根据具体的斜坡尺寸和设计要求来选择合适的坡度计算方法。
找到合适的坡度可以帮助确保斜屋面的排水有效,从而保护建筑物的结构和内部空间免受水损害。
斜屋面面积计算公式以斜屋面面积计算公式为标题,我们来探讨一下斜屋面的面积计算方法。
斜屋面指的是屋顶的坡度不为0的情况,常见于斜屋顶的建筑物,如民居、工业厂房等。
斜屋面的面积计算公式为:斜屋面面积 = 底面积× 斜面系数我们需要计算斜屋面的底面积。
底面积是指屋顶平面的面积,可以通过测量或计算得到。
常见的底面形状有矩形、三角形、梯形等,我们需要根据实际情况选择相应的计算方法。
以矩形底面为例,底面积的计算公式为:底面积 = 底边长度× 底边宽度接下来,我们需要计算斜面系数。
斜面系数是指斜屋面与水平面之间的夹角的正弦值。
夹角可以通过测量或其他方法得到,然后通过三角函数计算得到斜面系数。
假设斜屋面的夹角为θ,斜面系数的计算公式为:斜面系数= sin(θ)现在,我们可以将底面积和斜面系数代入斜屋面面积计算公式中,得到最终的面积结果。
需要注意的是,斜屋面的面积计算公式适用于坡度不为0的情况。
对于平屋顶或者坡度非常小的屋顶,可以近似地将其视为平面,使用平面的面积计算方法。
除了斜屋面面积计算公式外,我们还可以通过其他方法来估算斜屋面的面积。
例如,可以利用测量仪器进行实地测量,或者通过建筑图纸中的尺寸信息进行计算。
这些方法都可以得到较为准确的斜屋面面积结果。
斜屋面的面积计算在建筑设计和施工过程中非常重要。
它不仅可以用于预估建筑材料的用量,还可以用于计算施工成本、确定屋面排水设计等。
因此,准确计算斜屋面的面积对于建筑项目的成功实施至关重要。
总结起来,斜屋面面积计算公式为斜屋面面积= 底面积× 斜面系数。
底面积可以根据底面形状计算得到,斜面系数可以根据斜屋面的夹角通过三角函数计算得到。
通过准确计算斜屋面的面积,我们可以更好地进行建筑设计和施工,确保项目的顺利进行。
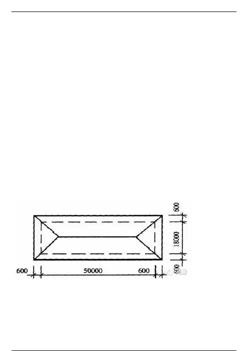
',坡度比例=1/4)261.某四坡屋面水平图,设计屋面坡度=0.5(即θ=。
34应用屋面坡度系数计算以下数值:(1)屋面斜面积;(2)四坡屋面斜脊长度;(3)全部屋脊长度;(4)两坡沿山墙泛水长度。
【解】(1)查表10-1,C=1.1182=41×162)×1.118m×+屋面斜面积=(40.0+10.5×2)(15.00.5×22=733.41m1.118m(2)查表10-1,D=1.5,四坡屋面斜脊长度=AD=8×1.5m=12m(3)全部屋脊长度=[12×2×2+(41-8×2)m=(48+25)m=73m(4)两坡沿山墙泛水长度=2AC=2×8×1.118m=17.89m(一端)2.如图所示,求带天窗的瓦屋面工程量。
22 =1035.45m1.118m×0.4)+(20×0.4)+=(45【解】工程量3.某工厂车间,屋面为钢檩上铺石棉瓦,如图所示,计算瓦屋面工程量。
【解】根据定额工程量计算规则第一条、第四条规定及表10-1:工程量计算(水平投影):F={[(40+0.18×2)×(12+0.18×2)+20.6×(0.3+0.3)]×1.118+40.36×0.05222 1.118+4.04]m=575.57m×2}m=[(498.85+12.36)×4.有一带屋面小气窗的四坡水平瓦屋面,尺寸及坡度如图所示。
计算屋面工程量、屋脊长度和工料用量。
【解】(1)屋面工程量:按图示尺寸乘屋面坡度延尺系数,屋面小气窗不扣除,与屋面重叠部分面积不增加。
查得坡度系数,C=1.1180222 100m×=5.1481=514.81m1.1180m×F2)×0.5+2)(13.74×0.5+=(30.24w (2)屋脊长度:1)正屋脊长度:若F=A,则L=(30.24—13.74)m=16.5m j12)斜脊长度:查得坡度偶延尺系数D=1.50,斜脊4条,L=×1.50×4m=44.22mj23)屋脊总长:L=L+L=(16.5+44.22)m=60.72m j2jj1 L=×1.5×4m=44.22m 244.22)m=60.72m +4)屋脊长度:L=(16.5 (3)工料用量:因屋面坡度较大,考虑檐瓦穿铁丝钉铁钉,按定额规定增加工料,檐长(30.24+13.74)×2=87.96m,根据定额9-2,该四坡水屋面的工料汇总在表内。
.5.如图所示保温平屋面,求其屋面定额直接费。
22 12.24m=443.58m【解】工程量=36.24×保温层平均厚度=(0.06+×2%12cm 2)m=0.119m/≈该屋面为女儿墙外天沟排水,应套定额5-76、5-77,但因保温层配合比为1:12,需换算,防水层为PVC橡胶卷材,不是三毡四油,也需换算。
查附表107、108,及5-86,5-91,定额5-76换算为:2 l00m+3460.39)元/5.369(4275.10-148.10×+149.52×5.3692-2005.442100m=5737.67元/2=146.12元元/100m0.8945+149.52×0.8945)5-77=(144.85-148.10×换2 100m/2=6614.39100m元/146.12×(12-6)]元/应套的定额基价为:[5737.67+2l00m若该屋面保温层做法改为:60mm厚l:12水泥蛭石(平均厚度),上做炉渣混凝土找坡,坡度为2%;其他条件不变,则找坡平均厚度为:(12-0.24×2%)÷2=0.06m=6cm2l00m71.525-69,基价元/炉渣混凝土找坡套2元/100m71.52应套定额基价为:5737.67+×6=6166.79 元=27354.65元6166.79×100÷=443.58定额直接费.6.有一两坡水二毡三油卷材屋面,尺寸如图所示。
屋面防水层构造层次为:预制钢筋混凝土空心板、1:2水泥砂浆找平层、冷底子油一道、二毡三油一砂防水层。
计算:(1)当有女儿墙,屋面坡度为1:4时的工程量;(2)当有女儿墙坡度为3%时的工程量;(3)无女儿墙有挑檐,坡度为3%时的工程量。
0,,查得C02=1:4时,相应的角度为141.0308【解】(1)屋面坡度为F=[(72.75-0.24)×(12-0.24)×1.0308+0.25×(72.75-0.24+ju2 2]m12.0-0.24)×22 42.14)m=921.12m=(878.98+式中F-屋面防水层工程量。
ju(2)有女儿墙,3%的坡度,因坡度很小,按平屋面计算2×0.25]m+12-0.48)×2×F=[(72.75-0.24)(12-0.24)+(72.75ju22=894.86m=(852.72+42.14)m或[(72.75+0.24)(12+0.24)-(72.75+12)×2×0.24+(72.75+12-0.48)×222×0.25]m=894.85m(3)无女儿墙有挑檐平屋面(坡度3%),按图a、c,有F=外墙外围水平面积+(L+4×檐宽)×檐宽,代人数据得:外ju F={(72.75+0.24)(12+0.24)+[(72.75+12+0.48)×2+4×0.5]×ju2 0.5}m2 =979.63m(4)找平层面积1:2水泥砂浆找平层,按净空面积计算其工程量:1)有女儿墙坡屋面时,找平层面积为:22×1.0308m=878.98mF=(72.75-0.24)(12-0.24)2)有女儿墙平屋面时,找平层面积:22=852.72mF=(72.75-0.24)(12-0.24)m :)所示c如图(无女儿墙有挑檐平屋面,包括檐沟的找平层面积为(5).F=(72.75+0.24+0.5×2+0.2×2)(12+0.24+0.5×2+0.2×22 =1014.8m2)m 7.计算卷材平屋面工程量。
2m【解】卷材坡屋面工程量按坡屋面的水平投影面积乘以屋面坡度延尺系数,以2为计量m卷材平屋面工程量按平屋面的水平投影面积计算,为计量单位。
以单位,但不扣除房上烟囱、风帽底座、风道、斜沟等所占面积,其弯起部分和天窗出檐部分重叠的面积按图示尺寸量算。
(1)有挑檐无女儿墙(图a)工程量=屋面房建筑面积+(l+4×檐宽)×檐宽外={(42+0.24)×(36+0.24)+[(42+0.24+36+0.24)×2+4×0.5]2 0.5)m×.22 79.48)m=1610.2576m=(1530.7776+(2)无挑檐有女儿墙(图b)工程量=屋面房建筑面积-女儿墙厚度×女儿墙中心线+弯起部分=[(42+0.24)×(36+0.24)-(42+0.24+36)×0.24×2+(42-0.24+222=1512.60m=(1530.7776-37.5552+19.38)m36-0.24)×0.25]m(3)无挑檐无女儿墙(图c)工程量=[(42+0.24)×(36+0.24)-(42+0.24+36+0.24-0.12)×0.06×2 2]m22—9.4032)m=1521.3744m=(1530.77768.某屋面尺寸如图所示,檐沟宽600mm,其自下而上的做法是:钢筋混凝土板上干铺炉渣混凝土找坡,坡度系数2﹪,最低处70mm;100mm厚加气混凝土保温层,20mm厚1:2水泥砂浆(特细砂)找平层,屋面及檐沟为二毡三油一砂防水层(上卷250mm),分别求其工程量。
22×12.8m=650.24m干铺炉渣混凝土找坡:【解】(1)F=50.8D=d+iL/4=(0.07+0.02×12.8/4)m=0.134m 133 =87.13mV=650.24×0.134m(2)100厚加气混凝土保温层:33 =65.02m0.1mV=650.24×(3)20厚1:2水泥砂浆(特细砂)找平层。
砂浆抹至防水卷材同一高度以便铺毡。
.22=650.24mF=50.8×12.8m屋面部分:l檐沟部分:F={50.8×0.6×2+(12.8+0.6×2)×0.6×2+[(12.8+1.2)2×2+(50.8+1.2)×23×0.25+(50.8+12.8)×2×22 0.17}m=132.38m22 =782.62mF 二毡三油一砂防水层:=(650.24+132.38)m(4)39.如图白铁檐沟,计算檐沟工程量。
【解】26号白铁皮檐沟(图)工程量以图示尺寸,按展开面积计算,其工程量计算如下:檐沟长度=[(21+0.5×2+11+0.5×2)×2+0.18×4]m=68.72m22=24.24m/3.14162)×68.72m×+×檐沟工程量=(0.03520.18 的定额直接费。
)根10共(计算图所示白铁皮落水管10.【解】铁皮水落管工程量=(16.9+0.3-0.15)×l0m=170.5m套定额5-167,基价为83.89元/l0m,直接费=170.5/l0×83.89元=1430.32元铁皮落水斗工程量10个套定额5-168,基价102.29元/10个,直接费=10÷10×102.29元=102.29元铁皮落水口工程量10个套定额5-169,基价115.05元/l0个,直接费=10÷10×115.05元=115.05元定额直接费合计=(1430.32+102.29+115.05)元=1647.66元。