CJT 80-1999 污泥脱水用带式压滤机
- 格式:pdf
- 大小:253.56 KB
- 文档页数:7
污泥脱水的定义/原理/常用设备和工艺定义:将流态的原生、浓缩或消化污泥脱除水分,转化为半固态或固态泥块的一种污泥处理方法。
经过脱水后,污泥含水率可降低到百分之五十五至百分之八十,视污泥和沉渣的性质和脱水设备的效能而定。
污泥的进一步脱水则称污泥干化,干化污泥的含水率低于百分之十。
脱水的方法,主要有自然干化法、机械脱水法和造粒法。
自然干化法和机械脱水法适用于污水污泥。
造粒法适用于混凝沉淀的污泥。
污水处理所产生的污泥具有较高的含水量,由于水分与污泥颗粒结合的特性,采用机械方法脱除具有一定的限制,污泥中的有机质含量、灰分比例特别是絮凝剂的添加量对于最终含固率有着重要影响。
一般来说,采用机械脱水可以获得20%-30%的含固率,所形成的污泥也被称为泥饼。
泥饼的含水率仍然较高,具有流体性质,其处置难度和成本仍然较高,因此有必要进一步减量。
此时,在自然风干之外,只有通过输入热量形成蒸发,才能够实现大规模减量。
采用热量进行干燥的处理就是热干化。
分类:常见污泥的分类:1.生活污水厂二沉池排出的剩余活性污泥;污泥分类:属亲水性、微细粒度有机污泥,可压缩性能差,脱水性能差。
2.自来水厂沉淀池或浓缩池排出的物化污泥;污泥分类:属中细粒度有机与无机混合污泥,可压缩性能和脱水性能一般。
3.工业废水处理产生的经浓缩池排出的物化和生化混合污泥,如造纸厂、印染厂、水洗布厂、石油化工厂、有机化工厂、肉联厂及啤酒厂等等;污泥分类:属中细粒度混合污泥,含纤维体的脱水性能较好,其余可压缩性能和脱水性能一般。
4.工业废水处理产生的经浓缩池排出的物理法和化学法产生的物化细粒度污泥,如电镀厂、线路板厂等等;污泥分类:属细粒度无机污泥,可压缩性能和脱水性能一般。
5.工业废水处理产生的物化沉淀中粒度污泥,如钢铁厂脱硫除尘污泥、制碱厂盐泥、铝厂赤泥、陶瓷厂污泥、彩管厂污泥、石灰中和沉淀污泥等等;污泥分类:属中粒度疏水性无机污泥,可压缩性能和脱水性能较好。
卧式螺旋卸料离心脱水机控制系统的设计与实现摘要卧式螺旋卸料离心脱水机(简称卧螺离心机)是实现固液分离的关键设备。
卧螺离心机工作时,转鼓转速及其与螺旋输送器之间的差速,决定着物料的分离效果和分离效率等。
是离心机的重要控制参数。
离心机的高效分离性能必须通过完善的自控系统才能得以实现。
随着离心机设备的要求越来越高,设备不断更新,可靠性、易操作性、可监视性和易维护性已是最基本的要求了。
由继电器组成的控制电路具有可靠性差、不易维护、不易监示等缺点,己不能适应当前的要求。
随着电子技术、软件技术和控制技术飞速发展,可编程控制器(PLCl控制已成为国内外的主流控制方式。
本课题主要是根据卧式螺旋卸料离心脱水机的特点,设计研制满足卧式螺旋卸料离心脱水机使用要求的、高性能的控制系统。
本课题深入分析了离心脱水机的工作原理及其关键技术,选用电磁调速电机驱动污泥泵,选用变频器调速方式驱动卧式螺旋卸料离心脱水机的转鼓和螺旋输送器,实现了对污泥泵、转鼓和螺旋输送器的无级调速。
并对转鼓支承轴承实行温度自动控制,保证了设备的长期可靠运行。
我们根据设备的特点与要求,完成了PLC电控系统的操作方便性设计和可靠性设计,结合软件编程实现系统的功能。
在制作控制箱及现场调试的过程中,进行了抗干扰分析,并从硬件和软件等方面采取措施,提高了控制系统的抗干扰能力。
在本课题的设计与研究中,以实用为原则,注意设计方案的可行性、可靠性及稳定性等。
本课题虽然是选择的某一特定型号的卧螺离心机,但其设计思路和方法可为其他型号的卧螺离心机控制系统的设计提供参考。
关键词:卧螺离心机,控制系统,变频器,可编程控制器,抗干扰插图清单图2一l图2-2图3—1污水处理过程…………………………………………………………8卧螺离心机结构图…………………………………………………………..9离心机系统总体结构……………………………………………..14变频器结构图…………………………………………………………………..15变频器的功用…………………………………………………………………….16电动势原理图………………………………………………………………….16图3—2图3—3图3-4图3-5图3-6图3—7表3-I变频器并联操作两个及两个以上电动机………一19变频器顺次起动多台电动机…………………………………….19PLC机硬件构成…………………………………………………20PLC端子分配表………………………………………………………21PLC外部硬件配置图…………………………………………….24图3—8控制系统硬件配置图……………………………………………23图3-9图3—10污泥泵调速电机接线图…………………………………………25图3-11共直流母线交流变频调速系统的结构…………………………~26图3-12卧式螺旋卸料离心脱水机控制箱的面板………………………..27图3—13卧式螺旋卸料离心脱水机控制箱的外型………………………..28图3—14卧式螺旋卸料离心脱水机控制箱的内部结构…………………..29图4—1图4—2图4—3图4-4图5—1图5—2图5—3图5-4卧式螺旋卸料离心脱水机的工作过程………………………….32转鼓和螺旋输送器的升速流程图……………………………….32离心机/污泥泵控制电压的计算程序流程图……………………35PLC、变频器及若干外围设备的综合接线图…………………….36采用继电器进行隔离……………………………………………42DI输入模块光电隔离……………………………………………43DO输出模块光电隔离………………………………………………43变频器抗干扰外部接线…………………………………………47可以将学位论文的全部或部分论文内容编入有关数据库进行检致谢值此论文完成之际,谨向我的导师陈远龙表示最真诚的感谢和敬意!在研究生阶段近三年的学习和生活期间,陈老师都给予了我无微不至的关怀和毫无保留的教导。
带式浓缩压滤脱水机操作规程1、启动前的准备1.1检查各润滑部位要有足够的润滑油(脂)。
检查气动系统管路与阀门连接处有无泄漏。
检查泥、水、药管路中所有阀门是否灵活。
打开管路手动阀门。
1.2检查电源电压是否正常。
检查电气开关和过滤带保护装置是否复位。
1.3启动机器前,仔细检查过滤带纠偏检测臂和机器终端处过滤带偏差极限检测板的位置是否正确,手动试验纠偏装置动作是否正常,否则盲目开机会严重损坏滤带、开关。
1.4开启自动加药装置。
PAM按2~4‰浓度配药稀释,参照进水流量计。
通用带式输送机使进水系统的流量计读数2400l/h;调节干粉投加量为4.8~7.2kg/h。
1.5检查污泥液位是否正常。
1.6切换工作模式选择器开关, 选择工作方式.2、系统操作顺序2.1起动空压机、冲洗泵、浓缩段主传动、压滤段主传动,带机空运转。
2.2起动加药泵、污泥泵,对照加药流量计,相应调定加药泵转速,使得污泥絮凝成最佳状态。
该过程基于初始测试数据,实际操作中应根据絮凝情况进行调整。
2.3观察进泥布料情况,重力脱水情况,调节电动阀以控制污泥流入。
2.4调定进料流量及理料板高度,观察絮凝和重力脱水效果,调整加药流量,在最佳絮凝效果下获得最小加药流量。
2.5观察滤饼卸料厚度、滤饼含水率、调节污泥进料量,滤带张紧力,浓缩段、压滤段滤带运行速度,以获得最大生产量。
3、引导顺序3.1合上电源开关QF并锁紧电柜柜门,电源接通,信号灯亮。
自动加药装置正在运行。
3.2检查机器保护系统中的故障报警装置和紧急停机按钮是否灵敏、可靠,保护系统正常后,打开管路上相应阀门,将工作方式选择开关拨至“手动”工作方式,进行以下操作。
3.3按下“空压机”按纽,空压机起动,气缸动作,滤带开始张紧,大约需要5分钟时间。
确认空气控制箱气源总压力表指示压力正常,张紧压力正常。
3.4按下“冲洗泵”起动按纽,冲洗泵启动。
3.4按下“压滤段起动”、“浓缩段起动”按纽,主传动起动。
带式浓缩压滤脱水机操作规程一、安全操作1. 在操作带式浓缩压滤脱水机之前,必须正确穿戴好工作服、防护眼镜和防护手套。
确保操作人员的人身安全。
2. 在操作之前,确保带式浓缩压滤脱水机的电源已经断开,并检查机器是否正常运行。
3. 使用带式浓缩压滤脱水机时,请勿将手指或其他物品放入机器内部,以防止意外伤害发生。
4. 在清理和维护带式浓缩压滤脱水机时,请先将机器停止并断开电源,确保安全操作。
二、操作准备1. 将带式浓缩压滤脱水机放置在平稳的工作台上,并插上电源。
2. 检查带式浓缩压滤脱水机的运行方式和控制按钮是否正常。
3. 检查液压系统和供电系统的工作状态,确保其运行正常。
4. 准备好需要处理的物料,并放置在供料区域。
5. 根据需要,在带式浓缩压滤脱水机上调整过滤和脱水参数。
三、操作步骤1. 打开带式浓缩压滤脱水机的供电开关,确保机器正常运行。
2. 打开液压系统的开关,使其开始工作。
3. 调整带式浓缩压滤脱水机的进料速度和压力,以确保最佳的过滤效果。
4. 将需要处理的物料均匀地放置在供料区域,并注意物料的覆盖面积,避免堆积过高。
5. 根据实际情况,可随时调整带式浓缩压滤脱水机的进料量和进料速度。
6. 当带式浓缩压滤脱水机开始过滤和脱水物料时,注意观察过滤布的状态,及时调整过滤参数以确保过滤效果。
7. 当物料通过带式浓缩压滤脱水机的过滤区域后,将被脱水并收集在污泥收集区。
8. 当过滤结束后,关闭带式浓缩压滤脱水机的进料和压力开关,将机器停止运行。
9. 清理污泥收集区并处理收集的污泥。
四、维护保养1. 定期清洁和维护带式浓缩压滤脱水机的滤布和滤网,确保其保持清洁和正常工作。
2. 定期检查带式浓缩压滤脱水机的液压系统和供电系统,确保其正常运行。
3. 如果发现带式浓缩压滤脱水机有任何故障或异常情况,请停止使用并及时联系维修人员进行处理。
4. 定期进行润滑和维护,确保带式浓缩压滤脱水机的正常工作并延长使用寿命。
五、注意事项1. 在操作带式浓缩压滤脱水机时,请勿将手指或其他物品放入机器内部,以防止意外伤害发生。
给水排水专业相关规范、规程和标准目录2009.09.03 1规范、规程类1.1总则部分序号规范、规程、标准名称规范、规程、标准号备注(1)给水排水制图标准GB/T50106-2001(2)给水排水设计基本术语标准GBJ/T125-89(3)房屋建筑统一制图标准GB/T50001-2001(4)北京市建筑装饰装修工程设计制图标准DBJ01-613-2002(5)工业企业设计卫生标准GB21-2002(6)工业用水分类及定义CJ40-1999(7)城市用水分类标准CJ/T3070-1999(8)民用建筑设计通则GB50352-20051.2水质标准部分序号规范、规程、标准名称规范、规程、标准号备注(1)生活饮用水卫生标准GB5749-2006(2)生活饮用水水质卫生规范卫生部(2001年)(3)城市供水水质标准CJ/T206-2005(4)农村生活饮用水质卫生标准GB11730-89(5)生活饮用水水源水质标准CJ3020-93(6)地面水环境质量标准GB3838-2002(7)地下水质量标准GB/T14848-93(8)饮用净水水质标准CJ94-2005(9)饮用天然矿泉水GB8537-1995(10)工业锅炉水质GB1576-2001(11)低压锅炉水质标准GB1576-85瓶装饮用纯净水标准GB17323-1998(12)瓶装饮用纯净水卫生标准GB17324-1998游泳池水质标准CJ244-2007(13)游泳场所卫生标准GB9667-1996(14)生活杂用水水质标准CJ25.1-89(15)城市污水再生利用分类GB/T18919-2002(16)城市污水再生利用城市杂用水质GB/T18920-2002(17)城市污水再生利用景观环境用水水质GB/T18921-2002(18)城市污水再生利用地下水回灌水质GB/T19772-2005(19)城市污水再生利用工业用水水质GB/T19923-2005(20)景观娱乐用水水质标准GB12941-91(21)再生水回用于景观水体的水质标准CJ/T95-2000(22)再生水用作冷却用水的水质控制标准GB50335-2002(23)再生水用做冷却用水的建议水质标准CECS61:94(24)农田灌溉水质标准GB5084-92(25)渔业水质标准GB11607-89(26)污水综合排放标准GB8978-96(27)污水排入合流管道的水质标准DBJ08-904-98(28)污水排入城市下水道水质标准CJ3082-99(29)医院污水排放标准GBJ48-93(30)医疗机构水污染物排放标准GB18466-2005(31)城市污水处理厂污水污泥排放标准CJ/T3025-93(32)城镇污水处理厂污染物排放标准GB18918-2002城镇污水处理厂污泥处置园林绿化用泥质CJ248-20071.3建筑给水排水部分序号规范、规程、标准名称规范、规程、标准号备注(1)建筑给水排水设计规范GB50015-2003(2)城市居民生活用水量标准GB/T50331-2002(3)居住小区给水排水设计规范CECS57:94(4)建筑与小区雨水利用工程技术规范GB50400-2006(5)管道直饮水系统技术规程CJJ110-2006(6)建筑中水设计规范GB50336-2002(7)人民防空地下室设计规范GB50038-2005(8)二次供水设施卫生规范GB17051-1997(9)公共浴室给水排水设计规程CECS108:2000(10)游泳池和水上游乐池给水排水设计规程(已有行业标准)游泳池给水排水技术规程CECS14:2002CCJ122-2008新2009.06.01实施(11)给水系统防回流污染技术规程CECS184:2005(12)特殊单立管排水系统设计规程CECS79:96(13)排水系统水封保护设计规程CECS172:2004(14)虹吸式屋面雨水排水系统技术规程CECS183:2005(15)太阳能热利用术语GB/T12936-1991(16)民用建筑太阳能热水系统应用技术规范GB50364-2005(17)太阳热水系统设计、安装及工程验收技术规范GB/T18713-2002(18)家用太阳热水系统安装、运行维护技术规程NY/T615-2002(19)建筑给水排水设备器材术语GB/T16662-1996(20)住宅设计规范(2003年版)GB50096-1999(21)住宅建筑规范GB50368-2005(22)住宅设计标准DGJ08-20-2001(23)健康住宅建设技术规程CECS179:2005(24)住宅装饰装修工程施工规范GB50327-2001(25)宿舍建筑设计规范JGJ36-87(26)老年人建筑设计规范JGJ122-99(27)老年人居住建筑设计标准GB/T50340-2003(28)办公建筑设计规范JGJ67-2006(29)中小学建筑设计规范GBJ99-86(30)托儿所、幼儿园建筑设计规范JGJ39-87(31)商店建筑设计规范JGJ48-88(32)饮食建筑设计规范JGJ64-89(33)特殊教育学校建筑设计规范JGJ76-2003(34)文化馆建筑设计规范JGJ41-87(35)图书馆建筑设计规范JGJ38-99(36)档案馆建筑设计规范JGJ25-2000(37)电影院建筑设计规范JGJ58-88(38)剧场建筑设计规范JGJ57-2000(39)博物馆建筑设计规范JGJ66-91(40)疗养院建筑设计规范JGJ40-87(41)体育建筑设计规范JGJ31-2003(42)综合医院建筑设计规范JGJ49-88(43)医院洁净手术部建筑技术规范GB50333-2002(44)旅馆建筑设计规范JGJ62-90(45)科学实验建筑设计规范JGJ91-93(46)汽车库建筑设计规范JGJ100-98(47)汽车客运站建筑设计规范JGJ60-99(48)港口客运站建筑设计规范JGJ86-92(49)电子计算机机房设计规范GB50174-93(50)殡仪馆建筑设计规范JGJ124-99(51)洁净厂房设计规范GB50073-2001(52)看守所建筑设计规范JGJ127-2000(53)监狱建设标准JB03-04(54)游泳场所卫生标准GB9667-1996(55)水上游乐设施通用技术条件GB18168-2000(56)建筑给水排水及采暖工程施工质量验收规范GB50242-2002(57)建筑采暖卫生与煤气工程质量检验评定标准GBJ302-88(58)建筑给水钢塑复合管管道工程技术规程CECS125:2001(59)建筑给水薄壁不锈钢管管道工程技术规程CECS153:2003CECS135:2002(60)建筑给水超薄壁不锈钢塑料复合管管道工程技术规程(61)建筑给水铜管管道工程技术规程CECS171:2004(62)建筑给水铜管管道工程技术规程DBJ/CT511-2001(63)建筑给水铜管管道工程技术规程DBJ/T01-67-2002(64)建筑给水铝塑复合管管道工程技术规程CECS105:2000(65)建筑给水铝塑复合管道工程技术规程DBJ/CT506-2000(66)建筑给水无缝铝合金衬塑管道工程技术规程DBJ/CT505-2000(67)建筑给水硬聚氯乙烯管管道工程技术规程CECS41:2004CECS136:2002(68)建筑给水氯化聚氯乙烯(PVC-C)管管道工程技术规程(69)建筑给水聚乙烯类管道工程技术规程CJJ/T29-98DBJ/CT503-99(70)建筑给水交联聚乙烯(PE-X)管道工程技术规程(71)建筑给水聚丙烯管道工程技术规范GB50349-2005序号规范、规程、标准名称规范、规程、标准号备注(72)建筑给水聚丙烯管道(PP-R)工程技术规程DBJ/CT501-2002(73)建筑给水聚丁烯(PB)管道工程技术规程DBJ/CT508-2000(74)建筑排水柔性接口铸铁管管道工程技术规程CECS168:2004(75)承插式柔性抗振接口排水铸铁管工程技术规程DBJ/CT507-2000(76)建筑排水硬聚氯乙烯管道工程技术规程CJJ/T29-98CECS185:2005(77)建筑排水中空壁消音硬聚氯乙烯管管道工程技术规程CECS94:2002(78)建筑排水用硬聚氯乙烯螺旋管管道工程技术规程DBJ01-94-2005(79)高密度聚乙烯排水管道工程施工与验收技术规程(80)高层建筑排水硬聚氯乙烯管道工程技术规程DB/TJ08-303-96DB/TJ08-305-96(81)建筑排水硬聚氯乙烯管道室外埋地工程技术规程(82)屋面雨水排水硬聚氯乙烯管道工程技术规程DBJ08-42-95(83)城市住宅建筑综合布线系统工程设计规范CECS119:2000(84)住宅给水管道工程防冻保温技术规程DBJ08-33-93(85)燃油、燃气热水机组生活热水供应设计规程CECS134:2002(86)半即热式水加热器热水供应设计规程CECS60:94(87)建筑给水减压阀应用设计规程CECS109:2000(88)给水减压阀应用技术规程DBJ/CT502-2002(89)住宅厨房及相关设备基本参数GB11228-89(90)陶瓷砖和卫生陶瓷分类及术语GB/T9195-1999(91)家用燃气快速热水器安装及验收规程CJJ12-99(92)建筑排水金属管道工程积水规程CJJ127-20092009.09.011.4室外给水排水、泵房部分序号规范、规程、标准名称规范、规程、标准号备注(1)室外给水设计规范GB50013-2006(2)城市给水工程规划规范GB50282-98(3)农村给水设计规范CECS82:96(4)村镇供水工程技术规范SL310-2004(5)工业给水系统可靠性设计规范CECS93:97(6)节水灌溉工程技术规范GB/T50363-2006(7)气压给水设计规范CECS76:95(8)管网叠压供水技术规程DBJ13-70-2005(9)泵站设计规范GB/T50265-97(10)压缩机、风机、泵安装工程施工及验收规范GB50275-98(11)水泵隔振技术规程CECS59:94(12)水文基本术语和符号标准GB50095-98(13)供水水文地质勘察规范GB50027-2001(14)城市供水水文地质勘察规范CJJ16-88(15)供水水文地质勘察遥感技术规程CECS34:91(16)供水管井技术规范GB50296-99(17)供水管井设计、施工及验收规范CJJ10-86(18)供水水文地质钻探与凿井操作规程CJJ13-97(19)防洪标准GB50201-94(20)城市防洪工程设计规范CJJ50-92(21)城市地下水动态观测规程CJJ/T76-98(22)室外排水设计规范GB50014-2006(23)城市排水工程规划规范GB50318-2000(24)污水泵站设计规程DBJ08-23-91(25)雨水泵站设计规程DBJ08-22-91(26)城市排水泵站设计规程DBJ08-22-2003(27)合流制系统污水截流井设计规程CECS91:97(28)工业循环水冷却设计规范GB/T50102-2003(29)机械通风冷却塔工艺设计规范GB/T50392-2006(30)给水排水管道工程施工及验收规范GB50268-2008新2009.05.01实施(31)给水排水工程构筑物结构设计规范GB50069-2002(32)城市工程管线综合规划规范GB50289-98(33)城市地下管线探测技术规程CJJ61-2003(34)地下管线测绘规范DGJ08-85-2000(35)给水排水工程结构设计规范GBJ69-84(36)给水排水工程管道结构设计规范GB50332-2002(37)给水排水构筑物施工及验收规范GBJ141-90(38)给水排水钢筋混凝土水池结构设计规程CECS138:2002(39)给水排水工程水塔结构设计规程CECS139:2002(40)混凝土水池软弱地基处理设计规范CECS86:96(41)给水排水工程钢筋混凝土沉井结构设计规程CECS137:2002(42)给水排水工程混凝土构筑物变形缝设计规程CECS117:2000(43)市政排水管道工程施工及验收规程DBJ08-220-96(44)市政排水构筑物施工及验收规程DBJ08-224-96(45)管道工程结构常用术语CECS83:96(46)工业金属管道设计规范GB50316-2000(47)工业金属管道工程施工及验收规范GB50235-97(48)输气管道工程设计规范GB50251-2003(49)北京市给水排水管道工程施工技术规程DBJ01-47-2000(50)北京市给水与排水工程施工安全技术规程DBJ01-88-2005(51)灌溉与排水工程设计规范GB50288-99(52)节水灌溉技术规范SL207-98喷灌工程技术规范GB/T 50085-2007(53)微灌工程技术规范SL103-95CECS17:2000(54)埋地硬聚氯乙烯(PVC-U)给水管道工程技术规程(55)埋地聚乙烯给水管道工程技术规程CJJ101-2004CECS181:2005(56)给水钢丝网骨架塑料(聚乙烯)复合管管道工程技术规程(57)预应力混凝土输水管结构设计规范CECS16:90(58)埋地硬聚氯乙烯排水管道工程技术规程CECS122:2001(59)埋地聚乙烯排水管管道工程技术规程CECS164:2004DBJ/CT509-2001(60)高密度聚乙烯(HDPE)双壁工字形室外排水管技术规程(61)埋地塑料排水管道工程技术规程DG/TJ08-308-2002DBJ08-234-2001(62)玻璃纤维增强塑料夹砂排水管道施工及验收规程(63)给水排水工程埋地钢管管道结构设计规程CECS141:2002(64)给水排水工程埋地铸铁管管道结构设计规程CECS142:2002CECS143:2002(65)给水排水工程埋地预制混凝土圆形管管道结构设计规程(66)给水排水工程埋地矩形管管道结构设计规程CECS145:2002CECS129:2001(67)埋地给水排水玻璃纤维增强热固性树脂夹砂管管道工程施工及验收规程CECS140:2002(68)给水排水工程埋地管芯缠丝预应力混凝土管和预应力筒混凝土管管道结构设计规程(69)水力控制阀应用设计规程CECS144:2002(70)给水排水多功能水泵控制阀应用技术规程CECS132:2002(71)工业设备及管道绝热工程设计规范GB50264-1997(72)工业设备及管道绝热工程施工及验收规范GBJ126-89(73)现场设备、工业管道焊接工程施工及验收规范GB50236-98(74)沟槽式连接管道工程技术规程CECS151:2003DGJ08-87-2000(75)市政道路、排水管道成品与半成品施工及验收规程(76)城市供水长距离输水管(渠)道工程技术规程CECS193:2005(77)混凝土排水管道工程闭气检验标准CECS19:90(78)市政排水管渠工程质量检验评定标准CJJ3-90(2009.04.30作废)(79)排水管道维护安全技术规程CJJ6-85(80)城镇排水管渠与泵站维护技术规程CJJ/T68-96(81)市政排水管渠工程质量评定标准DBJ01-24-95(82)城市供水管网漏损控制及评定标准CJJ92-2002(83)室外给水排水工程设施抗震鉴定标准GBJ43-82(84)室外给水排水和燃气热力工程抗震设计规范GB50032-2003(85)给水排水仪表自动化控制工程施工及验收规程CECS162:2004(86)城镇供水水量计量仪表的配备和管理通则CJ/T3019-93(87)铁路给水排水施工技术安全规则TBJ409-87(88)铁路给水排水工程质量检验评定标准TB10422-98(89)化工厂管道架设计规定HGJ22-891.5消防给水及自动灭火序号规范、规程、标准名称规范、规程、标准号备注(1)建筑设计防火规范GB50016-2006(2)高层民用建筑设计防火规范(2005年版)GB50045-95(3)自动喷水灭火系统设计规范(2005年版)GB50084-2001(4)固定消防炮灭火系统设计规范GB50338-2003(5)大空间智能型主动喷水灭火系统设计规范DBJ15-34-2004(6)建筑灭火器配置设计规范GB50140-2005GB50098-98(已作废)(7)人民防空工程设计防火规范(2001年版)人民防空工程设计防火规范GB50098-2009(2009.10.01实施)(8)汽车库、修车库、停车厂设计防火规范GB50067-97(9)村镇建筑设计防火规范GBJ39-90(10)简易自动喷水灭火系统设计规程DBJ01-617-2004(11)民用建筑水灭火系统设计规程DBJ08-94-2001(12)铁路工程设计防火规范TB10063-1999(13)石油天然气工程设计防火规范GB50183-2004(14)建筑内部装修设计防火规范(2001年版)GB50222-95(15)合成型泡沫喷洒灭火系统应用技术规程CECS156:2004(16)自动喷水灭火系统施工及验收规范GB50261-2005(17)低倍数泡沫灭火系统设计规范(2000年版)GB50151-92GB50196-93(18)高倍数、中倍数泡沫灭火系统设计规范(2002年版)(19)泡沫灭火系统施工及验收规范GB50281-2006(20)气体灭火系统设计规范GB50370-2005(21)二氧化碳灭火系统设计规范(1999年版)GB50193-93(22)卤代烷1301灭火系统设计规范GB50163-92(23)七氟丙烷灭火系统技术规程DG/TJ08-307-2002(24)惰性气体IG541灭火系统技术规程DG/TJ08-306-2001(25)气体灭火系统施工及验收规范GB50263-97(26)水喷雾灭火系统设计规范GB50219-95(27)细水雾灭火系统设计、施工、验收规范DBJ01-74-2003(28)洁净气体灭火系统设计、施工及验收规范DBJ01-75-2003(29)气溶胶灭火系统设计、施工及验收规范DBJ01-76-2003(30)烟雾灭火系统技术规程CECS169:2004(31)干粉灭火系统设计规范GB50347-2004(32)汽车加油加气站设计与施工规范(2006年版)GB50156-2002(33)汽车用燃气加气站技术规范CJJ84-2000J22-2000(34)民用建筑设置锅炉房消防设计规定DBJ01-614-2002(35)飞机库设计防火规范GB50284-98(36)广播电视建筑设计防火规范GY5067-2003(37)邮电建筑防火设计标准YD5002-94(38)民用爆破器材工厂设计安全规范GB50089-98(39)烟花爆竹工厂设计安全规范GB161-92(40)火力发电厂与变电所设计防火规范GB50229-96(41)小型水力发电站设计规范GB50071-2002(42)装卸油品码头防火规范JTJ237-99(43)石油化工企业设计防火规范(1999年版)GB50160-92(44)原油天然气工程设计防火规范GB50183-93(45)注氮控氧防火系统技术规程CECS189:2005(46)建筑防火封堵应用技术规程CECS154:2004(47)消防设施图形符号GB4327-84(48)手提式灭火器通用技术条件GB4351-97(49)粮食钢板筒仓设计规范GB50322-2001(50)固定消防炮灭火系统施工与验收规范GB50498-20092009.10.011.6水处理及给水厂、污水处理厂部分序号规范、规程、标准名称规范、规程、标准号备注(1)水处理设备型号编制方法JB/T9667-1999(2)水处理设备技术条件ZBJ98003-1986JB2932-1986(3)水处理设备性能试验GB/T13922.1-92(4)饮用水除氟设计规程CECS46:93(5)滤池气水冲洗设计规程CECS50:93(6)含藻水给水处理设计规范CJJ32-89(7)高浊度水给水处理设计规范CJJ40-91(8)工业循环冷却水处理设计规范GB50050-95(9)工业用水软化除盐设计规范GBJ109-87(10)低温低浊给水处理设计规程CECS110:2000(11)颗粒活性炭吸附池水处理设计规程CECS124:2001(12)栅条、网格絮凝池设计标准CECS06:88CECS178:2005(13)气水冲洗滤池整体浇筑滤板可调试滤头技术规程(14)锯齿取水头部设计规程CECS113:2000CECS103:99(15)循环冷却水系统不停车化学清洗和热态预膜工艺技术规程(16)城镇给水厂附属建筑和附属设备设计标准CJJ41-89(17)城镇供水厂运行、维护及安全技术规程CJJ58-94(18)饮用天然矿泉水厂卫生规范GB16330-1996(19)民用建筑生活污水处理工程设计规定DBJ08-71-98(20)医院污水处理设计规范CECS07:2004(21)生物接触氧化法设计规程CECS128:2001(22)重金属污水化学处理设计规范CECS92:97(23)焦化厂、煤气厂含酚污水处理设计规范CECS05:88(24)电镀废水治理设计规范GBJ136-90(25)油田含油污水处理设计规范SYJ6-89(26)城市污水生物脱氮除磷处理设计规程CECS149:2003(27)氧化沟设计规程CECS112:2000(28)污水稳定塘设计规范CJJ/T54-93(29)深井曝气系统设计规范CECS42:92(30)鼓风曝气系统设计规程CECS97:97(31)寒冷地区活性污泥处理设计规程CECS111:2000(32)带式压滤机污水污泥脱水设计规范CECS75:95(33)氧气曝气设计规程CECS114:2000(34)一体式膜生物反应器污水处理应用技术规程CECS152:2003(35)城市污水处理厂工程质量验收规范GB50334-2002(36)城镇污水处理厂附属建筑和附属设备设计标准CJJ31-89(37)城镇污水处理厂运行、维护及安全技术规程CJJ60-94(38)城市污水处理厂管道和设备色标CJ/T158-2002(39)污水再生利用工程设计规范GB50335-2002(40)城市污水回用设计规范CECS61:94户用沼气池施工操作规程GB/T4752-2002户用沼气池质量检查验收规范GB/T4751-2002沼气工程规模分类NY/T667-2003户用农村能源生态工程南方模式设计施工与使NY/T465-2001用规范NY/T466-2001户用农村能源生态工程北方模式设计施工与使用规范(41)工业建筑防腐设计规范GB50046-951.7其它序号规范、规程、标准名称规范、规程、标准号备注(1)湿陷性黄土地区建筑规范GB50025-2004(2)膨胀土地区建筑技术规范GBJ112-87(3)建筑气象参数标准JGJ35-87(4)工业企业总平面设计规范GB50187-93(5)城市居住区规划设计规范GB50180-93(6)城市地下水动态观测规程CJJ/T76-98(7)居民饮用水计量仪表安全规程CJ3064-1997(8)工业用水考核指标及计算方法CJ42-1999(9)工业企业水量平衡测试方法CJ41-1999(10)评价工业企业合理用水技术通则GB/T7119-86(11)铁路给水排水设计规范TB10010-98(12)铁路给水排水施工规范TB10209-2002(13)化工企业冷却塔设计规定HG/T20522-92(14)煤炭工业矿井设计规范GB50215-2005(15)小型火力发电厂设计规范GB50049-94(16)地铁设计规范GB50157-2003(17)地下铁道工程施工及验收规范GB50299-1999(18)发生炉煤气站设计规范GB50195-94(19)锅炉房设计规范GB50041-92(20)工业锅炉房设计规范GBJ41-79(21)工业锅炉房安装工程施工及验收规范GB50273-98(22)高效燃煤锅炉房设计规程CECS150:2003(23)冷库设计规范GB50072-2001(24)压缩空气站设计规范GB50029-2003(25)氢气站设计规范GB50177-2005(26)石油库设计规范GB50074-2002(27)机动车清洗站工程技术规程CJJ71-2000(28)城市环境卫生设施规划规范GB50337-2003(29)公共场所卫生标准GB9663~9673-1996(30)城市公共厕所卫生标准GB/T17217-1998(31)公共厕所建设标准DBJ/T190-2003(32)城镇公共厕所规划和设计标准DB/TJ08-401-99(33)城市公共厕所设计标准CJJ14-2005(34)城市粪便处理厂(场)设计规范CJJ64-95(35)公园设计规范CJJ48-92(36)民用建筑隔声设计规范GBJ118-88(37)住宅隔声标准JGJ11-82(38)氯气安全规程GB11984-89(39)市政工程勘察规范CJJ56-94(40)涂装前钢材表面锈蚀等级和除锈等级GB8923-88(41)涂装前钢材表面处理规范SYJ4007-86(42)公共建筑节能改造技术规范JGJ176-20092009.12.012材料、设备产品标准及检测方法类2.1管材、管件部分序号规范、规程、标准名称规范、规程、标准号备注(1)管子和管路附件的公称通径GB1047-70(2)管道元件公称压力GB1048-90(3)用螺纹密封的管螺纹GB7306-87(4)可锻铸铁管路连接件技术条件GB3287-82(5)一般用途管法兰密封面形状和尺寸GB2556-81(6)给、排水管道用橡胶密封圈胶料GB9876-88(7)低压流体输送用焊接钢管GB/T3092-2005(8)直缝电焊钢管GB/T13793-1992(9)输送流体用无缝钢管GB/T8163-1999(10)低温管道用无缝钢管GB/T18984-2003(11)流体输送用不锈钢焊接钢管GB/T12771-2000(12)薄壁不锈钢水管CJ/T151-2001(13)薄壁不锈钢内插卡压式管材与管件CJ/T232-2006(14)流体输送用不锈钢无缝钢管GB/T14976-1994(15)不锈钢卡压式管件连接用薄壁不锈钢管GB/T19228.2-2003(16)不锈钢卡压式管件连接用薄壁不锈钢管件GB/T19228.1-2003(17)不锈钢卡压式管件CJ/T152-2001(18)不锈钢小直径无缝钢管GB/T3090-2000(19)无缝铜水管和气管GB/T18033-2000(20)铜管接头GB/T11618-1996(21)建筑用铜管管件(承插件)CJ/T117-2000(22)建筑用铜管管件通用技术条件JG/T3031.1-1996(23)水及燃气管道用球墨铸铁管、管件和附件GB/T13295-2003(24)球墨铸铁管件GB13294-91(25)水泥内衬离心球墨铸铁管及管件CJ/T161-2002(26)埋地给水钢管水泥砂浆衬里技术规程CECS10:89(27)埋地钢质管道环氧煤沥青防腐层技术标准SYJ28-87(28)排水用柔性接口铸铁管及管件GB/T12772-1999(29)建筑排水用卡箍式铸铁管及管件CJ/T177-2002(30)建筑排水用柔性接口承插式铸铁管及管件CJ/T178-2003(31)承插式柔性抗震接口排水铸铁管及管件CJ/T3080-1998(32)承插式管接头CJ/T110-2000(33)钢塑复合压力管CJ/T183-2008新2009.06.01实施(34)给水衬塑复合钢管CJ/T136-2007(35)给水涂塑复合钢管CJ/T120-2000(36)钢塑复合压力管用双热熔管件CJ/T237-2006(37)不锈钢塑料复合管CJ/T184-2003(38)内衬不锈钢复合钢管CJ192-2004(39)给水衬塑可锻铸铁管件CJ/T137-2001(40)给水用钢骨架聚乙烯塑料复合管CJ/T123-2004(41)给水用钢骨架聚乙烯塑料复合管件CJ/T124-2004(42)钢丝网骨架塑料(PE)复合管CJ/T189-2004(43)给水用孔网钢带聚乙烯复合管CJ/T181-2003(44)铝塑复合管GB/T18997.1-2003(45)铝塑复合压力管(对接焊)CJ/T159-2006(46)铝塑复合压力管(搭接焊)CJ/T108-1999(47)铝塑复合管用卡套式铜制管接头CJ/T111-2000(48)铝塑复合管用卡压式管件CJ/T190-2004(49)内层熔接型铝塑复合管CJ193-2004(50)外层熔接型铝塑复合管CJ195-2004(51)耐热聚乙烯(PE-RT)塑铝稳态复合管CJ/T238-2006(52)无规共聚聚丙烯(PP-R)塑铝稳态复合管CJ/T210-2005(53)热塑性塑料管材的公称外径和公称压力GB4217-84(54)热塑性塑料管材通用壁厚表GB10798-89(55)建筑用塑料管标识规程DG/TJ08-505-2000(56)给水用硬聚氯乙烯(PVC-U)管材GB/T10002.1-1996(57)给水用硬聚氯乙烯(PVC-U)管件GB/T10002.2-88GB/T13664-92(58)低压输水灌溉用薄壁硬聚氯乙烯(PVC-U)管件(59)建筑排水用硬聚氯乙烯管材GB/T5836.1-92(60)建筑排水用硬聚氯乙烯管件GB/T5836.2-92(61)排水用芯层发泡硬聚氯乙烯(PVC-U)管材GB/T16800-97CJ/T231-2006(62)排水用硬聚氯乙烯(PVC-U)玻璃微珠复合管材(63)埋地排水用硬聚氯乙烯(PVC-U)双壁波纹管GB/T18477-2001(64)埋地排污、废水用硬聚氯乙烯(PVC-U)管材GB/T10002.3-96(65)冷热水用氯化聚氯乙烯(PVC-C)管道系统GB/T18993-2003(66)给水用聚乙烯(PE)管材GB/T13663-2000(67)喷灌用低密度聚乙烯管材GB6674-86(68)高密度聚乙烯缠绕结构壁管材CJ/T165-2002CJ/T 250-2007建筑排水用高密度聚乙烯(HDPE)管材与管件(69)埋地排水用聚乙烯双壁波纹管材与管件GB/T19472-2004(70)埋地排水用钢带增强聚乙烯(PE)螺旋波纹管CJ/T225-2006CJ/T138-2001(71)建筑给水交联聚乙烯(PE-X)管用管件技术条件(72)建筑给水交联聚乙烯(PE-X)管材CJ/T205-2000(73)冷热水用交联聚乙烯(PE-X)管道系统GB/T18992-2003(74)冷热水用耐热聚乙烯(PE-RT)管道系统CJ175-2002(75)冷热水用聚丙烯管道系统GB/T18742-2002(76)冷却水用聚丁烯(PB)管道系统GB/T19473-2004(77)ABS压力塑料管材CJ/T11012-2005(78)给水用丙烯酸共聚聚氯乙烯管材及管件CJ/T218-2005(79)玻璃纤维缠绕增强热固性树脂夹砂压力管JC/T838-1998(80)玻璃纤维增强塑料夹砂管CJ/T3079-1998(81)预应力钢筋混凝土管(振动挤压工艺)GB5695-94(82)预应力钢筋混凝土管(管芯缠丝工艺)GB5696-94(83)预应力钢筋混凝土管JC625-1996(84)自应力钢筋混凝土管GB4084-83(85)预应力与自应力钢筋混凝土管用橡胶密封圈JC/T747(86)混凝土和钢筋混凝土排水管GB/T11836-1999(87)混凝土低压排水管JC923-2003(88)沟槽式管接头CJ/T156-2001(89)埋地钢质管道聚乙烯防腐层技术标准SY/T4013-1995SY/T4015-1996(90)埋地钢质管道硬质聚氨酯泡沫塑料防腐保温层技术标准2.2设备与其它材料部分序号规范、规程、标准名称规范、规程、标准号备注(1)节水型产品技术条件与管理通则GB/T18870-2002(2)卫生陶瓷规格及连接尺寸GB/T6953(3)卫生洁具铜排水配件通用技术条件GB7913-87JC/T716-96(4)卫生洁具铜排水配件结构形式和连接尺寸GB7914-87(5)水嘴分类、型号命名方法GB8375-87(6)节水型生活用水器具CJ164-2002(7)卫生陶瓷GB/T6952-1999(8)卫生洁具排水配件JC932-2003(9)非接触式给水器具CJ194-2004(10)非接触式(电子)给水器具CJ/T3081-1999(11)人造玛瑙及人造大理石卫生洁具JC/T644-1996(12)卫生间配套设备GB/T12956-91(13)免水冲卫生厕所GB/T18092-2000(14)整体浴室GB/T13095.1-2000(15)坐便器低水箱配件GB8219-87JC707-1997(16)蹲便器高水箱配件JC706-1997(17)大便器冲洗阀ZBY3008-88(18)大便冲洗装置——液压式水箱配件JG/T3040.1-1997(19)大便器冲洗装置——液压缓闭式冲洗阀JC/T3040.2-1997(20)机械式便器冲洗阀JC/T931-2003(21)6升坐便器配套系统JC/T856-2000(22)水嘴通用技术条件GB4626-84QB/T1334-1998(23)陶瓷片密封水嘴GB/T18145-2000(24)陶瓷洗面器普通水嘴GB3809-87(25)浴盆明装水嘴GB5347-85JC/T760-1996(26)淋浴用机械式脚踏阀门JG/T3008-93(27)卫生设备用软管JC886-2001(28)家用燃气快速热水器GB6932-2001(29)燃气容积式热水器GB18111-2000(30)家用太阳热水系统技术条件GB/T19141-2003(31)家用太阳热水器技术条件NY/T343-1998(32)家用太阳热水器电辅助热源NY/T513-2002(33)真空管太阳集热器GB/T17581-1998(34)全玻璃真空太阳集热管GB/T17049-2005(35)平板型太阳集热器技术条件GB/T6424-1997(36)家用太阳热水器贮水箱NY/T514-2002(37)城市给排水紫外线消毒设备GB/T19837-2005(38)生活饮用水消毒器GB/T204-2000(39)次氯酸钠发生器GB12176-90(40)生活饮用水紫外线消毒器CJ/T204-2000(41)臭氧发生器CJ/T3028.1-1994(42)冷水水表GB/T778-1996饮用净水水表CJ/T241-2007(43)IC卡冷水水表CJ/T133-2007(44)用户计量仪表数据传输技术条件CJ/T188-2004CJ/T3008-1993(45)城市排水流量堰槽测量技术标准(三角形薄壁堰、矩形薄壁堰、巴歇尔量水槽、宽顶堰)(46)给水排水用超声流量计CJ/T3063-1997(47)潜水电磁流量计CJ/T3017-1993(48)超声多普勒流量计CJ/T122-2000(49)水量计量仪表均速管流量计CJ/T3054.1-1995(50)一般压力表GB/T1226-2001(51)电接点压力表ZBN1013-1988(52)电子水处理器HG/T3133-1998(53)内磁水处理器CJ/T3066-1997(54)自含式温度控制阀CJ/T153-2001(55)倒流防止器CJ/T160-2002(56)建筑排水系统吸气阀CJ202-2004(57)地漏CJ/T186-2003(58)金属波纹管膨胀节通用技术条件GB/T12777-1999(59)可曲挠橡胶接头CJ/T208-2005(60)城镇给水用铁制阀门通用技术要求CJ/T3049-95(61)给排水用软密封闸阀CJ/T216-2005(62)供水排水用铸铁阀门CJ/T3006-1992(63)水暖用内螺纹连接阀门GB/T8464-1998(64)供水用偏心信号碟阀CJ/T93-1999(65)给排水用缓闭止回阀通用技术要求CJ/T154-2001(66)给水管道复合式高速进排气阀CJ/T217-2005(67)卫生洁具、暖气直角式截止阀技术条件GB8373-87(68)卫生洁具、暖气直角式截止阀形式和尺寸GB8374-87GB8464-87(69)内螺纹连接闸阀、截止阀、球阀、止回阀通用技术条件GB8465-87(70)内螺纹连接闸阀、截止阀、球阀、止回阀基本尺寸(71)内螺纹连接旋塞阀、旋塞式液面指示器GB9306-88(72)水力控制阀CJ/T219-2005(73)多功能水泵控制阀CJ/T167-2002(74)液压水位控制阀CJ/T3067-1997(75)立式长轴泵CJ/T235-2006(76)无堵塞泵CJ203-2000(77)潜水排污泵CJ/T3038-1995(78)供水排水用螺旋提升泵CJ/T3007-1992(79)钢制焊接常压容器JB/T4735-97(80)玻璃钢水箱JC658-1997(81)补气式气压给水设备JG/T3010.2-1994(82)隔膜式气压给水设备JG/T3010.1-1994(83)微机控制变频调速给水设备JG/T3009-1993CJ/T163-2002(84)导流型容积式水加热器和半容积式水加热器(U型管束)(85)浮动盘管换热器GB150-1998(86)喷泉喷头CJ/T209-2005(87)消火栓箱GB14561-2003(88)室内消火栓GB3445-2005(89)消防泵GB6245-2006(90)消防水泵结合器GB3446-93(91)室外消火栓通用技术条件GB4452-1996(92)自动灭火系统用玻璃球GB18428-2001GB5135-2003(93)自动喷水灭火系统(包括:洒水喷头、报警阀、水力警铃、水雾喷头、雨淋阀、水流指示器、加速器等)(94)不锈钢复合钢板和钢带GB/T8165-1997(95)不锈钢冷轧钢板GB/T3280-1992(96)法兰GB/T45-1999虹吸雨水斗CJ/T245-2007(97)排水管道闭气检验用板式密封管堵CJ/T3021-1993(98)建筑小区排水用塑料检查井CJ/T233-2006(99)再生树脂复合材料检查井盖CJ/T121-2000(100)再生树脂复合材料水箅CJ/T130-2001(101)聚合物基复合材料检查井盖CJ/T211-2005(102)聚合物基复合材料水箅CJ/T212-2005(103)铸铁检查井盖CJ/T3012-1993(104)玻璃纤维增强塑料冷却塔GB/T7190-1997(105)水处理用陶瓷配水管CJ46-1999(106)水处理用陶瓷滤砖CJ47-1999(107)平面格栅CJ/T39-1999(108)平面格栅除污机CJ/T3048-1995(109)弧形格栅除污机CJ/T3065-1997(110)可调式堰门CJ/T3029-1994(111)潜水搅拌机CJ/T109-2000(112)旋转式滗水器CJ/T176-2002(113)膜片式快开排泥阀CJ/T196-2004(114)水处理用溶液搅拌设备CJ/T3061-96(115)水处理用滤料CJ43-2005(116)水处理用天然锰砂滤料CJ/T3041-1995(117)供水用斜板CJ/T83-1999(118)污水处理用可张中、微孔曝气器CJ/T3015.4-96(118)污水处理用微孔曝气器CJ/T3015.1-1993(119)双环伞形曝气器CJ/T3015.3-1995(120)转刷曝气器CJ/T3071-1998(121)活性炭净水器CJ3023-1993(122)纯水机CJ/T168-2002。
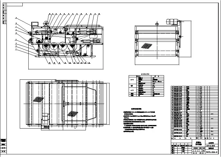
DNT2000型带式浓缩脱水一体机技术说明一,用途DNT型带式浓缩脱水一体机主要用于城市污水生化处理的剩余污泥或混合污泥的浓缩与脱水,是一种将污泥形成泥饼的高效脱水设备,可适用于给水排水,制造,铸造,皮革,纺织,化工,食品等各个行业的污泥脱水。
二,技术性能说明1,结构图详细附件一2,执行标准设备按照CJ/T80-1999“污泥脱水用带式压滤机”行业标准及以下技术规格要求进行设计和制造。
三,设备运行技术参数1工作条件2技术参数表一表二四,技术要求污泥浓缩机采用重力浓缩的形式,脱水机采用带式压滤机的形式。
并且带式浓缩脱水一体机、冲洗水泵、絮凝剂搅拌装置及加药泵等设备,各单机均为整机安装。
在整个浓缩、脱水系统中实行进泥、加药、混合、反应,并在层流条件下进行浓缩和脱水以及泥饼的输出等流水线操作。
A.主机主机(带式压滤机带式污泥浓缩脱水一体机),包括下列构件:1. 机架2. 水中造粒器3. 重力浓缩部份4. 压榨脱水部份5. 三条滤带(一条用于污泥浓缩段,两条用于污泥压榨段)6. 滤带气动张紧系统7. 滤带自动双向概率调偏系统8. 卸料装置9. 滤带清洗系统10. 排水收集系统11. 手动调速机械驱动装置(1)机架为抵御机器在装配、安装和操作时对其产生的压力,不会出现永久性变形或挠曲,机架采用方形钢管制造。
机架是焊接结构,采用适当磨削及加工焊接制成,浓缩段、压榨段机架均采用不锈钢304(2)水中造粒器属于静态絮凝装置,无需动力搅拌。
经造粒器反应后的污泥絮团大、强度高,且用药量省。
(3)滤带(厦门品牌)采用3条滤带来完成污泥浓缩压榨脱水过程,采用100%聚酯。
滤带能够更换而无须将机架或其它压滤机部件机械拆卸。
滤带使用寿命大于4000小时。
(4)滤带概率调偏系统在每条滤带的两侧都设有调偏气缸和调偏阀,跑偏到一定距离时,调偏阀给同侧的气缸供气,气缸动作,气缸的动作会导致调偏辊筒的倾斜,调偏辊倾斜改变滤布前进时的左右滑动方向,最终修正滤带的位置。
北京高碑店污水处理厂水厂简介北京市高碑店污水处理厂由北京市市政工程局负责建设,北京市市政工程设计研究总院设计,北京市第四市政工程公司施工。
该处理厂是北京市城市总体规划拟建的16座城市污水厂中规模最大、也是目前全国最大的污水处理厂。
厂承担着北京市中心区及东郊地区总计9661 ha流域范围内的污水治理,服务人口240万,占地1020亩,远期建设规模250万m3/d,近期建设规模100万m3/d,占全市污水处理总量的40%。
本工程获北京市第七届优秀设计一等奖,建设部优秀设计一等奖,全国第七届优秀工程设计银奖,中国土木工程学会詹天佑大奖。
近期工程建分两期实施。
一期规模50万m3/d,投资 5.24亿元人民币。
1984~1990年设计,1990年开工,1993年底建成通水,第二期50万m3/d已于1999年完成。
处理流程采用前置缺氧段活性污泥法二级处理工艺:一级处理包括格栅、泵房、曝气沉砂池和矩形平流沉淀池;二级处理采用推流式曝气池;污泥处理采用中温两级消化工艺,消化后经脱水的泥饼外运作为农业和绿化的肥源。
消化过程中产生的沼气,用于发电可解决厂内20%用电量。
同时将部分二级出水(1万m3/d)经进行深度处理(混凝、沉淀、过滤)后,用作厂区生活杂用水,不仅有效地节约了水资源,还将为大规模的污水回用积累了有益的经验。
高碑店污水处理厂一期工程从1993年投产后,至今已连续运行了7年,出水指标一直稳定达标,二期工程从投入污水到微生物生成,仅用了一个月的时间出水就已达标,而且出水水质指标远低于国家排放标准,具体指标如下:出水水质情况为:进水SS 250 mg/L,BOD5 200 mg/L,COD 500 mg/L;出水SS≤30 mg/L,BOD5≤16 mg/L。
在实际能耗与运行费用方面,基建单位水量投资为1600元/(m3/d),实际电耗0.15 kWh/m3水,实际运行成本0.33元/m3水(不计折旧)。
第一章工艺流程简介【一期污水工艺选择】针对出水要求,通过试验研究,一期选用前置缺氧段推流式活性污泥法,延长曝气时间,使出水完全硝化。
市政污水处理厂---污泥脱水系统板框压滤机技术要求摘要目前城市不断发展,城市里的污水排放的量也在日益增加,处理城市污水和污泥的任务已经亟待解决.如果对污泥处理不当或不规范处理,将会造成环境的二次污染,导致生态环境严重破坏.因此,必须采取有效的措施,加强城市污水厂污泥处理技术的合理运用,并推动技术的发展,从而实现社会的快速发展.基于此。
本文主要对污泥脱水系统的技术安装进行分析,结合某污水处理厂升级改造中污泥脱水机房的设计及运行工程实例,介绍了板框压滤机的工艺、运行流程、实际运行处理效果、优缺点及适用性等,并提出的详细设备技术参数、总结板框压滤机实践运行管理操作控制措施等,以供相关设计人员参考和探讨。
关键词:板框压滤机,提标改造,脱泥绪论某污水项目主要处理对象为市政污泥,污泥主要由水、有机残片、细菌菌体、无机颗粒、胶体及絮凝所用药剂等组成。
污水设计规模:1.2万吨/天(含水率96%-98%)设计污泥量:2-4吨/天(绝干污泥)。
污泥经过加药调理后约为含水率97%的污泥料,使用高压隔膜压滤机对污泥进行脱水处理,泥饼含水率约60%,压干后泥饼经螺旋输送机存放至电动污泥斗。
根据项目处理要求,本项目采用2台200平的高压隔膜水洗压滤机及其相关配套设备即可满足项目建设需要。
一、污泥脱水工艺流程污水厂剩余污泥依次通过污泥调理、固液分离、回收处理的泥浆处理工艺,经过了多次不同工艺的处理能实现泥与水的快速分离,从而实现了节能减排的效率,整体处理工艺简单,操作方便,处理效率高。
步骤如下:步骤一:污泥调理:将污泥输送至调理池,向池内投加调理药剂,在投加药剂的同时罐内需搅拌,使得药剂与污泥充分混合,经过加药调理后的污泥含水滤约为97%。
步骤二:固液分离:将步骤一处理后的污泥通过进料泵变频快速泵入压滤机中进行固液分离,经高压隔膜压滤机分离后的滤饼含水量更低,为了使污泥脱水效果更好,压滤机配套吹脱系统及压榨系统,经过压榨和吹脱后污泥含水滤约为60%。
城镇建设(CJ)(1)通用标准CJ/T3035—1995城镇建设和建筑工业产品型号编制规则(2)城镇公共交通CJ/T1—1999城市无轨电车和有轨电车供电系统CJ/T2—1999城市公共交通通信系统CJ/T3—1999城市无轨电车和有轨电车供电线网电杆CJ/T4—1999城市客运车辆修理通用技术条件CJ/T5—1999城市公共交通经济技术指标计算方法公共汽车、电车CJ/T6—1999城市公共交通经济技术指标计算方法出租汽车CJ/T7—1999城市公共交通经济技术指标计算方法客渡CJ/T8—1999城市公共交通经济技术指标计算方法地铁CJ/T9—1999城市公共交通主要保修设备配备无轨电车保养场CJ/T10—1999城市公共交通主要保修设备配备公共汽车保养场CJ/T11—1999城市公共交通主要保修设备配备公共汽车修理厂CJ/T107—1999城市公共交通客运设施城市公共汽、电车候车亭CJ/T116—2000城市公共汽、电车收费设备投币机CJ/T134—2001城市公交空调客车空调系统技术条件CJ3001—1992城市客渡轮通信设备标准CJ/T3003—1993出租汽车运行技术条件CJ/T3004—1993轿车、微型客车及小型客车修理技术条件CJ/T3004.2—1995城市公共交通车辆修理技术条件有轨电车CJ/T3004.3—1995城市公共交通车辆修理技术条件无轨电车CJ/T3010—1993城市公共交通车辆自动监控系统CJ/T3011—1993无轨电车供电网规划和设计标准CJ/T3024.1—1993城市公共交通客运服务城市地铁CJ/T3024.2—1995城市公共交通客运服务城市公共汽车、无轨电车CJ/T3024.3—1998城市公共交通客运服务城市出租汽车CJ/T3027.1—1993城市公共交通信号系统轻轨交通CJ/T3034—1995城市无轨电车运行耗电计算通则CJ/T3045—1995城市公共交通主要经济技术指标分类与代码CJ/T3046.1—1995城市公共交通主要经济技术指标综合统计报表公共汽车、电车 CJ/T3046.2—1995城市公共交通主要经济技术指标综合统计报表出租汽车CJ/T3046.3—1995城市公共交通主要经济技术指标综合统计报表客渡CJ/T3046.4—1995城市公共交通主要经济技术指标综合统计报表地铁CJ/T3052—1995城市客运车辆保养通用技术条件CJ/T3087—1999城市公共汽、电车收费设备电子收费机应用技术条件CJ/T5002—1992公共电、汽车报站装置磁带放音CJ/T5020.1—1995无轨电车供电触线网交叉器CJ/T5020.2—1995无轨电车供电触线网并线器CJ/T5021—1995轻轨交通车辆通用技术条件CJ/T5022—1997双层客车技术条件CJ/T5023—1997无轨电车铝合金侧窗CJ5024—1997电子式出租汽车计价器(3)城镇给排水CJ/T38—1999测氟仪指示计CJ/T39—1999平面格栅CJ40—1999工业用水分类及定义CJ41—1999工业企业水量平衡测试方法CJ42—1999工业用水考核指标及计算方法CJ43—1999水处理用石英砂滤料CJ44—1999水处理用无烟煤滤料CJ45—1999水处理用磁铁矿滤料CJ46—1999水处理用陶瓷配水管CJ/T47—1999水处理用双层陶瓷滤砖CJ/T48—1999生活杂用水CJ/T49—1999生活杂用水标准检验法CJ/T51—1999城市污水 pH值的测定电位计法CJ/T52—1999城市污水悬浮固体的测定重量法CJ/T53—1999城市污水易沉固体的测定体积法CJ/T54—1999城市污水五日生化需氧量的测定稀释与接种法CJ/T55—1999城市污水总固体的测定重量法CJ/T56—1999城市污水化学需氧量的测定重铬酸钾法CJ/T57—1999城市污水油的测定重量法CJ/T58—1999城市污水挥发酚的测定蒸馏后4-氨基安替比林分光光度法CJ/T59—1999城市污水氰化物的测定CJ/T60—1999城市污水硫化物的测定CJ/T61—1999城市污水硫酸盐的测定重量法CJ/T62—1999城市污水氟化物的测定离子选择电极法CJ/T63—1999城市污水苯胺的测定偶氮分光光度法CJ/T64—1999城市污水苯系物(C-6-C-8)的测定气相色谱法CJ/T65—1999城市污水铜、锌、铅、镉、锰、镍、铁的测定原子吸收光谱法CJ/T66—1999城市污水铜的测定二乙基二硫代氨基甲酸钠分光光度法CJ/T67—1999城市污水锌的测定双硫腙分光光度法市污水汞的测定冷原子吸收光度法CJ/T69—1999城市污水铅的测定双硫腙分光光度法CJ/T70—1999城市污水总铬的测定二苯碳酰二肼分光光度法CJ/T71—1999城市污水六价铬的测定二苯碳酰二肼分光光度法CJ/T72—1999城市污水镉的测定双硫腙分光光度法CJ/T73—1999城市污水总砷的测定二乙基二硫代氨基甲酸银分光光度法CJ/T74—1999城市污水氯化物的测定银量法CJ/T75—1999城市污水氨氮的测定CJ/T76—1999城市污水亚硝酸盐氮的测定分光光度法CJ/T77—1999城市污水总氮的测定蒸馏后滴定法CJ/T78—1999城市污水总磷的测定分光光度法CJ/T79—1999城市污水总有机碳的测定非色散红外法CJ/T80—1999污泥脱水用带式压滤机CJ/T81—1999机械搅拌澄清池搅拌机CJ/T82—1999机械搅拌澄清池刮泥机CJ/T83—1999供水用斜管CJ/T92—1999供热用偏心蝶阀CJ/T93—1999供水用偏心信号蝶阀CJ/T94—1999饮用净水水质标准CJ/T95—2000再生水回用于景观水体的水质标准CJ/T108—1999铝塑复合压力管(搭接焊)CJ/T109—2000潜水搅拌机CJ/T110—2000承插式管接头CJ/T111—2000铝塑复合管用卡套式铜制管接头CJ/T114—2000高密度聚乙烯外护管聚氨酯泡沫塑料预制直埋保温管CJ/T117—2000建筑用铜管管件(承插式)CJ/T119—2000反渗透水处理设备CJ/T120—2000给水涂塑复合钢管CJ/T121—2000再生树脂复合材料检查井盖CJ/T122—2000超声多普勒流量计CJ/T123—2000给水用钢骨架聚乙烯塑料复合管CJ/T124—2000给水用钢骨架聚乙烯塑料复合管件CJ/T125—2000煤气用钢骨架聚乙烯塑料复合管CJ/T126—2000煤气用钢骨架聚乙烯塑料复合管件CJ/T129—2000玻璃纤维增强塑料外护层聚氨酯泡沫塑料预制直埋保温管CJ/T130—2001再生树脂复合材料水箅CJ/T133—2000IC卡冷水水表CJ/T141—2001城市供水二氧化硅的测定硅钼蓝分光光度法CJ/T142—2001城市供水锑的测定CJ/T143—2001城市供水钠、镁、钙的测定离子色谱法CJ/T144—2001城市供水有机磷农药的测定气相色谱法CJ/T145—2001城市供水挥发性有机物的测定CJ/T146—2001城市供水酚类化合物的测定液相色谱分 析法CJ/T147—2001城市供水多环芳轻的测定液相色谱法CJ/T148—2001城市供水粪性链球菌的测定CJ/T149—2001城市供水亚硫酸盐还原厌氧菌(梭状芽胞杆菌)孢子的测定CJ/T150—2001城市供水致突变物的测定鼠伤寒沙门氏菌/哺乳动物微粒体酶试验CJ/T203—2000无堵塞泵CJ/T204—2000生活饮用水紫外线消毒器CJ/T205—2000建筑给水交联聚乙烯(PE-X)管材CJ/T3006—1992供水、排水用铸铁阀门CJ/T3007—1992供水、排水用螺旋提升泵JG/T3008—1993机械式脚踏淋浴用阀门CJ/T3008.1—1993城市排水流量堰槽测量技术标准三角形薄 壁堰CJ/T3008.2—1993城市排水流量堰槽测量技术标准矩形薄壁堰CJ/T3008.3—1993城市排水流量堰槽测量技术标准巴歇尔量 水槽 CJ/T3008.4—1993城市排水流量堰槽测量技术标准宽 顶堰CJ/T3008.5—1993城市排水流量堰槽测量技术标准三角形剖 面堰 CJ/T3013—1993给水输配专用管件可曲挠橡胶接头CJ/T3014—1993重力式污泥浓缩池悬挂中心传动刮泥机CJ/T3015.1—1993污水处理用微孔曝气器CJ/T3015.2—1993曝气器清水充氧性能测定CJ/T3015.3—1995双环伞型曝气器CJ/T3015.4—1996污水处理用可张中、微孔曝气器CJ/T3017—1993潜水型电磁流量计CJ/T3019—1993城镇供水水量计量仪表的配备和管理通则CJ/T3020—1993生活饮用水水源水质标准CJ/T3021—1993排水管道闭气检验用板式密封管堵CJ/T3023—1993活性碳净水器CJ/T3025—1993城市污水处理厂污泥排放标准CJ/T3026—1994饮用水一体化净水器CJ/T3028.1—1994臭氧发生器CJ/T3028.2—1994臭氧发生器臭氧浓度、产量、电耗的测定CJ/T3029—1994可调式堰门(300mm~500mm)CJ/T3041—1995水处理用天然锰砂滤料CJ/T3042—1995污水处理用辐流沉淀池周边传动刮泥机CJ/T3043—1995重力式污泥浓缩池周边传动刮泥机CJ/T3044—1995污水处理用沉砂池行车式刮砂机CJ/T3047—1995半即热式换热器CJ/T3048—1995平面格栅除污机CJ/T3049—1995城镇给水用铁制阀门通用技术要求CJ/T3050—1995喷泉喷头CJ/T3053—1995隔绝式气体加压膨胀装置CJ/T3054.1—1995水量计量仪表均速管流量计CJ/T3060—1996潜水轴流泵CJ/T3061—1996水处理用溶药搅拌设备CJ/T3063—1997给排水用超声流量计(传播速度差法)CJ3064—1997居民饮用水计量仪表安全规则CJ/T3065—1997弧形格栅除污机CJ/T3066—1997内磁水处理器CJ/T3067—1997液压水位控制阀CJ/T3068—1997高分子烧结微孔管式过滤器CJ/T3070—1999城市用水分类标准CJ/T3071—1998转刷曝气机CJ/T3079—1998玻璃纤维增强塑料夹砂管CJ/T3080—1998承插式柔性抗震接口排水铸铁管及管件CJ/T3081—1999非接触式(电子)给水器具CJ3082—1999污水排入城市下水道水质标准(4)城镇道桥CJ/T3012—1993铸铁检查井盖CJ3058—1996塑料护套半平行钢丝拉索CJ/T3073—1998土壤固化剂CJ/T3076—1998高杆照明设施技术条件CJ3077—1998建筑缆索用钢丝CJ/T3078—1998建筑缆索用高密度聚乙烯塑料(5)城镇燃气CJ/T28—1999中餐燃气炒菜灶CJ/T29—1999燃气沸水器CJ30—1999热电式燃具熄火保护装置CJ/T31—1999液化石油气钢瓶金相组组织评定CJ/T32—1999液化石油气钢瓶焊接工艺评定CJ/T33—1999液化石油气钢瓶热处理工艺评定CJ/T34—1999液化石油气钢瓶涂覆规定CJ/T35—1999液化石油气钢瓶包装运输规定CJ/T36—1999液化石油气钢瓶工艺导则CJ/T37—1999液化石油气钢瓶质量保证控制要点CJ50—1999家用液化石油气调压器CJ131—2001家用燃气燃烧器具结构通则CJ/T132—2001家用燃气燃烧器具自动燃气阀CJ/T3005—1993城镇燃气用灰铸铁阀门通用技术条件CJ/T3030—1995炊用燃气大锅灶CJ/T3031—1995常压容积式燃气热水器CJ/T3055—1995燃气阀门的试验与检验CJ/T3056—1995城镇燃气用球墨铸铁、铸钢制阀门通用技术要求CJ3057—1995家用燃气泄漏报警器CJ3062—1996燃气燃烧器具使用交流电源的安全通用要求CJ/T3069—1997城镇燃气计量单位和符号CJ/T3072—1998家用燃气器具旋塞阀总成CJ/T3074—1998家用燃气燃烧器具电子控制器CJ/T3075.1—1998燃气燃烧器具实验室技术通则CJ/T3075.2—1998燃气燃烧器具实验室试验装置和仪器CJ/T3085—1999城镇燃气术语CJ/T3086—1999间接加热式燃油燃气中央热水机组(6)城镇供热CJ/T25—1999供热用手动流量调节阀CJ/T112—2000IC卡家用膜式燃气表CJ/T113—2000家用燃气取暖器CJ128—2000热量表CJ/T3002—1992聚氨酯泡沫塑料预制保温管CJ/T3012.2—1998采暖散热器钢制翅片管对流散热器CJ/T3016—1993城市供热管道用波纹管补偿器CJ/T3016.2—1994城市供热补偿器焊制套筒补偿器CJ/T3022—1993城市供热用螺旋缝埋弧焊钢管CJ/T3084—1999燃油壳管式热水机组(7)城镇园林CJ/T22—1999动物园动物管理技术规程CJ/T23—1999城市园林苗圃育苗技术规程CJ/T24—1999城市绿化和园林绿地用植物材料木本苗CJ115—2000动物园安全标志CJ/T135—2001城市绿化和园林绿地用植物材料球根花卉种球(8)城镇环境卫生CJ/T12—1999城市容貌标准CJ/T13—1999环境卫生设施与设备图形符号设施标志CJ/T14—1999环境卫生设施与设备图形符号设施图例CJ/T15—1999环境卫生设施与设备图形符号机械与设备CJ/T16—1999城市环境卫生专用设备清扫、收集、运输CJ/T17—1999城市环境卫生专用设备垃圾转运CJ/T18—1999城市环境卫生专用设备垃圾卫生填埋CJ/T19—1999城市环境卫生专用设备垃圾堆肥CJ/T20—1999城市环境卫生专用设备垃圾焚烧、气化、热解CJ/T21—1999城市环境卫生专用设备粪便处理CJ/T96—1999城市生活垃圾有机质的测定灼烧法CJ/T97—1999城市生活垃圾总铬的测定二苯碳酰二肼比色法CJ/T98—1999城市生活垃圾汞的测定冷原子吸收分光光度法CJ/T99—1999城市生活垃圾 pH的测定玻璃电极法CJ/T100—1999城市生活垃圾镉的测定原子吸收分光光度法CJ/T101—1999城市生活垃圾铅的测定原子吸收分光光度法CJ/T102—1999城市生活垃圾砷的测定二乙基二硫代氨基甲酸银分光光度法CJ/T103—1999城市生活垃圾全氮的测定半微量开氏法CJ/T104—1999城市生活垃圾全磷的测定偏钼酸铵分光光度法CJ/T105—1999城市生活垃圾全钾的测定火焰光度法CJ/T106—1999城市生活垃圾产量计算及预测方法CJ/T118—2000生活垃圾焚烧炉CJ/T127—2000压缩式垃圾车CJ/T3018.1—1993生活垃圾渗沥水专用术语CJ/T3018.2—1993生活垃圾渗沥水色度的测定CJ/T3018.3—1993生活垃圾渗沥水总固体的测定CJ/T3018.4—1993生活垃圾渗沥水总溶解性固体与总悬浮性固体的测定CJ/T3018.5—1993生活垃圾渗沥水硫酸盐的测定重量法CJ/T3018.6—1993生活垃圾渗沥水氨态氮的测定蒸馏法和滴定法CJ/T3018.7—1993生活垃圾渗沥水凯氏氮的测定硫酸汞催化肖解法CJ/T3018.8—1993生活垃圾渗沥水氯化物的测定硝酸银滴定法CJ/T3018.9—1993生活垃圾渗沥水总磷的测定钒钼磷酸盐CJ/T3018.10—1993生活垃圾渗沥水 pH值的测定玻璃电极法CJ/T3018.11—1993生活垃圾渗沥水五日生化需氧量(BOD-3)的测定稀释与培养法CJ/T3018.12—1993生活垃圾渗沥水化学需氧量(OD)的测定重铬酸钾法CJ/T3018.13—1993生活垃圾渗沥水钾的钠的测定火焰光度法CJ/T3018.14—1993生活垃圾渗沥水细菌总数的检测平板菌落计数法CJ/T3018.15—1993生活垃圾渗沥水总大肠菌群的检测多管发酵法CJ/T3033—1996城市垃圾产生源分类及垃圾排放标准CJ3036—1995医疗垃圾焚烧环境卫生标准CJ/T3037—1995生活垃圾填埋场环境监测技术标准CJ/T3039—1995城市生活垃圾采样和物理分析方法CJ/T3051—1995锤式垃圾破碎机CJ/T3059—1996城市生活垃圾堆肥处理厂技术评价指标CJ/T3083—1999医疗废弃物焚烧设备技术要求CJ/T5013.1—1995垃圾分选机垃圾滚筒筛CJ/T5025—1997垃圾容器五吨车用集装箱CJ/T5026—1998铁质废物箱技术条件(9)房地产技术CJ26—1999危险房屋鉴定标准CJ27—1999房层接管验收标准(10)城镇机械CJ/T84—1999垃圾车CJ/T85—1999草坪剪草机CJ/T86—1999客车侧窗用铝型材断面CJ/T87—1999客车用冷弯型钢CJ/T88—1999真空吸污车分类CJ/T89—1999真空吸污车技术条件CJ/T90—1999真空吸污车性能试验方法CJ/T91—1999真空吸污车可靠性试验方法CJ/T5001—1992无轨电车气压控制开关CJ/T5005—1993无轨电车产品型号编制规则CJ/T5006—1993无轨电车图样编号方法CJ/T5007—1993无轨电车技术条件CJ/T5008—1993无轨电车试验方法CJ/T5009—1993无轨电车定型试验规程CJ/T5010—1993无轨电车底盘通用技术条件CJ/T5011—1993无轨电车空气断路器通用技术条件CJ/T5012—1993无轨电车电热化霜器技术条件CJ/T5014—1994绿篱修剪机CJ/T5015—1994植树挖掘机CJ/T5016—1994有轨电车技术条件CJ/T5017.1—1994水泥混凝土摊铺技术条件CJ/T5018—1994稳定土拌和机CJ/T5019—1995沥青洒布机CJ/T5083—1996绿化喷洒多用车。
带式压滤脱水机操作规程一、准备:1、检查压滤机、空压机、气动系统油雾器、冲洗泵、污泥输送螺杆泵、絮凝剂输送螺杆泵等设备的润滑及油面状况,按规定进行润滑。
2、合上控制柜门闸刀,并依次按下报警消除和报警复位按钮。
3、按下空压机起动按钮,空压机开始工作。
检查空压机工作状况。
到控制柜上气压过低报警灯熄灭为止。
4、按下报警复位按钮。
5、按下运转按钮,运转指示绿灯亮,即可进行下一步工作。
二、絮凝剂制备:1、在絮凝剂搅拌桶内加入清水,到淹没搅拌器叶轮后开动相应的搅拌器。
2、依据浓度要求,加入适量的絮凝剂,并持续加水到所定高度搅拌规定的时间。
三、开机:1、打开冲洗水泵进、出水阀门,污泥泵进泥阀,絮凝剂泵进口阀。
2、打开压滤机气动柜上滤带张紧旋钮,并分别调整上、下滤带张紧压力〔上带40~50Pa,下带35~45Pa〕。
3、依次开动冲洗泵、污泥进料布料器、压滤机、絮凝剂计量泵、污泥计量泵,依据进料状况及工艺要求,调整搅拌、进料及带速。
四、运行过程:1、操作工必须对压滤机生产状况进行监视,并依据进泥状况、絮凝状况和出泥质量及时调整各部分工作状态。
2、操作工必须随时注意压滤机运转状况:①整机运转是否正常,自动纠偏是否有效,有无异常杂音和气味。
②空压机供气压力〔5~8㎏/㎝²〕是否正常,运转有无异常。
③冲洗水供水状况是否正常,滤布冲洗效果。
天天定时刷洗上、下滤布冲洗喷管。
3、工作中如出现意外状况〔如硬质杂物进入污泥泵或滤带、不能自动纠偏等〕,操作工应迅速按下紧急停止按钮式急停拉绳,排除危险后按起动顺序重新起动。
4、工作中如出现报警、停机,操作工可先解除报警报铃,然后查明原因排除解决,再按下复位按钮后重新起动。
如车间自己无法解决,应马上报告生产科采用措施。
五、停机:1、停机时首先将污泥计量泵和絮凝剂计量泵调整至最低转速,并关闭该两泵。
2、压滤机持续运转至机内污泥全部排出,滤布全部冲洗干净后,调低滤带速度及搅拌速度至零后依次关闭搅拌器、污泥进料布料器、压滤机、空压机,放松上下滤带。
带式污泥脱水机正确操作步骤
1、启动加药箱搅拌机,配制好所用药剂。
2、带式污泥脱水机开机前,注意检查带式压滤机的周边环境,严禁无关物品放在滤带上,并防止周边物品挤入滤带。
3、启动空气压缩机,将上下滤带松紧开关调至胀紧位置,待滤带胀紧,(注意:上下滤带压力要保持一致,防止滤带转动后跑偏),开启电机电源,启动转速开关电源,慢慢增加转速,并检查滤带是否有走偏等现象,如有不妥立即停机,排除故障后,再次启动。
4、污泥脱水机正常运转后,开启反冲洗水泵,将滤带冲洗-遍后即可开启污泥泵及药剂输送泵。
调整药剂量及污泥输送速度,至搅拌后,进入滤带的污泥呈现絮凝状态即可。
5、压泥结束后,停止药剂及污泥输送,待滤带上的污泥全部被刮板刮尽后,开启反冲洗水泵,将滤带冲洗干净。
6、将滤带冲洗干净后,关闭反冲洗水泵,将转速调至零,关闭转速开关电源,将滤带转动电机关闭,最后,将空压机关闭,将滤带松紧开关调至松开位置。
7、滤带转动速度可根据泥量多少药剂量的效果及输送量来确定,建议转速在800-900转左右运下运行。
8、滤带胀紧最大承受0.6Mpa,建议压泥保证压力在0.3Mpa即可。
带式压滤脱水机操作规程带式压滤脱水机是一种半自动化的过滤设备,它主要用于将液体中的固体颗粒进行筛选与分离,达到脱水,除水的目的。
在使用带式压滤脱水机之前,需要了解一些操作规程,以确保操作的安全性和设备的正常运行。
1. 准备工作在使用带式压滤脱水机之前,需要清洗并检查其内部和外部是否存在任何问题。
检查工作不仅包括设备的机械部件,还包括水泵,电气部件等。
如果发现设备存在故障或者损坏,必须停止使用并及时进行维修。
2. 启动设备在启动设备之前,需要检查电缆、电源以及内部电气设备的接线是否正确。
根据设备不同,按照要求进行连接。
确保设备的电气接地良好。
同时,还要检查设备的液位控制开关和过载保护装置是否处于正常工作状态,以确保设备在运行时不会超载或出现危险。
3. 操作设备将需要脱水的物料放入设备的料箱中。
启动主机后,索带开始转动,让物料进入脱水段。
对于过细的颗粒和粘性液体,应该适当减慢索带的速度,缓慢进料。
一般情况下,可以根据物料的脱水程度及设备的具体情况来调节索带的运动速度,以确保物料可以在相应的时间内进行脱水。
4. 处理杂质在物料中混入太多的杂质或异物可能会对带式压滤脱水机造成损害。
因此,在进行操作之前,需要尽可能地除去物料中的杂质和异物。
其中最常见的方法是通过筛选和洗涤的方式将这些杂物除掉,以免对设备运行造成不良的影响。
另外,还要注意定期清理设备中的固体颗粒,以防止因累积过多而堵塞索带的情况发生。
5. 维护设备在使用完设备之后,需要按照规定对设备进行清洗、维护和保养工作,以确保其在下一次运行时可以正常工作,并延长其使用寿命。
常见的维护工作包括清洗设备的筛网,润滑设备的轴承和齿轮,检查设备的电气设备、水泵、阀门、索带等重要部件是否存在异常。
总之,带式压滤脱水机是一种十分实用的设备,具有良好的过滤和脱水效果。
在使用时需要注意设备的操作规程,以确保设备的安全性和正常运行,切勿因疏忽大意而造成意外。
高压隔膜压滤机在污泥深度脱水技术资源化、无害化利用处置污泥深度脱水可行性方案一、项目概述本项目为市政污水处理厂及工业污水处理厂在污水净化过程中产生的污泥,此污泥前期通过带式过滤机及离心式过滤机预处理,污泥含水率为80%-85%,每天产生含水率80%以上的污泥为30t/d 。
由于大量的市政及工业污泥的产生对城市的发展限制和居住环境的不断恶化。
我国目前对市政及工业污泥的含水率由之前的80%现已修改为60%以下,总的方针是污泥源头减量化,资源利用和无害化处理。
在资源利用和无害化处理过程中由于污泥的含水率过高无法实现最终的要求。
污泥深度脱水是我国目前必须要解决的问题。
我公司目前开发的污泥深度脱水高压隔膜自动压滤机及系统,污泥含水率由80%可以降到50%左右。
目前是国内及国际领先水平,填补国内空白和具有自主知识产权。
现在已经在国内很多污水处理厂使用,得到了行业内的一致好评。
为污泥的后续无害化处理奠定的坚实的基础。
滤出液回流污水池深度脱水隔膜压滤机 滤饼控制系统 滤饼无害化处理压榨水加药装置高压洗布水图1、以上是污泥深度脱水自动隔膜压滤机为核心的污泥深度脱水处理原理图二、设备概述污泥深度脱水自动高压隔膜压滤机作为污泥深度脱水分离设备,应用于城镇污水及工业污水处理已有悠久历史,它具有污泥深度脱水效果好、适应性广,特别对于污泥在过滤完成后滤饼内的间隙水,通过高压隔膜压榨能够有效的把间隙水给分离出来,最终污泥的含水率能够降到50%左右。
污泥深度脱水自动高压隔膜压滤机是一种间歇性污泥深度分离设备,采用机、电一体化设计制造,结构合理,操作简单方便维修率低等优点,能够现无人操作自动运行。
过滤5%-80%待处理污泥污泥调理池元件由隔膜板、隔膜配板、滤布、污泥进料泵组成。
在污泥进料泵的压力作用下,将污泥浆送入滤室,通过过滤介质(滤布),将污泥和液体分离。
在经过高压隔膜压榨,把游离余污泥颗粒间的间隙水给压榨出来。
高压隔膜自动污泥深度脱水压滤机与离心机及带式过滤机比较,污泥的含固率要高出30%-35%。
市政工程标准精选(最新)市政工程标准精选(最新)G28885《GB/T 28885-2019 燃气服务导则》G30428.1《GB/T 30428.1-2019 数字化城市管理信息系统第1部分:单元网格》G30428.2《GB/T 30428.2-2019 数字化城市管理信息系统第2部分:管理部件和事件》G50195《GB 50195-2019 发生炉煤气站设计规范》G50838《GB 50838-2019 城市综合管廊工程技术规范》G50853《GB/T 50853-2019 城市通信工程规划规范》G50903《GB/T 50903-2019 市政工程施工组织设计规范》G50918《GB 50918-2019 城镇建设智能卡系统工程技术规范》G51074《GB/T 51074-2019 城市供热规划规范》G51080《GB 51080-2019 城市消防规划规范》CJ1《CJ/T 1-1999 城市无轨电车和有轨电车供电系统》CJ2《CJ/T 2-1999 城市公共交通通信系统》CJ3《CJ/T 3-1999 城市无轨电车和有轨电车供电线网电杆》CJ4《CJ/T 4-1999 城市客运车辆修理通用技术条件》CJ5《CJ/T 5~8-1999 城市公共交通经济技术指标计算方法》CJ9《CJ/T 9~11-1999 城市公共交通主要保修设备配备》CJ16《CJ/T 16~21-1999 城市环境卫生专用设备》CJ22《CJ/T 22-1999 动物园动物管理技术规程》CJ23《CJ/T 23-1999 城市园林苗圃育苗技术规程》CJ24《CJ/T 24-1999 城市绿化和园林绿地用植物材料木本苗》CJ25《CJ/T 25-1999 供热用手动流量调节阀》CJ27《CJ27-1999 房屋接管验收标准》CJ29《CJ/T 29-2019 燃气沸水器》CJ38《CJ/T 38-1999 测氟仪指示剂》CJ39《CJ/T 39-1999 平面格栅》CJ40《CJ40-1999 工业用水分类及定义》CJ41《CJ41-1999 工业企业水量平衡测试方法》CJ43《CJ/T 43-2019 水处理用滤料》CJ46《CJ/T 46-1999 水处理用陶瓷配水管》CJ47《CJ/T 47-1999 水处理用双层陶瓷滤砖》CJ51《CJ/T 51-2019 城市污水水质检验方法标准》CJ80《CJ/T 80-1999 污泥脱水用带式压滤机》CJ81《CJ/T 81~82-1999 机械搅拌澄清池搅拌机刮泥机》 CJ83《CJ/T 83-1999 供水用斜管》CJ84《CJ/T 84-1999 垃圾车》CJ85《CJ/T 85-1999 草坪剪草机》CJ86《CJ/T 86-1999 客车侧窗用铝型材断面》CJ87《CJ/T 87-1999 客车用冷弯型钢》CJ92《CJ/T 92-1999 供热用偏心蝶阀》CJ93《CJ/T 93-1999 供水用偏心信号蝶阀》CJ94《CJ94-2019 饮用水水质标准》CJ96《CJ/T 96-1999 城市生活垃圾有机质的测定》CJ97《CJ/T 97-1999 城市生活垃圾总铬的测定》CJ98《CJ/T 98-1999 城市生活垃圾汞的测定》CJ99《CJ/T 99-1999 城市生活垃圾PH的测定》CJ100《CJ/T 100-1999 城市生活垃圾镉的测定》CJ101《CJ/T 101-1999 城市生活垃圾铅的测定》CJ102《CJ/T 102-1999 城市生活垃圾砷的测定》CJ103《CJ/T 103-1999 城市生活垃圾全氮的测定》CJ104《CJ/T 104-1999 城市生活垃圾全磷的测定》CJ105《CJ/T 105-1999 城市生活垃圾全钾的测定》CJ106《CJ/T 106-1999 城市生活垃圾产量计算及预测方法》CJ107《CJ/T 107-1999 城市公共汽、电车侯车亭》CJ108《CJ/T 108-1999 铝塑复合压力管(搭接焊)》CJ109《CJ/T 109-2019 潜水搅拌机》CJ110《CJ/T 110-2000 承插式管接头》CJ111《CJ/T 111-2000 铝塑复合管用套式铜制管接头》CJ112《CJ/T 112-2019 IC卡膜式燃气表》CJ113《CJ/T 113-2000 家用燃气取暖器》CJ114《CJ/T 114-2000 高密度聚乙烯外保护管聚氨脂泡沫塑料预制直埋保温管》CJ115《CJ115-2000 动物园安全标志》CJ116《CJ/T 116-2000 城市公共汽电车收费设备投币机》CJ117《CJ/T 117-2000 建筑用铜管管件(承抽式)》CJ120《CJ/T 120-2019 给水涂塑复合钢管》CJ121《CJ/T 121-2000 再生树脂复合材料检查井盖》CJ122《CJ/T 122-2000 超声多普勒流量计》CJ123《CJ/T 123-2019 给水用钢骨架聚乙烯塑料复合管》CJ124《CJ/T 124-2019 给水用钢骨架聚乙烯塑料复合管件》CJ125《CJ/T 125-2000 燃气用钢骨架聚乙烯塑料复合管》CJ126《CJ/T 126-2000 燃气用钢骨架聚乙烯塑料复合管件》CJ127《CJ/T 127-2000 压缩式垃圾车》CJ128《CJ128-2019 热量表》CJ129《CJ/T 129-2000 玻璃纤维增强塑料外护层聚胺脂泡沫塑料预制直埋保温管》CJ130《CJ/T 130-2002 再生树脂复合材料水箅》CJ131《CJ131-2002 家用燃气燃烧器具结构通则》CJ132《CJ/T 132-2002 家用燃气燃烧器具自动燃气阀》CJ133《CJ/T 133-2019 IC卡冷水水表》CJ134《CJ/T 134-2002 城市公交空调客车空调系统技术条件》CJ135《CJ/T 135-2002 城市绿化和园林绿地用植物材料:球根花卉种球》 CJ136《CJ/T 136-2019 给水衬塑复合钢管》CJ137《CJ/T 137-2019 给水衬塑可锻铸铁管件》CJ138《CJ/T 138-2002 建筑给水交联聚乙烯管用管件技术条件》CJ139《CJ/T 139-2002 无隔膜电极溶氧仪》CJ140《CJ/T 140-2002 供热管道保温结构散热损失测试与保温效果评定方法》CJ141《CJ/T 141~150-2002 城市供水水质检验方法标准及编制说明和研究报告》CJ151《CJ/T 151-2002 薄壁不锈钢水管》CJ152《CJ/T 152-2019 薄壁不锈钢卡压式和沟槽式管件》CJ153《CJ/T 153-2002 自含式温度控制阀》CJ154《CJ/T 154-2002 给排水用缓闭止回阀通用技术要求》CJ155《CJ/T 155-2002 高密度聚乙烯外护管聚氨酯硬质泡沫塑料预制直埋保温管件》 CJ156《CJ/T 156-2002 沟槽式管接头》CJ157《CJ/T 157-2002 家用燃气灶具用涂层钢化玻璃面板》CJ158《CJ/T 158-2002 城市污水处理厂管道和设备色标》CJ159《CJ/T 159-2019 铝塑复合压力管(对接焊)》CJ160《CJ/T 160-2019 双止回阀倒流防止器》CJ161《CJ/T 161-2002 水泥内衬离心球墨铸铁管及管件》CJ162《CJ/T 162-2002 城市客车分等级技术要求与配置》CJ163《CJ/T 163-2002 导流型容积(或半容积)式水加热器》CJ164《CJ/T 164-2002 节水型生活用水器具》CJ165《CJ/T 165-2002 高密度聚乙烯缠绕结构壁管材》CJ166《CJ/T 166-2019 建设事业集成电路(IC)卡应用技术》CJ167《CJ/T 167-2002 多功能水泵控制阀》CJ168《CJ/T 168-2002 纯水机》CJ169《CJ/T 169-2002 微滤水处理设备》CJ170《CJ/T 170-2002 超滤水处理设备》CJ171《CJ/T 171-2002 城市环境卫生设施属性数据采集表及数控结构》 CJ174《CJ/T 174-2019 居住区智能化系统配置与技术要求》CJ175《CJ/T 175-2002 冷热水用耐热聚乙烯(PE-RT)管道系统》CJ176《CJ/T 176-2019 旋转式滗水器》CJ177《CJ/T 177-2002 建筑排水用卡箍式铸铁管及管件》CJ178《CJ/T 178-2019 建筑排水用柔性接口承插式铸铁管及管件》CJ179《CJ/T 179-2019 自力式流量控制阀》CJ180《CJ/T 180-2019 家用手动燃气阀门》CJ181《CJ/T 181-2019 给水用孔网钢带聚乙烯复合管》CJ182《CJ/T 182-2019 燃气用埋地孔网钢带聚乙烯复合管》CJ183《CJ/T 183-2019 钢塑复合压力管》CJ184《CJ/T 184-2019 不锈钢塑料复合管》CJ185《CJ/T 185-2019 城市客车报站器》CJ186《CJ/T 186-2019 地漏》CJ187《CJ/T 187-2019 燃气蒸箱》CJ188《CJ/T 188-2019 户用计量仪表数据传输技术条件》CJ189《CJ/T 189-2019 钢丝网骨架塑料(聚乙烯)复合管材及管件》CJ190《CJ/T 190-2019 铝塑复合管用卡压式管件》CJ191《CJ/T 191-2019 板式换热机组》CJ192《CJ/T 192-2019 内衬不锈钢复合钢管》CJ193《CJ/T 193-2019 内层熔接型铝塑复合管》CJ194《CJ/T 194-2019 非接触式给水器具》CJ195《CJ/T 195-2019 外层熔接型铝塑复合管》CJ196《CJ/T 196-2019 膜片式快开排泥阀》CJ198《CJ/T 198-2019 燃烧器具用不锈钢排气管》CJ199《CJ/T 199-2019 燃烧器具用不锈钢给排气管》CJ200《CJ/T 200-2019 城镇供热预制直埋蒸气保温管技术条件》CJ201《CJ/T 201-2019 城市客车乘客门装置》CJ202《CJ/T 202-2019 建筑排水系统吸气阀》CJ203《CJ/T 203-2000 无堵塞泵》CJ204《CJ/T 204-2000 生活饮用水紫外线消毒》CJ205《CJ/T 205-2000 建筑给水交联聚乙烯(PE-X)管材》CJ206《CJ/T 206-2019 城市供水水质标准》CJ207《CJ/T 207-2019 无障碍低地板、低人口城市客车技术要求》CJ208《CJ/T 208-2019 可曲挠橡胶接头》CJ209《CJ/T 209-2019 喷泉喷头》CJ210《CJ/T 210-2019 无规共聚聚丙烯(PP-R)塑铝稳态复合管》CJ211《CJ/T 211-2019 聚合物基复合材料检查井盖》CJ212《CJ/T 212-2019 聚合物基复合材料水箅》CJ213《CJ/T 213-2019 城市市政综合监管信息系统:单元网格划分与编码规则》CJ214《CJ/T 214-2019 城市市政综合监管信息系统:管理部件和事件分类、编码及数据要求》CJ215《CJ/T 215-2019 城市市政综合监管信息系统:地理编码》CJ216《CJ/T 216-2019 给排水用软密封闸阀》CJ217《CJ/T 217-2019 排水管道复合式高速进排气阀》CJ218《CJ/T 218-2019 给水用丙烯酸共聚聚氯乙烯管材及管件》CJ219《CJ/T 219-2019 水力控制阀》CJ220《CJ/T 220-2019 动物观赏导向标志用图形符号》CJ221《CJ/T 221-2019 城市污水处理厂污泥检验方法》CJ222《CJ/T 222-2019 家用燃气燃烧器具合格评定程序及检验规则》 CJ223《CJ/T 223-2019 合金镀层(HA)钢管及管件》CJ224《CJ/T 224-2019 电子远传水表》CJ225《CJ/T 225-2019 埋地排水用钢带增强聚乙烯(PE)螺旋波纹管》 CJ227《CJ/T 227-2019 垃圾生化处理机》CJ228《CJ/T 228-2019 燃气采暖热水炉》CJ229《CJ/T 229-2019 城市客车发光二极管显示屏》CJ230《CJ/T 230-2019 城市客车缓速制动性能要求与试验方法》CJ231《CJ/T 231-2019 排水用硬聚氯乙烯(PVC-U)玻璃微珠复合管材》 CJ232《CJ/T 232-2019 薄壁不锈钢内插卡压式管材及管件》CJ233《CJ/T 233-2019 建筑小区排水用塑料检查井》CJ234《CJ/T 234-2019 垃圾填埋场用高密度聚乙烯土工膜》CJ235《CJ/T 235-2019 立式长轴泵》CJ236《CJ/T 236-2019 城市轨道交通站台屏蔽门》CJ237《CJ/T 237-2019 钢塑复合压力管用双热熔管件》CJ238《CJ/T 238-2019 耐热聚乙烯(PF-RT)塑铝稳态复合管》CJ239《CJ/T 239-2019 城镇污水处理厂污泥处置分类》CJ240《CJ/T 240-2019 城市客车气压盘式制动器》CJ241《CJ/T 241-2019 饮用净水水表》CJ242《CJ/T 242-2019 城市客车外置式制动间隙自动调整臂》CJ243《CJ/T 243-2019 建设事业集成电路(IC)卡产品检测》CJ244《CJ 244-2019 游泳池水质标准》CJ245《CJ/T 245-2019 虹吸雨水斗》CJ246《CJ/T 246-2019 城镇供热预制直埋蒸汽保温管管路附件技术条件》 CJ247《CJ/T 247-2019 城镇污水处理厂污泥泥质》CJ248《CJ 248-2019 城镇污水处理厂污泥处置园林绿化用泥质》CJ249《CJ/T 249-2019 城镇污水处理厂污泥处置混合填埋泥质》CJ250《CJ/T 250-2019 建筑排水用高密度聚乙烯(HDPE)管材及管件》 CJ251《CJ/T 251-2019 铜分集水器》CJ252《CJ/T 252-2019 城镇排水自动监测系统技术要求》CJ253《CJ/T 253-2019 钢塑复合压力管用管件》CJ254《CJ/T 254-2019管网叠压供水设备》CJ255《CJ/T 255-2019导流式速闭止回阀》CJ256《CJ/T 256-2019分体先导式减压稳压阀》CJ257《CJ/T 257-2019铝合金及不锈钢闸门》CJ258《CJ/T 258-2019 纤维增强无规共聚聚丙烯复合管》CJ259《CJ/T 259-2019城镇燃气用二甲醚》CJ260《CJ/T 260-2019 电子式热分配表》CJ261《CJ/T 261-2019 给水排水用蝶阀》CJ262《CJ/T 262-2019 给水排水用直埋式闸阀》CJ263《CJ/T 263-2019 水处理用刚玉微孔曝气器》CJ264《CJ/T 264-2019 水处理用橡胶膜微孔曝气器》CJ265《CJ/T 265-2019 无负压给水设备》CJ266《CJ 266-2019 饮用水冷水水表安全规则》CJ267《CJ/T 267-2019 混合动力电动城市客车》CJ268《CJ/T 268-2019 城市客车燃油加热器》CJ269《CJ/T 269-2019 城市客车乘客门装置用电控换向阀》CJ270《CJ/T 270-2019 聚乙烯塑钢缠绕排水管》CJ271《CJ/T 271-2019 蒸发式热分配表》CJ272《CJ/T 272-2019 给水用抗冲改性聚氯乙烯(PVC?M)管材及管件》 CJ273《CJ/T 273-2019聚丙烯静音排水管材及管件》CJ274《CJ 274-2019 城镇燃气调压器》CJ275《CJ/T 274-2019 城镇燃气调压箱》CJ276《CJ/T 276-2019 垃圾填埋场用线性低密度聚乙烯土工膜》CJ277《CJ/T 277-2019 城市道路清扫面积测算方法》CJ278《CJ/T 278-2019 建筑排水用聚丙烯(PP)管材和管件》CJ279《CJ/T 279-2019 生活垃圾渗滤液碟管式反渗透处理设备》CJ280《CJ/T 280-2019 塑料垃圾桶通用技术条件》CJ281《CJ/T 281-2019 居住区DCN控制网络通信协议》CJ282《CJ/T 282-2019 蝶形缓闭回阀》CJ283《CJ/T 283-2019 偏心半球阀》CJ284《CJ/T 284-2019 φ5.5m~φ7m土压平衡盾构机(软土)》CJ285《CJ/T 285-2019 城市轨道交通浮置板橡胶隔振器》CJ286《CJ/T 286-2019 城市轨道交通轨道橡胶减振器》CJ287《CJ/T 287-2019 跨座式单轨交通午辆通用技术条件》CJ288《CJ/T 288-2019 预制双层不锈钢烟道及烟囱》CJ289《CJ/T 289-2019 城镇污水处理厂污泥处置制砖用泥质》CJ290《CJ/T 290-2019 城镇污水处理厂污泥处置单独焚烧用泥质》 CJ291《CJ/T 291-2019 城镇污水处理厂污泥处置土地改良用泥质》 CJ292《CJ/T 292-2019 城市市政综合监管信息系统绩效评价》CJ293《CJ/T 293-2019 城市市政综合监管信息系统监管数据无线采集设备》 CJ294《CJ/T 294-2019 转碟曝气机》CJ295《CJ/T 295-2019 餐饮废水隔油器》CJ296《CJ/T 296-2019 燃气用非定尺不锈钢波纹管及接头》CJ297《CJ/T 297-2019 桥梁缆索用高密度聚乙烯护套料》CJ298《CJ/T 298-2019 城镇供水营业收费管理信息系统》CJ299《CJ/T 299-2019 水处理用人工陶粒滤料》CJ300《CJ/T 300-2019 建筑给水水锤吸纳器》CJ301《CJ/T 301-2019 垃圾填埋场压实机技术要求》CJ302《CJ/T 302-2019 箱式无负压供水设备》CJ303《CJ/T 303-2019 稳压补偿式无负压供水设备》CJ304《CJ/T 304-2019 建设事业CPU卡操作系统技术要求》CJ305《CJ/T 305-2019 家用燃气灶具陶瓷面板》CJ306《CJ/T 306-2019 建设事业非接触式CPU卡芯片技术要求》CJ307《CJ/T 307-2019 城镇排水设施气体的检测方法》CJ308《CJ/T 308-2019 水井用硬聚氯乙烯(PVC-U)管材》CJ309《CJ/T 309-2019 城镇污水处理厂污泥处置农用泥质》CJ310《CJ/T 310-2019 城市轨道交通直线电机车辆通用技术条件》CJ311《CJ/T 311-2019 城市轨道交通直线感应牵引电机技术条件》CJ312《CJ/T 312-2019 建筑排水管道系统噪声测试方法》CJ313《CJ/T 313-2019 生活垃圾采样和分析方法》CJ314《CJ/T 314-2019 城镇污水处理厂污泥处置》CJ315《CJ/T 315-2019 城市市政综合监管信息系统监管案件立案、处置与结案》CJ316《CJ/T 316-2019 城镇供水服务》CJ317《CJ/T 317-2019 地源热泵系统用聚乙烯管材及管件》CJ318《CJ/T 318-2019 大阳能热水系统用耐热聚乙烯管材》CJ319《CJ/T 319-2019 脚踏阀门》CJ320《CJ/T 320-2019 超高分子聚乙烯复合管材》CJ321《CJ/T 321-2019 铝合金衬塑复合管材与管件》CJ322《CJ/T 322-2019 水处理用臭氧发生器》CJ323《CJ/T 323-2019 超高分子聚乙烯钢骨架复合管材》CJ324《CJ/T 324-2019 真空破坏器》CJ326《CJ/T 326-2019 市政排水用塑料检查井》CJ327《CJ/T 327-2019 球墨铸铁复合树脂检查井盖》CJ328《CJ/T 328-2019 球墨铸铁复合树脂水箅》CJ329《CJ/T 329-2019 埋地双平壁钢塑复合缠绕排水管》CJ330《CJ/T 330-2019 电子标签通用技术要求》CJ331《CJ/T 331-2019 城市公用事业互连互通卡通用技术要求》CJ332《CJ/T 332-2019 城市公用事业互连互通卡清分清算技术要求》 CJ333《CJ/T 333-2019 城市公用事业互连互通卡密钥及安全技术要求》 CJ334《CJ/T 334-2019 集成电路(IC)卡燃气流量计》CJ335《CJ/T 335-2019 城镇燃气切断阀和放散阀》CJ336《CJ/T 336-2019 冷凝式家用燃气快速热水器》CJ337《CJ/T 337-2019 城镇污水热泵热能利用水质》CJ338《CJ/T 338-2019 生活垃圾转运站压缩机》CJ339《CJ/T 339-2019 快速公共汽车交通(BRT)公共汽车通用技术要求》 CJ341《CJ/T 341-2019 混空轻烃燃气》CJ342《CJ/T 342-2019 快速公共汽车交通(BRT)站台屏蔽门》CJ343《CJ 343-2019 污水排入城镇下水道水质标准》CJ344《CJ/T 344-2019 中间腔空气隔断型倒流防止器》CJ345《CJ/T 345-2019 生活饮用水净水厂用煤质活性》CJ347《CJ/T 347-2019 家用燃气报警器及传感器》CJ348《CJ/T 348-2019 数字社区管理与服务分类与代码》CJ349《CJ/T 349-2019 数字社区管理与服务网格划分与编码规则》 CJ350《CJ/T 350-2019 电动公共汽车通用技术条件》CJ351《CJ/T 351-2019 高位调蓄叠压供水设备》CJ352《CJ/T 352-2019 微机控制变频调速给水设备》CJ353《CJ/T 353-2019 城市轨道交通车辆贯通道技术条件》CJ354《CJ/T 354-2019 城市轨道交通车辆空调、采暖及通风装置技术条件》 CJ355《CJ/T 355-2019 小型生活污水处理成套设备》CJ358《CJ/T 358-2019 非开挖铺设用高密度聚乙烯排水管》CJ359《CJ/T 359-2019 铝合金水表壳及管接件》CJ360《CJ/T 360-2019 下水道及化粪池气体监测技术要求》CJ361《CJ/T 361-2019 水景用发光二极管(LED)灯》CJ362《CJ/T 362-2019 城镇污水处理厂污泥处置林地用泥质》CJ371《CJ/T 371-2019 垃圾填埋场用高密度聚乙烯管材》CJ372《CJ/T 372-2019 冷热水用无规共聚聚丁烯管材及管件》CJ373《CJ/T 373-2019 活塞平衡式水泵控制阀》CJ374《CJ/T 374-2019 城镇桥梁球形钢支座》CJ375《CJ/T 375-2019 中低速磁浮交通车辆通用技术条件》CJ376《CJ/T 376-2019 居住区数字系统评价标准》CJ383《CJ/T 383-2019 电子直读式水表》CJ385《CJ/T 385-2019 城镇燃气用防雷接头》CJ386《CJ/T 386-2019 集成灶》CJ393《CJ/T 393-2019 家用燃气器具旋塞阀总成》CJ409《CJ/T 409-2019 玻璃钢化粪池技术要求》CJ422《CJ/T 422-2019 城市市政综合监管信息系统管理部件和事件信息采集》CJ423《CJ/T 423-2019 城市市政综合监管信息系统模式验收》CJ429《CJ/T 429-2019 汽车库和停车场车位引导装置》CJ459《CJ/T 459-2019 推雪铲》CJ3024.3《CJ/T 3024.3-1998 城市公共交通客运服务:城市出租汽车》 CJ3062《CJ/T 3062-1996 燃气燃烧器具使用交流电源的安全通用要求》 CJ3063《CJ/T 3063-1997 给排水用超声流量计》CJ3065《CJ/T 3065-1997 弧形格栅除污机》CJ3066《CJ/T 3066-1997 内磁水处理器》CJ3067《CJ/T 3067-1997 液压水位控制阀》CJ3068《CJ/T 3068-1997 高分子烧结微孔管式过滤器》CJ3070《CJ/T 3070-1999 城市用水分类标准》CJ3072《CJ/T 3072-1998 家用燃气器具悬塞阀总成》CJ3074《CJ/T 3074-1998 家用燃气燃烧器具电子控制器》CJ3077《CJ3077-1998 建筑缆索用钢丝》CJ3084《CJ/T 3084-1999 燃油壳管式热水机组》》CJ5022《CJ/T 5022-1997 双层客车技术条件》CJ5023《CJ/T 5023-1997 无轨电车铝合金侧窗》CJ5024《CJ5024-1997 电子式出租汽车计价器》CJ5025《CJ/T 5025-1997 垃圾容器五吨车用集装箱》CJJ1《CJJ 1-2019 城镇道路工程施工与质量验收规范》CJJ2《CJJ 2-2019 城市桥梁工程施工与质量验收规范》CJJ6《CJJ6-2019 城镇排水管道维护安全技术规程》CJJ7《CJJ7-2019 城市工程地球物理探测规范》CJJ8《CJJ8-1999 城市测量规范》1CJJ15《CJJ/T 15-2019 城市道路公共交通站、场、厂工程设计规范》 CJJ17《CJJ17-2019 城市生活垃圾填埋技术标准》CJJ28《CJJ28-2019 城镇供热管网工程施工及验收规范》CJJ29《CJJ29-1998 建筑排水硬聚氯乙烯管道工程技术规程》CJJ30《CJJ30-2019 粪便处理厂运行维护及其安全技术规程》CJJ33《CJJ33-2019 城镇燃气输配工程施工及验收规程》CJJ34《CJJ34-2019 城市热力网设计规范》CJJ36《CJJ36-2019 城市道路养护技术规程》CJJ37《CJJ37-2019 城市道路工程设计规范》CJJ45《CJJ45-2019 城市道路照明设计标准》CJJ47《CJJ47-2019 生活垃圾转运站技术规范》CJJ51《CJJ51-2019 城镇燃气设施运行、维护和抢修安全技术规程》 CJJ58《CJJ58-2019 城镇供水厂运行、维护及安全技术规程》CJJ61《CJJ61-2019 城市地下管线探测技术规程》CJJ62《CJJ62-1995 房屋渗漏修缮技术规程》CJJ63《CJJ 63-2019 聚乙烯燃气管道工程技术规程》CJJ64《CJJ64-2019 粪便处理厂设计规范》CJJ65《CJJ65-2019 环境卫生术语标准》CJJ73《CJJ/T 73-2019卫星定位城市测量技术规范》CJJ74《CJJ74-1999 城镇地道桥顶进施工及验收规程》CJJ75《CJJ75-1997 城市道路绿化规划与设计规范》CJJ76《CJJ76-1998 城市地下水动态观测规程》CJJ82《CJJ82-1999 城市绿化工程施工及验收规范》CJJ83《CJJ83-1999 城市用地竖向规划规范》CJJ90《CJJ 90-2019 生活垃圾焚烧处理工程技术规范》CJJ91《CJJ91-2002 园林基本术语标准》CJJ92《CJJ92-2002 城市供水管网漏损控制及评定标准》CJJ94《CJJ94-2019城镇燃气室内工程施工与质量验收规范》CJJ95《CJJ95-2019 城镇燃气燃气埋地钢制管道腐蚀控制技术规程》 CJJ96《CJJ96-2019 地铁限界标准》CJJ99《CJJ99-2019 城市桥梁养护技术规范》CJJ100《CJJ100-2019 城市基础地理信息系统技术规范》CJJ101《CJJ101-2019 埋地聚乙烯给水管道工程技术规程》CJJ102《CJJ/T102-2019 城市生活垃圾分类及其评价指标》CJJ103《CJJ 103-2019 城市地理空间框架数据标准》CJJ104《CJJ 104-2019 城镇供热直埋蒸汽管道技术规程》CJJ105《CJJ105-2019 城镇供热管网结构设计规范》CJJ106《CJJ/T 106-2019 城市市政综合监管信息系统技术规范》CJJ107《CJJ/T107-2019 生活垃圾填埋场无害化评价标准》CJJ108《CJJ108-2019 城市道路除雪作业技术规程》CJJ109《CJJ 109-2019 生活垃圾转运站运行维护技术规程》CJJ110《CJJ110-2019 管道直饮水系统技术规程》CJJ111《CJJ/T111-2019 预应力混凝土桥梁预制节段逐跨拼装施工技术规程》CJJ112《CJJ 112-2019 生活垃圾卫生填埋场封场技术规程》CJJ113《CJJ 113-2019 生活垃圾卫生填埋场防渗系统工程技术规程》 CJJ114《CJJ/T 114-2019 城市公共交通分类标准》CJJ115《CJJ/T 115-2019 房地产市场信息系统技术规范》CJJ116《CJJ/T 116-2019 建设领域应用软件测评通用规范》CJJ117《CJJ/T 117-2019 建设电子文件与电子档案管理规范》CJJ119《CJJ/T 119-2019 城市公共交通工程术语标准》CJJ120《CJJ 120-2019 城镇排水系统电气与自动化工程技术规程》CJJ121《CJJ/T 121-2019 风景名胜区分类标准》CJJ123《CJJ 123-2019 镇(乡)村给水工程技术规程》CJJ124《CJJ 124-2019 镇(乡)村排水工程技术规程》CJJ125《CJJ/T 125-2019 环境卫生图形符号标准》CJJ126《CJJ/T 126-2019 城市道路清扫保洁质量与评价标准》CJJ127《CJJ 127-2019 建筑排水金属管道工程技术规范》CJJ128《CJJ 128-2019 生活垃圾焚烧厂运行维护与安全技术规程》CJJ129《CJJ 129-2019 城市快速路设计规程》CJJ130《CJJ/T 130-2019 燃气工程制图标准》CJJ131《CJJ 131-2019 城镇污水厂污泥处理技术规程》CJJ132《CJJ 132-2019 城乡用地评定标准》CJJ133《CJJ 133-2019 生活垃圾填埋场填埋气体收集处理及利用工程技术规范》CJJ134《CJJ 134-2019 建筑垃圾处理技术规范》CJJ135《CJJ/T 135-2019 透水水泥混凝土路面技术规程》CJJ136《CJJ 136-2019快速公共汽车交通系统设计规范》CJJ137《CJJ/T 137-2019 生活垃圾焚烧厂评价标准》CJJ138《CJJ 138-2019 城镇地热供热工程技术规程》CJJ139《CJJ 139-2019 城市桥梁桥面防水工程技术规程》CJJ140《CJJ 140-2019 二次供水工程技术规程》CJJ141《CJJ/T141-2019建设项目交通影响评价技术标准》CJJ143《CJJ 143-2019 埋地塑料排水管道工程技术规程》CJJ144《CJJ/T 144-2019 城市地理空间信息共享与服务元数据标准》 CJJ145《CJJ 145-2019 燃气冷热电三联供工程技术规程》CJJ147《CJJ/T 147-2019 城镇燃气管道非开挖修复更新工程技术规程》 CJJ148《CJJ/T 148-2019 城镇燃气加臭技术规程》CJJ149《CJJ 149-2019 城市户外广告设施技术规范》CJJ150《CJJ 150-2019 生活垃圾渗沥液处理技术规范》CJJ153《CJJ/T 153-2019 城镇燃气标志标准》CJJ166《CJJ 166-2019 城市桥梁抗震设计规范》CJJ200《CJJ 200-2019 城市供热管网暗挖工程技术规程》CJJ203《CJJ203-2019 城镇供热系统抢修技术规程》CJJ205《CJJ 205-2019 生活垃圾收集运输技术规程》CJJ206《CJJ/T 206-2019 城市道路低吸热路面技术规范》CJJ215《CJJ/T 215-2019 城镇燃气管网泄漏检测技术规程》CJJ218《CJJ/T 218-2019城市道路彩色沥青混凝土路面技术规程》 CJJ220《CJJ/T 220-2019 城镇供热系统标志标准》CJJ226《CJJ/T 226-2019 城镇供水管网抢修技术规程》CJJ227《CJJ/T 227-2019 城市照明自动控制系统技术规范》JGJ250《JGJ/T 250-2019 建筑与市政工程施工现场专业人员职业标准》 JGJ266《JGJ 266-2019 市政架桥机安全使用技术规程》CE401《CECS 401-2019 城市地下空间开发建设管理标准》CE402《CECS 402-2019 城市地下空间运营管理标准》DB31/T 685《DB31/T 685-2019 养老机构设施与服务要求》。
污泥脱水用带式压滤机
Belt filter press for sludge dewatering
CJ/T 80-1999
目次
1 主题内容与适用范围 (1)
2 引用标准 (1)
3 基本参数 (1)
4 型号编制 (2)
5 技术要求 (3)
6 试验和检验规则 (4)
7 标志、包装、运输、贮存 (4)
附录A 带式压滤机试验(补充件) (5)
1 主题内容与适用范围
本标准规定了污泥脱水用带式压滤机(以下简称:带式压滤机)的基本参数、型号编制、技术要求、试验和检验规则、标志、包装、运输、贮存。
本标准适用于带式压滤机的设计、制造、检验与验收。
2 引用标准
JB 8 产品标牌
GB 1184 形状和位置公差,未注公差的规定
JB 2855 机床涂漆技术条件
GBn 193 出口机械、电工、仪器仪表产品包装通用技术条件
GB 191 包装储运图示标志
GB 5226 机床电气设备通用技术条件
3 基本参数
3.1 带式压滤机的基本参数应符合表1规定。
2
表1 滤带宽度B ,mm
滤带速度v ,m/min
500
1000
1500
2000
2500
3000
0.5~6 3.2 带式压滤机用于城市污水处理厂时,污泥脱水技术性能应符合表2规定;当用于其他污泥脱水时,其技术性能应通过试验确定。
表2
4 型号编制
4.1 型号表示方法:型号应由以下4个部分组成。
4.1.1 控制方式代号按滤带张紧的控制方式分类,其表示方法应符合表3规定。
表3
4.1.2 滤带宽度应符合表1规定。
4.1.3 改型代号按改型的先后顺序分别以字母 A、B、C……表示,改型的含义是指带式压滤机的结构、性能有重大改进和提高,并按新产品重新设计、试制和鉴定时方可用此代号。
4.2 标记示例
气动控制,滤带宽度1000mm,第一次修改设计过的带式压滤机:
WDYQ1000A
5 技术要求
5.1 带式压滤机应符合本标准要求,并按照规定程序批准的图纸及技术文件制造。
5.2 带式压滤机选用的材料、外购件等应有供应厂的合格证明,无合格证明时,制造厂须经检验合格方可使用。
5.3 所有的零件、部件必须经检验合格,方可进行装配。
5.4 焊接件各部焊缝应平整、光滑,不应有任何裂缝、未熔合、未焊透等缺陷。
5.5 金属辊表面的镀层或涂层应均匀、牢固、耐蚀、耐磨,衬胶的金属辊其胶层与金属表面应紧密贴合、牢固、不得脱落。
5.6 设备安装后所有辊子之间的轴线应平行,平行度不得低于 GB1184中的10级精度。
5.7 直径大于300mm 的辊子应使用重心平衡法进行静平衡试验。
辊子安装后要求在任何位置都应处于静止状态。
5.8 按要求涂底漆和面漆,涂漆应均匀、细微、光亮、完整,不得有粗糙不平,更不得有漏漆等现象,漆膜应牢固,无剥落、裂纹等缺陷。
其质量应符合JB2855的规定。
5.9 空运转连续运行时间不少于2h,并应符合下列要求:
5.9.1 主传动装置
a.电机、减速器、联轴器、链条等转动及传动部件,运转应平稳,无异常现象;
b.调速器的数字指示值应和实际转数相符。
5.9.2 滤带速度
a.在要求的速度范围内能平稳调速;
b .滤带速度显示系统的读数应和滤带实际速度相符。
5.9.3 轴承及润滑
a.各润滑部位应涂注润滑油脂;
b .运转中轴承部位不得有不正常的噪音,滚动轴承的温度不应高于70℃,温升不应超过40℃;滑动轴承的温度不应高于60℃,温升不应超过30℃。
5.9.4 气动或液压系统
a.管路及各接头连接处,不得漏气或漏油;
b .压力表、注油器、减压阀、换向阀等各气动元件或液压元件工作正常。
5.9.5 滤带运行情况
a.滤带矫正装置动作应灵活可靠。
当滤带偏离中心线15mm 时,调整控制器的滤带矫正装置应自动工作;
b .滤带在运行中偏离中心线不得大于40mm。
5.9.6 污泥和药液混合搅拌器
电机、减速器及搅拌桨运转应平稳,无异常现象。
5.10 对滤带的要求
5.10.1 滤带应选用强度高、透气度好、不易堵塞、表面光滑、固体回收率高的成形网。
5.10.2 滤带接口处表面应光滑,接口处的拉伸强度不得低于滤带拉伸强度70%。
5.10.3 滤带宽度允许公差值为±10mm,长度允许公差值为±150mm,滤带两边周长误差为±0.05%,滤带伸长率为0.65%~0.85%。
5.10.4 滤带的使用寿命应大于10000h。
5.11 检查安全保护装置
a.当水压不足,冲洗水系统不能正常工作时,应自动停机;
b.当气源压力或液压系统的压力不足,不能保证主机正常工作时,应自动停机;
c.运转中,当滤带偏离中心位置超过40mm 时,应自动停机;
d.各电气开关、按钮应安全可靠。
6 试验和检验规则
6.1 设备在出厂前应按5.9进行空运转试验和设备基本参数及尺寸规格的检验,合格后方可出厂。
6.2 空运转前应对设备及附属装置进行全面检查,符合技术要求后方可进行运转。
6.3 空运转试验时,检验的项目应包括5.9、5.11的内容。
6.4 电气系统的检验应按 GB5226中的规定进行。
6.5 新产品及经过修改设计的改型产品,必须进行污泥脱水试验,测试项目及要求按附录 A中的规定进行。
7 标志、包装、运输、贮存
7.1 每台设备应在明显部位固定标牌,其型式与尺寸应符合JB 8中的规定。
标牌内容如下:
a.产品型号、名称;
b.主要技术特性:
滤带宽度(mm);
滤带调速范围(m/min);
主机传动功率(kW);
重量(kg);
外型尺寸:长×宽×高(mm);
c.制造厂名称;
d.出厂日期;
e.出厂编号。
7.2 产品视大小、复杂程度,可作单箱或分箱包装,并适合陆路和水路运输的要求;机器外露加工表面应涂以防锈脂,并用油纸或塑料包扎;机器或零、部件在箱内应固定牢固,木箱应能通风防雨。
出口产品的包装应符合 GBn 193《出口机械、电工、仪器、仪表产品包装通用技术条件》的规定。
7.3 包装箱箱面的内容如下:
a.产品型号、名称;
b.出厂编号及包装箱编号;
c.包装箱外形尺寸:长×宽×高(mm);
d.净重与毛重(kg);
e.到站与收货单位;
4
f.发站与发货单位;
g.包装储运图示标志。
7.4 包装储运图示标志应符合 GB191的规定。
7.5 随机文件应用塑料袋封装,并固定在第一个包装箱内,随机文件应包括:
a.装箱单;
b.产品质量证明书;
c.产品使用说明书。
7.6 带式压滤机应贮存在干燥、通风、有遮蔽的场所。
滤带贮存时,严禁高温,并避免长时间曝晒,及附近有明火作业,宜贮存在15~35℃,相对湿度不大于70%的仓库里。
附录A 带式压滤机试验(补充件)
A.1 适用范围
本标准规定了带式压滤机进行污泥脱水试验的测试项目及要求,适用于带式压滤机的检验及验收。
A.2 带式压滤机污泥脱水试验测试的项目
A.2.1 带式压滤机入口处污泥的流量。
A.2.2 带式压滤机入口处污泥的性质:
a.污泥含水率;
b.灼烧残渣;
c.灼烧失量;
d.pH;
e.有机物含量与无机物含量的比例。
A.2.3 带式压滤机出口处滤饼的产量。
A.2.4 带式压滤机出口处滤饼的性质:
a. 滤饼的厚度;
b.含水率;
c.灼烧残渣;
d.灼烧失量。
A.2.5 带式压滤机排出滤液(包括冲洗水)的流量。
A.2.6 带式压滤机排出滤液(包括冲洗水)的性质:
a.SS;
b.pH;
c.CODcr;
d.BOD5。
A.2.7 滤带冲洗水的流量。
A.2.8 滤带冲洗水的压力。
A.2.9 滤带冲洗水的性质:
a.SS;
b.pH。
A.2.10 带式压滤机使用药剂(絮凝剂)的性质:
a.名称;
b.成分;
c.浓度。
A.2.11 药剂(絮凝剂)的加入量。
A.2.12 投药比(纯药量/干泥量)。
A.2.13 带式压滤机工作时滤带的张力。
A.2.13 滤带的速度。
A.2.15 滤带的型号及性质。
A.2.16 带式压滤机固体物质回收率。
A.2.17 带式压滤机动力消耗量。
A.3 带式压滤机必须在设备及污泥处于稳定状态运行时,方可进行上述项目的测试
A.4 各测定项目的试验次数在同一运行条件下,原则上连续测三次,若有必要可再增加次数。
另外,在水(液)质测验时,可通过混合试样的方法,采取适宜水样。
表A1 带式压滤机污泥脱水性能测试记录
6
表A2 测试报告。