机房CAD设计说明
- 格式:docx
- 大小:20.15 KB
- 文档页数:3
机房电气施工设计方案全套CAD图纸首先,让我们来了解一下这套 CAD 图纸所涵盖的范围和主要组成部分。
整套图纸包括了机房的供配电系统设计、照明系统设计、接地与防雷系统设计以及弱电布线系统设计等多个方面。
在供配电系统设计方面,图纸清晰地展示了市电引入的路径和方式,以及备用电源系统的配置。
市电通常会通过专用的配电柜进行分配,以满足不同设备的用电需求。
同时,备用电源系统如 UPS(不间断电源)会在市电出现故障时迅速接管供电,确保关键设备不会因停电而中断运行。
UPS 的容量和型号选择会根据机房设备的负载特性和停电容忍时间来确定。
照明系统设计在图纸中也有详细体现。
机房内的照明需要满足一定的照度要求,同时要避免产生眩光和阴影,以保障工作人员的视觉舒适度和操作准确性。
一般会采用高效节能的 LED 灯具,并根据机房的布局和功能区域进行合理布置,包括普通照明和应急照明。
接地与防雷系统是保障机房设备和人员安全的重要环节。
图纸中明确标注了接地系统的类型(如联合接地或独立接地)、接地电阻的要求以及接地极的布置方式。
防雷系统则包括了外部防雷(如避雷针、避雷带)和内部防雷(如浪涌保护器)的设计,以有效防护雷电对机房设备的损害。
弱电布线系统设计在图纸中同样占据重要位置。
这包括网络布线、电话布线、监控布线等。
线缆的走向、桥架的布置以及配线架的位置都有精确的标注,以确保信号传输的稳定和高效,同时便于后期的维护和管理。
接下来,我们详细探讨一下各个系统设计的具体要点和注意事项。
供配电系统设计时,要充分考虑机房设备的用电负荷,并预留一定的余量以满足未来的扩展需求。
配电柜的布局要合理,便于操作和维护。
线缆的选型要符合电流承载能力和防火要求,并且要保证良好的绝缘性能。
照明系统设计不仅要满足照度标准,还要考虑灯具的显色指数和色温,以提供适宜的光环境。
应急照明系统要能够在市电中断时自动启动,并且持续时间要满足相关规定。
接地与防雷系统的设计必须严格按照国家标准和规范进行。
cad工程设计方案讲解一、前言CAD(Computer-Aided Design)即计算机辅助设计,是一种利用计算机对工程设计进行辅助的技术。
CAD工程设计方案则是指利用CAD软件进行工程设计的方案,包括建筑设计、机械设计、电子设计等各个领域。
本文将以建筑设计为例,讲解CAD工程设计方案的步骤和流程。
二、CAD工程设计方案步骤1. 确定设计要求在进行CAD工程设计之前,首先要明确设计的要求,包括建筑的用途、功能、规模、风格等,以及相关的技术标准和规范。
这些都将直接影响到设计的方向和内容。
2. 收集资料在确定了设计要求后,需要进行资料的收集,包括现场测量数据、建筑结构和材料的参数、环境条件等。
同时,还需要收集相关的设计资料和参考资料,以便于进行设计的参考和借鉴。
3. 制定设计方案根据所收集到的资料和要求,制定初步的设计方案,包括建筑的布局、结构、外观等。
在进行设计方案制定时,需要进行多方案比较和分析,以选择最合适的设计方案。
4. 进行CAD设计一旦确定了初步的设计方案,就可以进行CAD设计了。
在CAD设计过程中,需要进行建筑的绘制、布局、尺寸的确定等工作,同时还需要进行各个部分的建模和装配。
在CAD设计过程中,需要将建筑的各个部分进行参数化设计,以便于后续的修改和调整。
5. 进行模拟与分析在CAD设计完成后,需要进行一系列的模拟和分析工作,以进行建筑结构的力学分析、光照分析、能耗分析等。
通过这些模拟和分析,可以对建筑的各个方面进行评估和优化。
6. 优化设计方案基于以上的分析结果,根据建筑的实际情况进行设计方案的优化,包括结构的优化、材料的选择、施工工艺的优化等。
需要注意的是,设计方案的优化过程需要进行多次的迭代,直到得到最满意的设计方案。
7. 完善设计细节在设计方案优化完成后,需要对设计方案进行细化,包括建筑的各个部分的细节设计、材料的选取、工艺的设计等。
这些细化的设计工作同样需要借助CAD软件进行。
BJ6系列医用电子直线加速器 机房规划设计说明书医科达北研(北京)医疗器械有限公司2007年2月引言国家对放射工作实行许可登记制度。
即用户在使用放疗产品前,必须向当地卫生行政主管部门申请许可(如有放射源,还需到同级公安部门进行登记)。
加速器等放射防护设施的设计(即机房等),必须经当地省、市级放射卫生主管部门会同相关单位审查同意,竣工后须经放射卫生、环境保护等有关部门的验收,获得使用许可证后方可启用。
在实际执行时,用户应按本省、市的具体管理办法进行办理。
用户必须严格执行国家对放射工作人员剂量检测和健康管理的规定。
对已从事和准备从事放射工作的人员,必须接受身体健康状况的检查,并接受放射防护知识培训和法规教育,合格者方可从事放射工作。
如发生重大事故,用户必须立即采取紧急措施控制事故的后果,并向有关卫生、公安部门报告。
《BJ-6B医用加速器机房规划设计说明书》是医科达北研(北京)医疗器械有限公司(以下简称“公司方”)为BJ-6B系列加速器提供的机房规划设计要求。
订购此套设备的用户,需将本说明书提供于机房工程设计部门(以下简称“设计院”),作为设计依据。
同时建议用户将设计结果以书面形式告知公司方,我们将对加速器在医院的输运及安装问题提供咨询意见。
机房工程竣工后,用户需按公司方提供的《机房自检报告》进行自检并交于公司方。
公司方将据此报告协助用户做好供货前的有关准备工作,必要时将派人进行现场指导。
★由于用户的机房选址、建筑布局及放射治疗中的使用情况等原因,致使所需的辐射防护有所不同。
因此,用户在建筑设计院完成初步设计后,必须报当地省、市级放射卫生防护主管部门审批后方可进行施工。
目录2007年2月z BJ-6B 加速器简介及机房屏蔽设计思想1. BJ-6B加速器主要技术指标┅┅┅┅┅┅┅┅┅┅┅┅┅┅┅┅┅┅┅┅┅┅12. 机房辐射屏蔽设计思想┅┅┅┅┅┅┅┅┅┅┅┅┅┅┅┅┅┅┅┅┅┅┅ 1 z机房设计总体要求3. 加速器用房及布局┅┅┅┅┅┅┅┅┅┅┅┅┅┅┅┅┅┅┅┅┅┅┅┅┅24. 机房防护及安全要求┅┅┅┅┅┅┅┅┅┅┅┅┅┅┅┅┅┅┅┅┅┅┅┅2 4.1 机房的屏蔽要求4.2 迷道和防护门要求4.3 人身安全联锁装置5. 输运通道的要求┅┅┅┅┅┅┅┅┅┅┅┅┅┅┅┅┅┅┅┅┅┅┅┅┅┅36. 温度和湿度要求┅┅┅┅┅┅┅┅┅┅┅┅┅┅┅┅┅┅┅┅┅┅┅┅┅┅37. 电源及安全接地要求┅┅┅┅┅┅┅┅┅┅┅┅┅┅┅┅┅┅┅┅┅┅┅┅38. 照明系统┅┅┅┅┅┅┅┅┅┅┅┅┅┅┅┅┅┅┅┅┅┅┅┅┅┅┅┅┅49. 电缆沟要求┅┅┅┅┅┅┅┅┅┅┅┅┅┅┅┅┅┅┅┅┅┅┅┅┅┅┅┅4 z机房具体要求10. 治疗室结构与布局┅┅┅┅┅┅┅┅┅┅┅┅┅┅┅┅┅┅┅┅┅┅┅┅5 10.1 吊车与吊车梁10.2 机坑(设备基础)要求11. 治疗室通风及采暖┅┅┅┅┅┅┅┅┅┅┅┅┅┅┅┅┅┅┅┅┅┅┅┅┅512. 治疗室配套设备┅┅┅┅┅┅┅┅┅┅┅┅┅┅┅┅┅┅┅┅┅┅┅┅┅┅613. 控制室要求┅┅┅┅┅┅┅┅┅┅┅┅┅┅┅┅┅┅┅┅┅┅┅┅┅┅┅┅614. 设备室要求┅┅┅┅┅┅┅┅┅┅┅┅┅┅┅┅┅┅┅┅┅┅┅┅┅┅┅┅7附录1: BJ-6B 加速器机房电器元件及电缆规格、型号一览表附录2: BJ-6B 加速器机房电气原理图附录3: BJ-6B 加速器机房规划图纸(Z2.JF.01~Z2.JF.04)•BJ-6B加速器简介及机房屏蔽设计思想 1. BJ-6B加速器主要技术指标1.1 X线辐射能量:6MV;1.2 X线辐射剂量率: BJ-6B:≥250cGy/min;1.3 辐射源与等中心距离(SSD):100cm;1.4 最大辐射野:40cm×40cm;1.5 楔形治疗角度:0°~60°(任意设置、自动完成);1.6 X辐射自动弧形治疗:每度吸收剂量:1~10cGy/deg;治疗角度:±180°;1.7 均整度:≤1.06;1.8 等中心高度(标称值):1330mm。
计算机机房建设方案(装修部分设计说明)下面结合国家规范及现场实际情况,对机房工程建设中所涉及到的总体设计具体参考以下几点:满足‘五避’的要求,远离容易引起水渗漏的区域,主要是注意周围没有水管,以防水管破裂,而水淹机房和 UPS 房;远离主变、配电间,避免主干电力电缆穿越的场所;房屋结构稳定、房型规则且容易分割;离数据信息点密集区域较近;相对安全、易于管理的区域;避免选择建筑物顶楼、地下室、四面角落等易漏雨、渗水和易遭雷击的单元作计算机机房;机房位置应在建筑物避雷装置的保护范围之内;满足《计算站场地安全要求》和《计算站场地技术要求》;当以上条件不能满足时,应采取补救措施达到机房选址的要求;4百度文库各功能区的位置、信息点的分布;组网的难易程度、日后维护的方便度;成本的高低。
设计思想我公司根据本机房的设计要求和主要设备的功能,机房布局构思简述如下:考虑建筑结构和承重能力,合理设计。
主机房应保持 24 小时恒温恒湿环境,建议采用精密空调,采用标准机组的精密空调,模块化结构,并可利用架空地板作为送风静压箱。
建议对机房做屏蔽处理以减少机房信息泄露和外界对机房的干扰。
防止传导雷、感应雷、开关过电压对机房的危害。
通过公共接地或独立接地把雷电迅速泄向大地,保护机房精密仪器、通讯等设备。
按功能进行分区:机房区(普通设备区):空间面积约㎡,主要用于放置服务器、存储设备、网络设备、通讯设备等所有设备均放置于机柜或机架上。
5百度文库屏蔽室(核心设备区):空间面积约㎡,主要用于放置核心服务器、存储设备、网络设备、通讯设备等所有设备均放置于机柜或机架上。
配电间:空间面积约㎡,主要用于放置配电柜、 UPS 、电池等设备。
操作室:空间面积约㎡,主要用于网络中心值班人员办公,日常数据维护。
气瓶消防间:空间面积约㎡,主要用于放置消防气瓶。
第 2 章机房装修工程机房装修方案公司根据多年来机房建设的经验和在数十个公司成功的机房案例,提出以下机房装修的基本要求及机房的解决方案:计算机房的室内装修工程施工验收主要包括吊顶、隔断墙、门、窗、墙壁装修、地面、活动地板的施工验收及其他室内作业。
机房装修说明1 建设需求公司计划进行企业信息系统的建设,基于该套系统的应用包括数据库应用、邮件系统和Web服务应用。
这些系统计划分布在4台服务器上,邮件系统和Web 服务应用分散存放在各应用服务器机内硬盘中,,数据库服务器则采用的是SQL 数据库系统。
该系统的数据中心,运行着各重要的应用系统,关系到企业各个职能部门的运作和各业务数据的信息的安全,因此本次信息基础架构建设将信息安全、可靠放在首要位置。
为避免关键信息数据破坏或攻击,本项目中还需要对考虑安全防护管理系统的建设,以达到网络安全和链路安全的目的。
2现状分析:鉴于目前公司发展的趋势,根据需要对系统进行前瞻性规划,以满足未来3年内昆山百润业务发展的需要。
为保系统信息平台能稳定运行,网络基础构架和关键业务应用采用热备份冗余设计预防可能的单点故障保证系统的高可靠性和关键业务连续性。
为避免网络攻击或者病毒入侵,导致系统无法正常运转,配置综合网关进行边界防护和网络安全管理,防止内网或者外网对本中心系统产生影响。
本次建设主要包括二个方面,即网络安全防护系统、数据存储备份保护。
3 系统设计构架3.1 网络拓扑图:3.2系统结构说明3.2.1网络系统可靠性网络核心配置两台三层交换机热备互为冗余、接入交换机及服务器分别千兆光纤连接至两台核心交换机。
核心交换机支持传统的STP/RSTP/MSTP生成树协议,还支持SmartLink和RRPP等增强型以太网技术,可以实现毫秒级链路保护倒换,保证高可靠性的网络质量。
此外,针对Smartlink和 RRPP均提供多实例功能,可实现链路负载分担,进一步提高了链路带宽利用率。
互联网接入部分利用企业现有的两条Internet线路连接综合网关实现外部链接的冗余。
3.2.2关键业务应用可靠性企业的数据库(关键业务应用)服务器采用基于存储共享的双机热备方案,两台服务器可以互备或者并行的方式运行。
在工作过程中,两台服务器将以一个虚拟的IP地址对外提供服务,依工作方式的不同,将服务请求发送给其中一台服务器承担。
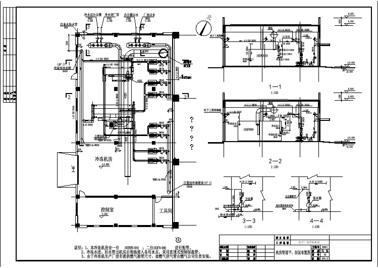
机房CAD设计说明第一篇:机房CAD设计说明1.无线对讲1)整个无线对讲机覆盖系统是包括信号源和天馈室内分布系统两部分组成。
2)系统设置四台数字中继台,通过两路合路器和分路器将两根馈管合为一根馈管,通过弱电井向楼下、楼上延伸,在每层楼通过藉合器分出一根馈线延伸到合适位置设置一套吸盘天线(某些屏蔽楼层可能需要两套天线),做到整个酒店的无线信号全面覆盖,对讲机全网无缝漫游。
3)设计的对讲机覆盖系统的覆盖区域为地下室、建筑内,室外建筑红线范围以内。
4)整个系统共设对讲无线吸顶天线41个2.机房一、工程概况:1、工程项目名称:滑县温尔顿大酒店项目机房建设工程2、工程项目用途:消防控制中心机房和网络中心机房3、工程项目规模:机房建筑面积合计约80平方,消防控制室在酒店一层,网络中心机房位于酒店六楼。
二、设计依据:1、甲方提供机房层建筑平面图及相关要求。
2、计算机机房建设规范《电子计算机机房设计规范》(GB50174-2008)《计算站场地安全要求》(GB9361-1988)《计算站场地技术要求》(GB/T2887-2000)《防静电活动地板通用规范》(SJ/T10796-2001)《电子计算机机房施工及验收规范》(SJ/T30003-1993)《建筑内部装修设计防火规范》(GB50222-1995(2001年修订版))《室内装饰工程质量规范》(GB1838-1993)3、综合布线设计安装规范: 《国际综合布线标准》(EIA-TIA568)《大楼通信综合布线系统》(YD/T926.2-2009)《综合布线系统工程设计规范》(GB50311-2007)《智能建筑设计标准》(GB/T50314-2006)《智能建筑工程质量验收规范》(GB50339-2003)4、配电系统建设规范《民用建筑电气设计规范》(JGJ16-2008)《供配电系统设计规范》(GB50052-2009)《电气装置安装工程电缆线路施工验收规范》(GB50168-2006)5、防雷接地/静电屏蔽建设设计规范《建筑物防雷设计规范》(GB50057-2010)《建筑物电子信息系统防雷技术规范》(GB50343-2004)三、设计范围:1、网络中心机房装修工程设计:包括吊顶、墙面装修、踢脚线、地面、承重架及坡道的设计。
设计说明一、作业设计选题目的和意义本作业共选择了3组图形,每组图形各自独立,互不相联系,图形的绘制能够体现出AUTOCAD不同的操作命令的应用和绘制技巧,提高综合应用各种命令的绘制复杂图形的能力。
二作业设计的计算机环境硬件:CPU内存硬盘软件:1 Windows2003(中文版)2 AutoCAD2007(中文版)三、绘制的基本设置1 图纸幅面:A3 (297*420)2图层设置层号颜色线型线宽用途1 白Continous 默认图形绘制、文字3 青Continous 默认尺寸标注4 红CENTER2 默认中心线、点画线5 蓝Continous 默认图案填充6 白DASHED2 默认虚线四、文字样式1汉字:仿宋2数字:SHX字体五、说明图 1 水泵的三视图,绘制此图应用了圆、直线、图案填充、样条曲线等绘制命令,图形中采用了镜像以及偏移,其他部位应用了对象追踪、块的插入等命令。
图2 平面轮廓图,绘制此图应用了常用的绘制命令,此外采用了倒圆角等修改命令。
图3 电路图,应用了常用绘制命令,采用了打断等命令。
设计说明一、作业设计选题目的和意义本作业共选择了3组图形,每组图形各自独立,互不相联系,图形的绘制能够体现出AUTOCAD不同的操作命令的应用和绘制技巧,提高综合应用各种命令的绘制复杂图形的能力。
二作业设计的计算机环境硬件:CPU内存硬盘软件:1 Windows2003(中文版)2 AutoCAD2007(中文版)三、绘制的基本设置1 图纸幅面:A3 (297*420)2图层设置层号颜色线型线宽用途1 白Continous 默认图形绘制3 绿Continous 默认尺寸标注4 白Continous 0.5mm 边框5 青Continous 默认图案填充6 蓝Continous 默认文字7 红Continous 默认边框8 黄DASHED2 默认虚线9 红CENTER2 默认中心线四、文字样式1汉字:仿宋2数字:SHX字体五、说明图 1 三视图,视图间保持相互投影的关系,绘制此图应用了圆、直线、图案填充等绘制命令,图形中采用了镜像以及偏移,其他部位应用了对象追踪、对象捕捉、极轴等命令。
CAD室内设计规范指南:空间布置要点在进行室内设计时,空间布置是一个至关重要的环节。
借助CAD软件的强大功能,设计师可以更加方便快捷地进行室内空间的规划和布置。
本文将介绍一些CAD室内设计的规范指南,帮助设计师更好地应用CAD软件进行空间布置。
1. 确定空间功能:在进行室内设计前,首先要明确空间的功能。
不同的功能对空间布置和家具摆放都有不同的要求。
如客厅需要考虑沙发与电视的摆放,厨房需要考虑厨具的布置等。
在CAD软件中,可以使用各种符号和标识物品的方式来表示不同区域的功能。
2. 良好的流线布局:流线布局是指在设计中合理规划和安排空间中各个区域之间的交通流线。
设计师需要考虑到人员的进出和活动方向,使得整个空间的使用更加便捷和高效。
在CAD软件中,可以使用路径工具来推算和标示主要的交通流线,以提高空间的使用效果。
3. 合理规划家具布置:家具的选择和布置是影响空间美观和功能使用的关键因素。
在进行CAD室内设计时,可以使用家具库来选择适合空间的家具,并进行适当的摆放。
家具的位置应避免堵塞交通流线,并考虑到使用者的舒适度和便利性。
4. 室内照明设计:照明设计是室内设计中不可忽视的重要环节。
合理的照明可以提升空间的舒适度和美感。
使用CAD软件,可以根据设计需求设置不同类型和亮度的灯光,并通过模拟渲染来预览效果。
此外,还应合理规划插座的位置和开关的数量,以方便照明器具的使用。
5. 注重细节处理:室内设计的细节处理可以让整个空间更加完整和精致。
在CAD软件中,设计师可以利用各种绘图工具进行细节的修饰。
比如,使用线条工具绘制墙面或家具的纹理效果,使用填充工具添加颜色和纹理等。
此外,还可以通过在CAD软件中添加各种纹饰和装饰品来增加空间的艺术感。
6. 三维效果展示:CAD软件提供了强大的三维建模功能,设计师可以通过建模和渲染技术将二维设计图转化成逼真的三维效果图。
这有助于客户更好地理解和评估设计方案。
通过CAD软件的三维效果展示,设计师可以更好地展示空间的实际效果。
机房cad模版
机房CAD模版。
随着科技的不断发展,计算机辅助设计(CAD)在各个行业中的应用越来越广泛。
特别是在机房设计中,CAD模版的使用更是不可或缺。
机房作为信息技术设
备的重要场所,其设计和规划需要精准的CAD模版来辅助完成。
首先,机房CAD模版能够提供标准的机房布局设计,包括机柜的摆放位置、
通风散热设备的位置、电缆线路的布置等。
这些设计需要考虑到设备的安全性、通风散热效果以及便捷的维护和管理,CAD模版可以通过预先设计好的标准模板,
快速完成机房布局设计,提高工作效率。
其次,机房CAD模版还可以提供各种设备的三维模型,包括服务器、交换机、路由器等。
通过CAD软件,设计师可以将这些设备的三维模型导入到设计图纸中,从而更直观地展现机房内部的设备布局和空间利用情况。
这不仅有助于设计师更好地理解和把握机房内部的情况,还可以为后期的设备维护和管理提供更直观的参考。
最后,机房CAD模版还可以提供各种机房相关的标准符号和图例,比如电缆
线路的标识、设备的标识等。
这些标准符号和图例可以使设计图纸更加规范和易读,有助于工程师和施工人员更好地理解设计意图,减少因误解而导致的施工错误。
总的来说,机房CAD模版在机房设计中起着至关重要的作用,它不仅可以提
高设计效率,还可以提供更直观、规范的设计图纸,有助于保障机房设计的质量和安全。
随着科技的不断进步,相信机房CAD模版的应用将会越来越普遍,为机房
设计带来更多的便利和效益。
1.无线对讲
1)整个无线对讲机覆盖系统是包括信号源和天馈室内分布系统两部分组成。
2) 系统设置四台数字中继台,通过两路合路器和分路器将两根馈管合为一根馈管,通过弱电井向楼下、楼上延伸,在每层楼通过藉合器分出一根馈线延伸到合适位置设置一套吸盘天线(某些屏蔽楼层可能需要两套天线),做到整个酒店的无线信号全面覆盖,对讲机全网无缝漫游。
3) 设计的对讲机覆盖系统的覆盖区域为地下室、建筑内,室外建筑红线范围以内。
4)整个系统共设对讲无线吸顶天线41个
2.机房
一、工程概况:
1、工程项目名称:滑县温尔顿大酒店项目机房建设工程
2、工程项目用途:消防控制中心机房和网络中心机房
3、工程项目规模:机房建筑面积合计约80平方,消防控制室在酒店一层,网络中心机房位于酒店六楼。
二、设计依据:
1、甲方提供机房层建筑平面图及相关要求。
2、计算机机房建设规范
《电子计算机机房设计规范》(GB50174-2008)
《计算站场地安全要求》(GB9361-1988)
《计算站场地技术要求》(GB/T2887-2000)
《防静电活动地板通用规范》(SJ/T10796-2001)
《电子计算机机房施工及验收规范》(SJ/T30003-1993)
《建筑内部装修设计防火规范》(GB50222-1995(2001年修订版))
《室内装饰工程质量规范》(GB1838-1993)
3、综合布线设计安装规范:
《国际综合布线标准》(EIA-TIA568)
《大楼通信综合布线系统》(YD/T926.2-2009)
《综合布线系统工程设计规范》(GB50311-2007)
《智能建筑设计标准》(GB/T50314-2006)
《智能建筑工程质量验收规范》(GB50339-2003)
4、配电系统建设规范
《民用建筑电气设计规范》(JGJ16-2008)
《供配电系统设计规范》(GB50052-2009)
《电气装置安装工程电缆线路施工验收规范》(GB50168-2006)
5、防雷接地/静电屏蔽建设设计规范
《建筑物防雷设计规范》(GB50057-2010)
《建筑物电子信息系统防雷技术规范》(GB50343-2004)
三、设计范围:
1、网络中心机房装修工程设计:包括吊顶、墙面装修、踢脚线、地面、承重架及坡道的设计。
2、网络中心机房供配电系统的设计:精密空调供电,电源插座,照明与应急照明,电缆管路的设计。
3、网络中心机房环境监控系统的设计:精密空调监测,温湿度的监测,消防系统,漏水系统,门禁系统和视频监控系统。
4、网络中心机房防雷接地系统的设计:防雷系统,接地系统的设计
5、网络中心机房消防系统的设计:七氟丙烷气体灭火控制系统和气体灭火电气控制系统的设计。
6、消防控制中心机房供配电系统的设计:多联机空调的供电。
7、消防控制中心机房环境监控系统的设计:多联机空调监测,温湿度监测,消防系统,漏水系统,门禁系统和视频监控系统。
8、消防控制中心机房防雷接地系统的设计:防雷系统,接地系统的设计
9、消防控制中心机房安防系统的设计:监控系统和门禁系统的设计
四、设计方案:
1、计算机弱电机房装修工程设计
机房装修以整洁、明快为主,便于管理。
吊顶:整个机房全部采用600*600mm铝合金0.7mm厚微孔格栅板,其吊顶板表面应平整,不得起尘、变色和腐蚀,内表面应做防尘处理。
地面:整个机房地面找平装修厚度及砂浆配合比按20mm厚1:3水泥砂浆。
采用600*600*30mm防静电活动地板,采用地板钢支架腿支撑。
机柜前方宜安装通风地板,便于机柜内设备散热,其地板表面应清洁、无灰尘、无划痕、无涂层脱落、边条无破损,地板下面应做防尘处理。
地板铺设后做好防静电接地。
墙面:整个机房全部墙面做防尘处理,采用两层墙面抹灰,底层采用大白粉腻子满刮腻子三道,面层厚采用白色乳胶漆刷三遍。
踢脚线:机房全部采用不锈钢踢脚线,采用双层材料装修,基础层采用石膏的复合材料,面层采用0.8mm厚304不锈钢踢脚线,踢脚线高度均为100mm。
坡道:在机房入口处设置坡道
2、接地系统设计
防静电接地:接地连接干线采用截面积为35mm2绝缘铜线从配电柜各汇流母排连接到接地装置相应各点上,接入大地前与其它地线绝缘;地板下采用0.3*30mm 铜箔敷设静电泄流铜箔网,采用3*30mm的铜排铺设等电位铜网、机柜柜体采用6mm2导线相连接达到安全、防静电及一定的屏蔽的效果。
3、机房环境监控系统设计
建设机房环境监控系统的目的是要监测机房内部主要设备的运行情况以及机房的内部工作环境,提高管理人员的事故处理能力和应变速度,使设备工作在安全的环境之下,并可通过各种报警手段把事故隐患消灭于萌芽之中,实现机房维护和管理的无人值守。
机房环境监控系统主要由远程用户计算机,监控主机,计算机网络,智能模块,多设备驱动卡及智能设备等部分组成。
对整个机房的供配电系统,空调系统,温湿度,加湿漏水,门禁系统等情况进行集中自动监控。
系统采用TCP/IP传输网络。
4、机房弱电系统设计
本方案中为避免强电信号对弱电信号的干扰,建议强电下走线、弱电上走线的组合方式,使强电的安全性得到保障。
所有线槽均架空离地面3公分以上以防止水害。
因机房安全要求较高,不相关人员不得随意进入机房,以免发生意外。
门禁能有效控制进入机房的人员,保证设备安全可靠地运行。
在机房内设置摄像头,下班后能让值班人员(保安)随时观察机房动态,以免发生不测。
该系统语大楼监控系统为一个整体,集中管理。
5、机房消防系统设计
机房层均设火灾报警系统,采用烟,温感探头,主机设在该楼值班室
根据规范要求,机房内需气体灭火装置,一旦发生火灾确认可自动(手动)启动灭火装置灭火
6、机房供配电系统设计
供电系统是一级负荷,要求供配电系统具有较高的可靠性.本方案机房用电电源线缆有建设单位提供并引入机房电源设备辅助区内预留足够的接线长度。
配电系统设计:采用三相五相制,接地系统采用TN-S方式,零线和地线分开设置。
市电照明及应急照明设计:机房区采用600*3三管金属格栅灯,灯具电源线均采用三线(相线,地线,保护线)穿金属管敷设,拐弯处和分线处分别设计金属连接盒,连接盒到灯具之间用金属软管连接.市电照明电源控制由市电配电柜中市电电源空开直接引线至各个区域的照明控制开关。
应急灯电源采取将少部分由UPS供电,所有金属线槽和电线管均要可靠接地。
7、机房新风空调系统的设计
机房采用精密空调,保持机房内恒温,恒湿要求,提高设备的使用寿命以及设备运行的可靠性,地板下增设漏水检测系统
8、以上说明详见设计图纸,未尽事宜现场定。