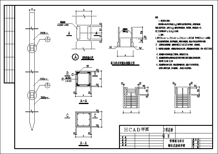
桩顶与承台连接大样
- 格式:doc
- 大小:125.50 KB
- 文档页数:3
(19)中华人民共和国国家知识产权局(12)发明专利申请(10)申请公布号 (43)申请公布日 (21)申请号 201710881022.7(22)申请日 2017.09.26(71)申请人 汤始建华建材(苏州)有限公司地址 215000 江苏省苏州市吴中区甪直镇胜浦大桥南侧兴国路2号(72)发明人 徐建军 韩磊 刘永康 范玉东 罗荣 (74)专利代理机构 苏州翔远专利代理事务所(普通合伙) 32251代理人 王华(51)Int.Cl.E02D 27/14(2006.01)E02D 5/22(2006.01)(54)发明名称一种方桩的桩顶与承台的连接方法(57)摘要一种方桩的桩顶与承台的连接方法,包括主筋和锚固筋,还包括第一套筒、第二套筒和锁紧装置,所述方桩的桩顶与承台的连接方法包括下列步骤:1:采用锯桩器截去所述方桩的桩顶超出设计高度的多余部分并保留所述主筋;2:采用攻外螺纹专用工具对所述主筋上端部攻外螺纹;3:将所述主筋与所述第一套筒连接;4:将所述锁紧装置卡入所述第二套筒后穿入所述锚固筋;5:将所述锚固筋拉紧在所述锁紧装置内;6:将所述第一套筒与所述第二套筒连接。
本发明通过加入钢筋连接组件,将高出部分的桩顶截去,通过钢筋连接组件将预应力主筋及锚入承台的锚固筋进行连接,有效解决了钢筋连接的问题,可实现桩顶与承台的有效的连接。
权利要求书1页 说明书3页 附图2页CN 107700512 A 2018.02.16C N 107700512A1.一种方桩的桩顶与承台的连接方法,包括主筋和锚固筋,所述主筋为预应力钢筋,所述锚固筋为锚入承台的钢筋,其特征在于:还包括第一套筒、第二套筒和锁紧装置,所述第一套筒一端设有外螺纹,另一端设有内螺纹;所述第二套筒一端设有内螺纹,另一端为内锥结构;所述锁紧装置为多块弧面结构的锁紧片构成的可卡入所述第二套筒的中空椎体结构,所述锁紧片内侧设有紧固纹;所述方桩为超过标准设计高度的预应力实心方桩;所述方桩的桩顶与承台的连接方法包括下列步骤:步骤1:采用锯桩器截去所述方桩的桩顶超出设计高度的多余部分并保留所述主筋;步骤2:采用攻外螺纹专用工具对所述主筋上端部攻外螺纹;步骤3:将所述主筋与所述第一套筒连接;步骤4:将所述锁紧装置卡入所述第二套筒后穿入所述锚固筋;步骤5:将所述锚固筋拉紧在所述锁紧装置内;步骤6:将所述第一套筒与所述第二套筒连接。
睢宁县万象天地工程监理实施细则( 预制混凝土方桩 )内容提要:专业工程特点监理工作流程监理工作控制目标及控制要点监理工作方法及措施项目监理机构(章):专业监理工程师:总监理工程师:日期:江苏省建设厅监制目录一、工程概况二、工程特点三、监理工作流程四、控制要点及目标直五、预制混凝土方桩监理点六、监理工作方法及措施(一)施工准备阶段(二)质量控制(三)进度控制(四)安全文明施工控制一、项目工程概况建设单位:睢宁县绿园房地产开发有限公司施工单位:中厦建设集团有限公司监理单位:徐州市建设工程监理有限公司设计单位:徐州瀚艺建筑设计有限公司建设地点:位于江苏睢宁县总建筑面积:170829㎡地上建筑面积:138083㎡住宅建筑面积:62491㎡商业建筑面积:74699㎡一、建筑层数、高度:住宅33层,1号商业7层,2号商业4层,3号商业4层。
A楼檐口高度102.450M(最高点:104.900M),B、C楼檐口高度102.550M(最高点:105.000M)二、①#商业建筑面积:39679㎡㈠结构体系及规模:主体3层及6层局部7层,地下1层,框架结构体系;3层建筑总高度约13.950米;6层建筑总高度23.850米;7层建筑总高度30.750米。
地上建筑面积:39679㎡㈡本工程为一类高层公共建筑,耐火等级为一级,地下室耐火等级为一级,抗震设防为8度,建筑设计使用年限为50年。
②#商业建筑面积:10215㎡,具体概况还在等待中;三、③#商业建筑面积:25239㎡㈠结构体系及规模:地上主体5层,地下1层,框架结构体系;3层建筑总高度约23.950米;地上建筑面积:23134㎡㈡本工程为一类高层公共建筑,耐火等级为二级,地下室耐火等级为一级,抗震设防为8度,建筑设计使用年限为50年。
地下建筑面积:32746㎡地下商业建筑面积:8075㎡地下车库建筑面积:24671㎡二、基桩工程特点。
本工程采用预制混凝土方桩,工程桩有效长L=28米,桩型号为JAZHb-50-29c,建议试桩L=33米,桩型号为JAZHb-50-33c抗拔桩型号为AZH-50-15C,有效桩长14米,选用图集《预制钢筋混凝土方桩》04G361,预制钢筋混凝土方桩的混凝土强度等级不应低于C40,桩与承台的连接大样详图。
桩顶与承台连接施工方案在桥梁建设中,桩顶与承台的连接是非常关键的一环。
良好的连接施工方案既能确保结构的稳定和安全,也能提高工程的整体质量和效率。
下面将介绍桩顶与承台连接的施工方案。
1. 施工前准备在进行桩顶与承台连接的施工之前,首先需要做好以下几项准备工作: - 确认桩顶和承台的尺寸和位置符合设计要求; - 检查桩基和承台的质量和强度是否符合要求; - 准备好连接材料和施工设备; - 制定详细的施工方案,并进行施工图纸审核。
2. 施工过程2.1 桩顶处理在连接之前,需要对桩顶进行必要的处理,包括清理桩顶表面和保证桩顶水平。
确保桩顶的表面平整,并清除杂物和尘土。
2.2 承台支架搭设在连接施工前,需要搭设好承台支架,确保支架牢固可靠。
支架的搭设需要符合设计要求,并保证连接位置准确无误。
2.3 连接施工连接施工分为以下几个步骤: 1. 预埋连接件的安装:根据设计要求,在桩顶和承台上预留好连接部位,并安装连接件。
2. 配制连接浆料:按照配方要求,调配好连接浆料。
3. 浆料灌注:将调配好的连接浆料灌注到连接部位中,确保浆料充实并密实。
4. 固化连接件:待连接浆料固化后,进行最后的固化处理,确保连接牢固。
3. 施工质量控制在连接施工过程中,需要重点关注以下几个方面的质量控制: - 连接部位的尺寸和位置是否符合设计要求; - 连接浆料的配制比例和浇注质量; - 连接件的固定和固化效果。
4. 施工安全措施在连接施工过程中,需要严格遵守以下安全措施: - 操作人员必须穿着符合规定的安全防护装备; - 操作过程中严禁烟火,禁止乱扔垃圾; - 禁止跨越施工区域,确保施工现场的安全。
5. 施工验收连接施工完成后,需要进行严格的施工验收,确保连接质量符合设计和规范要求。
验收主要包括连接部位的尺寸、位置、固定状态和连接牢固程度等方面。
通过以上施工方案的实施,能够有效确保桩顶与承台连接的稳定性和安全性,提高工程质量和效率,保障桥梁工程的顺利进行。
静压锤击预应力高强混凝土PHC管桩设计要求<1>本工程士0.0相当于黄海高程<2>本工程基础采用静压(锤击)预应力高强混凝土管桩<3>液化土和震陷软土中桩的配筋范围,应自桩顶至液化深度以下符合全部消除液化沉陷所要求的。
沿深度其纵向钢筋应与桩顶相同箍筋应加密。
<4>无干湿交替作用时,地下水对砼结构有弱腐蚀性,腐蚀介质为SO42-;有干湿交替作用时,地下水对砼结构有弱腐蚀性,腐蚀介质为SO42-;按地层渗透性判定,地下水对砼结构有微腐蚀性。
综合判定地下水对砼结构有弱腐蚀性。
地下水对钢筋混凝土结构中的钢筋的腐蚀性评价:在长期浸水作用时,地下水对钢筋混凝土结构中的钢筋有弱腐蚀性,腐蚀介质为CL-;在干湿交替作用时,地下水对钢筋混凝土结构中的钢筋有强腐蚀性防腐要求应按现行国家标准《工业建筑防腐蚀设计规范》(GB546-28 )的规定执行。
<5>在腐蚀环境下采用预应力混凝土管桩时,桩基础的结构设计应符合下列规定:<5.1>在强腐蚀环境下需选用预应力混凝土管桩时,应经专门论证,并采取可靠措施,确能满足防腐蚀要求时方可使用。
<5.2>预应力混凝土管桩的混凝土强度等级不应低于C60,抗渗等级不应低于S10:钢筋的混凝土保护层厚度不应小于35mm;桩尖应采用闭型。
<5.3>中等腐蚀以上孔内灌满C35微膨胀砼。
<5.4>地下水对钢结构中等及以上腐蚀时,应采用机械啮合接头,在连接槽内注入沥青涂料,并在桩端钣板面满涂沥青涂料;地下水对钢结构弱腐蚀时,可采用焊接接头,焊条采用E43,焊缝厚度为12mm.管桩的端板厚度大于16mm。
端板应先除锈后方可吊装.施焊前,应检查焊件部位的表面清理符合要求后方能施焊•焊接层数不宜少于三层,焊逢应连续饱满,应严格控制焊缝质量,其外观质量应符合二级焊缝要求.加强桩焊接接头的质量监督管理,要求1%的旁站监督管理,以确保接桩质量。
509.桩顶嵌入承台内的长度不宜小于50;510.主筋锚固于台不宜小于30d、35d(Ⅱ、Ⅲ)511.大直径灌注桩当为一柱一桩时,可设置承台或桩和柱直接连接512.柱承台的宽度≥500,边柱中心至承台边缘距离不宜小于桩的的直径或边长,且桩的外边缘至承台边缘的距离≥150,对于条形承台梁,桩的外边缘至承台梁边边缘的距离≥75513.承台的最小厚度为300混凝土≥C20,纵向钢筋混凝土保护层厚度≥70;当有混凝土垫层时≥40514.有抗震要求的单桩支承的独立柱,各承台均应两方向设置连系梁515.两桩承台宜在其短向设置连系梁516.单桩承台,宜在两个互相垂直的方向上设置连系梁517.桩承台连系梁顶面宜与承台位于同一标高,连系梁宽度≥250,梁的高度可取承台中心距的1/10-1/15 518.结构平面布置图常用的比例是1:50;1:100;1:200519.计算挡土墙的土压力时,会向外(非挡土墙一侧)移动或转动的挡土墙,应采用主动土压力520.利用压实填土作地基时,不得使用耕植土521.粘性土的状态分为坚硬、可塑、软塑和流塑,它们是根据液性指数划分的522.对一般基础设置深度应考虑相邻基础的埋深523.应考虑地基土冻胀和融陷的影响524.位于岩石地基上的高层建筑,其埋深应满足抗滑移的要求525.刚性矩形基础为使基础底面不出现拉力,可增加基础宽度526.埋置较浅的无筋扩展基础,其埋置深度一般小于3-4倍的基础宽度,且埋深不大于5米527.扩展基础是钢筋混凝土独立基础和墙下钢筋混凝土条形基础混凝土等级≥C20锥形基础的边缘高度不宜小于200;阶梯基础每阶高度宜为300-500垫层厚度不宜小于70;垫层混凝土≥C10528.扩展基础底板受力钢筋≥φ10,@100-200;分布筋≥φ8,@300;钢筋保护层有垫层40;无垫层70529.高层建筑箱形基础的高度不宜小于3M箱形基础的外墙应沿建筑的四周布置箱形基础的墙体水平截面积不宜小于基础面积的1/10530.桩的水平承载力宜通过现场试验确定531.对于预制桩,应进行运输和吊装过程中的强度验算532.灌注桩配有纵向钢筋能承担弯矩533.桩的承载力除根据地基条件确定外,尚应验算桩身材料强度534.设计桩台时,应作抗冲击验算和抗剪验算535.有地下室的高层建筑,采用桩基时,可取承台面标高与地下室底板标高相同底板应满足受冲切承载力的要求536.结构圈梁平面图、总平面的管沟平面图常用比例是1:200;1:500537.计算挡土墙的土压力,地基稳定及滑坡推力时,荷载应按基本组合,但其分项系数为1.0为0-0.25,为硬塑粘土538.粘性土的液性指标数TL539.对于一级建筑物当采用室内剪切试验时,取土钻孔不得少于6个540.挡土墙应设置泄水孔,其间距宜取2-3米孔眼尺寸不宜小于φ100541.碎石土为粒径大于2的颗粒超过全重50%的土542.砂土为>2不超过50%;但>0.075超过50%的土543.粘性土为塑性指数Ip>10的土Ip>17的土为粘土Ip=10-17的土叫粉质粘土544.粉土为介于砂土与粘土之间,Ip≤10,且>0.075不超过全重的50%的土545.膨胀土吸水膨胀、失水收缩、其自膨胀率大于或等于40%的粘性土546.湿陷性土为浸水后产生附加沉降,其湿陷系数≥0.15的土547.宜设沉降缝的部位平面的转角处高度差异和荷载差异处长高比过大的砌体承重结构或框架的适当部位地基土的压缩性有明显差异处建筑结构或基础类型不同处分期建造房屋的交界处548.沉降缝宽度二、三层50-80;四、五层80-120;六层以上>120549.室内地坪和地下设施的标高,应根据预估沉降量予以提高,建筑物各部分联系时,可将沉降较大者标高提高550.建筑物与设备之间,应留有净空,当建筑物有管道穿过时,应预留孔洞,或采用柔性头551.减少沉降和不均匀沉降措施选用轻型结构,减轻墙体自重,采用架空地板代替室内填土设置地下室或半地下室,采用覆土少,自重轻的基础型式调整各部分的荷载分布,基础宽度或埋置深度对不均匀沉降要求严格的建筑物,可选用较小的基底压力552.建筑物沉降观测要求在一个观测区,水准点不应少于3个施工期间的观测不应少于4次竣工后的观测,第一年不少于3-5次,第二年不少于2次沉降观测点,一般设置在室外地面以上,外墙(柱)身的转角及重要部位,数量不少于3个553.有条件时,宜利用堆载预压过的建筑场地堆载量不应超过地基承载力特征值,堆载不宜压在基础上大面积的填土宜在基础施工前三个月完成554.无筋扩展基础适用于多层民用建筑和轻型厂房混凝土强度可为C15555.对于三层及以上房屋,长高比≤2.5;当2.5<长高比≤3时,宜做到纵横墙不转折或少转折,并应控制其内横墙间距或增强基础刚度和强度当房屋的预估最大沉降量≤120时,其长高比可不受限制556.柱下条形基础梁的C20,高度宜为柱距的1/4-1/8。
南昌千禧同业小区工程截桩桩顶与承台连接作业指导书中国十五冶南昌千禧同业小区项目部2013年06月07日审批栏批准:审核:编制:目录1、工程概况......................................................1 1.1、总体概况...................................................1 1.2、管桩规格及分布情况............................................1 1.3、桩类型.........................................................11.4、桩顶与承台连接和锚固种类.......................................22、编制依据........................................................23、施工流程........................................................24、施工方法及质量控制..............................................2 4.1承台土方开挖....................................................2 4.2截桩............................................................2 4.3基础验槽........................................................3 4.4人工清底........................................................3 4.5桩位平面复测....................................................3 4.6管桩内壁清理....................................................3 4.7锚固钢筋笼制作..................................................3 4.8锚固钢筋笼安装及验收............................................44.9桩芯混凝土浇筑..................................................45、安全文明施工要求................................................4截桩桩顶与承台连接作业指导书1、工程概况1.1、总体概况本工程为南昌千禧同业小区工程,有九栋高层住宅及裙楼组成。
抗拔桩与承台的连接1.工程概况xxxxxxxx工程,总建筑面积为xxxx㎡,地下xx层,地上局部有xx层、xx层,地下室南北/东西长xxxxm东西/南北宽为xxxxm,上部建筑全部集中在xxxx区,即西半区只有地下室,地下室顶盖即为室外广场。
基础采用PHC砼管桩桩基,砼承台,整体板式底板,桩帽与基础底板下承台采用刚接,桩采用了锤击法/静压法沉桩的预应力管桩(即PHC桩)外径=xxxx,壁厚d=xxx长L=xxxx,闭口桩尖,由于建筑物东部设有游泳池、篮球馆、网球场,荷载很不均匀。
考虑西部地下室抗浮的问题,故设计院在结构设计时,采用了一定数量的抗拔桩,该工程共用桩xxx根,其中抗压桩xxx根,设计标准承载力xxxxKN,而抗拔桩达xxxx根,设计标准承载力xxxxKN,沉桩工作由专业施工单位完成。
由于建筑物地下土层比较复杂,发生了一些桩达不到和超过设计标高,桩头被打/压碎等情况,设计单位针对这些情况,进行了补充设计,我们根据设计结合现场实际情况编制了施工方案进行施工,使桩与承台底板连成一体,达到设计要求。
2.桩承台连接的设计措施设计中桩与承台的连接分抗压桩连接和抗拔桩连接.抗压桩的连接是采用xx根xxxxm长φ(Ⅲ)xx的钢筋制作的钢筋笼,笼的下端焊接厚度为xxmm,直径为xxmm(桩孔xxxmm)的钢板做托板,再把钢筋笼插进桩孔内xxxmm,外露xxxmm长的钢筋,再用φxx@xxx箍筋绑扎成上大下小的喇叭口,上口直径为xxxmm,采用Cxx砼灌桩孔(见图一)。
抗拔桩与承台的连接是将xx根的钢筋笼改为xx根,施工方法相同于抗压桩承台连接,同时再在桩头端板上焊接xx块-10x60x100钢板,周焊,并在钢板上分别焊接一根φ(Ⅲ)xx长度为xxxmm的钢筋(见图二)。
3.现场施工难点及对策现场施工过程中,出现了许多桩位偏高及偏低,且有桩被打/压坏的现象。
由于设计对桩承台连接的要求相当高,并对此进行了补充设计,同时我们也拿出了许多施工方案进行比较,最终采用了相应的切实可行的对策进行处理。
2、当做分项工程施工技术交底时,应填写"分项工程名称"栏,其他技术交底可不填写。
2、当做分项工程施工技术交底时,应填写"分项工程名称"栏,其他技术交底可不填写。
工程名称XXXX工程交底日期2016年9月3日施工单位XXX项目部分项工程名称管桩基础交底提要管桩与承台连接技术交底交底内容:图一不截桩桩顶与基础连接详图审核人交底人接受交底人2、当做分项工程施工技术交底时,应填写"分项工程名称"栏,其他技术交底可不填写。
审核人交底人接受交底人2、当做分项工程施工技术交底时,应填写"分项工程名称"栏,其他技术交底可不填写。
工程名称 XXXX 工程 交底日期 2016年9月3日施工单位 XXX 项目部分项工程名称管桩基础交底提要 管桩与承台连接技术交底交底内容:图二 配筋图2、桩顶标高大于设计标高时,见图三。
(1).当桩顶高于设计标高需要截桩时,掏桩间土、弹线、验线工作完毕后进行截桩工作,截桩用手提式圆盘切割机按照所弹桩顶标高线进行切割。
切割时需将桩管外壁切透,以防桩头倒下时破坏下部桩体,如果没有切透管壁,要依据原锯缝进行二次切割,直至将管壁切透。
严禁用大锤、钢钎等工具强行将没有锯透管壁的桩头砸倒。
(2)桩顶内应设置托板及钢筋骨架,其强度等级比承台高一等级(C35),浇灌填芯混凝土前,先将管桩内壁浮浆清理干净,采用内壁涂刷水泥净浆的措施,以提高填芯与管桩桩身的整体性。
(3).图中①号筋应与②号筋焊牢,且①号筋与②号筋应沿管桩内径均匀布置,①号筋锚入承台时,锚固长度La 不小于630mm(35d )。
(4).桩顶进入桩承台50mm 。
桩顶混凝土填芯长度为3.5m ,用3mm 厚圆薄钢托板焊接,且托板以下桩芯部分以土石屑填实,保证浇灌填芯混凝土时托板不下沉,托板尺寸略小于管桩内径,保证托板能顺利放进管桩。
审核人交底人接受交底人2、当做分项工程施工技术交底时,应填写"分项工程名称"栏,其他技术交底可不填写。
技术交底记录编号:001工程名称新悦小区施工单位南通二建交底部位管桩,方庄交底日期2018/1/10交底提要桩与承台(底板)连接的钢筋焊接一、施工准备1、技术准备:熟悉设计图纸,了解桩焊接工艺搭接长度,对相关人员进行技术交底。
2、机具准备:锯桩器、焊机、移动电箱、大锤、水桶等。
二、作业条件1、作业区域土方开挖完成,承台、集水坑等处的预应力桩已经挖出,边坡休整已经到位,而且桩设计标高已经抄测到位。
2、预应力管桩的小应变测试已经完成。
三、方桩工艺流程1、抄测标高—剥主筋—断桩头—检查设备—进行焊接—检查2、测量员在现场测出需要剔凿桩的桩顶标高,弹好控制线。
3、切割:采用手持电动切割机在桩顶标高处用切割机围绕桩头切割一周,深度约20mm,切记不要切割到主筋。
4、再用风镐自上而下或从侧面剔除钢筋外包裹混凝土长度为主筋直径的5d,并将主筋适当弯曲。
三、截桩桩顶与承台连接1、当桩顶高于设计标高要求截桩时(详见图1),应在管腔设置托板并放入钢筋骨架后,首先浇灌桩顶设计标高一下范围内的混凝土,桩顶填芯用C40微膨胀混凝土,待填芯混凝土达到70%设计强度后,方可凿去桩顶设计标高以上多余部分。
2、灌芯前,应先将管桩内壁浮浆清理干净,并涂刷强度等级不低于42.5级的纯水泥浆或混凝土界面剂两遍。
3、对于承压桩,填芯长度H不得小于5倍管桩外径,且不得小于2.5m。
4、①、②号筋应沿周围均匀分布,且①号筋与②号筋焊牢,角度≥60度。
5、①、②、③号筋及D、d尺寸见下表。
若另行配筋,不宜小于表中的配筋量。
用于承压桩时,①号内插钢筋锚入承台内的有效长度不应小于45倍钢筋直径,现场实际长度不小于900mm。
外径(mm)壁厚(mm)D(mm)d(mm)①(纵筋)②(架立筋)③(箍筋)500 110 270 210 ≥620 ≥3φ10≥φ8@2006、①号筋宜优先采用HRB400级钢筋,②、③号筋可采用HPB300级及以上钢筋。
7、锚入承台内的纵向钢筋长度应取L≥la,有抗震或特殊要求的宜取L≥lae。
管桩桩顶与承台连接钢筋拉拔流程
桩顶与承台连接的钢筋拉拔流程主要包括以下几个步骤:测量、准备
材料、钢筋加工、焊接、安装及拉拔测试。
第一步:测量桩顶与承台的连接距离
在进行桩顶与承台连接钢筋的拉拔工作之前,首先需要测量桩顶与承
台之间的连接距离,以确定所需的钢筋长度。
第二步:准备材料
根据测量结果,准备所需的钢筋材料,包括长度适当的钢筋和连接所
需的配件、焊接材料等。
第三步:钢筋加工
根据设计要求,将准备的钢筋进行加工,包括切割、弯曲等工序,确
保钢筋的尺寸和形状符合设计要求。
第四步:焊接
将加工好的钢筋进行焊接,使其成为一个整体。
焊接的时候,要注意
保证焊接质量,确保焊缝牢固可靠。
第五步:安装
在连接部位预留好相应的孔洞,将焊接好的钢筋安装到桩顶和承台上,并用支撑物将其固定住,确保连接部位的稳定性。
第六步:拉拔测试
对安装好的钢筋进行拉拔测试,以确定其承载能力是否符合设计要求。
拉拔测试主要包括静载试验和动载试验。
在静载试验中,对连接部位施加
静载,持续一段时间,观察是否出现塑性变形、位移等现象;在动载试验中,对连接部位施加动力荷载,观察连接部位是否出现裂缝、断裂等现象。
以上就是桩顶与承台连接钢筋拉拔流程的基本步骤。
在进行这一过程时,需要严格按照相关的规范和要求进行操作,确保连接部位的牢固性和
可靠性。
同时,还要进行必要的质量检测和验收,以确保连接部位的安全
可靠。
结构校对的方法一校对内容【校对原则】※能按建筑设计意图将结构骨架搭建起来※在搭建过程中注意不与建筑、设备发生冲突,做到不错不漏,不碰不缺※注意结构自身合理性,不合理的要与建筑协商解决※将设计意图表示完全,表达清楚※一套图的设计参数是否统一【校对顺序】图面――模板――配筋――说明,检查完一项打一个勾。
【图面校对】○是否有异常文字和标注(文字为?号,大小不统一,标注与实际长度不符或非整数);○是否有多余文字、尺寸线和多余轴线;○轴线、梁线等线型是否正确,线宽是否合适;○文字是否被重叠,被覆盖;○墙、柱、后浇带等是否有漏、多余填充或错误填充;不同类型是否用了相同的填充式样;○出图比例是否异常,所注比例是否正确;○图签中图名、图号、工程名称、出图时间是否正确。
○文字表达是否通顺【平面模板图校对】①轴线○轴号、尺寸是否有误、是否与建筑图对应○总尺寸是不是分尺寸之和○角度是否够精度,斜交轴网以长轴两端定位,避免以起点和角度定轴线○有没有未定位的轴线,有没有多余轴号○圆弧轴线有没有注明半径,圆心有没有定位②轮廓与标高○结构轮廓与建筑是否一致○结构平面各部分的标高是否标明,是否与建筑相应位置符合,注意建筑覆土范围、各层卫生间、室外露台,屋顶花园,台阶位置、电梯底坑、水池的吸水槽、公共厨房与肉菜市场等需垫高的场所○结构变标高位置及反梁是否为实线,有没有实线与虚线相交的地方○天面、地下室平面是否为结构找坡,若建筑找坡是否考虑找坡荷载○与邻接区域的梁、板连接关系与分缝是否正确。
○建筑、设备在板上开的洞有没有遗漏③柱、墙位○下层墙柱有没有用虚粗线表示,是否画了不该升上的墙柱,是否画了梁上柱○墙柱是否与建筑一致,在位置和尺寸上是否有影响建筑使用○建筑、设备在混凝土墙上开的洞有没有漏○注意墙、柱顶标高是否满足建筑标高,是否满足梁板的搭接要求④梁○房屋周圈梁是否等高,注意其与建筑周圈墙的关系○逐条检查梁的定位、编号、尺寸和跨数以及梁顶标高与板面标高关系是否正确○梁高宽是否异常。
SG —013建设工程隐蔽检验记录注:本表一式四份,建设单位、施工单位、监理单位、城建档案馆各一份。
SN:9122840000000835建龙软件打印(批准文号:川建发[2002]280号)四川省建设厅监制工程名称 佳琪·紫东阁施工单位 三台县监司分项工程名称 图号隐蔽日期隐蔽部位、内容 单位数量检查情况监理(建设)单位验收记录有 关 测 试 资 料名 称测试结果证、单编号备 注附图:5002002 6.5@100(2 6.5@100) 6.5@100(6.5@100) 6.5@200(6.5@200)6.5@200(6.5@200)12@200(12@200)(420)418(410)41028(28) 416(420)210(210)(420)416≥75°150050~100500D=300托板5厚圆薄钢板管桩C35膨胀混凝土C10混凝土垫层端板锚固钢筋基础梁或基础承台连接钢板t≥10不截桩桩顶与承台连接详图()内为D=400时钢筋型号5150050~100托板5厚圆薄钢板管桩C35膨胀混凝土C10混凝土垫层锚固钢筋基础梁或基础承台截桩桩顶与承台连接详图()内为D=400时钢筋型号5D=300≥75°1500托板5厚圆薄钢板管桩C35膨胀混凝土接桩桩顶与承台连接详图()内为D=400时钢筋型号5D=300500C10混凝土垫层C35膨胀混凝土基础承台或基础梁锚固钢筋100200≥75°50参 加 检 查 人 员 签 字施 工 单 位监 理 单 位建 设 单 位注册建造师(技术负责人):监理工程理师: (注册方章)现场代表:。
SG —013
建设工程隐蔽检验记录
注:本表一式四份,建设单位、施工单位、监理单位、城建档案馆各一份。
SN:9122840000000835
建龙软件打印(批准文号:川建发[2002]280号)
四川省建设厅监制
工程名称 佳琪·紫东阁
施工单位 三台县监司
分项工程名称 图号
隐蔽日期
隐蔽部位、内容 单位
数量
检查情况
监理(建设)单位验收记录
有 关 测 试 资 料
名 称
测试结果
证、单编号
备 注
附图:
500
200
2 6.5@100(2 6.5@100) 6.5@100(
6.5@100) 6.5@200
(
6.5@200)6.5@200
(
6.5@200)12@200
(
12@200)(420)
418
(410)410
28
(28) 416
(420)210
(210)(420)416
≥
75
°
1500
50~100
500
D=300
托板
5厚圆薄钢板
管桩
C35膨胀混凝土
C10混凝土垫层端板
锚固钢筋基础梁或基础承台
连接钢板t≥10
不截桩桩顶与承台连接详图()内为D=400时钢筋型号
5
1500
50~100
托板
5厚圆薄钢板
管桩
C35膨胀混凝土
C10混凝土垫层
锚固钢筋
基础梁或基础承台
截桩桩顶与承台连接详图
()内为D=400时钢筋型号
5
D=300
≥
75
°
1500托板
5厚圆薄钢板
管桩
C35膨胀混凝土
接桩桩顶与承台连接详图
()内为D=400时钢筋型号
5
D=300
500
C10混凝土垫层
C35膨胀混凝土
基础承台或基础梁
锚固钢筋
100200
≥7
5°
50
参 加 检 查 人 员 签 字
施 工 单 位
监 理 单 位
建 设 单 位
注册建造师(技术负责人):
监理工程理师: (注册方章)
现场代表:。