(整理)GH钢管杆避雷针安装过程图解13米15米17米19米21米25米30米避雷针塔安装步骤全过程.
- 格式:doc
- 大小:2.55 MB
- 文档页数:6
GH环形钢管杆独立避雷针安装过程(13米15米17米19米21米25米30米40米)避雷针塔安装步骤GH钢管杆避雷针安装说明书1、GH环形钢管杆避雷针安装实例图及说明2、安装前需要准备的安装工具和材料3、装配及安装GH环形钢管杆避雷针4、安装注意事项1、GH环形钢管杆避雷针安装实例图及说明2、安装前需要准备的安装工具和材料(1)3吨以上叉车一部(2)大活动扳手1把(适合地脚螺母用)(3)22-24开口扳手1把(4)14-17开口扳手1把(5)10磅铁锤1把(6)16厘钢丝绳45米(7)16厘钢丝绳锁头8个(8)手拉葫芦2个(3-5吨)(9)25吨吊车一部(安装针杆用)(10)76*3.5铁管1.5米/条2条(11)150以上9.35铁管0.6米/条6条(12)枕木4块3、装配及安装GH环形钢管杆避雷针第一步:把针杆平放在地上,用直径150以上的圆钢管和枕木垫平、垫直,使两节杆在一条直线上(焊缝对焊缝)。
第二步:把主钢绳穿到杆底(每套针4条不锈钢钢丝绳,其中有1条大的为主钢绳,另外3条小的为副钢绳)第三步:两只拉力为3-5吨的葫芦,放在针杆的两侧,两条16的钢绳按如图放置,锁好钢绳之后,两边同时缓慢均匀用力拉葫芦,套接深度为700mm左右(不同的杆体套接深度不一样)拉的时候要注意保持两节针杆在一条直线上,拉不动时,用10磅的大锤,在针杆接口处(针杆的两侧和上侧均衡用力)敲打几下,再拉紧,再敲打,直到拉紧为止。
第四步:两段或是三段针杆全部套紧后,用扳手把顶部避雷针安装上。
第五步:吊装,吊装过程注意人员安全。
第六步:焊接底线,保证接地导通。
GH-30环形钢管杆独立避雷针点击看大图。
1、吊装准备a 轴线、标高复查与放线,复核根据土建提供的基础基准轴线和标高点,以此为基准确定安装基准线。
避雷针吊装前,对避雷针的外形尺寸、方位等等,进行全面复核。
确认符合设计图纸要求后,划出避雷针上下两端的安装中心线和钢柱下端标高线.b 吊装前首先确定避雷针吊点位置为第四节处,用吊带捆绑避雷针,吊装时做好防护措施。
c 吊车站位后,应根据回转半径转杆、趴杆,检查是否抗杆。
d 设备吊装前,应掌握当地的天气预报,遇有大于五级的大风时,不得进行吊装作业。
2、正式吊装a本工程吊装主要是独立避雷针吊装,现场根据设计要求组合完毕吊车直接吊装。
b另外,避雷针采用螺栓连接,对每两节之间的螺栓连接质量设立停检点,确保避雷针安装质量,螺栓连接完毕后进行自检、互检合格方可进行吊装,否则整改。
螺栓全部安装就位后,可以开始紧固。
紧固方法一般分两步进行,即初拧和终拧。
应将全部螺栓进行初拧,初拧扭矩应为标准轴力的60%~80%,具体还要根据材料厚度、螺栓间距等情况适当掌握。
本工程钢材是Q235B故根据螺栓拧紧力矩技术标准拧紧力矩为225.6N.m初拧扭矩力度为人的臂力受到最大阻碍时为宜。
终拧时人的全身力气拧不动时为宜。
为了防止螺栓受外部环境的影响故一般初拧、终拧应该在同一时间内完成。
c吊车的选取:根据避雷针的自身重量40米高为3.55T、30米高为2.45T,以最大重量选择吊车的型号满足现场吊装要求故选择25T吊车,25T吊车主臂加副臂的高度能满足最大40米高度的要求。
3、现场参数金堤变:(吊车支点按照方案实施,现场线路与吊车有冲突时根据现场调整位置)1#避雷针安装时不受周围环境影响,吊车站在大门口处先把旧塔基拆除吊到门口外围进行拆散。
吊车四角支撑点全部支撑在大门口处,现场能满足支撑要求。
2#避雷针安装时吊车的北边安全距离为5米不能带电施工。
吊车支设时四角支撑点为南侧靠南墙、吊车北侧支撑在路边石北1米左右范围处。
3#避雷针安装时吊车的北边和东边安全距离为3米不能带电施工。
避雷针的安装要点以及安装方法(一)接地体的安装1、接地体的安装有关规定:(1)接地体顶面埋设深度应符合设计要求。
当无要求时,不应小于0.6m。
角钢及钢管接地体应垂直配置。
除接地体外,接地体引出线的垂直部分和接地装置焊接部位应防腐处理;在作防腐处理前,表面必须除锈并去掉焊接处残留的焊药。
(2)垂直接地体的间距不应小于其长度的3~5倍。
水平接地体的间距应符合设计规定。
当无设计规定时不宜小于5m。
(3)除环形接地体外,接地体埋设位置应在距建筑物3m以外。
距建筑物出入口或人行道也应大于3m,如小于3m时,应采用均压带做法或在接地装置上面敷设50~90mm厚度的沥青层,其宽度应超过接地装置2m。
(4)接地体敷设完毕,基坑回填土内不应夹有石块和建筑垃圾等。
(5)外取的土壤不得有较强的腐蚀性;在回填土时应分层夯实。
(6)接地装置由多个分接地装置部分组成时,应按设计要求设置便于分开的断接卡。
自然接地体与人工接地体连接处应有便于分开的断接卡,断接卡应有保护措施。
2、人工接地体安装:(1)接地体加工:根据设计要求的数量、材料、规格进行加工,材料一般采用钢管和角钢切割,长度不应小于2.5m。
如采用钢管打入地下应根据土质加工成一定的形状遇松软土壤时,可切成斜面形,为了避免打入时受力不均使管子歪斜,也可以加工成扁尖形;遇土质很硬时,可将尖端加工成圆锥形。
如选用角钢时,应采用不小于40mm*40mm*4mm的角钢,切割长度不应小于2.5m,角钢的一端应加工成尖头形状。
(2)沟槽开挖:根据设计图要求,对接地体(网)的线路进行测量弹线,在此线路上挖掘深为0.8~1m,宽为0.5m的构槽,沟顶部稍宽,底部渐窄,沟底如有石子应清除。
(3)安装接地体(极):构槽开挖后应立即安装接地体和敷设接地扁钢,防止土方倒塌。
先将接地体放在沟槽的中心线上,打入地下。
一般采用大锤打入,一人扶着接地体,一人用大锤敲打接地体顶部。
使用大锤敲打接地体时要平稳,锤击接地体正中,不得打偏,应与地面保持垂直,当接地体顶端距离地面600mm时停止打入。
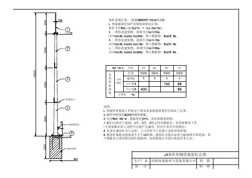
避雷针安装措施(最新版)Security technology is an industry that uses security technology to provide security services to society. Systematic design, service and management.( 安全管理 )单位:______________________姓名:______________________日期:______________________编号:AQ-SN-0853避雷针安装措施(最新版)一、工程概况避雷针包括厂区避雷针和煤场避雷针两部分,煤场避雷针在15.7米及14.7米增设照明平台;全厂区共设独立避雷针16只;其中薄壁离心砼钢管避雷针40米2只,35米5只;圆钢金属结构的25米1只,30米8只;针尖均为热镀锌。
二、编制依据1.施工图纸T0407、T06092.《火电施工质量检验及评定标准》3.《电力建设安全工作规程》4.《建筑安装工程施工及验收规范》5.图集D565(一),独立避雷针三、计量器具、工具、机械1.计量器具接地电阻表一块米尺30米1把经纬仪1台线坠1只2.施工工具划规2支平锉2把扳手4把手锤2把电焊工具2套气焊工具2套3.机械四、施工方案避雷针基础制作严格依照图集D565(一)独立避雷针关于基础制作的要求,避雷针构架的制作在制作加工厂制作,刷红丹防锈漆两道,面漆两道;每节制作成形后运至安装地点组装,安装时起吊点不少于3个,并把破坏的漆层修补完整,做好接地连接。
五、工艺流程(一)准备工作1.熟悉图纸,领会设计意图,明确施工方案、位置及安装方式。
2.准备合格符合设计的材料、附材,经检验合格,证件齐全。
3.准备合格的工器具、安全防护用品、器具。
(二)构件制作1.对所制作的构件放样后用切割机下料,切断口应打坡口。
切割口无裂缝、夹层。
2.节点钢板下料切割口平齐,无铁屑、毛刺,扭曲变形,钻孔位置正确。
避雷针安装方式
你可以用直径为约1.2cm的钢筋条围着房屋顶装一圈焊合,中间每1.5M接房顶的围墙焊一个接点,在选一处比较不会有人可触摸到的位置沿着屋顶连接到地下,地下部分要深入1.5m长,宽为4.2cm的铁条,这样就可以了我特意做了个示意图,我用红线放大方便你观看,图中红线代表直径为约1.2cm的钢筋条,红色填充长五角形的部分为:地下部分要深入1.5m长,宽为4.2cm的铁条,而绿色部分是你要自已设法不要让人触摸到的部分,比如套个绝缘材料,其它请注意看图,下为示意图:。
手摇升降(杆)避雷针示意图手摇升降杆是为升降天线而设计, 随着机动车载天线需求量的增加, 天线升降杆已经得到广泛应用。
本文设计的内置式天线升降杆是用滑轮和钢丝绳来提升各级杆,产品轻便快捷, 稳定可靠, 操作方便, 符合产品的使用要求, 获得用户好评。
手动驱动天线升降杆一般采用钢丝绳、滑轮传动。
早期升降杆产品, 钢丝、滑轮和升降机构外置, 影响外观,本产品使用内置线设计。
设计原理手摇升降杆的结构简图见图1。
图1 为三根杆的天线升降杆, 杆1 为固定杆, 里面的杆2、杆3 分别由一根钢丝绳承拉着, 它们分别是主动钢丝绳和从动钢丝绳。
主动钢丝绳的一端固定在固定杆1 的a 处, 另一端从杆2 的下滑轮1、2 上绕过, 再上升绕到固定杆1 的上滑轮3, 并通过滑轮4 导出升降杆,固定在手摇机构上。
从动钢丝绳的两端分别固定在固定杆1 的底部b、c 处, 中间绕过升降杆2 的上滑轮5、8 和升降杆3 的下滑轮6、7, 把杆3 托起。
(图1 天线升降杆的结构简图)当摇动手摇机构时, 主动钢丝绳被从升降杆内拉出, 杆2 被提起。
当主动钢丝绳把杆2 提起时, 从动钢丝绳随着杆2 的上滑轮的升高而把杆3 同时提起。
当天线升降杆内套着多根杆时, 内部升降杆的结构及运动方式与杆3 相同。
从天线升降杆的运动原理可以看出, 当主动钢丝绳移动时, 内套的所有升降杆将一起被提起,。
(图2 天线杆升降原理图)最外面的主动钢丝绳所受的力跟升降杆的根数和重量有关, 根数越多, 里层杆的重量越大, 钢丝绳所承受的力也就越大。
这种内置式升降杆要求当天线升起后, 钢丝绳不裸露在外。
这就要求设计时, 在杆与杆之间有限的空间内合理安排钢丝绳的缠绕方式。
首先, 升降杆的管材截面采用正方形截面。
这是因为( 1) 杆内壁要安装滑轮, 需要大的安装平面, 若选用圆管, 它的内壁不好安装滑轮;( 2) 相同壁厚和截面积的管子, 方形比圆形的抗弯截面系数大。
避雷针的正确安装方法避雷针是一种用于保护建筑物和设备免受雷击的重要设备,正确的安装方法对于其功能的发挥至关重要。
下面将介绍避雷针的正确安装方法,希望对大家有所帮助。
首先,选择合适的位置。
避雷针通常安装在建筑物的最高点,如建筑物的屋顶或者烟囱等。
在选择安装位置时,需要考虑避雷针与建筑物之间的距离,通常要求避雷针与建筑物之间的距离不小于1米。
其次,准备安装材料。
安装避雷针需要使用一些特殊的安装材料,如导体材料、接地材料等。
在进行安装之前,需要确保这些材料的质量和性能符合要求,以确保避雷针的正常使用。
然后,进行接地处理。
接地是避雷针安装的关键步骤之一,它能够将雷电引导至地下,从而保护建筑物和设备。
在进行接地处理时,需要选择一个合适的接地点,并且确保接地电阻符合要求。
接下来,安装避雷针。
在安装避雷针时,需要注意以下几点,首先,避雷针要与建筑物的主体牢固连接,以确保其稳定性;其次,避雷针的导线要与接地装置连接良好,确保电流畅通;最后,需要对避雷针进行检查,确保其安装符合要求。
最后,进行安装验收。
在完成避雷针的安装之后,需要进行一次验收,确保其安装符合相关标准和规范。
验收内容包括避雷针的安装位置、接地电阻、导线连接等,只有通过验收,避雷针的安装才能算是完成。
总之,避雷针的正确安装方法对于保护建筑物和设备免受雷击至关重要。
在进行安装时,需要选择合适的位置,准备好安装材料,进行接地处理,安装避雷针,并进行安装验收。
只有严格按照要求进行安装,才能确保避雷针的正常使用。
希望以上内容对大家有所帮助,谢谢阅读!。
避雷针的安装要点以及安装方法(一)接地体的安装1、接地体的安装有关规定:(1)接地体顶面埋设深度应符合设计要求。
当无要求时,不应小于0.6m。
角钢及钢管接地体应垂直配置。
除接地体外,接地体引出线的垂直部分和接地装置焊接部位应防腐处理;在作防腐处理前,表面必须除锈并去掉焊接处残留的焊药。
(2)垂直接地体的间距不应小于其长度的3~5倍。
水平接地体的间距应符合设计规定。
当无设计规定时不宜小于5m。
(3)除环形接地体外,接地体埋设位置应在距建筑物3m以外。
距建筑物出入口或人行道也应大于3m,如小于3m时,应采用均压带做法或在接地装置上面敷设50~90mm厚度的沥青层,其宽度应超过接地装置2m。
(4)接地体敷设完毕,基坑回填土内不应夹有石块和建筑垃圾等。
(5)外取的土壤不得有较强的腐蚀性;在回填土时应分层夯实。
(6)接地装置由多个分接地装置部分组成时,应按设计要求设置便于分开的断接卡。
自然接地体与人工接地体连接处应有便于分开的断接卡,断接卡应有保护措施。
2、人工接地体安装:(1)接地体加工:根据设计要求的数量、材料、规格进行加工,材料一般采用钢管和角钢切割,长度不应小于2.5m。
如采用钢管打入地下应根据土质加工成一定的形状遇松软土壤时,可切成斜面形,为了避免打入时受力不均使管子歪斜,也可以加工成扁尖形;遇土质很硬时,可将尖端加工成圆锥形。
如选用角钢时,应采用不小于40mm*40mm*4mm的角钢,切割长度不应小于2.5m,角钢的一端应加工成尖头形状。
(2)沟槽开挖:根据设计图要求,对接地体(网)的线路进行测量弹线,在此线路上挖掘深为0.8~1m,宽为0.5m的构槽,沟顶部稍宽,底部渐窄,沟底如有石子应清除。
(3)安装接地体(极):构槽开挖后应立即安装接地体和敷设接地扁钢,防止土方倒塌。
先将接地体放在沟槽的中心线上,打入地下。
一般采用大锤打入,一人扶着接地体,一人用大锤敲打接地体顶部。
使用大锤敲打接地体时要平稳,锤击接地体正中,不得打偏,应与地面保持垂直,当接地体顶端距离地面600mm时停止打入。
佳兆业集团防雷等电位标准做法作业指引1、适用范围本做法适用于集团在建综合体及住宅项目的建筑物防雷和防间接接触电击和防电磁干扰的等电位联结安装工程。
2、操作要求2.1。
2.2焊接要求2.2.1采用搭接焊时,其焊接长度如下:镀锌扁钢不小于其宽度的2倍,三面施焊。
(当扁钢宽度不同时,搭接长度以宽的为准)。
敷设前扁钢需调直,煨弯不得过死,直线段上不应有明显弯曲,并应立放。
镀锌圆钢焊接长度为其直径的6倍并应双面施焊(当直径不同时,搭接长度以直径大的为准)。
镀镀锌圆钢与镀锌扁钢连接时,其搭接长度为圆钢直径的6倍。
锌扁钢与镀锌钢管(或角钢)焊接时,为了连接可靠,除应在其接触部位两侧进行焊接处,还应直接将扁钢本身弯成弧形(或直角形)与钢管(或角钢)焊接。
5.2.2做法图片扁钢与扁钢焊接2倍,3面施焊圆钢与扁钢焊接.6倍,双面施焊错误做法错误做法说明:搭接材料采用螺纹钢,搭接长度不足,焊缝不饱满圆钢与圆钢焊接13自然基础接地体安装3.1利用无防水底板钢筋或深基础做接地体:1)按设计图尺寸位置要求,用油漆在网格交杈点位置标上标志,将底板钢筋搭接焊好,焊点包括;钢筋的搭接、丝扣连接跨接、纵横交杈点跨接等(见图一),将整个地下室基础钢筋构成接地体。
2)再将柱主筋(不少于2根)底部与底板筋搭接焊好(见图二),并在砼浇注区外,基础底板甩出的予留钢筋打上防雷网线标志(图六)。
3)防雷检测点预埋(作今后引出和检查用):按设计图柱位,当柱主钢筋防雷引下线一般延伸至离正负零约30CM处将两根引下线主筋用色漆做好标记,引出至柱完成面高度焊好连接板并消除药皮(在封柱模板前完成),钢板约120×120×8MM,作为检测板;或将两根防雷引下线主筋连接予埋40×4镀锌扁铁长度至柱完成面室外地面,包封保护浇注,拆模后再安装防雷检测盒(见图七、八),。
应及时请质检部门进行隐蔽验收,同时做好隐蔽验收记录。
3.3做法示例图一底板网线搭接图三底板抗浮桩与防雷地网连接图二底板网线纵横跨接、钢筋丝图四底板地网打上明显油漆标志扣连接跨接图七柱钢筋引下线在正负零30CM处予埋40×4镀锌扁铁包封保护浇注,拆模后安装检测点底盒图八基础防雷地网引出检测点底盒及盖板标志,图中按外立面线条要求位置高度作了调整图二柱引下线主筋与底板接地网14园钢跨接图九连排别墅的基础地梁是良好的接地体3.4地下室地网3.4.1根据设计要求间距,地下室底板选取纵、横敷设的较粗的主钢筋(每组不少于两根)连接成地网,地网钢筋交叉处采用圆钢跨接(见图一),同时用圆钢与所有引下线跨接成一体(见图二)。
接闪器(避雷针,避雷网,避雷带的安装)默认分类2010-05-20 14:13:06 阅读340 评论1 字号:大中小订阅二、接闪器安装(一)接闪器的选择和布置1.接闪器的构成接闪器应由以下的一种或多种组成:(1)独立避雷针;(2)架空避雷线或架空避雷网;(3)直接装设在建筑物上的避雷针、避雷带或避雷网。
2.采用滚球法布置接闪器滚球法是以hr为半径的一个球体,沿需要防直击雷的部位滚动,当球体只触及接闪器(包括被利用作为接闪器的金属物),或只触及接闪器和地面(包括与大地接触并能承受雷击的金属物),而不触及需要保护的部位时,则该部分就得到接闪器的保护,图11-35 所示。
图11-35 从闪电先导尖端至地面目标的击距hr滚球法是基于以下的闪电数学模型(电气——几何模型):(11-1)或简化为:hr≈9.4·I2/3(11-2)式中hr——闪电的最后闪络距离(击距),见表11-16。
I——与hr相对应的得到保护的最小雷电流幅值(kA),即比该电流小的雷电流可能击到被保护的空间。
表11-16 滚球半径与避雷网尺寸图11-36 双支避雷针简化保护范围示意1—建筑物;2—避雷针;3—保护范围;4—保护宽度屋面避雷针安装,地脚螺栓和混凝土支座应在屋面施工中由土建人员浇灌好,地脚螺栓预埋在支座内,至少有2根与屋面、墙体或梁内钢筋焊接。
待混凝土强度满足施工要求后,再安装避雷针,连接引下线。
施工前,先组装好避雷针,在避雷针支座底板上相应的位置,焊上一块肋板,再将避雷针立起,找直、找正后进行点焊,最后加以校正,焊上其他三块肋板。
避雷针要求安装牢固,并与引下线焊接牢固,屋面上有避雷带(网)的还要与其焊成一个整体,如图11-37所示。
图11-37 避雷针在屋面上安装1—避雷针;2—引下线;3—-100mm×8mm,L=200筋板;4—m25mm×350mm地脚螺栓;5—-300mm×8mm,L=300底板2.避雷带(网)安装避雷带通常安装在建筑物的屋脊、屋檐(坡屋顶)或屋顶边缘及女儿墙顶(平屋顶)等部位,对建筑物进行保护,避免建筑物受到雷击毁坏。
避雷针安装首先一,基础制作,需要浇灌0.8*0.8*2.5基础,预埋螺栓M24* 8,基础选用c20号混泥土。
垫层选用C10号混泥土。
基坑四周土壤切勿扰动,如果部分回填土时,必须分层夯实。
GH系列环形钢管避雷针,钢管的壁厚必须达到5MM,总重量为597kg,当然越重越好,抗风压的能力强。
地脚螺栓安装时选用m24双螺母。
防腐问题: 材料最好选用热镀材料。
由于电焊时会破坏镀锌的结构,所以焊接处选敲掉焊杂,然后刷防锈漆,然后再刷银粉漆。
很多人只刷银粉器,这样的效果比较差,1-2年后,全部腐蚀了。
抗风压能力:如果按照前面的要求制作基础,选择用材,在地面上,不需要加揽风绳,(99D501) 如果避雷针安装在屋顶上,那最好加揽风绳这样比较安全可靠。
接地系统注意事项:1)雷接地必须小于10欧姆。
(第一类防雷建筑,必须离建筑物或者保护物3米以上距离)保护易燃物或者电气设备最好小于4欧姆2)室外接地装置方式:A 镀锌扁铁埋地水平组成地网,埋地不小于1米。
B 人工接地模块埋地,埋地不小于0.5米。
C 2.5米镀锌钢钎垂直打入地下,多根时,相互间距必须大于5米。
D 2.5米镀锌钢钎加镀锌扁铁网。
3)室外接地引线必须与埋地接地装置采用焊接,并作防腐处理(刷沥青等) 4)接地引线线径:机房到室外接地装置引线(圆钢直径要大于10mm,扁钢截面大于80mm2)。
5)铜线与扁铁必须采用焊接或机械式连接,并作防腐处理。
6)避雷针安装参照99D501-1《建筑物防雷设施安装》。
安全问题:避雷针(避雷带)把雷电印向自身,然后通过引下线和接地装置把雷电流泄入大地,以此保护房子免遭雷击。
但如果避雷针出现锈蚀现象,或者引下线断了,必须进行更换,否则可能反而会主动引来雷击。
引下线要有足够的强度,耐腐蚀、耐热;不得用铝线做引下线;要教育孩子不要拉引下线玩。
为了防止跨步电压伤人,接地装置距建筑物的出入口和人行道的距离不应小于3米。
采用镀锌钢管管制作针尖,管壁厚度不得小于3mm,针尖刷锡长度不得小于70mm针头要导电强的。
防雷接地施工工艺讲解(图文并茂),果断收藏!下面让我们一起来看一看防雷接地施工工艺流程。
工艺流程技术要求接地装置顶面埋设深度不应小于0.7M,埋设长度不小于2.5M,垂直接地极间距间距不应小于5m(根据当地防雷办要求)1)扁钢与扁钢水平搭接为扁钢宽度的2倍,不少于三面施焊;3)圆钢与扁钢搭接为圆钢直径的6倍,双面施焊;2)圆钢与圆钢搭接为圆钢直径的6倍,双面施焊;4)扁钢与钢管,扁钢与角钢焊接,紧贴角钢外侧两面,或紧贴3/4钢管表面,上下两侧施焊。
5)除埋设在混凝土中的焊接接头外,有防腐措施。
6)所有焊点表面必须去掉焊接处残留的焊药7)如使用人工接地体,角钢不小于40*40*4mm,长度不小于2.5米8)接地干线在跨越伸缩缝、沉降缝等位置应设置补偿装置,并设测量接地电阻而预备的断接卡子9)地干线末端露出地面应不超过0.5m。
10)安装支持卡时,应弹线或拉线安装以保证其观感桩基接地极施工水平接地极由地梁的主筋构成,垂直接地极由每桩内2根钢筋构成。
接地极施工时,桩内的钢筋与地梁的钢筋采用不小于∮10园钢搭接,宜采用双面焊,焊缝长度≥6d,单面焊接焊接长度≥12d。
柱与梁、梁与梁、柱与挡土墙地梁之间应用圆钢焊接连接,焊接必须采用双面焊,以保证总等电位连接地可靠性和安全性。
(地梁钢筋采用螺纹连接时,螺纹连接处必须用Φ10圆钢作跨接焊)钢筋弯曲半径不小于10d、特殊情况不小于6d阀基接地极施工水平接地极由阀板基础上部钢筋网构成,以柱筋作为垂直接地极。
在施工阀板基础水平钢筋网时,直接将其水平钢筋焊接连通,焊接长度大于140mm独基接地极施工引下线施工1、按图纸所标注位置定位引下线位置,引下线采用2根不小于Φ16的筋(如柱内主筋无Φ16 钢筋则焊接4根Φ14钢筋作为引下线,直径不得小于12mm )引下线与地梁钢筋、柱筋连接采用不小于Φ12的圆钢搭接,双面焊接焊缝长度大于圆钢直径6d,圆钢弯曲半径大于圆钢直径6d,并用油漆标记(方便查找)。
防雷施工钢筋连接方法防雷施工钢筋连接方法·民用建筑工程防雷设防分三级,屋顶一般采用25×4热镀锌扁钢作为避雷带沿女儿墙四周敷设,25×4热镀锌扁钢避雷带支持卡子间距为1米左右,但必须一致,转角处悬空段不大于1米,避雷带高出屋面装饰或女儿墙0.15米,同时屋面采用25×4热镀锌扁钢组成不等避雷网格。
避雷网格沿屋面敷设,所有高出屋面的各种金属构件均需与避雷带焊接相连。
·目前,一般民用建筑利用结构柱内或剪力墙内主钢筋作为引下线,钢筋上下焊接相连,直径大于16毫米二根为一组,柱子上端预埋100×100×8钢板,用于柱子内主钢筋与避雷带连接的转换。
·工程接地体形式主要有人工接地体和利用基础作为接地体的形式。
利用承台钢筋网、桩基钢筋连接构成等电位接地网络,接地电阻不大于1欧姆。
·每层建筑物外墙连续梁内钢筋与楼层钢筋焊接成一体形成均压环,并与引下线可靠相连,外墙上的金属门窗、金属结构、外墙栏杆与均压环相连接以防侧击雷。
·近几年,等电位联结要求日益严格,主要有总等电位联结、辅助等电位联结、局部等电位联结。
机房、卫生间设备、金属管线等一般要作等电位接地。
施工流程·施工准备→接地装置安装→引下线安装→避雷带支架制作安装→避雷网安装→接地电阻测试接地装置·a.按照设计图尺寸位置要求,将底板内两条结构主筋焊接连通,并与所经桩台及柱内的有关钢筋焊接(不同标高处利用两根竖向结构上下贯通),并将两根主筋用油漆做好标记,便于引出和检查。
·b.所有焊接处焊缝应饱满并有足够的机械强度,不得有夹渣、咬肉、裂纹、虚焊、气孔等缺陷,焊接处的药皮敲净后,刷沥青作防腐处理,采用搭接焊时,其焊接长度要求如下:●镀锌扁钢不小于其宽度的2倍,且至少3个棱边焊接。
●镀锌圆钢焊接长度为其直径的6倍,并应二面焊接。
●镀锌圆钢与镀锌扁钢连接时,其长度为圆钢直径的6倍。
GH 避雷针安装使用说明书
目录
1、GH环形钢管杆避雷针安装实例图及说明
2、安装前需要准备的安装工具和材料
3、装配及安装GH环形钢管杆避雷针
4.安装注意事项
1.GH环形钢管杆避雷针安装实例图及说明
(1)3吨以上叉车一部
(2)大活动扳手1把(适合地脚螺母用)
(3)22-24开口扳手1把
(4)14-17开口扳手1把
(5)10磅铁锤1把
(6)16厘钢丝绳45米
(7)16厘钢丝绳锁头8个
(8)手拉葫芦2个(3-5吨)
(9)25吨吊车一部(安装针杆用)
(10)¢76*3.5铁管1.5米/条2条
(11)¢150以上*3.5铁管0.6米/条6条
(12)枕木4块
3.装配及安装GH环形钢管杆避雷针
第一步:把针杆平放在地上,用∅150以上圆钢管和枕木垫平、垫直,使两节杆在一条直线上(焊缝对焊缝)。
第二步:把主钢绳穿到杆底(每套针4条不锈钢钢丝绳,其中有1条大的为主钢绳,另外3条小的为副钢绳)
第三步:两只拉力为3-5吨的葫芦,放在针杆的两侧,两条∅16的钢绳按如图放置,锁好钢绳之后,两边同时缓慢均匀用力拉葫芦,套接深度为700mm 左右(不同的杆体套接深度不一样)拉的时候要注意保持两节针杆在一条直线上,拉不动时,用10磅的大锤,在针杆接口处(针杆的两侧和上侧均衡用力)敲打几下,再拉紧,再敲打,直到拉紧为止。
第四步:两段或是三段针杆全部套紧后,用扳手把顶部避雷针安装上。
第五步:吊装,吊装过程注意人员安全!
第六步:焊接地线,保证接地导通。