蓄水池设计说明
- 格式:docx
- 大小:46.34 KB
- 文档页数:3
蓄水池编制说明及编制依据1.1编制说明1.1.1目的:认真贯彻执行公司质量方针,精心组织施工,确保工程“高质量、快进度、低成本”地完成,坚持“安全第一,预防为本”的法则,创造更好的经济效益和社会效益。
1.1.2内容:本方案主要对该单位工程的施工程序、资源配备、主要分部分项工程的施工方法、进度控制、质量安全措施等方面进行叙述。
1.1.3实施:本方案作为本工程施工时的原则性指导文件,具体施工过程中可因条件变化进行适宜性变更。
本方案由工程技术部负责实施,并进行书面的、口头的技术交底。
1.2编制依据1.2.1施工合同及组成合同的相关文件。
1.2.2《建筑施工手册》缩印本第四版。
1.2.3天津水泥工业设计研究院设计的施工图(见下表)。
序号图号图名1 平面图及详图2 蓄水池详图一3 蓄水池详图二1.2.4国家现行的有关施工质量验收规范、标准(见下表)。
序号编号规范名称1GB50300-2001建筑工程施工质量验收统一标准2GB/T50328-2001建设工程文件归档整理规范3GB/T50326-2001建设工程项目管理规范4GB50026-93工程测量规范5GB50202-2002建筑地基基础工程施工质量验收规范6 GB50204-2002 混凝土结构工程施工质量验收规范7 GB50210-2001 建筑装饰装修工程质量验收规范8 GB50328-2002 地下防水工程质量验收规范9 GBJ107-87 混凝土强度检验评定标准10 JGJ/T10-95 混凝土泵送施工技术规范11 JGJ59-99 建筑施工安全检查标准12 JGJ80-91 建筑施工高处作业安全技术规范13 JGJ130-2001 建筑施工扣件式钢管脚手架安全技术规范14 JGJ146-2004 建筑施工现场环境与卫生标准1.2.5其它其它文件序号类别名称1 企业质量、环境、职业健康安全管理手册2 企业质量、环境、职业健康安全管理体系程序文件3 国家建筑工程强制性标准条文4 企业建筑分项施工工艺标准手册。
蓄水池设计说明Happy First, written on the morning of August 16, 2022蓄水池设计说明2012年农业开发项目设计规划新建蓄水池11口;一方面拦蓄坡面径流;防止冲毁耕地和减少水土流失;另一方面解决项目区部分旱地浇灌..蓄水池布置在坡面汇流的低凹处;采用全埋式圆形开敞式结构..当池址无法避开岩基;开挖比较困难时;可选用半埋式蓄水池..在布置时充分考虑了尽量少占耕地;来水充足;蓄引方便;造价低;基础稳固等因素..蓄水池由池体、梯步、护栏、附属设施组成..一、蓄水池设计1、蓄水池的容量设计蓄水池的容量按下式计算:V=KVw式中:V—蓄水池容量m3Vw—设计频率暴雨径流量;m3..K—安全系数;取1.2..式中:Vw值的计算两种情况:1蓄水池在坡面小型蓄排工程系统之中;与坡耕地背终端相连;并以沟中排水为其主要水源时;其Vw值根据排水沟的设计排水量计算..2蓄水池不在坡面小型蓄排工程系统之中;需独立计算暴雨径流量时;用下式计算:Vw=MF式中:M—设计频率一次暴雨径流模数;m3/亩;F—蓄水池的集雨面积;亩..本规划中按此种情况确定蓄水池容积;经计算;本次规划所选定的 11处蓄水池位置的集雨面积均在1亩左右;可满足容积为100 m3蓄水池要求..考虑实际情况及业主、村民建议;新建蓄水池设计为容积50 m3圆形蓄水池..11口蓄水池采用统一设计图..2、池体由池身、溢洪口、池沿、池底构成池身采用M7.5水泥砂浆砌砖具体参数见工程设计图册..迎水面采用M10水泥砂浆抹面;厚度2cm..溢流口设置在池壁的正常蓄水位处;并修建溢洪渠..池沿:全埋式蓄水池池沿应高出地面30cm..池底:对土基进行开挖整平;若遇软基等不利地质条件;应进行地基处理;保证地基承载力≥150kPa;对岩基应人工打平;如有裂缝应先凿槽槽宽2~3cm;槽深5~8cm..清扫干净后;应进行分层夯实;每层铺土不大于10cm;夯实后表面整平..池底采用C20砼现浇;厚度10cm..靠墙体倒45°衬护;高度为15cm..砼振捣密实后;用原浆表面抹光;增加抗渗性..梯步:每层梯步宽36cm;高20cm;采用M7.5浆砌砖砌筑;加盖砼预制板;宽1m..护栏:池沿护栏采用M7.5浆砌砖修筑;坐在池壁上;高110cm;厚12cm;梯步处留出1m宽;梯步护栏采用钢筋砼预制件护栏安装;设计高1.1m..3、引排水渠、溢洪口与散水等附属设施引排水渠:衬砌长度不小于50m;坡度不小于1/300;土渠坡度不小于1/500;弯道用正规圆弧法敷设..引水渠取40cm;深40cm;溢流口宽取30cm;深30cm..池壁外侧为防止降水入渗侵蚀池壁;引发渗漏;在池口四周平地面60cm范围内铺设散水;厚5cm;采用C20砼.二、设计图表见设计图表。
07s906蓄水池说明1.蓄水池根据上海市政工程设计研究院主编的04S803《圆形钢筋混凝土蓄水池》和05S804《矩形钢筋混凝土蓄水池》编制。
2.本图适用于民用建筑和一般工业建筑及城镇的给排水工程。
贮存常温无侵蚀性的水。
蓄水池一般用于下列情况:2.1净水厂及城市供水系统清水池。
2.2居住小区及民用建筑贮水池。
2.3工厂区:市政供水虽能满足一天的生产、生活用水量要求,但不能满足所需要的设计流量,则应按相关规范要求设置蓄水池。
2.4消防工程:市政管网不能满足工厂区、居住小区、建筑物消防供水要求时应设置消防水池。
2.5其他需要贮水的场合。
3.设计参数和基本要求3.1蓄水池池体3.11容积的确定蓄水池的有效容积应按下列要求确定,见表1.表1蓄水池有效贮水容积蓄水池的总容积包括有效贮水容积、池内结构(柱子、导流墙等)及抹面等所占容积、设计最低水位至池底的容积、设计最高水位至顶板底所占的容积。
水池的最高设计水位应根据进水管设置方式、防污染要求及安全超高等因素确定。
设计最低水位应根据池底积泥高度、泵吸水管喇叭口淹没深度及吸水管流速大小等因素确定。
图中所示容积为蓄水池的公称容积。
3.1.2蓄水池的材质、形状、尺寸和个数水池可采用多种材质,但埋地水池一般采用钢筋混凝土结构。
其平面尺寸应根据所处场地条件及结构经济合理确定,应尽量减少占地面积;水深不宜过浅,一般可为 3.5~4.5m。
本图集的埋地式钢筋混凝土蓄水池,有圆形、矩形和方形。
公称容积均有50m3、100m3、150m3、200m3、300m3、400m3、500m3、600m3、800m3、1000m3、1500m3和2000m3,共12个规格。
覆土厚度分为500mm 和1000mm两类。
地下水位允许高出底板面上的高度详见各种规格水池的总布置图。
净水厂的清水池其个数或分格数,一般不得少于2个,在有特殊措施能保证水要求时亦可建一个。
居住小区的蓄水池和建筑物内低位蓄水池宜分成基本相等的两个(格),容量超过1000m3应分成两格或分设两个,消防水池总容量超过500 m3时应分成两个。
装配式蓄水池的结构原理-概述说明以及解释1.引言1.1 概述装配式蓄水池是一种新型的水利工程设施,它采用了模块化设计和装配式组装的方式,具有便捷快速、灵活可变等特点。
在当前水资源日益紧缺的情况下,装配式蓄水池的应用具有重要意义。
通过对水资源进行有效的储存与管理,可以保证农田灌溉、城市供水和生态环境的可持续发展。
装配式蓄水池的结构原理主要包括蓄水池本体结构和支撑系统。
蓄水池本体结构由一系列互相连接的模块构成,每个模块具有一定的尺寸和容积,可以根据需要进行自由组合。
这使得蓄水池的规模可以根据实际情况进行灵活调整,适应不同地区的水资源管理需求。
同时,模块化设计还能够减少施工工期,提高工程效率。
支撑系统是装配式蓄水池的重要组成部分,它主要负责承载和支撑蓄水池的结构体系。
支撑系统包括基础和支撑构件,基础一般采用混凝土或钢结构,具有稳定性和承载能力强的特点。
而支撑构件则通过连接器将各个模块进行固定,保证蓄水池整体的稳定性。
装配式蓄水池的结构原理不仅具有简单、灵活的特点,还能够提供多种功能。
例如,可以在蓄水池的周围布置防渗隔离层,以防止水资源的浪费和土壤的污染。
此外,蓄水池还可以与其他水利工程设施相结合,如水泵、水流控制系统等,实现对水资源的高效利用。
综上所述,装配式蓄水池是一种具有创新性和实用性的水利工程设施,其结构原理主要包括蓄水池本体结构和支撑系统。
通过灵活调整蓄水池的规模和有效利用水资源,装配式蓄水池有望成为解决水资源短缺问题的重要途径。
1.2 文章结构本文主要围绕装配式蓄水池的结构原理展开讨论。
文章分为引言、正文和结论三个部分。
引言部分首先对装配式蓄水池进行了概述,简要介绍了其定义、背景和应用领域,引出了研究该主题的目的。
接下来,本文的文章结构也在引言部分进行了说明,包括正文和结论两个部分。
这样的结构安排旨在让读者能够清晰地了解文章的整体逻辑和阅读脉络。
接下来的正文部分将详细介绍装配式蓄水池的结构原理。
砖砌蓄水池设计方案首先,我们需要选择一个合适的位置来建造蓄水池。
最理想的位置是在有丰富降雨的山区或丘陵地带,这样可以充分利用自然的水资源。
此外,该区域应尽量远离农业和工业废水排放口,以避免水质受到污染。
其次,我们需要确定蓄水池的规模和形状。
规模主要取决于周围地形的降雨量和水的需求量。
一般来说,蓄水池的容量应能满足一定期限内的用水需求,并且需要有一定的储水能力来应对干旱等特殊情况。
第三,我们需要进行合理的排水设计。
蓄水池应该有一个排水孔,用于排除杂质和过剩水分。
这个排水孔应该在蓄水池底部的最低点,并与所在地区的排水系统相连接。
接下来,我们需要选择合适的建筑材料和工艺。
砖是最常用的建筑材料之一,因为它具有良好的耐久性和承重能力。
为了增加蓄水池的稳定性,建议在内部墙面打磨并加上一层防水材料,如水泥浆或聚合物涂料。
此外,我们还需要考虑蓄水池的保温和防漏问题。
保温可以通过在蓄水池的表面增加一层保温材料来实现,如泡沫塑料或土壤。
而防漏可以通过选择合适的地面材料和施工工艺,如在蓄水池底部和侧壁铺设防水层来实现。
最后,我们需要进行合理的管理和维护。
蓄水池应该定期清理杂质和沉渣,以保持水质清洁。
此外,我们还可以考虑增加一些水处理设备,如过滤器和消毒器,以提高水质。
总之,砖砌蓄水池设计方案需要综合考虑地形、降雨量、用水需求和材料等因素,并付诸实际施工和维护中进行不断的调整和改进。
只有在科学合理的设计下,才能充分发挥蓄水池的功能,并为水资源管理做出贡献。
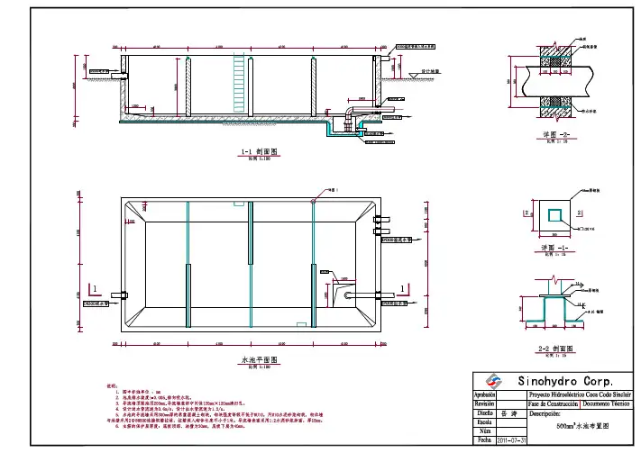
500立方水池结构计算1.设计计算参考的规范规程CECS138-2002 给水排水工程钢筋混凝土水池结构设计规程GB50010-2002混凝土结构设计规范GB50007-2002 建筑地基基础设计规范2.水池荷载及几何尺寸该水池设计蓄水量500立方,净宽8.2米,净长16.4米,净深3.8米。
水池内部设3 堵导流隔墙。
导流墙高3.8米,长4.1米,厚30cm。
水池顶部宽度方向,设3根B□100×6 的方管用做联系杆。
该水池设计采用钢筋混凝土结构。
水池底板埋深为2.5米。
水池壁外侧覆土重度为18KN/m³。
3.结构计算水池的结构计算采用structural 2011结构计算软件对其进行电算。
水池底板结构简化为弹性地基板。
水池四周覆土2.5米厚。
计算分为两种荷载情况进行计算,一种为水池满水状态。
另一种为水池的无蓄水状态。
导流墙部分只起对水的导流作用,不参与结构受力,所以在结构计算时不加载导流墙结构部分。
3.1 水池无蓄水状态结构计算。
水池在无蓄水状态时的荷载情况为只承担水池周围回填土的土压力和自重,设计计算土的重度为18KN/m³ 。
3.1.1 受力分布及YY方向的弯矩分布图水池在该荷载情况下最大弯矩为20KNm/m。
最大弯矩所在位置见上图。
3.1.2 XX方向弯矩分布图。
XX方向最大弯矩为 24.78KNm/m。
最大弯矩所在位置见上图3.1.3 无蓄水状态下YY方向剪力分布图。
YY方向最大剪力为26KN/m 最大剪力所在位置见上图所示。
3.1.4 无蓄水状态下XX方向剪力分布图。
XX方向最大剪力为56KN/m ,最大剪力所在位置见上图。
3.1.5 水池在无蓄水状态时XX向轴向力分布图3.2 水池在满水状态下结构计算水池在满水状态时除承担水池外侧土压力的荷载外,同时还要承担水池内的水压力的荷载。
考虑到导流墙设计为砌体结构,在满水状态时对水池的约束力不够大。
所以在进行水池的满水状态结构计算时不考虑导流墙对水池结构的影响。
雨水调蓄池设计【篇一:新建雨水调蓄池人工探孔施工方案】目录一、编制依照 (3)二、工程概略 (3)2.1 工程概略 (3)2.2 地下管线 (4)2.3 地质水文条件 (5)三、施工准备 (6)3.1 技术准备 (6)3.2 机具准备 (7)3.3 资料准备 (7)四、施工安排 (8)4.1 整体安排 (8)4.2 工期安排 (8)4.3 劳动力组织 (8)五、主要施工方法 (9)5.1 施工工序及工艺 (9)5.2 施工丈量 (10)5.3 探坑施工 (10)5.4 浇筑护壁混凝土 (12)5.5 查收检查 (13)六、质量保证举措 (13)6.1 针对性举措 (13)6.2 其余举措 (13)七、安全保证举措 (14)7.1 安全管理制度 (14)7.2 施工安全举措 (15)八、应急举措 (16)8.1 防塌方 (16)8.3 防坠落 (18)8.4 防中毒 (19)附件:护壁设计及计算 (20)一、编制依照1 、潘家园桥、华威桥桥区积水治理工程(左安东路雨水泵站升级改造工程)施工设计图2 、潘家园桥、华威桥桥区积水治理工程(左安东路雨水泵站升级改造工程)施工组织设计3 、潘家园桥、华威桥桥区积水治理工程(左安东路雨水泵站升级改造工程)岩土工程勘探阶段报告4 、《建筑工程施工组织设计管理规程》db11/t363-20065 、《建筑施工手册(第四版缩印本)》6 、《建筑工程冬期施工规程》 jgj104-2011 ;7 、《市政基础设备工程质量查收与查收一致标准》dbj01-90-20048 、《工程丈量规范》 gb50026-20079 、《建设工程施工现场安全资料管理规程》db11 /383-200610 、《绿色施工管理规程》db11 /513-200811、施工设计文件中指定的标准、规范、规程及现行国家及北京市的有关法例、技术规范;国家、部委和北京市有关安全、质量、查收等的方面标准及规范。
森林消防蓄水池建设技术规程-概述说明以及解释1.引言撰写1.1 概述部分内容:概述部分旨在介绍本文文章的主题和背景,为读者提供一个整体的了解。
本文将围绕森林消防蓄水池建设技术规程展开阐述,探讨其必要性、设计原则以及技术要点。
森林作为一种特殊的自然资源和重要的生态系统,常面临着林火等自然灾害的威胁。
因此,建设森林消防蓄水池作为预防和应对森林火灾的一种有效手段,已成为当代社会关注的热点问题。
在引言部分的概述中,将首先简要概述本文的结构和内容安排。
随后,将明确本文的目的所在,即通过探讨森林消防蓄水池建设技术规程的相关要点,提供给读者一个全面和系统化的指导,以确保森林火灾防控工作有效进行。
同时,本文也将对未来森林消防蓄水池建设的发展进行展望,以更好地应对日益严峻的森林防火挑战。
在本文的正文部分,将首先介绍森林消防蓄水池建设的必要性,从森林防火的角度探讨为何需要建设蓄水池,以及它们在防火工作中的重要作用。
接下来,本文将详细探讨森林消防蓄水池的设计原则,包括位置选择、容量设计、结构要求等方面。
最后,本文将列举蓄水池建设的技术要点,包括施工工艺、监测与管理、保养维护等方面,以指导实际工程的落地实施。
最后,文章的结论部分将对前文的内容进行总结,并强调森林消防蓄水池建设在森林防火工作中的重要性。
此外,文章还会对未来森林消防蓄水池建设的发展提出展望,提醒相关部门和社会各界进一步加强对森林防火工作的重视,推进技术规程的不断完善和创新,以更好地保护森林资源和生态环境。
1.2 文章结构本文共分为引言、正文和结论三个部分。
引言部分主要对整篇文章进行概述,介绍了本文的目的和结构。
接下来的正文部分包括了蓄水池建设的必要性、森林消防蓄水池的设计原则以及蓄水池建设的技术要点三个方面的内容。
最后的结论部分总结了全文的主要观点,并对未来发展进行了展望,强调了森林消防蓄水池建设的重要性。
在正文部分,2.1节首先阐述了蓄水池建设的必要性,从预防火灾、提高灭火效率、保护生态环境等多个角度进行论述。
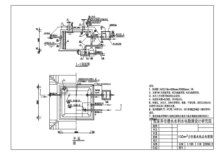
雨水蓄水池设计篇一:雨水收集2014 技术要求】雨水回收系统的说明一.概况1 新建雨水池位于isg 工厂东南侧,现有树木位置。
配提升泵,用于雨水利用。
配排污泵,用于污物排弃.原100 立方米水池现800 立方米水池2 雨水首先进原有雨水回用水池(100 立方米),再进800 立方米水池,满后沿现有积水坑沿沟渠排走。
项目区域内的雨水经过管网汇总至y56---y57 管网后,在雨水进入提升泵坑之前,由初期雨水分流井把雨水引入雨水调蓄池(800m3 ),调蓄池水满以后,雨水溢流到提升泵坑,由提升泵提升至排水明沟排出。
具体流程如下3 收集雨水接绿化中水管网,浇水使用。
4 原植物恢复,不影响工厂绿化,植被。
二.方案(一).雨水处理回用系统1. 雨水处理回用工艺流程雨水收集利用系统流程(含原设备)雨水经雨水收集管网汇集至南侧排水管,雨水进入原100 立方蓄水池以及新建的800 立方(地埋式水池尺寸为23m*17.8m*2.4m, 地埋深度约 2.8 米)蓄水池,当两雨水蓄水池满水时,多余的雨水量进行弃流。
蓄水池中的雨水按照用水需求、经雨水处理站之后,蓄水池回用泵管道接现有中水浇灌管网,以及预留阀门,以供回用,蓄水池污水水泵管道接现排水沟渠,以便排污。
三.雨水处理回用系统由雨水分流井,蓄水池,水泵设备,配套管路组成. 在水池前端设置初雨分流井,经弃流后,雨水进入雨水收集水池,后经水泵提升后送入厂区绿化系统和景观水体,作为绿化和景观的补充水源。
弃流雨水排入污水管道或下游雨水管道。
雨水初期弃流,采用溢流堰式初期雨水分流井, 雨水初期弃流井穿墙预埋管使用刚性防水套管。
初雨分流井为现浇混凝土井,做法参见《国家建筑标准设计图集》02s515 第33 页标准图。
800 立方蓄水池, 用于收集雨水的储存装置,采用成品组合装配式pp方块,聚丙烯塑料模块相组合,形成一个地下水池,包裹防渗不透水的土工布,作成贮水型水池。
水池上方恢复为绿地,回植树木等, 雨水储水池:采用pp 模块组合水池,每块单体尺寸为800*400*440 (h),承压≥0.22n/mm2,层间采用共用板的形式进行连接,列间采用连接卡,进行连接。
施工组织设计一、工程概述1、文字说明本工程为______ 冬季应急供水蓄水池工程,包括500立方米蓄水池一座、管路安装溢水井一座以及彩钢房一座。
2、结构形式及建材标准本工程受力钢筋采用I、H级,分布筋和构造筋采用I级。
蓄水池:米用C25S&昆凝土。
3、施工条件本工程位于________ 穆棱河滩地,交通便利。
开工日期2012年11月15日,竣工日期为2013年1月10日,工期为57天。
二、施工方案本工程需要冬季施工,混凝土主要用配合比和保温的方法施工。
本工程分基础、主体、管路、保温房四个施工阶段。
1、基础阶段:土方采用挖掘机开挖至设计工程以上10—20厘米,再用人工清理。
开挖前需要用井点降水的方法降低地下水水位。
2、主体阶段:先做垫层一吸水坑一蓄水池池底一支柱一蓄水池池壁一导流墙一蓄水池顶板一导流墙抹灰---安装管路---溢水池一保温房。
3、土方回填三、重要工序的施工方法一、地基与基础工程(一)土方工程1、土方开挖前对现场布置的座标控制点、水准点、龙门板、中心桩等进行校核并妥为保护2、开挖的平面尺寸,深度、放坡符合人工挖土0.42的放坡系数,做好边坡的排水和支护,以保持边坡的稳定。
3、开挖宽度根据土质情况和设计的基坑宽度要求确定。
挖出的弃土堆放到距基边1m以外,并不碰撞龙门板桩,堆置高度不超过 1.5m。
(二)砼柱基工程1、砼所用水泥、砂、石等材料符合要求,现场应有充足、洁净的水源。
电源线路的电流,电压等均应符合要求,并保证不中断。
2、严格掌握水灰比,严禁任意加水来增加坍落度,对重要结构梁、板、柱的砼构件,使用同品种、同标号普通32.5R标号的水泥。
3、砼在运输过程中,应保持其匀质性,做到不分层、不离析、不漏浆、保持较好的和易性和坍落度。
4、砼采用汽车吊运至施工现场时,随即进行浇筑,并在初凝时间45 分钟前浇筑完毕。
浇筑过程中,操作人员严禁在模板支撑和钢筋上行走。
5、在浇筑竖向结构砼前,应先在底部填以50~100mm厚与砼内砂浆成分相同的水泥砂浆。
05S804矩形钢筋混凝土蓄水池一、概述二、基本概念05S804矩形钢筋混凝土蓄水池是一种用于储存水或其他液体的建筑结构,其主要由底板、墙体和顶板组成,通常设有进水口、出水口、溢流口、排空口、检查孔等附属构件。
05S804矩形钢筋混凝土蓄水池的特点是结构简单、造价低廉、维护方便,适用于各种场地条件和用水需求。
三、结构类型单层多室蓄水池:只有一层但有多个相互隔开的室的蓄水池,适用于储存量较大或需要分别控制各室水位的情况。
多层单室蓄水池:有多层但只有一个共用的室的蓄水池,适用于场地条件较差或需要节省占地面积的情况。
多层多室蓄水池:有多层且每层有多个相互隔开的室的蓄水池,适用于储存量非常大或需要分别控制各层各室水位的情况。
四、设计原则满足功能要求:根据用水性质、用水量和用水频率等因素,确定蓄水池的类型、容积和布置方式,保证供水质量和供水稳定性。
合理选取结构参数:根据场地条件、地质条件和荷载作用等因素,确定蓄水池的尺寸、形状和位置,使结构受力合理,安全性能可靠。
简化结构形式:尽可能采用规则的矩形平面和简单的截面形式,避免使用复杂的曲线或变截面结构,以降低设计难度和施工成本。
考虑施工工艺:在设计过程中,充分考虑施工条件和施工方法,选择合适的材料和构件,制定详细的施工图和施工说明,以便于施工人员正确执行。
五、计算方法荷载计算:根据蓄水池的类型、容积和位置,确定蓄水池所受的各种荷载,包括自重、水压、土压、风荷载、雪荷载、温度荷载等,并按照规范要求进行荷载组合。
结构分析:根据蓄水池的结构形式和受力特点,采用适当的分析方法,计算蓄水池各部分的内力和变形,包括底板、墙体和顶板的弯矩、剪力、轴力和挠度等,并进行验算。
截面设计:根据蓄水池各部分的内力和变形,按照规范要求,设计蓄水池各部分的截面尺寸和配筋情况,包括底板、墙体和顶板的厚度、宽度、钢筋直径、钢筋间距等,并进行验算。
裂缝控制:根据蓄水池的用途和环境条件,按照规范要求,控制蓄水池各部分的裂缝宽度和裂缝数量,采用适当的措施,如增加钢筋率、设置缩小节、设置止水带等,以防止渗漏和腐蚀。
蓄水池设计说明公司内部编号:(GOOD-TMMT-MMUT-UUPTY-UUYY-DTTI-蓄水池设计说明2012年****农业开发项目设计规划新建蓄水池11口,一方面拦蓄坡面径流,防止冲毁耕地和减少水土流失,另一方面解决项目区部分旱地浇灌。
蓄水池布置在坡面汇流的低凹处,采用全埋式圆形开敞式结构。
当池址无法避开岩基,开挖比较困难时,可选用半埋式蓄水池。
在布置时充分考虑了尽量少占耕地,来水充足,蓄引方便,造价低,基础稳固等因素。
蓄水池由池体、梯步、护栏、附属设施组成。
一、蓄水池设计1、蓄水池的容量设计蓄水池的容量按下式计算:V=KVw式中:V—蓄水池容量m3Vw—设计频率暴雨径流量,m3。
K—安全系数,取。
式中:Vw值的计算两种情况:1)蓄水池在坡面小型蓄排工程系统之中,与坡耕地背终端相连,并以沟中排水为其主要水源时,其Vw值根据排水沟的设计排水量计算。
2)蓄水池不在坡面小型蓄排工程系统之中,需独立计算暴雨径流量时,用下式计算:Vw=MF式中:M—设计频率一次暴雨径流模数,m3/亩;F—蓄水池的集雨面积,亩。
本规划中按此种情况确定蓄水池容积,经计算,本次规划所选定的 11处蓄水池位置的集雨面积均在1亩左右,可满足容积为100 m3蓄水池要求。
考虑实际情况及业主、村民建议,新建蓄水池设计为容积50 m3圆形蓄水池。
11口蓄水池采用统一设计图。
2、池体由池身、溢洪口、池沿、池底构成池身采用水泥砂浆砌砖(具体参数见《工程设计图册》)。
迎水面采用M10水泥砂浆抹面,厚度2cm。
溢流口设置在池壁的正常蓄水位处,并修建溢洪渠。
池沿:全埋式蓄水池池沿应高出地面30cm。
池底:对土基进行开挖整平,若遇软基等不利地质条件,应进行地基处理,保证地基承载力≥150kPa;对岩基应人工打平,如有裂缝应先凿槽(槽宽2~3cm,槽深5~8cm)。
清扫干净后,应进行分层夯实,每层铺土不大于10cm,夯实后表面整平。
池底采用C20砼现浇,厚度10cm。
施工设计一、项目概况1.文字说明这个项目是冬季应急供水水库工程包括一座500立方米的水库、一座用于管道安装的溢流井和一座彩钢房。
2、结构形式及建材标准本工程受力钢筋为Ⅰ、Ⅱ级,配电钢筋和结构钢筋为Ⅰ级。
水库:使用C25S6混凝土。
三、建设条件该项目位于木岭河滩,交通便利。
开工日期为2012年11月15日,竣工日期为2013年1月10日,工期57天。
2、建设方案本工程需冬季施工,混凝土主要采用配合比和保温法施工。
本工程分为基础、主体、管道、保温室四个施工阶段。
1、基础阶段:用挖掘机将土方开挖至设计项目上方10-20厘米,然后人工清理。
开挖前需通过井点降水降低地下水位。
2、主阶段:先做垫层——吸水坑——蓄水池底部——立柱——蓄水池壁——导流墙——蓄水池顶板——导流墙抹灰——管道安装——溢流池——保温室。
3.土方回填三、重要工序的施工方法1、地基及基础工程(1) 土方工程1、土方开挖前,检查并妥善保护坐标控制点、基准点、龙门板、中心桩等。
2、基坑的平面尺寸、深度和级配符合人工开挖的级配系数0.42,并做好边坡的排水和支护,以保持边坡的稳定性。
3、开挖宽度根据土质条件和设计基坑宽度要求确定。
挖出的弃土堆放至距基边1m,不得与龙门板桩相撞,堆放高度不得超过1.5m。
(2) 混凝土柱基础工程1、混凝土中使用的水泥、砂、石等材料符合要求,现场应有充足、清洁的水源。
电源线的电流、电压等应符合要求并保证不间断。
2、严格控制水灰比,严禁随意加水增加坍落度。
重要结构梁、板、柱的混凝土构件,采用与普通32.5R级同等级、同等级的水泥。
3、混凝土在运输过程中应保持其均匀性,不分层、不离析、不漏浆,并保持良好的和易性和坍落度。
4、混凝土用卡车吊运到工地后,立即浇筑,在初凝时间前45分钟浇筑完成。
浇筑过程中严禁操作人员在模板支架和钢筋上行走。
5、竖向结构混凝土浇筑前,底部应填入与混凝土中砂浆厚度相同的50~100mm水泥砂浆。
蓄水池护坡标准概述说明以及解释1. 引言1.1 概述蓄水池是一种重要的水资源利用和管理设施,广泛应用于农田灌溉、城市供水以及工业生产等领域。
在蓄水池的建设和运维中,护坡工程是确保蓄水池安全稳定运行的一项关键措施。
蓄水池护坡标准作为规范护坡设计、施工和维护的依据,对于保障蓄水池的正常运行具有重要意义。
1.2 文章结构本文将围绕蓄水池护坡标准展开深入研究。
首先介绍蓄水池护坡标准的定义,并阐述其功能与重要性。
接着论述制定标准的必要性,探讨了为何需要明确规范化的护坡标准。
在第三部分中,我们将概述护坡标准的基本原则与目标,并详细介绍相关材料与构造要求以及监测与维护措施。
在第四部分中,我们将分析实施蓄水池护坡标准涉及的过程及解决问题方法,并评估其效果并应用具体案例进行分析。
最后,在结论部分总结文章的主要观点,并提出对蓄水池护坡标准进一步研究的建议。
1.3 目的本文旨在深入探讨蓄水池护坡标准的相关问题,对护坡工程的设计、实施和维护提供参考依据。
通过对各个方面的详细概述和解释,希望能够加强人们对蓄水池护坡标准重要性和必要性的认识,同时为相关从业人员提供指导和借鉴。
通过本文的撰写与研究,将促进蓄水池护坡标准发展与完善,并为保障蓄水池安全稳定运行做出贡献。
2. 蓄水池护坡标准:2.1 定义:蓄水池护坡标准是指在建设和维护蓄水池时所制定的一系列规范和要求,用于保护蓄水池周围的坡面不受侵蚀、塌方等自然灾害的影响,确保蓄水池的安全性和可持续性发展。
2.2 功能与重要性:蓄水池护坡标准具有以下功能和重要性:- 防止坡面侵蚀:通过采用合适的护坡措施,如梯田状种植、覆盖植被等方式,减少降雨冲刷导致的坡面侵蚀,保持土壤结构的完整性。
- 防治塌方灾害:通过建设坡面排水系统、加固边坡等手段,提高坡体稳定性,避免因自然灾害或人为因素引起的塌方事故。
- 保障蓄水池安全运行:良好的护坡标准能够有效地改善蓄水池周边环境质量,降低泥沙淤积、水质污染等问题,确保蓄水池的长期安全运行。
蓄水池设计说明
集团文件版本号:(M928-T898-M248-WU2669-I2896-DQ586-M1988)
蓄水池设计说明
2012年****农业开发项目设计规划新建蓄水池11口,一方面拦蓄坡面径流,防止冲毁耕地和减少水土流失,另一方面解决项目区部分旱地浇灌。
蓄水池布置在坡面汇流的低凹处,采用全埋式圆形开敞式结构。
当池址无法避开岩基,开挖比较困难时,可选用半埋式蓄水池。
在布置时充分考虑了尽量少占耕地,来水充足,蓄引方便,造价低,基础稳固等因素。
蓄水池由池体、梯步、护栏、附属设施组成。
一、蓄水池设计
1、蓄水池的容量设计
蓄水池的容量按下式计算:
V=KVw
式中:V—蓄水池容量m3
Vw—设计频率暴雨径流量,m3。
K—安全系数,取1.2。
式中:Vw值的计算两种情况:
1)蓄水池在坡面小型蓄排工程系统之中,与坡耕地背终端相连,并以沟中排水为其主要水源时,其Vw值根据排水沟的设计排水量计算。
2)蓄水池不在坡面小型蓄排工程系统之中,需独立计算暴雨径流量时,用下式计算:
Vw=MF
式中:M—设计频率一次暴雨径流模数,m3/亩;
F—蓄水池的集雨面积,亩。
本规划中按此种情况确定蓄水池容积,经计算,本次规划所选定的 11处蓄
水池位置的集雨面积均在1亩左右,可满足容积为100 m3蓄水池要求。
考虑实际情况及业主、村民建议,新建蓄水池设计为容积50 m3圆形蓄水池。
11口蓄水池采用统一设计图。
2、池体由池身、溢洪口、池沿、池底构成
池身采用M7.5水泥砂浆砌砖(具体参数见《工程设计图册》)。
迎水面采用M10水泥砂浆抹面,厚度2cm。
溢流口设置在池壁的正常蓄水位处,并修建溢洪渠。
池沿:全埋式蓄水池池沿应高出地面30cm。
池底:对土基进行开挖整平,若遇软基等不利地质条件,应进行地基处理,保证地基承载力≥150kPa;对岩基应人工打平,如有裂缝应先凿槽(槽宽2~3cm,槽深5~8cm)。
清扫干净后,应进行分层夯实,每层铺土不大于10cm,夯实后表面整平。
池底采用C20砼现浇,厚度10cm。
靠墙体倒45°衬护,高度为15cm。
砼振捣密实后,用原浆表面抹光,增加抗渗性。
梯步:每层梯步宽36cm,高20cm,采用M7.5浆砌砖砌筑,加盖砼预制板,宽1m。
护栏:池沿护栏采用M7.5浆砌砖修筑,坐在池壁上,高110cm,厚12cm,梯步处留出1m宽;梯步护栏采用钢筋砼预制件护栏安装,设计高1.1m。
3、引排水渠、溢洪口与散水等附属设施
引排水渠:衬砌长度不小于50m,坡度不小于1/300,土渠坡度不小于1/500,弯道用正规圆弧法敷设。
引水渠取40cm,深40cm;溢流口宽取30cm,深30cm。
池壁外侧为防止降水入渗侵蚀池壁,引发渗漏,在池口四周平地面60cm范围内铺设散水,厚5cm,采用C20砼.
二、设计图表
见设计图表。