地下车库通风排烟系统设计
- 格式:doc
- 大小:114.50 KB
- 文档页数:8
交流主题:地下车库的防排烟设计专家观点:建议平时排风及火灾排烟共用系统一、地下停车场有害物的种类及危害枫松柏说:氧化物(NOX)等有害物。
它们来源于曲轴箱及排气系统。
燃油箱、化油器的污染物主要为碳氢化合物(HC),即由燃油气形成的。
若控制不好,其污染物将达到总污染物的15%~20%;由曲轴箱泄漏的污染物同汽车尾气的成分相似,主要有害物为CO、HC、(NOX)等。
有的汽油内加有四乙基铅作抗爆剂,致使排出的尾气中含有大量铅成分,其毒性比有机铅大100倍,对人体的健康和安全很危害很大,其表现有:(1)一氧化碳是最易中毒且中毒情况最多的一种气体,它是碳不完全燃烧的产物。
当人吸入一氧化碳,经肺吸收进入血液。
因一氧化碳与血红蛋白的亲和能力比氧气大210倍,因而很快形成碳氧血色素,阻碍了血色素输送氧气的能力,导致人严重缺氧,发生中毒现象。
(2)大量的氮氧化合物(NOX)排到空气中也引起人们的中毒,对粘膜、吸收道、神经系统、造血系统引起损害。
(3)汽油热气内毒性最大的是芳香的碳氢化合物,各种牌号的汽油内芳香的碳氢化合物的含量一般为2%~16%。
当人们吸入汽油蒸气后,会引起人的特殊的刺激(以如麻醉)。
当中毒严重时,将会导致人们丧失知觉,并引起痉挛。
(4)有易燃易爆危险。
汽油发爆极限为下限2.5%,上限为4.8%。
当空气内一氧化碳的含量为15%~75%时,一氧化碳也会发生爆炸。
怠速状态下,CO、HC、NOX三种有害物散发量的比例大约为7:1.5:0.2。
由此可见,CO是主要的。
根据TT36-79《工业企业设计卫生标准》,只要提供充足的新鲜的空气,将空气中的CO浓度稀释到《标准》规定的范围以下,HC、NOX均能满足《标准》的要求。
二、地下车库的气流分布枫松柏说:根据上述关于《地下停车场有害物的种类及危害》,则对于车库内的送排风气流有了很高的要求,即要排除比空气重的汽车尾气,又要排除比空气轻的CO。
所以对于车库的送排风口的设置提出了要求。
地下汽车库排烟系统及通风系统设计要点分析摘要:本文作者结合实际工作经验,对地下车库排烟系统及通风系统设计的要点进行了分析介绍,供大家参考。
关键词:地下车库;排烟系统;通风系统;设计要点;分析地下汽车库在现代建筑中,变得越来越普遍,包含着消防水池,水泵房,配电室,变电站,换热站,锅炉房等等关乎小区建筑“心脏”的重要“房间”,还有车库顶下各种设备,电气管线,现就其中防排烟系统的设计,就一些大家都都关心的问题,给出自己的理解,抛砖引玉,和大家共同提高,把车库的防排烟系统设计好。
第一,风井位置选择,一般选在以楼梯间为一侧,做管道井,做成和墙一样,在外面看到的是一面墙,风井升到车库地面上以后,可以背靠着楼梯间的地面部分外墙,不至于被风刮倾斜。
这里需要注意的是,不能违反《建筑防火设计规范》GB50013-2006,9.4.7条:“机械加压送风防烟系统和排烟补风系统的室外进风口宜布置在室外排烟口的下方,且高度不宜小于3.0 m;当水平布置时,水平距离不宜小于10m。
”对于这一条,排烟井选择一个楼梯间设,补风井在另一个楼梯间设置是比较科学的,在同一个楼梯间两边,即设置送风井又设置排烟井,水平距离难以达到规范要求不宜小于10m,在实际工程中宜尽量避免。
第二,送风,排风系统及补风,排烟系统选择:1.经过比较,选用排烟及排风系统风机共用,风管共用,风口共用控制简单,系统简单。
排烟及排风均按照不小于6次/小时的换气量考虑,车库层高小于6m 时,均按照3m高度计算换气体积,计算出来排烟量及排风量相同,风口可选用单层百叶风口,上部排烟及排风,之所以可以上部排烟,是因为,传统“从下部排风的目的是排除含铅汽油中的含铅气体,铅的比重大,沉积在下部,考虑到今后使用的汽油中不会含铅,同时汽车库一般层高较矮,在汽车行驶的扰动下,室内有害气体的可能性较小。
”详见《暖通空调工程设计方法与系统分析》一书8.6“地下汽车库的排烟设计”一节的描述。
地下车库防排烟系统设计摘要:根据国家相关建筑通风及防火规范,对建筑物地下车库的防排烟系统设计进行了分析,介绍了地下车库防排烟系统的设计要求和方法,并根据实例分析,让大家对地下车库的防排烟设计有比较全面的了解。
关键词:防排烟;地下车库;防火规范Abstract: According to the national related building ventilation and fire the specification, to the building of underground garage, smoke control system design are analyzed, and introduces the underground garage smoke control system design requirements and methods, and according to the example analysis, let everyone to the underground garage smoke design have more comprehensive understanding.Key Words: smoke; underground garage; code for fire protection一、前言随着地下停车场、车库建设的快速发展,解决防排烟问题成为了设计的主要内容之一。
所谓的防排烟就是满足火灾时的排烟要求,以保证火灾发生时迅速排除滞留烟气,限制烟气的扩散,保证人员和车辆安全撤离现场,从而减少伤亡。
地下汽车库的排烟方式为全面通风方式,即按划分的若干个防火分区,有若干个送、排风系统。
二、地下车库防排烟系统设计原则(1)地下车库一般应设机械排烟系统,排风量应按稀释废气量计算。
如果没有计算资料时,可考虑换气次数计算,一般排风不小于6次/h,送风不小于5次/h。
地下汽车库排烟与通风系统设计地下汽车库排烟与通风系统设计具体内容是什么,下面本店铺为大家解答。
近几年,随着我国国民经济的快速发展,人民生活水平显著提高。
家用中、小型汽车数量正在迅速增长,而可用土地资源正日益减少,随之带来了停车难的问题。
因此,绝大多数的房地产开发商通过建造地下汽车库来解决停车难的问题。
1 防火、防烟分区的划分根据《汽车库、修车库、停车库设计防火规范》(GB50067—97)(以下简称《汽车库防火规范》)的规定,地下汽车库防火分区的最大允许建筑面积为2000㎡(不包括复式汽车库及甲、乙类物品运输车汽车库),当汽车库内设有自动灭火系统时,面积可增加一倍,即为4000㎡。
而《汽车库防火规范》规定,停车数量超过10辆的地下汽车库应设置自动灭火系统。
2 排烟、排风系统设计排烟系统:烟气由排烟口→风管→排烟防火阀→消声静压箱→消防排烟(排风)风机→消声器→止回阀→机房竖井→单层防雨百叶窗→室外排风系统:废气由诱导风机→排风口→防火阀→消声静压箱→消防排烟(排风)风机→消声器→止回阀→机房竖井→单层防雨百叶窗→室外根据《汽车库防火规范》的规定,地下汽车库的排烟量应按换气次数不小于6次/h计算。
根据《全国民用建筑工程设计技术措施暖通空调·动力》的规定,地下汽车库的排风量应按换气次数不小于4~6次/h(根据车辆出入不频繁、一般、频繁而定)计算。
风量计算公式: Q=S.H.N式中: Q ——排烟(排风)风量,m³/h;S ——防烟分区面积,㎡;H ——地下汽车库高度,m;N ——换气次数,次/h。
(注:计算排烟量时,地下汽车库的计算高度取实际高度。
计算排风量时,当地下汽车库实际高度小于3m时,计算高度取实际高度,当地下汽车库实际高度大于3m时,计算高度取3m。
)排烟风机可采用离心风机或轴流风机,当选取风机时应考虑风机10%~20%的漏风率,即风机额定风量应为计算风量的1.1~1.2倍。
地下车库通风系统标准化设计一、基本规定1、根据《地下车库通风系统标准化设计》的实际工作要求,使得在常用地下汽车库建筑中,通风排烟系统模块化、标准化,特制定本标准作为技术储备.2、标准中只介绍民用建筑地下汽车库的通风设计,不包括地面停车场及多层汽车库。
3、当汽车库可开启门窗的面积≥0。
3㎡/辆且分布较均匀时,可采用机械排风、自然进风的通风方式。
4、车辆进、出口作为自然进风口的条件:当汽车库和坡道(挑檐)上均设有自动灭火设备的汽车库,开口处可设置防盗保温卷帘,可采用自然进风的方式。
5、当不具备自然进风条件时,应同时设置机械进、排风系统。
且机械进、排风系统的进风量应小于排风量,一般为排风量的80%-85%。
6、汽车库机械通风的进风量,可按体积换气次数或每辆车所需排气量进行计算。
7、对于大型车汽车库,为了节约能源,夜间(或使用备用电源)时,排风量允许降低为3次/h.8、汽车库的排风分上、下两部分,下不排除2/3,上不排除1/3。
送风宜顶部均匀送风。
9、本标准为远洋集团东北区域事业部批准颁发的技术性质的设计文件。
未经批准授权的单位和个人不得发行使用.二、通风方式及控制1、排风量计算1.1、按体积换气次数:当层高〈3m时,按实际高度计算换气体积;当层高〉3m时,按3m高度计算换气体积。
当汽车出入频率较大时,按6次/h换气计算,频率一般时按5次/h换气计算,住宅建筑可按4次/h换气计算。
1.2、按每辆车所需排气量:当汽车双层停放时,按每辆车所需排气量计算;按汽车出入频率的高、中、低,依次按照每辆车500—300m³/h计算。
2、通风方式:常规机械通风方式、诱导式机械通风方式。
当采用接风管的常规通风方式时,应注意气流分布的均匀,减少通风死角。
通风机宜采用多台并联或采用变频风机已达到通风量调节。
当车库层高较低,不宜布置风管式时,为了防止气流不畅,杜绝死角,宜采用诱导式通风系统.3、诱导式通风系统的数量:一般按每台负担150—150㎡的面积选择。
01、地下车库通风排烟概述地下车库位于地下,车库内行驶或停泊的汽车排出的废气不易扩散。
车库废气主要是一氧化碳,氮氧化合物等有害气体。
车库的通风就是排除汽车尾气和汽油蒸气,并向车库送入新鲜空气,把有害物的含量稀释到国家规定卫生标准要求。
地下车库一旦发生火灾,会产生大量的烟气,如果不能迅速排除,极易造成人员伤亡事故,也给消防人员进入地下车库扑救带来困难。
车库防排烟的目的就是满足火灾时的排烟要求,以保证火灾发生时迅速排除滞留烟气,限制烟气的扩散,保证人员和车辆安全撤离现场,减少伤亡。
02、地下车库通风排烟的特点车库防火分区和防烟分区面积较大:依据GB50067―14《汽车库、修车库、停车场设计防火规范》每个防火分区的最大允许建筑面积为2000,设置自动灭火系统的地下车库,其防火分区按4000划分,在每个防火分区内部一般划分两个防烟分区,每个面积不大于2000.车库层高:为减少土建的造价,车库层高控制应尽量低。
规范规定地下车库净高不得低于2.2m,因此本人觉得单层车库梁下净高不得小于2.8m,否则不能避让电缆桥架、消防喷淋管道等,风管布置相当有困难。
地面限制因素多:车库风机房的选择,既要考虑本专业的合理性,又要兼顾排风,竖井出地面的位置防火要求与周围建筑保持一定距离,而且也要结合景观不影响交通组织,另外送排风口还必须保证有一定的距离。
03、地下车库通风排烟设计要点一、地下车库通风设计1、设计原则:地下车库每个防火分区独立设置通风系统,尽量采用自然补风,节能运行。
排风机采用多台并联或采用变速风机,夜间及汽车出入不频繁时,风机风量可减少50%。
有条件时宜设置CO气体浓度传感器控制风机的运行。
2、排风量:车库机械排风的排风量,过去一直沿用6次/h换气次数对应的数值,但存在较为笼统、浪费能量等问题。
《全国民用建筑工程设计技术措施――暖通空调・动力(2009)》针对车库的具体状况,给出了不同的计算方法:排风量完全可以按照不同的情况选择,这样可以有利于节能。
浅谈人防地下车库的通风与排烟合用系统的设计方法摘要:本文主要阐述了人防地下车库的通风与排烟合用系统的设计方法。
关键词:人防地下车库;合用系统;系统设计;防火分区0 引言随着现代化大都市出现,高层建筑如雨后春笋般地破土而出。
它为城市增添现代气息、带来繁华,同时也为建筑设计带来新的问题、新的思考。
高层建筑既包括高层公共建筑又包括与多层居住建筑混合的住宅小区高层居住建筑;随之高层建筑人防地下室与地下车库也不断增多、面积不断扩大。
高层建筑人防地下室与地下车库通风与排烟设计显得更为重要。
本文将对高层建筑人防地下室与地下车库通风与排烟问题进行探讨。
1系统设计1.1地下车库通风系统与排烟系统设计高层建筑地下车库通风与排烟设计应同时执行《高层民用建筑设计防火规范》[1](以下简称《高规》)、《汽车库、修车库、停车场设计防火规范》[2](以下简称《汽防规》)、《汽车库建筑设计规范》[3](以下简称《汽规》)。
《汽防规》5.1.1条规定,地下汽车库每个防火分区的最大允许建筑面积为2000m2,当汽车库内设有自动灭火系统时,其防火分区的最大允许建筑面积为4000m2。
《汽防规》8.2.2条规定,设有机械排烟系统的汽车库,其每个防烟分区的建筑面积不宜超过2000㎡,其防烟分区不应跨越防火分区;排烟风机的排烟量应按换气次数不小于6次/h计算确定。
《汽规》6.3.4条规定,地下汽车库宜设置独立的送风、排风系统。
换气次数不应小于6次/h。
地下车库通风与排烟系统设计原则:减少机房,增加车位;减少风管交叉,降低建筑层高;宗旨为优化系统设计、降低造价。
所以设计采用平时通风、火灾时机械排烟合用系统,通过消防控制进行系统转换。
按照4000㎡一个防火分区仅设一个排风(烟)系统,每个防火分区的两个防烟分区的控制靠全自动排烟防火阀的启闭来完成。
对通风、排烟系统:机械排烟量等于机械排风量,应按换气次数不小于6次/h计算确定。
对进风系统:首先,汽车库内设有直接通向室外的汽车疏散出口的防火分区时,补风利用疏散出口自然补风;其次,无直接通向室外的汽车疏散出口的防火分区,采用机械补风,补风量不小于排风量50%。
地下车库通风\排烟系统设计形式分析摘要:针对地下车库通风、排烟系统的设计,本文对目前各种设计方式逐一进行了探讨,从原理、设计、使用及经济各方面进行比较、分析,提出来供大家参考。
关键词:地下车库机械排烟排风口排烟口一、前言近些年,随着城市的发展,人民生活水平的提高,家庭拥有私家车的比例迅速增长,相应地,车库建筑越来越多。
尤其是现代住宅区的用地紧张,更推进了地下车库的发展。
对于开发项目来说,为了减少工程造价,所以地下车库的层高一般都比较低,而且车库内管线多,布置复杂,顶板下一般均布置有强弱电、通风、排烟、消火栓及喷淋管线,所以在通风设计中,既要保证日常通风及火灾时排烟的要求,还要留有足够的空间,保证车辆的通行停泊。
二、规范要求:1.地下车库面积超过2000平方米时应设置机械排烟系统2.排风量与排烟量折成换气次数均不小于6次/h。
计算排风量时,若车库层高小于3米时,按实际高度计算换气体积,大于等于3米时,可按3米计算换气体积;计算排烟量时按实际高度计算换气体积3.排风系统宜按室内空间上、下两部分布置,上部地带按排出风量的1/2~1/3计算,下部地带按排出风量的1/2~2/3计算。
4.汽车库内无直接通向室外的汽车疏散出口的防火分区,当设置机械排烟系统时,应同时设置进风系统,且送风量不宜小于排烟量的50%。
三、传统设计方法排风、排烟系统及风机均合用,排风系统不做下部排风。
将所有排风口做成固定百叶风口,兼做火灾时排烟口使用,此方案排风、排烟系统简单,排风管仅需在排风机入口设280 ℃熔断防火阀,系统控制少。
但是在北方地区,由于冬季气候寒冷,汽车尾气在冷却后,大量沉积在车库底部,对人员造成危害,所以设下部排风很有必要。
四、优化后的各方案比较传统设计方法有待改进,所以下面就对几种常见设计方案进行比较(以一个防烟分区为例) 。
1方案一排风排烟风机合用,但风口完全分开设置。
设送风及排烟风管。
此系统的各排风口选用带防烟防火阀的风口,火灾时防火阀关闭,并开启板式排烟口,当烟温大于280 ℃时,排烟系统的280 ℃防火阀关闭,排烟停止。
地下车库通风与排烟系统设计刘姗姗摘㊀要:进入21世纪以后ꎬ我国经济高速发展ꎬ高层建筑如雨后春笋般拔地而起ꎬ与此同时ꎬ人们生活水平有了显著提高ꎬ私家车数量也与日俱增ꎮ这就使得 停车难ꎬ难停车 成了城市发展中亟待解决的问题ꎮ随着城市建筑的增多ꎬ城市用地紧张的状况将日趋明显ꎬ而车库的建设会加剧用地矛盾ꎮ在这种形势下ꎬ地下车库的建设就显得尤为必要ꎮ同时ꎬ我们必须认识到地下车库建设需要考虑诸多方面的问题ꎬ而通风与排烟系统设计是地下车库建设中必须要考虑的重大问题ꎬ因为地下车库处于半封闭状态ꎬ通风和排烟不畅会诱发火灾危险ꎮ文章主要探讨了地下车库通风与排烟系统设计中的相关问题ꎮ关键词:地下车库ꎻ通风ꎻ排烟系统ꎻ设计一㊁地下车库通风与排烟系统设计原则(一)要坚持最大限度地保证车位原则地下车库设计时首先要考虑的一个问题就是尽量不让风机房占用太多面积ꎬ这样才能保证充足的车位空间ꎬ避免 鸠占鹊巢 本末倒置ꎮ如果风机房占用了大量面积ꎬ即便地下车库通风和排烟效果良好ꎬ也无法满足地下车库的车位需求ꎬ会让地下车库原有的功能被削弱ꎮ因此ꎬ必须尽量合理设计和建造风机房ꎬ确保地下车库设计的合理性ꎮ(二)要坚持地下车库通风与排烟系统设计的优化原则ꎬ尽量减少整个系统的造价首先ꎬ要尽量减少通风与排烟系统风管风机数量ꎬ这个在选择通风与排烟系统时ꎬ可以选择平时排风㊁火灾时机械排烟的兼用系统ꎬ然后通过消防控制来进行系统转换ꎮ一般来说排风量按4~5次/小时来计算ꎬ排风管不管采用何种材质管中风速一般不超过8m/sꎻ排烟量按不小于6次/小时计算ꎬ采用金属管道时风速取值不大于20m/sꎬ采用内表面光滑的混凝土等非金属管道时风速取不大于15m/sꎬ这样看来我们按排烟量来选择风管基本满足排风量的要求ꎬ说明排烟系统兼排风系统是可行的ꎮ其次ꎬ合理设置防烟分区ꎬ合理布置机房ꎮ如果一个防火分区布置过多防烟分区ꎬ机房跟风机数量势必会增加这样就加大了造价ꎬ要是一个防火分区只设置一个防烟分区而面积又较大ꎬ这样看似机房只有一个风机只有一台ꎬ但是整个系统负荷会很大ꎬ风机选型加大ꎬ风管也要加大这样一来安装成本也不低同时由于系统高负荷运行ꎬ运行成本也不低ꎮ所以如何布置机房如何设置系统显得尤为重要ꎬ因此我们应该正确计算风量ꎬ配合建筑专业根据规范要求合理的划分防火防烟分区ꎮ(三)地下车库风机进风系统可以采用自然补风和机械补风两种形式首先是自然补风ꎬ这种方法主要是当地下车库内有直接通向室外的汽车疏散口的防火分区时ꎬ就可以利用这个直接的疏散出口进行自然补风ꎮ而当车库内没有直接通向室外的汽车疏散口的防火分区ꎬ无法进行自然补风时ꎬ可以采用机械补风ꎬ当然机械补风并不是随意的ꎬ补风量也不是无限制的ꎬ一般为排风量的80%~85%ꎮ二㊁地下车库通风量㊁排烟量的计算方法(一)地下车库通风量计算1.按体积换气次数(1)当层高<3m时ꎬ按实际高度计算换气体积ꎻ当层高ȡ3m时ꎬ按3m高度计算换气体积ꎮ(2)当汽车出入频率较大时ꎬ可按6次/小时换气计算:出入频率一般时按5次/小时换气计算ꎻ住宅建筑的汽车库可按4次/小时换气计算ꎬ公共建筑的汽车库可按5次/小时换气计算ꎮ2.按每辆车所需排气量汽车库里的汽车全部或部分为双层停放时ꎬ宜按每辆车所需排风量计算ꎻ当汽车出入频率较大时ꎬ可按每辆车500m3/h计算ꎻ出入频率一般时ꎬ按每辆车400m3/h计算ꎻ住宅建筑可按每辆车300m3/h计算ꎮ(二)地下车库排烟量计算在我国颁布的相关规范条例中ꎬ地下车库排风风机的排烟量应按换气次数ȡ6次/h来计算ꎬ并将其作为硬性规定ꎬ要求各个地下车库的设计都要严格遵守这个标准ꎮ而上文中我们提过排风量的计算依据ꎬ通过对比ꎬ我们不难发现ꎬ二者之间存在一致性ꎮ由此可见ꎬ将通风系统与排烟系统结合起来ꎬ可以很好地实现通风排烟效果ꎮ三㊁某地下车库通风与排烟系统工程实例某地下室ꎬ建筑面积为11256平方米ꎬ平时作为地下停车库ꎬ根据建筑专业划分为四个防火分区ꎬ地下汽车库有两个直接对外的车道出入口ꎬ自行车库有一个直接室外的自行车坡道出入口ꎮ根据本工程特点ꎬ本设计对地下停车库采取机械排风ꎬ利用直接通向室外的车坡道自然进风的通风方式ꎬ排烟系统采取与排风系统兼用形式ꎬ利用直接通向室外的坡道疏散口的自然进风和机械补风作为火灾时的补风ꎮ地下室各房间通风量及排烟量:1)地下汽车库:排风量:4~5次/hꎬ排烟量:6次/hꎻ2)地下自行车库:排风量:4~5次/h(具体见下表1)ꎮ表1 该工程地下室通风排烟风量计算表防火分区防烟分区防烟分区面积/m2排烟量/立方米/h排风量/立方米/h送风量/立方米/h备注防火分区一防烟分区1-114103045621150防烟分区1-21695366122542545000系统P(Y)-1-1ꎬSF-1系统P(Y)-1-2ꎬSF-1防火分区二防烟分区2-113953013220925防烟分区2-214203067221300系统P(Y)-2-2ꎬ汽车坡道补风系统P(Y)-2-2ꎬ汽车坡道补风防火分区三防烟分区3-116883646116245防烟分区3-2975210601462545000系统P(Y)-3-1ꎬSF-3系统P(Y)-3-2ꎬSF-3防火分区四防烟分区424552923675系统P(Y)-4-2ꎬ自行车坡道补风四㊁结语综上所述ꎬ地下停车库通风与排烟系统的设计需要考虑诸多方面的因素ꎬ其中最重要的三点就是通风排烟效果㊁整个工程的造价以及系统的可靠性ꎮ只有保证通风排烟效果好㊁工程造价低㊁系统安全可靠ꎬ才能将地下车库通风与排烟系统的设计做到尽善尽美ꎮ参考文献:[1]许淑惠ꎬ罗文斌.地下停车场无风道透导通风系统性能及经济性分析[J].北京建筑工程学院学报ꎬ2014(2). [2]谢玉东.地下车库的通风排烟问题[J].黑龙江纺织ꎬ2018(1).[3]柏峻ꎬ柏晨ꎬ梁大坚.地下车库排风排烟系统设计两种方案比较[J].建筑热能通风空调ꎬ2019(5).作者简介:刘姗姗ꎬ大连贞元建设工程有限公司ꎮ651。
谈地下车库通风与排烟系统设计要点1.防火、防烟分区的划分根据《汽车库、修车库、停车库设计防火规范》(GB50067—97)(以下简称《汽车库防火规范》)的规定,地下汽车库防火分区的最大允许建筑面积为2000㎡(不包括复式汽车库及甲、乙类物品运输车汽车库),当汽车库内设有自动灭火系统时,面积可增加一倍,即为4000㎡。
而《汽车库防火规范》规定,停车数量超过10辆的地下汽车库应设置自动灭火系统。
面积超过2000㎡的地下汽车库应设机械排烟系统;面积小于2000㎡的地下汽车库可以采取自然排烟的方式,通过在地下车库的顶板上开通风采光天窗或者在高处室外的侧墙上开高窗等方式来满足自然排烟的条件,如果不具备自然排烟条件还应该设机械排烟系统。
为节约成本机械排烟系统可与日常排风系统合用,机械补风系统可与日常送风系统合用。
设置机械排烟系统的地下车库,其每个防烟分区的面积不宜大于2000㎡,且防烟分区不得跨越防火分区。
防烟分区可采用挡烟垂壁、隔墙或从顶棚下突出不小于0.5m的梁划分,大部分情况梁高虽然有0.5m以上,但还是应该用挡烟垂壁来划分防烟分区,以布置排烟管的梁底在适当的范围内以梁底下或者板顶下(结构为无梁楼盖)突出0.5m挡烟垂壁,挡烟垂壁有为活动或固定两种形式,由烟感器控制,也可现场手动控制。
2.通风机房及竖井的设置机房的竖井的布置通常与楼梯间背靠背,出地面的部分整体美观。
室外进风口宜布置在室外排烟口的下方,且高度不宜小于3.0 m;当水平布置时,水平距离不宜小于10m。
室外排风口应与建筑物保持一定距离,经空气扩散稀释后,可使建筑物附近CO浓度满足标准要求。
另外在设计中應将取风口设于上风口位置。
3.车库层高的确定一般设备层占用的空间考虑0.8m,车库分有梁与无梁两种结构形式,给排水专业喷淋系统通常选择直立型喷头,为节约空间及成本,有梁的结构形式风管在下,喷淋管及消防管在上敷设;无梁时的结构形式风管在上,喷淋管及消防管在下敷设。
地下车库的防排烟设计
首先,地下车库的防排烟设计需要考虑烟气的产生与排放。
车库中可
能发生的火灾会产生大量烟气,因此需要设置严格的火灾防范措施,如定
期检测、火灾报警器等。
在设计车库时,应合理设置车位,避免车辆堆积,以减少火灾风险。
其次,烟气传播对排烟设计起着重要的指导作用。
地下车库通常是封
闭空间,烟气向最不设防区域传播时往往能够蔓延速度较快。
因此,在设
计车库时,应考虑人员逃生路线、风道通风口等因素,合理设置排烟口的
位置和数量。
第三,排烟口的布置需要注意。
地下车库通常较大,应设置足够数量
的排烟口以保证烟气迅速排出。
排烟口应根据车库的大小、结构和空气流
动情况进行设置,一般需要布置在车库的屋顶、侧墙和底部。
排烟口应设
置在上风区,以促进烟气的排出。
最后,排烟系统的设计是地下车库防排烟设计的核心。
排烟系统应包
括排烟风机、风道、控制系统等。
排烟风机的选型应满足车库的需求,能
够提供足够的排烟风量,使烟气能够及时有效地排出。
排烟风机应设置在
车库的上风位置,以便尽快排出烟气。
风道的设计应合理,能够顺利地将
烟气引导到排烟口。
控制系统应能够实时监测车库内的烟气浓度,并自动
控制排烟设备的运行,及时排除有害烟气。
总之,地下车库的防排烟设计需要考虑烟气产生与排放、烟气传播、
排烟口布置以及排烟系统设计等因素。
只有合理设计和使用科学的排烟系统,才能确保地下车库内的空气质量和人员安全。
地下车库通风与排烟系统设计方法步骤整理总结规范的适应目前我国许多城市大量兴建高层建筑及住宅小区,设计中都设有地下车库。
从平战结合考虑,这些地下室平时一般用作高低压配电室、泵房、水池、制冷机房等设备用房和地下汽车库,而战时兼作二等人员掩蔽所的五~六级人防工程使用.根据现行《高层民用建筑设计防火规范》GB50045-95(2005版)及《人民防空工程设计防火规范》GB50098-98(2001版)的相关规定,对住宅小区及高层民用建筑所属的汽车库及人防地下车库,均应按现行《汽车库、停车库、修车场设计防火规范》(GB50067—97)的要求进行平时的通风排烟设计。
随着国家建筑节能标准的全面和强制推行,地下车库的通风设计还必须满足《公共建筑节能设计标准》(GB50189-2005)、《全国民用建筑工程设计技术措施节能专篇(暖通空调·动力)》的有关规定。
车库的通风量计算由于缺乏准确的计算资料,工程实际中对车库通风量多采用估算的方法。
根据《全国民用建筑工程设计技术措施(暖通空调·动力)》第4.4.2条规定:一般地下停车库汽车为单层停放,采用机械通风系统时,机械排风量可按换气次数计算:“1)当层高小于3m时,按实际高度计算换气体积;当层高大于或等于3m,按3m高度计算换气体积.2)商业建筑停车库汽车出入频率较大时,换气次数按6次/h;汽车出入频一般时,换气次数按5次/h;住宅建筑停车库汽车出入频率较小时,换气次数按4次/h。
”车库的通风系统的布置1、车库通风机一般风量较大,风压较小,故都采用离心风机.由于风机运行时间长,全年不停,从节能考虑应选择运行效率高的风机,在工程中常采用双速混流风机代替离心风机。
2、车库通风要求有全面均匀的机械排风装置,并尽量利用车库出入口车道及外窗自然进风;为保证此进风方式气流组织的合理性,在设计排风、排烟系统时,应将排风口、排烟口布置在远离车库出入口处,以防止气流短路。
目前大中型高层建筑都设有地下停车场,以满足其自身使用者停车需要。
有的单层面积达1万多平方米,层数多达4层,停车数量多,所以合量的设计排风、排烟系统显得非常重要。
本文结合笔者的实践,介绍排风排烟合用系统的一种设计方法,并对设计过程遇到的问题进行分析提出解决方法。
2; 高层建筑地下车库通风量的计算(1排风量:规范规定:“地下车库一般应设机械排风系统,排风量应按稀释废气量计算。
如无计算资料时,可参考换气估算,一般排风量不少于6次/时,送风不小于5次/时。
”以上规定应是针对专用车库而言,高层建筑的地下车库由于受核心筒、柱网、服务配套用房布置的影响,其停车位利用率低于专用车库,简单套用换气次数计算通风量,会出现通风量过大现象,所以应根据实际停车数,计算其通风量。
地下车库按全面通风设计考虑,所需通风量可根据文献[1]推荐的公式计算。
全面通风所需通风量为:L0=LM(m3/hL=Q/C-CO(m3/h式中:L0-车库排风量(m3/h;L-车库单位地面面积排风量(m3/h;M-车库存面积(m2;Q-单位地面面积汽车CO排放量(mg/h·m2;C-在下停车场内CO允许浓度,C=100mg/m3;CO-室外大气中CO含量,CO=3.0mg/m3;单位在地面面积汽车CO排放量(mg/h·m2:Q=ABCD/E式中:A-车库单位在面面积停车数;B-汽车出入频度(每小时出入台数与设计容量之比,可取50~ 100%;C-每辆汽车在车库内发动机运行时间取3min;D-汽车单位时间CO排放量,g/s。
国产的桑塔汽车CO排放量为0.577g/s,进口福特汽车CO排放量0.319g/s;E----CO排放量占总排放量的百分比,取0.89。
例:一个2000m2地下停车库,层高3.6m(梁板折算后净空高底3.5m,停车量45辆(按进口、国产车型各占一半计,计算全面通风量(出入频度取0.85%。
经用上述计算公式,计算得:单位地面面积汽车CO排放量:Q=1574(mg/h·m2;单位地面面积排放量:L=16.2(mg/h·m2;通风量; L0=32400 (m3/h;换气次数; A≈4.8。
地下车库通风、防排烟系统的方案设计及选用随着经济的发展,地下车库数量不断增加,规模不断扩大,针对地下车库的通风与排烟设计的方案也多种多样,但是如何选择合适的方案,促进地下车库的通风与排烟是十分重要的,本文针对地下车库的排风、排烟问题的设计进行了探讨。
标签:地下汽车库;排烟量;排风量;通风系统一、引言伴随这就经济的发展和人们生活水平的提高,生活质量逐渐改善的同时,私家车的数量悄然增加,目前我国大部分建筑都设有大型的地下停车库,特别是高层建筑和超市建筑等人员密集的地方,但是地下车库属于地下建筑,封闭性是其最大的特点,一旦发生火灾,烟气的危害性会比地上建筑物更加的严重,而因为地下建筑的封闭性导致人员疏散更加困难,火灾扑救的难度也更大。
实际上,常规的地下室通风方式大多是全面通风,将地下车库划分为不同的分区,有很多个送风和排风的系统。
这些系统同时也能够兼做排烟系统,二位一体的处理排烟通风两个问题。
但是这些系统不可避免的具有风量大,规模庞大的特点,结构十分复杂,这就导致其占用的空间很大,降低了车库的使用效率,同时增加了建筑物的建筑成本,建成之后设备投资量大,工作十分复杂,投资成本高,一旦出现问题整改十分困难,在建设过程中无法避免与其他管线的重合和交叉的问题,因此,地下停车库的通风和排烟需要不断的优化设计方案,通过更好的方案来促进地下车库的安全有效通风排烟。
二、地下车库排风量、排烟量的确定1.地下车库排风量的确定实际上,对于地下车库来说,通风是为了将汽车排放的各种尾气和污染物的浓度降低到人体可以接受的范围之内,所以地下车库的通风设计最重要的就是通风量的确定。
当前,确定地下汽车库的排风量可以通过换气次数进行腿酸,如果没有资料进行计算,换气次数是最好的参考方式,通常不少于6次/h,送风量不少于5次/h。
另外,计算排风量还可以通过全面通风换气量来进行,汽车尾气中的主要有害物质是CO、NOx包括很少的汽油和热量,而根据CO能够计算出全面通风换气量,从而将NOx稀释到卫生标准规定的浓度。
XX大学
课程设计说明书
题目:地下车库通风排烟系统设计
学院(系):建工学院
年级专业:XX级建筑环境与设备工程学号:XXXXXXXXXX
学生姓名:XXX
指导教师:XXX
教师职称:XX
燕山大学课程设计(论文)任务书院(系):基层教学单位:
目录
1拟订方案 (1)
1.1原始资料 (1)
1.2分区划分 (1)
2计算 (1)
2.1风量计算 (1)
2.2 水力计算 (2)
3 设备选择 (4)
3.1 送排风口、防火阀选择 (4)
3.2 风机选择 (4)
4 设计总结 (5)
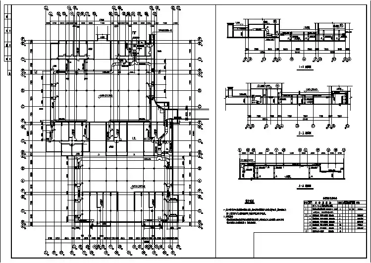
地下车库通风排烟系统设计说明书
1 拟订方案
1.1原始资料
西安某宾馆地下车库,一层,层高6.15米,总面积约为12400㎡,任务为设计该车库通风排烟系统。
1.2分区划分
由于地下汽车库每个防火分区面积不超过2000㎡[1],根据车库形状以及面积,共划分成6个防火分区,防烟分区与防火分区重合,分区之间用防火卷帘分隔。
每个分区单独设置通风排烟系统,由于车库内有两个直接通向室外的汽车疏散口,所以,有两个分区内不设送风系统,以自然送风满足要求[2]。
系统中,排烟系统兼排风系统,送风系统兼补风系统,合理设置系统规格以满足要求。
2计算
2.1风量计算
合理划分防烟分区面积,使得S1=1131.6㎡,S2=1600㎡,S3=1866㎡。
风量计算按照换气次数法计算:
Q=V*n (1) 排风量按照6次每小时计算,层高超过3米时按3米计算,排烟量取6次每小时,汽车库内无直接通向室外的汽车疏散口的防火分区,设置机械排烟系统时设置进风系统,送风量不小于排烟量的50%[3]。
由于系统较大,只设置四个送风系统,且承担补风系统,所以送风换气次数法取7次每小时,左侧三个系统风量计算结果如表1所示:
表1
2.2水力计算
2.2.1管径计算
风管采用矩形风管,管径计算采用假定流速法[4],计算公式如下:
q=Q/n (2)
A=Q’/3600v (3)
计算过程及结果如下:
图1
风管系统布置图
表2
2.2.2排烟系统阻力计算
系统阻力计算时,首先选择最不利计算环路,分别计算沿程阻力和局部阻力,局部阻力包括变径、三通、弯头、阀件等[5],计算结果如表3所示:
表3
2.2.3排风系统阻力计算
排风阻力计算方法与排烟阻力计算相同,且平时排风量约为排烟量的一半,计算时只有局部阻力计算中的排风口与排烟口局部阻力不同,所以排烟口可兼作排风口,排风系统与排烟系统共用,选择风机时选变频风机,平时排风低速运行,火灾时高速运行即可满足要求。
3 设备选择
3.1 送、排风口及排烟防火阀选择
根据风量,风速以及排烟口、排风口规格选择合适风口形式[6]。
排烟口选择多页排烟口,送风口选择单层百叶风口,风口规格尺寸如表4所示:
表4
防火阀选择防烟防火阀,安装在有防火防烟要求的管道上,平时常开,当温度达到70℃时关闭,尺寸按照管径布置,符合规格要求即可。
3.2 风机选择
风机选择时需参考风量、全压,并且排烟风机承担平时排风,应选择变频风机,根据风机样本[7],风机型号参数如表5所示:
表5
4 设计总结
地下车库通风排烟设计主要涉及内容为系统的综合布置,水力计算以及设备的选择,课设内容整体看来较为简单,但困难在于从不知如何下手到一步步克服困难,查找资料,计算方法以至于熟悉软件的使用方法,经过每一个小问题的解决最终完成整个设计,经过这一次的课程设计,相信会对今后专业的认识会更进一步,再做同样的课程设计时会节省许多时间和经历。
参考文献
[1] 建筑设计规范大全.
[2] 潘雨顺编.高层建筑地下车库通风与消防排烟设计.福建省建筑设计研究院,1995(4).
[3]陆耀庆编.实用空调设计手册.中国建筑工业出版社,2007.
[4]冯永芳编.实用通风空调风道计算法
[5]孙一坚.简明通风设计手册.中国建筑工业出版社.2000.
[6] 孙一坚.工业通风.中国建筑工业出版社.1985.
[7]上虞风机。