附图1
- 格式:doc
- 大小:38.50 KB
- 文档页数:1
沈海复线宁德漳湾至连江浦口福州段高速公路X标段三集中场地规划方案XXX集团工程有限公司沈海复线宁连高速公路福州段X项目经理部二0XX年X月目录一、工程简介 (2)1.线路概况 (2)2.主要工程量 (2)3.三集中场地概况 (2)二、编制依据 (3)三、T梁预制场、拌和站、钢筋加工场规划 (3)1.T梁预制场规划 (4)1.1.T梁预制场简介 (4)1.2.场地建设 (4)2.砼拌和站规划 (10)2.1.砼拌和站简介 (10)2.2.场地建设 (10)2.3.混凝土搅拌机械设备安装 (13)2.4.拌和站生产能力 (14)2.5.拌合站质量控制措施 (17)3.钢筋加工场地规划 (18)3.1.钢筋加工场地简介 (18)3.2.场地建设 (18)3.3.钢筋加工棚布置 (19)四、工期安排 (21)五、安全管理 (21)六、文明施工及环境保护 (22)七、附图 (22)三集中场地总体规划方案一、工程简介1.线路概况沈海复线宁连高速公路福州段X合同段位于福州罗源县境内,线路起于罗源县松山镇选屿村以东(起点桩号K39+411.5)与A2标段终点相连接,建北山特大桥跨省道201,至北山村以西,路线终于连江县马鼻镇村前村以西的石狮山(终点桩号YK44+280),全长4.55079公里。
2.主要工程量主要构筑物有:北山特大桥一座(桥长1642米),石师山隧道1/2座(其中右洞1662米,左洞1647米),砼盖板涵两座(长146.3米)。
主要工程量有:路基挖方44.9万m3,填方29.2万m3,路基防护8096.8m3,各类水沟砌体5411m3,C15片石砼挡墙2343m3,路面基层、底基层1934m2,水泥砼面板2093m2,桥梁桩基226根,墩柱214根,桥台2个,砼预制T梁763片。
其中北山特大桥、石狮山隧道为本标段的控制性工程。
本标段工程合同造价 3.42亿,合同工期24个月。
3.三集中场地概况为了全面落实和贯彻、执行《福建省高速公路施工标准化指南》,有效的控制工程建设质量,提高工程建设技术管理水平,对三集中场地(砼集中生产场地、钢筋集中加工场地、结构集中预制场地)进行有效的规划。
1“四口”安全防护1.1预留洞口安全防护1.1.1楼板、屋面和平台等面上短边尺寸小于250mm但大于25mm的孔口,必须用坚实的盖板盖设,盖板应能防止挪动移位。
1.1.2边长在250-500mm的洞口,必须用坚实的盖板盖住洞口。
盖板须保持四周搁置均衡,并应有固定其位置的措施(附图1-1)。
附图1-11.1.3边长为500-1500mm的洞口,利用钢管扣件在洞口上紧靠洞口边搭设井字型平台,平台上每隔一定距离铺设木枋,在木枋上铺钉木板形式进行防护。
盖板上刷黄黑警示色油漆,并用红色油漆标识“禁止移动”(附图1-2)。
也可采用贯穿于混凝土板内的钢筋构成防护网,钢筋网格的间距不得大于200mm(附图1-3)。
附图1-21.1.4边长在1500mm以上的洞口1主体结构施工时,利用钢管扣件在洞口上搭设井字形平台,平台上铺设硬质材料(竹跳板或木枋模板)进行防护。
洞口四周搭设防护栏杆(采取双道栏杆形式,下道栏杆离地500mm,上道栏杆离地1100mm,立杆高度1200mm),在栏杆外侧张挂“当心坠落”安全警示标志牌(附图1-4)。
2安装及装修施工时,洞口四周搭设防护栏杆(采取三道栏杆形式,下道栏杆离地100mm,中道栏杆离地500mm,上道栏杆离地1100mm,立杆高度1200mm),洞口下张设安全平网,在栏杆外侧张挂“当心坠落”安全警示标志牌(附图1-5)。
附图1-53防护栏杆距洞口边不得小于200mm。
4栏杆表面刷黄黑警示色油漆。
1.2电梯井口安全防护1.2.1电梯井门洞口安装不低于1500mm高的工具式防护门。
防护门底部安装200mm高木质踢脚板,防护门外侧张挂“当心坠落”安全警示标志牌(附图1-6)。
附图1-61.2.2电梯井内水平防护采用在井洞内用钢管搭设防护平台,上面满铺竹跳板或兜挂安全平网进行防护。
水平防护的位置,应每隔两层并最多隔10m设一道水平防护(附图1-7)。
附图1-73 钢管平台搭设方法:在电梯井混凝土模板支设时,在井的四个角预埋ф60PVC管,模板拆除后,将钢管插入预埋的PVC管里面,然后搭设防护平台。
1 工程概况工程名称:新建天津铁道职业技术学院一标段工程建设单位:天津海河教育园区投资开发有限公司监理单位:华泰建筑工程监理有限公司设计单位:天津大地天方建筑设计有限公司施工单位:中建二局第三建筑工程有限公司本工程位于天津市津南区海河教育园区纬一路以南,纬二路以前,经五路以西,经七路以东范围。
总建筑面积77570㎡,占地面积约21587㎡。
基础结构形式为桩基、条形基础、独立基础。
主体结构形式为剪力墙、框架、钢结构。
抗震等级:风雨操场为一级;后勤服务中心、看台、门卫及食堂为二级;宿舍楼1~5及学生公寓主体为三级。
8度工程设防烈度。
本工程主体施工阶段土建部分涉及到的主要分项包括:测量定位、土方开挖、回填土地下室防水、钢筋工程、模板工程、混凝土工程、脚手架工程、钢结构工程。
地下防水采用刚性和柔性两道防水。
刚性防水采用防水混凝土,柔性防水采用4厚SBS 改性沥青防水卷材(配电间部分采用3+3厚SBS改性沥青防水卷材)。
本工程模板体系均采用木胶合板模板。
本工程槽外800mm范围内回填2:8灰土,槽内回填素土;房心回填土:采用素土,压实系数为0.95。
2 成品保护管理方法2.1成立以项目经理为成品保护组长,由项目工程部经理具体实施的成品保护小组,成员组成包括工程部、技术部、专业成品保护队,并明确各有关部门和人员的岗位职责。
2.2建立健全成品保护工作体系,严格执行本公司的工程施工安装产品保护程序。
在安排施工生产的同时明确成品保护的基本要求和重点。
制定相应的保护措施,并加强监督检查。
2.3加强成品保护的宣传教育,使有关人员明白做好成品保护是满足施工正常进行的必要条件和维护职业道德的基本要求。
各专业队或作业班组必须设认真负责的成品保护专管员。
2.4加大成品保护工作的监管力度,一是加强现场操作人员的文明施工意识,二是制定必要的成品保护措施。
应落实相应的奖惩制度和保证一定的人力物力投入。
2.5行使总包的权力和义务,协调各分包专业之间的交叉作业,周密计划、合理安排各专业工序的进入和完成时间,落实时间段内的成品保护责任。
1说明书附图的内容要求1. 说明书附图的内容要求附图是说明书的⼀个组成部分。
附图的作⽤在于⽤图形补充说明书⽂字部分的描述,使⼈能够直观地、形象化地理解发明或者实⽤新型的每个技术特征和整体技术⽅案。
对于机械和电学技术领域中的专利申请,说明书附图的作⽤尤其明显。
因此,说明书附图应该清楚地反映发明或者实⽤新型的内容。
对发明专利申请,⽤⽂字⾜以清楚、完整地描述其技术⽅案的,可以没有附图。
实⽤新型专利申请的说明书必须有附图。
⼀件专利申请有多幅附图时,在⽤于表⽰同⼀实施⽅式的各幅图中,表⽰同⼀组成部分(同⼀技术特征或者同⼀对象)的附图标记应当⼀致。
说明书中与附图中使⽤的相同的附图标记应当表⽰同⼀组成部分。
说明书⽂字部分中未提及的附图标记不得在附图中出现,附图中未出现的附图标记也不得在说明书⽂字部分中提及。
附图中除了必需的词语外,不应当含有其他的注释;但对于流程图、框图⼀类的附图,应当在其框内给出必要的⽂字或符号。
2. 说明书附图的绘制要求:说明书附图应当使⽤包括计算机在内的制图⼯具和⿊⾊墨⽔绘制,线条应当均匀清晰、⾜够深,不得着⾊和涂改,不得使⽤⼯程蓝图。
剖⾯图中的剖⾯线不得妨碍附图标记线和主线条的清楚识别。
⼏幅附图可以绘制在⼀张图纸上。
⼀幅总体图可以绘制在⼏张图纸上,但应当保证每⼀张上的图都是独⽴的,⽽且当全部图纸组合起来构成⼀幅完整总体图时⼜不互相影响其清晰程度。
附图的周围不得有与图⽆关的框线。
附图总数在两幅以上的,应当使⽤阿拉伯数字顺序编号,并在编号前冠以“图”字,例如图1、图2。
该编号应当标注在相应附图的正下⽅。
附图应当尽量竖向绘制在图纸上,彼此明显分开。
当零件横向尺⼨明显⼤于竖向尺⼨必须⽔平布置时,应当将附图的顶部置于图纸的左边。
⼀页图纸上有两幅以上的附图,且有⼀幅已经⽔平布置时,该页上其他附图也应当⽔平布置。
附图标记应当使⽤阿拉伯数字编号。
说明书⽂字部分中未提及的附图标记不得在附图中出现,附图中未出现的附图标记不得在说明书⽂字部分中提及。
以往临床医师确定托槽位置的指标是以临床冠长轴,牙冠长轴,切缘、邻面接触点、带环边缘距切端或牙尖顶点的距离等为参照.但是这些参照指标在Andrews的直丝矫治技术中均被否定。
(一) 学习直丝弓矫治技术之前,学习过其他矫治技术的正畸医师,按照以前所描述的方法粘着托槽,必然会对直丝弓矫治法中托槽的粘接表示困惑。
直丝弓矫治技术按照Andrews的规定有种种约束,如果不遵守这些规定.必然招致混乱。
托槽的正确位置是直丝弓矫治技术的核心.如果忽视这一点.就不能获得理想的咬合,因此.粘着直丝弓托槽时,以前所学习的关于托槽粘接的种种概念一定要忘记,只用Andrews所采用的指标.这样最容易理解。
确认FACC和FA点,以此为参照粘着托槽(图11-1)。
1.FACC(Facial Axis 0f the Clinical Crown)临床冠长轴除磨牙以外的牙齿.临床冠长轴位于牙冠颊侧中央发育叶最隆突的部位.磨牙的临床冠长轴为2个大的颊尖之间的颊沟。
2.FA点(Facial—Axis point)冠轴点(临床冠中心)冠轴点位于临床冠长轴龈牙合向的等分点处。
(1)如图11—2A所示.首先确定FACC然后利用托槽的结扎翼的垂直部分.使其与FACC平行,使托槽的中轴线与FACC重叠;(2)然后上下调整.使FA点与托槽中点重叠(图11-2B.C):’(3)从牙齿的远中面观察,牙冠的FA点与托槽底板的标志点以及槽沟底的中点应在同一平面上。
这样按顺序将托槽正确粘着于每一个牙齿.结果如下图所示。
如果托槽粘着的位置正确的话.就会达到Anarews所主张的3条标准。
第一.位置正确的托槽.即不会与牙根也不会与对&牙齿接触,第二.通常每个牙齿牙冠的轴倾角及颊舌向的倾斜度与牙齿的&面牙列的咬合平面维持一定的角度关系第三每一个托槽的中心应在同一平面及同一条牙弓弧线上。
然而,无论如何细心地粘着托槽.总会产生一定的误差。
临床上什么情况下容易产生误差,产生误差后会出现什么问题.如何解决这些问题?FACC (临床冠长轴)及牙冠中心点(位于临床冠长轴龈&向中点)[img][/img]今天接着聊(二)粘着托槽时牙面的观察方法观察每个牙齿时必须尽量正对这个牙齿以确认FACC和FA点.一般来讲容易从牙齿的上方稍偏近中一点的地方观察。
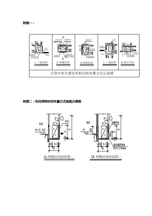
两侧封闭剖面图二2B.两侧封闭剖面图一2A.附图一:附图二:机位两侧封闭布置方式剖面示意图附图三:机位尺寸与外观尺寸示意图附表一:小型中央空调机制冷量及外观尺寸、机位尺寸一览表(1~5为布置方式)6.1.1设计原则(1)空调室外机位置应考虑必要的维修及进、出风空间。
(参见附图一)(2)配有冷凝水泵的空调室内机的冷凝水管原则上穿梁铺设;局部位置梁高尺寸较小时,难以满足预留穿梁套管的要求,在不影响装修高度时,可在梁下铺设。
(3)不配有冷凝水泵的空调室内机冷凝水管在梁下铺设。
冷凝水管的走向应配合装修,局部位置如梁下净空较低,满足不了装修要求,应考虑穿梁或剪力墙。
(4)空调冷媒管穿梁铺设,管中心距板底100mm。
(5)冷媒管、冷凝水管均应定位,穿梁、墙和剪力墙的套管均应标注标高。
(6)空调室内机出风型式宜采用侧出风。
餐厅、客厅的空调室内机应避开中间天花凹池位置布置;卧室空调室内机宜布置在入门口处,回风口注意避开衣柜;如有两层通高的客厅(如别墅、复式住宅),空调室内机宜布置在下层。
(7)应考虑冷凝水的排放。
6.2 分体式空调(含柜机和壁挂机)6.2.1适用范围:分体式空调系统主要用于除采用小型中央空调以外的住宅。
分体式空调机制冷量、适用面积及室内、外机外观尺寸见附表二:注:(1) 以上尺寸为部分常用分体机产品系列尺寸,供设计及订货参考,具体以厂家最新资料为准。
(2) 极个别超出机位净尺寸设计范围的部分机型不应选购,如三菱2匹机的AD系列(888长x348厚x840高)等。
(3) 2~2.5匹必须采用壁挂机(三星系列暂无该匹数壁挂机产品),3匹及以上选用柜机。
6.2.2空调室外机位的技术要求(1) 空调室外机位净尺寸:(见附表三)附表三:机位净尺寸:能放下上述三个空调品牌外观尺寸偏大的机型,并预留不小于100mm的安装空间(兼作进风通道)以及约50mm施工误差的机位完成面尺寸。
极个别超出机位净尺寸设计范围的部分机型不应选购,如三菱2匹机的AD系列(888长x348厚x840高)等。
吐司类:150/220℃配方:面重250g/个红豆吐司:甜面团+红豆+酥粒提子吐司:甜面团+提子干+白芝麻香芋吐司:甜面团+香芋馅+白芝麻肉松吐司:甜面团+肉松粉+沙拉酱提子切片:200g*5=1000 g甜面团+提子干白切片:200g*5=1000 g甜面团咸方片:200g*5=1000 g咸面团全麦片:50g全麦粉+1000g甜面团三文治:肉松粉+鸡蛋+火腿+沙拉酱餐包类咸餐包:30g*8咸面团酥粒面包:30g*6甜面团+酥粒+卡士达馅肉松餐包:30g*4甜面团+肉松粉+沙拉酱椰蓉餐包:30g*4甜面团+椰汁酱 浓香排包:30g*4甜面团葱香餐包:30g*4甜面团+葱香皮 面包类毛毛虫面包:200g 面团+泡芙+吉士奶油(300g 牛奶+70g 吉士粉+200打发奶油)沙拉肉松:100g 甜面团+肉松粉+沙拉酱肉松卷:1400g 甜面团+火腿+葱+沙拉酱+白芝麻原味肉松:60g 甜面团+原味肉松+沙拉酱辣味肉松:60g 甜面团+辣味肉松+沙拉酱亚洲红日:60g 甜面团+肉松粉+蛋黄+沙拉酱热狗面包:60g 甜面团+肉松粉+面包芝士+沙拉酱恩爱面包:60g 甜面团+火腿+肉松粉+沙拉酱提子全麦:60g 全麦面团+提子干+酥油+杏仁片杏仁全麦:60g全麦面团+60g甜面团+墨西哥酱+香蕉酱+杏仁片提子面包:60g甜面团+提子+椰汁浆椰汁面包:90g甜面团+ 红豆粒+椰汁浆北欧面包:500g甜面团+原味蛋糕一块+墨西哥皮+核桃+杏仁片+酥粒至尊菠萝:250g甜面团+卡士达馅+广式菠萝皮香蕉黄金条:100g甜面团+香蕉酱红豆酥餐包:60g甜面+红豆+香蕉酱+沙拉酱+酥粒鱼鳞面包:60g甜面团+火腿+辣肉松+葱花+沙拉酱+白芝麻芝士肉松:60g甜面团+肉松馅+芝士迷你比萨:60g甜面团+火腿青椒红椒洋葱+沙拉酱+番茄酱台湾黑沙:60g甜面团+黑芝麻+肉松粉+沙拉酱广式菠萝包:60g甜面团+菠萝皮牛奶红豆包:60g甜面团+牛奶红豆馅,红豆粒+墨西哥皮水果盅:水果盅皮+60g面+香蕉酱(草莓酱)杏仁优格:80g甜面团+香芋馅+墨西哥皮+杏仁片法式奶酪片:白切片+乳酪浆+蛋黄开口笑:60g甜面团+蛋液+酥粒+奶油+黄桃(180/160℃)通心肠仔包:60g甜面团+ 火腿肠1条+鲜葱少许全麦奶酪:60g甜面团+ 60g全麦面团+奶酪酱30-60g芝士条:60g甜面团+芝士+沙拉酱+干葱维丝达:60g甜面团+维丝达皮+调和奶油汉堡包:60g甜面团+鸡蛋+火腿+生菜+沙拉酱榄菜培根:60g甜面团+榄菜+培根培根卷:60g甜面团+紫菜+培根酥皮三明治(210/0℃):即在三文治的基础上,面上扫上蛋黄,再撒上芝士并挤沙拉酱,入炉烘烤,烤成金黄色后出炉,在面上中心部分撒上干葱即可!鸡肉肠仔包(180/150℃):60g面团,擀开放入鸡肉肠,卷成圆柱形,切成两半并排放在锡纸上,发酵后扫蛋液,放上芝入并挤上沙拉酱,入炉烘烤!黄油排包(150/210℃):做法:60g面团搓成圆柱型之后入模,每个模放12条,发酵后扫蛋液;入炉烘烤!意式乳酪(180/160℃):做法:100g面团,加入黑胡椒和火腿粒,擀成大饼圆形,直径15CM左右!发酵后扫蛋液和干葱,最后撒上芝士入炉烘烤!法式芝心(180/150℃):做法:120g面团,擀开包入芝士,再卷成圆柱形。
微观经济学知识点汇总第一章导言1、稀缺性:经济资源以及用经济资源生产的物品总是不能满足人类无穷无尽欲望的事实2、微观经济学研究的中心问题:资源配置问题3、经济学的基本问题:资源配置问题、资源利用问题、经济体制问题第二章需求、供给与均衡价格1、①需求:是指在一定时期内,对应于某种商品各种可能的价格,消费者愿意并且能够购买的该商品的数量②需求量:是指消费者在某一价格下愿意购买的某种商品的数量③需求的变化:在商品自身价格不变的条件下,由于其他因素变动而引起的对商品需求数量的变化④需求量的变化:在影响需求的其他因素保持不变的情况下,由于商品自身价格变动所引起的对该商品需求量的变动2、供求规律:①在供给不变的情况下,需求增加导致均衡价格上升和均衡数量增加,需求减少导致均衡价格下降和均衡数量减少②在需求不变的情况下,供给增加导致均衡价格下降和均衡数量增加,供给减少导致均衡价格上升和均衡数量减少③当供给和需求同时增加或减少时,均衡数量同方向变化,均衡价格不确定④当供需反方向变动时,均衡价格与需求同方向变化,均衡数量不确定3、需求的价格弹性:表示在一定时期内,一种商品的需求量对该商品价格变化的反应程度或敏感程度需求价格弹性系数Ed = 需求量变化的百分比/ 价格变化的百分比Ed = (△Q/Q)/(△P/P)= (△Q/△P)·(P/Q)4、点弹性的几何意义:需求曲线上任意一点的点弹性系数的值,等于这一点沿着需求曲线到横轴的距离比上其沿着需求曲线到纵轴的距离点弹性的类型:1;1五种类型:①AC段,Ed>1,富有弹性②CB段,Ed<1,缺乏弹性③C点Ed=1,单位弹性④A点Ed→∞,完全有弹性⑤B点Ed=0,完全无弹性5、需求的交叉价格弹性:①概念:表示在一定时期内,一种商品的需求量变动对其相关商品价格变动的反应程度或敏感程度。
②其弹性系数等于商品需求量的变化率与引起这种变化的另一种商品价格变化率的比值,表示为:EXY=(△QX/QX)/(△PY/PY)=(△QX/△PY)·(PY/QX)③如果两种商品互为替代品,则一种商品的需求量与其替代品的价格之间呈同方向运动,需求的交叉弹性系数是正值;如果两种商品是互补品,则一种商品的需求量与其互补品的价格之间呈反方向变动,需求的交叉弹性系数是负值;如果两种商品之间不存在任何关系,则其中任何一种商品的需求量都不会对另一种商品的价格作出反应,需求的交叉弹性系数为零。
【附图一:“罪的工价乃是死”】文字讲解人类的始祖亚当,犯罪悖逆神,将罪性带入了世界。
以致连累全人类都被罪性控制,不得不犯出罪行,以致与神隔绝——死亡。
“因为罪的工价乃是死”(罗6:23)。
“这就如罪是从一人入了世界、死又是从罪来的、于是死就临到众人、因为众人都犯了罪”(罗5:12)。
以【罗5:12】来解释本课程【附图一】是很合适的。
我们请一起看【附图一】:“我”:亚当未犯罪以前的“我”。
有的书上称“真我”。
“罪性”:因着亚当悖逆,罪就进到他的里面——“罪从一个人入了世界”。
保罗在这里把罪人格化了,罪如同一个权势入了世界。
我们称这里的“罪”为罪性。
在圣经里也称为悖逆。
也就是以我为中心。
在神学上有称为原罪。
必须说明,虽然夏娃先吃禁果,亚当后来才吃,但亚当是人类的元首,罪是从他遗传到子子孙孙。
“我”被罪控制:因着亚当悖逆,罪就进到他的里面,又通过他进入这个世界。
亚当被罪性控制,我们(他的子子孙孙)每一个人也就都被罪性控制。
这就是“罪从一个人入了世界,……于是死就临到众人。
”的意思。
什么是旧人呢?被罪性控制的“我”叫旧人。
换句话说,旧人是罪性的奴仆,罪性是“我”的奴隶主。
“我是卖给罪的”(参罗7:14)。
什么时候被卖的?亚当向神背约(何6:7),实际上他是与罪立约。
他将自己以及自己的子子孙孙都卖给了罪,成为罪的奴仆。
亚当被造的时候,无所谓旧人,新人。
但是,因为他犯罪,成为罪的奴仆,相对于今后神的救法要重造一个新人,所以这里称为旧人。
罪身:根据【罗6:6,12-13】以及【雅1:14-15】三处经文可以探讨:一个人与生俱来的“我”就是被罪性控制。
罪性通过“我”指挥身体,使“我”顺从身子的私欲,以致犯出罪行。
因此我们这个被罪性控制,不得不犯出罪行的身体,称为罪身。
罪性与罪行:罪性是指“悖逆”的本质,如同一个种子进到“我”的里面,控制“我”。
罪行是一个人被罪性控制,使身体不得不犯出来的行为。
有人说得很有意思:“罪性是亚当犯的,罪行是我们自己犯的。
附图一PSK调制解调实验
1、上方为4P01原始基带数据波形;下方为4P03相对码波形
2、载波幅度调节:上方为0相载波,下方为相载波(使二者幅度尽量小)
3、相位调制信号观察:上方为4P01原始基带数据波形;下方为PSK调制信号
4、下方是噪声电平调节为0,上方为加躁后波形(噪声为0)
5、上方为0相载波信号,下方为/2相载波信号可见略有延迟
6、相位解调信号观测:上方为外加数字基带信号,下方为解调输出信号(二者波形一直但反向)
7、加噪声后,从图中可看出略有畸形,但影响甚小
附图二——眼图实验
1、无噪声波形观察:下方为B PSK调制信号
2、上方为外加数字基带信号,下方为解调输出信号(二者波形一致但反向)
3、(尽量)无失真的波形上方为码元时钟信号
4、(尽量)无失真的眼图
5、有噪声眼图波形观察
6、(1)基带眼图信号与噪声混合波形
(2)加强噪声后的眼图波形。
分户验收标识作业指引一、分户验收标识的条件1、施工单位完成单位工程施工图纸内的所有分部、分项工程及合同约定的全部内容,所有分部、分项工程实测实量,功能质量、观感质量,分户验收符合达到施工合同及国家规范要求。
2、室内通水通电。
3、室内保洁完成,标识部位清理干净,具备粘贴或标识施工。
二、施工流程分户验收合格--------标识部位清理干净--------标识部位弹控制线-----------利用控制线盖章/粘贴/喷绘-------成品保护三、质量控制及标准内容简介清晰、横平竖直、位置准确醒目、字迹清晰、表述准确无误四、标识项目、部位及方法1、土建分项○11.00米线标识:室内墙面必须弹出“+100”控制线,颜色为淡黄色且不污染墙面,主要用于检查室内楼地面标高、房间净高尺寸等。
○2方正度标识:标识前用5米卷尺或激光扫平仪对弹出的两条方正度控制线,以短边墙为基准进行校核,无误后采用激光扫平仪打出十字线,距墙体30cm 用黑色颜料弹出方正线。
(附图1)与第四项室内净高合并标识。
○3墙面实测标识(垂直、平整、阴阳角等):采用专用印章,在墙体100线上部5~10cm、距离阴阳角50cm处进行标识;另在墙面开间进深等测点部位标识“测”字印章。
墙面标识印章一墙面标识印章二墙面标识印章三○4顶板水平度极差及室内净高偏差标识:在地面方正线的四个角点及中间点部位进行标识,标识“测”字印章及“实测标识”。
(附图1)图1○5防雷及沉降观测点标识示意图片2、水暖分项所有房间楼地面的埋地隐蔽管道,包括采暖、给水等管道的位置及走向,采用墨线标识出管道埋没范围,并采用不同颜色注明管道名称和走向标示箭头(与水流向一致),采暖管线采用红色涂料标注“采暖管道”,给水管道采用蓝色涂料标注“冷水管道”,热水管道采用红色涂料标示“热水管道”。
○1地面管道:地热在进户门地面做400×600mm白底板块,上喷《地热管道、严禁剔凿》。
(附图4)附图4:地面埋地管道标识示意图双道墨线采暖管道采暖管道给水管道双道墨线室内楼地面地暖示意图片地面标识印章(二)地热管道、严禁剔凿○2给排水管道标识:卫生间墙面管道标识印章(四)○3室内及管道井内管道标识:需标明管道的用途、方向、性质等各项参数。
比例尺L =5k m 矩形范围新台村鱼泉村刘家坡松林坨里新鳌尖峰岭村坝峨村河底下马桑塆干草河鱼泉沟白元小溪图 例本项目周边居民点地表水地下水出露点饮用水源保护区Q1Q3图2-1 项目周边敏感目标分布图Q2本项目合水镇鱼泉沟饮用水源保护区项目所在地图3-1 项目所在区域生态红线分布图图-印江县十万头一体化养殖项目一期工程平面布置图病死猪无害化处置车间危险废物暂存间沼气罐干猪粪暂存间污水处理站农灌系统蓄水池办公宿舍楼食 堂1#大门2#入口3#入口生活办公区养 殖 区废水收集管道污染治理区农灌系统管线生物填料除臭塔 及15m排气筒255075100m比例尺雨水收集沟渠雨水排放口事故池食堂隔油池消毒池消毒池干草河鱼泉沟慕龙村鱼泉村刘家坡白元尖峰岭村石前村紫薇镇深溪沟邵家上寨村任家寨坝峨村松树岭新鳌比例尺项目雨水排放线路项目用地图4-2 项目厂区雨水排放线路图干草河鱼泉沟图4-4 项目与农灌系统关系图比例尺1#蓄水池2#蓄水池3#蓄水池4#蓄水池5#蓄水池输水管道农灌区边界本项目本项目比例尺02468km 图5-1 项目交通地理位置图冷家坪朗溪镇合水镇凉水井镇枫香溪镇杉木乡共和镇长堡镇鹦鹉溪镇孙家坝镇天桥大河坝镇罗场乡护国寺坝梅寺湄 坨新寨新业乡梵净山中兴街道天堂镇石梁乡猴子梨坳乌罗镇木黄镇永义乡印江县思南县赵家坝思林乡邵家桥镇潮砥镇051015比例尺20km图5-2 项目所在区域水系图印江印江干草河乌江乌江三潮溪河渡清河坨坝板溪镇河河本项目干草河鱼泉沟图 例本项目大气监测点地表水监测断面地下水监测点位噪声监测点位土壤监测点位Q1Q3图5-4 项目环境现状监测点位分布图W1W2W3G1G2比例尺GQ2N1N2N3N4S4S4S1S2S3废水事故排放入河口比例尺针叶林针阔混交林草灌丛农田植物群项目用地图例图5-5 项目周边植被分布图生态评价范围居住用地比例尺针叶林区针阔混交林区草灌丛区农业用地项目用地图例图5-6 项目周边土地利用现状图生态评价范围居住用地干草河鱼泉沟慕龙村鱼泉村刘家坡白元尖峰岭村石前村紫薇镇深溪沟邵家上寨村任家寨坝峨村松树岭新鳌比例尺项目事故废水排放线路项目用地图6-1 项目事故废水排放线路图朗溪向斜梵净山背斜慕龙断层鱼泉沟刘家坡断层干草河02468km比例尺本项目图6-2 项目所在区域水文地质图Q2Q1Q3地下水评价范围图-印江县十万头一体化养殖项目一期工程分区防渗图病死猪无害化处置车间危险废物暂存间沼气罐干猪粪暂存间污水处理站农灌系统蓄水池办公宿舍楼食 堂1#大门2#入口3#入口生活办公区养 殖 区废水收集管道污染治理区农灌系统管线生物填料除臭塔 及15m排气筒255075100m比例尺雨水收集沟渠雨水排放口事故池食堂隔油池消毒池消毒池重点防渗区一般防渗区非防渗区图 例干草河鱼泉沟图 例本项目大气监测点地表水监测断面地下水监测点位噪声监测点位土壤监测点位Q3图10-1 项目运营期跟踪监测点位分布图W1W2G2比例尺GN1N2N3N4S4S4废水事故排放入河口G1废水事故排放线路。