化工设计厂区布置图
- 格式:pdf
- 大小:1001.01 KB
- 文档页数:1
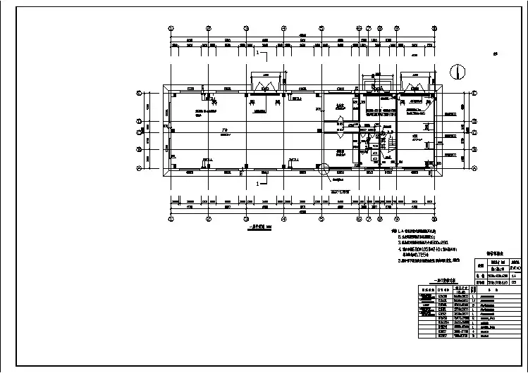
厂区的平面布置说明设计依据与标准1 .《建筑设计防火规范》GB 50016-20062 . 《石油化工厂区绿化设计规范》SH 3008-20003. 《工业企业总平面设计规范》GB 50187-20084 . 《石油化工企业厂区总平面布置设计规范》SH/T 3053-20025 . 《石油化工企业设计防火规范》GB 50160-20086 . 《工业企业厂内运输安全》GB 4387-2008总体布局分析全厂设计为长316m,宽180m的长方形平地,占地面积56880m2。
总图设置有生产区、原料和产品储罐区、装卸台、食堂、车库、控制室、办公楼、后勤中心、消防中心、维修车间、公共工程、质检中心、科研部等其他配备室和处理处。
本项目公用工程供热、供气、供风、供氮和空气调节,全部由石化工业区供应不再新建。
平面布置图如下图所示。
全厂由罐区、生产区、办公区、后勤区四大部分组成。
该地受海洋季风气候影响,每年5-8月,盛行偏南风,10月-笠年3月盛行偏北风。
根据规定,将职工生活区布置在上风侧,将生产车间及罐区布置在最小频率风向上风侧。
厂区道路设计符合设计规范,交通方便,布置合理。
绿化率在充分利用土地的条件下达到国家标准。
在厂区南侧预留有发展用地,以用于二期发展。
布局构思厂区东正门设置入口,在西侧设置有货流入口和货流出口,厂内办公区设置在正门处,有利于对外联络,易于贵宾参观,兄弟企业观摩,商贸公司入内商谈等,东北方向为后勤区,符合风向要求,设置有职工饭堂、绿化设施等公共福利设施。
各分区说明办公区办公大楼办公大楼一楼设有接待大厅,多媒体会议报告厅,产品介绍展示中心。
二楼、三楼、四楼是各部门,领导办公室和小型会议室,用于人员办公,企业策划,内部协商,外部商谈,领导指挥工厂运营等。
科研大楼该大楼用于进行科研实验,进行产品分析、质检等工作。
急救中心急救中心用于职工紧急救助和一些常规的身体检查等工作。
车库车库在办公楼侧边设置,用于停放外来车辆及员工的车辆。
化工设计概论第二版课后答案李国庭综合产品评估法反映了副产品的经济性和重要性。
[判断题] *对(正确答案)错能量就是能量,没有高低、优劣之分。
[判断题] *对错(正确答案)工厂布置图包括厂区布置图和设备布置图(车间布置图)。
[判断题] *对(正确答案)错塔的设计时一定要设计人孔或手孔。
[判断题] *对(正确答案)错非金属管材用于腐蚀性介质,温度和压力较高的场合。
[判断题] *对错(正确答案)化工过程整合与优化的目的是使工艺更加完整。
[判断题] *错(正确答案)工艺过程费用估算的目的是确定投资额度。
[判断题] *对错(正确答案)分离因子表征混合物在分离过程中可得到的分离程度的一种量度。
[判断题] *对(正确答案)错对于小直径、高度大的塔应采用单排布置。
[判断题] *对错(正确答案)封闭体系是指与环境没有物质和能量交换的体系。
[判断题] *对错(正确答案)仪表的控制符号有图形符号、字母代号和仪表位号。
[判断题] *对(正确答案)错管道的设计要考虑热膨胀和热补偿所带来的影响。
[判断题] *对(正确答案)夹点处内部换热最大,经济效益最大。
[判断题] *对错(正确答案)自由度分析就是要确定过程或单元的未知量个数。
[判断题] *对(正确答案)错化工设计是针对化工过程某个单元操作的设计。
[判断题] *对错(正确答案)在容器的设计时,一定要设计上放空、溢流和排放设施。
[判断题] *对(正确答案)错夹点之下不应设置任何公用工程加热器。
[判断题] *对(正确答案)错一个化工产品只有一种反应路线来生产。
[判断题] *对错(正确答案)化工过程就是化学反应的过程。
[判断题] *对错(正确答案)按照管道仪表流程图(PID)的设计程序,管道仪表流程图有6个以上版本。
[判断题] *对(正确答案)错化学平衡常数可用来评估反应热效应的大小。
[判断题] *对错(正确答案)化工过程都是稳态过程。
竭诚为您提供优质文档/双击可除石油化工企业厂区总平面布置设计规范篇一:厂区的平面布置说明厂区的平面布置说明设计依据与标准1.《建筑设计防火规范》gb50016-20xx2.《石油化工厂区绿化设计规范》sh3008-20003.《工业企业总平面设计规范》gb50187-20xx4.《石油化工企业厂区总平面布置设计规范》sh/t3053-20xx5.《石油化工企业设计防火规范》gb50160-20xx6.《工业企业厂内运输安全》gb4387-20xx总体布局分析全厂设计为长316m,宽180m的长方形平地,占地面积56880m2。
总图设置有生产区、原料和产品储罐区、装卸台、食堂、车库、控制室、办公楼、后勤中心、消防中心、维修车间、公共工程、质检中心、科研部等其他配备室和处理处。
本项目公用工程供热、供气、供风、供氮和空气调节,全部由石化工业区供应不再新建。
平面布置图如下图所示。
全厂由罐区、生产区、办公区、后勤区四大部分组成。
该地受海洋季风气候影响,每年5-8月,盛行偏南风,10月-笠年3月盛行偏北风。
根据规定,将职工生活区布置在上风侧,将生产车间及罐区布置在最小频率风向上风侧。
厂区道路设计符合设计规范,交通方便,布置合理。
绿化率在充分利用土地的条件下达到国家标准。
在厂区南侧预留有发展用地,以用于二期发展。
布局构思厂区东正门设置入口,在西侧设置有货流入口和货流出口,厂内办公区设置在正门处,有利于对外联络,易于贵宾参观,兄弟企业观摩,商贸公司入内商谈等,东北方向为后勤区,符合风向要求,设置有职工饭堂、绿化设施等公共福利设施。
各分区说明办公区办公大楼办公大楼一楼设有接待大厅,多媒体会议报告厅,产品介绍展示中心。
二楼、三楼、四楼是各部门,领导办公室和小型会议室,用于人员办公,企业策划,内部协商,外部商谈,领导指挥工厂运营等。
科研大楼该大楼用于进行科研实验,进行产品分析、质检等工作。
急救中心急救中心用于职工紧急救助和一些常规的身体检查等工作。
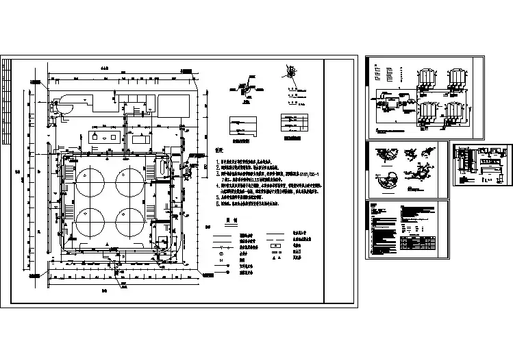
2.4.2厂区总体概述本厂区布置为矩形,东西方向长为400m,南北方向宽为200m,总面积为80000m2工厂内可划分为行政区,辅助生产区,生产区以及储运区。
根据建筑物的朝向,主导风向的影响(常年偏北风为主导主导方向),设置行政区位于分厂厂区的东北角,辅助生产区由于为了维修方便位于中西部,生产区设在西南部,储罐区于中东部。
本设计中,厂区内道路总体呈网格状布置,本厂区道路设计宽度为16米(双向四车道),次干道设计宽度为9米(双向两车道)。
整个厂区的道路及建、构筑物都进过严格规划,布置规整。
同时,人流与货流分离,并留有消防安全通道。
本厂区储存设施区分为产品罐区和原料仓库。
本厂区有一块发展用地,是用来产区扩大建设的,位于产区的西边,生产区内。
本厂布局规划具有行政、生活全面有序,生产车间集中安全,仓储设施安全便捷,辅助公用设施便捷合理等优点,具体可见到下图。
2.4.3 厂区面积概算结合各项参数,包括本厂的年处理量,产量,也通过参考实际化工厂布局,本设计基本确定了本厂的建设规模与具体厂区内部的建设布局,下面为基本的厂区面积概算。
表2-2 建筑物构筑物面积一览表表2-3 化工厂总平面布置设计的各项技术指标2.4.4 工艺生产装置的布置要求设计规范要求工艺装置在厂区内布置应相对集中,形成一个或几个装置街区。
本设计中将反应车间和分离车间集中布置,设置在同一区块内,这样有利于集中铺设公用工程管线以及集中控制管理,而且工艺生产流程顺畅、衔接短捷,紧凑合理,与相邻设施也协调得很好。
除了有利于生产管理和安全防护外,集中布置工艺装置还便于施工、安装和检修。
工艺生产装置宜布置在人员集中场所全年最小频率风向的上风侧,并位于厂区散发可燃气体的储运设施全年最小频率风向的下风侧。
本厂区集中人群的场所为行政区和停车场,位于东部,处于全年最小频率风向(西风)的下风侧,同时储罐区位于生厂区的西部,是全年最小风频的上风侧。
2.4.5 辅助公共设施的布置蓄水池循环水场应靠近主要用水区域,避免在工艺装置的爆炸危险区范围内;避免靠近火炬、加热炉、焦炭塔等热源体;不宜布置在邻近的变配电所、露天工艺设备、主要运输道路冬季最大频率风的上风侧,并不应布置在受水雾影响而产生危害的设施的全年最大频率风向上风侧。
2.2厂区布置2.2.1 设计依据《化工企业总图管理规定》原化工部文件《化工企业总图运输设计规定》HG/T20649-1998《化工企业总图运输设计规范》GB50489-2009《建筑设计防火规范》GB50016-2006《工业企业总平面设计规范》GB50187-93《厂矿道路设计规范》GBJ22-87《化工管道设计规范》HG/T20695-87《化工设备管道外防腐设计规定》HG/T20679-90《石油化工企业厂区总平面布置设计规范》SH/T3053-2002《化工工厂总图运输施工图设计文件编制深度规定》HG/T20561-94《压缩机厂房建筑设计规定》HG/T20673-2005《石油化工企业防火设计规范》GB/50160-2008 除了以上相关的设计规范和规定之外,在设计过程中我们也参照了当地的气候条件和交通运输条件,因地制宜,设计出符合当地具体条件的厂区布置。
2.2.2 厂区平面设计原则总图布置设计的任务是解决全厂所有的建筑物和构筑物在平面和竖向上的布置,运输网和地上、地下工程技术管网、行政管理、公用设施等的布置问题,同时满足一下要求:1)严格执行国家及地方的有关规范、规定和标准要求2)工厂的总平面布置应满足生产要求,保证径直和短捷的生产作业线,尽可能避免交叉和迁回,使物料、水、电的运输距离为最小,同时满足操作的安全规定。
3)工厂的总平面布置应满足安全要求,严格遵守防火、卫生、绿化等安全规范和标准的有关规定;4)工厂的总平面的布置应满足发展要求,布置应有较大的弹性,使其对工厂的发展变化有较大的适应性。
5)工厂的总平面的布置应考虑各种自然条件和周围环境的影响;6)装置管理及控制采取相对的布置原则。
2.2.3 设计理念本次设计要全面贯彻“珍惜每一寸土地,切实保护耕地,充分利用每一分地”的基本设计理念,因地制宜,节约用地,实现资源的综合利用:(1)节能环保,简洁方便(2)以人为本,安全卫生(3)因地制宜,发挥优势(4)科学布局,合理利用2.2.4 厂区总体布局概述工厂总厂去布置为矩形,东西方向长595米,南北方向宽265米,总面积为157675平方米,厂区四周都是绿化带,用以将厂区与外界隔离,保证厂区的污染物尽量与外面隔离,同时以防止外界的不安全因素,保证安全生产;同时使工厂的四面环绕公路,包括东、西、南、北四个大门,其中西大门是直接通往总厂的便捷通道。