恒智天成建筑施工模板安全计算软件
- 格式:doc
- 大小:36.00 KB
- 文档页数:5
恒智天成安全计算软件梁模板(工具式钢管立柱支撑)计算书本计算书依据《建筑施工模板安全技术规范》(JGJ162-2008)、《建筑施工计算手册》江正荣著、《建筑结构荷载规范》(GB 50009-2001)、《混凝土结构设计规范》(GB50010-2002)、《钢结构设计规范》(GB 50017-2003)等规范编制。
梁段:L1。
模板支撑体系剖面图2.荷载参数新浇筑砼自重标准值G2k :24kN/m3;钢筋自重标准值G3k:1.5kN/m3;梁侧模板自重标准值G1k :0.5kN/m2;砼对模板侧压力标准值G4k:12.933kN/m2;倾倒砼对梁侧产生的荷载标准值Q3k:2kN/m2;梁底模板自重标准值G1k :0.75kN/m2;振捣砼对梁底模板荷载Q2k:2kN/m2;3.梁侧模板参数加固楞搭设形式:主楞横向次楞竖向设置;(一) 面板参数面板采用克隆(平行方向)15mm厚覆面木胶合板;厚度:15mm;抗弯设计值fm:30N/mm2;弹性模量E:11500N/mm2;(二) 主楞参数材料:2根Ф48×3.5钢管;间距(mm):150,400;钢材品种:钢材Q235钢(>16-40);弹性模量E:206000N/mm2;屈服强度fy:235N/mm2;抗拉/抗压/抗弯强度设计值f:205N/mm2;抗剪强度设计值fv:120N/mm2;端面承压强度设计值fce:325N/mm2;(三) 次楞参数材料:1根50×100矩形木楞;间距(mm):400;木材品种:太平洋海岸黄柏;弹性模量E:10000N/mm2;抗压强度设计值fc:13N/mm2;抗弯强度设计值fm:15N/mm2;抗剪强度设计值fv:1.6N/mm2;(四) 加固楞支拉参数加固楞采用穿梁螺栓支拉;螺栓直径:M14;螺栓水平间距:800mm;螺栓竖向间距(mm)依次是:150,400;4.梁底模板参数搭设形式为:1层梁横向顶托承重;(一) 面板参数面板采用模板宽200面板厚2.50钢面板;厚度:2.5mm;抗弯设计值fm:205N/mm2;弹性模量E:206000N/mm2;(二) 第一层支撑梁参数材料:1根□60×40×2.5矩形钢管;钢材品种:钢材Q235钢(>16-40);弹性模量E:206000N/mm2;屈服强度fy:235N/mm2;抗拉/抗压/抗弯强度设计值f:205N/mm2;抗剪强度设计值fv:120N/mm2;端面承压强度设计值fce:325N/mm2;二、梁侧模板面板的计算面板为受弯结构,需要验算其抗弯强度和刚度。
2014年1月安全计算软件升级简介应广大用户需求,本公司对软件进行了部分更新,更新主要内容如下:1.更新了《建筑施工扣件式钢管脚手架安全技术规范》(JGJ130‐2011)、《建筑结构荷载规范》(GB 50009‐2012)、《混凝土结构工程施工规范》(GB50666‐2011)等新规范。
2.满堂支撑架(用于混凝土工程)归并到板模板支撑架。
3.完善双排落地脚手架立杆稳定性计算。
4.简化满堂脚手架及满堂支撑架(用于安装工程)界面,参数更加开放,搭设尺寸不再局限,适用范围更加广泛。
5.增加模板工程中风荷载计算及扣件支撑中偏心距对立杆稳定性的影响。
6.将JGJ130‐2011、GB50666‐2011、JGJ162‐2008三本规范在模板工程中完美结合,弥补了单本规范的不足,可以满足不同用户的需求。
荷载组合可以选择GB50666‐2011或JGJ162‐2008,见下图所示:立杆稳定性计算可以选择JGJ130‐2011或JGJ162‐2008,见下图所示:7.增加模板支撑架的整体稳定性验算和抗倾覆验算,以及抗倾覆验算不合格时的拉锚验算。
《混凝土结构工程施工规范》GB50666‐2011中明确要求对模板支架进行整体稳定性验算和抗倾覆验算,本公司设计的此项内容属全国首创,适用于梁板,独立梁、大厚度板、操作平台等结构的验算。
8.改善了柱模板长边和短边不能设置不同加固楞的缺陷。
在实际施工中,矩形截面柱长边和短边的加固楞可能会采用不同材料,为满足此项需求,本软件对柱子的长边和短边进行分开设计,当然也可以同时设计,即长边和短边采用相同材料的加固楞,这两种模式可以满足不同的需求。
9.弥补模板支架参数不足,允许用户对顶部立杆步距进行加密。
10.增加高支模的判定与计算。
恒智天成安全计算软件梁模板(工具式钢管立柱支撑)计算书本计算书依据《建筑施工模板安全技术规范》(JGJ162-2008)、《建筑施工计算手册》江正荣著、《建筑结构荷载规范》(GB 50009-2001)、《混凝土结构设计规范》(GB50010-2002)、《钢结构设计规范》(GB 50017-2003)等规范编制。
梁段:L1。
模板支撑体系剖面图2.荷载参数新浇筑砼自重标准值G2k :24kN/m3;钢筋自重标准值G3k:1.5kN/m3;梁侧模板自重标准值G1k :0.5kN/m2;砼对模板侧压力标准值G4k:12.933kN/m2;倾倒砼对梁侧产生的荷载标准值Q3k:2kN/m2;梁底模板自重标准值G1k :0.75kN/m2;振捣砼对梁底模板荷载Q2k:2kN/m2;3.梁侧模板参数加固楞搭设形式:主楞横向次楞竖向设置;(一) 面板参数面板采用克隆(平行方向)15mm厚覆面木胶合板;厚度:15mm;抗弯设计值fm:30N/mm2;弹性模量E:11500N/mm2;(二) 主楞参数材料:2根Ф48×3.5钢管;间距(mm):150,400;钢材品种:钢材Q235钢(>16-40);弹性模量E:206000N/mm2;屈服强度fy:235N/mm2;抗拉/抗压/抗弯强度设计值f:205N/mm2;抗剪强度设计值fv:120N/mm2;端面承压强度设计值fce:325N/mm2;(三) 次楞参数材料:1根50×100矩形木楞;间距(mm):400;木材品种:太平洋海岸黄柏;弹性模量E:10000N/mm2;抗压强度设计值fc:13N/mm2;抗弯强度设计值fm:15N/mm2;抗剪强度设计值fv:1.6N/mm2;(四) 加固楞支拉参数加固楞采用穿梁螺栓支拉;螺栓直径:M14;螺栓水平间距:800mm;螺栓竖向间距(mm)依次是:150,400;4.梁底模板参数搭设形式为:1层梁横向顶托承重;(一) 面板参数面板采用模板宽200面板厚2.50钢面板;厚度:2.5mm;抗弯设计值fm:205N/mm2;弹性模量E:206000N/mm2;(二) 第一层支撑梁参数材料:1根□60×40×2.5矩形钢管;钢材品种:钢材Q235钢(>16-40);弹性模量E:206000N/mm2;屈服强度fy:235N/mm2;抗拉/抗压/抗弯强度设计值f:205N/mm2;抗剪强度设计值fv:120N/mm2;端面承压强度设计值fce:325N/mm2;二、梁侧模板面板的计算面板为受弯结构,需要验算其抗弯强度和刚度。
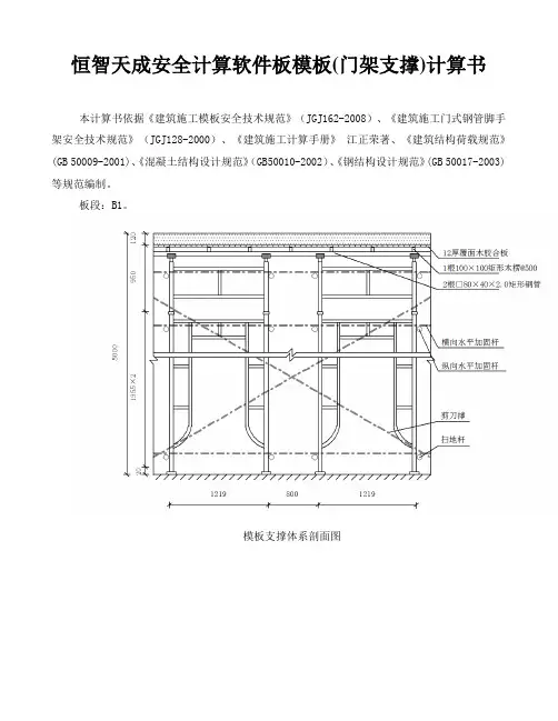
恒智天成安全计算软件板模板(门架支撑)计算书本计算书依据《建筑施工模板安全技术规范》(JGJ162-2008)、《建筑施工门式钢管脚手架安全技术规范》(JGJ128-2000)、《建筑施工计算手册》江正荣著、《建筑结构荷载规范》(GB 50009-2001)、《混凝土结构设计规范》(GB50010-2002)、《钢结构设计规范》(GB 50017-2003)等规范编制。
板段:B1。
模板支撑体系剖面图(一) 板模板荷载参数新浇筑砼自重标准值G2k :24kN/m3;钢筋自重标准值G3k:1.1kN/m3;板底模板自重标准值G1k:0.3kN/m2;承受集中荷载的模板单块宽度:1830mm;施工人员及设备荷载标准值Q1k:计算模板和直接支承模板的小梁时取2.5kN/m2;计算直接支承小梁的主梁时取1.5kN/m2;计算支架立柱等支承结构构件时取1kN/m2;(二) 门架静荷载参数水平架5步4设;脚手板5步1设;水平加固杆采用Φ42 × 2.5mm钢管,4步1设;剪刀撑采用Φ42 × 2.5mm钢管,按照4步4跨设置;1跨1步架内包含旋转扣件4个,直角扣件1个;附件、安全网重量(kN/m):0.02栏杆重量 (kN/m):0.013.板底模板参数搭设形式为:2层梁上顺下横单门架;(一) 面板参数面板采用克隆(平行方向)12mm厚覆面木胶合板;厚度:12mm;抗弯设计值fm:31N/mm2;弹性模量E:11500N/mm2;(二) 第一层支撑梁参数材料:1根100×100矩形木楞;间距:500mm;木材品种:太平洋海岸黄柏;弹性模量E:10000N/mm2;抗压强度设计值fc:13N/mm2;抗弯强度设计值fm:15N/mm2;抗剪强度设计值fv:1.6N/mm2;(三) 第二层支撑梁参数材料:2根□80×40×2.0矩形钢管;钢材品种:钢材Q235钢(>16-40);弹性模量E:206000N/mm2;屈服强度fy:235N/mm2;抗拉/抗压/抗弯强度设计值f:205N/mm2;抗剪强度设计值fv:120N/mm2;端面承压强度设计值fce:325N/mm2;4.地基参数模板支架放置在地面上,地基土类型为:碎石土;地基承载力标准值:650kPa;立杆基础底面面积:0.25m2;地基承载力调整系数:0.8。
恒智天成安全计算软件大模板计算书本计算书依据《建筑工程大模板技术规程(JGJ74-2003)》、《建筑施工计算手册》江正荣著、《建筑结构荷载规范》(GB 50009-2001)、《混凝土结构设计规范》(GB50010-2002)、《钢结构设计规范》(GB 50017-2003)等规范编制。
大模板高度H:2.75m;大模板宽度B:4.9m;2.模板参数搭设形式:背楞竖向主肋横向无次肋;(一) 面板参数面板厚度:6mm;钢材品种:钢材Q235钢(>16-40);弹性模量E:206000N/mm2;屈服强度fy:235N/mm2;抗拉/抗压/抗弯强度设计值f:205N/mm2;抗剪强度设计值fv:120N/mm2;端面承压强度设计值fce:325N/mm2;面板允许挠度L/:500;(二) 背楞参数材料:2根[80×43×5.0槽钢;间距(mm):1000;钢材品种:钢材Q235钢(>16-40);弹性模量E:206000N/mm2;屈服强度fy:235N/mm2;抗拉/抗压/抗弯强度设计值f:205N/mm2;抗剪强度设计值fv:120N/mm2;端面承压强度设计值fce:325N/mm2;背楞允许挠度L/:500;(三) 主肋参数材料:1根[80×43×5.0槽钢;间距(mm):100,300*8;钢材品种:钢材Q235钢(>16-40);弹性模量E:206000N/mm2;屈服强度fy:235N/mm2;抗拉/抗压/抗弯强度设计值f:205N/mm2;抗剪强度设计值fv:120N/mm2;端面承压强度设计值fce:325N/mm2;主肋允许挠度L/:500;(四) 穿墙螺栓参数螺栓直径:M22;螺栓水平间距:1000mm;螺栓竖向间距(mm)依次是:100,500*3,1000;3.荷载参数新浇砼对模板的侧压力标准值G:44.343kN/m2;1k振捣砼产生的模板荷载Q1k:4kN/m2;倾倒砼产生的荷载标准值Q2k:4kN/m2;二、钢面板的计算面板为受弯结构,需要验算其抗弯强度和刚度,这里取面板的计算宽度为1.000m。
恒智天成安全计算软件主程序-创新点1 主界面预览计算书:单击左侧的计算项目节点,我们就可以预览计算书的内容。
通过这样的操作,您就可以轻松的查看生成的计算书文档,也可以打印需要的计算书,非常方便。
您还可以把工程文件发给您的同事,他可以预览或者打印输出这些计算书,有利于数据的传递。
这种方式是本公司独创的,一定对您的工作很有帮助。
2 符合建筑制图标准的搭设简图:实用文档数据录入界面显示搭设简图,图形中的数据随着用户填写的数据做同步变化,自动绘制新的图形;图中的数据标注形式和绘图方法完全符合建筑制图标准的要求;绘制的图形是矢量图格式,打印不失真。
这种绘图模式是本公司首创的,目前同类软件提供的简图都无法和本软件媲美。
看看下面两个图:左图次楞间距为250,在界面上,当次楞间距修改为100时,图形自动变化,如右图所示:实用文档下面是梁支撑系统的一个简图:3 独创搭设形式概念,简化用户操作:实用文档目前同类软件都是要求用户通过输入一些数据来设计出需要的搭设形式,这样做很麻烦。
而本软件,用户只需选择自己需要的搭设形式,右侧简图同步变化,用户对照简图直接填写该搭设形式下需要填写的数据,而不必管其他无关的数据。
这样做大大方便了用户填写数据,同时,防止数据填写错误。
大大减少了用户学习的成本。
可以说,本软件的模板模块,用户几乎不用学习,拿起来就可以用。
本软件其他模块在以后的升级过程中,也要逐步的过渡到采用“搭设形式”方式上来。
实用文档4 保存示例功能,大大提高您的工作效率:软件中提供了一些填写示例给用户参考,对用户使用软件起到了指导作用;用户完全可以通过保存示例的办法把当前的计算项目保存,当您在做其他工程的时候,如果计算项目的数据和保存的示例相近,就可以直接调取示例,这是本公司独创的新功能,将大大提高您的工作效率。
实用文档5 快速试算功能,方便您快速调整数据:当界面参数录入完毕后,就可以单击快速试算按钮进行计算了。
如果我们直接生成计算书,因为计算书中内容较多,软件生成的时间较长,况且,你需要从整个计算书中找验算不合格的位置,很麻烦。
恒智天成建筑资料软件
恒智天成建筑资料软件专业致力于工程建设行业软件的开发与推广,为工程建设行业管理与办公自动化提供全方位的解决方案。
公司软件已覆盖建筑业大部分领域,恒智天成建设工程资料管理系列软件(包含建筑、市政、安全、水利水电、公路、石油等多个领域)、恒智天成快速投标系列软件(平面图、网络图、标书软件)、恒智天成安全设施计算系列软件、恒智天成工程预算系列软件。
恒智天成各省建筑资料软件通过住建部鉴定,达到了国内同类软件的领先水平适用于建筑、安全、装饰、园林、消防、人防、节能、结构加固、分户验收等施工企业或监理企业编制内业技术资料。
软件表格齐全,功能强大,完全符合北京市内业资料管理的要求。
恒智天成行业建筑资料软件。
公司简介:恒智天成(北京)软件技术有限公司成立于2000年,公司以推动工程建设行业的科技进步为己任,专业致力于工程建设行业软件的开发与推广,为工程建设行业管理与办公自动化提供全方位的解决方案。
恒智天成位于北京二环以内黄金地段的北京富卓大厦内,为北京市城市中心位置,黄金地段。
从富卓3大厦步行到西单仅仅需要15分钟。
地铁2号线、4号线、7号线和数条公交线路从本大厦附近通过,交通极其便利。
富卓大厦是5A级智能化写字楼,超现代化的办公环境大大提升了本公司的形象;优越的地理位置,为更好的服务客户创造了条件。
恒智天成是目前国内专业的工程建设行业技术资料软件开发商(早在2000年开始研发资料软件),"恒智施工技术资料管理系统"于2002年7月率先通过建设部科技成果鉴定,达到国内同类软件的领先水平。
先后有河北省建设厅、广西建设工程质量安全监督总站、山西省建设工程质量监督总站、海南省建设工程质量安全监督总站、北京市市政工程协会、北京市城市建设档案馆、中国市政工程协会等建设主管部门与本公司联合开发了当地的资料管理软件,为当地资料管理的规范科学化作出了巨大贡献。
公司软件已覆盖建筑业大部分领域,恒智天成建设工程资料管理系列软件(包含建筑、市政、安全、水利水电、公路、石油等多个领域)、恒智天成快速投标系列软件(平面图、网络图、标书软件)、恒智天成安全设施计算系列软件、恒智天成工程预算系列软件,欢迎广大建设行业同仁选用!恒智天成坚持"专业专注、务实创新"的发展理念,始终如一的为用户提供质优价廉的软件产品;坚持“实在做人,踏实做软件”的开发原则,让用户相信“选择恒智天成就等于选择了品质!”;公司业务已覆盖全国,每年有2万余家用户选择恒智天成的软件产品!奥运会最具代表性的鸟巢工程采用了恒智天成的部分软件产品。
恒智天成软件,真正是用户用出来的品牌!恒智天成——全国建设行业同仁最忠实的朋友!产品包括:全国各省建筑资料管理软件(按省分类)全国各省预算软件(按省分类)国家电网电力工程资料管理软件水运工程资料管理软件公路工程施工技术资料管理软件电力工程资料管理软件水利水电工程资料管理软件土地开发整理工程资料管理软件冶金建筑安装工程资料管理软件快速投标“三剑客”软件第三代施工进度计划图编制系统建筑施工安全设施计算/安全方案编制集成系统煤炭建设工程清单计价/定额计价软件电力工程计价软件石油石化建设工程清单计价/定额计价2合1软件图形算量/钢筋算量2合1软件标书制作管理系统。
恒智天成安全计算软件土钉墙支护计算计算书一、恒智天成安全计算软件参数信息:表中:h为土层厚度(m),γ为土重度(kN/m3),C为土的内粘聚力(kPa),φ为内摩擦角(°),qisk为极限摩擦阻力(kPa)4.土钉墙布置数据:2) 土钉数据表中:No.为土钉道号,d为孔径,L为长度,n为层数,α为入射角,Sj为竖向间距,D为钢筋直径。
二、土钉(含锚杆)抗拉承载力的计算单根土钉受拉承载力计算,根据《建筑基坑支护技术规程》JGJ 120-99,R=1.25γ0T jk1、其中土钉受拉承载力标准值Tjk按以下公式计算:T jk =ζeajksxjszj/cosαj其中ζ--荷载折减系数eajk--土钉的水平荷载sxj 、szj--土钉之间的水平与垂直距离αj--土钉与水平面的夹角ζ按下式计算:ζ=tan[(β-φk)/2](1/(tan((β+φk)/2))-1/tanβ)/tan2(45°-φ/2) 其中β--土钉墙坡面与水平面的夹角φ--土的内摩擦角eajk按根据土力学按照下式计算:eajk =[(γi×szj)+q+q1b/(b+2b1)]×Kai-2c(Kai)1/2eajk =[(γi×szj)+q+q1b/(b+2b1)]×Kai-2c(Kai)1/2+[(zj-hwa)-(mj-hwa)ηKai]γw2、土钉抗拉承载力设计值Tuj按照下式计算T uj =(1/γs)πdnj∑qsikli其中 dnj--土钉的直径。
γs--土钉的抗拉力分项系数,取1.3q--土与土钉的摩擦阻力。
根据JGJ120-99 表6.1.4和表4.4.3选取。
sikl--土钉在直线破裂面外穿越稳定土体内的长度。
i表中:Tjp为受拉荷载标准值,Tuj为抗拉承载力设计值根据每根土钉受拉荷载设计值(=1.25×γ0×标准值),按照土钉材料,计算土钉的强度(土钉的层号按标高排序):第1根土钉:土钉受拉荷载设计值=1.25×1×3.00=3751.70 N<205×489.00=.00 N,满足要求!第2根土钉:土钉受拉荷载设计值=1.25×1×27.90=34879.88 N<205×489.00=.00 N,满足要求!第3根土钉:土钉受拉荷载设计值=1.25×1×42.18=52730.12 N<205×489.00=.00 N,满足要求!第4根土钉:土钉受拉荷载设计值=1.25×1×40.43=50542.64 N<360×380.13=.77 N,满足要求!三、土钉墙验算(1) 内部稳定性验算根据规范《建筑基坑支护技术规程》JGJ 120-99第6.2.1条规定,土钉墙应根据施工期间不同开挖深度及基坑底面以下可能滑动面采用圆弧滑动简单条分法,并按下式进行稳定性验算:F s=()()()1110011()cos cos sin2sinn n mik i i i i ik nj j j j j iki i jni i iic L s s q b tg T tgs q bωθϕαθαθϕγωθ====⎡⎤+++⨯+++⎢⎥⎣⎦+∑∑∑∑≥1.3式中 n--滑动体分条数m--滑动体内土钉数γ--基坑侧壁重要性系数ωi--第i条土重bi--第i分条宽度cik--第i条滑土裂面处土体固结不排水(快)剪粘聚力标准值φik--第i条滑土裂面处土体固结不排水(快)剪内摩擦角标准值θi--第i条土滑裂面处中点切线与平面夹角αj--土钉与水平面之间的夹角Li--第i条土滑裂面的弧长s--计算滑动体单元厚度Tnj--第j根土钉在圆弧滑裂面外锚固与土体的极限抗拉力,按下式计算:T nj =πdnj∑qsiklnjnj--第j根土钉在圆弧滑裂面外穿越第i层稳定土体内的长度规定:基坑顶部边缘为坐标0点,X轴以向左为正,Y轴以向上为正计算结论如下:第1步开挖内部稳定性安全系数=2.23≥1.3,满足要求!第2步开挖内部稳定性安全系数=2.49≥1.3,满足要求!第3步开挖内部稳定性安全系数=1.59≥1.3,满足要求!第4步开挖内部稳定性安全系数=1.44≥1.3,满足要求!(2) 抗滑动稳定性验算K s =()yxG EEμ+≥1.3式中 Ks--抗滑稳定性系数G--计算土体自重E x 、Ey--分别为主动土压力的水平和竖向分力μ--基底摩擦系数计算结果:Ks= 1.445≥1.3,满足要求!(3) 抗倾覆稳定性验算K t =yxGb E aE h'+'≥1.6式中 Kt--抗倾覆稳定性系数b′、a、h′--分别是G、Ey 、Ex对墙趾的力臂计算结果:Kt= 29.644≥1.6,满足要求!(4) 土地基承载力验算)61(maxmin b e b E G P y ±+=式中 P max 、P min --分别是基础底面边缘处的最大和最小压力 b--墙底宽度e--荷载作用于底面的偏心距,e=0.5b-y x yGb E a E h G E ''+-+f a --修正后的地基承载力特征值计算结果:P max = 98.308≤1.2f a = 480.000,满足要求! P min = 91.901≥0,满足要求!。
恒智天成安全计算软件移动式操作平台计算书本计算书依据《建筑施工高处作业安全技术规范》(JGJ80-91)、《建筑施工模板安全技术规范》(JGJ162-2008)、《建筑施工计算手册》江正荣著、《建筑结构荷载规范》(GB 50009-2001)、《混凝土结构设计规范》(GB50010-2002)、《钢结构设计规范》(GB 50017-2003)等规范编制。
移动式操作平台立面图移动式操作平台侧面图一、恒智天成安全计算软件参数信息钢管类型(mm): Φ48 × 3.5;操作平台高度: 5200mm;平台上口宽度: 2800mm;平台上口长度: 3000mm;扫地杆高度: 400mm; 每侧水平杆层数: 4; 次梁根数: 9;扣件连接方式: 双扣件;扣件抗滑系数: 0.8;脚手板自重: 0.22kN/m2;施工均布活荷载: 1.5kN/m2;次梁受集中活荷载: 1kN;二、次梁钢管计算次梁采用Φ48 × 3.5钢管,间距375mm。
1.荷载效应计算:模板自重标准值G1k=0.22×0.375=0.083 kN/m;钢管自重标准值G2k=3.84×10×10-3=0.038kN/m;永久荷载标准值G k= 0.083+0.038=0.121 kN/m;施工均布活荷载标准值Q1k=1.5×0.375=0.563 kN/m;计算次梁时用集中活荷载进行验算P=1kN;(1)永久荷载和均布活荷载效应组合q=1.2×0.121+1.4×0.563=0.933kN/m;M1=0.125ql2 =0.125×0.933×2.82 =0.914 kN·m;(2)永久荷载和集中活荷载效应组合q=1.2×0.121 =0.145kN/m;P=1.4×1 =1.400kN;M2=0.125ql2 +0.25Pl=0.125×0.145×2.82 +0.25×1.400×2.8=1.122 kN·m;2.次梁强度验算σ=M/W=0.9×1.122×106/5.08×103 =198.811N/mm2上式中0.9的说明:根据建筑施工模板安全技术规范(JGJ162-2008)》考虑对荷载效应值×0.9的结构重要性系数。
恒智天成建筑施工模板安全计算软件一、编制依据:《模板安全技术规范》(JGJ162-2008)、《碗扣式脚手架安全技术规范》(JGJ166-2008)、《扣件式脚手架安全技术规范》(JGJ130-2011)等几十个安全技术规范二、功能介绍1计算精确可靠、数据权威规范:依托清华大学、北京建工学院10多位专家的理论优势,严格遵循现行国家及地方标准、规范,结合各省大型建筑公司安全管理部门的实践经验,通过严格测试,近百项工程实际应用,证明本软件权威规范,完全可以满足各地施工现场安全设施计算的要求。
210分钟内精确高效编制安全计算书:参数智能输入,一键生成完整计算书,软件可以依据用户填写的数据,自动给出主要构件的强度、挠度校核过程,给出弯矩图、剪力图、变形图。
自动生成的计算书包括详细的计算依据、计算过程、计算简图及计算结果,图文并茂,简洁明了,同时对不符合安全要求的项目突出警告,并给出修改建议。
3 智能编制安全专项施工方案书:本系统提供脚手架、模板等大量常用的安全方案模板,可以自动导入安全计算软件生成的计算书和工程概况数据,用户只需单击“方案生成”,自由选择排版模式,软件会自动生成带有封面和章节目录的规范安全施工方案;提供海量素材库,包含常用安全法规、安全交底、安全方案、安全管理制度等;软件提供素材管理功能:用户可以把以前积累的各种素材(上级要求、本单位文件等)导入素材库中备用。
4针对性输出安全设施计算报审表:根据您的设计方案,智能输出报审表,表中含图,做到了重点突出,要点明确,一目了然,方便自己、总工、技术负责人和监理等审核方案,审核的准确性、审核效率大大提高。
5由计算书同步生成安全技术交底:根据您计算书中的计算数据,同步生成专项安全技术交底。
6智能编制应急预案:软件提供大量的施工安全应急预案,用户可以根据自己工程的实际特点,稍加修改,即可编制完成自己需要的安全应急预案。
7软件易学易用,提供多媒体教学,30分钟学会软件:软件设计人性化,无需电脑基础,无需手工计算,无需查阅规范,只需输入基本参数,软件轻轻松松帮您搞定一切。
恒智天成安全计算软件室外施工操作平台计算书扣件式钢管落地平台的计算依照《建筑施工扣件式钢管脚手架安全技术规范》(JGJ130-2001)、《建筑地基基础设计规范》(GB 50007-2002)、《建筑结构荷载规范》(GB 50009-2001)、《钢结构设计规范》(GB 50017-2003)等编制。
由于《扣件架规范》(JGJ130-2001) 对于模板支架计算存在重要疏漏,本计算书编写还参考了《施工技术》2002.3.《扣件式钢管模板高支撑架设计和使用安全》(作者:杜荣军)一文。
一、参数信息:1.基本参数立杆纵向间距l a(m):1.00,立杆步距h(m):1.80;立杆横向间距或排距l b(m):1.00,平台支架计算高度H(m):12.00;平台底钢管间距离(mm):0.00;钢管类型(mm):Φ48 × 3.5,扣件连接方式:双扣件,取扣件抗滑承载力系数:0.85;2.荷载参数脚手板自重(kN/m2):0.300;栏杆自重(kN/m):0.150;材料堆放最大荷载(kN/m2):3.000;施工均布荷载(kN/m2):2.000;2.地基参数地基土类型:素填土;地基承载力标准值(kPa):170;立杆基础底面面积(m2):0.25;地基承载力调整系数:0.4。
二、纵向支撑钢管计算:纵向钢管按照均布荷载下连续梁计算,截面几何参数为截面抵抗矩 W = 5.08 cm3;截面惯性矩 I = 12.19cm4;纵向钢管计算简图1.荷载的计算:(1)脚手板与栏杆自重(kN/m):Q1 = 0.15 + 0.3×0.3 = 0.24 kN/m;(2)堆放材料的自重线荷载(kN/m):Q2 = 3×0.3 = 0.9 kN/m;(3)活荷载为施工荷载标准值(kN/m):Q3 = 2×0.3 = 0.6 kN/m2.强度验算:依照《规范》5.2.4规定,纵向支撑钢管按三跨连续梁计算。
恒智天成山西省建筑工程预算软件功能介绍一、编制依据:建设部颁布的《建筑工程工程清单计价规范GB-50500-2008、2003》山西省建筑及装饰工程预算定额(2011)山西省安装工程预算定额(2011)山西省市政工程预算定额(2011)山西省市政维护工程预算定额(2011)山西省园林工程预算定额(2011)山西省仿古建筑工程预算定额(2011)山西省抗震加固工程预算定额(2011)山西省建筑装饰工程消耗量定额(2005)山西省安装工程消耗量定额(2005)山西省市政工程消耗量定额(2005)山西市政维护工程预算定额(2005)山西省园林绿化工程消耗量定额(2005)山西省仿古建筑工程预算定额(2005)山西省建筑及装饰工程预算定额(2000)山西市政工程预算定额(2000)山西省市政维修工程预算定额(2000)山西仿古建筑与园林工程预算定额(2001)山西省建筑节能项目预算定额(2009)全统安装工程预算定额山西省价目表(2000)全统安装定额山西价目表(95)山西省建筑工程预算定额(95)山西省市政工程预算定额(95)太原市修缮土建工程预算定额(2005)太原市修缮安装工程预算定额(2005)太原修缮土建工程预算定额(2001)太原市修缮安装工程预算定额(2001)太原修缮土建工程预算定额(95)山西省抗震加固工程预算定额(2005)二、功能介绍1.清单计价、定额计价合2为1:巧妙的把清单计价和定额计价融合在一起,操作模式统一,定额计价提供传统的“工料单价法”和最新的“综合单价法”两种计算模式。
2.独创“自动关联”功能,一键导入措施定额:用户输入到实体页面的措施类定额,可以一键导入措施页面;“关联子目”智能输入:在输入混凝土等类子目时,可以自动输入关联的模板等子目。
3.独创“增加费计算模型”,增加费计算一目了然,防止丢项:可以显示每个子目的安装子目增加费或超高降效增加费的详细计算过程,可以一次性设置增加费、取消增加费,显示已记取增加费的子目,防止丢项。
恒智天成建筑施工模板安全计算软件
一、编制依据:
《模板安全技术规范》(JGJ162-2008)、《碗扣式脚手架安全技术规范》(JGJ166-2008)、《扣件式脚手架安全技术规范》(JGJ130-2011)等几十个安全技术规范
二、功能介绍
1计算精确可靠、数据权威规范:
依托清华大学、北京建工学院10多位专家的理论优势,严格遵循现行国家及地方标准、规范,结合各省大型建筑公司安全管理部门的实践经验,通过严格测试,近百项工程实际应用,证明本软件权威规范,完全可以满足各地施工现场安全设施计算的要求。
210分钟内精确高效编制安全计算书:
参数智能输入,一键生成完整计算书,软件可以依据用户填写的数据,自动给出主要构件的强度、挠度校核过程,给出弯矩图、剪力图、变形图。
自动生成的计算书包括详细的计算依据、计算过程、计算简图及计算结果,图文并茂,简洁明了,同时对不符合安全要求的项目突出警告,并给出修改建议。
3 智能编制安全专项施工方案书:
本系统提供脚手架、模板等大量常用的安全方案模板,可以自动导入安全计算软件生成的计算书和工程概况数据,用户只需单击“方案生成”,自由选择排版模式,软件会自动生成带有封面和章节目录的规范安全施工方案;提供海量素材库,包含常用安全法规、安全交底、安全方案、安全管理制度等;软件提供素材管理功能:用户可以把以前积累的各种素材(上级要求、本单位文件等)导入素材库中备用。
4针对性输出安全设施计算报审表:
根据您的设计方案,智能输出报审表,表中含图,做到了重点突出,要点明确,一目了然,方便自己、总工、技术负责人和监理等审核方案,审核的准确性、审核效率大大提高。
5由计算书同步生成安全技术交底:
根据您计算书中的计算数据,同步生成专项安全技术交底。
6智能编制应急预案:
软件提供大量的施工安全应急预案,用户可以根据自己工程的实际特点,稍加修改,即可编制完成自己需要的安全应急预案。
7软件易学易用,提供多媒体教学,30分钟学会软件:
软件设计人性化,无需电脑基础,无需手工计算,无需查阅规范,只需输入基本参数,软件
轻轻松松帮您搞定一切。
软件提供真人讲解的多媒体教学演示文件,通过认真学习,半小时
就可以掌握软件
三、发布单位
软件开发单位:恒智天成(北京)软件技术有限公司
曾经,我们眼中有拥抱春天的狂欢,有舞台下观众热烈的掌声,有扩写着唯美浪漫的文字。
如今,半生已过,我们平凡的如同一杯开水,不再急着添加色料,不再忙着战胜别人,而是默默沉淀,如一波波暗流涌动的潮水,低调地奔腾着。
来日方长,其实并不长,该拼搏就拼搏,该开心就开心,生命哪有时间留给悲伤啊!
你该有的是非成败,别人也曾有过,你该有的辛酸苦辣,谁也不会缺席。
不管怎样,我们总要演好人生这场大戏,直至生命落幕。
人生不要惧怕:不要惧怕说错话;不要惧怕走错路;不要惧怕忆过去;不要惧怕望未来。
人生应该理智:在情绪不良时,心态要平稳;在伤悲流泪时,不要作任何决定;在急躁冲动时,不要让情感的闸门决堤。
人生应该从从容容,坦坦然然;生活应该有滋有味,欢欢畅畅。
生命存在一日,就要尽享人生!享受人生的过程,要比注重其结果更实惠,更有意义,更有价值!
细细想来,蚂蚁的哲学很值得人们借鉴:团结协作,不谋私利,深谋远虑,从不放弃。
小小的昆虫尚能如此,何况堂堂之人乎?
人,就是要活得潇洒:不要和别人过不去,与其常常栽刺,不如处处种花;种花会令人赞赏,栽刺会使人受伤。
不要和自己过不去,别为一个小小的职位而恼怒,别为一点微薄的报酬而计较;别为一些闲言碎语而生气,别为一丝不如人意而叹气。
不为名所累,不为利所动,不为官所恼,不为情所困,是人们最宽广的胸襟。
不争不斗是原则,察言观色仍要得。
千人千面要认清,心明眼亮辨是非。
马善,人人皆爱骑;人善,不该有人欺。
人说人话皆正常,人说鬼话须提防,鬼说人话人遭殃。
为人处世要真诚,真心掏给真心朋;面对两面三刀者,理当口应心不应。
人活一世,应尽力发热发光,应活得精彩,活得辉煌。
人生如树如花,有其干壮枝茂,叶绿花红的历史;人生又如落叶,终有其零落的那一天。
但是,有谁能忘记它曾经有过的叶的嫩绿,花的绚烂?!
人的一生,犹如负重远行。
行程之中,或路过绚烂的鲜花,或遭遇刺人的荆棘;或行走于宽阔的大道,或跋涉于重重的山水;或穿越于柳暗花明的林荫曲径,或挣扎于坎坷泥泞之中。
这所有的所有,或喜或悲,或成或败,只取决于人生的态度和行为。
有几句祖孙俩的对话引人深思:爷爷对孙子说:“每个人的身体里都有两只狼,它们时常残酷的相互搏杀。
一只狼代表愤怒、嫉妒、骄傲、恐惧和耻辱;另一只代表温柔、善良、感恩、希望、微笑和关爱。
”孙子着急的问:“爷爷,哪只狼更厉害?”老人回答:“你经常喂食的那一只”.
人生冷暖,要坦然面对,从容视之;世态炎凉,要随遇而安,泰然处之。