总承包商资格预审表中英文版(模板 )
- 格式:docx
- 大小:42.49 KB
- 文档页数:13
附件1供应商资格预审表第1页 共2页供应商名称编号产品名称法人代表地址邮政编码联系人联系电话Internet网址 E-mail传真 成立日期请提供营业执照和资质证书的复印件(加盖公章)请提供产品质量证明文件 (如检测报告等) (加盖公章)请提供质量标准/规范的复印件或说明其标准的名称样品: 无; 有。
样本: 无; 有。
生产许可证: 无; 有,请提供复印件(加盖公章)。
是否有准用证要求: 无; 有,请提供证明文件(加盖公章)是否有备案要求: 无; 有,请提供证明文件(加盖公章) 审 质量/环境/职业安全卫生管理体系认证证书以及产品认证证书: 无; 有,请提供复印件(加盖公章)。
核 新技术、新产品的生产许可证: 无; 有,请提供复印件(加盖公章);环保要求/标准∶ 无; 有,请提供相关文件(加盖公章) 内职业安全健康要求/标准: 无; 有,请提供相关文件(加盖公章)容 简述售后服务内容:如为经 销商请 提供生 产厂家 的相关 资料简述近三年的年销售总量:是否能够提供银行保函,如果可以,请说明提供担保的银行以及最大担保金额:已完工程名称供应商资格预审表第2页 共2页近期产品应用情况(不仅限于我公司项目)供应物资名称、规格型号数量合同金额 合同日期审 核 内 容 有关情况的说明∶供应商法人代表或授权人∶公章∶年月日审核以下内容由中建六局填写 供应商资质、供货能力、质量保证能力、满足环境和职业健康安全要求的能力∶ 合格 不合格签名∶日期∶是否能参加供应商的选择:批准 签名∶日期∶附件2项目名称及编码中国建筑 项目管理表格供应商登记表表格编号 CSCEC-PM-0903填报日期供货商编号商户名称:中文:英文:营业执照号:注册地址:联络地址:电 话:网 址:公司性质:1. □独资经营□合伙经营□其它2. 所属母公司名称:附属子公司名称:联营公司名称:注册日期:传 真: 电子邮箱: □有限公司□上市公司注册资本: 元□拾万元或以下 □壹仟万元以上□拾万至壹佰万元□壹佰万至壹仟万每年营业额: □壹佰万元或以下 □壹亿元至拾亿元业务性质及范围:□壹佰万至壹仟万元 □拾亿元以上□壹仟万至壹亿元主要客户:本地 主要货源:本地 总代理产品:代理产品: 经销产品:%,国内 %,海外 %;合计 100% %,国内 %,海外 %;合计 100%(以 上 三 项 经 营 范 围 , 请 在 附 页 打 字 填 写 及 附 上 供 应 记 录 )注:本表可用于物资供应商及施工设备供应商的登记。
资格预审表模板
1申请资格预审单位的概况(若是联合体,则主办人和联合体各成员情况需分别填报。
)
(1 )企业简历
(2)人员和机械设备情况
2 •财务状况(若是联合体,主办人和联合体各成员情况需分别填报。
)
(1
(2
(3)最近2年的经审计的财务报表(附财务报表)
(4)下一年度的财务预测报告(附财务预测报告)
(5)可以查到财务信息的开户银行的名称、地址,以及申请单位向其开户银行出具的招标人可查证的授权书
3•拟投入的主要管理人员情况(按专业、管理和在现场的、不在现场的列明;若
4.目前剩余劳动力和施工机械设备情况(若是联合体,则主办人和联合体各成员
需分别填报。
)
(1 )剩余劳动力情况
(2 )剩余施工机械设备情况
5•近3年来所承建的工程的情况(若是联合体,则主办人和联合体各成员需分别填报。
)
6.)
7•目前和过去2年涉及的仲裁、诉讼案件情况(若是联合体,则主办人和联合体各成员需分别填报,并将有关资料附上。
)
&其他资料(如各种奖励或处罚等,主办人和联合体各成员分别填报,并将有关资料附上。
)9•联合体协议书和授权书(附联合体协议书副本和各成员法定代表人签署的授权书。
)。
1 Section IV. Application FormsTable of FormsPage1.Application Submission Sheet - QP/02/01 282.Structure and Organization QP/02/02 293.Subcontractors - QP/02/03 (30)4.Legal Information - QP/02/04 315.Financial Information QP/02/05 326.Experience and References QP/02/06 357.Personnel QP/02/07 378.Equipment and Facilities QP/02/08 399.Quality Assurance QP/02/09 (40)10.T echnical Services QP/02/10 (41)11.A dditional Information QP/02/11 (42)The Application Form together with Forms QP/02/02 to QP/02/11 are attached on the following pages and are provided on digital form together with this document. The forms with all attachments and relevant information shall be carefully completed, signed, stamped and returned by all companies, as stated in the Instructions to Applicants.(Applicant Name to be stated in footer on all pages)2A PPLICATION SUBMISSION SHEET FOR P REQUALIFICATION TO T ENDER,S HEIKH JABER AL AHMED AL SABAH C AUSEWAY -D OHA L INK-QP/02/01,We the undersigned applicants hereby apply for prequalification to tender for the above Contract based on the information given in this application and the attached Forms. We understand and accept that the Employer shall have no obligations towards the Applicant that the Employer may reject any or all applications without giving any reason, and that he will not enter into any correspondence concerning rejected applications. We understand and accept that the Employer will not be responsible for, nor reimburse any expenses or losses which may be incurred in the preparation and submission of the application.We confirm that if a government entity is involved it meets the requirements of Clause 4.6. Any member or subcontractor has not been declared ineligible by Ministry of Public Works, Audit Bureau and Central Tendering Committee. In addition none of the above parties have any conflict of Interest as Clause 4.3.We also confirm that all members and supplies are provided in accordance with Clause 4.2 Eligible CountriesWe confirm that the required fee has been paid for the purchase of Prequalification Document. Place and Date: .............................., .........................., Signature:............................................................................................... Name:..............................................................................................Position in applicant's organisation:........................................................Applicant Name3Form 2 Part A. Applicant's company detailsApplicant Name4Form 3. Applicant's intended use of subcontractors for fabrication or constructionApplicant Name5Applicant Name6Form 5 Part A. Applicant company's financial details7 Form 5 Part B. Applicant company's ownership details and Parent Company Guarantee (If the Applicant is a Group of Contractors then each member of the Group shall8 Form 5 Part C. Applicant's ability to provide necessary Security and BondsApplicant NameForm 6 Applicant company's experience and references10Applicant NameForm 7 Applicant Company’s personnel informationApplicant NameForm 8. Applicant Company’s equipment and facilitiesApplicant NameApplicant NameForm 10. Applicant's intended use of technical services to be procured from external firms.Applicant Name16Applicant Name。
工程编号:备案盖章处施工资格预审文件工程名称:建设单位〔盖章〕:招标代理机构名目负责人执业印章:编制时刻:名目资格预审须知前附表第一章资格预审须知作为拟建工程的建设单位,已完成相关、、规章等的进行工程施工招标前政府主管部门的所有报批、登记、备案等手续,已具备进行施工招标的条件,现为该工程的施工、竣工、交付并修补任何缺陷公布如下投标资格预审公告,诚邀具备资格条件的申请人参与该工程的投标资格预审申请。
1. 工程概况工程名称:工程建设地点:建设规模:52667m2招标方式:公开招标招标范围:施工图纸内所示全部内容设计单位名称:设计图纸情况:施工图已出齐场地预备情况:已具备开工条件招标人:名称法定代表人地址招标代理机构:名称联系人联系地址及2. 资金来源及落实情况:企业自筹,资金差不多到位3. 投标申请人合格条件与资格要求3.1申请参与本工程投标资格预审的投标申请人须具备工商行政治理部门核发的有效营业执照;须具有独立法人资格、自主经营、独立核算;须具有建设行政主管部门核发的建筑业企业市政公用工程施工总承包二级〔含〕以上资质等级证书;建设行政主管部门颁发的建筑施工企业正常生产许可证;并在设备、人员、资金等方面具备相应的施工能力。
名目经理为市政公用工程专业贰级〔含〕以上注册建筑师,同时具有正常生产考核合格证书〔B本〕且具备类似工程的施工经历和一定业绩。
只有参加并通过资格预审的投标申请人方可参加本工程的投标。
4. 限制投标人4.1本资格预审采纳综合定量评审法,投标人数量限制在7家以内〔含家〕,依据量化得分择优选取合格投标人。
4.2限制母、子公司同时投标,同属一个母公司的各子公司参与投标的,家数限制在投标人总数的1/3以内。
5.集团公司与下属公司5.1集团公司提出资格预审申请时,应明确是否拟独立完成施工任务。
无生产资源的治理型集团公司拟安排其直属子公司参加招标名目具体施工或者子公司以集团公司名义投标的,在递交的申请文件中,子公司只能拟担负招标范围中已纳进竞争局限的施工任务。
合同审批表(中英文版)Approval Sheetfor Contract一、合同基本信息 Basic Information of the Contract1. 合同名称(中文):____________________Contract Name (English): __________________2. 合同编号:____________________Contract Number: __________________3. 合同双方:甲方(中文):____________________乙方(中文):____________________ Parties of the Contract: Party A (English):____________________Party B (English):__________________4. 合同签订日期:____________________Contract Signing Date: __________________5. 合同有效期:从__________________至__________________Contract Valid Period: From __________________ to__________________二、合同内容摘要 Abstract of the Contract Content1. 合同标的(中文):____________________Subject Matter of the Contract (English):__________________2. 合同金额(中文):人民币____________________元Contract Amount (English): ____________________ RMB3. 付款方式(中文):____________________Payment Method (English): __________________4. 履行地点(中文):____________________Performance Place (English): __________________5. 违约责任(中文):____________________Liability for Breach of Contract (English):__________________三、审批意见 Approval Comments1. 审批部门(中文):____________________Approval Department (English): __________________2. 审批人(中文):____________________Approver (English): __________________3. 审批日期:____________________Approval Date: __________________4. 审批意见(中文):____________________Approval Comments (English): __________________四、合同风险评估 Contract Risk Assessment1. 合同风险点(中文):____________________Contract Risk Points (English): __________________可能的风险描述(中文):____________________ Description of Potential Risks (English):__________________风险应对措施(中文):____________________ Risk Mitigation Measures (English):__________________2. 合同争议解决方式(中文):____________________Dispute Resolution Method (English):__________________预期解决时间(中文):____________________ Expected Resolution Time (English):__________________五、合同履行监督 Contract Performance Supervision1. 负责部门(中文):____________________Responsible Department (English): __________________2. 监督人(中文):____________________Supervisor (English): __________________3. 监督措施(中文):____________________Supervision Measures (English): __________________定期检查(中文):____________________Regular Inspection (English): __________________异常处理流程(中文):____________________ Exception Handling Process (English):__________________六、合同变更与终止 Contract Amendment and Termination1. 合同变更条件(中文):____________________Conditions for Contract Amendment (English):__________________变更程序(中文):____________________Amendment Procedure (English): __________________2. 合同终止条件(中文):____________________Conditions for Contract Termination (English):__________________终止程序(中文):____________________Termination Procedure (English): __________________七、附件 Appendices1. 合同(中文):____________________Contract Text (English): __________________2. 相关法律法规(中文):____________________Relevant Laws and Regulations (English):__________________3. 其他支持文件(中文):____________________Other Supporting Documents (English):__________________请各相关部门在审批表上签字确认,以确保合同审批流程的完整性和合法性。
承包商资格审查表背景承包商(Contractor)是指为了完成某项任务而与组织或个人签订合同的单位或个人。
在进行采购时,承包商往往需要通过资格审查的流程来获得合同的机会。
资格审查是针对承包商证明其在财务、运营、技术方面是否有足够的能力和经验来完成任务的一种过程。
目的承包商资格审查表是为了方便采购部门对承包商进行资格审查而设计的表格。
此表格旨在提供关键信息以帮助采购部门全面评估承包商是否符合采购标准。
操作填写承包商基本信息在承包商资格审查表中,首先需要填写承包商的基本信息。
这些信息包括: - 公司名称 - 公司地址 - 联系人姓名 - 联系电话 - 邮箱地址 - 公司网站链接提供承包商的合同信息采购部门需要获得承包商的合同信息,以评估其已经与其他客户签订的合同数量和合同总价值。
这些信息包括: - 合同名称 - 合同类型 -合同开始时间 - 合同结束时间 - 合同金额对承包商的财务能力进行评估财务能力是承包商资格审查的重要因素之一。
采购部门需要获取有关承包商财务方面的信息,以评估其经济实力。
这些信息包括: - 财务报告 - 税务文件 - 银行对账单对承包商的技术能力进行评估如果承包商需要完成技术性任务,那么其技术能力是评估其是否符合采购标准的一个关键指标。
采购部门需要获得承包商的技术文件,以评估其技术能力。
这些文件包括: - 专利文件 - 技术报告 - 产品演示视频 - 实施方案对承包商的运营能力进行评估除了财务和技术方面,运营能力也是采购部门需要考虑的因素之一。
采购部门需要获得承包商的运营文件,以评估其运营能力。
这些文件包括: - 公司组织架构 - 人力资源方案 - 项目管理计划结论承包商资格审查表展示了采购部门在对承包商进行资格审查时所需要的关键信息。
通过这个表格,采购部门可以全面评估承包商是否符合采购标准。
OPSC-HSE04-R01 承包商健康安全环保资格预审表
(可根据具体情况增减预审内容)
23.贵公司如何组织实施健康安全环保政策和程序?
(1)如有自已的应急计划请提交并说明如何与业主应急计划衔接)
(2)如果执行业主的应急计划,如何安排使作业人员周知?(提交说明)
35. 提交贵公司近3年中最大一起事故的调查报告
E.培训
36. 岗位培训和健康安全环保培训
(1 )贵公司员工是否都经过其岗位技能和“常规作业方法”、防护设施使用方面的培训?是口否口(2)特种作业人员和国家要求持资质证明上岗的人员是否获得相应的上岗证书?是口否口提供这类作业人员名单,类别及证书号
37. 新雇用人员或提拔人员健康安全环保指导培训
(1 )贵公司是否有针对新雇用人员或提拔人员的岗位健康安全环保指导培训规定?是口否口(2 )该规定是否提供下述内容的教育给:新雇员管理者健康安全环保惯例是口否口是口否口
安全管理是口否口是口否口安全会议是口否口是口否口
OPSC-HSE04-R01急救是口否口是口否口
事故报告与调查是口否口是口否口
火灾预防与消防是口否口是口否口
风险管理是口否口是口否口
危险问题交流是口否口是口否口
38.贵公司是否有书面的“安全教育讲话”或班前会安全讲话安排?是口否口
39.培训记录
上述培训是否有员工的培训记录?是口否口该培训记录包括有
培训者及授课者名称是口否口培训日期是口否口教育方式是口否口培训效果是口否口40.上述36~39项培训程序请提交。
OPSC-HSE04-R01。
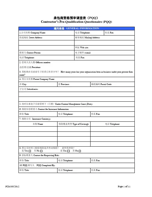
承包商资格预审调查表(PQQ)Contractor’s Pre-Qualification Questionaire (PQQ)□Y □N □N/A11. 检查和审计 Inspections and Audits a. 贵公司是否进行安全健康检查?Do you conduct safety and health inspections? 是Yes 否Nob. 贵公司是否进行安全健康制度评审?Do you conduct safety and health program audits? 是Yes 否Noc. 是否提供过去3年现场检查记录样本(至少5份)?Could they provide at least 5 site safety inspection report in past 3 years? 是Yes 否Nod. 是否提供过去3年检查发现问题的制定行动项Action plan of corrections in past 3 years? 是Yes 否Noe . 是否有整改记录?Are corrections of deficiencies documented? 是Yes 否Nof . 是否提供过去3年现场安全审计样本(至少2份)?Could they provide at least 2 safety audit report ? 是Yes 否Nog. 是否提供过去3年现场安全审计纠正措施?是Yes 否No12. 安全培训 Safety Training□Y□N□N/Aa. 贵公司是否了解法规要求的安全培训?Do you know the regulatory safety training 是Yes否Nob.贵公司员工是否接受过必需的安全培训并有记录?Have your employees received the required safety andrequirements training for your employees? 是Yes否Noc.贵公司培训内容是否适用于相关岗位员工?Does the training material suit for employees? 是Yes否Nod.贵公司安全培训人员具备相应资质Is the trainer with certain qualificaiton? 是Yes否No贵公司是否具有针对主管的相关安全健康培训制度?Do you have a specific safety and health training program 是Yes否Nofor supervisors?e.是否所有员工接受了相关作业制度培训并能安全地执行工作?Are all employees trained in the work practices needed 是Yes否Noto safely perform his/her job?g. 是否已将已知的潜在火灾、爆炸或释放毒性危险品的情况和应急行动计划的程序和适用措施告知与该工作相关的每位员工?Is each employee instructed in the kown potential 是Yes否Noof fire, explosion, or toxic release hazards related tohis/her job, the process and the applicable provisionsof the emergency action plan?以下填写能负责保证本文件准确性的公司高管人员的姓名和职务:Fill in below Name & Title of Company Officer responsible for assuring the accuracy of this document: 职务Title 姓名Name 日期Date本表供邦基国际使用,用于根据EHS要求计算承包商的核准率。
施工组织设计/(专项)施工方案报审表Review/Approval Application for Construction Execution Plan/ (special) Method S tatement 工程名称Project name:编号No.:Review/Approval Request for Work Commencement 工程名称Project name:编号No.:Review/Approval Request for Work Resumption 工程名称Project name:编号No.:分包单位资格报审表Request for Review of Subcontractor Qualification 工程名称Project name:编号No:施工控制测量成果报验表Inspection Request for Control Survey Result 工程名称Project name:编号No:工程材料、构配件、设备报审表Approval Request for Project Materials, Component and Fittings and Equipments 工程名称Project name:编号No.:报审、报验表Review and Inspection Request for工程名称Project name:编号No.:分部工程报验表Inspection Request for Sub-projects 工程名称Project name:编号No.:监理通知回复单Reply to Supervisor’s Notification 工程名称Project name:编号No.:单位工程竣工验收报审表Approval Request for Unit Project Completion Acceptance 工程名称Project name:编号No.:工程款支付申请表Request for Progress Payment工程名称Project name:编号No.:注:本表一式三份,项目监理机构、建设单位、施工单位各一份;工程竣工结算报审时本表一式四份,项目监理机构,建设单位各一份、施工单位二份。
XXXXXXX 有限公司扩建厂房工程Contents目录VOLUME 1 PROJECT OVERVIEW (6)第一卷工程概况 (6)S ECTION 1.1 D ESCRIPTION OF THE P ROJECT (6)第1.1节项目描述 (6)1.1.1 Description of the Project项目简介 (6)1.1.2 Location of Project工程地点 (6)1.1.3 Brief Introduction of Project工程简介 (6)S ECTION 1.2 S ITE C ONDITIONS (6)第1.2节现场状况 (6)S ECTION1.3 S COPE OF W ORK (6)第1.3节工作范围 (6)S ECTION1.4 P ROJECT F EATURES & A NALYSIS (7)第 1.4节项目特点分析 (7)S ECTION1. 5 P ROJECT O BJECTIVES (7)第1.5节项目目标 (7)1.5.1 Quality Objective质量目标 (8)1.5.2 Safety and Civilized Objectives安全、文明目标 (8)1.5.3. Schedule Objectives工期目标 (8)VOLUME 2 THE PROJECT EXECUTION PROGRAM (9)第二卷项目执行计划 (9)S ECTION 2.1 T HE P ROJECT O RGANIZATION C HART (9)第2.1节项目组织计划 (9)2.1.1 Organization Chart组织机构图 (9)2.1.2 CV of Key Staffs主要人员简历 (10)S ECTION 2.2 P ROJECT S CHEDULE (14)2.2.1 Milestones项目里程碑 (14)2.2.2 Master Schedule施工总进度计划 (14)2.2.3 Schedule Assurance Measures项目进度保证 (14)S ECTION2. 3 R ESOURCE P LAN (15)第 2.3节资源计划 (15)2.3.1 Manpower Plan人力投入计划 (15)2.3.2 Equipment & Plant Plan机械设备计划 (18)S ECTION 2.4 S ITE P LAN (25)第 2.4节现场总平面布置 (25)2.4.1 Site Layout Plan总平面布置方案 (25)2.4.2 Temporary Water Plan临时用水方案 (26)2.4.3 Temporary Electricity Plan临时用电方案 (26)S ECTION 2.5 E XTERNAL C OORDINATION (30)第 2.5节外部协调计划 (30)2.5.1 Coordination with Parties Concerned与项目参与方(业主,管理公司,设计院,咨询公司,监理,质监站等) (30)S ECTION 2.6 I NSPECTION AND A CCEPTANCE S CHEME (33)第 2.6节项目验收计划 (33)2.6.1 In-Process Acceptance过程验收计划 (33)2.6.2 Take-over Acceptance竣工验收计划 (35)S ECTION2.7 A FTER-P ROJECT S ERVICE (40)第 2.7节售后服务计划 (40)2.7.1 Our Commitment我们承诺 (40)2.7.2 Contact List联系人名单 (40)VOLUME 3 METHOD STATEMENT (41)第三卷施工方案 (41)S ECTION 3.1 M EASUREMENT METHOD (41)第 3.1节测量方案 (41)3.1.1 Difficulty of Measure Work测量工作的难点 (41)3.1.2 Control of Measure Work平面控制测量控制 (41)3.1.3 Height Transmission高程传递 (42)3.1.4 Steel Structure Installation钢结构安装 (42)3.1.5 Fall Observation沉降观测 (44)3.1.6 Foundation Plan Observation基础平面测量 (44)S ECTION 3.2 E ARTHWORK METHOD (45)第 3.2节土建施工方案 (45)3.2.1 Site Situation现场情况 (45)3.2.2 Work Arrangement施工部署 (45)3.2.3 Earthwork Preparation开挖前准备 (45)3.2.4 Excavation Method开挖方式 (45)3.2.5 Soil Excavation土方开挖 (46)3.2.6 Piling Re-check桩基复核和桩顶处理 (47)3.2.7 Soil Backfill基坑土方回填 (48)S ECTION 3.3 F ORMWORK METHOD (48)第 3.3节模板安装方案 (48)3.3.1 guideline概述 (48)3.3.2 Foundation Formwork基础模板 (49)3.3.3 Bolt Installation地脚螺栓安装 (49)S ECTION 3.4 R EINFORCED S TEEL W ORKS OF S UPERSTRUCTURE (50)第3.4节钢筋工程 (50)3.4.1 Steel Material Purchase and Check钢筋原材料的采购、验收管理 (50)3.4.2 Steel Material Stack、Prohibit and Sign钢筋原材料的现场堆放、保护和标识 (51)3.4.3Preparation准备工作 (52)3.4.4 Laying-off & Manufacturing钢筋配料和制作 (52)3.4.5 Beam Rebar Colligation梁钢筋绑扎 (54)3.4.6 Rebar Covering Control钢筋保护层控制 (55)S ECTION 3.5 S UPERSTRUCTURE C ONCRETE W ORKS (55)第 3.5节混凝土工程 (55)3.5.1Preparation准备工作 (55)3.5.2 Commercial Ready Mixed Concrete预拌混凝土 (56)3.5.3Slump Test坍落度测试 (56)3.5.4 Concrete Compressive Strength Tests混凝土抗压强度试验 (57)3.5.5 Transportation of Concrete混凝土的运送 (58)3.5.6 Placing of Concrete混凝土的浇筑 (58)3.5.7 Compaction of Concrete by Vibration混凝土振捣密实 (59)3.5.8 Curing养护 (60)S ECTION 3.6 M ASONRY W ORKS (60)第3.6节砌体工程 (60)3.6.1 Site Preparation现场准备 (60)3.6.2 Cement Mortar水泥砂浆 (61)3.6.3 Masonry Material砌筑材料 (61)3.6.4Requirement of Masonry砌筑要求 (61)S ECTION 3.7 D ECORATION CONCEPT (62)第 3.7节装饰装修方案 (62)3.7.1 Ceiling Work吊顶施工 (62)3.7.2 Doors and Windows Work门窗安装 (64)3.7.3 Floor Work地面施工方案 (66)3.7.4 Wall Work墙面施工方案 (70)S ECTION 3.98S TEEL S TRUCTURE WORK (73)第 3.8节钢结构施工方案 (73)3.8.1 Fabrication of Steel Structure钢结构加工 (73)3.8.2 Delivery发运 (88)3.8.3主钢构吊装Main steel structure lifting (91)3.8.4屋墙面板的安装Roof & Wall Panel Installation (92)3.8.5屋面防水施工方案Roof waterproofing construction concept (92)S ECTION 3.9 MEP WORKS (116)第 3.9 节机电工程 (116)3.9.1 Electrical installation procedure电气系统施工方法 (116)3.9.2HVAC system system installation procedure通风空调系统施工方法 (129)3.9.3Plumbing & Sanitary system给排水系统 (134)VOLUME 4 QUALITY MANAGEMENT POLICY (141)第四卷质量管理体系 (141)S ECTION 4.1 Q UALITY A SSURANCE & M ANAGEMENT S YSTEM (141)第 4.1节质量保证体系 (141)4.1.1 Project Quality Assurance Objectives工程质量目标 (141)4.1.2 Quality Assurance Organization Chart项目质量保证体系图 (142)S ECTION 4.2 Q UALITY A SSURANCE & M ANAGEMENT S YSTEM (143)第 4.2节质量保证和管理计划 (143)4.2.1 Basis for Q/A Plan Preparation质量保证体系编制依据 (143)4.2.2 Guideline & Objectiv质量方针和目标e (143)S ECTION 4.3Q UALITY C ONTROL M EASURES (143)第 4.3节质量控制措施 (143)4.3.1 Guideline概述 (143)4.3.2 Workmanship工艺 (143)4.3.3 Factory Certified Test Logs工厂测试记录 (143)4.3.4 Manufacturers’Field Services制造商现场服务 (144)4.3.5 Testing Laboratory Services实验室测试 (144)4.3.6 Check and Test Records检查测试记录 (145)4.3.7 General Quality Specification for Construction and T&C施工以和测试/调试质量说明 (145)4.3.8 Quality Documentation质量文件 (148)S ECTION 4.4 C ORRECTIVE&P REVENTIVE A CTION (148)第 4.4节更正&预防措施 (148)4.4.1 Guideline概述 (148)4.4.2 Corrective Action Maybe Initiated By更正措施可能从以下措施着手 (149)4.4.3 Corrective Action更正措施 (149)4.4.4 Precautions预防措施 (150)4.4.5 Punch List & Remedies整改清单和整改清单的完成 (150)VOLUME 5 HSE EXECUTION PLAN (156)第五卷健康、安全、环境(HSE)实施计划 (151)S ECTION 5.1 P URPOSE, P OLICY AND C OMMITMENT OF HSE (151)第 5.1节HSE管理方针、承诺和目标 (151)S ECTION 5.2 HSE ORGANIZATION CHART (152)第 5.2节HSE组织体系 (152)S ECTION 5.3 HSE TRAINING (156)第 5.3节HSE教育和培训 (156)S ECTION 5.4 I NSPECTION AND S UPERVISION (157)第 5.4节检查与监督 (157)S ECTION 5.5 S ITE HSE CONTROL (158)第 5.5节现场HSE管理 (158)S ECTION 5.6 HSE CONTROL FOR CONSTRUCTION WORK (164)第 5.6节施工作业的HSE管理 (164)S ECTION 5.7 P ROTECTION FOR MACHINE AND EQUIPMENT (175)第 5.7节机械设备防护 (175)S ECTION 5.8 S ITE SECURITY AND GUARD (175)第5.8节现场保卫 (175)S ECTION 5.9 F IELD C IVILIZATION C ONSTRUCTION MEASURE (176)第 5.9节现场文明施工措施 (176)S ECTION 5.10 E NCOURAGING METHOD FOR HSE MANAGEMENT (179)第 5.10节HSE管理激励措施 (179)S ECTION 5.11 F OR FORMS RELATING TO HSE (180)第 5.11节涉和HSE相关的表格 (180)Volume 1 Project Overview第一卷工程概况Section 1.1 Description of the Project第 1.1节项目描述1.1.1 Description of the Project项目简介XXXX Company. Expansion Factory Expansion project, which located in the north side of xxxxx Road (Spanish Industrial Park),. And this project is consist of 4 floors, and the building area is about 3719 m2,the elevation height is 24.6m. The general work scope is the indoor & outdoor engineering works, mainly including the following parts;XXXXXXX有限公司扩建厂房工程位于…………..内。
EXHIBIT AGENERAL PRE-QUALIFICATION REQUIREMENTSpany Information1.1 Company’s Name: Ex- Name:1.2 Parent Company or Holding Company (If any):1.3 Subsidiaries and Associated Concern Co:Fax No:Date of Registration:Place of Registration:Full Address: *E-mail:Tel No: Website:If your sales office address is different from above or sales are conducted through another company, please advise us and attach an official and signed letter of authorization.1.4Do you have any representative in Iran or Middle East?□ No□ Yes □Exclusive □Sales office □Distributor□Others (please specify)No: Name: Fax Address: *E-mail: Tel No: Website:* Please advise the active e-mail address we can contact you through/The authorized personwho receives our enquiries and acknowledge receipt of it1.5 Type of company□Private □Public □Limited liability □others (please specify)1.6 Type of activity:□Manufacturer □Subsidiary Sales Company □Dealer □Agent □Exclusive □Branch □ Others (please specify)2. Personnel2.1 Management:Position Full Name Direct Phone No. E-mail address PresidentVice PresidentChairman of the BoardSales Manager or EquivalentAfter-sale Service Manager orEquivalentOthers2.2 Total No. of Employees:3. Product(s) InformationPlease enclose the list of the supplied products (The manufacturer and production standards regarding each item should be specified).4. Quality ManagementIf your Company has been certified to an ISO or other standards, please complete the following table:ISO Certificate □IMS □9001:2000□14001□18001□TS29001 □Others (Please specify)Other Certificates Name of Certifying Firm5. Capabilities5.1 Please mention the period of guarantee and warranty of your supplied product(s). 5.2 Are your personnel available for after sale services? (Please enclose the relevant lists in Iran or Middle East).6. Performance Reference6.1 If you have already supplied product(s) and/or services to Iranian clients, especially to the Oil, Gas and Petrochemical industries for the last 5 years, please complete the following table:NO. Client Contract No.ProductDescriptionQuantity ValueEuro/USDYearBuyer Company1 2 3 4 56.2 Please complete the following table for your contracts with other countries (Oil, Gas and Petrochemical industries are in priority) in the last 5 years. NO.ClientProduct DescriptionQuantity Value Euro/USD Year 1 2 3 4 5 67. Financial InformationPlease complete the following table for the last 3 years.Year Annualsale Annual turnoverCurrentAssetCurrentLiabilitiesAsset/LiabilityRatio8. HSE8.1 Does your company have an HSE management system established and implemented? And if an independent agency has issued certification, please attach a copy of the certificated and specify:8.2 If the company does not have any certification issued by an independent agency, please answer the following questions:1) Does the company have any support documentation?2) Is the company award of HSE legislation that applies in the places where it carried out its work and does it comply with this legislation?3) Are periodic inspections on HSE aspects carried out with regard to its activities?4) Do your company HSE Plans include schedules for auditing and what range of auditing is covered?8.3 Does the company have a waste management system?8.4 Does the company have a management system to prevent the occupational risk? If yes, please specify9. Bid Bond issuedPlease confirm if you can issue bid bond with the form of Bid Bond Guarantee (see Exhibit C).10. Other Information (if any):The signatory of this questionnaire guarantees trust and accuracy of all responses given herein.This statement if completed by:Name:Signature:Title:Date:Stamp:Note:1. When there is no sufficient space for a full reply, please attach additional sheet.2. SIP S C assures that any information provided by suppliers will be treated as confidentially agreement and will have sole access to this information.EXHIBIT BPlease provide the following documents and certificates:1. Technical1.1 Resources1.1.1 Manpower resources.1.1.1.1 Complete Exhibit Form "A", by providing details of your company's current and projected manpower resources for calendar years 2010 and 2011. Fill it as minimum: (a) identifies the various functional departments within your company, and (b) provides the names of personnel currently holding department management through executive management positions. The Organization Chart must also clearly identify the specific person (that is, the Project Manager) who will be responsible for overseeing SIP S C’s projects. Show the direct lines of interaction between the Project Manager and your company's department /executive management personnel1.1.1.2 As Exhibit Form "A-1", provide the requested information indicating your parent company’s organization chart and management.1.1.1.3 As Exhibit Form "A-2", provide the requested information indicating your affiliated companies or sub-contractors.1.2 Copies of Accreditation1.3 Relevant reference list as per Exhibit Form “G” (in your own format) for similar applications completed successfully within the last 5 years.1.4 Complete Exhibit Form “C” with details of your company’s main production equipments.1.5 Workload/AvailabilityFactory’s current workload and the availability for new projects or bids.1.6 History of reliability.1.7 Performance report from your customers1.8 Latest technical introduction1.8.1 Latest company profile.1.8.2 Latest product catalogues / brochures.1.8.3 Annual production capacity2. Management2.1 As Exhibit form “D” (in your own format), provide SIP S C with a Conflict of Interest Procedures.2.2 As Exhibit form “E” (in your own format), provide SIP S C with a Statement of Business Principals.2.3 As Exhibit form “F” (in your own format), provide SIP S C with a list of sub-vendors which will be involved in the production of the Goods.2.4 Health, Safety & Environment Management System, as per Exhibit Form “I” (in your own format).2.5 Quality management System (QA/QC).2.5.1 As Exhibit "J" (in your own format) provide SIP S C with a departmental organization chart of your company's Quality Assurance/Quality Control group. The chart must show the relationship between this department and the company's management structure, as well as identify the job titles and names of employees presently responsible for quality control in your company.2.5.2 As Exhibit "J-1", provide SIP S C with a brief description or outline, of your company's Quality Assurance/Quality Control program.2.5.3 As applicable to the work category, provide a list of specialized testing equipment used for random sampling, calibration and testing protocols. Furnish information on any service agreements with specialty laboratories, x-ray, PMI, material testing or inspection third party services providers. Also provide a short description on how these QA/QC functions interface with field construction work.2.5.4 As applicable to the work category, furnish evidence of established work practices in place that guarantee purchased material traceability and quality control inspection prior to installing the materials as part of any ongoing construction work.2.5.5 A copy of a typical project specific Quality Assurance Plan as per Exhibit Form “M” (in your own format).2.3 Procedures and systems.2.4 Knowledge of and compliance with recognized international standards.2.5 Project Management System (e.g. software)3. Financial3.1 Financial Strength/Latest Accounts/Ratio Analysis/Auditing Report /Certified Balance Sheet and Income Statement for the past 3 years, corresponding currency unit shall be clear. (As per Exhibit Form “M” and “N” – in your own format).3.2 Information about Joint venture/partners/agents.3.3 Provide an explanation of any litigation with a potential value in excess of USD 100, 000 (one hundred thousand), or equivalent, involving the contractor, either as defendant or plaintiff, in anticipation, in progress now or during the past ten years.3.4 References4. Legal and Contractual4.1 Iranian content4.2 Certificate of Registration/Share Holding certificate or other relevant documents4.3 Legal Status4.4 Certificate of Good Standing/ Business Reference Letter/License/ or other4.5 Relevant Document or Evidence showing transferable technical (e.g. patent/know how/other transferable license4.6 Guarantee and Warranty of Goods4.7 Training, Research & Development for high-value sub-vendors4.8 Provide Document Review and Approval Procedure as per Exhibit Form “O” (in your own format).5. Others:5.1 Shall not have had major claims presented in respect of other Contracts resulting from delays, defects, poor quality, and other failures.5.2 Record of satisfaction from current or previous clients (e.g. best/successful performance certificate)5.3 Holding certain standards certificates (e.g. ISOs, API, BVQ)。
供应商资格预审表编号:以下部分内容由承建商/供应商自行打印填写,并每页加盖公司章。
一、机构与组织二、财务资料注册资本:最近三年内完成工程造价/材料设备销售额一览:年年今年计划目前正在进行的工程造价/已签合同材料设备销售额三、人力资源职员总数量管理人员数量技术人员数量工人数量法人、总经理、主要技术负责人、主要经营销售人员、主要项目经理一览表:在工程施工/产品方面的经历、经验姓名现任职学历、职称参与的项目参与的项目四、设备和设施五、附加资料附在本预审表后的企业资料:1.企业简介;2.营业执照复印件;3.资质证书复印件;4.安全生产证书复印件;5.组织机构代码证复印件;6.合法税务登记证明;7.入境施工许可证书(适用于非本地施工单位):有无年检情况。
8.各种质量体系认证文件、获奖证书;9.三年业绩表(见附加统一表格);10.三表:资产负债表(最近三年的,必须经过合法审计)、现金流量表(评价流动资金、损益表(综合评价项目的收益情况);11.劳务队伍情况说明(主要劳务来源地,自有或外包,人数情况);12.项目管理方式(含作业班组管理方式,材料,机械采购方式,最终审批人,付款的方式);一管理小组组织架构二岗位职责三材料管理1、材料设备质量管理组织机构1.1 材料设备质量管理小组本工程质量的整体目标是:合格,为保证该目标的顺利实现,项目部将成立材料设备质量管理小组,全面负责本项目材料设备质量管理工作,具体组织结构如下:1.2 岗位职责1.2.1项目经理:负责监督、指导整个项目的材料设备质量管理工作,提出总体要求并进行监督检查。
1.2.2项目总工:负责审核材料设备的技术性能、质检报告,监督各专业使用材料设备的质量。
1.2.3质量安全组组长:组织质量管理部及主要施工管理人员对本工程的材料设备质量进行检查。
1.2.4材料设备组组长:负责确保项目乙供材料设备的供应质量,并严格按设计文件、工程规范和招标文件等要求的执行标准进行采购、保管和验收工作;负责对甲供等材料设备的质量监督,满足招标文件和设计文件要求,确保所有投入材料设备等施工资源的质量。
epc资格预审文件范本[Your Name][Your Address][City, State, ZIP][Email Address][Phone Number][Date][Recipient Name][Recipient's Address][City, State, ZIP]Subject: EPC Qualification Pre-Assessment DocumentsDear [Recipient Name],I am writing to submit my application for the EPC qualification pre-assessment. Please find below the required documents for the application:1. Completed Application Form: I have enclosed a copy of the completed application form, which includes my personal information, educational qualifications, and relevant work experience.2. Curriculum Vitae (CV): I have attached my updated CV, which provides detailed information about my academic background, professional experience, and specialized training, if any.3. Educational Certificates: I have included copies of myeducational certificates, including my degree certificates and transcripts. These documents showcase my academic achievements and validate my eligibility for the EPC qualification.4. Work Experience Certificates: I have included copies of my work experience certificates, which outline the duration and responsibilities of my previous roles. These certificates highlight my relevant experience in the field and substantiate my candidacy for the EPC qualification.5. Professional References: I have provided contact details of two professional references who can vouch for my skills, knowledge, and character. These references are familiar with my work ethic and can provide insights into my suitability for the EPC qualification.6. Statement of Purpose: I have included a statement of purpose, explaining my motivation for pursuing the EPC qualification and how it aligns with my career goals. This document highlights my commitment to professional development and my understanding of the EPC certification process.I trust that these documents fulfill the requirements for the EPC qualification pre-assessment. If there are any additional documents or information needed, please do not hesitate to let me know, and I will promptly provide them.Thank you for considering my application. I appreciate the opportunity to be considered for the EPC qualification. I look forward to hearing from you regarding my application status.Yours sincerely, [Your Name]。
项目总承包商资格预审表
Pre-qualification Form
For Project Suppliers
项目承包商资格预审表
Note to applicants
申请人须知:
1This pre-qualification process will form part of the Employer’s decision to invite a number of suppliers to tender for the works described in the attached letter.
本资格预审是业主决定邀请承包商对附函中项目进行投标的组成部分。
2Please answer all questions in the pre-qualification form.
请回答资审表中所有问题。
3Supplementary pages may be photocopied or copied and inserted if required.
如要求,可以影印,复印或插入补充页数。
4Please number each page.
请对每页编号。
5Two complete copies of your completed pre-qualification form shall be submitted to the Employer. Please retain a copy of your complete submission for your own records.
项目总承包商资格预审表
应向业主提交两套完整的资审表,请保留一套完整的提交资料便于自己备案。
6Please note that no part of this document or process places any legal, contractual or any other obligation on either party.
请注意,本文件或资审对任何一方不构成法定,合同性或任何其他义务。
7The Employer has the sole right and discretion on the final decision of who will be included in the tender.
业主对投标人资格具有独有决定权。
项目总承包商资格预审表
Corporates Structure and Organization
公司组织结构
项目总承包商资格预审表Financial statement
项目总承包商资格预审表
Resource: Personnel
资源:人力
项目总承包商资格预审表
项目总承包商资格预审表
Resources: Other
资源:其他
项目总承包商资格预审表
Additional information
其他信息资料
项目总承包商资格预审表
Eagle Ottawa China all aspect Projects GC Supplier prequalification
form [xxx Supplier name] 项目总
承包商资格预审表
Project Experience
项目经验
Please fill in information about the relevant projects (Main MEP relevant ) (XXX note - changes this on project specific basis - industrial or logistics.Etc. >20,000 m2 building) completed over the past 2 years in the table below.
请在下表中填写过去2年中完成相关项目的信息资料(工业项目或物流项目或其他的机电专业为较大份额)20,000m2建筑物)。
Additional lines may be inserted as necessary.
GC -244092133.docx Page 10 of 13
承包商资格预审表
Current Workload
目前工程量
Give information about all projects in progress, including those where the company has received a letter of intent, but a formal contract has not been awarded.
给出所有在建项目信息资料,包括已收到意向书但还未正式授予合同的项目。
Additional lines may be inserted as necessary.
承包商资格预审表
Contact Details of Referees:
证明人详情:
Please provide the contact details of referees from previous, or current, projects with whom we can speak directly with concerning your performance on their project. We suggest a minimum of 3 referees to be fluent/native English speakers and 3 fluent/native Chinese speakers. We would respectfully request that you seek and gain their permission for us to contact them concerning this item before including their name in the below list. Please include the details of your previous/current client’s project in the above tables.
请提供过去或目前项目证明人联系详情,便于我们直接了解项目执行情况。
建议至少3名英语流利着/英语为母语者以及3名中文流利着/中文为母语者。
我们特此请求贵方在下表中加入他们的名称之前,代我们征得他们的许可便于联系。
请上述表格中加入过去/目前项目的详细资料。
承包商资格预审表。