机械制图图框标准
- 格式:doc
- 大小:50.50 KB
- 文档页数:4
机械制图图框标准机械制图图框是机械工程制图中的重要组成部分,它规定了图纸的格式、内容和标注,对于正确、清晰地表达设计意图至关重要。
因此,制定机械制图图框标准对于提高制图质量、统一图纸格式具有重要意义。
下面将就机械制图图框标准进行详细介绍。
首先,机械制图图框标准应符合国家标准和行业规范的要求,包括图框的尺寸、线型、标注等内容。
图框的尺寸应根据图纸的规格进行设计,一般情况下,A4、A3、A2、A1、A0等规格的图纸应分别设计相应大小的图框。
而线型和标注则应符合国家标准规定,例如线型的粗细、虚实线的使用、标注文字的大小和位置等都有明确的规定,制图人员应严格按照标准进行设计。
其次,机械制图图框标准应包含必要的信息内容,如图纸名称、图号、比例尺、设计人员、审核人员、日期等。
这些信息对于图纸的识别和管理非常重要,能够确保图纸的准确性和可追溯性。
同时,图框中还应包含必要的辅助线,如中心线、对称线、基准线等,以便于后续的图纸绘制和阅读。
另外,机械制图图框标准还应规定图框的布局和内容,如标题栏、图框边框、图框中的内容等。
标题栏应包括图纸名称、图号、比例尺等信息,而图框边框应包括图框线、折叠线、图框折叠标注等内容。
图框中的内容应包括零件图、装配图、工艺图等,根据实际需要进行布局和标注。
最后,机械制图图框标准还应包括图框的打印和存档要求,如打印纸张的选择、打印比例尺的设置、图纸的存档方式等。
这些要求能够确保图纸的打印质量和长期保存,对于后续的使用和管理具有重要意义。
总之,机械制图图框标准是机械工程制图中不可或缺的一部分,它对于规范图纸格式、提高制图质量具有重要意义。
因此,制定合理、科学的机械制图图框标准对于推动机械工程制图的规范化和标准化具有重要意义,值得我们深入研究和探讨。
机械制图图框标准 Last updated on the afternoon of January 3, 2021图纸幅面及格式(GB/T14689-1993)其中“GB”为“国标”(国家标准的简称)二字的汉语拼音字头,“T”为推荐的“推”字的汉语拼音字头,“14689”为标准编号,“1993”为标准颁布的年号。
另有部分源自《机械制图》国家标准,例如GB/,其中“”为标准编号,“1984”为该标准颁布的年号。
图纸宽度(B)和长度(L)组成的图面称为图纸幅面。
图纸幅面尺寸和代号绘制技术图样时,应优先采用下表中规定的基本幅面。
图框格式图纸上必须用粗实线画出图框,其格式如图3所示,分为留有装订边和不留装订边两种,但同一产品的图纸只能采用一种格式。
(1)留有装订边的图纸的图框格式如图3(a)、(b)所示,图中尺寸a、c按表1的规定选用;(2)不留装订边的图纸的图框格式如图3(c)、(d)所示,图中尺寸e按表1的规定选用;(3)加长幅面图纸的图框尺寸,按所选用的基本幅面大一号的图框尺寸确定。
例如A2×3的图框尺寸,按A1的图框尺寸确定,即e为20(或c为10),而A3×4的图框尺寸,按A2的图框尺寸确定,即e 为10(或c为10)。
标题栏及其方位标题栏一般由名称及代号区、签字区、更改区及其他区组成。
(1)标题栏的格式和尺寸按GB/的规定,如图所示。
标题栏的位置应位于图纸的右下角图幅分区(1)必要时,可以用细实线在图纸周边内画出分区,如下图所示。
(2)图幅分区数目按图样的复杂程度确定,但必须取偶数。
每一分区的长度应在25~75mm之间选择。
(3)分区的编号,沿上下方向(按看图方向确定图纸的上下和左右)用直体大写拉丁字母从上到下顺序编写;沿水平方向用直体阿拉伯数字从左到右顺序编写。
当分区数超过拉丁字母的总数时,超过的各区可用双重字母编写,如AA、BB、CC…等。
拉丁字母和阿拉伯数字的位置应尽量靠近图框线。
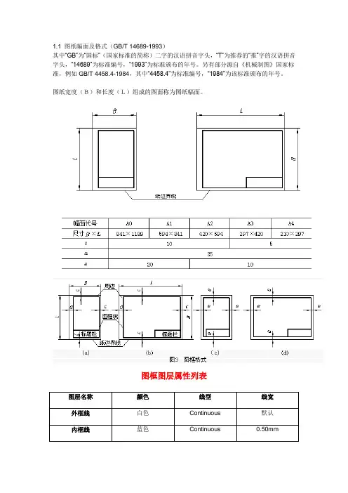
1.1 图纸幅面及格式(GB/T 14689-1993)其中“GB”为“国标”(国家标准的简称)二字的汉语拼音字头,“T”为推荐的“推”字的汉语拼音字头,“14689”为标准编号,“1993”为标准颁布的年号。
另有部分源自《机械制图》国家标准,例如GB/T 4458.4-1984,其中“4458.4”为标准编号,“1984”为该标准颁布的年号。
图纸宽度(B)和长度(L)组成的图面称为图纸幅面。
1.1.1 图纸幅面尺寸和代号绘制技术图样时,应优先采用下表中规定的基本幅面。
1.1.2 图框格式图纸上必须用粗实线画出图框,其格式如图3所示,分为留有装订边和不留装订边两种,但同一产品的图纸只能采用一种格式。
(1) 留有装订边的图纸的图框格式如图3(a)、(b)所示,图中尺寸a、c按表1的规定选用;(2) 不留装订边的图纸的图框格式如图3(c)、(d)所示,图中尺寸e按表1的规定选用;(3) 加长幅面图纸的图框尺寸,按所选用的基本幅面大一号的图框尺寸确定。
例如A2×3的图框尺寸,按A1的图框尺寸确定,即e为20(或c为10),而A3×4的图框尺寸,按A2的图框尺寸确定,即e为10(或c为10)。
1.1.3 标题栏及其方位标题栏一般由名称及代号区、签字区、更改区及其他区组成。
(1) 标题栏的格式和尺寸按GB/T 10609.1-1989的规定,如图所示。
标题栏的位置应位于图纸的右下角1.1.5 图幅分区(1) 必要时,可以用细实线在图纸周边内画出分区,如下图所示。
(2) 图幅分区数目按图样的复杂程度确定,但必须取偶数。
每一分区的长度应在25~75mm之间选择。
(3) 分区的编号,沿上下方向(按看图方向确定图纸的上下和左右)用直体大写拉丁字母从上到下顺序编写;沿水平方向用直体阿拉伯数字从左到右顺序编写。
当分区数超过拉丁字母的总数时,超过的各区可用双重字母编写,如AA、BB、CC…等。
拉丁字母和阿拉伯数字的位置应尽量靠近图框线。
1.1 图纸幅面及格式(GB/T 14689-1993)其中“GB”为“国标”(国家标准的简称)二字的汉语拼音字头,“T”为推荐的“推”字的汉语拼音字头,“14689”为标准编号,“1993”为标准颁布的年号。
另有部分源自《机械制图》国家标准,例如GB/T 4458.4-1984,其中“4458.4”为标准编号,“1984”为该标准颁布的年号。
图纸宽度(B)和长度(L)组成的图面称为图纸幅面。
图框图层属性列表图层名称颜色线型线宽外框线白色Continuous 默认内框线蓝色Continuous 0.50mm标题栏属性红色Continuous 默认标题栏文字品红Continuous 默认角线蓝色Continuous 2.00mm视口白色Continuous 默认0 白色(黑色)Continuous 默认(细实线)1.1.1 图纸幅面尺寸和代号绘制技术图样时,应优先采用下表中规定的基本幅面。
1.1.2 图框格式图纸上必须用粗实线画出图框,其格式如图3所示,分为留有装订边和不留装订边两种,但同一产品的图纸只能采用一种格式。
(1) 留有装订边的图纸的图框格式如图3(a)、(b)所示,图中尺寸a、c按表1的规定选用;(2) 不留装订边的图纸的图框格式如图3(c)、(d)所示,图中尺寸e按表1的规定选用;(3) 加长幅面图纸的图框尺寸,按所选用的基本幅面大一号的图框尺寸确定。
例如A2×3的图框尺寸,按A1的图框尺寸确定,即e为20(或c为10),而A3×4的图框尺寸,按A2的图框尺寸确定,即e为10(或c为10)。
1.1.3 标题栏及其方位标题栏一般由名称及代号区、签字区、更改区及其他区组成。
(1) 标题栏的格式和尺寸按GB/T 10609.1-1989的规定,如图所示。
标题栏的位置应位于图纸的右下角1.1.5 图幅分区(1) 必要时,可以用细实线在图纸周边内画出分区,如下图所示。
(2) 图幅分区数目按图样的复杂程度确定,但必须取偶数。
1.1 图纸幅面及格式(GB/T 14689-1993)其中“GB”为“国标”(国家标准的简称)二字的汉语拼音字头,“T”为推荐的“推”字的汉语拼音字头,“14689”为标准编号,“1993”为标准颁布的年号。
另有部分源自《机械制图》国家标准,例如GB/T 4458.4-1984,其中“4458.4”为标准编号,“1984”为该标准颁布的年号。
图纸宽度(B)和长度(L)组成的图面称为图纸幅面。
1.1.1 图纸幅面尺寸和代号绘制技术图样时,应优先采用下表中规定的基本幅面。
1.1.2 图框格式图纸上必须用粗实线画出图框,其格式如图3所示,分为留有装订边和不留装订边两种,但同一产品的图纸只能采用一种格式。
(1) 留有装订边的图纸的图框格式如图3(a)、(b)所示,图中尺寸a、c按表1的规定选用;(2) 不留装订边的图纸的图框格式如图3(c)、(d)所示,图中尺寸e按表1的规定选用;(3) 加长幅面图纸的图框尺寸,按所选用的基本幅面大一号的图框尺寸确定。
例如A2×3的图框尺寸,按A1的图框尺寸确定,即e为20(或c为10),而A3×4的图框尺寸,按A2的图框尺寸确定,即e为10(或c为10)。
1.1.3 标题栏及其方位标题栏一般由名称及代号区、签字区、更改区及其他区组成。
(1) 标题栏的格式和尺寸按GB/T 10609.1-1989的规定,如图所示。
标题栏的位置应位于图纸的右下角1.1.5 图幅分区(1) 必要时,可以用细实线在图纸周边内画出分区,如下图所示。
(2) 图幅分区数目按图样的复杂程度确定,但必须取偶数。
每一分区的长度应在25~75mm之间选择。
(3) 分区的编号,沿上下方向(按看图方向确定图纸的上下和左右)用直体大写拉丁字母从上到下顺序编写;沿水平方向用直体阿拉伯数字从左到右顺序编写。
当分区数超过拉丁字母的总数时,超过的各区可用双重字母编写,如AA、BB、CC…等。
拉丁字母和阿拉伯数字的位置应尽量靠近图框线。
1.1 图纸幅面及格式(GB/T 14689-1993)其中“GB”为“国标”(国家标准的简称)二字的汉语拼音字头,“T”为推荐的“推”字的汉语拼音字头,“14689”为标准编号,“1993”为标准颁布的年号。
另有部分源自《机械制图》国家标准,例如GB/T 4458.4-1984,其中“4458.4”为标准编号,“1984”为该标准颁布的年号。
图纸宽度(B)和长度(L)组成的图面称为图纸幅面。
1.1.1 图纸幅面尺寸和代号绘制技术图样时,应优先采用下表中规定的基本幅面。
1.1.2 图框格式图纸上必须用粗实线画出图框,其格式如图3所示,分为留有装订边和不留装订边两种,但同一产品的图纸只能采用一种格式。
(1) 留有装订边的图纸的图框格式如图3(a)、(b)所示,图中尺寸a、c按表1的规定选用;(2) 不留装订边的图纸的图框格式如图3(c)、(d)所示,图中尺寸e按表1的规定选用;(3) 加长幅面图纸的图框尺寸,按所选用的基本幅面大一号的图框尺寸确定。
例如A2×3的图框尺寸,按A1的图框尺寸确定,即e为20(或c为10),而A3×4的图框尺寸,按A2的图框尺寸确定,即e为10(或c为10)。
1.1.3 标题栏及其方位标题栏一般由名称及代号区、签字区、更改区及其他区组成。
(1) 标题栏的格式和尺寸按GB/T 10609.1-1989的规定,如图所示。
标题栏的位置应位于图纸的右下角1.1.5 图幅分区(1) 必要时,可以用细实线在图纸周边内画出分区,如下图所示。
(2) 图幅分区数目按图样的复杂程度确定,但必须取偶数。
每一分区的长度应在25~75mm之间选择。
(3) 分区的编号,沿上下方向(按看图方向确定图纸的上下和左右)用直体大写拉丁字母从上到下顺序编写;沿水平方向用直体阿拉伯数字从左到右顺序编写。
当分区数超过拉丁字母的总数时,超过的各区可用双重字母编写,如AA、BB、CC…等。
拉丁字母和阿拉伯数字的位置应尽量靠近图框线。
1.1 图纸幅面及格式(GB/T 14689-1993)其中“GB”为“国标”(国家标准的简称)二字的汉语拼音字头,“T”为推荐的“推”字的汉语拼音字头,“14689”为标准编号,“1993”为标准颁布的年号。
另有部分源自《机械制图》国家标准,例如GB/T 4458.4-1984,其中“4458.4”为标准编号,“1984”为该标准颁布的年号。
图纸宽度(B)和长度(L)组成的图面称为图纸幅面。
1.1.1 图纸幅面尺寸和代号绘制技术图样时,应优先采用下表中规定的基本幅面。
1.1.2 图框格式图纸上必须用粗实线画出图框,其格式如图3所示,分为留有装订边和不留装订边两种,但同一产品的图纸只能采用一种格式。
(1) 留有装订边的图纸的图框格式如图3(a)、(b)所示,图中尺寸a、c按表1的规定选用;(2) 不留装订边的图纸的图框格式如图3(c)、(d)所示,图中尺寸e按表1的规定选用;(3) 加长幅面图纸的图框尺寸,按所选用的基本幅面大一号的图框尺寸确定。
例如A2×3的图框尺寸,按A1的图框尺寸确定,即e为20(或c为10),而A3×4的图框尺寸,按A2的图框尺寸确定,即e为10(或c为10)。
1.1.3 标题栏及其方位标题栏一般由名称及代号区、签字区、更改区及其他区组成。
(1) 标题栏的格式和尺寸按GB/T 10609.1-1989的规定,如图所示。
标题栏的位置应位于图纸的右下角1.1.5 图幅分区(1) 必要时,可以用细实线在图纸周边内画出分区,如下图所示。
(2) 图幅分区数目按图样的复杂程度确定,但必须取偶数。
每一分区的长度应在25~75mm之间选择。
(3) 分区的编号,沿上下方向(按看图方向确定图纸的上下和左右)用直体大写拉丁字母从上到下顺序编写;沿水平方向用直体阿拉伯数字从左到右顺序编写。
当分区数超过拉丁字母的总数时,超过的各区可用双重字母编写,如AA、BB、CC…等。
拉丁字母和阿拉伯数字的位置应尽量靠近图框线。
机械制图图框标准1.幅面图纸的幅面是指图纸本身的大小规格。
图框是图纸上所供绘图的范围的边线。
图纸的幅面和图框尺寸应符合表3.1.1的规定和图3.1.19a、b的格式。
从表中可以看出,A1幅面是A0幅面的对裁,A2幅面是A1幅面的对裁,其余类推。
表中代号的意义见图3.1.19所示。
同一项工程的图纸,不宜多于两种幅面。
以短边作垂直边的图纸称为横式幅面(图3.1.19a),以短边作为水平边的称为立式幅面(图3.1.19b)。
一般A0~A3图纸宜用横式。
图纸短边不得加长,长边可以加长,但加长的尺寸必须按照国标GBJl--86的规定。
图纸的标题栏(简称图标)和会签栏的位置、尺寸和内容如图3.1.19、图3.1.20和图3.1.21所示。
涉外工程的图标应在内容下方附加译文,设计单位名称应加―中华人民共和国‖字样。
2.图线画在图纸上的线条统称图线。
图线有粗、中、细之分。
各类线型、宽度、用途如表3.1.2所示。
每个图样应先根据形体的复杂程度和比例的大小,确定基本线宽b 。
b值可从以下的线宽系列中选取,即0.35、0.5、0.7、1.0、1.4、2.0mm,常用的b值为0.35~1mm。
决定b值之后,例如1.4mm,则粗线的宽度按表3.1.2的规定应为b,即1.4mm;中线的宽度为0.5b,即0.7mm;细线的宽度为0.25b,即0.35mm。
每一组粗、中、细线的宽度,如1.4、0.7、0.35,称为线宽组。
图纸的图框线、标题栏线和会签栏线可采用表3.1.3所示的线宽。
机械制图规范一、制图一般规范1、图纸幅面和格式图纸幅面和格式由国家标准GB/T 14689—1993《技术制图图纸幅面和格式》规定。
1)图纸幅面图纸幅面指的是图纸宽度与长度组成的图面。
绘制技术图样时应优先采用表1所规定的基本幅面。
必要时,也允许加长幅面表1图纸幅面及图框格式尺寸2)标题栏和明细表(GB/T 10609.1 – 1989)每张图纸上都必须画出标题栏,装配图有明细表。
机械制图图框标准机械制图图框是机械工程制图中的重要组成部分,它是规范机械制图的格式、内容和布局的重要标准。
图框的设计标准化不仅可以提高机械图纸的规范性和统一性,还可以提高图纸的可读性和传达信息的准确性。
因此,制定机械制图图框标准对于提高机械制图质量和效率具有重要意义。
一、图框的设计要求。
1. 外形尺寸,图框应根据图纸规格确定外形尺寸,一般情况下,A4纸张的图框尺寸为297mm×210mm,A3纸张的图框尺寸为420mm×297mm。
2. 分区划分,图框应分为四个区域,分别是图框外边线、图框内边线、图框标题栏和图框内容区。
图框外边线为图框的最外边界,图框内边线为图框内容区的边界,图框标题栏用于填写图纸的名称、编号、比例等信息,图框内容区用于绘制机械零件的图样和注释。
3. 标准符号,图框中应包含标准符号,如ISO标准中规定的机械制图标准符号,用于表达图纸的特定信息,如图纸的比例、图纸的种类、图纸的编号等。
4. 字体要求,图框中的文字应采用规范的字体,一般情况下,标题栏中的字体应为粗体,内容区中的字体应为宋体,字号应根据图纸的比例和内容进行选择。
二、图框的制作流程。
1. 确定图框尺寸,根据图纸规格确定图框的外形尺寸,一般情况下,图框的外形尺寸应为图纸规格的整数倍。
2. 绘制图框边界,根据确定的外形尺寸,绘制图框的外边线和内边线,保证图框的整洁和规范。
3. 设计图框分区,将图框分为四个区域,确定图框标题栏和内容区的位置和大小,保证图框的布局合理。
4. 添加标准符号,在图框中添加标准符号,如图纸的比例、图纸的种类、图纸的编号等,确保图框的信息完整和准确。
5. 填写图框信息,在图框的标题栏中填写图纸的名称、编号、比例等信息,确保图框的信息完整和准确。
三、图框的应用意义。
1. 规范机械制图,图框作为机械制图的标准化组成部分,可以规范机械制图的格式、内容和布局,提高机械制图的规范性和统一性。
1.1 图纸幅面及格式(GB/T 14689-1993)其中“GB”为“国标”(国家标准的简称)二字的汉语拼音字头,“T”为推荐的“推”字的汉语拼音字头,“14689”为标准编号,“1993”为标准颁布的年号。
另有部分源自《机械制图》国家标准,例如GB/T 4458.4-1984,其中“4458.4”为标准编号,“1984”为该标准颁布的年号。
图纸宽度(B)和长度(L)组成的图面称为图纸幅面。
1.1.1 图纸幅面尺寸和代号绘制技术图样时,应优先采用下表中规定的基本幅面。
1.1.2 图框格式图纸上必须用粗实线画出图框,其格式如图3所示,分为留有装订边和不留装订边两种,但同一产品的图纸只能采用一种格式。
(1) 留有装订边的图纸的图框格式如图3(a)、(b)所示,图中尺寸a、c按表1的规定选用;(2) 不留装订边的图纸的图框格式如图3(c)、(d)所示,图中尺寸e按表1的规定选用;(3) 加长幅面图纸的图框尺寸,按所选用的基本幅面大一号的图框尺寸确定。
例如A2×3的图框尺寸,按A1的图框尺寸确定,即e为20(或c为10),而A3×4的图框尺寸,按A2的图框尺寸确定,即e为10(或c为10)。
1.1.3 标题栏及其方位标题栏一般由名称及代号区、签字区、更改区及其他区组成。
(1) 标题栏的格式和尺寸按GB/T 10609.1-1989的规定,如图所示。
标题栏的位置应位于图纸的右下角1.1.5 图幅分区(1) 必要时,可以用细实线在图纸周边内画出分区,如下图所示。
(2) 图幅分区数目按图样的复杂程度确定,但必须取偶数。
每一分区的长度应在25~75mm之间选择。
(3) 分区的编号,沿上下方向(按看图方向确定图纸的上下和左右)用直体大写拉丁字母从上到下顺序编写;沿水平方向用直体阿拉伯数字从左到右顺序编写。
当分区数超过拉丁字母的总数时,超过的各区可用双重字母编写,如AA、BB、CC…等。
拉丁字母和阿拉伯数字的位置应尽量靠近图框线。
1.1图纸幅面及格式(GB/T 14689-1993 )幅面代号A0A1A2A3A4尺寸EXE841X1183594X&41430X594297X420210X297 Q105Q.25&20101.1.1图纸幅面尺寸和代号髄代号A3X3A3X4MX3A4X4A4X5尺寸FXA420X391420X1189297X63C297X341297X1051師代号尺寸号皿幅回代号尺寸B^LAOX21189X1SB2A3X5420X1486| AOX3118SX 2523A3X6^20X1733 ALX3341 X1783ASX7 d 20X2080ALX4S41X237B A4Xg2C7X1261| A9X3S04X12S1257X1471 A2X4504X1632A4XS2S7X1682A2X 5504X2102A4X92S7X18921.1.2图框格式图纸上必须用粗实线画出图框,其格式如图3所示,分为留有装订边和不留装订边两种,但同一产品的图纸只能采用一种格式。
(1) 留有装订边的图纸的图框格式如图3(a)、(b)所示,图中尺寸a、c按表1的规定选用;(2) 不留装订边的图纸的图框格式如图3(c)、(d)所示,图中尺寸e按表1的规定选用;(3) 加长幅面图纸的图框尺寸,按所选用的基本幅面大一号的图框尺寸确定。
例如A2X3的图框尺寸,按A1的图框尺寸确定,即e为20(或c为10),而A3X4的图框尺寸,按A2的图框尺寸确定,即e为10 (或c为10 )。
M2(a) ⑹ 3 (d)巾牯住仍1("汕72T2乍£$ E i 4r'0 -ft点動1■Qb (眉(魏(钿)8* 2i 1fc«i»55II $哉-(a #I勺址*II J2_121612防5(?1.1.3标题栏及其方位标题栏一般由名称及代号区、签字区、更改区及其他区组成。
(1) 标题栏的格式和尺寸按GB/T 10609.1-1989 的规定,如图所示。
精心整理
(2)图幅分区数目按图样的复杂程度确定,但必须取偶数。
每一分区的长度应在25~75mm之间选择。
(3)分区的编号,沿上下方向(按看图方向确定图纸的上下和左右)用直体大写拉丁字母从上到下顺序编写;沿水平方向用直体阿拉伯数字从左到右顺序编写。
当分区数超过拉丁字母的总数时,超过的各区可用双重字母编写,如AA、BB、CC…等。
拉丁字母和阿拉伯数字的位置应尽量靠近图框线。
(4)在图样中标注分区代号时,分区代号由拉丁字母和阿拉伯数字组成,字母在前数字在后并排书写,如B3、C5等。
当分区代号与图形名称同时标注时,则分区代号写在图形名称的后面,中间空出一个字母的宽度,例如E-EA7。
精心整理
1.2比例(GB/T14690-1993)
?? (1)图中图形与其实物相应要素的线性尺寸之比称为比例。
?? (2)比值为1的比例称为原值比例,即1:1。
比值大于的比例称为放大比例,如2:1等。
比值小于的比例称为缩小比例,如1:2等。
绘图时应采用下表中规定的比例,最好选用原值比例,但也可根据机件大小和复杂程度选用放大或缩小比例。
??
??。
机械制图图框标准机械制图图框是机械制图中的重要组成部分,它规定了机械制图的格式、内容和布局,对于规范化和统一化机械制图具有重要意义。
机械制图图框标准的制定,可以提高机械制图的可读性和准确性,减少沟通成本,提高工作效率,促进机械制图的标准化和规范化。
一、图框的设计要求。
1. 图框的位置,图框应位于图面的四周,距离图面边缘一定的距离,以便于装订和保护图纸。
2. 图框的线型,图框的线型应清晰、粗细均匀,以便于区分图框和图纸内容。
3. 图框的内容,图框应包括图号、图名、比例、图幅、设计者、审核者、设计日期等信息,以便于对图纸进行管理和查阅。
二、图框的标准尺寸。
1. A4图框,图框的外边框尺寸为297mm×210mm,内边框尺寸为277mm×190mm。
2. A3图框,图框的外边框尺寸为420mm×297mm,内边框尺寸为400mm×277mm。
3. A2图框,图框的外边框尺寸为594mm×420mm,内边框尺寸为574mm×400mm。
4. A1图框,图框的外边框尺寸为841mm×594mm,内边框尺寸为821mm×574mm。
5. A0图框,图框的外边框尺寸为1189mm×841mm,内边框尺寸为1169mm×821mm。
三、图框的绘制方法。
1. 绘制外边框,先绘制图框的外边框,包括图框的四条边和四个角。
2. 绘制内边框,在外边框内部一定距离处,绘制图框的内边框。
3. 添加图框信息,在图框内部,添加图号、图名、比例、图幅、设计者、审核者、设计日期等信息。
四、图框的应用。
1. 机械制图,在绘制机械零件、装配图、工艺图等机械制图时,应按照机械制图图框标准进行绘制。
2. 标准件图,在绘制标准件图时,也应采用机械制图图框标准,以便于与机械制图统一管理。
3. 工程图纸,在编制工程图纸时,应统一采用机械制图图框标准,以便于工程图纸的管理和使用。
1.1 图纸幅面及格式(GB/T 14689-1993)
其中“GB”为“国标”(国家标准的简称)二字的汉语拼音字头,“T”为推荐的“推”字的汉语拼音字头,“14689”为标准编号,“1993”为标准颁布的年号。
另有部分源自《机械制图》国家标准,例如GB/T 4458.4-1984,其中“4458.4”为标准编号,“1984”为该标准颁布的年号。
图纸宽度(B)和长度(L)组成的图面称为图纸幅面。
1.1.1 图纸幅面尺寸和代号
绘制技术图样时,应优先采用下表中规定的基本幅面。
1.1.2 图框格式
图纸上必须用粗实线画出图框,其格式如图3所示,分为留有装订边和不留装订边两种,但同一产品的图纸只能采用一种格式。
(1) 留有装订边的图纸的图框格式如图3(a)、(b)所示,图中尺寸a、c按表1的规定选用;
(2) 不留装订边的图纸的图框格式如图3(c)、(d)所示,图中尺寸e按表1的规定选用;
(3) 加长幅面图纸的图框尺寸,按所选用的基本幅面大一号的图框尺寸确定。
例如A2×3的图框尺寸,按A1的图框尺寸确定,即e为20(或c为10),而A3×4的图框尺寸,按A2的图框尺寸确定,即e为10(或c为10)。
1.1.3 标题栏及其方位
标题栏一般由名称及代号区、签字区、更改区及其他区组成。
(1) 标题栏的格式和尺寸按GB/T 10609.1-1989的规定,如图所示。
标题栏的位置应位于图纸的右下角
1.1.5 图幅分区
(1) 必要时,可以用细实线在图纸周边内画出分区,如下图所示。
(2) 图幅分区数目按图样的复杂程度确定,但必须取偶数。
每一分区的长度应在25~75mm之间选择。
(3) 分区的编号,沿上下方向(按看图方向确定图纸的上下和左右)用直体大写拉丁字母从上到下顺序编写;沿水平方向用直体阿拉伯数字从左到右顺序编写。
当分区数超过拉丁字母的总数时,超过的各区可用双重字母编写,如AA、BB、CC…等。
拉丁字母和阿拉伯数字的位置应尽量靠近图框线。
(4) 在图样中标注分区代号时,分区代号由拉丁字母和阿拉伯数字组成,字母在前数字在后并排书写,如B3、C5等。
当分区代号与图形名称同时标注时,则分区代号写在图形名称的后面,中间空出一个字母的宽度,例如E-E A7。
1.2 比例(GB/T 14690-1993)
(1) 图中图形与其实物相应要素的线性尺寸之比称为比例。
(2) 比值为1的比例称为原值比例,即1:1。
比值大于的比例称为放大比例,如2:1等。
比值小于的比例称为缩小比例,如1:2等。
绘图时应采用下表中规定的比例,最好选用原值比例,但也可根据机件大小和复杂程度选用放大或缩小比例。
(3) 同一机件的各个视图应采用相同比例,并在标题栏“比例”一项中填写所用的比例。
当机件上有较小或较复杂的结构需用不同比例时,可在视图名称的下方标注比例,如图8
所示。