4-72离心风机型号
- 格式:pdf
- 大小:283.28 KB
- 文档页数:29
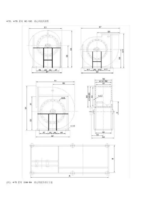
4-72、4-79系列6C -12C 离心风机外形图(四)、4-72系列 2.8A -6A 离心风机外形尺寸表机号进风口尺寸出风口尺寸D1D2D3n-Φ1B1B2B3B4B5B6n1×d1n2×d2n-Φ22.8AΦ280Φ305Φ3308-Φ8.52022342622282582883×783×9612-Φ103.2AΦ320Φ350Φ38010-Φ9.52302582902602923203×864×7314-Φ10 3.6AΦ360Φ390Φ42010-Φ9.52583003382923323724×754×8616-Φ10 4AΦ400Φ430Φ46010-Φ9.52863243663243644044×814×9116-Φ104.5AΦ450Φ480Φ51010-Φ9.53153563953604004404×895×8018-Φ10 5AΦ500Φ540Φ58012-Φ9.53504004304004504804×1005×9018-Φ10 6AΦ600Φ640Φ68012-Φ8.54264755264845345845×956×8922-Φ10机号电机型号安装尺寸B7B8A1A2A3A4A5A6A7A8A9A10A112.8A Y802-22321991961001251772251251651451251801603.2A Y90S-2270160226114140190200140200160140190190 Y712-43.6A Y 100L -2298160258128140217217140200200140217217 Y802-41504A Y132S-2336230282143220230230220230230220230230 Y802-41501301301304.5A Y132S-2365240319160230240280230290290230280240 Y90S-41501401401405A Y 160M -4400355353177270293293270270270270293293 Y 90L -41801501501506A Y 112M -4470185423213195375405195395335195405375 Y 100L -6178155155245机号电机型号安装尺寸E1E2E3E4E5E6E7E8E9E10L n-Φ2.8A Y802-24962743555875742322905122505924826-Φ10.53.2A Y90S-25543144056716522663305702826685346-Φ12.5 Y712-43.6A Y 100L -26383524607627423043606583137525906-Φ12.5 Y802-45654A Y132S-27003904808108143304207303508347636-Φ12.5 Y802-46024.5A Y132S-27784375609299083694608013909297996-Φ14.5 Y90S-49425A Y 160M -48574846101019100140950087441510089536-Φ14.5Y 90L -47466A Y 112M -4103258175012411206491600105150012158446-Φ14.5 Y 100L -6824(五)、4-72系列6C -12C 离心风机外形尺寸表机号进风口尺寸出风口尺寸H1H2H3 D1D2B1B2B3B4B5B6n-Φ1n×b1n×b26CΦ600Φ64042647552648453458422-Φ12.56×895×95830680580 7CΦ700 Φ740 498 550 598 566 618 666 22-Φ12.5 6×103 5×110 920 775 665 8CΦ800Φ84056061066064069074022-Φ12.56×1155×1221040880760 10CΦ1000Φ105071076281080885890824-Φ12.56×1436×12713001100950 12CΦ1200Φ12508509109709681032108830-Φ12.58×1297×130150013001100机号B7 B8 A1 A2 A3 A4 E1 E2 E3 E4 E5 E6 E7 E8 M1 L W 6C 850 1700 423 216 476 950 1032 452 750 1241 715 1206 600 1051 M12 1860 1080 7C 895 1790 613 253 512 1138 1193 516 840 1412 826 1439 1226 1426 M12 1950 1200 8C 1000 2120 562 283 610 1201 1578 570 960 1608 932 1578 1378 1612 M12 2300 1270 10C 1250 2500 702 358 780 1385 1674 712 1200 2012 1156 1968 1712 2006 M12 2700 1570 12C 1600 3200 842 428 920 1516 2004 844 1400 2372 1386 2358 2052 2386 M12 3400 1700 (六)、4-72系列14E-16E离心风机外形尺寸表机号进风口尺寸出风口尺寸D n-M B1 B2 B3 B4 B5 B6 n-Ф1n×b1 n×b2A1 A214E Ф147024-M12 996 1062 1122 1118 1180 1244 38-Ф149×118 10×118 986 1076 16E Ф167024-M12 1130 1200 1250 1290 1353 1410 42-Ф1410×120 11×123 1134 1230机号安装及外形尺寸图A3 A4 A5 A6 A7 A8 A9 A10 A11 A12 B7B814E 777 1404 270 270 550 550 280 280 560 560 1960 2000 16E 986 1740 310 310 620 620 375 375 600 600 2350 2400机号安装及外形尺寸图E1 E2 E3 E4 E5 E6 E7 E8 E9 E10 n-ФA B14E 2428 1343 1160 2770 1645 2778 2744 1610 1380 2465 8-Ф184000 1670 16E 2670 1549 1350 3192 1850 3149 3141 1842 1560 2681 8-Ф124950 1980 (七)、4-79系列3A -6A 离心风机外形尺寸表机号进风口尺寸出风口尺寸D1D2D3n-Φ1B1B2B3B4B5B6n1×d1n2×d2n-Φ23AΦ300Φ330Φ3608-Φ8.52162462762442763043×823×9212-Φ10 3.5AΦ350Φ380Φ41010-Φ8.52512923312843243644×734×8116-Φ104AΦ400Φ430Φ46010-Φ8.52863243663243644044×814×9116-Φ10 4.5A45048051010-Φ8.53153563953604004404×895×8018-Φ10 5AΦ500Φ540Φ58012-Φ8.53504004304004504804×1005×9018-Φ10 6A60064068012-Φ8.54264755264845345845×956×8922-Φ10机号电机型号安装尺寸B7B8A1A2A3A4A5A6A7A8A9A10A113A Y802-2256140209145125183230125170170125230183 Y701-43.5A Y901-2291160249173140217217140200200140217217 Y801-41504A Y132S-2336230282199220230230220230230220230230 Y802-41501301301304.5A Y132S-2365240319225230240280230290290230280240 Y90S-41501401401405A Y 160M -4400355353251270293293270270270270293293 Y 90L -41801501501506A Y 112M -4470185423291195375405195395335195405375 Y 100L -6178155155245机号电机型号安装尺寸E1E2E3E4E5E6E7E8E9E10L n-Φ3A Y802-25272943806286112493105442606234986-Φ10.5 Y701-43.5A Y901-26123444507417212913456383007315836-Φ12.5 Y801-45584A Y132S-27003904808108143304207303508347636-Φ12.5 Y802-46024.5A Y132S-27784375609299083694608013909297996-Φ12.5 Y90S-46425A Y 160M -48574846101019100140950087441510089536-Φ14.5 Y 90L -47466A Y 112M -4103258175012411206491600105150012158446-Φ14.5 Y 100L -6824(八)、4-79系列7C -12C 离心风机外形尺寸表机号进风口尺寸出风口尺寸H1H2H3 D1D2B1B2B3B4B5B6n-Φ2n1×d1n2×d27CΦ700Φ74049855059856661866622-Φ12.55×1106×103920790680 8CΦ800Φ84056061066064069074022-Φ12.55×1226×1151040880760 10CΦ1000Φ105071076281080885890824-Φ12.56×1276×14313001100950 12CΦ1200Φ12508509109709681032108830-Φ12.57×1308×129150013001100机号B7 B8 A1 A2 A3 A4 E1 E2 E3 E4 E5 E6 E7 E8 M1 L W 7C 970 1940 493 252 548 1058 1193 677 840 1412 826 1439 1243 1266 12 2100 1190 8C 1060 2120 562 283 610 1121 1578 168 960 1608 932 1578 1628 1489 12 2300 1270 10C 1250 2500 702 358 780 1385 1674 962 1200 2012 1156 1968 1724 2018 12 2700 1570 12C 1600 3200 842 428 920 1516 2004 1152 1400 2372 1386 2358 2054 2408 12 3400 1700 (九)、4-79系列14E-16E离心风机外形尺寸表机号进风口尺寸出风口尺寸D n-M B1 B2 B3 B4 B5 B6 n-Ф1n×b1 n×b2A1 A214E Ф147024-M12 996 1062 1122 1118 1180 1244 38-Ф149×118 10×118 986 1076 16E Ф167024-M12 1130 1200 1250 1290 1353 1410 42-Ф1410×120 11×123 1134 1230机号安装及外形尺寸图A3 A4 A5 A6 A7 A8 A9 A10 A11 A12 B7B814E 777 1404 270 270 550 550 280 280 560 560 1960 2000 16E 986 1740 310 310 620 620 375 375 600 600 2350 2400机号安装及外形尺寸图E1 E2 E3 E4 E5 E6 E7 E8 E9 E10 n-ФA B14E 2428 1343 1160 2770 1645 2778 2744 1610 1380 2465 8-Ф184000 1670 16E 2670 1549 1350 3192 1850 3149 3141 1842 1560 2681 8-Ф124950 1980。
【型号】4-72-A型离心式通风机【机号】2.8A【风量】1131-2356(m3/h)【压力】606-994(Pa)【功率】1.5-2(KW-P)【转速】2800(r/min)【电压】220/380(V)【品牌】(申奇)应发风机【用途】4-72型离心式通风机可输送空气和其他不自燃的、对人体无害的、对钢材无腐蚀性的气体。
气体内不允许有粘性物质,所含尘土及硬质颗粒物不大于150mg/m3。
气体温度不得超过80℃。
该风机具有良好的气动性能、运转平衡、振动小、效率高、寿命长等特点。
广泛适用于工矿企业、大型建筑物、宾馆酒楼等室内通风换气。
B4-72型为防爆型离心式通风机,主要由铝叶轮、机壳、进风口等部分与防爆电机组成,可作为易燃挥发性气体的通风换气之用,其性能与安装尺寸同于4-72型。
96018.5-626775-374761395-11047307.5-820360-27497805-63796045-646267-647592013-1593 12D73018.5-835182-49244物流说明:本店所售通风产品重量重,体质大,全部货物通过物流发货,因各省城市不同,无法控制运费,所售产品不包含运费,所有运费到付,实际运费以物流运单为准。
本店默认物流佳吉物流,佳吉能到的地市发佳吉物流,(注:货物发物流需亲到当地物流公司自己提货)其它地方不能到的,发别的物流公司。
因东北西北西南等地区物流到货时间在7天左右,亲们不要太急!快递说明:上面快递费模块里20元快递费,是指江,浙,沪的小件快递费,默认快递韵达快递。
江,浙,沪小件(5公斤以下)快递费15到30元不等,20元快递费采用多退少不补的原则,(本快递费江浙沪以外省市不采用。
其它省市地区快递模块里0.01元,拍下直接付款就可以了,货发物流,运费到付),江浙沪大件物品也发佳吉物流,运费到付!谢谢合作,祝亲们购物愉快!购物知须:(1)因通风产品规格型号多,有的通风机等产品要定做,交货期在7个工作日左右。
4-72型离心通风机4-72 型离心通风机可作为一般工厂及大型建筑物的室内通风换气用,输送空气和其他不自燃的,对人体无害的、对钢材无腐蚀性的气体。
B4-72 型风机可作为易燃挥发性气体的通风换气用。
气体内不许有粘性物质,所含尘土及硬质颗粒物不大于150mg/m3, 气体温度不得超过80 oC。
B4-72 型风机的性能与选用件及地基尺寸与4-72型一致,可按其样本选择。
该风机结构基本与4-72型相同,血2.8〜6A采用B35型带法兰盘与底脚的电动机,血6〜12C、D电动机选用该表中与Y系列对应的YB系列,安装型式为B3。
二、型式从电动机一侧正视,叶轮顺时针旋转,称为右旋风机,以“右”表示;叶轮逆时针旋转,称为左旋风机,以“左”表示。
风机的出口位置,以机壳的出风口角度表示。
4-72型风机血2.8〜6出厂时均做成1种型式,使用单位根据要求再安装成所需要的位置,订货时不需注明。
血2.8出风口位置调整范围0。
〜22.5 °,间隔是45。
血3.2〜6出风口位置调整范围0 °〜225 °,间隔是225 °,血8〜12出风口位置调整范围0 °〜225 °,间隔是45 °。
血16、20出风口位置制成固定的三种:0 °、90 °、180 °,不能调整,订货时需注明。
风机的传动方式有A、B、C、D四种。
4-72 型风机中,血2.8〜6采用A式传动,血8〜12采用C、D式传动,血16〜20采用B式传动。
三、结构4-72 型风机中血2.8〜6主要由叶轮、机壳、进风口等部分配直联电机而组成。
血8〜20除具有上述部分外,还有传动部分等。
(1 )叶轮由10个后倾的机翼型叶片、曲线型前盘和平板后盘组成。
用钢板或铸铝合金制造,并经动、静平衡校正,空气性能良好,效率高、运转平稳。
(2 )机壳做成两种不同型式。
血2.8〜12机壳作成整体,不能拆开。
4-72离心风机参数表一、产品概述4-72离心风机是一种常用的工业通风设备,主要用于通风、换气、排风等场合。
本文档将为您提供4-72离心风机的详细参数表,帮助您了解该产品的规格和性能。
二、产品规格1. 型号:4-72离心风机2. 功率范围:0.75kW-15kW3. 转速:1450rpm-2900rpm4. 风量范围:290m³/h-15850m³/h5. 风压范围:200Pa-1300Pa6. 噪音水平:70dB-90dB7. 颜色:银、蓝、黑(可定制)三、产品特点1. 高效节能:4-72离心风机采用高效电机和叶轮设计,具有较高的风量和风压效率,能够降低能耗和运行成本。
2. 低噪音:采用优质隔音材料和良好的设计结构,使得4-72离心风机在运行过程中产生的噪音控制在较低的水平,不会对工作环境和人员健康造成影响。
3. 结构紧凑:4-72离心风机采用紧凑的设计结构,占据空间小,方便安装和维护。
4. 耐用可靠:选用优质的材料和精良的制造工艺,使得4-72离心风机具有良好的耐腐蚀性和耐用性,能够在恶劣的环境条件下长时间稳定运行。
四、应用领域4-72离心风机广泛应用于以下场合:1. 工业生产车间通风换气:可用于机械加工、冶金、化工等行业的通风、排风、换气等工作。
2. 建筑通风系统:可用于商业大楼、写字楼、酒店、医院等场所的通风系统,为室内空气提供新鲜空气,并排除污浊空气。
3. 电子设备散热:可用于电子设备、计算机机房、服务器机架等的散热通风,保证设备的正常运行。
4. 地下车库排风:可用于地下车库的通风排风,排除车辆尾气和烟雾,提高车库空气质量。
五、安装与维护1. 安装要求:安装前请确保设备接地可靠,并按照产品安装说明书进行正确安装。
2. 维护周期:建议定期对4-72离心风机进行检查和维护,特别注意清洁叶轮和风机壳体,以保证设备的正常运行和延长使用寿命。
3. 注意事项:在使用4-72离心风机过程中,请遵守相关安全规定,禁止将手或其他物品伸入运行中的风机内部,以免发生危险。