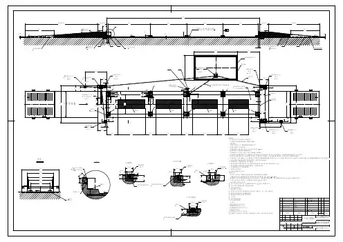
块石粒径大于200
φ8(a)150
±0
φ12(a)150
16050
2000
2000
2000
4880
5000
D
A
A
300 250 300
50
50 E + 4 6 0
50
50
2000
5880
145 排水管
2400±5 3100
440±3 460±3
50
1
2
A-A 1:10
5 SCS-T2
护边
D
3
φ10 C-C 1:10
50 (210) □150
350
B
CC
B
至磅房
4
至磅房
B-B
1:10
3100
2800
排水管
5
250
5根均布
12 200
E 1:10
限位支撑板(4块)
150X150Xδ12
2 SCS-T1 1
序号 代 号
技术要求
1.施工前地30#,钢筋φ代表I级螺纹钢 3.钢筋保护层为50mm 4.钢筋与底脚螺栓相互避开 5.引坡垂直边用6#角钢埋入加固,角钢需经校直 6.接地角钢埋入地面深度为2.5m,阻抗≤4Ω 7.基础四周应挖出排水沟 8.穿线管内要留有细铁丝
1:60
3x16米(3)基础图
预埋件 300X300 限位板 150X150
名称
8 Q235-A/δ20 4 Q235A/δ12
数量 材 料
用户自备 用户自备
单重 总重 备 注
2 6#角钢,圆钢φ12
4 用户自备 3
穿线管 接地角钢
D-D 1:2
1 1"水(煤气)管 1 4#角钢,长2.7m