InventorMold塑料模具设计实战word文档
- 格式:doc
- 大小:451.00 KB
- 文档页数:10
塑胶模具设计手册塑胶模具设计手册塑膠模具設計手冊成品檢測及澆注系統一、成品檢測以目前課內現有設備(包括軟體及硬體)¸針對成品尺寸的檢查是一個很簡單的事情。
可以通過Pro/E的檢查¸也可以用CAE¸當然用AUTOCAD 進行檢查將更加全面快速。
我們的目標是: 快、穩、準。
那麼現在具體將三個可行方式詳細論術如下: 方法一: 運用AUTOCAD進行成品尺寸檢查。
對客戶提供的成品¸我們將運用成品檢測圖的方式將之做成一張標準檢測用的2D圖檔及圖面。
同時對成品的每個部分進行分析。
例如: 設計斜銷的空間、套筒能否運作、滑塊的設計¸以及其它一些相關技術問題。
方法二: 運用Pro/E的撿測功能對成品進行檢查。
A運用measure功能提供的項目對成品的尺寸進行檢視有: CURVE LENGTH、DISTANCE 、ANGLE 、AREA 、DIAMETER 、TRASFORM 等各項子功能。
B 運用SET UP---REF DIM進行檢測。
C 運用INFO菜單下的MODEL ANALYSIS 、MEASURE CURVE ANALYSIS 、SURFACE ANALYSIS進行分析檢測。
方法三:運用CAE功能對成品進行檢測。
二、重量材質部分: 我們知道運用Pro/E的工程計算的功能可以很清楚地計算出成品的體積、重量。
我們運用CAE提供的資料庫將常用塑膠材料的特性進行匯編¸利用方便的塑膠特性選擇注塑成型機的大小。
三、投影面積的大小: 投影面積的大小也可以通過Pro/E 計算¸當然CAE的計算也是可以完成的。
只不過是CAE中投影面積的計算費時太長。
這不是方法上的問題¸而是技巧性的問題。
四、模流分析的結果。
塑膠材料的特性及進膠方式。
一些常見的高份子材料列如下表: 結晶性非結晶性PP 聚丙烯PS(ATACTIC)聚苯乙烯HDPE高密度聚乙烯PV AC 聚酯酸乙烯LDPE低高密度聚乙烯PMMA聚甲基丙烯酸甲酯PA(NYLON) EV A乙烯--醋酸乙烯共聚合物POM聚縮醛A V PTFE EV PEO CHLORINATED PE氯化聚乙烯PETP(PET)聚對苯二甲二乙酯ABS HIPS PPO 賽璐璐(cellulose)纖維素塑膠PC 聚碳酸酯PBT 聚對丁烯二甲二乙酯對一些常見的¸我們公司及客戶們經常使用的塑膠特性做一些簡單的介紹: 一、PC塑料(POLYCARBONATE): PC 兼具有耐熱性、耐沖擊性和透明性。
湖南工学院课程设计设计课题注塑模具设计设计学院机械工程学院设计班级成型1001班设计者姓名原育民设计时间2013 年 12月目录1. 塑件的工艺分析 (4)1。
1塑件的成型工艺性分析 (4)1。
1.1 塑件材料ABS的使用性能 (5)1.1。
2 塑件材料ABS的加工特性 (5)1.2 塑件的成型工艺参数确定 (6)2 模具的基本结构及模架选择 (6)2。
1 模具的基本结构 (6)2.1.1 确定成型方法 (6)2。
1。
2 型腔布置 (7)2.1.3 确定分型面 (7)2.1。
4 选择浇注系统 (8)2。
1。
5 确定推出方式 (8)2。
1.6 侧向抽芯机构 (9)2.1。
7选择成型设备 (9)2.2 选择模架 (11)2.2.1 模架的结构 (11)2。
2。
2 模架安装尺寸校核 (11)3 模具结构、尺寸的设计计算 (12)3.1 模具结构设计计算 (12)3。
1.1 型腔结构 (12)3.1.2 型芯结构 (12)3。
1.3 斜导柱、滑块结构 (12)3.1。
4 模具的导向结构 (12)3。
2 模具成型尺寸设计计算 (13)3。
2.1 型腔径向尺寸 (13)3。
2。
2 型腔深度尺寸 (13)3.2。
3 型芯径向尺寸 (14)3.2.4 型芯高度尺寸 (14)3。
3 模具加热、冷却系统的计算 (15)3。
3。
1 模具加热 (15)3.3.2 模具冷却 (15)4. 模具主要零件图及加工工艺规程 (16)4。
1 模具定模板零件图及加工工艺规程 (16)4.2 模具侧滑块零件图及加工工艺规程....... 错误!未定义书签。
4.3 模具动模板(型芯固定板)零件图及加工工艺规程 (17)5 模具总装图及模具的装配、试模.......................... 错误!未定义书签。
5。
1 模具的安装试模。
.。
.。
.。
..。
...。
..。
.。
...。
.。
.。
.。
.。
.。
.。
..。
..。
.。
.。
185.2。
毕业论文论文名称塑料盆注射模具设计系别电子与制造系专业模具设计及制造班级姓名学号指导老师王春婷完成日期目录摘要 (1)第一章前言 (2)第二章制品结构特征及成型工艺性分析 (3)2.1塑件材料分析 (3)2.2材料性能 (4)2.3塑件尺寸和精度分析 (4)2.4收缩率 (4)2.5塑件形状分析 (5)2.5.1 塑件厚度 (5)2.5.2 脱模斜度 (5)2.6塑件圆角 (5)2.7零件体积及质量估算 (6)第三章模具方案分析 (7)3.1分型面的确定 (7)3.2型腔数目的确定 (7)3.3浇注系统的设计 (8)3.4推出机构设计 (9)3.5冷却系统设计 (10)3.6确定标准模架尺寸 (11)第四章注塑机的设备选择 (13)4.1注塑机的分类 (13)4.2注塑机的主要参数 (13)4.3选择注塑机 (13)4.4注塑机的校核 (14)第五章成型零件设计与计算 (16)5.1成型零件工作尺寸计算 (16)5.2成型零件的设计 (17)5.2.1 设置收缩率 (18)5.2.2 创建毛坯工件 (18)5.2.3 设计分型面 (18)5.2.4 创建模具体积块 (19)5.2.5 创建模具元件 (19)5.2.6 流道与浇口设计 (19)5.2.7 创建铸模 (20)5.2.8 开模仿真 (20)第六章导向机构设计 (21)6.1导向机构设计的原则 (21)6.2导柱、导套的结构设计 (21)第七章排气系统的设计 (23)第八章模架及其它模具零件设计 (24)8.1模架尺寸的计算 (24)8.2装配模架 (25)8.2.1 新建组件项目 (25)8.2.2 载入模具装配元件 (25)8.2.3 定义模具模架 (25)8.2.4 添加设备 (26)8.2.5加入复位销 (27)8.2.6 在模座中挖出放置型腔的凹槽 (27)8.2.7 设计冷却系统 (28)8.2.8 加载所有组件 (30)总结 (31)致谢 (32)主要参考资料 (33)摘要塑料盆的形状较为简单,在模具设计中要考虑的因素有很多,除考虑它的出模、分型面,还需考虑它成型的质量,表面光洁度等。
塑料模设计实例塑料注射模具设计与制造实例是通过设计图1.1所示的防护罩的注射模,全面介绍了从塑料成形工艺分析到确定模具的主要结构,最后绘制出模具的塑料注射模具设计全过程。
设计任务:产品名称:防护罩产品材料:ABS(抗冲)产品数量:较大批量生产塑料尺寸:如图1.1所示塑料质量:15克塑料颜色:红色塑料要求:塑料外侧表面光滑,下端外沿不允许有浇口痕迹。
塑料允许最大脱模斜度0.5°图1.1 塑件图一.注射模塑工艺设计1.材料性能分析(1)塑料材料特性ABS塑料(丙乙烯—丁二烯—苯乙烯共聚物)是在聚苯乙烯分子中导入了丙烯腈、丁二烯等异种单体后成为的改性共聚物,也可称为改性聚苯乙烯,具有比聚苯乙烯更好的使用和工艺性能。
ABS是一种常用的具有良好的综合力学性能的工程材料。
ABS塑料为无定型料,一般不透明。
ABS无毒、无味,成型塑料的表面有较好的光泽。
ABS具有良好的机械强度,特别是抗冲击强度高。
ABS还具有一定的耐磨性、耐寒性、耐水性、耐油性、化学稳定性和电性能。
ABS的缺点是耐热性不高,并且耐气候性较差,在紫外线作用下易变硬发脆。
(2)塑料材料成形性能使用ABS 注射成形塑料制品时,由于其熔体黏度较高,所需的注射成形压力较高,因此塑料对型芯的包紧力较大,故塑料应采用较大的脱模斜度。
另外熔体黏度较高,使ABS 制品易产生熔接痕,所以模具设计时应注意减少浇注系统对料流的阻力。
ABS 易吸水,成形加工前应进行干燥处理。
在正常的成形条件下,ABS 制品的尺寸稳定性较好。
(3)塑料的成形工艺参数确定查有关手册得到ABS (抗冲)塑料的成形工艺参数: 密 度 1.01~1.04克/mm³ 收 缩 率 0.3%~0.8%预热温度 80°c~85°c ,预热时间2~3h料筒温度 后段150°c~170°c ,中段165°C~180°c ,前段180°c~200°c 喷嘴温度 170°c~180°c 模具温度 50°c~80°c 注射压力 60~100MPa注射时间 注射时间20~90s ,保压时间0~5s ,冷却时间20~150s.2.塑件的结构工艺性分析(1)塑件的尺寸精度分析该塑件上未注精度要求的均按照SJ1372中8级精度公差值选取,则其主要尺寸公差标注如下(单位均为mm ):外形尺寸:26.0040+φ、 1.2050+、12.0045+、94.0025+R 内形尺寸:26.008.36+φ 孔 尺 寸:52.0010+φ孔心距尺寸:34.015± (2)塑件表面质量分析该塑件要求外形美观,外表面表面光滑,没有斑点及熔接痕,粗糙度可取Ra0.4μm ,下端外沿不允许有浇口痕迹,允许最大脱模斜度0.5°,而塑件内部没有较高的表面粗糙度要求。
Plastics made perfect.Autodesk®Simulation Moldflow®Plastic injection moldingsimulation of a concept consumer printer. Designed in Autodesk ® Inventor ® software. Simulated in Autodesk ® Simulation Moldflow ® software. Rendered in Autodesk ® 3ds Max ® software.11Autodesk ® Simulation Moldflow ® plastic injection molding software, part of the Autodesk Simulation solution for Digital Prototyping, provides tools that help manufacturers predict, optimize, and validate the design of plastic parts, injection molds, and e xtrusion dies. Companies worldwide use Autodesk ® Simulation Moldflow ® Adviser and Autodesk ® Simulation Moldflow ® Insight software to help reduce the need for costly physical proto-types, reduce potential manufacturing defects, and get innovative products to market faster.Autodesk Simulation Moldflow Product Line Autodesk is dedicated to providing a wide range of injection molding simulation tools to help CAE analysts, designers, engineers, mold makers, and molding professionals create more accurate digital prototypes and bring better products to market at less cost.Validation and Optimization of Plastic PartsInnovative plastic resins and functional plastic part designs are on the rise in almost every industry. Plastics and fiber-filled composites answer growing pressures to reduce costs and cut time to market. The need for simulation tools that provide deep insight into the plastic injection molding process hasnever been greater.2Hot Runner SystemsModel hot runner system components and set up sequential valve gates to help eliminate weld lines and control the packing phase.Plastic Flow SimulationSimulate the flow of melted plastic to help optimize plastic part and injection mold designs, reduce potential part defects, and improve the molding process.Part DefectsDetermine potential part defects such as weld lines, air traps, and sink marks, then rework designs to help avoid these problems.Thermoplastic FillingSimulate the filling phase of the thermoplasticinjection molding process to help predict the flow of melted plastic and fill mold cavities uniformly; avoid short shots; and eliminate, minimize, or reposition weld lines and air traps.Thermoplastic PackingOptimize packing profiles and visualize magnitude and distribution of volumetric shrinkage to help minimize plastic part warpage and reduce defectssuch as sink marks.Part Layout SimulationValidate and optimize plastic parts, injection molds, resinselection, and the injection molding process.Feed System SimulationModel and optimize hot and cold runner systems and gating configurations. Improve part surfaces, minimize part warpage, and reduce cycle times.Gate LocationIdentify up to 10 gate locations simultaneously. Minimize injection pressure and exclude specific areas when determining gate location.Runner Design WizardCreate feed systems based on inputs for layout, size, and type of components, such as sprues, runners, and gates.Balancing RunnersBalance runner systems of single-cavity, multicavity, and family mold layouts so parts fill simultaneously,reducing stress levels and volume of material.3Mold Cooling SimulationImprove cooling system efficiency, minimize part warpage, achieve smooth surfaces, and reduce cycle times.Cooling Component ModelingAnalyze a mold’s cooling system efficiency.Model cooling circuits, baffles, bubblers, and mold inserts and bases.Cooling System AnalysisOptimize mold and cooling circuit designs to help achieve uniform part cooling, minimize cycle times, reduce part warpage, and decrease manufacturing costs.WarpagePredict warpage resulting from process-induced stresses. Identify where warpage might occur and optimize part and mold design, materialchoice, and processing parameters to help control part deformation.Core Shift ControlMinimize the movement of mold cores by deter-mining ideal processing conditions for injection pressure, packing profile, and gate locations.Fiber Orientation and BreakageControl fiber orientation within plastics to help reduce part shrinkage and warpage across the molded part.CAE Data ExchangeValidate and optimize plastic part designs using tools to exchange data with mechanical simulation software. CAE data exchange is available with Autodesk ® Simulation, ANSYS ®, and Abaqus ®software to predict the real-life behavior of plasticparts by using as-manufactured material properties.Rapid Heat Cycle MoldingSet up variable mold surface temperature profiles to maintain warmer temperatures during filling to achieve smooth surfaces; reduce temperatures in the packing and cooling phases to help freeze parts and decrease cycle times.Shrinkage and Warpage SimulationEvaluate plastic part and injection mold designs to help control shrinkage and warpage.ShrinkageMeet part tolerances by predicting part shrinkage based on processing parameters and grade-specificmaterial data.4Thermoset Flow SimulationSimulate thermoset injection molding, RIM/SRIM, resin transfer molding, and rubber compound injection molding.Reactive Injection MoldingPredict how molds will fill with or without fiber-reinforced preforms. Help avoid short shots due to pregelation of resin, and identify air traps and problematic weld lines. Balance runner systems, select molding machine size, and evaluate thermoset materials.Microchip EncapsulationSimulate encapsulation of semiconductor chips with reactive resins and the interconnectivity of electrical chips. Predict bonding wire deformation within the cavity and shifting of the lead frame due to pressure imbalances.Underfill EncapsulationSimulate flip-chip encapsulation to predictmaterial flow in the cavity between the chip andthe substrate.Specialized Simulation ToolsSolve design challenges with simulation.Insert OvermoldingRun an insert overmolding simulation to helpdetermine the impact of mold inserts on melt flow, cooling rate, and part warpage.Two-Shot Sequential OvermoldingSimulate the two-shot sequential overmolding process: one part is filled; the tool opens and indexes to a new position; and a second part is molded over the first.BirefringencePredict optical performance of an injection-molded plastic part by evaluating refractive index changes that result from process-induced stresses. Evaluate multiple materials, processing conditions, and gate and runner designs to help control birefringence in the part.MuCell ®MuCell ® (from Trexel, Inc.) simulation results include filling pattern, injection pressure, and cell size. These are all critical factors in optimizing a given part for the process, as well as theprocess itself.Specialized Molding ProcessesSimulate a wide range of plastic injection molding processes and specialized process applications.Gas-Assisted Injection MoldingDetermine where to position polymer and gas entrances, how much plastic to inject prior to gas injection, and how to optimize size and placement of gas channels.Co-Injection MoldingVisualize the advancement of skin and core materials in the cavity and view the dynamic relationship between the two materials as filling progresses. Optimize material combinations while maximizing the product's cost-performance ratio.Injection-Compression MoldingSimulate simultaneous or sequential polymer injection and mold compression. Evaluate material candidates, part and mold design,and processing conditions.5CAD Interoperability and MeshingUse tools for native CAD model translation and optimization. Autodesk Simulation Moldflow provides geometry support for thin-walled parts and thick and solid applications. Select meshtype based on desired simulation accuracy and solution time.CAD Solid ModelsImport and mesh solid geometry from Parasolid ®-based CAD systems, Autodesk ® Inventor ® software, CATIA ® V%, Pro/ENGINEER ®, Creo ® Elements/Pro, Autodesk ® Alias ®, Siemens ® NX ®, Rhino ®, and SolidWorks ®, as well as ACIS®, IGES, and STEP universal files.Error Checking and RepairScan imported geometry and automatically fix defects that can occur when translating a model from CAD software.Centerline Import/ExportImport and export feed system and coolingchannel centerlines from and to CAD software, to help decrease modeling time and avoid runner and cooling channel modeling errors.Autodesk Simulation Moldflow CAD Doctor Check, correct, heal, and simplify solid models imported from 3D CAD systems to prepare for simulation.3D SimulationsPerform 3D simulations on complex geometry using a solid, tetrahedral, finite element mesh technique. This approach is ideal for electrical connectors, thick structural components, and geometries with thickness variations.Dual Domain TechnologySimulate solid models of thin-walled parts using Dual Domain™ technology. Work directly from 3D solid CAD models, leading to easier simulation of design iterations.Midplane MeshesGenerate 2D planar surface meshes with assignedthicknesses for thin-walled parts.6Results Interpretation and PresentationUse a wide range of tools for model visualization, results evaluation, and presentation.Results AdviserQuery regions of a model to identify primary causes of short shots and poor part or cooling quality. Get suggestions on how to correct the part, mold, or process.Photorealistic Defect VisualizationIntegration with Autodesk ® Showcase ® software enhances quality assessments of plastic parts by examining near-photorealistic renderings of digital prototypes.Automatic Reporting ToolsUse the Report Generation wizard to create web-based reports. Prepare and share simulation results more quickly and easily with customers, vendors, and team members.Microsoft Office Export CapabilityExport results and images for use in Microsoft ® Word reports and PowerPoint ® presentations.Autodesk Simulation Moldflow Communicator Collaborate with manufacturing personnel, procurement engineers, suppliers, and external customers using Autodesk ® Simulation Moldflow ® Communicator software. Use the Autodesk Simulation Moldflow Communicator resultsviewer to export results from Autodesk Simulation Moldflow software so stakeholders can more easily visualize, quantify, and compare simulation results.Material DataImprove simulation accuracy with precise material data.Material DatabaseUse the built-in material database of grade- specific information on more than 8,500 plastic materials characterized for use in plastic injection molding simulation.Autodesk Simulation Moldflow Plastics Labs Get plastic material testing services, expert data-fitting services, and extensive material databases with the Autodesk ® Simulation Moldflow ® Plastics Labs.Productivity ToolsUse advisers and extensive help to boost productivity.Cost AdviserLearn what drives part costs to help minimize those costs. Estimate product costs based on material choice, cycle time, post-molding operations, and fixed costs.Design AdviserQuickly identify areas of plastic parts that violate design guidelines related to the injection molding process.HelpGet help on a results plot, including information on what to look for and how to correct typical problems. Learn more about solver theory, interpreting simulation results, and designing better plastic parts and injection molds.Results Evaluation and Productivity ToolsVisualize and evaluate simulation results, and use automatic reporting tools to share the results with stakeholders. Take advantage of features such as a material database and advisersto further boost productivity.Automation and CustomizationAutomate common tasks and customize Autodesk Simulation Moldflow software for your organization.API ToolsApplication programming interface (API) tools enable you to automate common tasks, customize the user interface, work with third-party applications, and help implement corporatestandards and best practices.Feature ComparisonCompare the features of Autodesk Simulation Moldflow products to learn how Autodesk Simulation Moldflow Adviser and Autodesk Simulation Moldflow Insight software can help meet the needs of your organization.78。
塑料模具设计指导书模具教研室编写一、设计目的通过毕业设计加深学生对塑料模具设计基本理论的理解,培养学生设计和实践能力的重要环节和必要手段,培养学生设计塑料模具的能力。
其目的是使学生全面了解与掌握注射模具的组成、结构、动作原理及其设计方法与步骤等,并将所学的模具知识、零件设计、制图、工艺、公差与技术测量等知识有机地结合在一起,提高学生对模具零件设计、制图、等知识与技能的综合掌握与应用能力,培养其严谨的实验态度和分析解决问题的能力。
二、设计要求1.要求每一个学生都能独立设计中等复杂程度的注射模具,熟悉典型注射模的工作原理、结构特点,熟悉注射模具各零部件的功用、相互间的配合关系,了解注射模具的闭合高度、轮廓尺寸及注射机技术规格的相互关系;2.及时了解模具技术发展动向,查阅有关资料,作好设计准备工作,充分发挥自己的主观能动性和创造性;3.要求树立正确的设计思想,以科学的态度,严肃认真的对待模具设计,计算准确。
4.要求模具结构合理,凡涉及国家标准之处均应采用国家标准,图面整洁,图样及标注符合国家标准。
5.每个学生独立完成设计说明书的撰写和总装图、零件图的绘制。
三、设计内容本次毕业设计时间为三个月。
内容和时间安排如下:(一)原始数据:工件实物或图纸:见塑料模具设计任务书;生产批量:根据图纸说明;材料:根据图纸标注选用;(二)任务根据所设计工件的尺寸、形状(图纸或实物)、批量等原始数据和要求,每人独立设计、手工绘制完成一套注射模具。
具体包括:模具装配图1张(按照1:1比例,或以适当比例绘图);模具主要工作零件图至少2张(按照1:1比例,或以适当比例绘图);设计说明书1份;四、时间安排五、模具设计步骤注塑模具的设计须按照以下几个步骤进行:(一)塑件分析1.明确塑件设计要求仔细阅读塑件制品零件图,从制品的塑料品种,塑件形状,尺寸精度,表面粗糙度等各方面考虑注塑成型工艺的可行性和经济性,必要时,要与产品设计者探讨塑件的材料种类与结构修改的可能性。
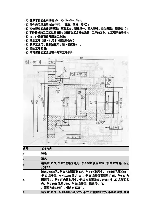
(1)计算零件的生产纲领(N = Qn(1+a%+b%));(2)零件的毛坯成型方法(铸造、锻造、型材、焊接);(3)定位基准的选择(精基准:基准重合、基准统一、互为基准、自为基准;粗基准:);(4)零件机械加工工艺过程设计;(表面加工方法的选择,工序的划分,加工顺序的安排);(5)内、外圆表面的常用加工方法;(6)确定工序(基本)尺寸(基准重合时)(7)解算工艺尺寸链和装配尺寸链(极值法)。
(8)绘制工序简图;(9)填写简化的工艺过程卡片和工序卡片序号工序内容1铸造2退火3装夹¢100f8,车137左端面见光、车¢60H8孔至¢59,车78右端面,保证尺寸77.4装夹¢60H8孔,车137右端面到137、车¢80到尺寸、¢65h5孔至¢66 ,车17左端面,车¢100f8到¢ 101,车15右端面保证尺寸15。
车¢32内圆到尺寸、车¢47内圆到尺寸、车17左端面装夹¢100f8,车137左端面见光、车¢60H8孔至¢59,车78右端面,保证尺寸78.。
倒两内角1X45°。
倒角0.5X45°.5装夹¢100f8, 车¢60H8孔至尺寸,车78右端面到尺寸,车¢56沟槽.倒两°。
6装夹¢60H8孔,车¢100f8到尺寸、¢65h5孔至尺寸,车¢91h8沟槽到尺寸、倒角1X45°。
7钻6-¢13孔到尺寸,钻6-M10螺孔底孔¢8.5,攻6-M10螺孔。
8去毛刺9研磨78右端面。
1010检验11水压试验12清洗、涂油、入库机械加工工艺过程卡片零件名称传动轴零件图号JSQ200-03材料牌号40Cr 毛坯种类¢65圆钢毛坯外形尺寸¢65X173备注序号工序名称工序内容工艺装备(设备和刀具)1下料割¢65X173mm棒料。
锯床、带锯条2车车右端面见光、钻右端面中心孔、车¢55X22外圆留1mm 余量。
卧式车床、端面车刀、90°外圆车刀、中心孔钻头序号需加工的表面表面形状及粗糙度加工方法1¢22H9孔内圆孔钻、铰245两端面平面粗铣3倒角1X45°圆锥孔锪4M8螺孔螺孔钻、攻丝5厚12h9深55平面铣6¢8孔内圆孔钻序号工序内容表面粗糙度工序简图1铸造2铣45底面,留1mm.钻¢22H9(注:素材和资料部分来自网络,供参考。
塑料注射模具设计综合实训课程设计说明书班级:09模具(2)班姓名:孙双龙学号:0901030222目录第一部分塑料制品分析及建模第二部分塑料制品模具设计第三部分模架元件建模第四部分模架元件的装配第五部分小结第一部分塑料制品分析及建模1、连接座模型(1)启动Pro/ENGINEER程序选择【所有程序】/【PTC】/【Pro ENGINEER】/【Pro/ENGINEER】命令,启动Pro/ENGINEER软件。
进入Pro/ENGINEER Wildfire界面,如图1-2所示。
图1-2 启动的Pro/ENGINEER软件界面图1-3 【新建】命令(2)设置工作目录选择主菜单上的【文件】/【设置工作目录】命令,弹出【选取工作目录】对话框,选择用户要保存文件的目录MoXing,(用户可根据自己需要来命名)完成后,单击【确定】按钮。
(3)新建文件单击工具栏上的【新建】按钮或选择主菜单上的【文件】/【新建】命令,如图1-3所示。
弹出【新建】对话框,设置选项如图1-4所示,完成后,单击【确定】按钮。
弹出【新文件选项】对话框,选择选项如图1-5所示。
完成后,单击【确定】按钮。
进入零件设计模块,如图1-6所示。
图1-4 【新建】对话框图1-5 【新文件选项】对话框(4)选择旋转命令单击工具栏上的【旋转】按钮。
(5)选择草绘平面弹出【旋转】面板,单击【放置】/【定义】按钮,弹出【草绘】对话框,如图1-7所示。
图1-6 零件模块工作界面图1-7弹出【草绘】对话框在绘图工作区选择如图1-8所示的FRONT基准平面。
完成后,单击【草绘】按钮,进入草绘环境。
图1-8 选择草绘平面示意图图1-9 草绘及修改过程(6)草绘图形单击【线】按钮,在绘图区选择两点,绘制一竖直中心线和然后绘制其他图元并双击尺寸部分修改图形尺寸。
整个操作过程如图1-9所示。
最后单击图标按钮。
(7)设置旋转参数回到【旋转】面板,如图1-10所示。
完成后,单击鼠标中键,结果如图1-11所示。
塑料模具课程设计实例一、课程目标知识目标:1. 学生能理解塑料模具的基本结构及其工作原理,掌握模具设计的基本流程。
2. 学生能掌握塑料材料的基本特性,了解不同塑料材料对模具设计的影响。
3. 学生能了解并掌握塑料模具设计中涉及的计算方法和公式。
技能目标:1. 学生能运用CAD软件进行塑料模具的设计与制图,具备基本的模具设计操作技能。
2. 学生能通过实例分析,学会如何解决实际生产中遇到的塑料模具问题,提高问题解决能力。
情感态度价值观目标:1. 学生培养对塑料模具设计和制造工作的兴趣,激发学习热情,形成积极的学习态度。
2. 学生能认识到塑料模具在制造业中的重要性,增强社会责任感和使命感。
3. 学生通过团队合作完成课程任务,培养沟通协调能力和团队精神。
课程性质分析:本课程为实践性较强的课程,要求学生在掌握塑料模具理论知识的基础上,通过实际操作,提高模具设计能力。
学生特点分析:高中年级的学生已具备一定的物理和数学基础,思维活跃,动手能力强,对新鲜事物充满好奇心。
教学要求:1. 结合课本内容,注重理论与实践相结合,提高学生的实际操作能力。
2. 通过实例讲解,引导学生主动思考,培养学生的创新意识和解决问题的能力。
3. 关注学生的个体差异,因材施教,使每个学生都能在课程中取得进步。
二、教学内容1. 塑料模具基础知识:包括塑料模具的定义、分类、结构及其工作原理,涉及课本第二章相关内容。
- 模具的分类与结构特点- 塑料成型原理及模具工作过程2. 塑料材料性质与选用:学习不同塑料材料的性能、特点及应用,参考课本第三章内容。
- 塑料材料的物理、化学性质- 塑料材料的选用原则3. 塑料模具设计流程及方法:详细介绍模具设计的基本流程、计算方法和设计规范,结合课本第四章内容。
- 模具设计的基本流程- 模具设计中的计算与优化方法4. 塑料模具CAD设计与制图:学习使用CAD软件进行模具设计与制图,掌握基本操作技能,参考课本第五章内容。
塑料成型工艺及模具设计课程设计说明书题目: 塑料模具设计专业: 模具设计制造及其自动化班级: 机设07级**: ***学号: ****************: ***时间: 2011年1月5日目录第一部分产品的说明第二部分塑件分析第三部分注射机的型号和规格选择及校核第四部分型腔的数目决定及排布第五部分分型面的选择第六部分浇注系统的设计第七部分型零件的工作尺寸计算第八部分推出机构的设计第九部分模架的选用第十部分冷却系统设计第十一部分模具的动作过程第十二部分设计小结第十三部分参考资料第一部分产品的说明本塑件结构简单, 壁厚均匀, 模架结构较简单。
精度要求较高, 为四级精度, 材料为聚乙烯成型性能一般, 其他并无特殊要求。
图一: 塑件俯视图第二部分塑件的分析聚乙烯化学名称: PE材料分析:PE是乙烯经聚合制得的一种热固性树脂。
在工业上, 也包括乙烯与少量α-烯烃的共聚物。
聚乙烯无臭, 无毒,手感似蜡,具有优良的耐低温性能(最低使用温度可达-70~-100℃),化学稳定性好,能耐大多数酸碱的侵蚀(不耐具有氧化性质的酸),常温下不溶于一般溶剂,吸水性小,电绝缘性能优良。
聚乙烯无臭, 无毒, 手感似蜡, 具有优良的耐低温性能(最低使用温度可达-70~-100℃), 化学稳定性好, 能耐大多数酸碱的侵蚀(不耐具有氧化性质的酸), 常温下不溶于一般溶剂, 吸水性小, 但由于其为线性分子可缓慢溶于某些有机溶剂, 且不发生溶胀, 电绝缘性能优良;但聚乙烯对于环境应力(化学与机械作用)是很敏感的, 耐热老化性差。
聚乙烯的性质因品种而异, 主要取决于分子结构和密度。
塑件注射成型工艺参数的确定:根据该塑件的结构特点和得成型性能, 查相关手册得到ABS塑件的成型工艺参数:第三部分注射机的型号和规格选择及校核注射模是安装在注射机上的, 因此在设计注射模具时应该对注射机有关技术规范进行必要的了解, 以便设计出符合要求的模具, 同时选定合适的注射机型号。
********学院毕业设计(论文)题目:法兰塑件塑料注射模具设计姓名系(部)___专业指导教师2008年 5月 26 日洛阳理工学院毕业设计(论文)任务书目录摘要 (I)Abstract (II)第一章绪论 (1)1.1选题背景及意义 (1)1.2 塑料模具的种类和应用 (1)1.3 本次设计塑料注射模具的主要工作内容 (2)第二章塑料注射模具的设计步骤和结构组成 (3)2.1 塑料注射模具的设计要求 (3)2.2 塑料注射模具的设计步骤及内容 (3)2.3 塑料注射模具的结构组成和作用 (4)第三章法兰塑料件 (5)3.1 塑料件的结构和特点 (5)3.2 塑料件的材料 (6)3.3 扳手塑料件的参数 (7)第四章注射机的选用 (8)4.1 选用注射机的方法和原则选用的方法和原则: (8)4.2 注射机的种类和应用范围 (8)4.3 注射机的选用 (8)第五章塑料注射模具设计 (11)5.1 型腔数目和分布 (11)5.2 分型面的选择 (12)5.3 型芯和型腔 (12)5.4 浇注系统 (14)5.5 推出机构 (18)5.7 冷却和排气系统 (22)5.8 机架的选用 (22)5.9 模具的工作过程和注射工艺规程 (25)第六章总结 (27)6.1 设计过程总结 (27)6.2 本次设计的优缺 (27)6.3 体会 (27)致谢 (28)参考文献 (29)摘要本设计主要是针对法兰的模具设计,通过对塑件进行工艺的分析和比较,最终设计出一副注塑模。
该设计从产品结构工艺性,具体模具结构出发,对模具的浇注系统、模具成型部分的结构、顶出系统、冷却系统、注塑机的选择及有关参数的校核、都有详细的设计,同时并简单的编制了模具的加工工艺。
通过整个设计过程表明该模具能够达到此塑件所要求的加工工艺。
根据题目设计的主要任务是香皂盒注塑模具的设计。
也就是设计一副注塑模具来生产香皂盒塑件产品,以实现自动化提高产量。
Inventor Mold塑料模具设计实战
默认分类 2010-05-28 00:36:30 阅读16 评论0 字号:大中小订阅
本文旨在与读者分享Inventor Mold的设计思路。
其特点是在一款三维设计软件中完成所有的设计,并且集成模流分享软件Mold Flow
功能,满足塑料模具设计的整体解决方案。
随着塑料模具行业的快速发展、塑料模具制造精度的提高以及模具行业的激烈竞争,使得消费者对塑料模具设计的要求越来越高,必须同时考虑设计精度和设计周期的影响。
目前,大部分塑料模具设计都是在三维软件中进行分模设计,在二维中进行排位的设计。
这种方式,由于三维软件和二维软件分别独立,缺乏关联,存在着一些弊病,很容易出现设计的错误。
另外三维与二维的“拼凑式”设计,
也严重影响了塑料模具设计的精度。
下面以一个实例,来介绍Inventor Mold的设计流程。
塑料产品如图1所示。
该产品的特点是需要修补孔,要做抽芯机构。
1.新建模具设计
打开Inventor Mold后,新建一塑料模具设计,进入到Inventor Mold塑料模具设计的环境下,在未导入塑料产品之前,其中很多
的指令都处于不可用状态,如图2所示。
2.导入塑胶产品
执行“塑料零件”指令,选择塑件产品,将塑件产品导入到塑料模具设计环境中,如图3所示。
此时可看到菜单都已经被激活,如
图4所示。
3.调整出模方向
此步骤是用来调整塑件产品的出模方向,当塑件导入模具设计环境后,会有一个默认的方向,但是默认的方向有可能不是正确的模具出模方向,所以必须进行调整。
如图5所示,这里调整出模方向非常重要,因为Inventor Mold自动补孔(自动修补破孔)方式会根据
出模的方向来定。
4.选择材料
材料库是Inventor Mold的一大特色,Inventor Mold基本上含有模具行业常用的材料,共有七千多种塑料材料,且每种材料都有其属性,包括厂商以及牌号,当然还包括收缩率。
之所以Inventor Mold含有如此丰富的材料库,那是因为Inventor Mold中含有Mold Flow 的功能,在进行模流分析时,必须先定义具体的材料,才可以进行工艺的设定和模流的分析。
需要特别注意的是,如果没有选定材料,后面的模流分析将不能进行,收缩率也将没有参考值,如图6所示。
5.设置收缩率
此命令是用来设置塑料材料的收缩率,当上一步骤中选择好材料后,便有了一个范围值,也可输入具体的数值,如图7 所示。
6.定义毛坯工件
此步骤是用来定义毛坯的大小,即模芯的大小。
它的原理是根据塑件产品的最大轮廓尺寸加上塑件最大轮廓到毛坯边缘的距离值,自动计算得到一个尺寸,因此不用担心计算的尺寸会小于塑件产品的最大轮廓值,如图8所示。
7.补孔
修补产品上的破孔,这是分模设计必须的、且工作量较大的工作。
目前大部分的软件,都是通过创建曲面的方式去修补产品上的破孔。
所以,只要软件能提供更多方便的创建曲面方法,则能轻松完成补孔的操作。
这也是目前类似于Pro/ENGINEER和NX等软件的强项。
通常创建曲面方式的工具都必须一个曲面接着一个曲面去做,如果软件能够自动去创建曲面,这将大大提高分模的效率。
在Inventor Mold中,一般都可以使用软件的自动补孔功能去补塑件产品的孔,对于在自动补孔操作中未能完成的,则可以通过其他方法进行。
所以,补孔这一工作在Inventor Mold中可以分成两种方式来进行。
以下是实际操作情况。
(1)自动补孔执行自动补孔命令后,软件会去识别塑件产品的孔并进行修补,但是并不是所有的孔都能正确识别和修补,需要后续手
动更改、添加,如图9所示。
(2)添加需要修补的孔软件未识别的孔,需要在对话框中单击添加,选择塑件产品破孔的边界,依次选择边界即可,如图10所示。
经过以上步骤,若还没有将塑件产品的孔完全修补好,则必须通过Inventor软件的创建曲面工具来修补了,操作就类似于其他软件修补曲
面的方法。
8.创建分型面
当塑件产品的破孔修补好后,接下来就是要创建出整个分型面。
通常做法,先找到塑件产品的分型线,然后根据分型线去创建曲面,
最后合并成一张完整的曲面。
在Inventor Mold的分型设计中,有个“创建分型面”的工具,只要创建了工件(工件是软件判定分型面大小的依据),则能自动产生分型面,如图11所示。
虽然自动创建分型面的功能不错,但是目前Inventor Mold并不能非常完美地创建分型面,必须进行一些更改,如删除、添加某边。
而且也可能出现自动创建分型面不能完成的时候,此时还必须通过创建曲面的方法去创建分型面。
9.分型面检测
当分型面创建好后,最值得期待的就是将前后模分开了。
但是在设计中,经常出现分不开的情况,也就是说分型面创建有问题。
此时需要去查找分型面的错误。
在Inventor Mold里提供了分型诊断的工具,可以检查其错误。
如图12所示,软件能模拟分型面的拉开状
态。
10.型芯/型腔
分型面创建好并且检测无误后,便可将毛坯进行分割。
这里仅仅是一个分割的执行,软件可以自动判断分型面、补孔面,如果补孔不全,或者分型面创建有误,这里的执行将出现失败,结果如图13所示。
11.加载标准模架
如果一直是从事二维软件模架设计的人员,可能看到Inventor Mold设计流程的加载模架,会有些惊讶,这是Inventor Mold中的
一大特色,它里面含有很多丰富的标准件库,如图14所示。
12.创建行位
Inventor Mold的行位设计,可以在分模前进行,也可以在分模后进行。
通过采用单独创建行位的方法,结果如图15所示。
13.放置滑块
创建完镶件后,调用标准的滑块机构,在Inventor Mold中,滑块机构有个标准件库,如图16所示。
将滑块机构与侧镶件连接在一
起就组成了行位的抽芯机构,如图17所示。
14.浇注系统设计
在进行浇注系统设计之前,先进行浇口位置的分析。
应用Inventor Mold集成的Mold Flow功能,分析结果采用云图的显示方式,同时,会有个流阻指示器,可查看塑件各个地方的阻力情况,如图18所示。
根据软件的分析结果,就可以设计浇注系统了,这包括浇注系统的主流道、分流道、冷料井和浇口等。
在Inventor Mold 中提供浇注系统各部分的设计工具,结果如图19所示。
同时,可加载浇注系统的标准件,如浇口套、定位环等,如图20所示。
15.顶出系统设计
放置顶针,通常是在二维排位设计的时候完成,这样不容易发现干涉问题,在Inventor Mold中可以利用其标准件库进行顶出系统
的设计,如图21所示。
16.模流分析
Inventor Mold的另一个特色便是能进行模流分析,它集成的Mold Flow功能,现在能做注塑工艺的分析、填充分析和浇口位置分析。
模具工艺分析,包括模具温度、熔体温度、注射压力、合模时间和注射时间。
填充分析,包括有塑料流体、填充状况、质量预测、气穴
和熔接痕等,如图22所示可以查看填充时间。
17.工程图样设计
当模具设计好后就必须进行工程图的设计了,这个步骤也就是出图工作。
Inventor Mold在进行模具设计的时候,会自动管理各部分组件,因此其出图可达到自动的效果,执行命令后便列出了所有的组件,如图23所示。
接下来就是不断完善图样,如添加尺寸和标准公
差等。
18.小结
Inventor Mold基本上是采取自动的方式来提高设计的效率,从自动补孔、自动分型面、载入三维模架等步骤都可以看出。
为了减少设计的错误,添加了很多标准件以满足在三维软件里完成所有设计,如顶针、滑块、浇口套等,特别是加入了工程师需要分析功能。
从流程上来看,这是符合塑料模具发展方向的。
不过,毕竟它是刚刚起步,也存在一些不足之处,如创建曲面的方式少等。
工程图出来后,在线型方面还是需要达到工程图的效果。
期待有更完善的工具来优化塑料模具设计。
(注:素材和资料部分来自网络,供参考。
请预览后才下载,期待你的好评与关注!)。