烟气脱硫装置的表面防腐处理
- 格式:doc
- 大小:262.00 KB
- 文档页数:10
烟气脱硫FGD系统重防腐衬里(光固化纳米片材)综合工程方案及技术规范一、工况分析本项目为烟气脱硫系统重防腐衬里工程,包括吸收塔、烟道、箱罐、水池、沟槽等碳钢基材及混凝土基材的多种设备及设施。
本项目使用石灰浆湿法脱硫。
现行工艺一般采取鳞片胶泥、硫化胶板或玻璃钢衬里,但鳞片胶泥施工难度较大,施工均匀性很难达到,对施工人员技术要求高,造成施工质量极不稳定,难以抵抗酸雾及脱硫浆液的渗透腐蚀;而且鳞片胶泥脆性较大,容易开裂;同时,胶泥须涂抹到一定厚度才能体现其防渗效果,而该厚度同时也形成了较大的重量负荷,尤其在带有振动的脱硫系统中,容易造成防腐衬里剥离、脱落;硫化胶板施工难度难度更高,施工过程中本身就比较容易鼓泡,胶板接缝容易拉裂、分离,同时,接缝也是胶板防腐最薄弱的环节,一般使用一段时间后,胶板接缝处及施工不良处开始出现小面积鼓泡及剥离,导致设备腐蚀穿孔,且一旦出现衬层破坏,难以清理及修复;而玻璃钢所用的乙烯基树脂一般难以长时间抵抗成分复杂的腐蚀介质,介质中各种腐蚀离子容易穿越玻璃钢的交联网,导致基材“返锈”,造成防腐衬里层脱落、剥离、溶胀及开裂。
根据上述情况,我公司建议采用光固化纳米片材和纳米复合重防腐材料系列产品。
二、产品介绍光固化纳米片材系列产品:由多种纳米级耐腐抗渗材料杂化复合而成,是一种多功能光固化纤维增强复合材料。
产品外观为软膜胶带状,质量轻、施工简便快捷,可根据工程需要,切割或裁剪成各种形状、粘贴、缠绕、包裹在待防护或修复的基层上,在太阳光或紫外灯照射下高分子快速交联固化成型,固化时间仅为5-20分钟,几乎无溶剂挥发,施工过程无需电焊、动火,一年四季皆可施工,无需养护,施工后可立即投入使用,大幅度降低施工时间、施工难度及人工成本。
固化后形成高强度、高附着、耐高温、无缝密封的防腐防火绝缘套层,其机械性能可以与金属材料相媲美。
产品具有优异的耐化学腐蚀性能、耐温性能及高使用寿命,对大多数的酸、碱、盐、多种油类和有机溶剂、海水及土壤腐蚀等都有很好的抵抗能力,外壳完全无缝密封,无导致水、气及腐蚀介质进出的连接部位,可从根本上杜绝层内、外腐蚀介质或空气的渗透对流,保证基材的长期稳定性,提供很好的防腐、防护及增强等作用。
脱硫工程吸收塔内外防腐防火消防措施前言脱硫工程是烟气处理的重要环节,其中的吸收塔是关键设备。
为了保证脱硫反应的高效运行和设备的长期稳定运行,吸收塔内外的防腐、防火和消防措施必须得到重视。
本文将就吸收塔内外的防腐、防火和消防措施进行详细的讲解。
吸收塔内的防腐措施选材吸收塔内壁的材料要求能够承受腐蚀,同时具备较好的耐磨性、耐高温性和耐压性。
当前常用的吸收塔内壁的材料主要有:玻璃钢、聚丙烯、聚氯乙烯(PVC)、高密度聚乙烯(HDPE)等。
一般情况下,吸收塔内壁厚度在5mm以上。
防腐处理吸收塔内壁的防腐处理包括表面处理和涂层处理。
表面处理主要是对内壁表面进行除锈、喷砂等清理处理,以保证涂层能够牢固地附着。
涂层的选择要根据脱硫剂的种类和浓度来确定,一般情况下,常用的涂层有环氧、丙烯酸酯等。
维护管理吸收塔内壁的维护管理主要是进行定期的检查和维修。
定期检查吸收塔内壁的涂层是否存在脱落、龟裂、起泡等现象,进行维修和补涂,以保证吸收塔内壁的防腐性能。
吸收塔外的防腐、防火和消防措施防腐处理吸收塔外壁的防腐处理同样要进行表面清理和涂层处理。
由于吸收塔外壁对于酸雾浓度的限制较低,因此常用的材料也相对较多,包括:玻璃钢、彩钢、烤漆、铝板等。
涂层的选择要考虑吸收塔外壁所处的环境,以及防腐性能。
防火处理如果吸收塔外壁的材料为可燃材料,则需要进行防火处理。
具体措施包括:采用难燃材料、在材料表面喷涂防火涂料、增加防火隔离距离等。
消防措施为防止吸收塔外壁发生火灾,必须做好消防系统的设施。
首先,要对吸收塔周围进行宽阔的防火带设置;其次,要配备相应的消防器材,如灭火器、消防栓等;还要进行消防演练,提高各部门及员工对于紧急情况的应变能力。
结论脱硫工程中的吸收塔是一个重要的设备,其内外的防腐、防火和消防措施必须得到重视。
对于吸收塔内壁的防腐处理,应选择具备较好防腐性能的材料,并定期检查和维修;对于吸收塔外壁的防腐、防火和消防措施,根据吸收塔所处环境选用适当的材料和涂层,并配备相应的消防器材和设施。
脱硫塔内壁玻璃鳞片内防腐施工方案脱硫塔是燃煤电厂中用于减少烟气中二氧化硫含量的重要设备。
由于脱硫塔内壁与烟气接触长时间,容易受到腐蚀,因此需要施工一层玻璃鳞片内防腐材料来延长脱硫塔的使用寿命。
一、施工前准备工作1.设计方案:根据脱硫塔的大小和形状,制定合理的施工方案。
考虑到施工的环境和条件,选择合适的材料和施工工艺。
2.玻璃鳞片材料准备:选择高硼硅玻璃鳞片作为内防腐材料。
这种材料具有高强度、优良的抗酸碱性能和耐高温特性。
3.检查脱硫塔内壁情况:检查脱硫塔内壁的腐蚀情况,清除表面污垢和铁锈。
如发现裂缝或孔洞,需要进行修复。
4.脱硫塔塔体保护:在施工期间,需要保护脱硫塔的塔体和附属设备不受损坏。
避免人为和机械因素对设备的破坏。
二、施工步骤1.砂浆粘接:先在脱硫塔内壁喷涂一层特种砂浆,用于粘接玻璃鳞片。
2.玻璃鳞片安装:将预先准备好的玻璃鳞片均匀地贴附在脱硫塔内壁上,注意不要留有空隙和缝隙。
3.玻璃鳞片固定:使用特殊的固定胶将玻璃鳞片牢固地固定在脱硫塔内壁上,确保其牢固性和密封性。
4.玻璃鳞片表面处理:将固定好的玻璃鳞片表面进行处理,使其表面平整光滑,并保证其整体性和美观性。
5.完工检查:施工完成后,对整个脱硫塔进行检查,确保玻璃鳞片的固定牢固,无空隙和损坏。
三、质量控制1.施工班组:选派有经验的施工人员进行施工,安排专人负责施工监督和质量控制。
2.材料检查:对采购的高硼硅玻璃鳞片进行质量检查和入库管理,确保材料质量合格。
3.施工监督:对施工过程中的每个环节进行监督和抽查,及时发现问题并进行处理。
4.施工记录:做好施工过程中的记录工作,包括材料使用情况、施工日期、施工人员等,方便追溯和质量管理。
总结:玻璃鳞片内防腐施工是一项重要的工程,能够有效保护脱硫塔内壁不受腐蚀。
施工方案的制定和施工步骤的执行对确保施工质量至关重要,同时质量控制是保证工程质量的关键措施。
烟气脱硫装置的腐蚀与防护1.引言我国是一个能源结构以燃煤为主的国家,随着近年来国民经济建设的迅速发展,燃煤产生的大气污染日益严重,酸雨面积不断扩大。
烟道气脱硫装置(简称FGD)是当今燃煤锅炉控制二氧化硫排放的主要措施。
烟气脱硫有多种工艺,而石灰石-石膏湿法工艺是当今世界各国应用最多且最为成熟的工艺。
煤炭燃烧时除产生SO2外,还生成少量SO3、NOx、HCl、HF等气体,由于烟气中含有水,因此可在瞬间形成H2SO4、HCl、HF等强腐蚀性溶液。
与此同时,含有烟尘的烟气高速穿过设备和管道,对装置的腐蚀相当严重。
并且,吸收塔的入口烟气温度可高达180℃,而内腔长期处于45-70℃的酸、碱交替的湿热环境之中。
可见,湿法除尘脱硫系统在运行中处于强腐蚀性介质、湿热和高磨损的严酷环境中。
由于腐蚀环境恶劣,湿式脱硫系统对材质的耐蚀、耐磨、耐温要求极为严格。
吸收塔、烟道的材质或防护材料的选择对装置的使用寿命和成本影响很大,因此被认为是烟气脱硫装置设计和制造的关键技术之一。
吸收塔体可用合金钢、玻璃钢或碳钢内衬玻璃钢、橡胶、砖板、鳞片涂料等。
调查结果表明,脱硫系统中材料所占设备总造价的比重是相当高的,为了不断降低费用,80年代起,国内外专家一直在寻求一种造价低、耐高温、耐腐蚀的材料。
高性能涂料作为一种最为经济有效的防护材料,经过二十余年在脱硫装置的成功应用,正引起各国脱硫工作者的关注。
2.适用于FGD装置的防护材料湿式除尘脱硫装置,由于存在很强的腐蚀性气体、高温和摩擦等使用条件,因此所用材料必须能承受化学的、高温、高湿和机械的长期负荷,其性能有着特殊的要求。
目前用于湿式FGD中的防护材料有:橡胶、合金钢或复合钢板、砖板、胶泥、玻璃钢、鳞片涂料等。
2.1橡胶装置由于橡胶具有优良的化学稳定性和相对较低的价格,长期以来被人们用于防腐场合。
研究表明,丁基橡胶具有相对较低的渗透系数和更高的化学稳定性,能阻止水蒸气、氧气和二氧化硫的扩散,并且耐磨损,因而更适用于湿法FGD工艺。
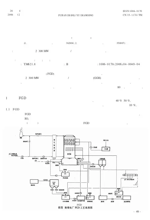
附图南埔电厂FGD 工艺流程图FUJIAN DIA NLI YU DIAN GONG第26卷第4期2006年12月IS S N 1006-0170CN 35-1174/TM南埔电厂烟气脱硫系统的防腐戴立业1林东2(1.国电泉州发电有限公司,福建泉州362804;2.福建省电力试验研究院,福建福州350007)摘要:介绍了南埔电厂2×300M W 机组湿法石灰石/石膏脱硫系统的防腐工艺,玻璃鳞片防腐施工工艺以及施工质量控制方法。
关键词:湿法烟气脱硫;防腐;衬里;玻璃鳞片中图分类号:TM 621.8文献标识码:B文章编号:1006-0170(2006)04-0049-04防腐被誉为湿法烟气脱硫(FGD )的生命工程。
南埔电厂一期2×300M W 机组采用湿法石灰石/石膏脱硫工艺,该系统在防腐材料的选择、防腐工艺设计、防腐施工等方面均做了充分考虑,现予以介绍,以资交流。
1湿法FGD 系统的腐蚀环境分析及防腐材料选择1.1FGD 系统的腐蚀环境分析南埔电厂FGD 工艺系统主要由吸收剂制备系统、烟气系统、SO 2吸收系统、石膏脱水系统及其它辅助系统等组成(见附图)。
从锅炉引风机后的混凝土烟道引出的烟气,通过增压风机升压、蓄热回转式烟气换热器(GGH)的降温侧降温后进入吸收塔,在吸收塔内脱硫净化,经除雾器去除水雾后,又经烟气换热器的升温使烟气温度大于80℃,再接入烟道,经烟囱排放。
脱硫塔的石膏浆液先经吸收塔排浆泵送入水力旋流器浓缩,使其含固量达到40%~50%,然后再送至真空皮带机脱水,使石膏的含水率≤10%,脱水后的石膏由石膏输送皮带机送至石膏存储间堆放。
来自真空皮带脱水机的滤液进入滤液回收水箱,由过滤水排出泵送至石灰石制浆系统。
FGD 装置内部工作环境十分复杂,固体、液体、福建电力与电工49--气体相互混合,酸碱交融,冷热交替。
烟气中固态和气态成分、烟气流速、温度以及浆液pH值、F-、Cl-,颗粒物的冲刷和沉积等因素,会导致FGD装置各部件不同程度的腐蚀。
脱硫系统汲取塔、烟道防腐作业安全技术规定第一章总则第一条目的和依据为了确保脱硫系统汲取塔和烟道防腐作业过程中的安全性,保护员工的生命资产安全,依据国家相关法律法规和公司安全生产管理制度,订立本规程。
第二条适用范围本规程适用于脱硫系统汲取塔和烟道防腐作业过程中的各类工作人员,包含施工人员、安全员和管理人员。
第三条主管部门公司法务部门负责本规程的订立、实施、检查和监督。
第四条责任主体1.工作人员应认真贯彻执行本规程,并依照规程要求使用防护设备,确保自身安全;2.管理人员应严格依照规程要求组织施工和操作,落实岗位责任制,确保作业安全;3.安全员应监督和检查各项安全措施的实施情况,及时发现并处理隐患,保障作业安全。
第五条术语定义1.脱硫系统汲取塔:指用于脱硫的设备,用于去除烟气中的SO2;2.烟道防腐:指对烟道进行表面处理和防腐保护。
第二章安全管理标准第六条施工准备1.施工前应编制认真的施工方案和操作规程,确保施工过程的安全性;2.施工前应对施工区域进行认真的勘察和评估,确保施工地方没有安全隐患;3.施工前应组织相关人员进行安全技术交底,明确各自的职责和安全注意事项。
第七条防护设备1.施工人员应配备必需的防护设备,包含但不限于安全带、防护眼镜、防尘口罩、耐酸手套等;2.防护设备应经过检查,确保其完好、有效;3.施工人员应依照规定佩戴和使用防护设备,确保自身安全。
第八条安全操作1.施工人员应在经过培训、熟识各类设备和操作规程后,方可进行作业;2.施工人员应严格遵守操作规程,禁止未经授权的人员操作设备;3.施工人员应遵守现场烟尘、噪声和有毒气体的掌控要求,保证工作环境清洁、整齐;4.施工人员在作业过程中应保持清醒状态,严禁酒后作业。
第九条作业环境安全1.施工现场应保持乾净,杂物应妥当摆放,走道畅通;2.施工现场应设置明显的安全警示标志和防护栏杆,划定工作区域,确保作业区域的安全;3.施工现场应配备充分的灭火器材,并进行定期检查和维护。
脱硫塔内壁防腐工程施工方案目录1. 工程概述 (3)1.1 工程背景 (3)1.2 工程内容 (4)1.3 工程目标 (5)1.4 工程范围 (6)2. 设计与要求 (7)2.1 脱硫塔内壁防腐材料选择 (8)2.2 防腐工艺方案 (9)2.3 现场条件与限制 (10)2.4 设计细节 (11)3. 施工准备 (13)3.1 施工队伍与人员 (14)3.2 施工材料准备 (15)3.3 施工机械准备 (16)3.4 施工方案编制 (17)4. 施工工艺 (19)4.1 拆除与清理 (20)4.2 表面处理 (21)4.3 防腐材料涂装 (22)4.4 施工监控 (23)5. 安全措施 (24)5.1 安全组织机构 (25)5.2 安全教育 (26)5.3 应急预案 (28)5.4 现场安全设施 (30)6. 质量控制 (31)6.1 质量标准 (32)6.2 质量检查 (33)6.3 质量保证措施 (34)7. 进度计划 (35)7.1 工程进度目标 (36)7.2 施工分段与周期 (37)7.3 施工组织 (38)8. 环境保护与职业健康 (39)8.1 环境影响评估 (41)8.2 污染防控措施 (42)8.3 职业健康安全 (43)9. 应急措施 (44)9.1 常见问题处理 (45)9.2 事故应急预案 (46)10. 施工验收 (48)10.1 验收标准 (49)10.2 验收程序 (50)10.3 验收记录 (51)1. 工程概述本工程合同主要针对脱硫塔内壁的防腐处理,旨在保证设备的防腐性能,提高脱硫塔的使用寿命,确保工厂的安全稳定运行。
脱硫塔是烟气脱硫系统中的关键组成部分之一,它的防腐性能直接影响系统的烟气处理效率和耐久性。
脱硫塔内壁防腐工程将涉及表面处理、底漆涂装、耐腐蚀涂料的施工等多方面的工作。
为了确保工程质量,本方案将根据现场实际条件和施工规范,合理选用材料,严格控制施工工艺和质量参数,同时加强施工过程中的质量监督和安全管理。
脱硫塔防腐施工方案1. 引言脱硫塔是烟气脱硫系统中十分重要的设备,用于去除烟气中的二氧化硫等有害气体,保护环境。
为了确保脱硫塔的使用寿命和性能,防腐施工是非常必要的。
本文档将介绍脱硫塔防腐施工的方案和步骤,以确保施工质量和安全。
2. 施工准备在脱硫塔防腐施工之前,需要做好准备工作,包括: - 确定施工方案和工艺流程; - 准备所需材料和工具; - 制定施工计划,合理安排人员和时间; - 检查脱硫塔的表面状况,并清洁干净。
3. 施工步骤3.1 表面处理在进行防腐施工之前,需要对脱硫塔的表面进行处理,确保其干净、平整、无油污等。
具体步骤如下: 1. 使用刷子或高压水枪清洗脱硫塔表面,清除表面的灰尘和污垢。
2. 使用砂纸或专用工具对表面进行打磨,去除表面的锈蚀和老化涂层。
3. 使用洁净布或纱布擦拭表面,确保表面干燥和无灰尘。
3.2 底漆施工底漆施工非常重要,它能够增强脱硫塔表面的附着力,并提供防腐保护。
具体步骤如下: 1. 搅拌底漆,确保底漆充分混合。
2. 使用刷子、滚筒或喷枪等工具将底漆均匀涂布在脱硫塔表面上,确保每个部位都被覆盖到。
3. 底漆施工完成后,按照要求进行干燥和固化。
3.3 防腐涂层施工防腐涂层施工是脱硫塔防腐施工的关键步骤,它能够提供有效的防腐保护,延长脱硫塔的使用寿命。
具体步骤如下: 1. 选择适合的防腐涂料,根据施工计划进行调配。
2. 使用刷子、滚筒或喷枪等工具将防腐涂料均匀涂布在脱硫塔表面上,确保涂层的厚度均匀。
3. 涂层施工完成后,按照要求进行干燥和固化。
3.4 检查和质量验收在防腐施工完成后,需要对施工质量进行检查和验收,确保施工效果满足要求。
具体步骤如下: 1. 对防腐涂层进行目视检查,检查是否有漏涂、鼓泡、剥离等问题。
2. 测量涂层的厚度,确保达到要求。
3. 进行质量验收,包括涂层附着力测试、耐腐蚀性测试等。
4. 安全注意事项在脱硫塔防腐施工过程中,需要注意以下安全事项: - 佩戴合适的个人防护装备,如手套、口罩、防护眼镜等; - 施工现场保持通风良好,避免有害气体中毒;- 防止火焰和火花引发火灾,禁止吸烟; - 使用防腐涂料时,遵循操作规程,避免误食或接触眼睛; - 施工完毕后清洁施工现场,妥善处置废弃材料和容器。
吸收塔防腐施工方案(本方案为电厂脱硫装置防腐施工工艺其中吸收塔内部防腐的材料仅供施工因其具体吸收塔是电厂脱硫装置的核心设备之一,用于实现烟气中的二氧化硫与吸收剂的反应,从而实现脱硫的目的。
在吸收塔防腐施工中,选择合适的防腐材料和施工方法对于延长设备的使用寿命、提高设备的脱硫效率至关重要。
一、吸收塔防腐施工方案1.选择防腐材料在吸收塔内部的防腐施工中,常用的防腐材料包括玻璃钢、耐磨橡胶涂层、耐高温耐蚀涂层等。
每种材料都有其应用范围和特点,需要根据吸收塔的工作条件和使用要求进行选择。
玻璃钢是一种常用的防腐材料,具有耐腐蚀、耐高温、耐磨损等优点,适用于对化学性能要求高的环境。
耐磨橡胶涂层具有较好的耐磨损性能,适用于吸收塔内部易受磨损的部位。
耐高温耐蚀涂层适用于吸收塔内部对耐高温和耐腐蚀性能要求较高的部位。
2.施工方法吸收塔内部的防腐施工需要在严格的环境要求下进行,一般分为以下几个步骤:(1)表面处理:首先对吸收塔内部的表面进行清洁和打磨处理,确保涂层的附着力。
(2)底漆涂装:在表面处理完毕后,施工底漆涂装,形成一层保护膜,提高涂层的附着力和耐腐蚀性能。
(3)中涂涂装:在底漆涂装完毕后,进行中涂涂装,增强涂层的耐腐蚀性能和机械强度。
(4)面漆涂装:最后进行面漆涂装,提高涂层的强度和耐腐蚀性能,确保吸收塔内部的防腐效果。
3.施工质量标准在吸收塔防腐施工中,需要严格按照相关国家标准和规范进行施工,保证施工质量和施工效果。
施工过程中需要严格控制施工环境、施工工艺和施工质量,确保吸收塔内部的防腐效果达到预期要求。
二、防腐施工注意事项1.施工环境:施工过程中需要保持施工环境的清洁和干燥,避免灰尘和水汽对涂层的影响。
2.施工工艺:施工过程中需要按照正确的工艺要求进行施工,确保每一道工序的质量和效果。
3.施工质量:施工过程中需要加强质量管理,对施工过程和施工效果进行严格检查和验收,确保施工质量符合要求。
以上是吸收塔防腐施工方案的概述,选择合适的防腐材料和施工方法,严格按照规范要求进行施工,可以保证吸收塔内部的防腐效果和使用寿命,提高脱硫效率,确保电厂设备的正常运行。
火电厂烟气脱硫技术及防腐施工要求发布时间:2022-10-23T08:39:29.945Z 来源:《当代电力文化》2022年12期作者:张亚松[导读] 近年来,我国电力建设迅速深入发展。
特别是燃煤发电能力已上升为中国的主要燃煤发电厂,超过世界第一。
张亚松山东电力建设第三工程有限公司山东青岛 266000【摘要】近年来,我国电力建设迅速深入发展。
特别是燃煤发电能力已上升为中国的主要燃煤发电厂,超过世界第一。
由于中国发电厂的主要组成部分是煤炭能源,直接生产和消耗燃料的主体是大量劣质煤的消耗,即燃烧空气中容易产生大量有毒物质的烟气,二氧化硫的烟气氮和烟气中产生剧毒氮氧化物的烟气硫化物(SO2)是造成燃煤发电机组空气污染和直接产生氮氧化物的两个最重要来源。
【关键词】火电厂;二氧化硫;烟气脱硫经济现代化的快速发展直接导致了全球环境污染程度的日益严重差异。
环境形势的恶化,环境和社会能源资源消耗严重,直接制约了中国经济社会的发展。
火力发电厂烟气燃烧产生氮氧化物的问题在烟气排放中,以硫酸和SO2为主要代表物质的金属硫化物烟气是我国大气污染危害的污染源。
1我国现阶段火电厂烟气脱硫工艺的发展现状首先,虽然我国对烟气脱硫机理的研究已经开展了近几十年,但作为环境污染防治项目的关键技术研究和应用对象,起步较晚。
《高浓度SO2浓度等关键污染源烟气最高硫限量规定》多次修订和变更。
企业的要求根据相关国家标准不断修订和调整。
脱硫烟气处理装置的实际技术应用也处于相对被动和落后的状态,不符合前一时代和绿色经济时代科技进步的步伐。
与此同时,不同地区的省市地区行业间又没有相对统一完善的产品质量评判方法标准,我国科研院所在烟气脱硫工程设备技术研制开发方面力量的严重不足,专业科研技术人员资源的长期缺乏等一系列因素,都深深制约困扰着国内外烟气高效脱硫新工艺科技的继续创新突破与跨越发展。
其次,在国内火电厂生产烟气脱硫产品中已经广泛开始用到国内外的其他很多环保工艺技术,在烟气脱硫综合效益能够满足生产需求的条件情况下,需要花费较高程度的环保经济成本,综合环境保护经济技术门槛不一定高,部分燃煤电厂企业过分追求注重技术经济效益,选择应用了自身不适合应用的烟气脱硫环保工艺,或者仅仅只要求从企业某一生产制造环节直接进行废气脱硫环保处理,降低提高了整体烟气脱硫过程的处理效率成本和运行质量,导致有一部分含硫废水的烟气排入大气中,造成室内空气污染,同时还将可能造成由于燃煤脱硫工程产生出来的化工废渣污染和生活废水因处理措施不当等出现的对室外环境形成的室内二次污染。
电厂脱硫塔防腐一、引言脱硫塔是电厂烟气脱硫系统中的核心设备之一,用于去除烟气中的二氧化硫。
由于脱硫塔在工作过程中会接触到腐蚀性气体和化学药剂,因此对其进行防腐处理十分重要。
本文将介绍电厂脱硫塔防腐的相关内容。
二、防腐方式1. 表面涂层防腐表面涂层防腐是脱硫塔最常用的防腐方式之一。
通过涂覆一层防腐涂料,可以阻隔脱硫塔表面与外界环境的接触,起到保护作用。
常用的防腐涂料有环氧煤沥青涂料、磷化涂料等。
涂层的选择应根据具体情况进行,如腐蚀性介质的成分、温度、压力等。
涂层的施工应遵循相关规范要求,确保涂层的质量和耐腐蚀性。
2. 材料选择除了表面涂层防腐,选择适合的材料也是防腐的重要手段之一。
在脱硫塔的设计和制造过程中,应选择耐腐蚀性能良好的材料,如不锈钢、玻璃钢等。
这些材料具有较高的耐腐蚀能力,能够在长期接触腐蚀性气体和化学药剂的情况下保持较好的性能和寿命。
同时,在材料的选择上应考虑其强度和耐高温能力,以应对电厂工作环境的需求。
三、防腐施工措施1. 表面处理在进行表面涂层防腐前,需要对脱硫塔的表面进行充分处理。
这包括清洗、除锈、抛丸等步骤,以确保涂层能够牢固地附着在表面上。
同时,也应考虑表面的光洁度要求,一些涂层要求基材表面要求粗糙度,以提高涂层的附着力。
2. 涂层施工涂层施工是防腐施工的关键步骤。
在涂层施工过程中,应严格按照涂层厂家的要求进行,包括涂层的涂刷厚度、施工温度和湿度等要求。
涂层施工的质量直接影响到防腐效果和塔体的使用寿命,因此应引起足够重视。
3. 定期维护脱硫塔的防腐工作不仅仅是一次性的,还需要进行定期的维护和检查。
定期维护包括对涂层的检查、涂层的补损和更换等。
只有通过定期的维护,才能保证脱硫塔的防腐性能和使用寿命。
四、防腐效果评估对脱硫塔的防腐效果进行评估是防腐工作的重要一环。
可以通过定期的检测和监测脱硫塔的腐蚀状况、涂层的附着情况等指标,来评估防腐效果的好坏。
可以借助一些专业的仪器和测试方法,如腐蚀速率测试仪、膜厚测量仪等,进行定量的评估。
锅炉烟气脱硫系统防腐施工工法一、前言锅炉烟气脱硫系统防腐施工工法是为了保护锅炉烟气脱硫系统设备免受环境的侵蚀,提高设备的使用寿命和运行效率而采取的一种特殊施工方法。
该工法通过覆盖防腐材料,形成一层保护膜,有效防止腐蚀和损害。
本文将对该工法的特点、适应范围、工艺原理、施工工艺、劳动组织、机具设备、质量控制、安全措施和经济技术分析进行详细介绍,并给出一些工程实例,以帮助读者更好地理解和应用该工法。
二、工法特点锅炉烟气脱硫系统防腐施工工法的特点主要体现在以下几个方面:1. 防腐材料选择灵活:根据实际工程情况,可以选择不同的防腐材料,如沥青、聚合物涂料、环氧树脂等,以适应不同的环境和使用要求;2. 施工工艺简单:整个施工过程相对简单,不需要复杂的操作和设备,适合各类施工人员进行实施;3. 施工成本较低:相比其他防腐施工工法,该工法的施工成本相对较低,经济效益显著;4. 使用寿命长:采用该工法施工的锅炉烟气脱硫系统设备能够长时间使用,延长设备的寿命,减少设备更新和维护成本。
三、适应范围锅炉烟气脱硫系统防腐施工工法适用于各类烟气脱硫设备,包括湿法烟气脱硫装置、干法烟气脱硫装置、半干法烟气脱硫装置等。
无论是小型锅炉还是大型发电厂,都可以采用该工法进行防腐施工。
同时,该工法适用于不同的烟气脱硫设备材质,如钢材、玻璃钢、复合材料等。
四、工艺原理锅炉烟气脱硫系统防腐施工工法的工艺原理是基于防腐材料的物理和化学特性,通过涂覆、覆盖、浸渍等方式将防腐材料施工到锅炉烟气脱硫设备上,形成一层保护膜。
这一层保护膜可以有效隔离烟气中的有害物质和腐蚀性气体,保护设备免受腐蚀和损害。
具体来说,工艺原理包括以下几个方面:1. 表面处理:对锅炉烟气脱硫设备的表面进行清洁和处理,包括除锈、打磨、除油等,以保证施工工艺的粘附性和附着力;2. 涂覆方式:根据实际情况,选择合适的涂覆方式,如刷涂、喷涂、滚涂等,确保防腐材料均匀覆盖在设备表面;3. 材料选择:根据设备的材质、使用环境和使用要求,选择合适的防腐材料,在施工过程中按照规定的配比和比例进行混合和调试。
脱硫塔防腐施工方案脱硫塔是用于烟气脱硫的设备,主要通过喷雾吸收法将烟气中的二氧化硫(SO2)进行吸收,并在脱硫塔内与氧化剂反应生成硫酸,从而达到减少大气污染物的排放的目的。
脱硫塔的施工方案需要考虑到腐蚀性介质的存在以及设备的防腐要求,下面是一个关于脱硫塔防腐施工方案的范例:1.防腐材料选择:在脱硫塔的施工中,需要选择具有良好耐蚀性的材料,以确保设备的长期稳定运行。
常用的防腐材料包括玻璃钢、不锈钢、耐酸砖等。
针对不同部位的腐蚀情况,可以选择不同的材料进行防腐处理。
2.表面处理:在施工前,需要对脱硫塔表面进行处理,以保证防腐涂料的附着力。
首先,清除杂质和油污,使用砂轮或喷砂机对表面进行打磨,以去除锈蚀层、污垢和松散涂层。
然后,用溶剂进行清洗,使表面彻底干燥。
3.防腐涂料的选择和施工:根据不同工况和环境条件,选择合适的防腐涂料进行涂装。
常用的涂层材料有耐酸漆、耐磨漆、耐高温漆等。
在施工过程中,需要根据涂料的要求进行底漆、面漆的涂装,同时注意涂层的厚度和均匀性。
4.防腐性能测试和验收:在施工完成后,需要进行防腐性能的测试和验收。
通过涂层附着力、抗腐蚀性能以及厚度的测定,评估涂层的质量。
同时,对涂层进行外观检查,确保没有麻点、气泡、露底等缺陷。
5.定期保养与维护:防腐施工完成后,需要进行定期的检修和保养工作,以延长脱硫塔的使用寿命。
定期检查涂层的质量和完整性,及时修补受损的部分;清理杂物和沉淀物,以防止堵塞和损坏设备。
总结起来,脱硫塔的防腐施工需要选择合适的防腐材料,进行表面处理,选择合适的防腐涂料,确保涂层质量,并进行定期保养和维护。
通过这些措施,可以保证脱硫塔的防腐性能,延长设备的使用寿命,提高脱硫效率,减少环境污染。
烟气脱硫装置的表面防腐处理一、腐蚀机理分析1、化学腐蚀:烟气中的腐蚀性介质在一定温度下与钢铁发生化学反应。
生成可溶性铁盐。
Fe + SO2 + H2O = FeSO3 + H2Fe + SO2 + O2 = FeSO42HCl + Fe = FeCl2 + H22、电化学腐蚀:湿法脱硫金属表面有水及电解质,形成原电池而产生电流,使金属表面逐渐锈蚀。
特别在焊接点处更易发生。
Fe Fe2+ + 2eFe2+ + 8FeO·OH + 2e 3Fe3O4 + 4H2O后生成可溶性硫酸盐(或亚硫酸盐),液相3、结晶腐蚀:用碱性液体吸收SO2则渗入表面防腐层的毛细孔内。
在自然干燥条件下生成结晶盐,同时体积膨胀,防腐材料自身产生内应力,使其脱皮、粉化、疏松、裂缝。
在干湿交替作用下,带结晶水的盐类体积可增加几倍至十几倍,腐蚀更加严重。
4、磨损腐蚀:烟气中固体颗粒与设备表面湍动摩擦,更新表面。
二、环境腐蚀因素1、环境温度作用:湿法温度在60℃~120℃之间。
温度确定材料选择:140℃~200℃为一档,110℃~140℃为一档,90℃~110℃为一档,90℃以下为一档。
衬里材料与设备基体在温度作用下产生不同步膨胀。
温度越高,设备越大,负作用越大。
二者粘结界面产生热应力,影响衬里寿命。
温度使材料的物理、化学性能下降,导致衬里材料耐腐、耐磨性、抗应力破坏,有机材料加速老化。
2、固体物料作用:烟气中的尘料、脱硫剂、生成物运行时冲刷衬里表面。
3、设备基体结构现场加工制作时的基本条件:⑴设备应有足够的钢性,任何结构变形均会导致衬里破坏;⑵焊缝必须焊满,焊瘤高度不应大于2mm。
不得错位对焊,焊缝平整光滑;⑶内部支撑件及框架禁止用角钢、槽钢、工字钢,采用方钢、圆钢;⑷外接钢管应以法兰连接,禁止直接焊接。
法兰接头应确保衬里施工方便。
三、防腐材料比较1、无机材料⑴水玻璃胶泥:主要成份为辉绿岩粉、水玻璃、氟硅酸钠。
优点:耐酸性腐蚀、耐高温、稍耐磨。
缺点:不耐碱性腐蚀;抗渗性能和抗稀酸性能差;调和胶泥时粘度大,不易施工;重量重,碰损后不易修复;新旧层易开裂、脱落。
胶泥防腐层需酸性环境保护。
⑵硫磺胶泥:主要成分为硫磺粉、辉绿岩粉(石墨粉)、石棉绒、聚硫橡胶。
优点:耐酸、防水、抗渗、快硬、强度高。
缺点:不耐高温(<70℃=,熬制硫磺胶泥,程序复杂。
⑶耐酸瓷砖:在脱硫设备内壁用耐蚀胶泥粘贴耐酸瓷砖。
优点:耐腐蚀、耐高温、耐磨。
缺点:需据设备尺寸订做,无标件,接缝处易开裂、脱落,施工复杂。
⑷铠装瓷砖:在陶瓷设备外围装配金属保护壳体。
优点:耐酸碱腐蚀、耐高温、耐磨。
缺点:成品率低,成本高;温差变化时,法兰接口不易密封大直径设备、成型设备。
2、有机类物质⑴涂料:各类防腐涂料。
⑵内衬橡胶硫化橡胶:耐蚀、耐磨、不耐温、施工难、成本高。
有机硅橡胶:耐蚀、耐温、附着力差、施工难、成本高。
⑶内衬玻璃钢不饱和聚酯树脂:耐酸,不耐碱、水、温,成本低。
环氧树脂:耐酸、碱,耐磨,粘结力强,耐温160℃。
呋喃树脂:耐蚀、耐温、稍耐磨。
酚醛树脂:耐酸、不耐碱、附着力差。
有机胺树脂:耐蚀、耐温。
常配合使用。
四、烟气脱硫装置防腐蚀技术1、静态设备防腐蚀吸收塔、除雾器、再热器壳体及内支撑。
防腐设计方法二种:⑴碳钢内衬防腐层;⑵用耐腐蚀金属材料。
内衬防腐主要为玻璃鳞片树脂内衬技术和橡胶衬里技术。
首选为玻璃鳞片内衬技术。
脱硫过程中形成的SO32-和SO42-有较强的化学活性和渗透能力,因此防腐层必须具备优良的耐化学腐蚀性和高抗渗性。
鳞片衬里采用多层平行排列,介于无法垂直渗透。
玻璃片在树脂中非连续分布,使应力无法同向传递或叠加,相邻鳞片间的衬层应力相互抵消。
橡胶冷衬里本体非常致密,介于很难渗入。
但胶板粘接缝为薄弱环节,失效由此开始。
橡胶对热老化敏感,热环境中易老化变硬使强性降低,应变性能变差,抗应力腐蚀性能下降。
表1 鳞片衬里和橡胶衬里综合比较表2、其它静态设备防腐石灰石浆池、废液池、排水沟槽等浆液系统均采用混凝土+鳞片衬里结构。
输浆液管道为碳钢+橡胶衬里结构。
3、烟气脱硫装置耐蚀金属材料的应用耐蚀金属材料使用有二种方式:耐蚀金属本体制造和耐蚀金属与碳钢复合材料本体制造。
主要材料为超低碳不锈钢316L、317L及镍合金。
其中316L、317L冲刷腐蚀,点蚀较重。
镍合金抗蚀性增强,但造价较高。
4、动态设备防腐蚀吸收塔循环泵、排水泵、滤液泵、投料泵等泵壳体及叶轮采用铸铁加橡胶衬里。
石灰石浆泵、水系统用泵采用铸铁离心泵。
搅拌器采用碳钢加橡胶衬里。
表2 国外公司防腐技术应用实例表(1)(霍高文)(千代田)表3 国外公司防腐技术应用实例表(2)表4 KCH在烟气脱硫装置中的防腐应用●推荐○选择五、典型烟气脱硫装置防腐技术及其应用实例烟气脱硫装置的结构材料必须能承受各种化学的、高温的和机械的负荷。
这些负荷包括:干热烟气(和可能形成的冷凝酸,特别是高浓度硫酸),温度在45℃至70℃时磨损性的悬浮液以及在同时有冷凝酸生成的氧化条件下的充满饱和水蒸气的气体。
所有这些负荷导致了作为结构材料的碳钢产生了腐蚀的现象,为此,根据不同的负荷要求使用的必要的防腐材料,至少在FDG的部分区域内有三种防护方法:⑴橡胶衬里,特别是软橡胶衬里;⑵合成树脂涂层,特别是带鳞片的涂层;⑶瓷砖铺面。
作为环保技术企业的KCH,多年来已提供了合适的防腐材料和应用方法,它们在烟气脱硫装置中经受了考验。
对钢制容器等使用胶板的基本要求参见DIN 28055-1,而对钢制容器等使用涂层时则参见DIN 28054。
行之有效的防腐前提是那些需保护的部件和设备的结构和制造应适于衬胶或涂层,有关要求参见DIN 28051。
需保护的钢表面在衬胶或涂层前应被喷砂处理过,使其洁净度至少达到一般至SA2.5 (参见DIN 55928-4:ISO8501-1或SS 05 59 00)。
表面粗糙度RZ少应该达到60μm,不过现场衬胶时只需50μm就够了。
1、橡胶衬里⑴技术介绍一百多年来,用橡胶衬里来防腐已众所周知,这里所讲的衬橡胶是指用合成或天然橡胶制成的橡胶板来进行的,它可区分为车间及现场衬胶两种。
对直径小于6米或长度短于15米的部件,可采用车间衬胶。
在车间内,部件先被铺上未硫化过的橡胶板,然后在压热硫化釜内,在温度约140℃的压力下硫化。
VULKODURIT W50 就是基于丁基橡胶的这一类橡胶衬里。
当部件过于庞大,不能运输或所用橡胶板不能在硫化釜内硫化时,采用现场橡胶。
KCH在此使用预硫化橡胶板(KERABUTYL BS. KERABUTYL V,KERABUTYL RB)和冷硫化(又称自硫化)橡胶板(KERABUTYL BB-S)。
所以这些橡胶板品种包括丁基(ⅡR),溴丁(BⅡR)和氯丁(CⅡR)橡胶等化学稳定性高、抗渗透的合成橡胶。
它们在完全硫化状态下被称为软橡胶,具有较高的化学稳定性,能阻止水蒸汽、氧气和二氧化硫的扩渗,并且耐磨损。
⑵应用实例表5 KCH的FGD车间衬胶表6 KCH的FGD现场衬胶2、涂层⑴技术介绍主要成份:呋喃化学接枝改性环氧树脂、鳞片填料、助剂等。
特点:综合了环氧树脂和呋喃树脂的特性,既保持了环氧树脂附着力强、机械强度高的特点,又体现了呋喃树脂耐热、耐溶剂的性能。
性能:表7 物理性能表8 耐蚀性能施工工艺参数:①表面处理混凝土结构:表面无油污,不起砂、干燥(含水率小于6%)。
钢结构:表面干燥、无尘、无油污,喷砂至Sa2.0级或打磨至St2.5级。
②工艺参数表9 工艺参数表③配比(W/W)表10 配比表⑵应用实例与铺面不同的是,由非定型材料组成的涂层是在需保护的部件上直接制成的。
尽管合成树脂涂层在化学装置制造方面已有很长的应用历史,但要一方面承受高温负荷,另一方面又要承受含饱和水蒸汽的气体的强烈冲击,对涂层的原料配比就有特殊要求。
表11 KCH的FGD乙烯酯树脂涂层对涂层来说,利用含双酚A或酚醛丙烯酸树脂的乙烯酯树脂,可获得较高的化学稳定性,利用含酚醛丙烯酸树脂的乙烯酯树脂可获得较好的耐高温性。
通过掺入直径至3.2毫米的片状加固材料(所谓的“玻璃薄片”),涂层材料对水蒸汽、二氧化硫和其它气体的抗扩渗性得到了明显的改善,同时其机械性能也通过平行的铺在被保护表面的强化材料而得到改善。
由这些成份组成的高级涂层材料 KERAFLAKE 6R 和 KERAFLAKE 6H 十五年来为脱硫装置的防腐做出了最好的贡献。
KORROPLAST是一种可喷涂的涂层材料,它是用含酚醛丙烯酸树脂的高级乙烯酯树脂经过粘合剂而制成的。
它适用于干燥气体经过的区域,而KERAFLAKE 6R 和KERAFLAKE 6H 则基于它们本身的结构也能用于充满饱和水蒸汽的区域。