(完整版)板式楼梯手算计算书(2013年版规范)
- 格式:doc
- 大小:383.01 KB
- 文档页数:14
混凝土栏板按图示尺寸以体积计算,扶手以延伸米计算,均包含伸入墙内部分。
楼梯的栏板和扶手长度,如图集无规准时,按水平长度乘以1.15 系数计算。
栏板(含扶手)及翻沿净高按1.2m 之内考虑,超出时套用墙相应定额。
楼梯整体楼梯包含歇息平台、平台梁、斜梁和楼梯的连结梁,按水平投影面积计算。
楼梯踏步、踏步板,平台梁等侧面模板不另计算,伸入墙内部分也不增添。
当楼梯与现浇楼板有梯梁连结时,楼梯应算至梯口梁外侧;当无梯梁连结时,以楼梯最后一个踏步边沿加 300mm 计算。
整体楼梯不扣除宽度小于500mm 的梯井楼地面找平层楼梯找平层按水平投影面积乘以系数1.365,台阶找平层乘以系数1.48 楼梯整风光层不包含踢脚线、侧面、底面的抹灰楼梯面积按设计图示尺寸以楼梯(包含踏步、歇息平台及 500mm 之内的楼梯井)水平投影面积计算。
楼梯与楼地面相连时,算至梯口梁内侧边沿;无梯口梁者,算至最上一层踏步边沿加 300mm。
防滑条如无设计要求时,按楼梯、台阶踏步两头距离减300mm 以延伸米计算。
楼梯、台阶块料面层工程量计算规则与整风光层同样楼梯踢脚线按相应定额乘以系数1.15。
模板整体楼梯包含歇息平台、平台梁、斜梁和楼梯的连结梁,按水平投影面积计算。
不扣除宽度小于 500mm 的梯井。
楼梯踏步、踏步板、平台梁等侧面模板不另计算,伸入墙内部分也不增添。
当楼梯与现浇楼板有梯梁连结时,楼梯应算至梯口梁外侧;当无梯梁连结时,以楼梯最后一个踏步边沿加300mm 计算。
油漆涂料裱糊工程2.抹灰面油漆、涂料、裱糊项目名称系数工程量计算方法混凝土楼梯底(板式)1.15 水平投影面积混凝土楼梯( xx)1.00 睁开面积混凝土花格窗、栏杆花饰1.82 单面外头面积楼地面、天棚、墙、柱、梁面1.00 睁开面积天棚工程楼梯底面抹灰,按楼梯水平投影面积(梯井宽超出200mm 以上者,应扣除超出部分的投影面积)乘以系数1.30 计算,套用相应的天棚抹灰定额。
板式楼梯计算书项目名称_____________日期_____________设计者_____________校对者_____________一、构件编号:LT-1二、示意图:三、基本资料:1.依据规范:《建筑结构荷载规范》(GB 50009-2001)《混凝土结构设计规范》(GB 50010-2002)2.几何参数:楼梯净跨: L1 = 4160 mm 楼梯高度: H = 2900 mm梯板厚: t = 180 mm 踏步数: n = 17(阶)上平台楼梯梁宽度: b1 = 200 mm下平台楼梯梁宽度: b2 = 200 mm上平台宽: L3 = 300 mm3.荷载标准值:可变荷载:q = 3.50kN/m2面层荷载:q m = 1.00kN/m2栏杆荷载:q f = 0.20kN/m永久荷载分项系数: γG = 1.20 可变荷载分项系数: γQ = 1.40准永久值系数: ψq = 0.504.材料信息:混凝土强度等级: C30 f c = 14.30 N/mm2f t = 1.43 N/mm2R c=25.0 kN/m3f tk = 2.01 N/mm2E c= 3.00×104 N/mm2钢筋强度等级: HRB400 f y = 360 N/mm2E s= 2.00×105 N/mm2保护层厚度:c = 15.0 mm R s=20 kN/m3受拉区纵向钢筋类别:带肋钢筋梯段板纵筋合力点至近边距离:a s = 25.00 mm支座负筋系数:α = 0.25四、计算过程:1. 楼梯几何参数:踏步高度:h = 0.1706 m踏步宽度:b = 0.2600 m计算跨度:L0 = L1+L3+(b1+b2)/2 = 4.16+0.30+(0.20+0.20)/2 = 4.66 m梯段板与水平方向夹角余弦值:cosα = 0.8362. 荷载计算( 取 B = 1m 宽板带):(1) 梯段板:面层:g km = (B+B*h/b)*q m = (1+1*0.17/0.26)*1.00 = 1.66 kN/m自重:g kt = R c*B*(t/cosα+h/2) = 25*1*(0.18/0.836+0.17/2) = 7.51 kN/m抹灰:g ks = R S*B*c/cosα = 20*1*0.02/0.836 = 0.48 kN/m恒荷标准值:P k = g km+g kt+g ks+q f = 1.66+7.51+0.48+0.20 = 9.85 kN/m恒荷控制:P n(G) = 1.35*P k+γQ*0.7*B*q = 1.35*9.85+1.40*0.7*1*3.50 = 16.73 kN/m活荷控制:P n(L) = γG*P k+γQ*B*q = 1.20*9.85+1.40*1*3.50 = 16.72 kN/m荷载设计值:P n = max{ P n(G) , P n(L) } = 16.73 kN/m(2) 平台板:面层:g km' = B*q m = 1*1.00 = 1.00 kN/m自重:g kt' = R c*B*t = 25*1*0.18 = 4.50 kN/m抹灰:g ks' = R S*B*c = 20*1*0.02 = 0.40 kN/m恒荷标准值:P k' = g km'+g kt'+g ks'+q f = 1.00+4.50+0.40+0.20 = 6.10 kN/m 恒荷控制:P l(G) = 1.35*P k'+γQ*0.7*B*q = 1.35*6.10+1.40*0.7*1*3.50 = 11.67 kN/m活荷控制:P l(L) = γG*P k+γQ*B*q = 1.20*6.10+1.40*1*3.50 = 12.22 kN/m荷载设计值:P l = max{ P l(G) , P l(L) } = 12.22 kN/m3. 正截面受弯承载力计算:左端支座反力: R l = 37.25 kN右端支座反力: R r = 38.89 kN最大弯矩截面距左支座的距离: L max = 2.33 m最大弯矩截面距左边弯折处的距离: x = 1.93 mM max = R l*L max-[P l*L3*(x+L3/2)+P n*x2/2]= 37.25*2.33-[12.22*0.40*(1.93+0.40/2)+16.73*1.932/2]= 45.22 kN·m相对受压区高度:ζ= 0.141663 配筋率:ρ= 0.005627纵筋(1号)计算面积:A s = 872.21 mm2支座负筋(2、3号)计算面积:A s'=α*A s = 0.25*872.21 = 218.05 mm2五、计算结果:(为每米宽板带的配筋)1.1号钢筋计算结果(跨中)计算面积A s:872.21 mm2采用方案:f14@100实配面积:1539 mm22.2/3号钢筋计算结果(支座)计算面积A s':218.05 mm2采用方案:f14@200实配面积: 770 mm23.4号钢筋计算结果采用方案:d6@200实配面积: 141 mm24.5号钢筋计算结果采用方案:f12@100实配面积:1131 mm2六、跨中挠度计算:Mk -------- 按荷载效应的标准组合计算的弯矩值Mq -------- 按荷载效应的准永久组合计算的弯矩值1.计算标准组合弯距值Mk:Mk = M gk+M qk= (q gk + q qk)*L02/8= (9.85 + 3.500)*4.662/8= 36.235 kN*m2.计算永久组合弯距值Mq:Mq = M gk+M qk= (q gk + ψq*q qk)*L02/8= (9.85 + 0.50*3.500)*4.662/8= 31.485 kN*m3.计算受弯构件的短期刚度 B s1) 计算按荷载荷载效应的标准组合作用下,构件纵向受拉钢筋应力σsk = Mk/(0.87*h0*As) (混凝土规范式 8.1.3-3)= 36.235×106/(0.87*155*1539)= 174.555 N/mm2) 计算按有效受拉混凝土截面面积计算的纵向受拉钢筋配筋率矩形截面积: A te = 0.5*b*h = 0.5*1000*180= 90000 mm2ρte = As/A te (混凝土规范式 8.1.2-4)= 1539/90000= 1.710%3) 计算裂缝间纵向受拉钢筋应变不均匀系数ψψ = 1.1-0.65*f tk/(ρte*σsk) (混凝土规范式 8.1.2-2) = 1.1-0.65*2.01/(1.710%*174.555)= 0.6624) 计算钢筋弹性模量与混凝土模量的比值αEαE = E S/E C= 2.00×105/(3.00×104)= 6.6675) 计算受压翼缘面积与腹板有效面积的比值γf矩形截面,γf = 06) 计算纵向受拉钢筋配筋率ρρ = As/(b*h0)= 1539/(1000*155)= 0.993%7) 计算受弯构件的短期刚度 B SB S = E S*As*h02/[1.15*ψ+0.2+6*αE*ρ/(1+ 3.5*γf)](混凝土规范式8.2.3--1)= 2.00×105*1539*1552/[1.15*0.662+0.2+6*6.667*0.993%/(1+3.5*0.0)]= 54.427×102 kN*m24.计算受弯构件的长期刚度B1) 确定考虑荷载长期效应组合对挠度影响增大影响系数θ当ρ`=0时,θ=2.0 (混凝土规范第 8.2.5 条)2) 计算受弯构件的长期刚度 BB = Mk/(Mq*(θ-1)+Mk)*B S (混凝土规范式 8.2.2)= 36.235/(31.485*(2.0-1)+36.235)*54.427×102= 29.122×102 kN*m25.计算受弯构件挠度f max = 5*(q gk+q qk)*L04/(384*B)= 5*(9.85+3.500)*4.664/(384*29.122×102)= 28.145 mm6.验算挠度挠度限值f0=L0/200=4.66/200=23.300 mm七、裂缝宽度验算:1.计算标准组合弯距值Mk:Mk = M gk+M qk= (q gk + q qk)*L02/8= (9.85 + 3.500)*4.662/8= 36.235 kN*m2.带肋钢筋,所以取值V i=1.03.C = 154.计算按荷载荷载效应的标准组合作用下,构件纵向受拉钢筋应力σsk = Mk/(0.87*h0*As) (混凝土规范式 8.1.3-3)= 36.235×106/(0.87*155.00*1539)= 174.555 N/mm5.计算按有效受拉混凝土截面面积计算的纵向受拉钢筋配筋率矩形截面积: A te = 0.5*b*h = 0.5*1000*180= 90000 mm2ρte = As/A te (混凝土规范式 8.1.2-4)= 1539/90000= 1.710%6.计算裂缝间纵向受拉钢筋应变不均匀系数ψψ = 1.1-0.65*f tk/(ρte*σsk) (混凝土规范式 8.1.2-2)= 1.1-0.65*2.01/(1.710%*174.555)= 0.6627.计算单位面积钢筋根数nn = 1000/s= 1000/100= 108.计算受拉区纵向钢筋的等效直径d eqd eq= (∑n i*d i2)/(∑n i*V i*d i)= 10*142/(10*1.0*14)= 149.计算最大裂缝宽度ωmax =αcr*ψ*σsk/E S*(1.9*C+0.08*d eq/ρte) (混凝土规范式 8.1.2-1) = 2.1*0.662*174.555/2.0×105*(1.9*15+0.08*14/1.710%) = 0.1141 mm≤ 0.30 mm,满足规范要求。
CT1楼梯计算书一、基本资料:本工程采用现浇整体板式楼梯,层高4.2m ,踏步尺寸:150×270mm ,共14个踏步。
梯段长:2160mm ,活荷载为3.5KN/m 2,踏面采用30厚水磨石面层,面上20厚水泥砂浆,采用C25混凝土,f c =11.9N/mm 2,f t =1.27N/mm 2二、楼梯板计算2.1 l 0=5020mm 。
斜板的厚度估算为:h=(l 0/30~l 0/25)=167—200mm ,取h=170。
2.2 楼梯斜板的荷载计算:恒荷载:1.栏杆自重:0.5KN/m × 1.2 =0.6KN/m 2.三角形踏板自重:10.150.270.170.309225 6.74/ 1.28.09/0.270.27KN m KN m ⎡⎤⎛⎫⨯⨯ ⎪⎢⎥⨯⎝⎭⎢⎥⨯+=⨯=⎢⎥⎢⎥⎣⎦3.30厚水磨石面层:0.65×(0.15+0.27)/0.27=1.01 ×1.2 =1.21KN/m 4.板底20厚水泥砂浆粉刷:0.020.309200.45 1.20.55/0.27KN m ⨯⨯=⨯= 活荷载: 3.5×1.4=4.9KN/m荷载组合:可变荷载控制:10.45+4.9=15.35KN/m永久荷载控制:1.35×8.8+0.98×3.5=15.31KN/m 2.3 内力计算:斜板由跨度为l n 的水平梁代替,l n =5020mm 。
应考虑到斜板两端均与梁整浇,对板有约束作用,故跨中最大弯矩:022023510126025050202115.35 5.02()38.681010sn hn bl l l mmM g q l KN M =++⨯=++=⨯=+==计算跨度:2.4 配筋计算:01s 1b 5620001201702015020mm HRB4000.80.518360110.00332102238.681015015023.5177.711.91200y o sb c h t mm f E M x h h mm h mmf b βξεξ=-=-=====++⨯⨯⨯⨯=--=--=<=∂⨯保护层厚度为A 受力钢筋拟使用级钢筋,min 2210.2%11.9100023.51777.140.0021200140288360c s y f bx A mm mmf ρ=∂⨯⨯===>⨯⨯= 下部钢筋选用:C 12@150 A s =904.8mm 2012360904.827.3797.811.910000.0021701000=340mm y s b c s f A x mm h mmf bξ⨯===<=∂⨯>⨯⨯垂直方向分布钢筋:A取A 8@150 A s =402.4mm 2上部支座钢筋:n 2s 1341904.83013l A mm >⨯=支座配筋一般取跨中配筋量的,配筋范围为。
板式楼梯计算书项目名称_____________日期_____________设计者_____________校对者_____________一、示意图:二、基本资料:1.依据规范:《建筑结构荷载规范》(GB 50009-2001)《混凝土结构设计规范》(GB 50010-2002)2.几何参数:楼梯净跨: L1 = 2700 mm 楼梯高度: H = 1500 mm梯板厚: t = 100 mm 踏步数: n = 10(阶)上平台楼梯梁宽度: b1 = 200 mm 下平台楼梯梁宽度: b2 = 200 mm 2.荷载标准值:可变荷载:q = 2.50kN/m2面层荷载:q m = 1.70kN/m2栏杆荷载:q f = 0.20kN/m3.材料信息:混凝土强度等级: C20 f c = 9.60 N/mm2f t = 1.10 N/mm2R c=25.0 kN/m3钢筋强度等级: HPB235 f y = 210.00 N/mm2抹灰厚度:c = 20.0 mm R s=20 kN/m3梯段板纵筋合力点至近边距离:a s = 20 mm支座负筋系数:α= 0.25三、计算过程:1.楼梯几何参数:踏步高度:h = 0.1500 m踏步宽度:b = 0.3000 m计算跨度:L0 = L1+(b1+b2)/2 = 2.70+(0.20+0.20)/2 = 2.90 m梯段板与水平方向夹角余弦值:cosα= 0.8942.荷载计算( 取B = 1m 宽板带):(1) 梯段板:面层:g km = (B+B·h/b)q m = (1+1×0.15/0.30)×1.70 = 2.55 kN/m自重:g kt = R c·B·(t/cosα+h/2) = 25×1×(0.10/0.89+0.15/2) = 4.67 kN/m抹灰:g ks = R S·B·c/cosα = 20×1×0.02/0.89 = 0.45 kN/m恒荷标准值:P k = g km+g kt+g ks+q f = 2.55+4.67+0.45+0.20 = 7.87 kN/m恒荷控制:P n(G) = 1.35g k+1.4·0.7·B·q = 1.35×7.87+1.4×0.7×1×2.50 = 13.07 kN/m活荷控制:P n(L) = 1.2g k+1.4·B·q = 1.2×7.87+1.4×1×2.50 = 12.94 kN/m荷载设计值:P n = max{ P n(G) , P n(L) } = 13.07 kN/m3.正截面受弯承载力计算:左端支座反力: R l = 18.95 kN右端支座反力: R r = 18.95 kN最大弯矩截面距左支座的距离: L max = 1.45 m最大弯矩截面距左边弯折处的距离: x = 1.45 mM max = R l·L max-P n·x2/2= 18.95×1.45-13.07×1.452/2= 13.74 kN·m相对受压区高度:ζ= 0.256555 配筋率:ρ= 0.011728纵筋(1号)计算面积:A s = 938.26 mm2支座负筋(2、3号)计算面积:A s'=αA s = 0.25×938.26 = 234.56 mm2四、计算结果:(为每米宽板带的配筋)1.1号钢筋计算结果(跨中)计算面积A s: 938.26 mm2采用方案:d12@100实配面积:1130.97 mm22.2/3号钢筋计算结果(支座)计算面积A s': 234.56 mm2采用方案:d6@100实配面积:282.74 mm23.4号钢筋计算结果采用方案:d6@250实配面积:113.10 mm2。
楼梯详细手算计算书(结构设计)平台板设计(对斜板取1m 宽作为其计算单元) (TB-1)1、确定斜板板厚度t斜板的水平投影净长 L 1n =3080 mm斜板的斜向净长 L 1n ,= L 1n /cos α=3080/(280/22280150+)=3080/0。
881=3496 mm斜板厚度t 1=(1/25~1/30)L 1n ,=(1/25~1/30)×3496=140~117 mm , 取t 1=120 mm 2、荷载计算荷载种类荷载标准值(kN/m )恒荷载栏杆自重0。
2锯齿形斜板自重 r 2(d/2+t 1/cos α)=25×(0。
15/2+0.12/0.881)=5.28 20厚面层 r 1c 1(e+d )/e=20×0。
02×(0。
28+0。
15)/0.28=0。
61板底20厚混合砂浆 r 3c 2/cos α=17×0.02/0。
881=0.39横荷载合计g 6.5 活荷载3.5注:r 1、r 2、r 3为材料容重 E 、d 为踏步宽和高 c 1为踏步面层厚度 α为楼梯斜板的倾角 t 1为斜板的厚度 c 2为板底粉刷的厚度 3、荷载效应组合由可变荷载效应控制的组合: P=1.2×6.5+1。
4×3。
5=12。
7 kN/m由永久荷载效应控制的组合: P=1.35×6.5+1.4×0。
7×3.5=12。
21 kN/m 所以选永久荷载效应控制的组合来进行计算,取P=12。
7 kN/m 4、内力计算斜板的内力一般只需计算跨中最大弯矩即可.考虑到斜板两端均与梁整体浇注,对板有约束作用,所以跨中最大弯矩取:M=Pl 1n 2/10=12.7×3。
082/10=12。
05 kN ·m 5、配筋计算h 0=t 1—20=120—20=100 mmαs =M/α1f c bh 0 2 =12.05×106 /(1。
板式楼梯计算书板式楼梯计算书项目名称_____________日期_____________设计者_____________校对者_____________一、构件编号:LT-1二、示意图:三、基本资料:1.依据规范:《建筑结构荷载规范》(GB 50009-2001)《混凝土结构设计规范》(GB 50010-2010)2.几何参数:楼梯净跨: = 3240 mm 楼梯高度: H = 2184 mm梯板厚: t = 130 mm 踏步数: n = 13(阶)上平台楼梯梁宽度: = 250 mm下平台楼梯梁宽度: = 250 mm3.荷载标准值:可变荷载:q = 3.50kN/ 面层荷载: = 1.50kN/栏杆荷载: = 0.20kN/m永久荷载分项系数: = 1.20 可变荷载分项系数: = 1.40 准永久值系数: = 0.504.材料信息:混凝土强度等级: C30 = 14.30 N/m= 1.43 N/m =25.0 kN/= 2.01 N/m = 3.00*1 N/m钢筋强度等级: HRB400 = 360 N/m= 2.00*1 N/m保护层厚度:c = 20.0 mm =20 kN/受拉区纵向钢筋类别:光面钢筋梯段板纵筋合力点至近边距离: = 25.00 mm考虑支座嵌固作用求配筋时弯矩折减α1 = 0.8求裂缝时弯矩折减α2 = 0.8求挠度时弯矩折减α3 = 0.8四、计算过程:1. 楼梯几何参数:踏步高度:h = 0.1680 m踏步宽度:b = 0.2700 m计算跨度: = +(+)/2 = 3.24+(0.25+0.25)/2 = 3.49 m梯段板与水平方向夹角余弦值:cosα = 0.8492. 荷载计算( 取 B = 1m 宽板带):(1) 梯段板:面层:k = (B+B*h/b)* = (1+1*0.17/0.27)*1.50 = 2.43 kN/m 自重:k = *B*(t/cosα+h/2) = 25*1*(0.13/0.849+0.17/2) = 5.93 kN/m抹灰:k = *B*c/cosα = 20*1*0.02/0.849 = 0.47 k N/m恒荷标准值:= k+k+k+= 2.43+5.93+0.47+0.20 = 9.03 kN/m恒荷控制:(G) = 1.35*+*0.7*B*q = 1.35*9.03+1.40*0.7*1*3.50 = 15.62 kN/m活荷控制:(L) = *+*B*q = 1.20*9.03+1.40*1*3.50 = 15.74 kN/m荷载设计值: = max{ (G) , (L) } = 15.74 kN/m3. 正截面受弯承载力计算:左端支座反力: = 27.46 kN右端支座反力: = 27.46 kN最大弯矩截面距左支座的距离: ma = 1.75 m最大弯矩截面距左边弯折处的距离: x = 1.75 mma = *ma-*/2= 27.46*1.75-15.74*1.7/2= 23.96 kN·m考虑支座嵌固折减后的最大弯矩:ma' = *ma = 0.80*23.96 = 19.17 kN·m相对受压区高度:ζ= 0.130048 配筋率:ρ= 0.005166纵筋(1号)计算面积: = 542.41 m支座负筋(2、3号)计算面积:'= = 542.41 m五、计算结果:(为每米宽板带的配筋)1.1号钢筋计算结果(跨中)计算面积:542.41 m采用方案: 10@100实配面积: 785 m2.2号钢筋计算结果(支座)计算面积':542.41 m采用方案: 10@100实配面积: 785 m3.3号钢筋计算结果采用方案: 6@200实配面积: 141 m六、跨中挠度计算:Mk -------- 按荷载效应的标准组合计算的弯矩值Mq -------- 按荷载效应的准永久组合计算的弯矩值1.计算标准组合弯距值Mk:Mk = *)= * +)/8= 0.80*(9.03 + 3.500)*3.4/8= 15.264 kN*m2.计算永久组合弯距值Mq:Mq = *)= * + )/8= 0.80*(9.03 + 0.50*3.500)*3.4/8= 13.133 kN*m3.计算受弯构件的短期刚度1) 计算按荷载荷载效应的两种组合作用下,构件纵向受拉钢筋应力= Mk/(0.87**As) 混规(7.1.4-3)= 15.264*1/(0.87*105*785)= 212.755 N/mm= Mq/(0.87**As) 混规(7.1.4-3)= 13.133*1/(0.87*105*785)= 183.046 N/mm2) 计算按有效受拉混凝土截面面积计算的纵向受拉钢筋配筋率矩形截面积: = 0.5*b*h = 0.5*1000*130= 65000 m= As 混规(7.1.2-5)= 785/65000= 1.208%3) 计算裂缝间纵向受拉钢筋应变不均匀系数ψψk = 1.1-0.65/) 混规(7.1.2-2)= 1.1-0.65*2.01/(1.208%*212.755)= 0.592ψq = 1.1-0.65/) 混规(7.1.2-2)= 1.1-0.65*2.01/(1.208%*183.046)= 0.5094) 计算钢筋弹性模量与混凝土模量的比值αE = /= 2.00*1/(3.00*1)= 6.6675) 计算受压翼缘面积与腹板有效面积的比值矩形截面, = 06) 计算纵向受拉钢筋配筋率ρρ = As/(b*)= 785/(1000*105)= 0.748%7) 计算受弯构件的短期刚度s = *As/[1.15*+0.2+6*αE*ρ/(1+ 3.5*)] 混规(7.2.3-1) = 2.00*1*785*10/[1.15*0.592+0.2+6*6.667*0.748%/(1+3.5*0.0)]= 14.679*1 kN*s = *As/[1.15*+0.2+6*αE*ρ/(1+ 3.5*)] 混规(7.2.3-1) = 2.00*1*785*10/[1.15*0.509+0.2+6*6.667*0.748%/(1+3.5*0.0)]= 15.963*1 kN*4.计算受弯构件的长期刚度B1) 确定考虑荷载长期效应组合对挠度影响增大影响系数θ当ρ`=0时,θ=2.0 混规(7.2.5)2) 计算受弯构件的长期刚度 BBk = Mk/(Mq*(θ-1)+Mk)*s混规(7.2.2-1)= 15.264/(13.133*(2.0-1)+15.264)*14.679*1= 7.891*1 kN*Bq = s/θ混规(7.2.2-2)= 15.963/2.000*1= 7.981*1 kN*B = min(Bk,Bq)= min(7.891,7.981= 7.891*1 kN*5.计算受弯构件挠度max = 5**+)/(384*Bk)= 5*0.80*(9.03+0.5*3.500)*3.4/(384*7.891*1)= 17.181 mm6.验算挠度挠度限值=/200=3.49/200=17.450 mmma=17.181mm≤=17.450mm,满足规范要求!1.计算准永久组合弯距值Mq:Mq = *+)= * + )/8= 0.80*(9.03 + 0.50*3.500)*3.4/8= 13.133 kN*m2.光面钢筋,所以取值=0.73.C = 204.计算按荷载荷载效应的准永久组合作用下,构件纵向受拉钢筋应力s = Mq/(0.87**As) 混规(7.1.4-3)= 13.133*1/(0.87*105.00*785)= 183.046 N/mm5.计算按有效受拉混凝土截面面积计算的纵向受拉钢筋配筋率矩形截面积: = 0.5*b*h = 0.5*1000*130= 65000 m= As 混规(7.1.2-5)= 785/65000= 1.208%6.计算裂缝间纵向受拉钢筋应变不均匀系数ψψ = 1.1-0.65/) 混规(7.1.2-2)= 1.1-0.65*2.01/(1.208%*183.046)= 0.5097.计算单位面积钢筋根数nn = 1000/s= 1000/100= 108.计算受拉区纵向钢筋的等效直径ee= (∑)/(∑**)= 10*1/(10*0.7*10)= 14ma =c*ψ*s/*(1.9*C+0.08*e/t) 混规(7.1.2-1)= 1.9*0.509*183.046/2.0*1*(1.9*20+0.08*14/1.208%) = 0.1157 mm≤ 0.30 mm,满足规范要求。
板式楼梯计算书项目名称_____________日期_____________设计者_____________校对者_____________一、构件编号:BT-2二、示意图:三、基本资料:1.依据规范:《建筑结构荷载规范》(GB 50009-2012)《混凝土结构设计规范》(GB 50010-2010)2.几何参数:楼梯净跨: L1 = 2080 mm 楼梯高度: H = 1450 mm梯板厚: t = 100 mm 踏步数: n = 9(阶)上平台楼梯梁宽度: b1 = 200 mm下平台楼梯梁宽度: b2 = 200 mm下平台宽: L2 = 100 mm3.荷载标准值:可变荷载:q = 2.50kN/m2面层荷载:q m = 1.70kN/m2栏杆荷载:q f = 0.20kN/m永久荷载分项系数: γG = 1.20 可变荷载分项系数: γQ = 1.40准永久值系数: ψq = 0.504.材料信息:混凝土强度等级: C30 f c = 14.30 N/mm2f t = 1.43 N/mm2R c=25.0 kN/m3f tk = 2.01 N/mm2E c = 3.00*104 N/mm2钢筋强度等级: HRB400 f y = 360 N/mm2E s = 2.00*105 N/mm2保护层厚度:c = 20.0 mm R s=20 kN/m3受拉区纵向钢筋类别:带肋钢筋梯段板纵筋合力点至近边距离:a s = 25.00 mm考虑支座嵌固作用求配筋时弯矩折减α1 = 0.8求裂缝时弯矩折减α2 = 0.8求挠度时弯矩折减α3 = 0.8四、计算过程:1. 楼梯几何参数:踏步高度:h = 0.1611 m踏步宽度:b = 0.2600 m计算跨度:L0 = L1+L2+(b1+b2)/2 = 2.08+0.10+(0.20+0.20)/2 = 2.38 m梯段板与水平方向夹角余弦值:cosα = 0.8502. 荷载计算( 取 B = 1m 宽板带):(1) 梯段板:面层:g km = (B+B*h/b)*q m = (1+1*0.16/0.26)*1.70 = 2.75 kN/m自重:g kt = R c*B*(t/cosα+h/2) = 25*1*(0.10/0.850+0.16/2) = 4.95 kN/m抹灰:g ks = R S*B*c/cosα = 20*1*0.02/0.850 = 0.47 kN/m恒荷标准值:P k = g km+g kt+g ks+q f = 2.75+4.95+0.47+0.20 = 8.38 kN/m恒荷控制:P n(G) = 1.35*P k+γQ*0.7*B*q = 1.35*8.38+1.40*0.7*1*2.50 = 13.76 kN/m活荷控制:P n(L) = γG*P k+γQ*B*q = 1.20*8.38+1.40*1*2.50 = 13.55 kN/m荷载设计值:P n = max{ P n(G) , P n(L) } = 13.76 kN/m(2) 平台板:面层:g km' = B*q m = 1*1.70 = 1.70 kN/m自重:g kt' = R c*B*t = 25*1*0.10 = 2.50 kN/m抹灰:g ks' = R S*B*c = 20*1*0.02 = 0.40 kN/m恒荷标准值:P k' = g km'+g kt'+g ks'+q f = 1.70+2.50+0.40+0.20 = 4.80 kN/m 恒荷控制:P l(G) = 1.35*P k'+γQ*0.7*B*q = 1.35*4.80+1.40*0.7*1*2.50 = 8.93 kN/m活荷控制:P l(L) = γG*P k+γQ*B*q = 1.20*4.80+1.40*1*2.50 = 9.26 kN/m荷载设计值:P l = max{ P l(G) , P l(L) } = 9.26 kN/m3. 正截面受弯承载力计算:左端支座反力: R l = 16.34 kN右端支座反力: R r = 15.51 kN最大弯矩截面距左支座的距离: L max = 1.19 m最大弯矩截面距左边弯折处的距离: x = 1.19 mM max = R l*L max-P n*x2/2= 16.34*1.19-13.76*1.192/2= 9.70 kN·m考虑支座嵌固折减后的最大弯矩:M max' = α1*M max = 0.80*9.70 = 7.76 kN·m相对受压区高度:ζ= 0.101626 配筋率:ρ= 0.004037纵筋(1号)计算面积:A s = 302.76 mm2支座负筋(2、3号)计算面积:A s'=A s = 302.76 mm2五、计算结果:(为每米宽板带的配筋)1.1号钢筋计算结果(跨中)计算面积A s:302.76 mm2采用方案: 10@180实配面积: 436 mm22.2号钢筋计算结果(支座)计算面积A s':302.76 mm2采用方案: 10@180实配面积: 436 mm23.3号钢筋计算结果采用方案: 6@200实配面积: 141 mm24.4号钢筋计算结果采用方案: 10@180实配面积: 436 mm2六、跨中挠度计算:Mk -------- 按荷载效应的标准组合计算的弯矩值Mq -------- 按荷载效应的准永久组合计算的弯矩值1.计算标准组合弯距值Mk:Mk = α3*(M gk+M qk)= α3*(q gk + q qk)*L02/8= 0.80*(8.38 + 2.500)*2.382/8= 6.162 kN*m2.计算永久组合弯距值Mq:Mq = α3*(M gk+M qk)= α3*(q gk + ψq*q qk)*L02/8= 0.80*(8.38 + 0.50*2.500)*2.382/8= 5.454 kN*m3.计算受弯构件的短期刚度 B sk1) 计算按荷载荷载效应的两种组合作用下,构件纵向受拉钢筋应力σsk = Mk/(0.87*h0*As) 混规(7.1.4-3)= 6.162*106/(0.87*75*436)= 216.443 N/mmσsq = Mq/(0.87*h0*As) 混规(7.1.4-3)= 5.454*106/(0.87*75*436)= 191.573 N/mm2) 计算按有效受拉混凝土截面面积计算的纵向受拉钢筋配筋率矩形截面积: A te = 0.5*b*h = 0.5*1000*100= 50000 mm2ρte = As/A te混规(7.1.2-5)= 436/50000= 0.873%3) 计算裂缝间纵向受拉钢筋应变不均匀系数ψψk = 1.1-0.65*f tk/(ρte*σsk) 混规(7.1.2-2)= 1.1-0.65*2.01/(0.873%*216.443)= 0.408ψq = 1.1-0.65*f tk/(ρte*σsq) 混规(7.1.2-2)= 1.1-0.65*2.01/(0.873%*191.573)= 0.3194) 计算钢筋弹性模量与混凝土模量的比值αEαE = E S/E C= 2.00*105/(3.00*104)= 6.6675) 计算受压翼缘面积与腹板有效面积的比值γf矩形截面,γf = 06) 计算纵向受拉钢筋配筋率ρρ = As/(b*h0)= 436/(1000*75)= 0.582%7) 计算受弯构件的短期刚度 B SB sk = E s*As*h02/[1.15*ψk+0.2+6*αE*ρ/(1+ 3.5*γf)] 混规(7.2.3-1)= 2.00*105*436*752/[1.15*0.408+0.2+6*6.667*0.582%/(1+3.5*0.0)]= 5.441*102 kN*m2B sq = E s*As*h02/[1.15*ψq+0.2+6*αE*ρ/(1+ 3.5*γf)] 混规(7.2.3-1)= 2.00*105*436*752/[1.15*0.319+0.2+6*6.667*0.582%/(1+3.5*0.0)]= 6.144*102 kN*m24.计算受弯构件的长期刚度B1) 确定考虑荷载长期效应组合对挠度影响增大影响系数θ当ρ`=0时,θ=2.0 混规(7.2.5)2) 计算受弯构件的长期刚度 BBk = Mk/(Mq*(θ-1)+Mk)*B sk混规(7.2.2-1)= 6.162/(5.454*(2.0-1)+6.162)*5.441*102= 2.886*102 kN*m2Bq = B sq/θ混规(7.2.2-2)= 6.144/2.000*102= 3.072*102 kN*m2B = min(Bk,Bq)= min(2.886,3.072= 2.886*102 kN*m25.计算受弯构件挠度f maxk = 5*α3*(q gk+Ψq*q qk)*L04/(384*Bk)= 5*0.80*(8.38+0.5*2.500)*2.384/(384*2.886*102)= 10.079 mm6.验算挠度挠度限值f0=L0/200=2.38/200=11.900 mmf max=10.079mm≤f0=11.900mm,满足规范要求!七、裂缝宽度验算:1.计算准永久组合弯距值Mq:Mq = α2*(M gk+ψM qk)= α2*(q gk + ψq qk)*L02/8= 0.80*(8.38 + 0.50*2.500)*2.382/8= 5.454 kN*m2.带肋钢筋,所以取值V i=1.03.C = 204.计算按荷载荷载效应的准永久组合作用下,构件纵向受拉钢筋应力σsq = Mq/(0.87*h0*As) 混规(7.1.4-3)= 5.454*106/(0.87*75.00*436)= 191.573 N/mm5.计算按有效受拉混凝土截面面积计算的纵向受拉钢筋配筋率矩形截面积: A te = 0.5*b*h = 0.5*1000*100= 50000 mm2ρte = As/A te混规(7.1.2-5)= 436/50000= 0.873%因为ρte < 1.000%,所以取ρte = 1.000%6.计算裂缝间纵向受拉钢筋应变不均匀系数ψψ = 1.1-0.65*f tk/(ρte*σsq) 混规(7.1.2-2)= 1.1-0.65*2.01/(1.000%*191.573)= 0.4187.计算单位面积钢筋根数nn = 1000/s= 1000/180= 58.计算受拉区纵向钢筋的等效直径d eqd eq= (∑n i*d i2)/(∑n i*V i*d i)= 5*102/(5*1.0*10)= 109.计算最大裂缝宽度ωmax =αcr*ψ*σsq/E S*(1.9*C+0.08*d eq/ρte) 混规(7.1.2-1) = 1.9*0.418*191.573/2.0*105*(1.9*20+0.08*10/1.000%) = 0.0898 mm≤ 0.30 mm,满足规范要求。
板式楼梯计算书项目名称_____________日期_____________设计者_____________校对者_____________一、构件编号:LT-1二、示意图:三、基本资料:1.依据规范:《建筑结构荷载规范》(GB 50009-2001)《混凝土结构设计规范》(GB 50010-2002)2.几何参数:楼梯净跨: L1 = 2860 mm 楼梯高度: H = 1950 mm梯板厚: t = 180 mm 踏步数: n = 12(阶)上平台楼梯梁宽度: b1 = 200 mm下平台楼梯梁宽度: b2 = 260 mm上平台宽: L3 = 1000 mm3.荷载标准值:可变荷载:q = 3.50kN/m2面层荷载:q m = 1.00kN/m2栏杆荷载:q f = 0.20kN/m永久荷载分项系数: γG = 1.20 可变荷载分项系数: γQ = 1.40准永久值系数: ψq = 0.504.材料信息:混凝土强度等级: C30 f c = 14.30 N/mm2f t = 1.43 N/mm2R c=25.0 kN/m3f tk = 2.01 N/mm2E c= 3.00×104 N/mm2钢筋强度等级: HRB400 f y = 360 N/mm2E s= 2.00×105 N/mm2保护层厚度:c = 20.0 mm R s=20 kN/m3受拉区纵向钢筋类别:光面钢筋梯段板纵筋合力点至近边距离:a s = 25.00 mm支座负筋系数:α = 0.25四、计算过程:1. 楼梯几何参数:踏步高度:h = 0.1625 m踏步宽度:b = 0.2600 m计算跨度:L0 = L1+L3+(b1+b2)/2 = 2.86+1.00+(0.20+0.26)/2 = 4.09 m梯段板与水平方向夹角余弦值:cosα = 0.8482. 荷载计算( 取 B = 1m 宽板带):(1) 梯段板:面层:g km = (B+B*h/b)*q m = (1+1*0.16/0.26)*1.00 = 1.63 kN/m自重:g kt = R c*B*(t/cosα+h/2) = 25*1*(0.18/0.848+0.16/2) = 7.34 kN/m抹灰:g ks = R S*B*c/cosα = 20*1*0.02/0.848 = 0.47 kN/m恒荷标准值:P k = g km+g kt+g ks+q f = 1.63+7.34+0.47+0.20 = 9.63 kN/m恒荷控制:P n(G) = 1.35*P k+γQ*0.7*B*q = 1.35*9.63+1.40*0.7*1*3.50 = 16.44 kN/m活荷控制:P n(L) = γG*P k+γQ*B*q = 1.20*9.63+1.40*1*3.50 = 16.46 kN/m荷载设计值:P n = max{ P n(G) , P n(L) } = 16.46 kN/m(2) 平台板:面层:g km' = B*q m = 1*1.00 = 1.00 kN/m自重:g kt' = R c*B*t = 25*1*0.18 = 4.50 kN/m抹灰:g ks' = R S*B*c = 20*1*0.02 = 0.40 kN/m恒荷标准值:P k' = g km'+g kt'+g ks'+q f = 1.00+4.50+0.40+0.20 = 6.10 kN/m 恒荷控制:P l(G) = 1.35*P k'+γQ*0.7*B*q = 1.35*6.10+1.40*0.7*1*3.50 = 11.67 kN/m活荷控制:P l(L) = γG*P k+γQ*B*q = 1.20*6.10+1.40*1*3.50 = 12.22 kN/m荷载设计值:P l = max{ P l(G) , P l(L) } = 12.22 kN/m3. 正截面受弯承载力计算:左端支座反力: R l = 29.63 kN右端支座反力: R r = 33.04 kN最大弯矩截面距左支座的距离: L max = 2.08 m最大弯矩截面距左边弯折处的距离: x = 0.98 mM max = R l*L max-[P l*L3*(x+L3/2)+P n*x2/2]= 29.63*2.08-[12.22*1.10*(0.98+1.10/2)+16.46*0.982/2]= 33.15 kN·m相对受压区高度:ζ= 0.101658 配筋率:ρ= 0.004038纵筋(1号)计算面积:A s = 625.90 mm2支座负筋(2、3号)计算面积:A s'=α*A s = 0.25*625.90 = 156.48 mm2五、计算结果:(为每米宽板带的配筋)1.1号钢筋计算结果(跨中)计算面积A s:625.90 mm2采用方案:f10@100实配面积: 785 mm22.2/3号钢筋计算结果(支座)计算面积A s':156.48 mm2采用方案:f12@200实配面积: 565 mm23.4号钢筋计算结果采用方案:d6@200实配面积: 141 mm24.5号钢筋计算结果采用方案:f10@100实配面积: 785 mm2六、跨中挠度计算:Mk -------- 按荷载效应的标准组合计算的弯矩值Mq -------- 按荷载效应的准永久组合计算的弯矩值1.计算标准组合弯距值Mk:Mk = M gk+M qk= (q gk + q qk)*L02/8= (9.63 + 3.500)*4.092/8= 27.465 kN*m2.计算永久组合弯距值Mq:Mq = M gk+M qk= (q gk + ψq*q qk)*L02/8= (9.63 + 0.50*3.500)*4.092/8= 23.805 kN*m3.计算受弯构件的短期刚度 B s1) 计算按荷载荷载效应的标准组合作用下,构件纵向受拉钢筋应力σsk = Mk/(0.87*h0*As) (混凝土规范式 8.1.3-3)= 27.465×106/(0.87*155*785)= 259.317 N/mm2) 计算按有效受拉混凝土截面面积计算的纵向受拉钢筋配筋率矩形截面积: A te = 0.5*b*h = 0.5*1000*180= 90000 mm2ρte = As/A te (混凝土规范式 8.1.2-4)= 785/90000= 0.873%3) 计算裂缝间纵向受拉钢筋应变不均匀系数ψψ = 1.1-0.65*f tk/(ρte*σsk) (混凝土规范式 8.1.2-2) = 1.1-0.65*2.01/(0.873%*259.317)= 0.5234) 计算钢筋弹性模量与混凝土模量的比值αEαE = E S/E C= 2.00×105/(3.00×104)= 6.6675) 计算受压翼缘面积与腹板有效面积的比值γf矩形截面,γf = 06) 计算纵向受拉钢筋配筋率ρρ = As/(b*h0)= 785/(1000*155)= 0.507%7) 计算受弯构件的短期刚度 B SB S = E S*As*h02/[1.15*ψ+0.2+6*αE*ρ/(1+ 3.5*γf)](混凝土规范式8.2.3--1)= 2.00×105*785*1552/[1.15*0.523+0.2+6*6.667*0.507%/(1+3.5*0.0)]= 37.598×102 kN*m24.计算受弯构件的长期刚度B1) 确定考虑荷载长期效应组合对挠度影响增大影响系数θ当ρ`=0时,θ=2.0 (混凝土规范第 8.2.5 条)2) 计算受弯构件的长期刚度 BB = Mk/(Mq*(θ-1)+Mk)*B S (混凝土规范式 8.2.2)= 27.465/(23.805*(2.0-1)+27.465)*37.598×102= 20.141×102 kN*m25.计算受弯构件挠度f max = 5*(q gk+q qk)*L04/(384*B)= 5*(9.63+3.500)*4.094/(384*20.141×102)= 23.762 mm6.验算挠度挠度限值f0=L0/200=4.09/200=20.450 mmf max=23.762mm>f0=20.450mm,不满足规范要求!七、裂缝宽度验算:1.计算标准组合弯距值Mk:Mk = M gk+M qk= (q gk + q qk)*L02/8= (9.63 + 3.500)*4.092/8= 27.465 kN*m2.光面钢筋,所以取值V i=0.73.C = 204.计算按荷载荷载效应的标准组合作用下,构件纵向受拉钢筋应力σsk = Mk/(0.87*h0*As) (混凝土规范式 8.1.3-3)= 27.465×106/(0.87*155.00*785)= 259.317 N/mm5.计算按有效受拉混凝土截面面积计算的纵向受拉钢筋配筋率矩形截面积: A te = 0.5*b*h = 0.5*1000*180= 90000 mm2ρte = As/A te (混凝土规范式 8.1.2-4)= 785/90000= 0.873%因为ρte < 1.000%,所以取ρte = 1.000%6.计算裂缝间纵向受拉钢筋应变不均匀系数ψψ = 1.1-0.65*f tk/(ρte*σsk) (混凝土规范式 8.1.2-2)= 1.1-0.65*2.01/(1.000%*259.317)= 0.5967.计算单位面积钢筋根数nn = 1000/s= 1000/100= 108.计算受拉区纵向钢筋的等效直径d eqd eq= (∑n i*d i2)/(∑n i*V i*d i)= 10*102/(10*0.7*10)= 149.计算最大裂缝宽度ωmax =αcr*ψ*σsk/E S*(1.9*C+0.08*d eq/ρte) (混凝土规范式 8.1.2-1) = 2.1*0.596*259.317/3.6×105*(1.9*20+0.08*14/1.000%) = 0.2435 mm≤ 0.30 mm,满足规范要求。
板式楼梯手算计算书(2013年版规范)解:1)斜板TB1设计除底层第一跑楼梯的斜板外,其余斜板均相同,而第一跑楼梯斜板的下端为混凝土基础,可按净跨计算。
这里只对标准段斜板TB1进行设计。
对斜板TB1取1m 宽作为其计算单元。
(1)确定斜板厚度t斜板的水平投影净长为l 1n =3300mm 斜板的斜向净长为11223691cos 300/150300n n l l mm α===+ 斜板厚度为t 1=(1/25~1/30)l 1n =(1/25~1/30)×3300=110~120mm,取t 1=120mm 。
(根据“混凝土结构构造手册(第四版)”384页)(2)荷载计算,楼梯斜板荷载计算见表2.3。
表2.3楼梯斜板荷载计算荷载种类 荷载标准值(KN/m )荷载分项系数荷载设计值(KN/m)恒 荷 载栏杆自重0.51.20.6三角形踏板自重1(0.150.3)1225[0.30.1211] 5.230.894⨯⨯⨯⨯⨯⨯+=1.2 6.2830厚水磨石面层 0.65(0.150.3)/0.30.98⨯+= 1.2 1.18 板底20厚水泥砂浆粉刷 0.02200.450.894⨯= 1.2 0.54 小计g 7.16 1.2 8.60 活荷载q3.51.44.9总 计p 9.66 13.50水磨石面层的容重为0.65KN/m ²(GB50009-2012,附录A-15,84页);纸筋灰容重16KN/m ³(GB50009-2012,附录A-6,75页,实际工程中已被水泥砂浆代替)以上计算的荷载设计值是由可变荷载控制的组合,计算由永久荷载控制的组合 1.357.160.98 3.513.10/p KN m =⨯+⨯=,综合取p=13.50KN/m(3)计算简图如前所述,斜板的计算简图可用一根假想的跨度为l 1n 的水平梁替代,如图2.9所示。
其计算跨度取斜板水平投影净长l 1n =3300mm 。
板式楼梯计算书摘要:一、板式楼梯简介1.定义与结构2.应用场景二、板式楼梯计算方法1.计算公式2.参数说明3.计算步骤三、板式楼梯设计原则1.符合安全规范2.考虑舒适性3.满足建筑美学要求四、板式楼梯施工与维护1.施工注意事项2.维护保养方法正文:【一、板式楼梯简介】板式楼梯是一种常见的楼梯类型,由多个水平踏板和垂直支撑结构组成。
这种楼梯结构简单、施工方便,广泛应用于各种民用和商业建筑中。
板式楼梯不仅满足人们在空间中上下移动的需求,还具有很好的装饰效果,为建筑增添美感。
【二、板式楼梯计算方法】1.计算公式板式楼梯的计算主要包括水平踏板长度、踏步数和楼梯高度等方面。
计算公式如下:水平踏板长度= 楼层高度/ 踏步数楼梯总高度= 楼层高度+ 踏步高度× 踏步数2.参数说明在进行计算时,需要明确以下参数:- 楼层高度:楼梯所连接的两层之间的垂直距离。
- 踏步数:楼梯的层数,即需要多少个踏步才能到达目标楼层。
- 踏步高度:每个踏步的垂直高度。
3.计算步骤(1)确定楼层高度、踏步数和踏步高度。
(2)根据公式计算水平踏板长度和楼梯总高度。
(3)检查计算结果是否符合实际情况,如有需要,调整参数并进行重新计算。
【三、板式楼梯设计原则】1.符合安全规范在设计板式楼梯时,应严格遵循我国相关安全规范,确保楼梯在使用过程中的稳定性和安全性。
此外,还要考虑楼梯的承重能力,避免超载使用。
2.考虑舒适性楼梯的踏步高度和宽度应满足人体工程学要求,使人们在上下楼梯过程中感觉舒适。
同时,楼梯的扶手设计也要便于人们握持和倚靠。
3.满足建筑美学要求板式楼梯作为建筑的一部分,其造型和色彩应与整体建筑风格相协调。
在保证实用性的前提下,可以运用创意和设计元素,使楼梯成为建筑的亮点。
【四、板式楼梯施工与维护】1.施工注意事项(1)在施工前,应对楼梯所在空间的尺寸进行精确测量,确保楼梯设计方案的准确性。
(2)楼梯的支撑结构要稳固,保证楼梯在使用过程中的安全性。
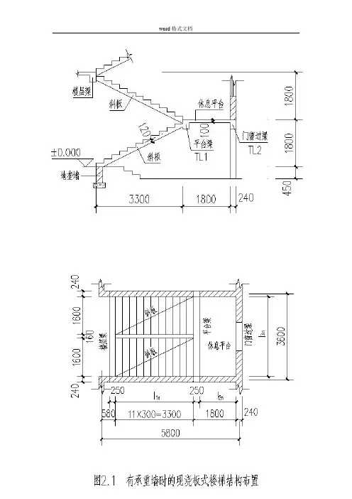
【例题 2.1《楼梯、阳台和雨篷设计》37页,PDF 版47页】 图2.1为某实验楼楼梯的平面图和剖面图。
采用现浇板式楼梯,混凝土强度等级为C25,2211.9/, 1.27/c t f N mm f N mm ==钢筋直径d ≥12mm 时采用HRB400级钢筋,2360/y f N mm =;d ≤10mm 时采用HPB300级钢筋,2270/y f N mm =,楼梯活荷载为3.5KN/m ²。
楼梯的结构布置如图 2.8所示。
斜板两端与平台梁和楼梯梁整结,平台板一端与平台梁整结,平台板一端与平台梁整结,另一端则与窗过梁整结,平台梁两端都搁置在楼梯间的侧墙上。
试对此现浇板式楼梯进行结构设计。
解:1)斜板TB1设计除底层第一跑楼梯的斜板外,其余斜板均相同,而第一跑楼梯斜板的下端为混凝土基础,可按净跨计算。
这里只对标准段斜板TB1进行设计。
对斜板TB1取1m 宽作为其计算单元。
(1)确定斜板厚度t斜板的水平投影净长为l 1n =3300mm斜板的斜向净长为113691cos n n l l mm α=== 斜板厚度为t 1=(1/25~1/30)l 1n =(1/25~1/30)×3300=110~120mm,取t 1=120mm 。
(根据“混凝土结构构造手册(第四版)”384页)(2)荷载计算,楼梯斜板荷载计算见表2.3。
表2.3楼梯斜板荷载计算水磨石面层的容重为0.65KN/m ²(GB50009-2012,附录A-15,84页);纸筋灰容重16KN/m ³(GB50009-2012,附录A-6,75页,实际工程中已被水泥砂浆代替)以上计算的荷载设计值是由可变荷载控制的组合,计算由永久荷载控制的组合 1.357.160.98 3.513.10/p KN m =⨯+⨯=,综合取p=13.50KN/m(3)计算简图如前所述,斜板的计算简图可用一根假想的跨度为l 1n 的水平梁替代,如图2.9所示。
一跑板式楼梯{3.4号别墅楼梯}[]已知:层高3.0m ;踏步尺寸175*250;平台板无;踏步板900*4000;踏步板与水平面的夹角35度,则cosa=0.819;计算长度Ln=4.0m ;取板厚为160mm 。
1) 楼梯荷载恒荷载:楼梯面荷载按2.1KN/m 2计算,同楼面板做法。
楼梯段:面层2.1*1*(0.25+0.175)/0.25=3.57KN/m踏步27*0.175*0.25/2*1/0.25=2.16 KN/m斜板砼27*0.160/0.819=5.27 KN/m合计:3.57+2.16+5.27=11 KN/m活荷载:2.0 KN/m 2楼梯板段荷载设计值:1.2*11+1.4*2.0=16 KN/m1.35*11+0.7*1.4*2.0=16.8 KN/m取16.8 KN/m2) 楼梯内力计算查表得跨中最大弯矩值:M= 2/8ql = 16.8x42/8=33.6 KN*m3) 配筋验算选用C25砼,二级钢筋;f c =11.9 N/mm 2 ;f y =300 N/mm 2 截面配筋验算:计算高度h 0=160-20=140mm0(s c y A h f b f =(14011.91000=⨯⨯ =868mm 2选用12 @120 满足要求。
一跑板式楼梯{商业楼梯}[]已知:层高 3.0m ;踏步尺寸165*280;平台板1100m*1100m ;踏步板1100*4200;踏步板与水平面的夹角31度,则cosa=0.857;计算长度Ln=5.4m ;取板厚为220mm 。
4) 楼梯荷载恒荷载:楼梯面荷载按2.1KN/m 2计算,同楼面板做法。
楼梯段:面层2.1*1*(0.28+0.165)/0.28=3.14KN/m踏步27*0.165*0.28/2*1/0.28=2.23 KN/m斜板砼27*0.220/0.857=6.93 KN/m合计:3.14+2.23+6.93=12.3 KN/m活荷载:2.0 KN/m 2楼梯板段荷载设计值:1.2*12.3+1.4*2.0=17.6 KN/m1.35*12.3+0.7*1.4*2.0=18.6KN/m取18.6 KN/m5) 楼梯内力计算查表得跨中最大弯矩值:M= 2/8ql = 18.6x5.42/8=67.8 KN*m6) 配筋验算选用C30砼,二级钢筋;f c =14.3N/mm 2 ;f y =300 N/mm 2 截面配筋验算:计算高度h 0=220-20=200mm0(s c y A h f b f =(20014.31000300=⨯⨯=1206mm2选用14 @120 满足要求。
1板式楼梯: TB-11.1基本资料1.1.1工程名称:工程一1.1.2楼梯类型:板式 C 型(╱ ̄),支座条件:低端固定高端铰支1.1.3踏步段水平净长 L sn= 4420mm,高端平板净长 L hn= 1280mm,梯板净跨度 L n= L sn + L hn= 4420+1280 = 5700mm,梯板净宽度 B =1200mm1.1.4低端支座宽度 d l= 200mm,高端支座宽度 d h= 200mm计算跨度 L0= Min{L n + (d l + d h) / 2, 1.05L n} = Min{5900, 5985} =5900mm1.1.5梯板厚度 h1= 150mm1.1.6踏步段总高度 H s= 3000mm,楼梯踏步级数 n = 181.1.7线性恒荷标准值 P k= 1kN/m;均布活荷标准值 q k= 3.5kN/m2,ψc=0.7,ψq= 0.41.1.8面层厚度 c1= 30mm,面层容重γc2= 25kN/m3;顶棚厚度 c2= 20mm,顶棚容重γc2= 25kN/m3;楼梯自重容重γb= 25kN/m31.1.9混凝土强度等级为 C30, f c= 14.331N/mm2, f t= 1.433N/mm2, f tk=2.006N/mm2,E c= 29791N/mm21.1.10钢筋抗拉强度设计值 f y= 270N/mm2, E s= 210000N/mm2;当纵筋直径不小于 12mm 时,取 f y= 360N/mm2、E s= 200000N/mm2;纵筋的混凝土保护层厚度 c = 20mm1.2楼梯几何参数1.2.1踏步高度 h s= H s / n = 3000/18 = 166.7mm踏步宽度 b s= L sn / (n - 1) = 4420/(18-1) = 260mm踏步段斜板的倾角α = ArcTan(h s / b s) = ArcTan(166.7/260) = 32.7°踏步段斜板的长度 L x= L sn / Cosα = 4420/Cos32.7°= 5250mm1.2.2踏步段梯板厚的垂直高度 h1' = h1 / Cosα = 150/Cos32.7°=178.2mm踏步段梯板平均厚度 T = (h s+ 2h1') / 2 = (166.7+2*178.2)/2 = 261.5mm 1.2.3梯板有效高度 h10= h1 - a s= 150-25 = 125mm1.3均布永久荷载标准值1.3.1梯板上的线载换算为均布恒荷 g k1= P k / B = 1/1.2 = 0.83kN/m21.3.2踏步段梯板自重 g k2' =γb·T = 25*0.2615 = 6.54kN/m2g k2= g k2'·L sn / L n= 6.54*4.42/5.7 = 5.07kN/m21.3.3高端平板自重 g k3' =γb·h1= 25*0.15 = 3.75kN/m2g k3= g k3'·L hn / L n= 3.75*1.28/5.7 = 0.84kN/m21.3.4踏步段梯板面层自重g k4' =γc1·c1·(n - 1)(h s + b s) / L sn= 25*0.03*(18-1)*(0.1667+0.26)/4.42= 1.23kN/m2g k4= g k4'·L sn / L n= 1.23*4.42/5.7 = 0.95kN/m21.3.5高端平板面层自重 g k5' =γc1·c1= 25*0.03 = 0.75kN/m2g k5= g k5'·L hn / L n= 0.75*1.28/5.7 = 0.17kN/m21.3.6梯板顶棚自重 g k6' =γc2·c2= 25*0.02 = 0.50kN/m2g k6= g k6'·(L n + L x - L sn) / L n= 0.5*(5.7+5.25-4.42)/5.7 = 0.57kN/m21.3.7均布荷载标准值汇总 g k= g k1 + g k2 + g k3 + g k4 + g k5 + g k6= 8.44kN/m21.4均布荷载的基本组合值由可变荷载控制的 Q(L) =γG·g k+ γQ·q k= 1.2*8.44+1.4*3.5 =15.03kN/m2由永久荷载控制的 Q(D) =γG1·g k+ γQ·ψc· q k= 1.35*8.44+1.4*0.7*3.5= 14.82kN/m2最不利的荷载基本组合值 Q = Max{Q(L), Q(D)} = Max{15.03, 14.82} =15.03kN/m21.5梯板的支座反力低端支座永久荷载作用下均布反力标准值 R k(D) = 30.07kN/m低端支座可变荷载作用下均布反力标准值 R k(L) = 12.47kN/m低端支座最不利的均布反力基本组合值 R = 53.54kN/m高端支座永久荷载作用下均布反力标准值 R k(D) = 18.04kN/m高端支座可变荷载作用下均布反力标准值 R k(L) = 7.48kN/m高端支座最不利的均布反力基本组合值 R = 32.12kN/m1.6梯板斜截面受剪承载力计算V ≤ 0.7·βh·f t·b·h0V = 5/8·Q·L n·Cosα= 0.625*15.03*5.7*Cos32.7°= 45.1kNR = 0.7·βh·f t·b·h0= 0.7*1*1433*1*0.125 = 125.4kN ≥ V = 45.1kN,满足要求。
板式楼梯计算书摘要:一、板式楼梯概述1.定义与特点2.应用场景二、板式楼梯的计算方法1.计算楼梯踏步数量2.计算楼梯水平长度3.计算楼梯高度4.计算楼梯斜率三、板式楼梯设计要点1.符合人体工程学2.安全性能3.材料选择四、板式楼梯施工及验收1.施工流程2.质量验收正文:一、板式楼梯概述板式楼梯是一种常见的楼梯类型,主要由混凝土、钢筋、木板等材料构成。
它具有结构简单、施工方便、外形美观等特点,广泛应用于住宅、商业建筑等场所。
二、板式楼梯的计算方法1.计算楼梯踏步数量:根据楼层高度和每层踏步高度确定,公式为:踏步数量= 楼层高度/ 每层踏步高度。
同时,需要考虑室内净高度,一般不小于2.2 米。
2.计算楼梯水平长度:根据楼层数和每层踏步数确定,公式为:水平长度= 楼层数× 每层踏步数。
3.计算楼梯高度:根据楼层高度和每层踏步高度确定,公式为:楼梯总高度= 楼层高度+ 每层踏步高度× (楼层数- 1)。
4.计算楼梯斜率:楼梯的斜率是指楼梯的上升或下降程度,一般控制在30°-45°之间。
根据楼梯总高度和水平长度计算,公式为:斜率= (楼梯总高度/ 水平长度) × 100%。
三、板式楼梯设计要点1.符合人体工程学:楼梯的踏步高度、宽度以及扶手设计要满足人体舒适度,便于行走和疏散。
2.安全性能:楼梯的设计要充分考虑安全性能,如楼梯扶手的高度、踏步的防滑措施等。
3.材料选择:楼梯材料的选择要考虑耐磨、防滑、防腐、防火等性能,常用的材料有混凝土、钢筋、木板、大理石等。
四、板式楼梯施工及验收1.施工流程:测量放线、开挖基础、浇筑基础混凝土、绑扎钢筋、安装模板、浇筑楼梯混凝土、养护、安装扶手等。
2.质量验收:验收时需检查楼梯结构是否稳定,踏步是否平整、防滑,扶手是否牢固可靠等。
以上就是关于板式楼梯的计算书,希望对您有所帮助。
板式楼梯计算书项目名称_____________日期_____________设计者_____________校对者_____________一、示意图:二、基本资料:1.依据规范:《建筑结构荷载规范》(GB 50009-2001)《混凝土结构设计规范》(GB 50010-2002)2.几何参数:楼梯净跨: L1 = 2700 mm 楼梯高度: H = 1500 mm梯板厚: t = 100 mm 踏步数: n = 10(阶)上平台楼梯梁宽度: b1 = 200 mm2.荷载标准值:可变荷载:q = 2.50kN/m2面层荷载:q m = 1.70kN/m2栏杆荷载:q f = 0.20kN/m3.材料信息:混凝土强度等级: C25 f c = 11.90 N/mm2f t = 1.27 N/mm2R c=25.0 kN/m3钢筋强度等级: HRB400 f y = 360.00 N/mm2抹灰厚度:c = 20.0 mm R s=20 kN/m3梯段板纵筋合力点至近边距离:a s = 20 mm支座负筋系数:α= 0.25三、计算过程:1.楼梯几何参数:踏步高度:h = 0.1500 m踏步宽度:b = 0.3000 m计算跨度:L0 = L1+b1/2-b = 2.70+0.20/2-0.30 = 2.50 m梯段板与水平方向夹角余弦值:cosα= 0.8942.荷载计算( 取B = 1m 宽板带):(1) 梯段板:面层:g km = (B+B·h/b)q m = (1+1×0.15/0.30)×1.70 = 2.55 kN/m自重:g kt = R c·B·(t/cosα+h/2) = 25×1×(0.10/0.89+0.15/2) = 4.67 kN/m抹灰:g ks = R S·B·c/cosα = 20×1×0.02/0.89 = 0.45 kN/m恒荷标准值:P k = g km+g kt+g ks+q f = 2.55+4.67+0.45+0.20 = 7.87 kN/m恒荷控制:P n(G) = 1.35g k+1.4·0.7·B·q = 1.35×7.87+1.4×0.7×1×2.50 = 13.07 kN/m活荷控制:P n(L) = 1.2g k+1.4·B·q = 1.2×7.87+1.4×1×2.50 = 12.94 kN/m荷载设计值:P n = max{ P n(G) , P n(L) } = 13.07 kN/m3.正截面受弯承载力计算:左端支座反力: R l = 16.34 kN右端支座反力: R r = 16.34 kN最大弯矩截面距左支座的距离: L max = 1.25 m最大弯矩截面距左边弯折处的距离: x = 1.25 mM max = R l·L max-P n·x2/2= 16.34×1.25-13.07×1.252/2= 10.21 kN·m相对受压区高度:ζ= 0.144525 配筋率:ρ= 0.004777纵筋(1号)计算面积:A s = 382.19 mm2支座负筋(2、3号)计算面积:A s'=αA s = 0.25×382.19 = 95.55 mm2四、计算结果:(为每米宽板带的配筋)1.1号钢筋计算结果(跨中)计算面积A s: 382.19 mm2采用方案:f10@140实配面积:561.00 mm22.2/3号钢筋计算结果(支座)计算面积A s': 95.55 mm2采用方案:f12@200实配面积:565.49 mm23.4号钢筋计算结果采用方案:d6@250实配面积:113.10 mm2。
板式楼梯计算书BLT-1(工程名称: **写字楼工程..., 结构重要性系数=1.0)==================================================================1 已知条件:几何信息:左标高=0.000m ;右标高=1.800m平台长度(左)=0mm ;平台长度(右)=3000mm平台厚度(左)=120mm ;平台厚度(右)= 120mm平台梁尺寸:内延长(左)= 0mm ;内延长(右)= 0mmB2=200mm ;H2=420mmB3=200mm ;H3=420mmB4=370mm ;H4=300mm梯段长度= 3300mm ;踏步数= 12梯板厚度= 100mm ;梯跨长度L0= 5400mm ,梯井宽: 120mm平面类型:平行双分荷载信息:附加恒荷载= 0.800kN/m2活荷载: 2.000kN/m2恒载分项系数= 1.200 ,活载分项系数: 1.400混凝土等级: C25 ,f c=11.90 N/mm2混凝土容重: 25.00 kN/mm3配筋调整系数: 1.00 ;保护层厚度: c=15mm板纵筋等级: HPB235 ; f y=210 N/mm2梁纵筋等级: HRB335 ;f y=300 N/mm2梁箍筋等级: HPB235 ;f y=210 N/mm2验算信息:挠度限值: L0/200 ;裂缝限值: 0.40mm计算要求:1)楼梯板计算; 2)平台梁计算; 3)板裂缝验算; 4)板挠度验算2 荷载与内力计算:(1)荷载计算标准值(qk):梯斜段: 7.470 kN/m 右平台: 5.800 kN/m设计值(q):梯斜段: 9.364 kN/m 右平台: 7.360 kN/m右平台梁(TL-2): 37.376 kN/m(2)内力计算:a.楼梯板: 矩阵位移法求解。
b.平台梁: 跨中弯矩 Mc=1/8*qL2 ; 支座剪力 Vk=1/2*qL3 计算结果:计算说明:(a)简化方法: 取板沿着宽度方向单位长度的板带(b)计算方法: 矩阵位移法单位说明:弯矩:kN.m/m_剪力:kN/m 挠度:mm纵筋面积:mm2/m_截面尺寸:mm*mm 裂缝:mm板段配筋计算结果:---------------------------------------------------------------------------------- 计算板段-1(斜梯段): 截面B×H = 1000×100截面: 左中右弯矩(M): -0.000 11.604 -7.419剪力(V): 11.431 -3.142 -17.715 截面验算: Vmax=17.71kN < 0.7βhftbh0=71.12kN 截面满足上部计算纵筋(As'): 0.000 0.000 465.505下部计算纵筋(As): 272.143 753.302 0.000 上纵实配: d8@200(251,0.25%) d10@160(491,0.49%)下纵实配: d10@100(785,0.79%) d10@100(785,0.79%) d10@100(785,0.79%)挠度限值: [f]= 19.68mm验算结论:f max=19.51mm <[f]=19.68mm(3936/200 ),满足。
【例题 2.1《楼梯、阳台和雨篷设计》37页,PDF 版47页】 图2.1为某实验楼楼梯的平面图和剖面图。
采用现浇板式楼梯,混凝土强度等级为C25,2211.9/, 1.27/c t f N mm f N mm ==钢筋直径d ≥12mm 时采用HRB400级钢筋,2360/y f N mm =;d ≤10mm 时采用HPB300级钢筋,2270/y f N mm =,楼梯活荷载为3.5KN/m ²。
楼梯的结构布置如图2.8所示。
斜板两端与平台梁和楼梯梁整结,平台板一端与平台梁整结,平台板一端与平台梁整结,另一端则与窗过梁整结,平台梁两端都搁置在楼梯间的侧墙上。
试对此现浇板式楼梯进行结构设计。
解:1)斜板TB1设计除底层第一跑楼梯的斜板外,其余斜板均相同,而第一跑楼梯斜板的下端为混凝土基础,可按净跨计算。
这里只对标准段斜板TB1进行设计。
对斜板TB1取1m 宽作为其计算单元。
(1)确定斜板厚度t斜板的水平投影净长为l 1n =3300mm斜板的斜向净长为113691cos n n l l mm α=== 斜板厚度为t 1=(1/25~1/30)l 1n =(1/25~1/30)×3300=110~120mm,取t 1=120mm 。
(根据“混凝土结构构造手册(第四版)”384页)(2)荷载计算,楼梯斜板荷载计算见表2.3。
表2.3楼梯斜板荷载计算水磨石面层的容重为0.65KN/m ²(GB50009-2012,附录A-15,84页);纸筋灰容重16KN/m ³(GB50009-2012,附录A-6,75页,实际工程中已被水泥砂浆代替)以上计算的荷载设计值是由可变荷载控制的组合,计算由永久荷载控制的组合 1.357.160.98 3.513.10/p KN m =⨯+⨯=,综合取p=13.50KN/m(3)计算简图如前所述,斜板的计算简图可用一根假想的跨度为l 1n 的水平梁替代,如图2.9所示。
其计算跨度取斜板水平投影净长l 1n =3300mm 。
对于底层第一跑楼梯的计算跨度,视下端与基础的结合情况而定。
当下端是搁置在砖砌地垄墙上时,则应从地垄墙中心线起算;当下端与混凝土基础相连时,则可按净跨计算。
(4)内力计算剪力V=1/2×p ×l 1n=0.5×13.50×3.3=22.28KN<0.7f t bh 0=0.7×1.27×1000×100=88.9KN 满足条件(GB50010-2010,6..3.3)斜板的内力,一般只需计算跨中最大弯矩即可。
考虑到斜板两端均与梁整结,对板有约束作用,所以跨中最大弯矩取:22113.50 3.314.70.1010n pl M KN m⨯===(根据“混凝土结构构造手册(第四版)”384页)(5)配筋计算h 0= t 1-20=120-20=100mm(GB50010-2010,表8.2.1,Ⅰ类环境,板的受力筋的保护层厚度为15mm , 20s a mm =,受力筋拟使用HRB400级钢筋)05622001min0.80.80.518360110.00332100.00332214.701010010013.230.51810051.8111.910001.27max 0.2%,0.45max 0.2%,0.450.002360b y sb c t y f E M x h h mm h mmf b f f ξξαρ===++⨯⨯⨯⨯⨯=--=--=<=⨯=⨯⨯⎧⎫⎪⎪⎧⎫===⎨⎬⎨⎬⎩⎭⎪⎪⎩⎭221111.9100013.234370.0021000120240360c s yf bxA mm mm f α⨯⨯⨯===>⨯⨯=,选用:①下部受力筋12@150,As=754mm ²,01.36075422.80.51810051.8111.91000y sb c f A x mm h mm f bξα⨯===<=⨯=⨯⨯不超筋②下部分布筋,As>max{0.15×754,0.15%×120×1000}= max{113.1,180}=180 mm ²(GB50010-2010,9.1.7当按单向板设计时,应在垂直于受力的方向布置分布钢筋,单位宽度上的配筋不宜小于单位宽度上的受力钢筋的15%,且配筋率不宜小于0.15%;分布钢筋直径不宜小于6mm ,间距不宜大于250mm ;当集中荷载较大时,分布钢筋的配筋面积尚应增加,且间距不宜大于200mm 。
当有实践经验或可靠措施时,预制单向板的分布钢筋可不受本条的限制;若按最小配筋率计算As>0.002×120×1000=240mm ²),选用8@200,As=251mm ²。
以后可以不计算分布筋直接按照8@200,见构造手册383页。
③上部支座负筋(GB50010-2010,9.1.6按简支边或非受力边设计的现浇混凝土板,当与混凝土梁、墙整体浇筑或嵌固在砌体墙内时,应设置板面构造钢筋,并符合下列要求:1 钢筋直径不宜小于8mm,间距不宜大于200mm,且单位宽度内的配筋面积不宜小于跨中相应方向板底钢筋截面面积的1/3。
与混凝土梁、混凝土墙整体浇筑单向板的非受力方向,钢筋截面面积尚不宜小于受力方向跨中板底钢筋截面面积的1/3。
2 钢筋从混凝土梁边、柱边、墙边伸入板内的长度不宜小于l0/4,砌体墙支座处钢筋伸入板边的长度不宜小于l0/7,其中计算跨度l0对单向板按受力方向考虑,对双向板按短边方向考虑。
3 在楼板角部,宜沿两个方向正交、斜向平行或放射状布置附加钢筋。
4 钢筋应在梁内、墙内或柱内可靠锚固。
构造手册384页建议支座配筋一般取跨中配筋量的1/3,配筋范围为ln/4),则As>1/3×754=251mm²,配12@200,As=565mm²,我单位要求通长配置,以利于抗震。
④上部分布筋同下部分布筋的配置方法。
选配8@200,图2.9上部③号钢筋TB的配筋图如图2.9,图2.92)平台板设计(1)平台板计算简图平台板取1m板宽作为计算单元。
平台板这里近似地按受力方向为短跨方向的简支板计算(即为单向板3.6/1.6=2.25,GB50010-2010,9.1.1.2-2)当长边与短边长度之比大于2.0,但小于3.0时,宜按双向板计算;),计算简图如图2.10所示。
计算跨度:由于平台板两端均与梁整结,所以计算跨度取净跨l2n=1600mm,平台板厚度取t2=100mm(GB50010-2010,9.1.2.1,板的跨厚比:钢筋混凝土单向板不大于30,1/30×1600=53.3mm)。
(2)荷载计算平台板荷载计算见表2.4荷载种类荷载标准值(KN/m)荷载分项系数荷载设计值(KN/m)恒荷载平台板自重25×0.1×1=2.5 1.2 3.0030厚水磨石面层0.65 1.2 0.78板底20厚水泥砂浆粉刷20×0.02=0.4 1.20.48 恒载合计g 3.55 1.2 4.26 活荷载q 3.5 1.4 4.90 总计p7.05 9.16表2.4按永久荷载控制的组合P=1.35×3.55+0.98×3.5=8.22KN/m, 综合取P=9.16KN/m (3)内力计算剪力V=1/2×9.16×1.55=7.099KN<0.7f t bh 0=0.7×1.27×1000×80=71.12KN ,承载力满足条件。
(GB50010-2010,6.3.3) 计算长度取净跨l 2n=1.55m 考虑平台板两端梁的嵌固作用,跨中最大设计弯矩取2229.16 1.55 2.20.1010npl M KN m ⨯===(4)配筋计算h 0=100-20=80mm ,选配HPB300级钢筋05622001min 0.80.80.576270110.0033 2.1100.003322 2.20108080 2.3450.5768046.08111.910001.27max 0.2%,0.45max 0.2%,0.450.00212270b y sb c t y f E M x h h mm h mmf b f f ξξαρ===++⨯⨯⨯⨯⨯=--=--=<=⨯=⨯⨯⎧⎫⎪⎪⎧⎫===⎨⎬⎨⎬⎩⎭⎪⎪⎩⎭221min 111.91000 2.345103.35.0.002121000100212270c s yf bxA mm bh mm f αρ⨯⨯⨯===<=⨯⨯=故As>212mm ²,选用①板底纵向受力钢筋8@180,As=279mm ²②板底纵向分布钢筋8@180,As=279mm (GB50010-2010,9.1.7当按单向板设计时,应在垂直于受力的方向布置分布钢筋,单位宽度上的配筋不宜小于单位宽度上的受力钢筋的15%,且配筋率不宜小于0.15%;分布钢筋直径不宜小于6mm ,间距不宜大于250mm ;当集中荷载较大时,分布钢筋的配筋面积尚应增加,且间距不宜大于200mm。
当有实践经验或可靠措施时,预制单向板的分布钢筋可不受本条的限制。
)③板上部纵向构造钢筋8@180,As=279mm(9.1.6 .1按简支边或非受力边设计的现浇混凝土板,当与混凝土梁、墙整体浇筑或嵌固在砌体墙内时,应设置板面构造钢筋,并符合下列要求:钢筋直径不宜小于8mm,间距不宜大于200mm,且单位宽度内的配筋面积不宜小于跨中相应方向板底钢筋截面面积的1/3。
与混凝土梁、混凝土墙整体浇筑单向板的非受力方向,钢筋截面面积尚不宜小于受力方向跨中板底钢筋截面面积的1/3。
)④板上部纵向分布钢筋8@180,As=279mm(理由:GB50010-2010,9.1.7当按单向板设计时,应在垂直于受力的方向布置分布钢筋,单位宽度上的配筋不宜小于单位宽度上的受力钢筋的15%,且配筋率不宜小于0.15%;分布钢筋直径不宜小于6mm,间距不宜大于250mm;) 3)平台梁TL1设计(1)平台梁两端搁置在楼梯间的侧墙上,所以计算跨度取L= min{l3n+a,1.05ln}=min{3600,1.05×3360}=3528mm(《混凝土结构设计》课本30页)平台梁(TL1)的截面尺寸取h=400mm,b=250mm(2)荷载计算平台梁的荷载计算见表2.5由永久荷载控制的组合:P=1.35g+0.98q=1.35×17.57+0.98×9.36=32.89KN/m由可变荷载控制的组合:P=1.2g+1.4q=1.2×17.57+1.4×9.36=34.19KN/m所以取P=34.19KN/m(3)TL支座处的最大剪力:V=PL3n/2=34.19×3.528/2=60.31KN<0.7f t bh0=0.7×1.27×250×365=81.121KN,构造配箍即可。