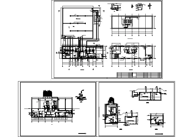
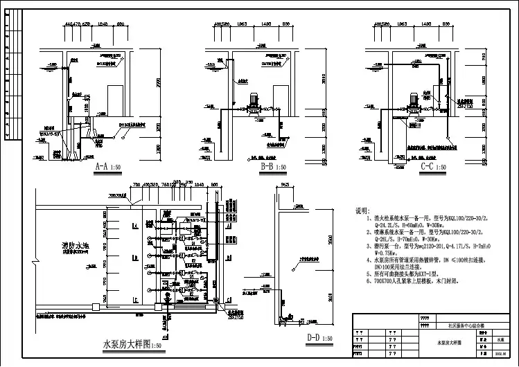
%%%%-0.151#净水器%%1280.00DN150DN200DN2002#净水器4.00DN100A 向-3.00DN100W-1.60DN300-1.00DN300-2.60-2.00-1.15-3.00DN300-2.50800-2.25DN300DN200-2.00DN150DN150DN250Y-1.50-1.50DN150-3.00DN150DN150实验放水阀DN70-0.15200200200700600700600700600700120085010008501000850120036003600360036003600360021600DN150溢流管-3.00循环水吸水池-4.50-4.50-1.20-3.70-2.20DN150接消毒设备BB10404210变频恒压给水设备总管-3.30-1.80-4.30P1P2P3P4P5P6P7P8DN200DN200D=64 有机玻璃管水位标尺E-E剖面图综合泵房及清水池剖面图(一)综合泵房及清水池剖面图(二)16400400600360021600J4 DN20单轨吊实验时关闭1实验放水管600XHXH236005503600J6XhJ6J613007505003112300DN70DN150P3P2DN1502tP1接净水器DN150P4综合泵房-4.50XhL-1DN300J4 DN250MFA5x4J6 DN15012004000-1.65DN300接雨水管1300600DN80 -2.201150400DN150 -4.17DN150DN150 -4.17DN1501300接消毒设备3200DN200 -4.181300DN200DN200%%129800检修孔8005006007002325DN2006500投药设备170036003600J6J6600600J6564XJW80012DN150接净水器DN200P6接净水器DN50300DN200DN300DN200接净水器DN200P7P8YJ DN15XJ DN300500放空管 DN503600溢流管 DN150冬季可开阀循环水进吸水池或根据水温不开冷却塔风机爬梯1200200600循环水吸水池DN40补水箱接浮球阀DN50A 向DN200P9,10DN30012002Xh10002160590DN200J4L-1DN200300300DN200J4L-2J4 DN200 -2.30DN300XhL-2DN300顶端通气详见系统图1000600DN202000检修孔520600爬梯70016400钢筋混凝土蓄水池V=1000m%%153导流墙40001200800250250%%1298003400检修孔10009002900500x500x400(H)积水坑钢筋混凝土阀门井1000250900250900DN15DN200DN200-3.20检修孔360021600360021600∅2800∅280036003600冬季可关阀循环水不上冷却塔或根据水温不开冷却塔风机700电控间7001000消毒间1000MFA5x3安装高度 1.40m蝶阀%%1280.00平面3600-1.55W360014001DN200放空管 DN65W1#净水器DN300XhL-1放空管 DN652#净水器WDN200%%1280.00MFA5x33600电磁阀与沉井给பைடு நூலகம்泵联动4400消毒设备1#6001000W4-1.60MYJ DN15J4 DN20消毒设备DN202#36003900J4L-1DN200XhL-2DN300J4L-2DN2002600屋面冷却塔平面图3600360065003600JDN32J3001WDN100-1.60W12503控制间DN3236005202740DN300XhL-1D3T41X-10型 DN200蝶阀 1455DN200DN250DN250520XhL-2DN300Xh DN300-0.1598ZS101 P17液压水位控制阀DN15DN200-2.30-2.106500爬梯-4.50平面J6 DN150 -2.202790-4.95-0.95-3.00AAAABBCCDN100 -1.60 -2.105序号2134净水器冷却塔 电子除垢仪电磁阀名 称序号1112131415变频恒压给水设备投药设备KFT200-C2型(超低噪声) Q=400m%%153/h,温差 5%%127C N=5.5x2kW.规 格 型 号%%129=2.8m, H=3.5m, Q=140m%%153/h 石英砂滤料DN300 N=120WDN20套台 套套单位一用一备211110序号6789数量备 注HLS-200/0.4-Q2型 Q=200m%%153/h,H=40m其中主泵 100FL100-20x2型 N=18.5kW稳压泵 40FL6-12x4型 N=2.2kW规 格 型 号%%129=0.8m, H=1.5m, N=1.5kW名 称%%129800稳压罐及控制柜 单位套1两用一备套1台 3台 1一用一备2套备 注数量一用一备两用一备备 注两用一备一用一备一用一备BD-6型 电解法二氧化氯发生器 有效氯 200g/h N=2kWJYWQ50-23-15-1200-2.2型 Q=23m%%153/h,H=15m,N=2.2kW.FLDG 200-400B型 Q=174m%%153/h,H=38m,N=30kWXBD7/20-100L 型 Q=15l/s,H=70m,N=22kWXBD3.2/25-100-160L型 Q=25l/s,H=30m,N=15kW规 格 型 号室内消火栓泵 P1\P2消毒设备排水泵 P9\P10名 称室外消防泵 P3\P4循环水泵 P6\P7\P82套2台 数量单位232台 台 台 -5.755000P5DN20水位标尺D=64 有机玻璃管DN200410500P51000DN250DN250DN150DN150DN50190013751900D=64 有机玻璃管水位标尺上人孔126028002440下-2.00综合泵房及清水池平面图DN200YJ DN15DDEE焊接钢管 DN100DN100-3.50-2.60-2.00-3.00-2.40关阀水位200600DN40DN50浮球阀 不锈钢补水箱 800x400x600(H) %%134=4300450见详图 B详图 B活动盖板详图 CDN200DN2001.5015015040%%129=35051801364见详图 A详图 A接投药设备YJ DN15必要时使用DN5045%%127DN200 -4.05DN150J6 DN150DN200 -4.18DN200J6 DN150 -2.20DN200 -4.05DN200 -4.05J4 DN200 -2.30DN250 -2.30DN150 -2.20DN150 -2.20DN300 -2.30J4 DN250DN250 -2.30DN200 -2.60DN200 -2.60DN200DN300 -2.30DN200DN200DN200800DN300DN300 -2.60DN15砖砌导流墙顶距池顶板底 200mm, 导流墙底部每隔 2000mm开流水孔 120mmx120mm.DN250Xh DN300DN200DN300DN70实验放水管-3.93DN300DN200Y过滤器DN200DN50Y过滤器DN200DN50DN250DN250DN150DN150DN250DN70DN70-3.30DN150DN1500.3Mpa减压阀两端设压力表DN150DN150DN150-2.701.20DN200DN200DN200排水管DN200接地漏-4.50-2.60-0.15DN300DN50放空\排污管 DN200DN2002t单轨吊-2.00电子水处理器%%1280.00Y过滤器DN200DN50-3.98循环水泵 P6\P7\P8减振安装6500DN2000.85-0.80-4.95检修孔900通风管-0.15-4.50-4.17DN150-3.30DN150-2.20%%172型防水套管实验放水阀DN70%%1280.00i=0.005DN1502t单轨吊-1.25最高水位沉井给水泵自动停泵消防水位变频恒压给水设备自动停泵-3.450.704.20YJ DN15见详图 ADN2004.001.60-1.10-2.60DN200跨越管DN200-2.30-5.75-5.3520019007006500DN200DN200DN200DN200DN250DN300剖面图C-C见详图 C1.50DN2001.20DN300DN200-1.40D-D剖面图通风管-0.15-2.30-1.25-3.45-0.80通风管9000.85关阀水位DN15900-4.95消防水位变频恒压给水设备自动停泵DN200-3.00接排水管DN300 检修孔溢流水位-1.101.65-0.154.20-4.20P9P10启泵水位-4.50-4.90停泵水位-5.70DN1501530-0.60600600DN150DN200DN200DN200DN200DN200DN200DN200DN200池底排水坡定 i=0.005,坡向集水坑.